Скачать Серия КЭ-01-07 Выпуск 7. Колонны двухветвевые безраскосные с нагрузкой от кранов 30 и 50 т с шагом для наружных рядов 6 м и для внутренних рядов 12 м при осуществлении нулевого цикла работ до монтажа конструкций (для 1-го географического района ветровой нагрузки)Дата актуализации: 01.01.2021
|
| Обозначение: | Серия КЭ-01-07 |
| Обозначение англ: | Series КЭ-01-07 |
| Статус: | действует |
| Название рус.: | Выпуск 7. Колонны двухветвевые безраскосные с нагрузкой от кранов 30 и 50 т с шагом для наружных рядов 6 м и для внутренних рядов 12 м при осуществлении нулевого цикла работ до монтажа конструкций (для 1-го географического района ветровой нагрузки) |
| Дата добавления в базу: | 01.10.2014 |
| Дата актуализации: | 01.01.2021 |
| Дата введения: | 01.01.1958 |
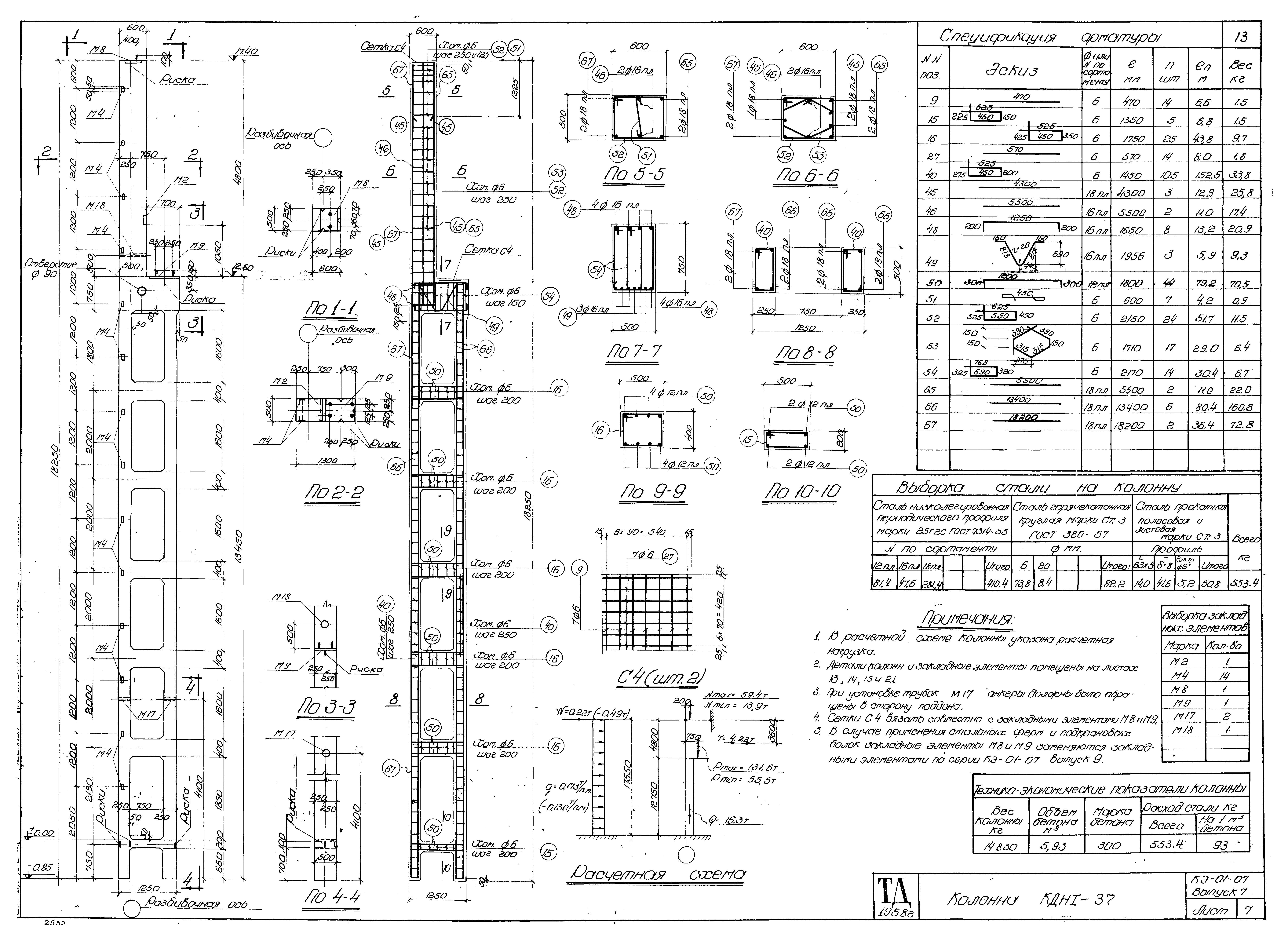
| Оглавление: | Пояснительная записка Приложение №1. Таблица расходов материалов на колонны Колонны Закладные элементы Узлы сопряжения колонн с примыкающими конструкциями. Схема замены закладных элементов при опирании на колонны стальных конструкций Детали сопряжения колонн с фундаментами Ключ для подбора типовых колонн и нагрузки на фундаменты Примерный схематический план цеха с размещением вертикальных связей по колоннам Закладные элементы для вертикальных связей в колоннах Вертикальная связь по колоннам Схемы складирования, транспортировки и установки колонн |
| Разработан: | Проектный институт № 1 Министерства строительства РСФСР |
| Утверждён: | 01.01.1958 Государственный комитет Совета Министров СССР по делам строительства |







































