Скачать Типовой проект 805-5-5.86 Альбом 1. Общая пояснительная записка. Технологические чертежиДата актуализации: 01.01.2021
|
| Обозначение: | Типовой проект 805-5-5.86 |
| Обозначение англ: | 805-5-5.86 |
| Статус: | не определен законодательством |
| Название рус.: | Альбом 1. Общая пояснительная записка. Технологические чертежи |
| Дата добавления в базу: | 01.10.2014 |
| Дата актуализации: | 01.01.2021 |
| Дата введения: | 20.10.1986 |
| Дата окончания срока действия: | 30.06.2003 |
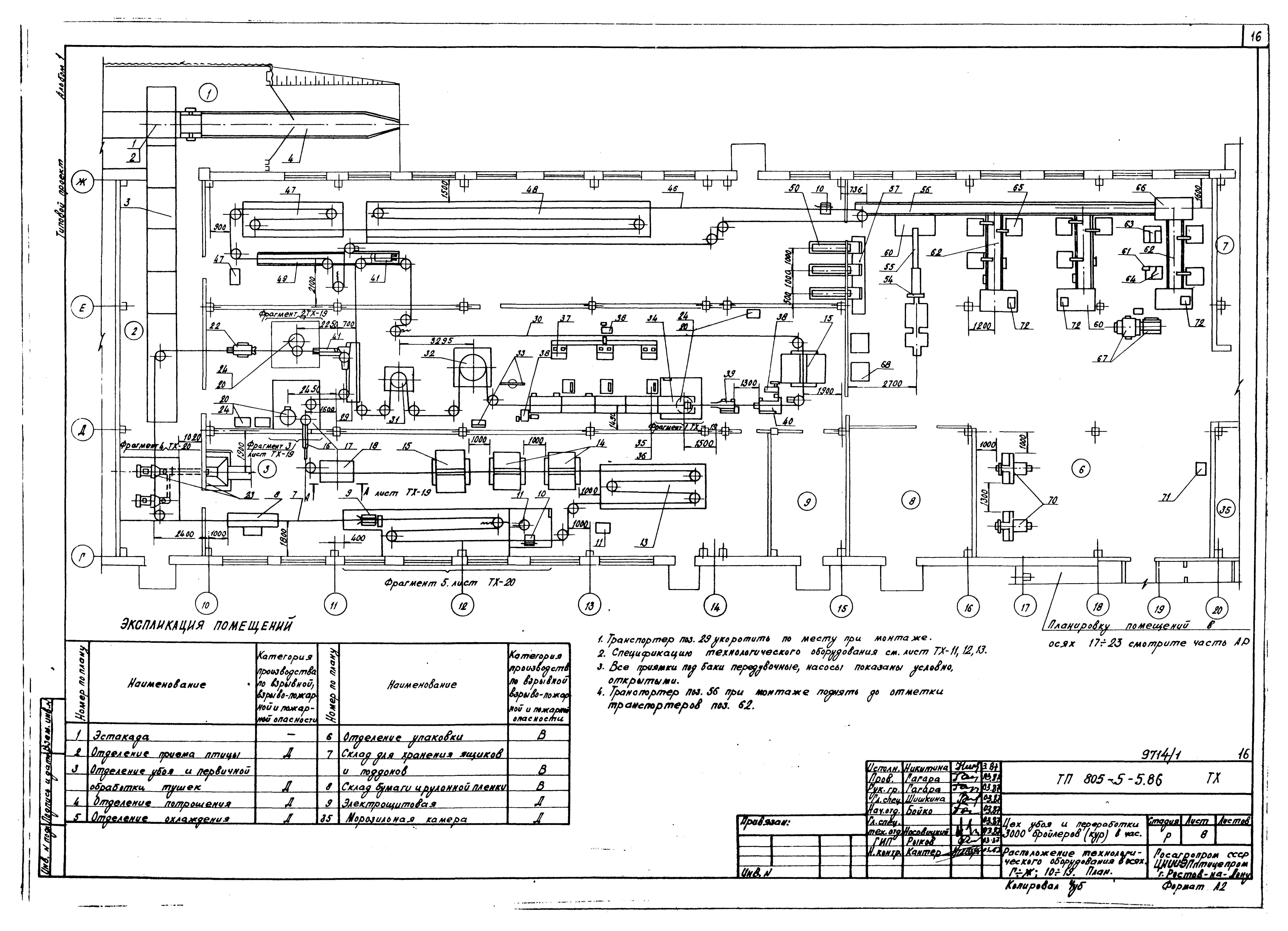
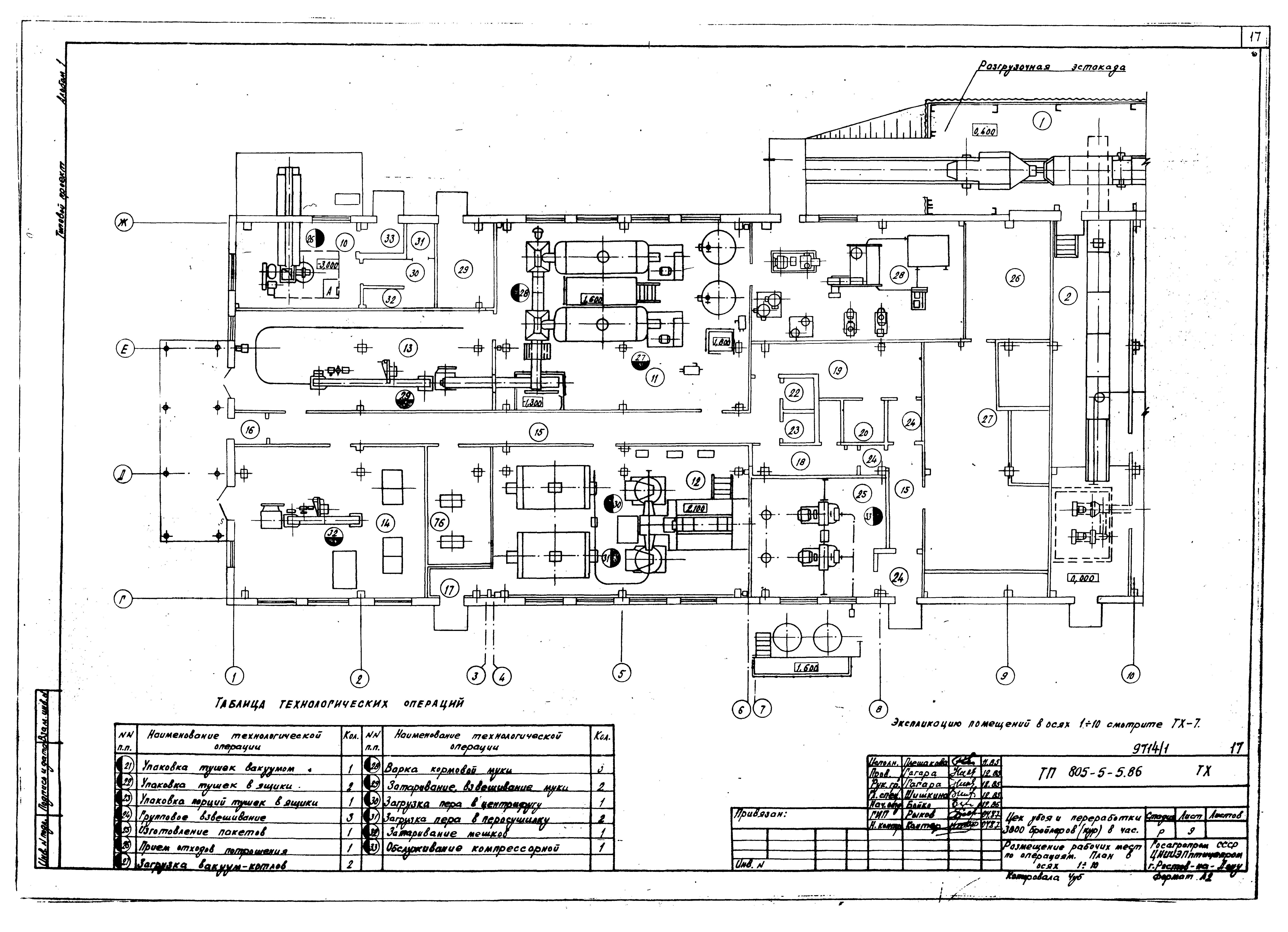
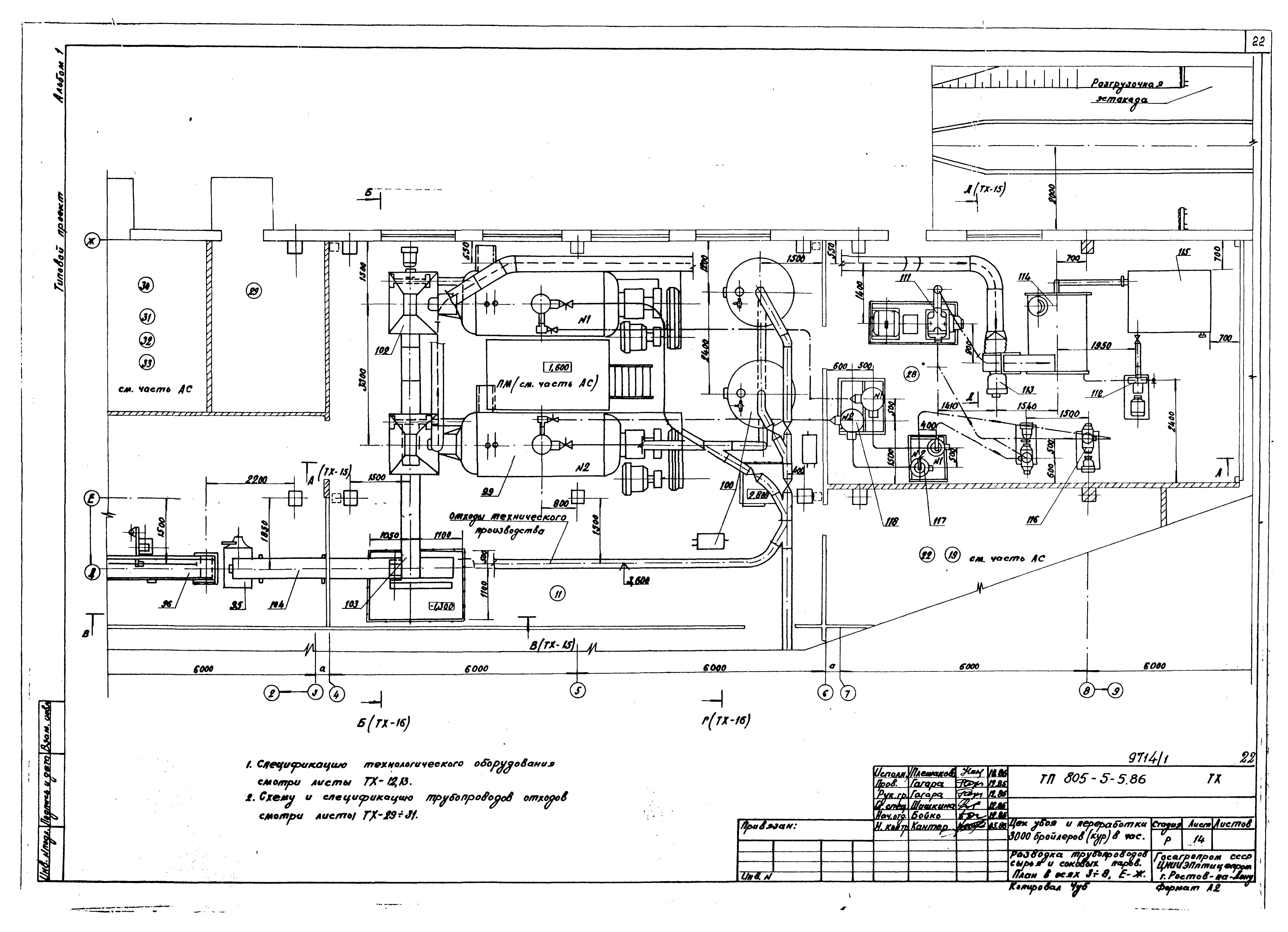
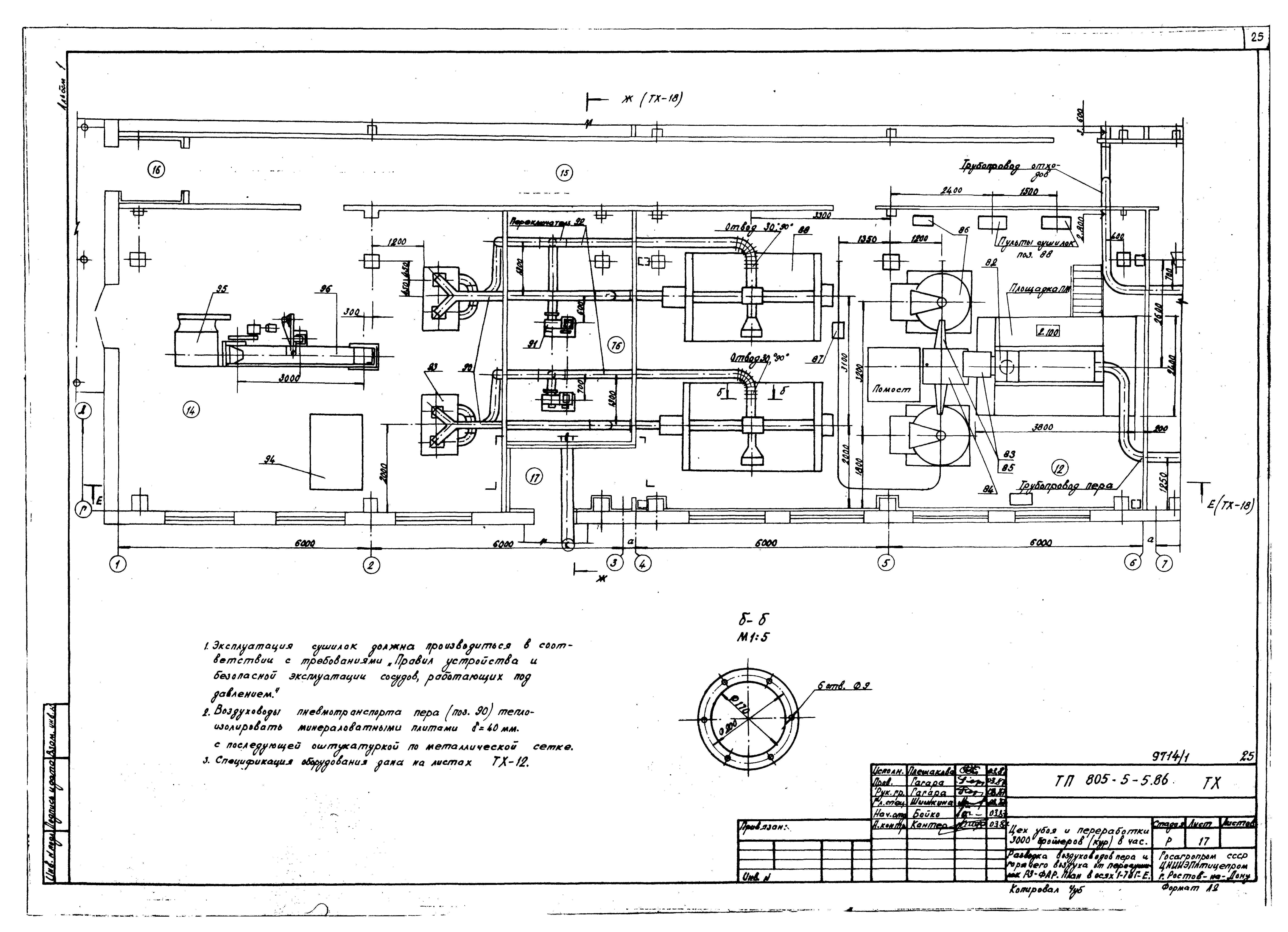
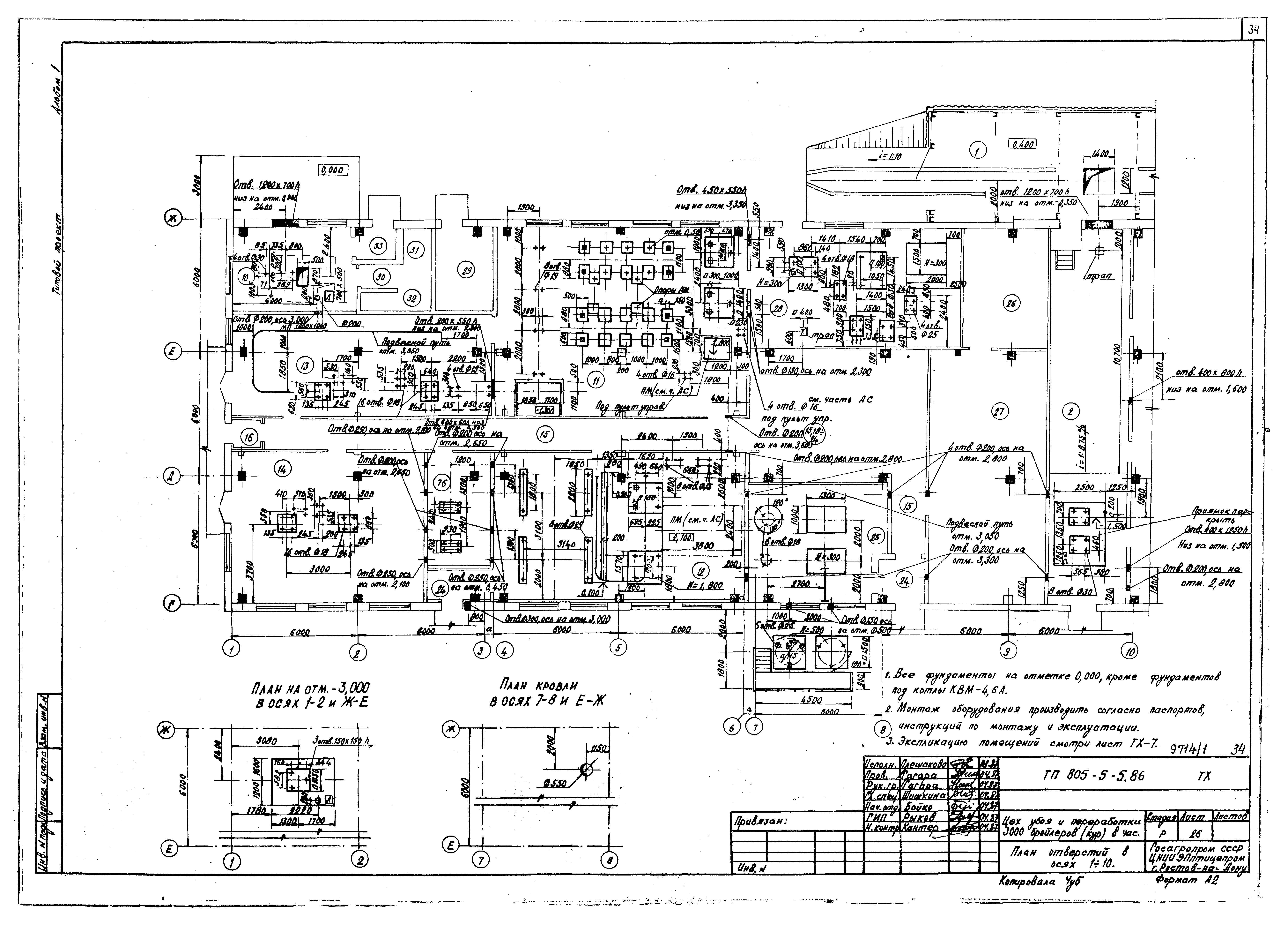
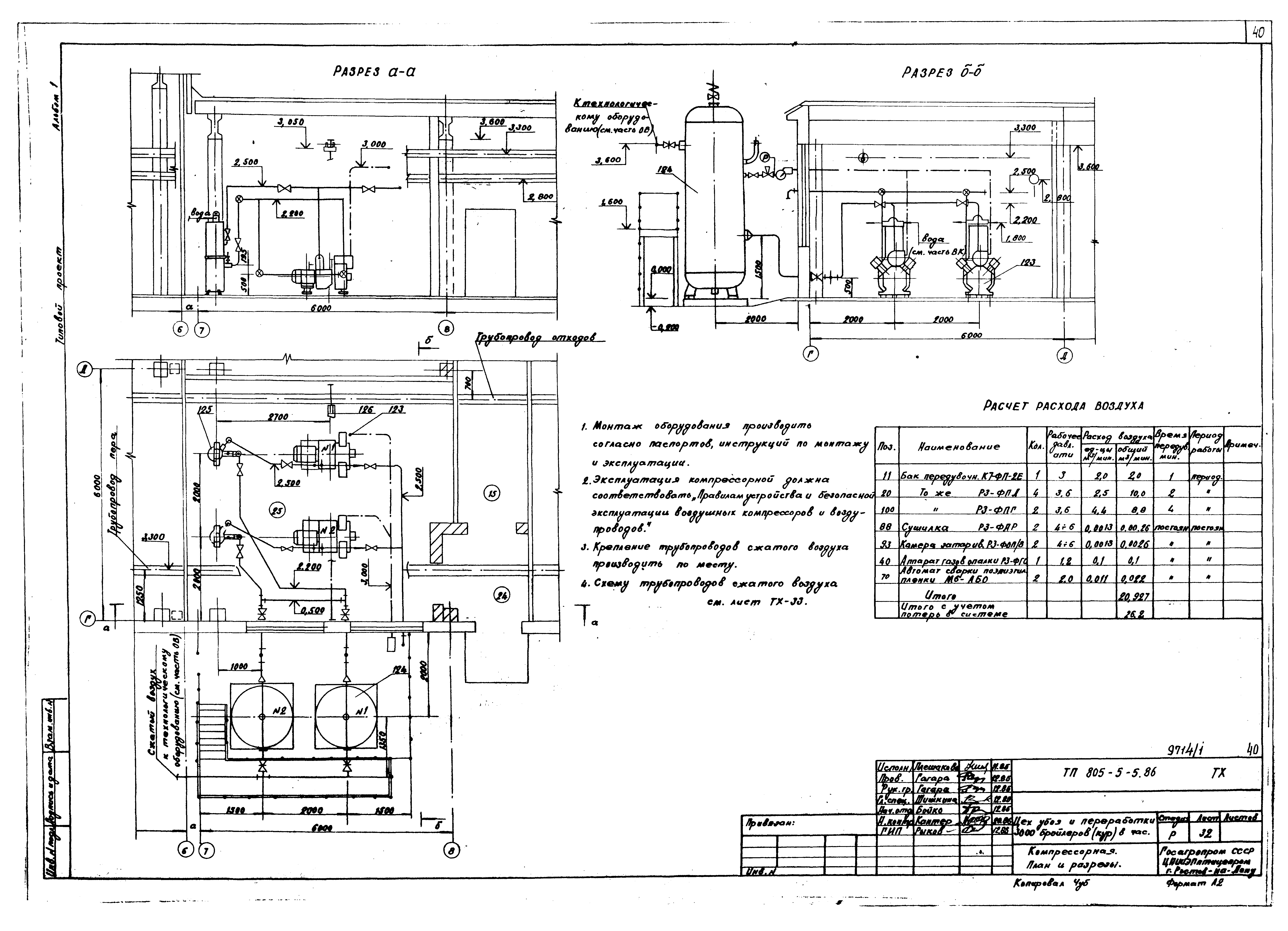
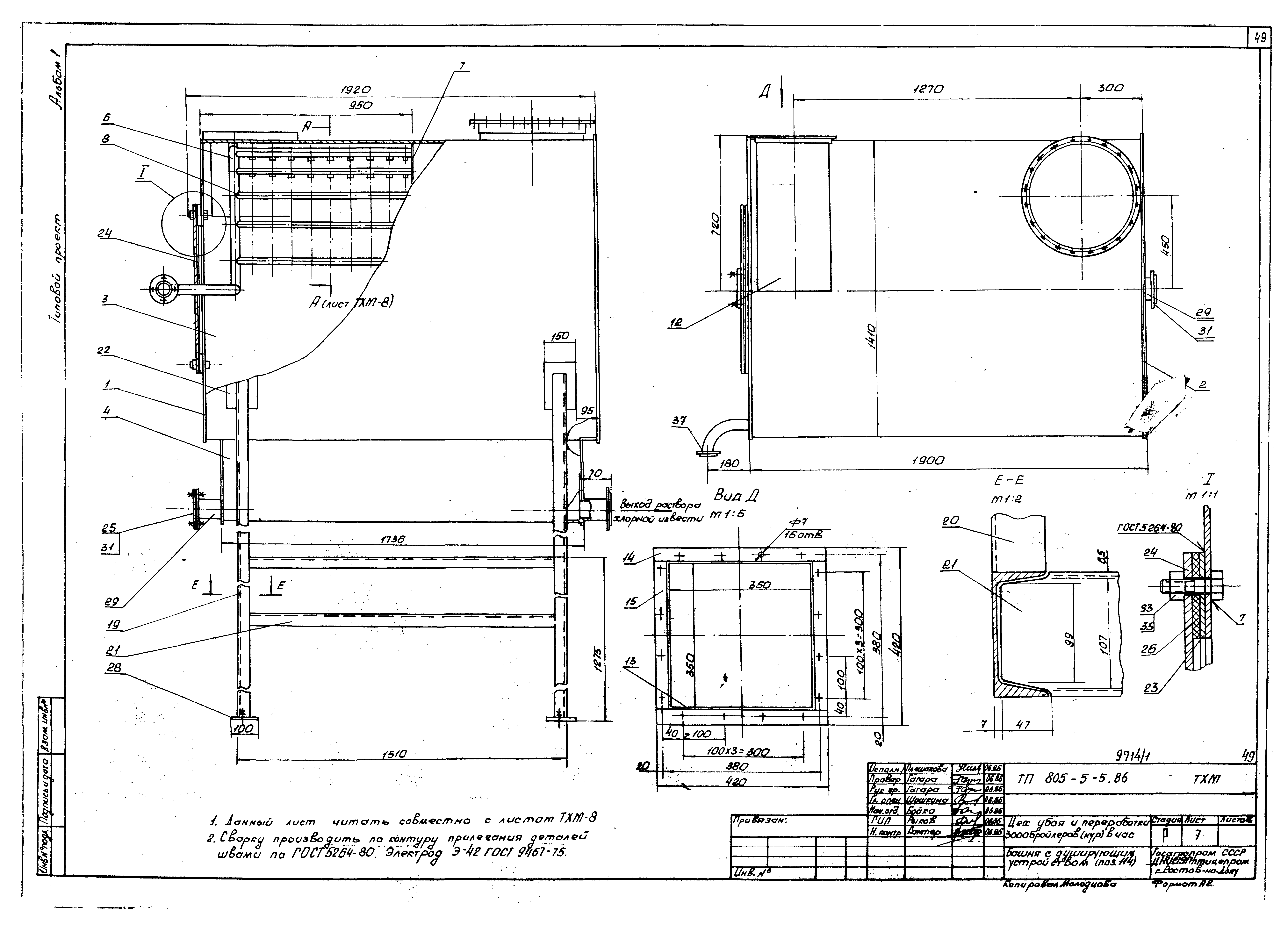
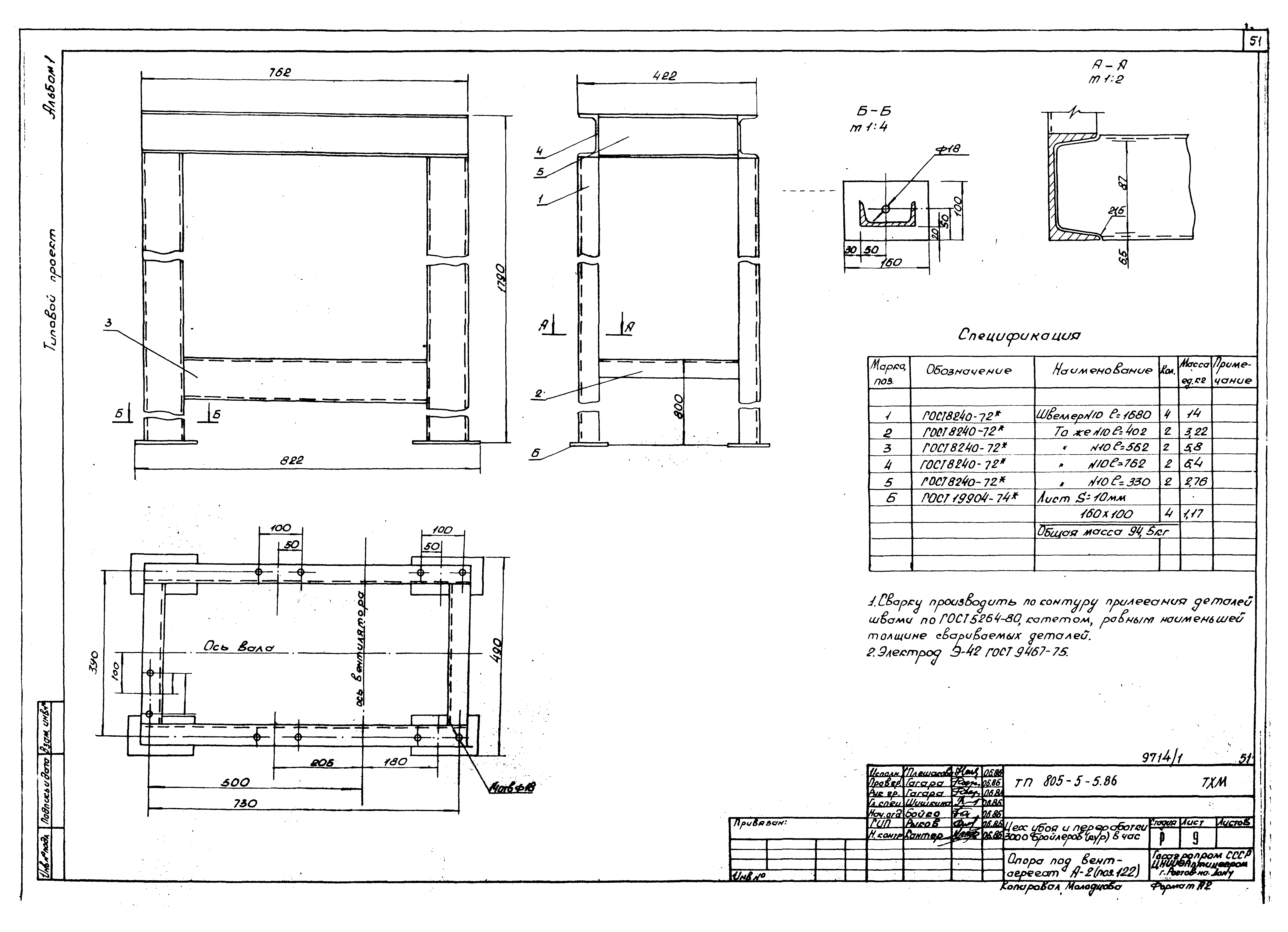
| Оглавление: | Общая пояснительная записка Чертежи основного комплекта марки ТХ Общие данные Схема технологического процесса убойного цеха Расположение оборудования в осях 1 - 10. План Расположение технологического оборудования в осях Г - Ж; 10 - 19. План Размещение рабочих мест по операциям. План в осях 1 - 10 Размещение рабочих мест по операциям. План в осях 10 - 19 Спецификация технологического оборудования Разводка трубопроводов сырья и соковых паров. План в осях 3 - 8; Е - Ж Разводка трубопроводов сырья и соковых паров. Разрезы А-А; Д-Д; В-В План на отм. 0.000 в осях 1 - 2; Ж - Е. Разрезы Б-Б, Г-Г. Узел I Разводка воздуховодов пера и горячего воздуха от перосушилок РЗ-ФАР. План в осях 1 - 7; Г - Е Разводка воздуховодов пера и горячего воздуха от перосушилок РЗ-ФАР. Разрезы Е-Е, Ж-Ж Фрагменты установок передувочных баков РЗ-ФПД-0,63. Фрагмент установки устройства газовой опалки Тоннель для стока крови. Фрагмент установки насосных агрегатов Монтажный чертеж конвейера К7-ФЦЛ-6/41-01. План в осях 10 - 15; Г - Д Монтажный чертеж конвейера К7-ФЦЛ-6/41-02. План в осях 11 - 14; Д - Е Монтажный чертеж конвейера К7-ФЦЛ-6/41-16. План в осях 11 - 16; Е - Ж Разрезы по конвейерам К7-ФЦЛ-6/41-01; К7-ФЦЛ-6/41-02; К7-ФЦЛ-6/41-16. Узлы Узлы крепления конвейеров План отверстий в осях 1 - 10 Монтажная схема трубопроводов соковых паров и дезодорации дурнопахнущих газов План разводки технологических трубопроводов Монтажная схема трубопроводов отходов и пера Монтажная схема трубопроводов потрохов. Спецификация Компрессорная. План и разрезы Компрессорная. Схема сжатого воздуха. Спецификация Опросный лист на винтовой конвейер У1-БКВ-3232 Установка наклонного шнека К7-ФТГ/2 Чертежи основного комплекта марки ТХМ Воронки. Тройник. Патрубок вводной Ловушка. Разрез Б-Б. Виды А, Б, Е (поз. 118) Ловушка. Разрез В-В (поз. 118). Крышка Опоры под ловушки и конденсаторы поз. 122 Конденсатор поз. 117. Тройник. Желоб потрошения Бак. Станина под пульты управления Башня с душирующим устройством, поз. 114 Опора под вентагрегат А-2, поз. 122 Бак для раствора хлорной извести поз. 115 Вытяжное устройство от котлов КВМ-4,6А Люк ревизионный поз. 106 |
| Разработан: | ЦНИИЭПптицепром Минсельхоза СССР |
| Утверждён: | 25.06.1986 Госагропром СССР (USSR Gosagroprom 9-ЭТ) |
| Издан: | ЦИТП Госстроя СССР (CITP, Gosstroy (USSR) 1988 г. ) |
























































