Скачать Типовой проект 805-5-5.86 Альбом 3. Сантехнические чертежи. Холодоснабжение. Воздухоснабжение. ГазоснабжениеДата актуализации: 01.01.2021
|
| Обозначение: | Типовой проект 805-5-5.86 |
| Обозначение англ: | 805-5-5.86 |
| Статус: | не определен законодательством |
| Название рус.: | Альбом 3. Сантехнические чертежи. Холодоснабжение. Воздухоснабжение. Газоснабжение |
| Дата добавления в базу: | 01.10.2014 |
| Дата актуализации: | 01.01.2021 |
| Дата введения: | 20.10.1986 |
| Дата окончания срока действия: | 30.06.2003 |
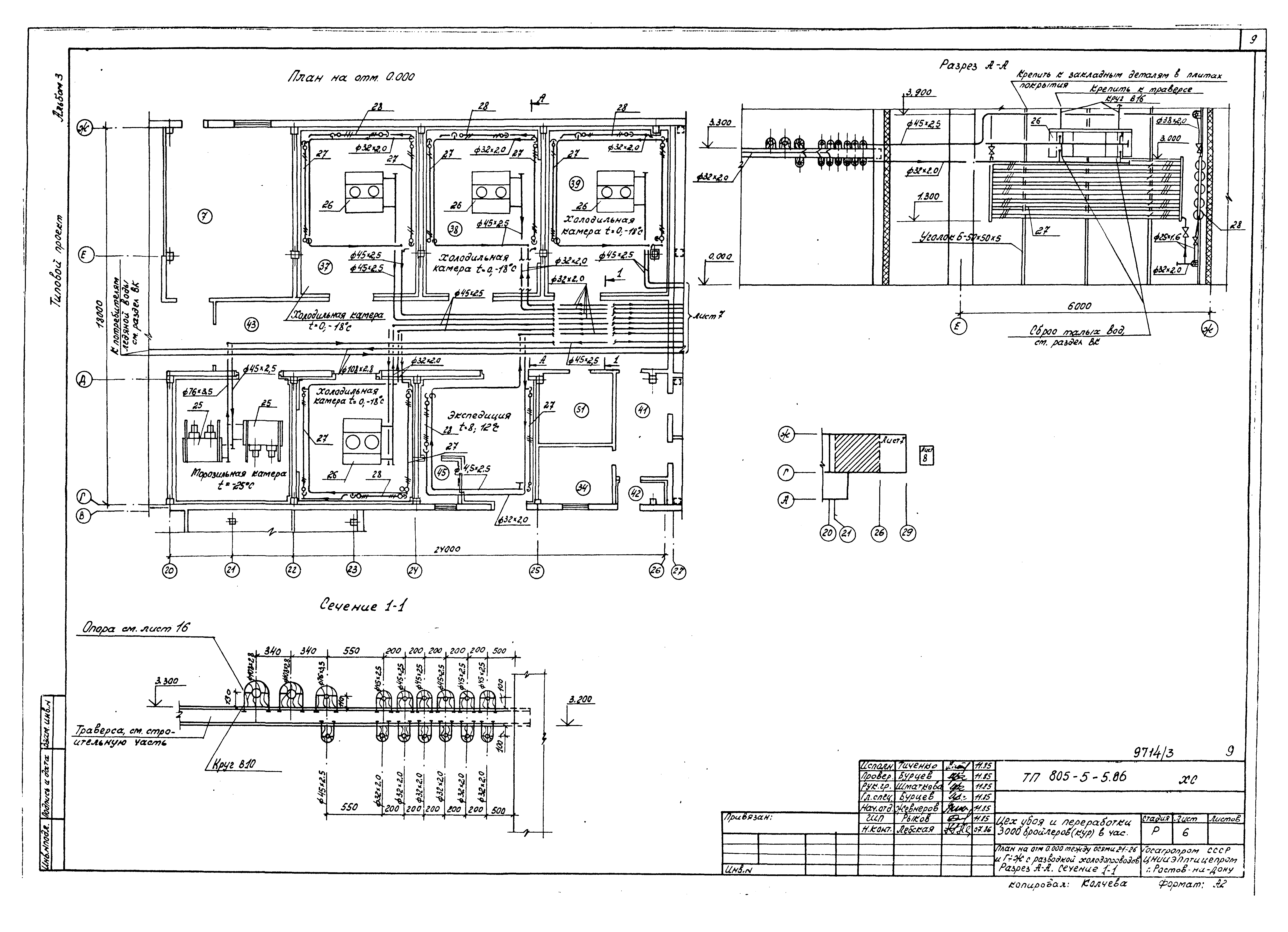
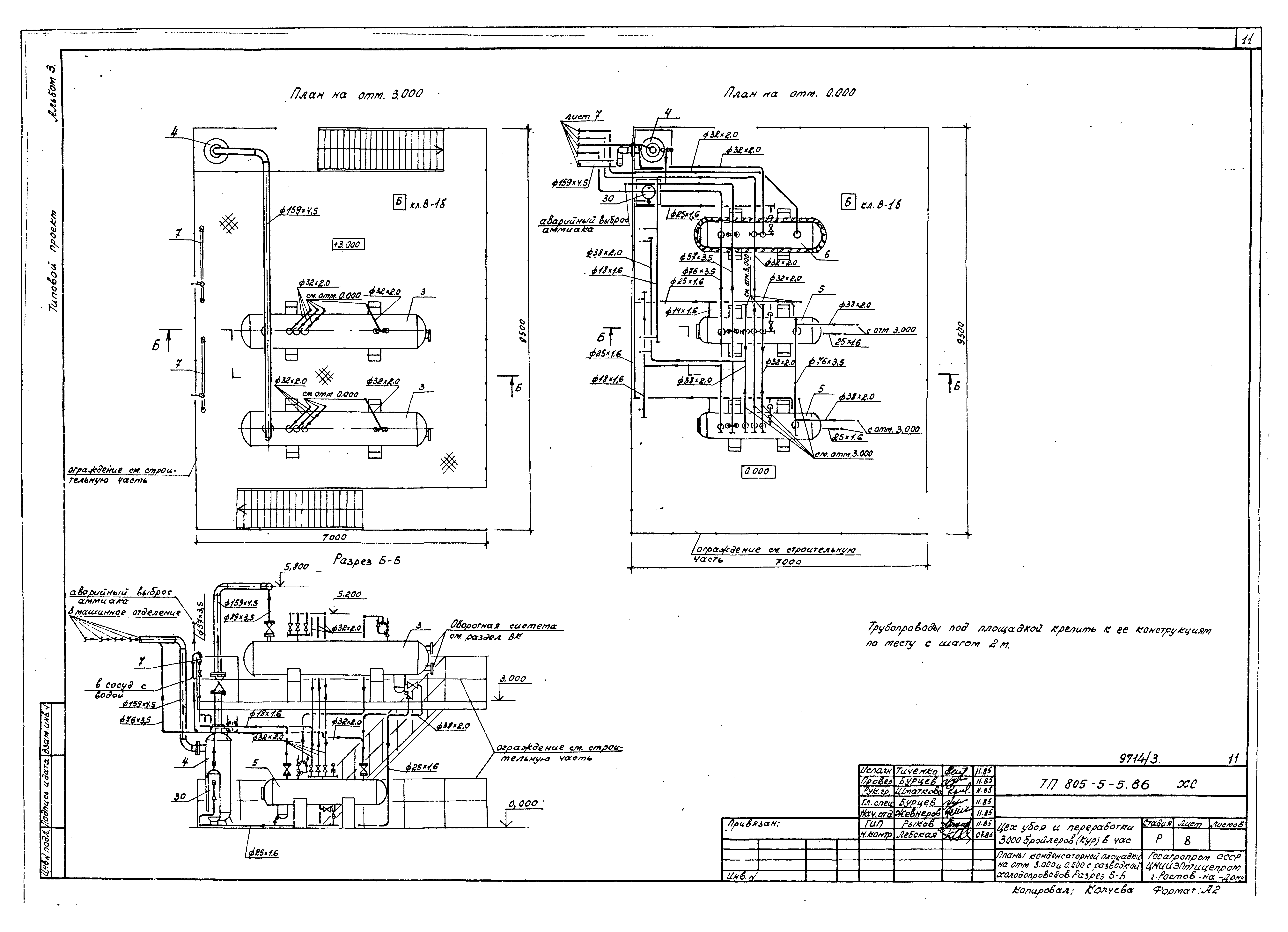
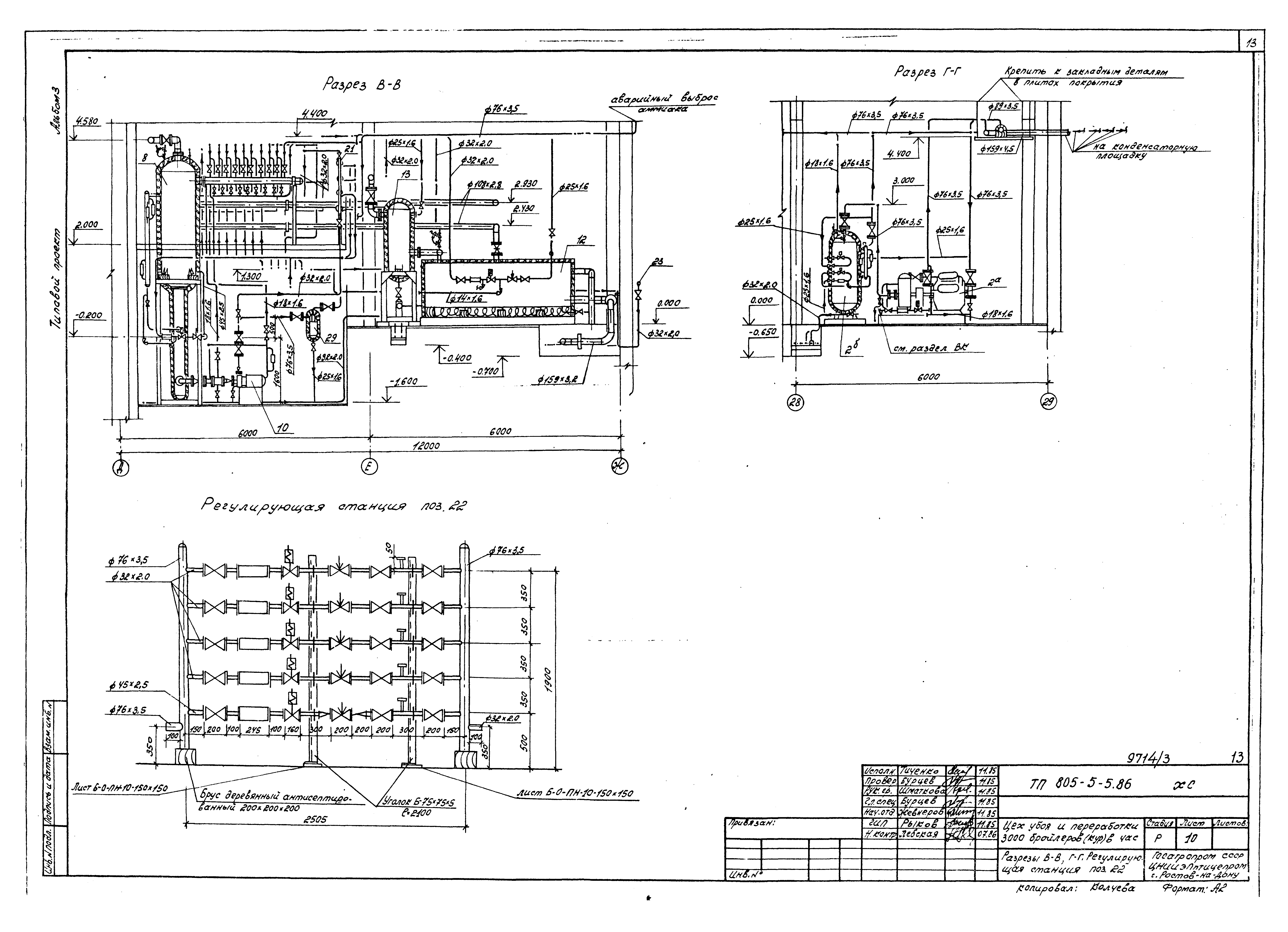
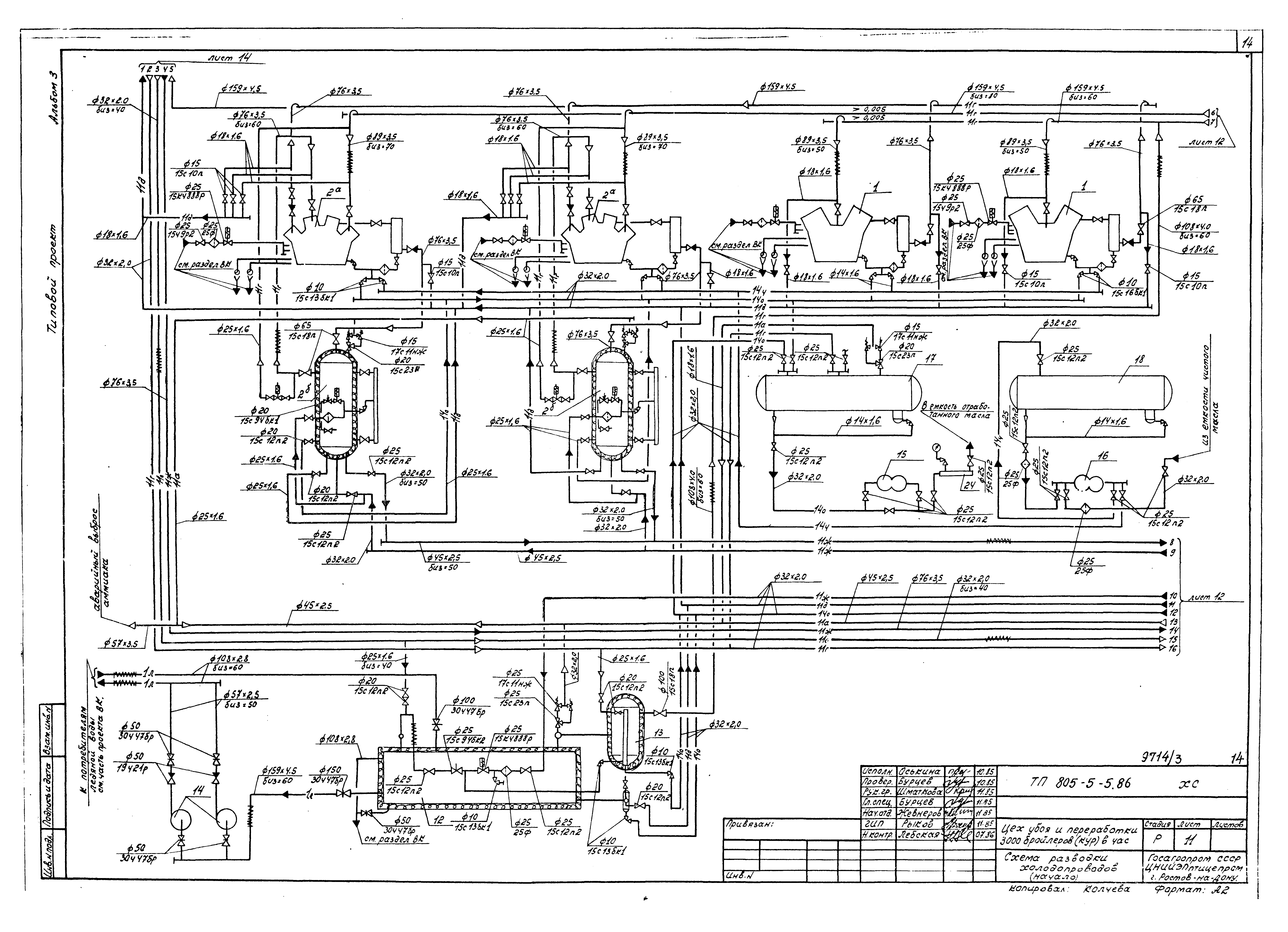
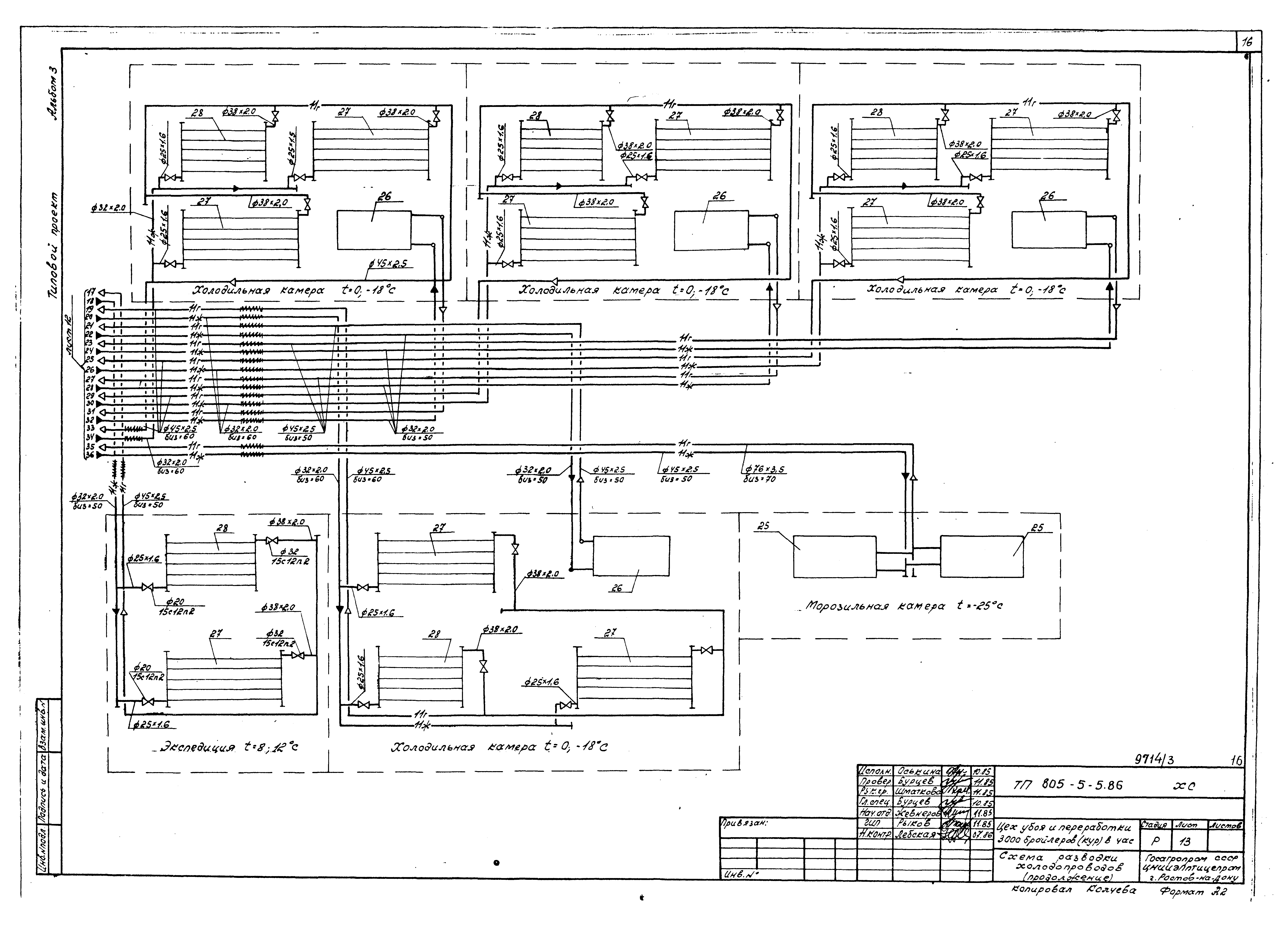
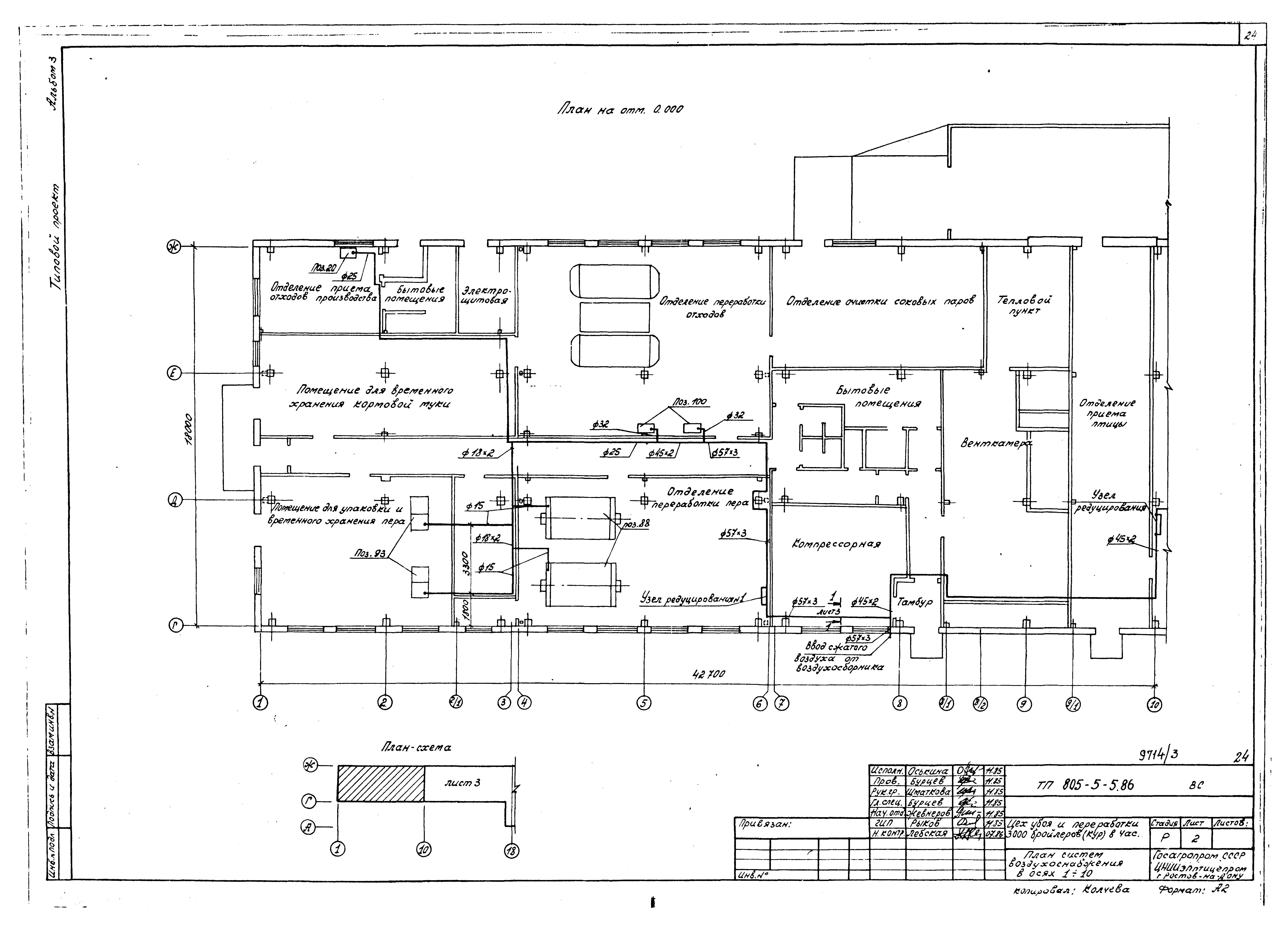
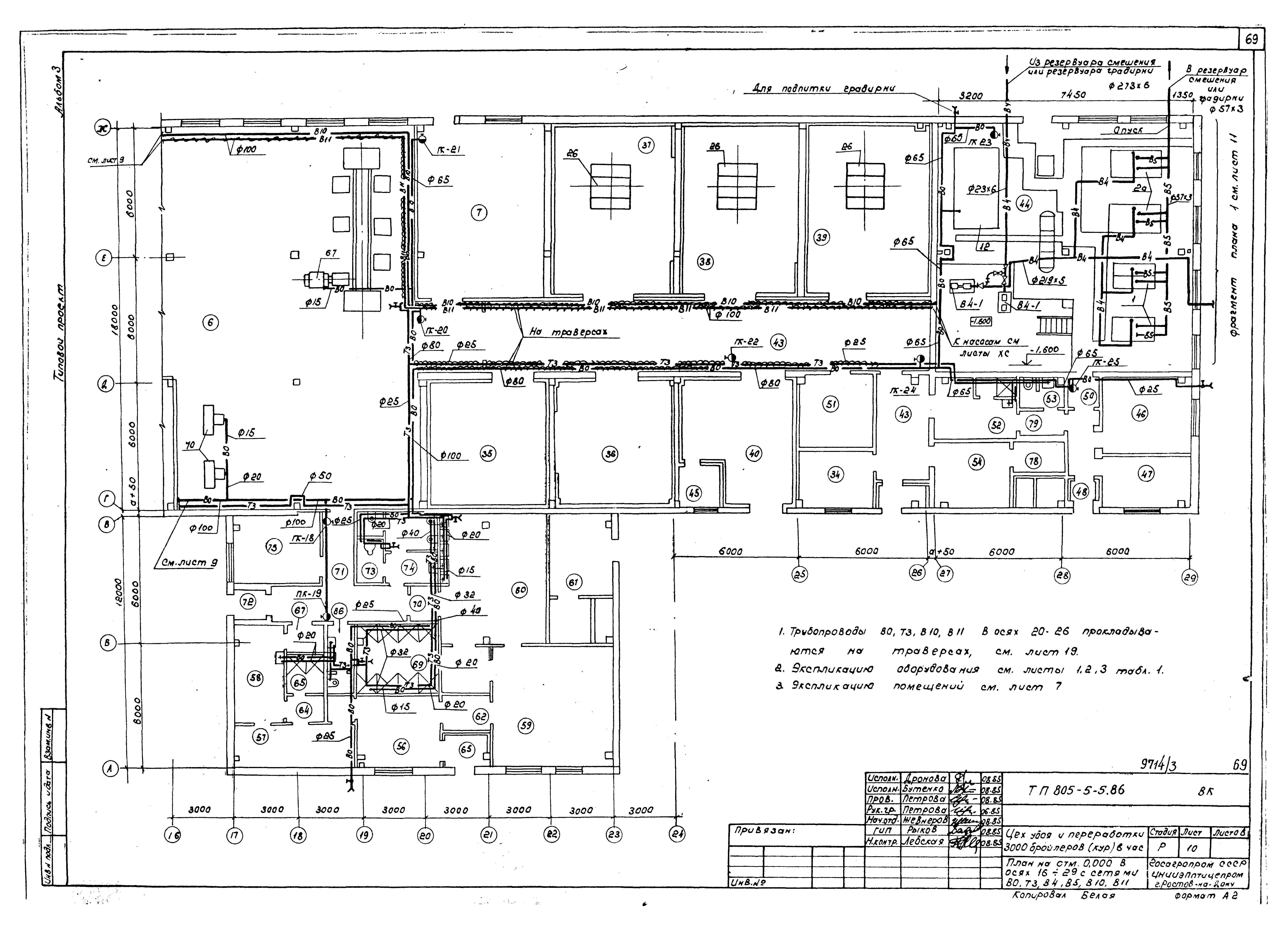
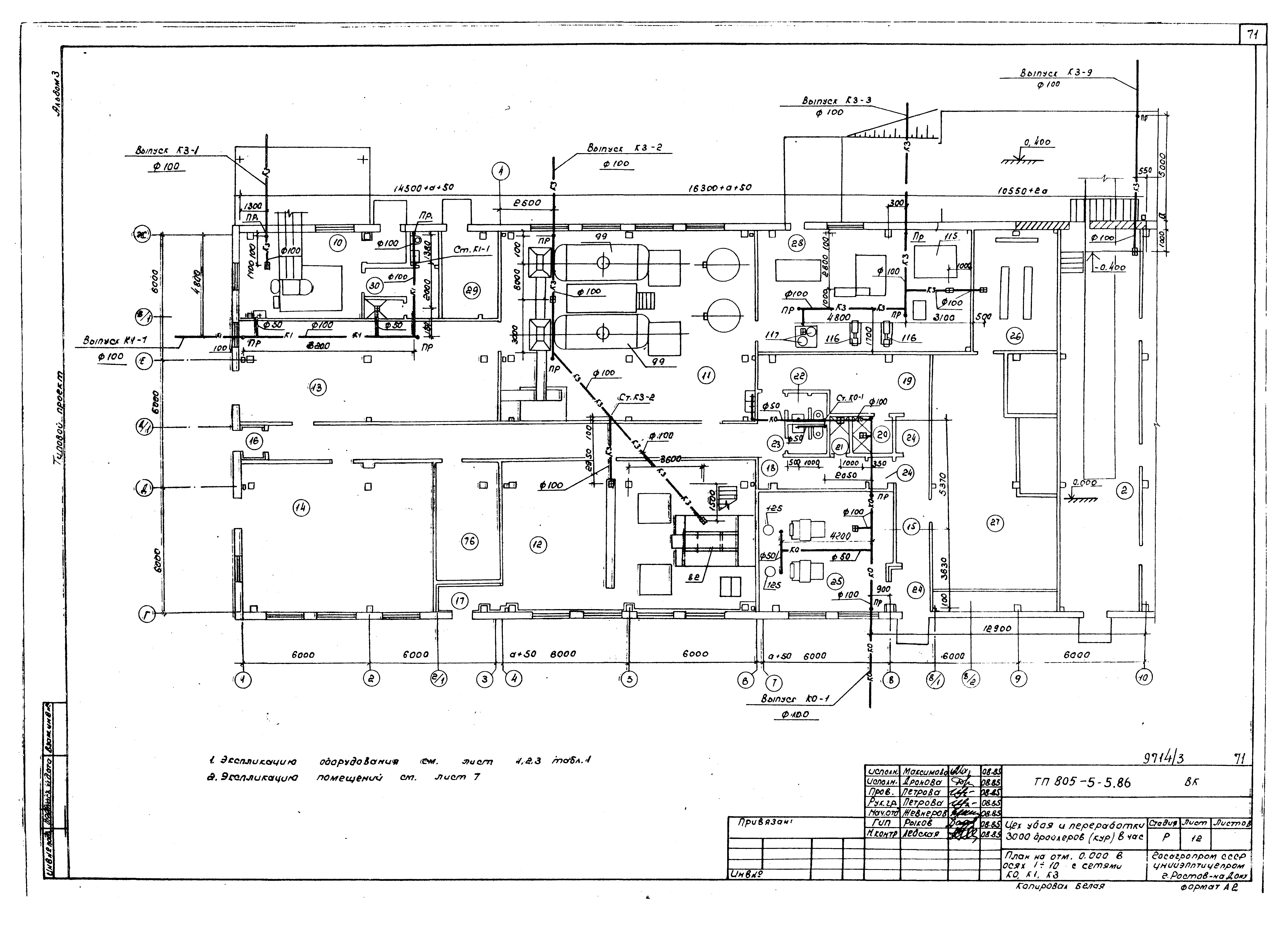
| Оглавление: | Общие данные Чертежи основного комплекта марки ХС Общие данные Ведомость теплоизоляционных конструкций Расположение технологического оборудования. План Спецификация оборудования План на отм. 0.000 между осями 21 - 26 и Г - Ж с разводкой холодопроводов. Разрез А-А. Сечение 1-1 Планы на отм. 0.000 и - 1.600 между осями 27 - 29 и Ж - Д; 27 - 28 и Д - Е с верхней разводкой холодопроводов Планы конденсаторной площадки на отм. 3.000 и 0.000 с разводкой холодопроводов. Разрез Б-Б План на отм. 0.000 между осями 27 - 29 и Д - Ж с нижней разводкой холодопроводов Разрезы В-В, Г-Г. Регулирующая станция поз. 22 Схема разводки холодопроводов Сечение 2-2 - 8-8 Сечение 9-9 - 12-12. Опора под изолированный трубопровод Установочные чертежи оборудования Чертежи основного комплекта марки ВС Общие данные План системы воздухоснабжения в осях 1 - 10 План воздухоснабжения в осях 10 - 18 Схема системы воздухоснабжения Чертежи основного комплекта марки ГС План на отм. 0.000 между осями 10 - 12 и Г - Д. Схема газоснабжения Чертежи основного комплекта марки ОВ Общие данные Экспликация помещений План систем отопления, теплоснабжения и пароснабжения на отм. 0.000 между осями 1 - 10 План систем отопления, теплоснабжения и пароснабжения на отм. 0.000 между осями 10 - 16 План системы отопления и теплоснабжения на отм. 0.000 между осями 16 - 29 Схемы систем отопления 1 - 4 Узлы схем систем отопления Схемы систем теплоснабжения установок П1 - П10 Узел управления 1 Узел управления 2 Схема системы пароснабжения Установка бойлеров горячего водоснабжения Установка бойлеров горячего водоснабжения. Спецификация План систем вентиляции в осях 1 - 10 План систем вентиляции в осях 10 - 16 План систем вентиляции в осях 16 - 29 Установка систем П1 - П5 Спецификация систем П1 - П5 Установка систем П6 - П9 Спецификация систем П6 - П9 Установка системы П10 Схемы систем вентиляции Установка системы В20 Чертежи основного комплекта марки ВК Общие данные Экспликация помещения План на отм. 0.000 в осях 1 - 10 с сетями В0, Т3, В12 План на отм. 0.000 в осях 10 - 16 с сетями В0, Т3, В10, В11, В12 План на отм. 0.000 в осях 16 - 29 с сетями В0, Т3, В4, В5, В10, В11 Фрагмент 1 и план конденсаторной площадки с сетями В4, В5 План на отм. 0.000 в осях 1 - 10 с сетями К0, К1, К3 План на отм. 0.000 в осях 10 - 16 с сетями К3 План на отм. 0.000 в осях 16 - 29 с сетями К0, К1, К3, В13 Схемы систем В0, Т3 в осях 1 - 10 Схемы систем В0, Т3 в осях 10 - 16 Схемы систем В0, Т3 в осях 16 - 29 Схемы систем В4, В5 Схемы систем В10, В11, В13 Схемы систем В12 Схемы систем К0, К1, К3 Схемы систем К3 |
| Разработан: | ЦНИИЭПптицепром Минсельхоза СССР |
| Утверждён: | 25.06.1986 Госагропром СССР (USSR Gosagroprom 9-ЭТ) |
| Издан: | ЦИТП Госстроя СССР (CITP, Gosstroy (USSR) 1988 г. ) |
















































































