Скачать Типовой проект 805-9-19.86 Альбом 1. Общая пояснительная записка. Архитектурно-строительные чертежиДата актуализации: 01.01.2021
|
| Обозначение: | Типовой проект 805-9-19.86 |
| Обозначение англ: | 805-9-19.86 |
| Статус: | не определен законодательством |
| Название рус.: | Альбом 1. Общая пояснительная записка. Архитектурно-строительные чертежи |
| Дата добавления в базу: | 01.10.2014 |
| Дата актуализации: | 01.01.2021 |
| Дата введения: | 22.07.1985 |
| Дата окончания срока действия: | 30.06.2003 |
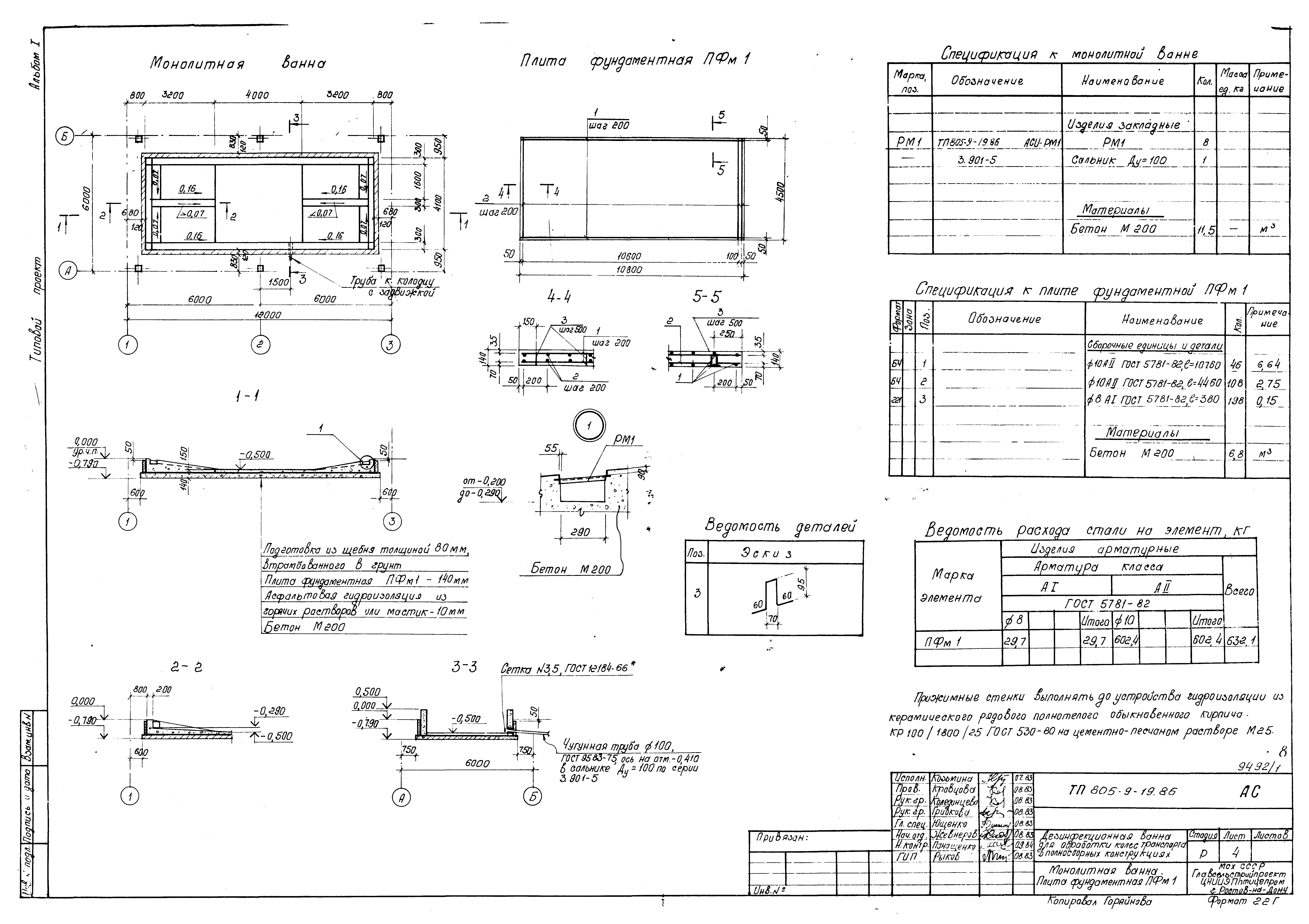
| Оглавление: | Пояснительная записка Чертежи основного комплекта марки АС Общие данные Фасады, разрезы и план на отм. 0.000 План кровли и полов. Схемы расположения элементов кровли, фундаментов, каркаса и покрытия Монолитная ванная. Плита фундаментная ПФм1 Чертежи основного комплекта марки АСУ Узлы 1, 2 Чертежи основного комплекта марки АСИ Прогоны 4ПР-1АIII-а; 4ПР-1АIII-б Изделие закладное РМ1 Изделия закладные МН1, МН2 Изделие соединительное МС1 |
| Разработан: | ЦНИИЭПптицепром Минсельхоза СССР |
| Утверждён: | 22.07.1985 МСХ СССР Главное управление лугов, кормов и пастбищ (65) |











