Скачать Серия 1.865.1-4/80 Выпуск 3. Плиты размером 1,5х6 м. Рабочие чертежиДата актуализации: 01.01.2021
|
| Обозначение: | Серия 1.865.1-4/80 |
| Обозначение англ: | Series 1.865.1-4/80 |
| Статус: | заменен |
| Название рус.: | Выпуск 3. Плиты размером 1,5х6 м. Рабочие чертежи |
| Дата добавления в базу: | 01.10.2014 |
| Дата актуализации: | 01.01.2021 |
| Дата введения: | 01.10.1981 |
| Дата окончания срока действия: | 01.03.1986 |
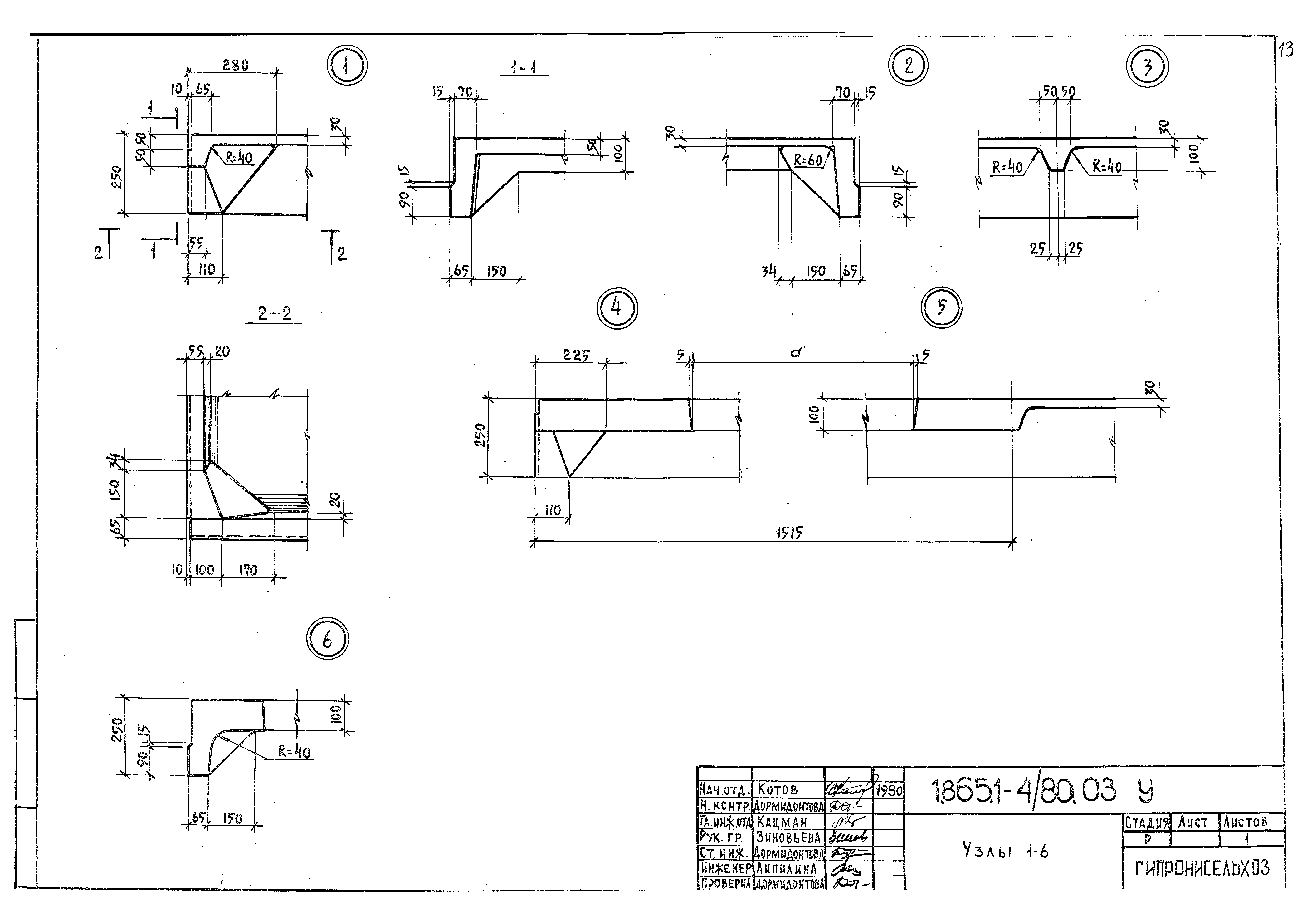
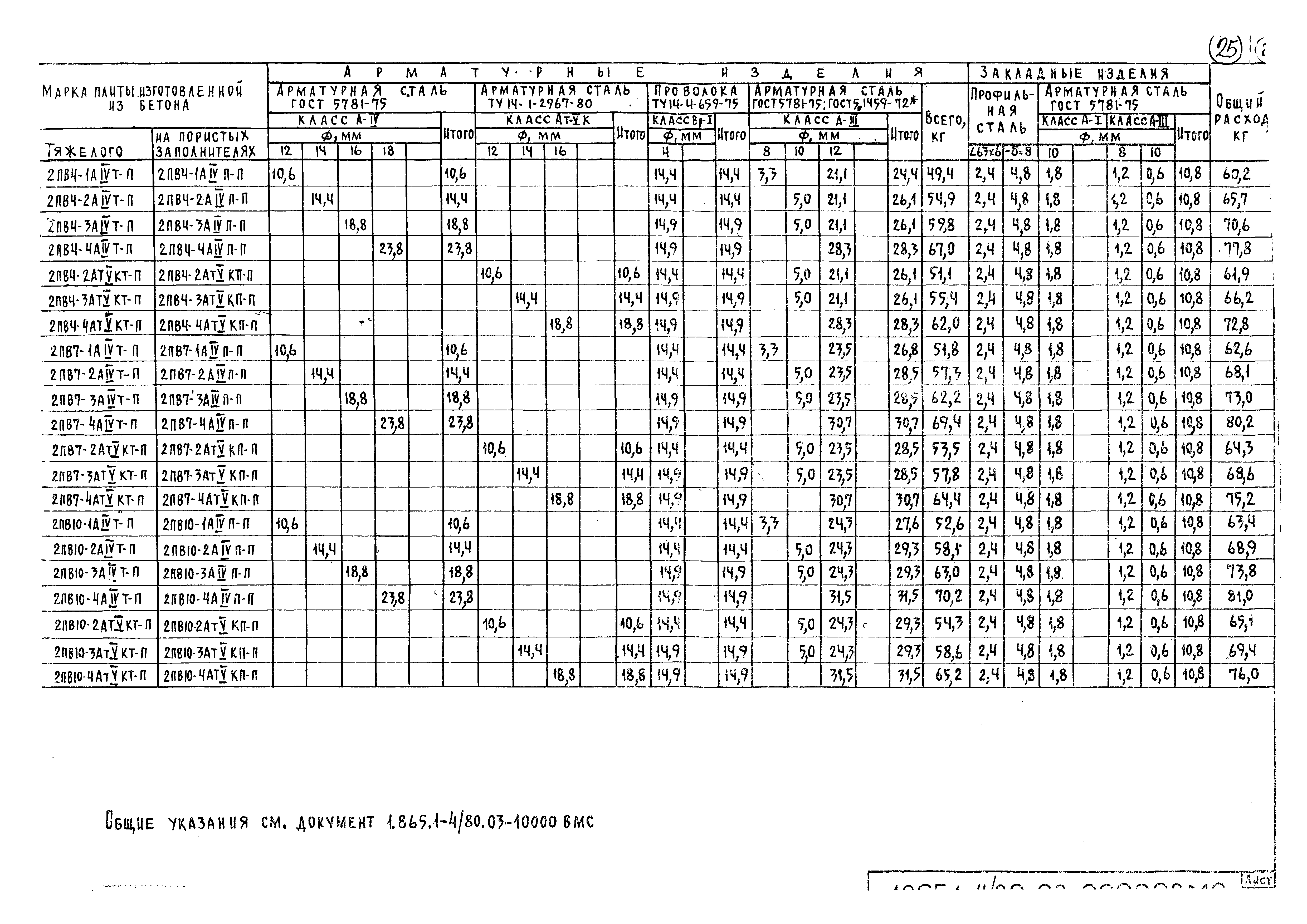
| Оглавление: | 1.865.1-4/80.03ПЗ Пояснительная записка 1.865.1-4/80.03-10000ГЧ Плита типа 2ПГ. Габаритный чертеж 1.865.1-4/80.03-20000ГЧ Плита типа 2ПВ. Габаритный чертеж 1.865.1-4/80.03 У Узлы 1 - 6 1.865.1-4/80.03-10000 Плита типа 2ПГ 1.865.1-4/80.03-10000СБ Армирование плиты типа 2ПГ 1.865.1-4/80.03-20000 Плита типа 2ПВ 1.865.1-4/80.03-20000СБ Армирование плиты типа 2ПВ 1.865.1-4/80.03 СМ1 Варианты анкеровки напрягаемой арматуры 1.865.1-4/80.03 СМ2 Пример плиты со шпонками для сейсмических районов 1.865.1-4/80.03 СМ3 Примеры расположения в плитах дополнительных закладных изделий 1.865.1-4/80.03 СМ4 Схема испытаний плит 1.865.1-4/80.03 СМ5 Величины нагрузок для контрольного испытания плит 1.865.1-4/80.03-10000ВМС Плита типа 2ПГ. Выборка стали 1.865.1-4/80.03-20000ВМС Плита типа 2ПВ. Выборка стали |
| Разработан: | НИИСК НИИЖБ ГипроНИсельхоз (Институт Гипронисельхоз ) ЦНИИЭП сельстрой Министерства сельского строительства СССР |
| Утверждён: | 23.06.1981 Госстрой СССР (Государственный комитет Совета Министров СССР по делам строительства) (USSR Gosstroy 105) |
| Чем заменён: |
























