Скачать Типовой проект 503-1-67.87 Альбом IV. Силовое электрооборудование. Электрическое освещение. Автоматизация производства. Связь и сигнализацияДата актуализации: 01.01.2021
|
| Обозначение: | Типовой проект 503-1-67.87 |
| Обозначение англ: | 503-1-67.87 |
| Статус: | не определен законодательством |
| Название рус.: | Альбом IV. Силовое электрооборудование. Электрическое освещение. Автоматизация производства. Связь и сигнализация |
| Дата добавления в базу: | 01.10.2014 |
| Дата актуализации: | 01.01.2021 |
| Дата введения: | 17.08.1987 |
| Дата окончания срока действия: | 30.06.2003 |
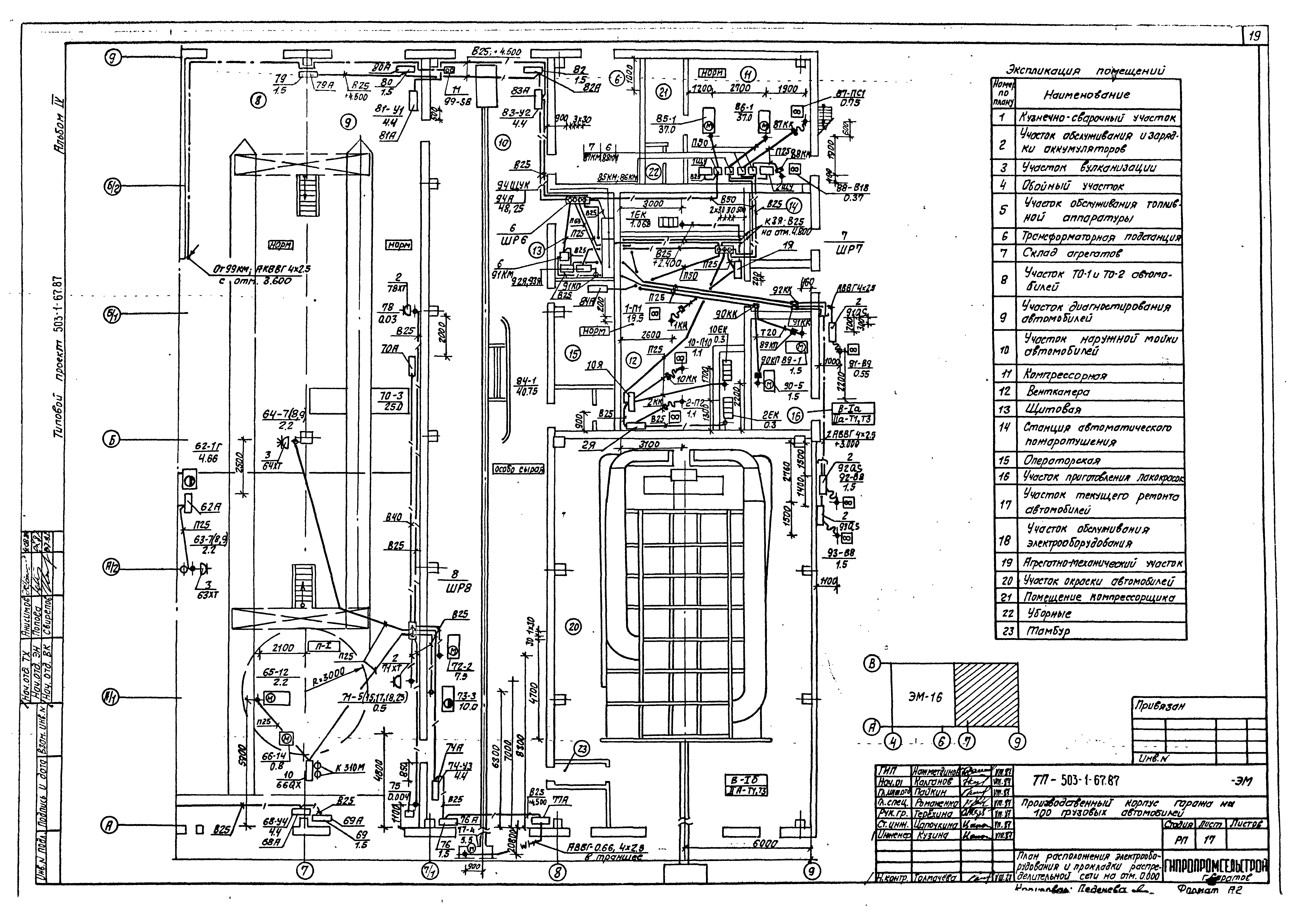
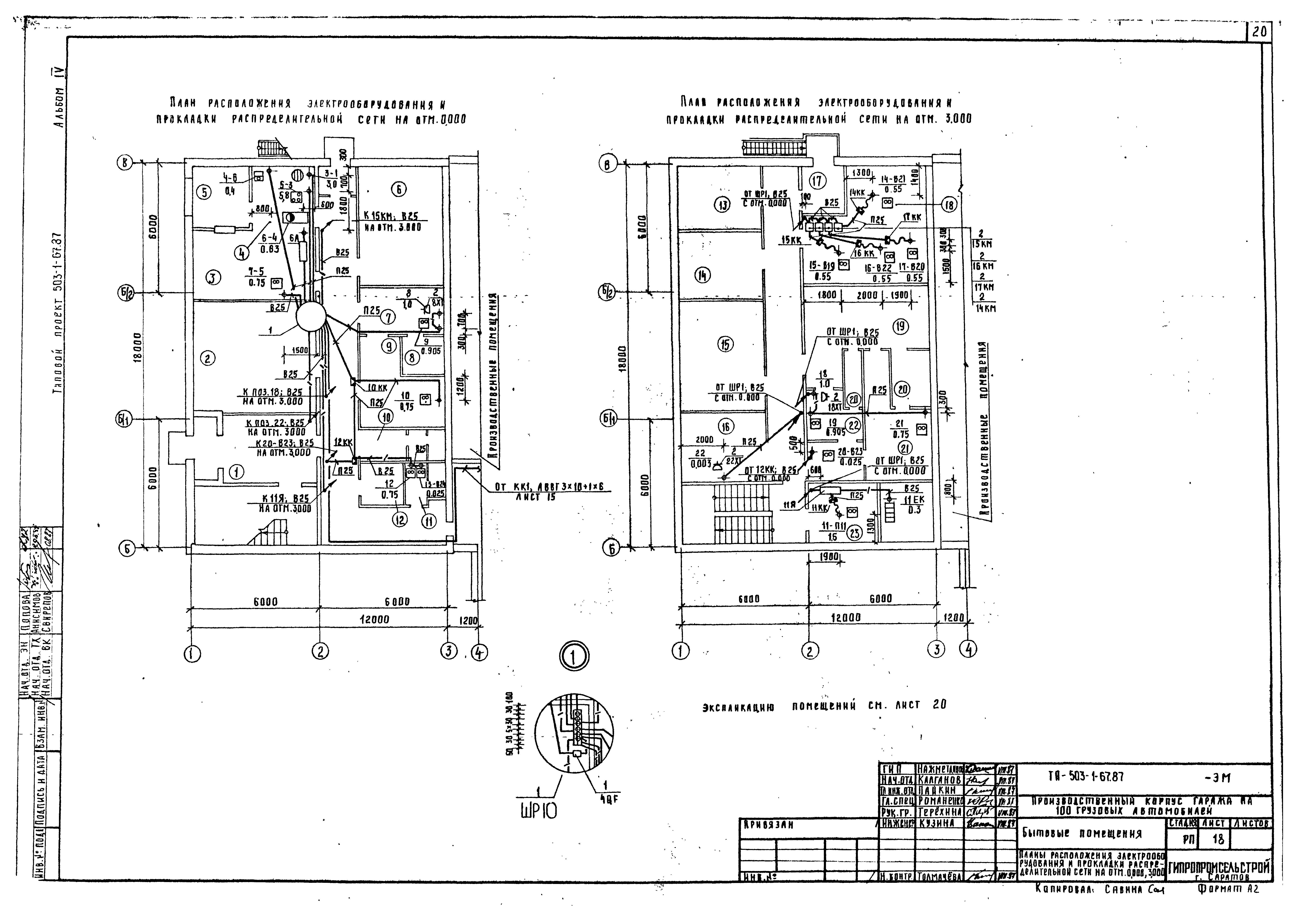
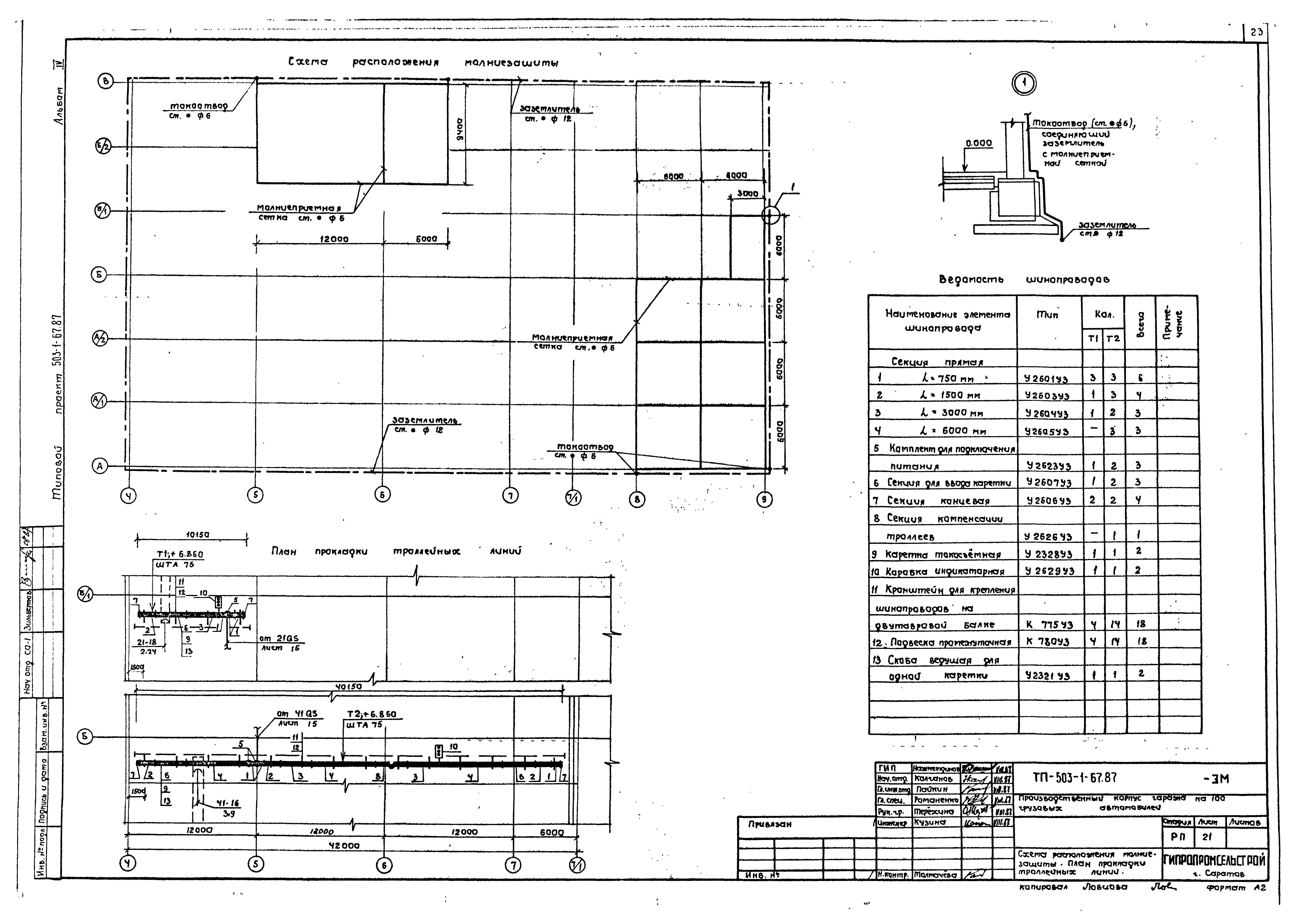
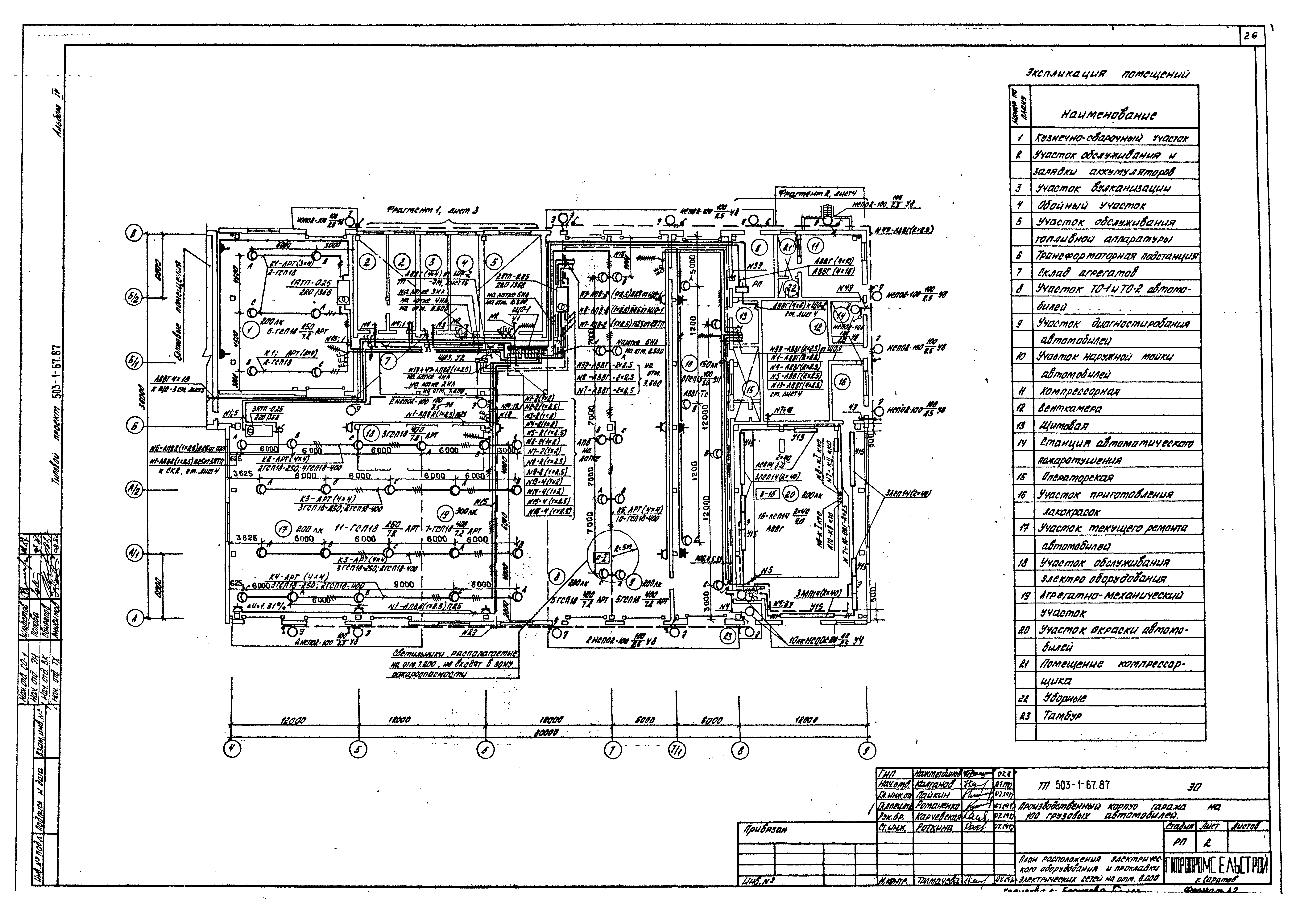
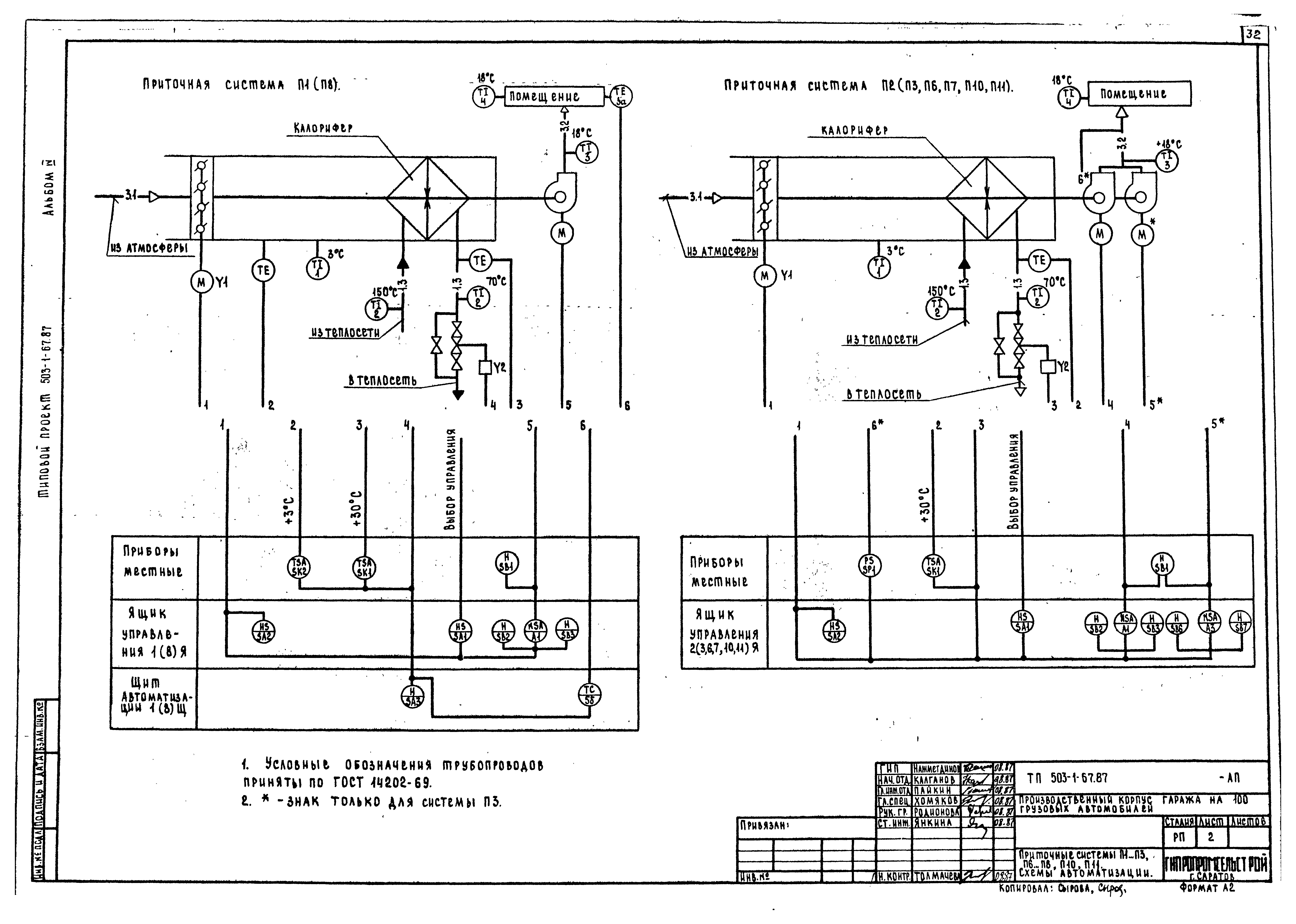
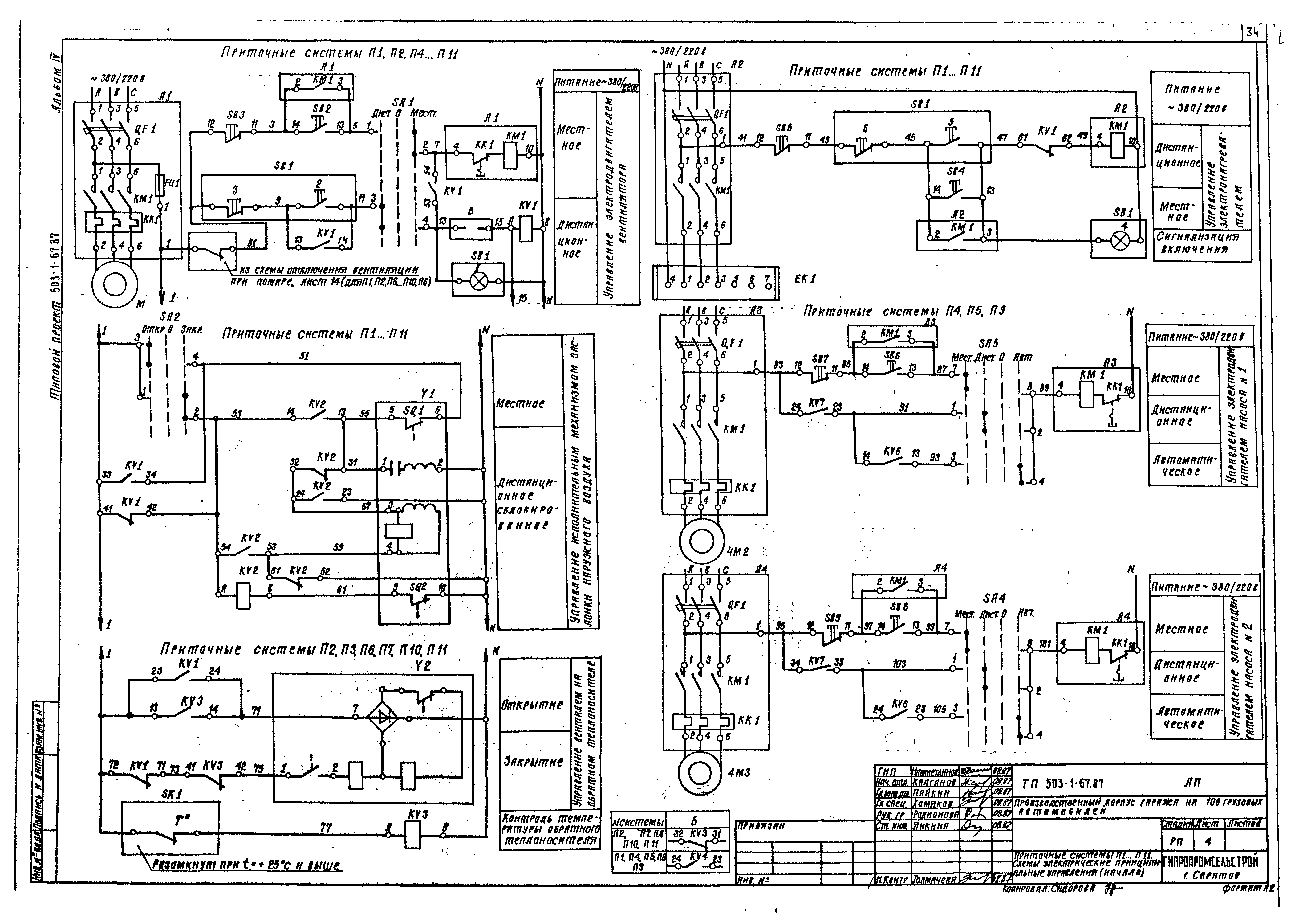
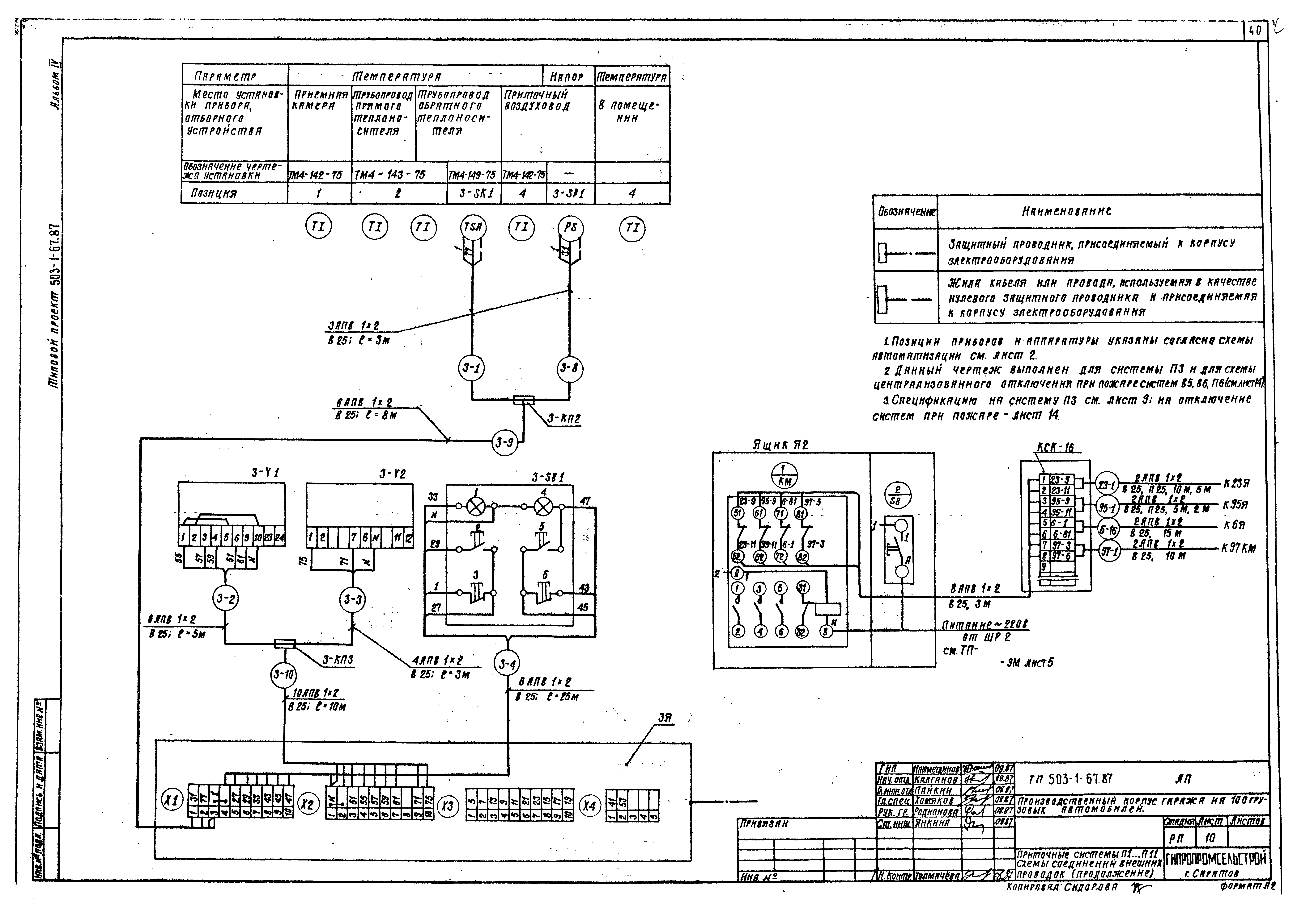
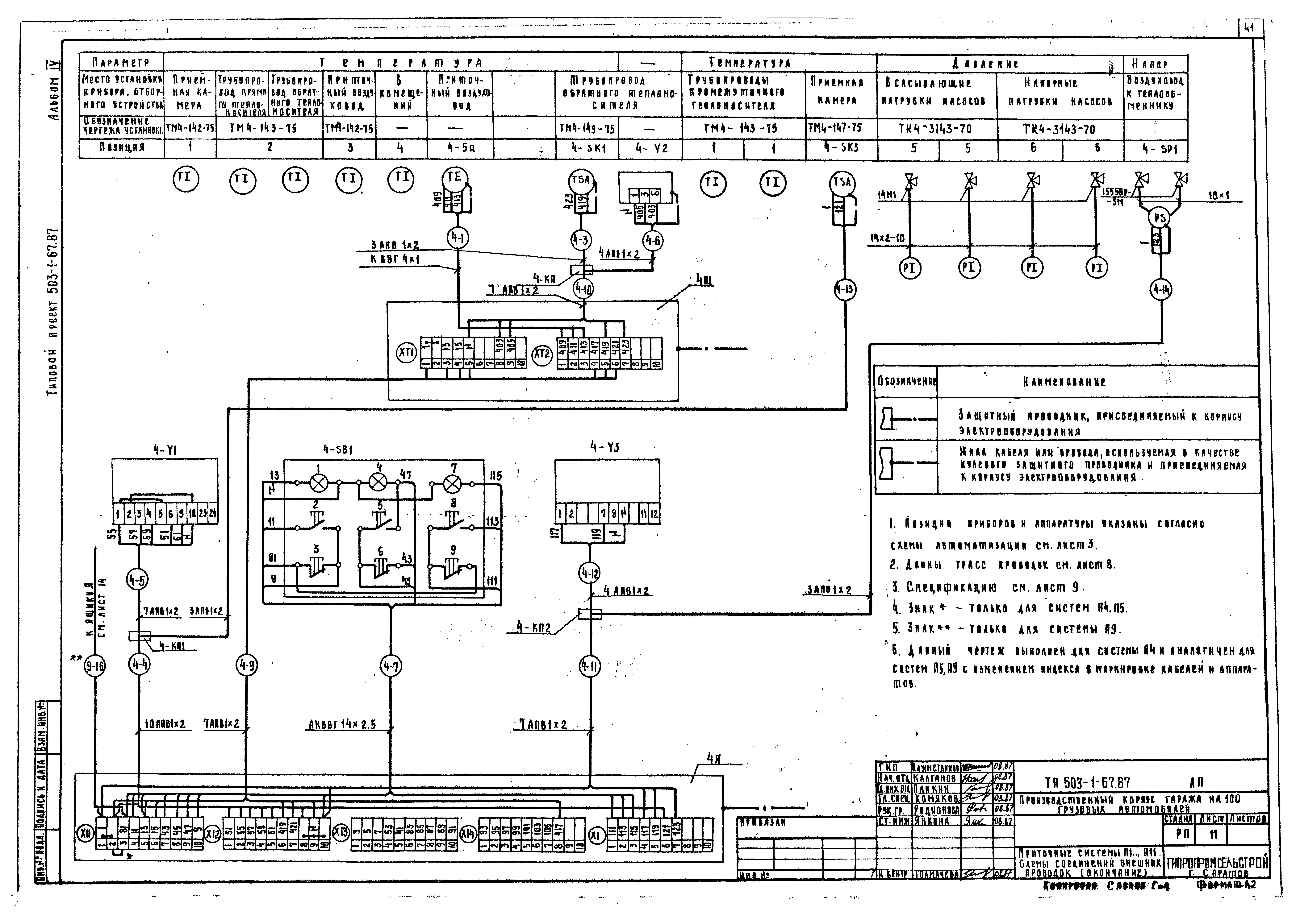
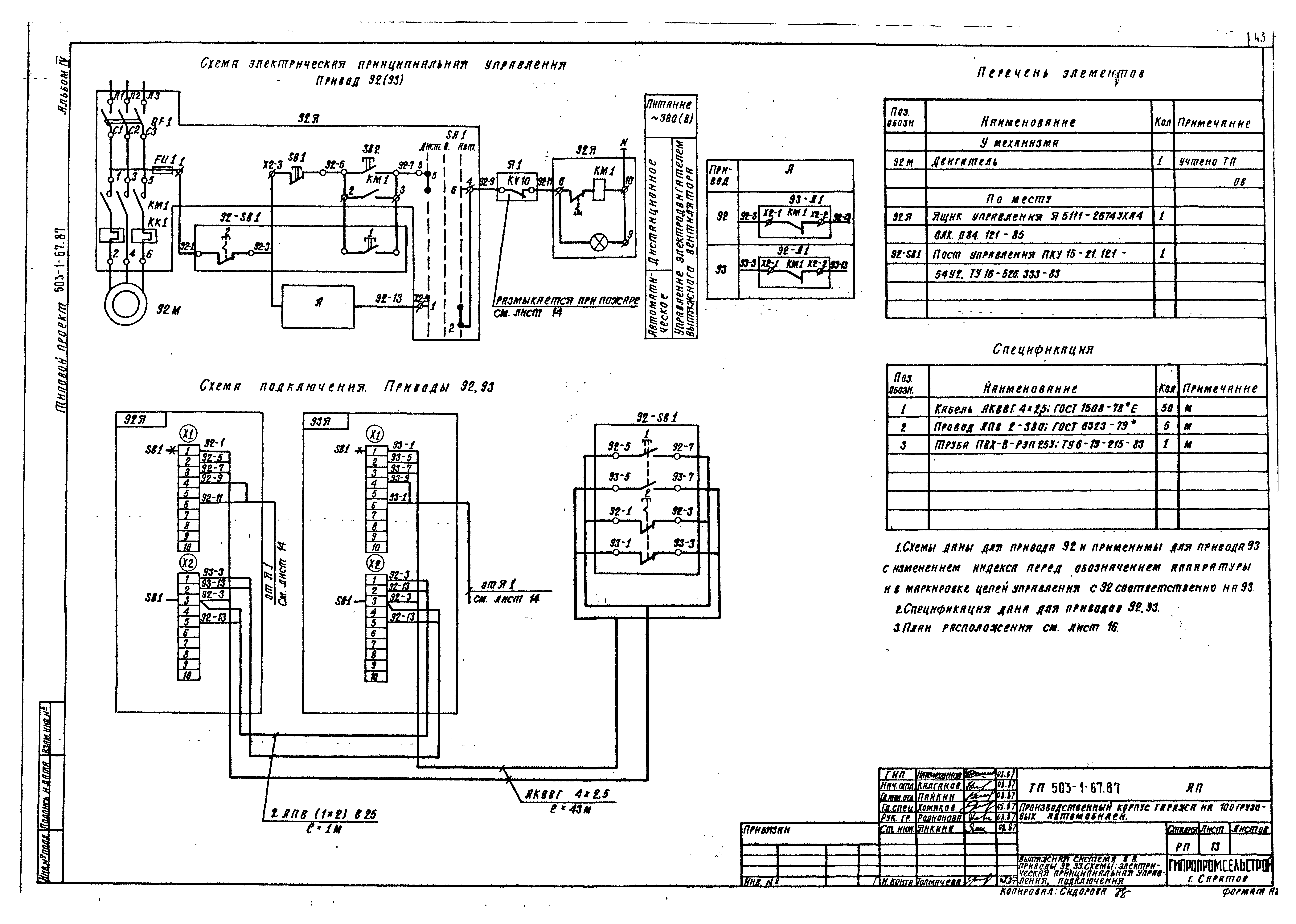
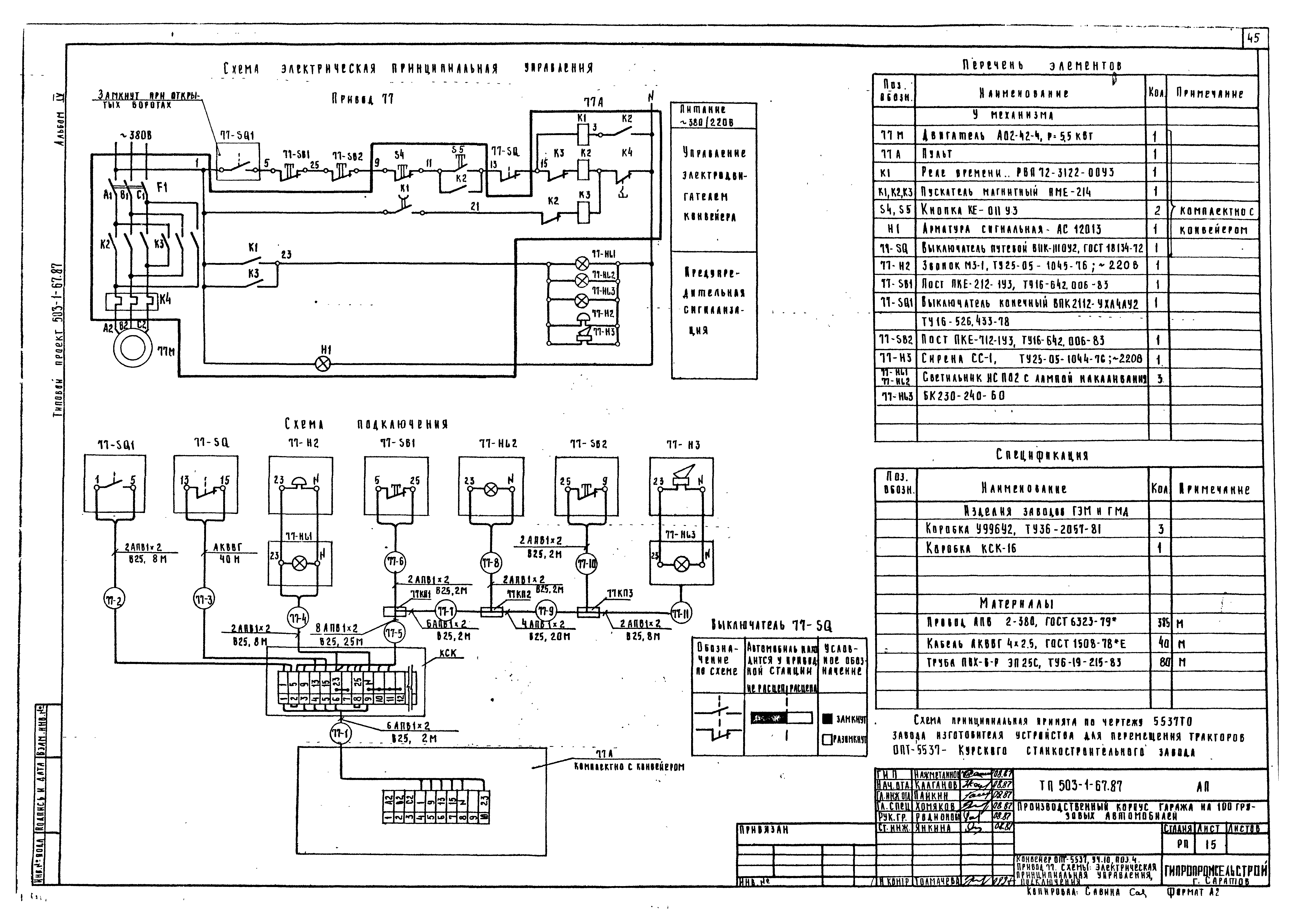
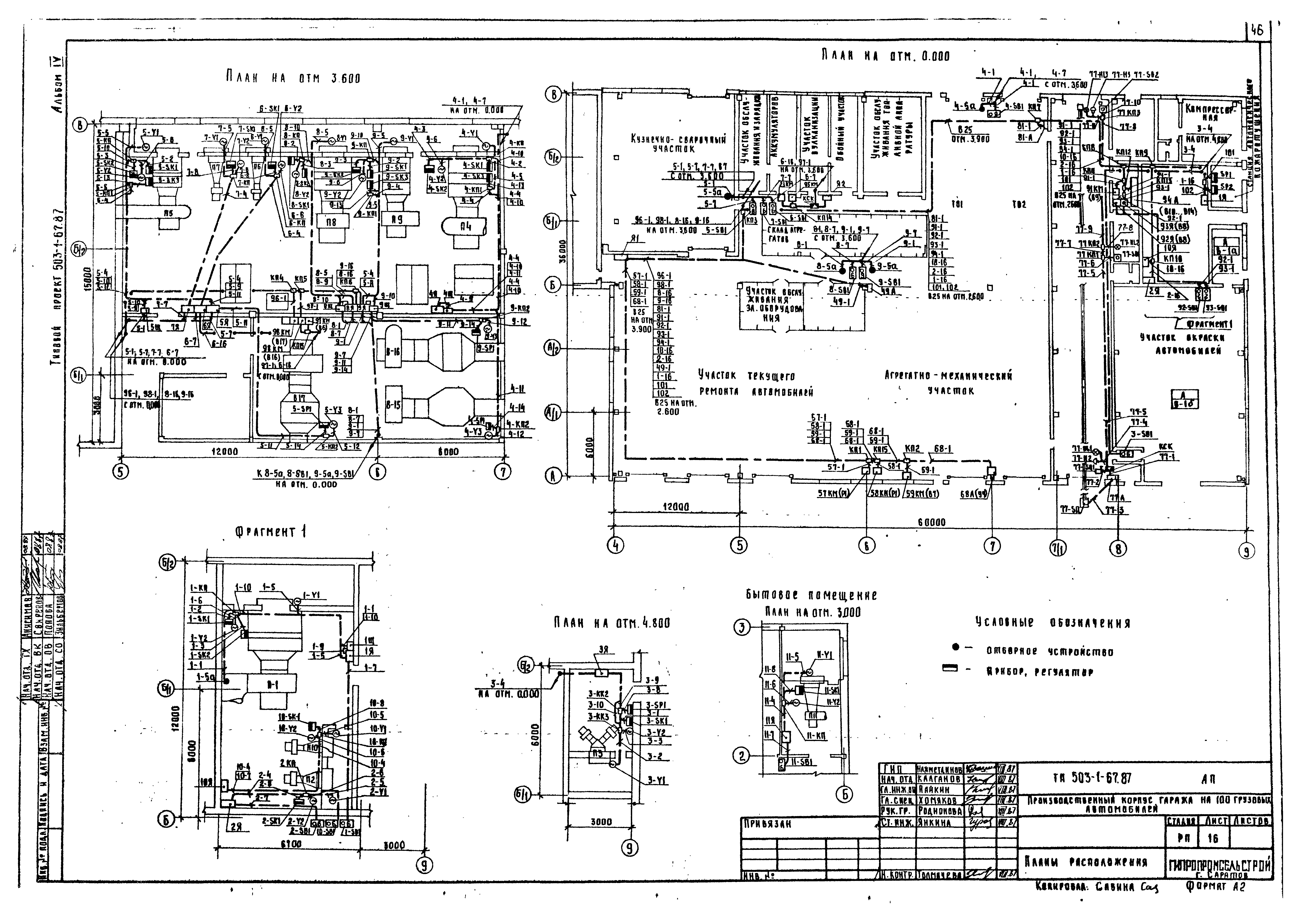
| Оглавление: | Содержание альбома Силовое электрооборудование Общие данные Питающая сеть 380/220 В. Принципиальная схема Распределительная сеть 380/220 В. Принципиальная схема План расположения подстанции, заземления и зануления Планы расположения электрооборудования и прокладки питающей и распределительной сетей на отм. 0.000; 3.600; 4.800 и кровле План расположения электрооборудования и прокладки распределительной сети на отм. 0.000 План расположения электрооборудования и прокладки распределительной сети на отм. 0.000; 3.000 Планы заземления и зануления на отм. 0.000; 3.600; 4.800 Планы зануления на отм. 0.000; 3.000 Схема расположения молниезащиты. План прокладки троллейных линий Опросный лист для заказа КТП-250-6-10/0,4-113П-80У3, Y/Yн-11 Армэлектрозавода Электрическое освещение Общие данные План расположения электрического оборудования и прокладки электрических сетей на отм. 0.000 Принципиальная схема питающей сети. План расположения электрического оборудования и прокладки электрических сетей смотровой канавы СК-1. Фрагмент 1 Планы расположения электрического оборудования и прокладки электрических сетей на отм. 0.000; 3.600 и 4.800, смотровой канавы СК-2. Фрагмент 2 Планы расположения электрического оборудования и прокладки электрических сетей на отм. 0.000 и 3.000 Установка светильника с лампой ДРИ на подвесе под перекрытием Автоматизация производства Общие данные Приточные системы П1…П3; П6…П8; П10, П11. Схемы автоматизации Приточные системы П4, П5, П9. Схема автоматизации Приточные системы П1…П11. Схемы электрические принципиальные управления Приточные системы П1, П4, П5, П8, П9. Схема электрическая принципиальная регулирования Приточные системы П1…П11. Схемы соединений внешних проводок Вытяжная система В5. Приводы 23, 95. Схемы электрическая принципиальная управления, подключения Вытяжная система В8. Схемы электрическая принципиальная управления, подключения Отключение вентиляции при пожаре. Схемы электрическая принципиальная, соединений внешних проводок Конвейер ОТ-5537, уч. 10, поз. 4. Привод 77. Схемы электрическая принципиальная управления, подключения Планы расположения Связь и сигнализация Общие данные Спецификация План на отм. 0.000 Схема подключения Планы на отм. 0.000 и 3.000 |
| Разработан: | Гипропромсельстрой |
| Утверждён: | 17.08.1987 Гипропромсельстрой (356) |




















































