Скачать Типовой проект 704-4-30 Альбом I. Общая пояснительная записка. ЧертежиДата актуализации: 01.01.2021
|
| Обозначение: | Типовой проект 704-4-30 |
| Обозначение англ: | 704-4-30 |
| Статус: | действует |
| Название рус.: | Альбом I. Общая пояснительная записка. Чертежи |
| Дата добавления в базу: | 01.10.2014 |
| Дата актуализации: | 01.01.2021 |
| Дата введения: | 01.10.1980 |
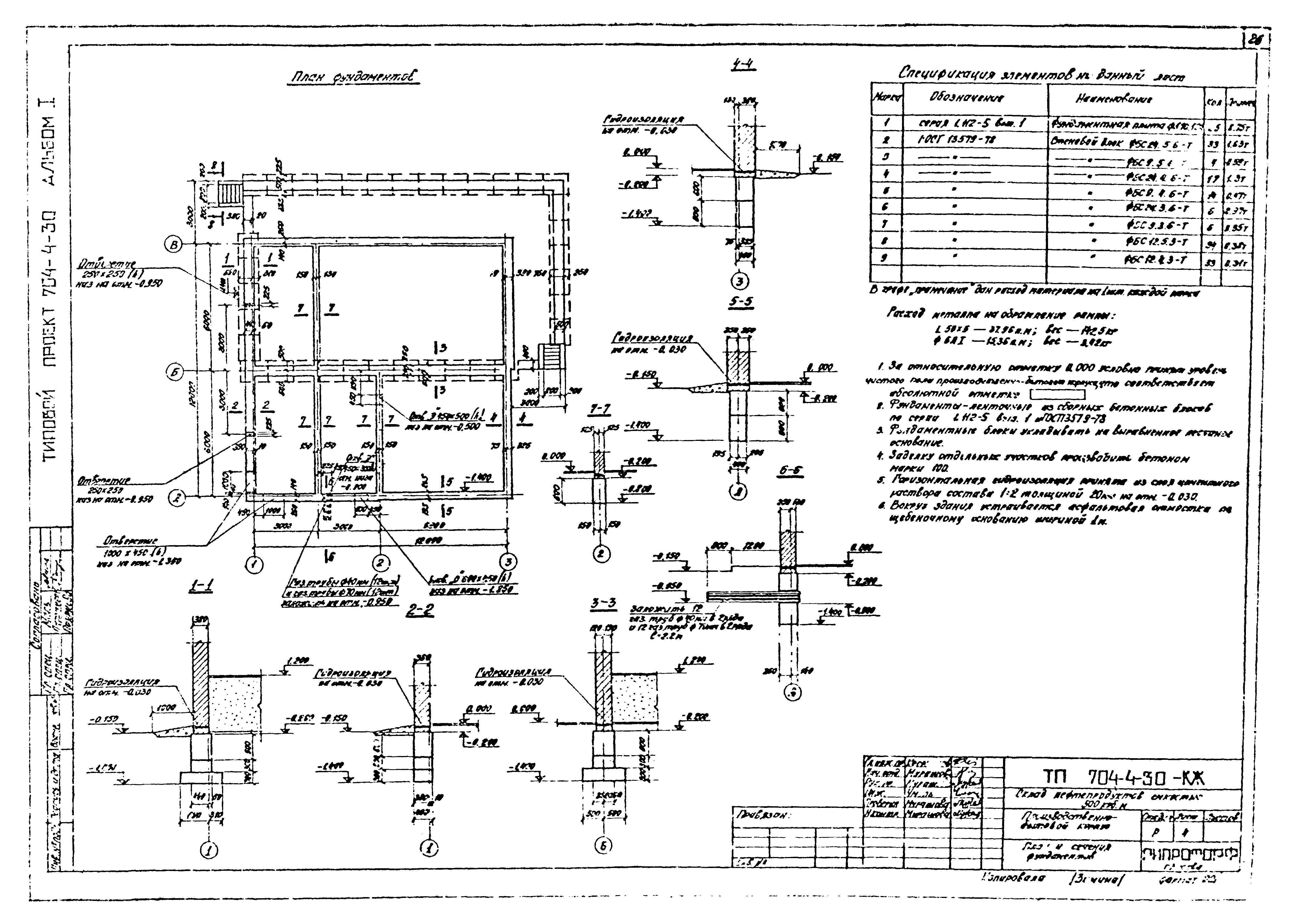
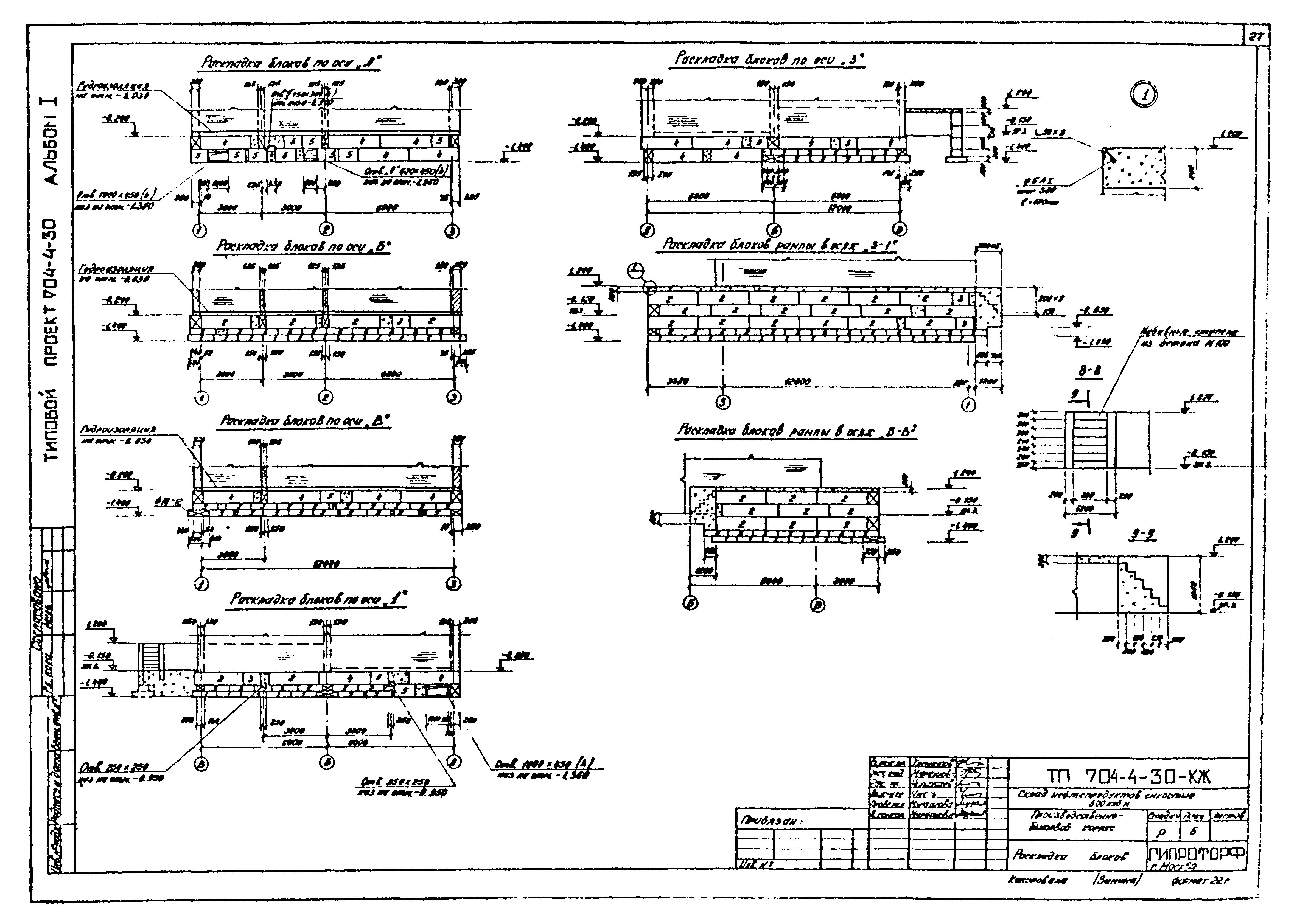
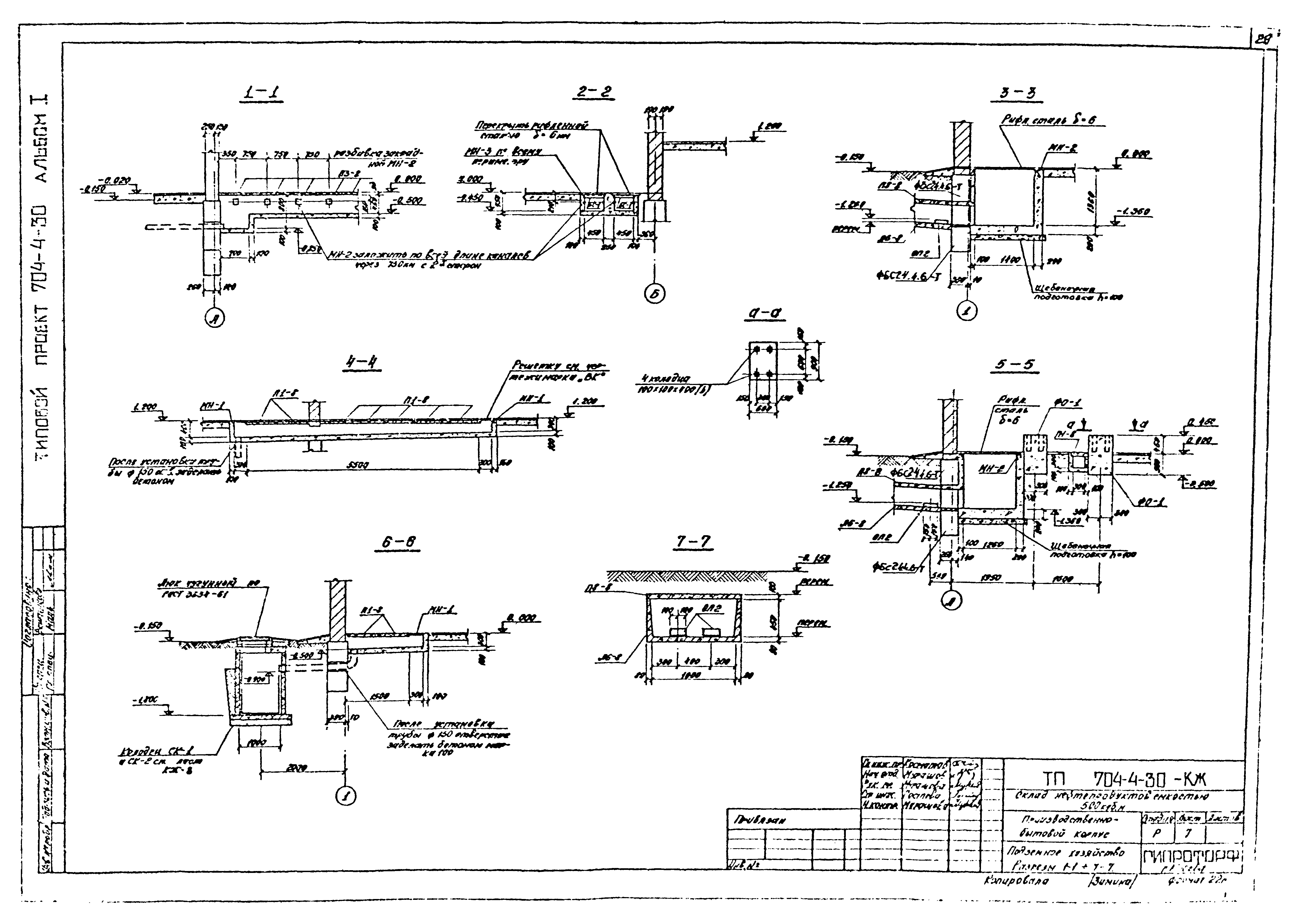
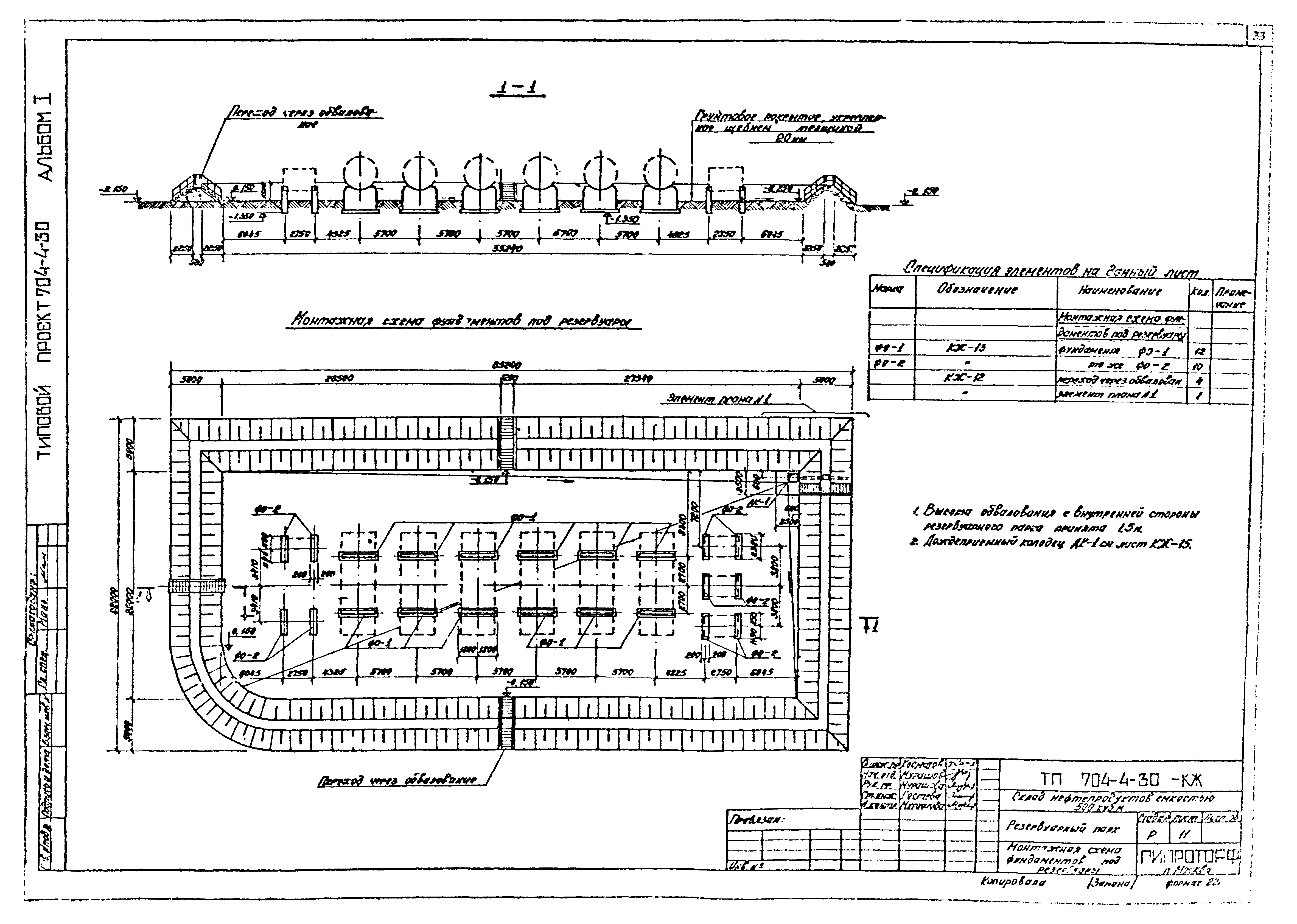
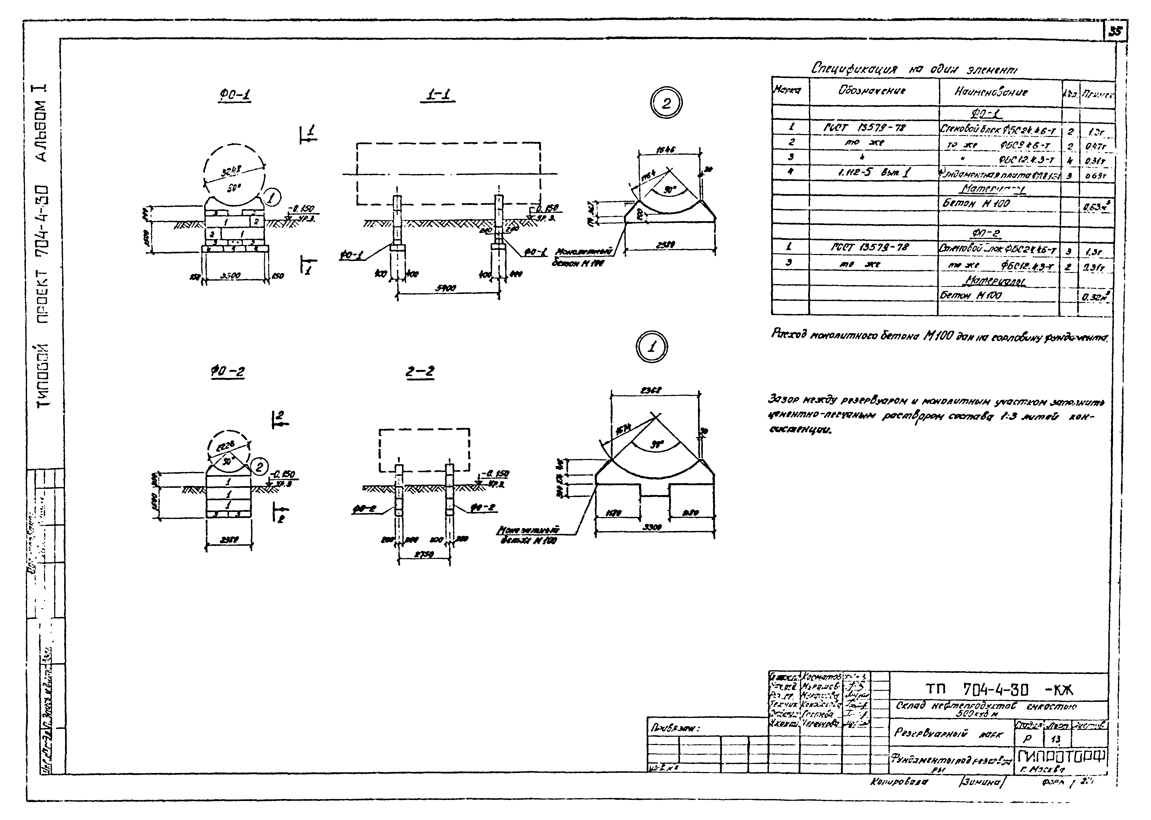
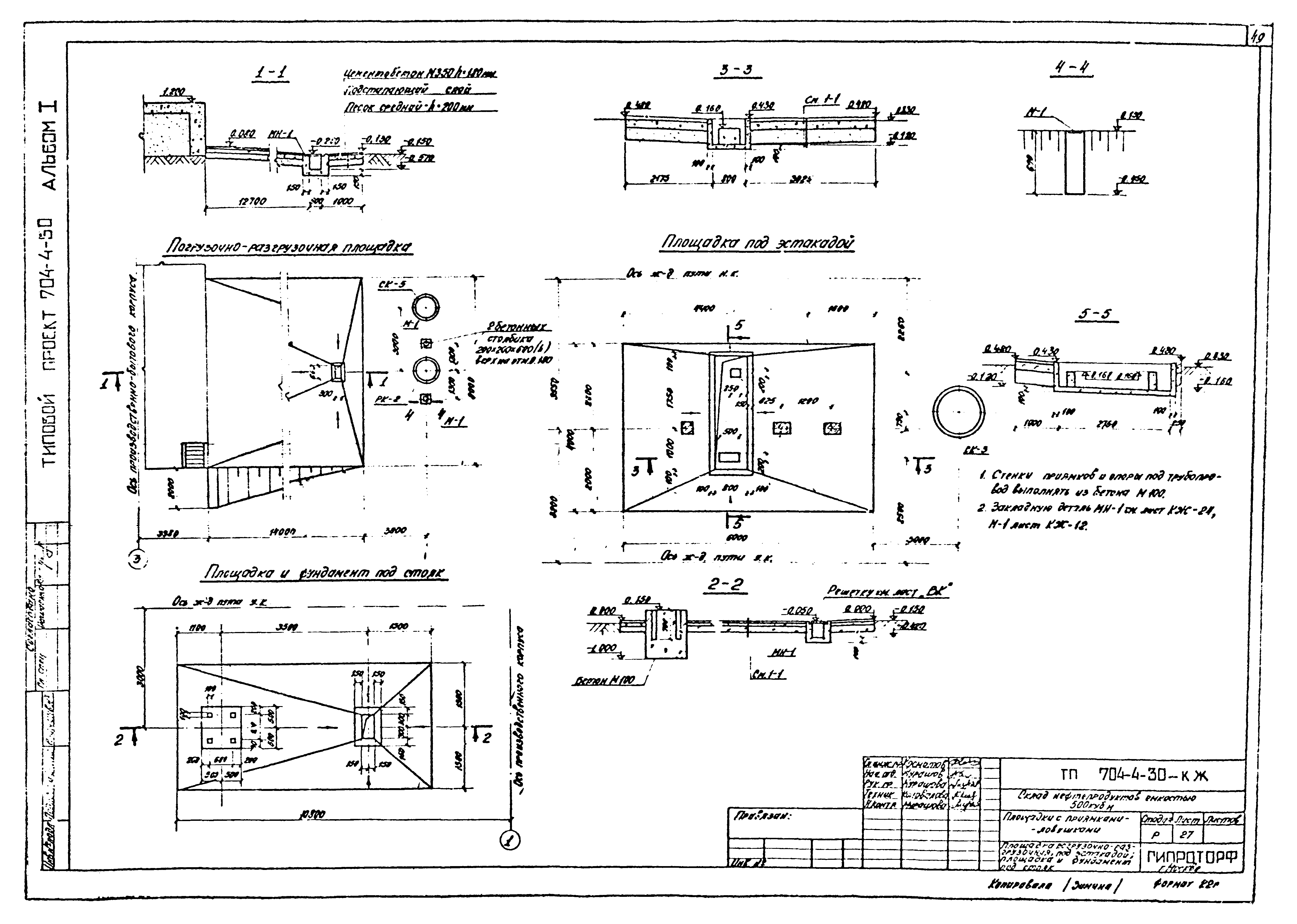
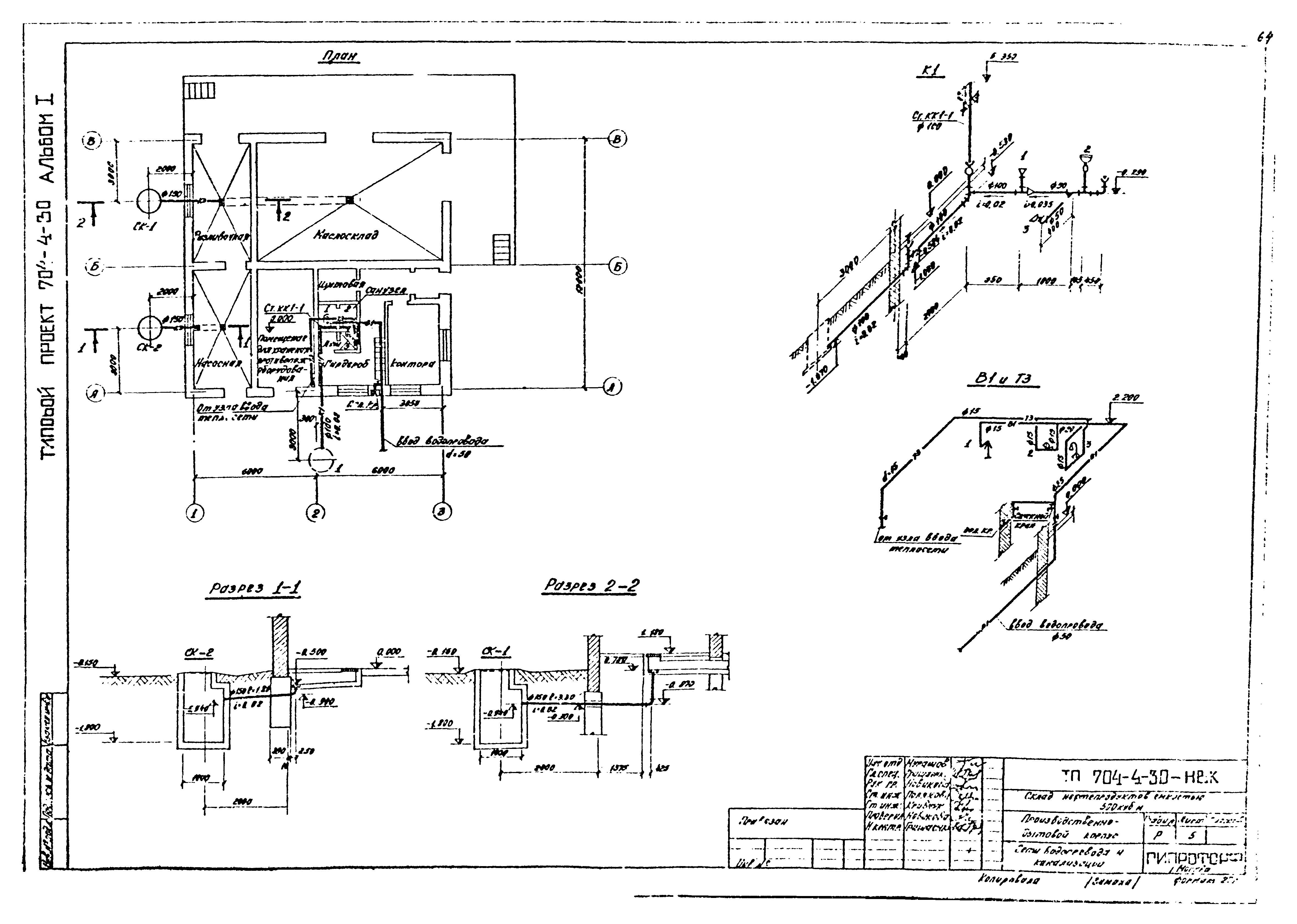
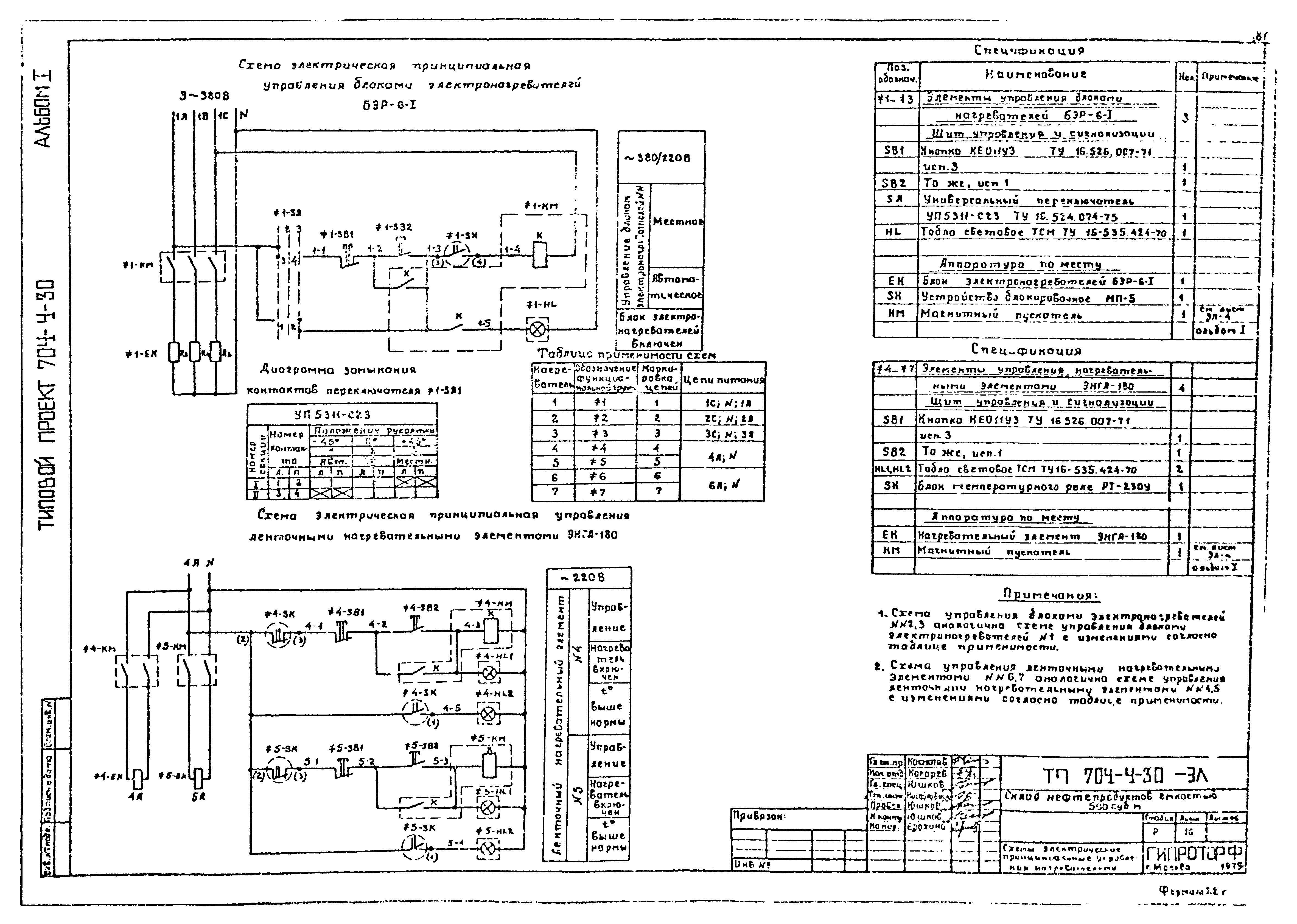
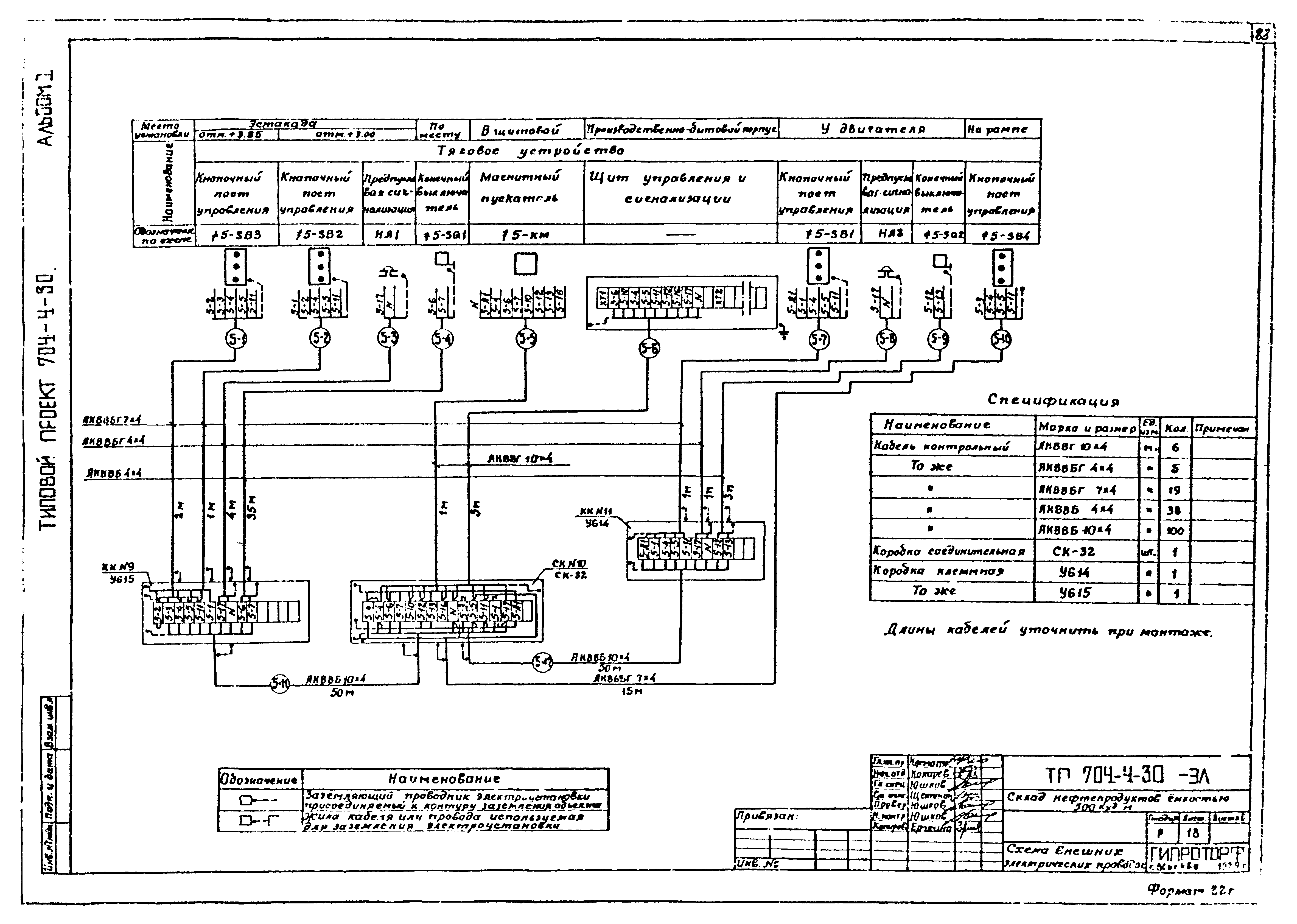
| Оглавление: | Общая пояснительная записка Схема генерального плана Чертежи основного комплекта марки ТХ Общие данные План технологического оборудования Монтажно-технологическая схема Приемно-заправочная площадка. Компоновка оборудования Производственно-бытовой корпус. Компоновка оборудования Трубопроводы. План. Разрезы Спецификация арматуры, трубопроводов и опор Тяговое устройство. Установочный чертеж Эстакада для светлых нефтепродуктов. Компоновка оборудования Стояк для налива дизельного масла. Установочный чертеж Чертежи основного комплекта марки АР Общие данные Производственно-бытовой корпус. План полов и кровли План на отм. 0.000 и 1.200 Разрезы 1-1, 2-2, 3-3 Фасады Эстакада для светлых нефтепродуктов. План эстакады. Разрезы 1-1, 2-2 Приемно-заправочная площадка. План и разрезы Чертежи основного комплекта марки КЖ Общие данные I. Производственно-бытовой корпус План и сечения фундаментов Раскладка блоков Подземное хозяйство. План Подземное хозяйство. Разрезы 1-1 - 7-7 Подземное хозяйство. Колодцы СК-1 и СК-2. Закладные детали МН-1, МН-2 и МН-3 Монтажная схема плит покрытия. Плита ПЛIIIв/1,5х6-1-1 Кронштейны под трубопроводы. Площадка ПМ-1 II. Резервный парк Монтажная схема фундаментов под резервуары Переход через обвалование. Элемент плана №1 Фундаменты под резервуары План опор под трубопроводы Дождеприемный колодец ДК-1 III. Эстакада для светлых нефтепродуктов Монтажная схема колонн и плит. Монтажная схема металлических балок Колонны К-1 и К-2 Опалубочный и арматурный планы МУ-1 и МУ-1а План фундаментов. Фундаменты Ф-1, Ф-2 Фундаменты Ф-1, Ф-2. Сечения и сетки Монтажная схема лестниц и ограждений площадки IV. Приемно-заправочная площадка План фундаментов под оборудование. Фундамент ФО-1 План балок и прогонов покрытия. План колонн. План фундаментов Фундаменты Ф-1 и ФО-2 V. Фундаменты под тяговое устройство План фундаментов. . Фундамент ФО-1 Фундамент ФО-2. Анкера А-1 и А-2 VI. Площадки, колодцы Площадка погрузочно-разгрузочная под эстакадой, площадка и фундамент под стояк Колодцы РК-1, РК-2, СК-3, СК-4, СК-5, ДК-2. Маслосборный колодец Отстойник с бензиномаслоуловителем. План и разрезы Деревянный щит Щ-1. Щелевая перегородка. Закладной элемент МН-1 Монтажная схема ограждения склада Щит с пожарным инвентарем, ящик для песка, пожарный водоем Чертежи основного комплекта марки ОВ Общие данные Отопление и вентиляция. План и схема Отопление. Узел управления Обогрев технологических трубопроводов. План Чертежи основного комплекта марки НВК Общие данные Примерная схема трассировки. Разрезы по трубопроводам аварийного пролива и ливневой канализации Разрезы по трубопроводам аварийного пролива и ливневой канализации Производственно-бытовой корпус. Схема водопровода и канализации Отстойник с бензомаслоуловителем. Технологические трубопроводы Чертежи основного комплекта марки ЭЛ Общие данные Расчетная схема Внутриплощадочные силовые сети 380/220 В Производственно-бытовой корпус. Силовые сети Приемо-заправочная площадка. Эстакада для светлых нефтепродуктов. Силовое электрооборудование. Электроосвещение Производственно-бытовой корпус. Электроосвещение Наружное и охранное освещение План молниезащиты. Заземление Молниезащита. Разрезы Производственно-бытовой корпус. Сети пожароохранной сигнализации и связи Схема электрическая принципиальная управления насосами Ш-40-6 Схема электрическая принципиальная управления насосами АСВН-8Б Схема электрическая принципиальная управления тяговым устройством Схемы электрические принципиальные управления нагревателями Схема электрическая принципиальная распределительной сети и внешних электрических проводок Схема внешних электрических проводок План расположения средств автоматизации и проводок Спецификация |
| Разработан: | Гипроторф |
| Утверждён: | 29.12.1979 Минтоппром РСФСР (Russian Federation Mintopprom 272) |
| Принят: | 20.12.1979 Госстрой РСФСР (Russian Federation Gosstroy 14/17-552) |


























































































