Скачать Типовой проект 705-4-61 Альбом I. Стальные конструкцииДата актуализации: 01.01.2021
|
| Обозначение: | Типовой проект 705-4-61 |
| Обозначение англ: | 705-4-61 |
| Статус: | действует |
| Название рус.: | Альбом I. Стальные конструкции |
| Дата добавления в базу: | 01.10.2014 |
| Дата актуализации: | 01.01.2021 |
| Дата введения: | 25.10.1975 |
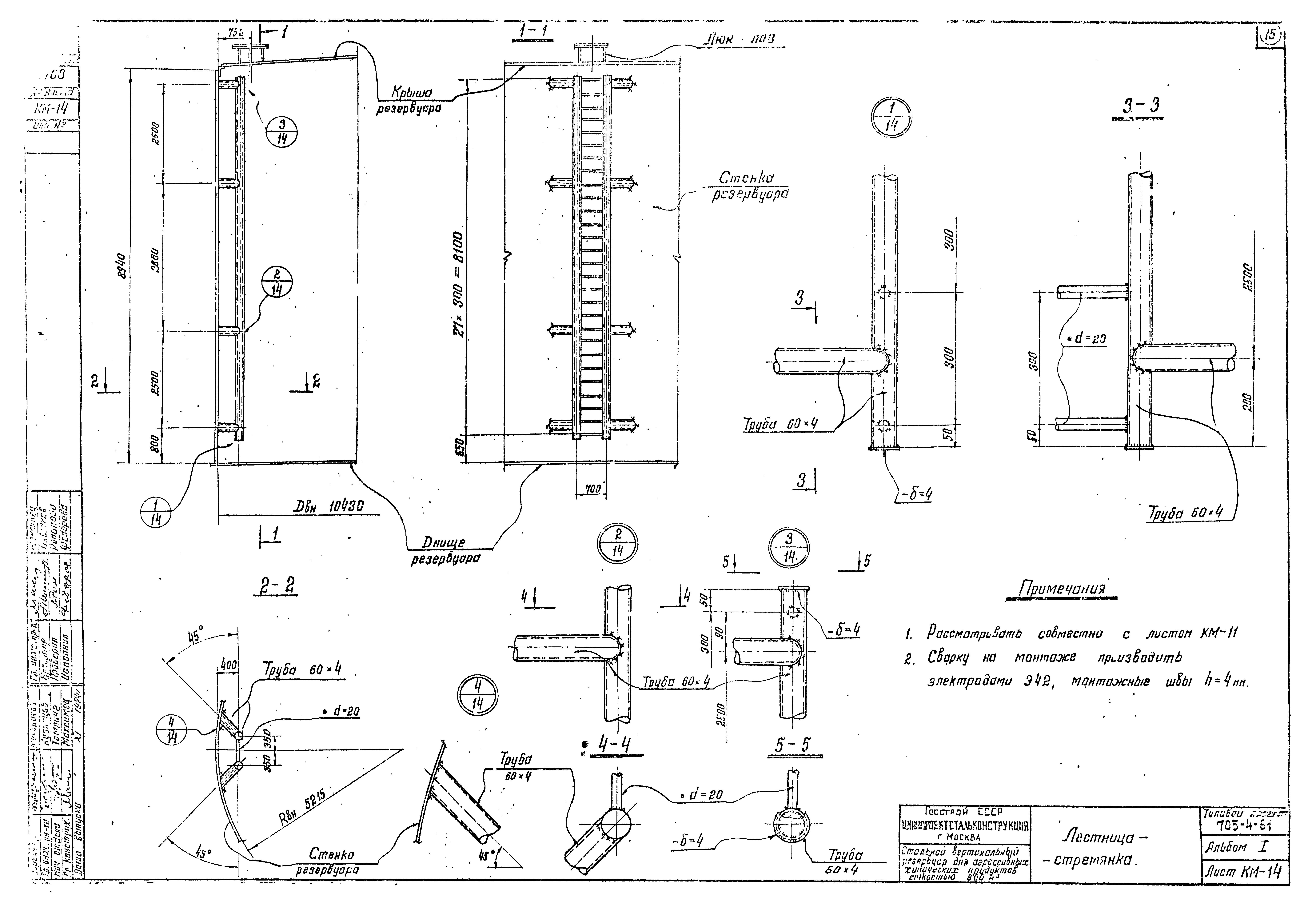
| Оглавление: | Содержание альбома Пояснительная записка Техническая спецификация стали (для продуктов с плотностью до 1,25 т/куб. м) Техническая спецификация стали (для продуктов с плотностью свыше 1,25 т/куб. м до 1,8 т/куб. м) Общий вид Днище Стенка Схема расположения щитов крыши Щит крыши Центральное кольцо крыши Схема расположения люков и лестницы-стремянки Люк верхний Ду800 Люк нижний Ду800 Лестница-стремянка |
| Разработан: | ЦНИИпроектстальконструкция |
| Утверждён: | 06.08.1975 Министерство черной металлургии СССР |














