Скачать Типовые проектные решения 705-5-022.86 Альбом I. Конструкции металлическиеДата актуализации: 01.01.2021
|
| Обозначение: | Типовые проектные решения 705-5-022.86 |
| Обозначение англ: | 705-5-022.86 |
| Статус: | справочные материалы, мп, тпр |
| Название рус.: | Альбом I. Конструкции металлические |
| Дата добавления в базу: | 01.10.2014 |
| Дата актуализации: | 01.01.2021 |
| Дата окончания срока действия: | 22.05.1986 |
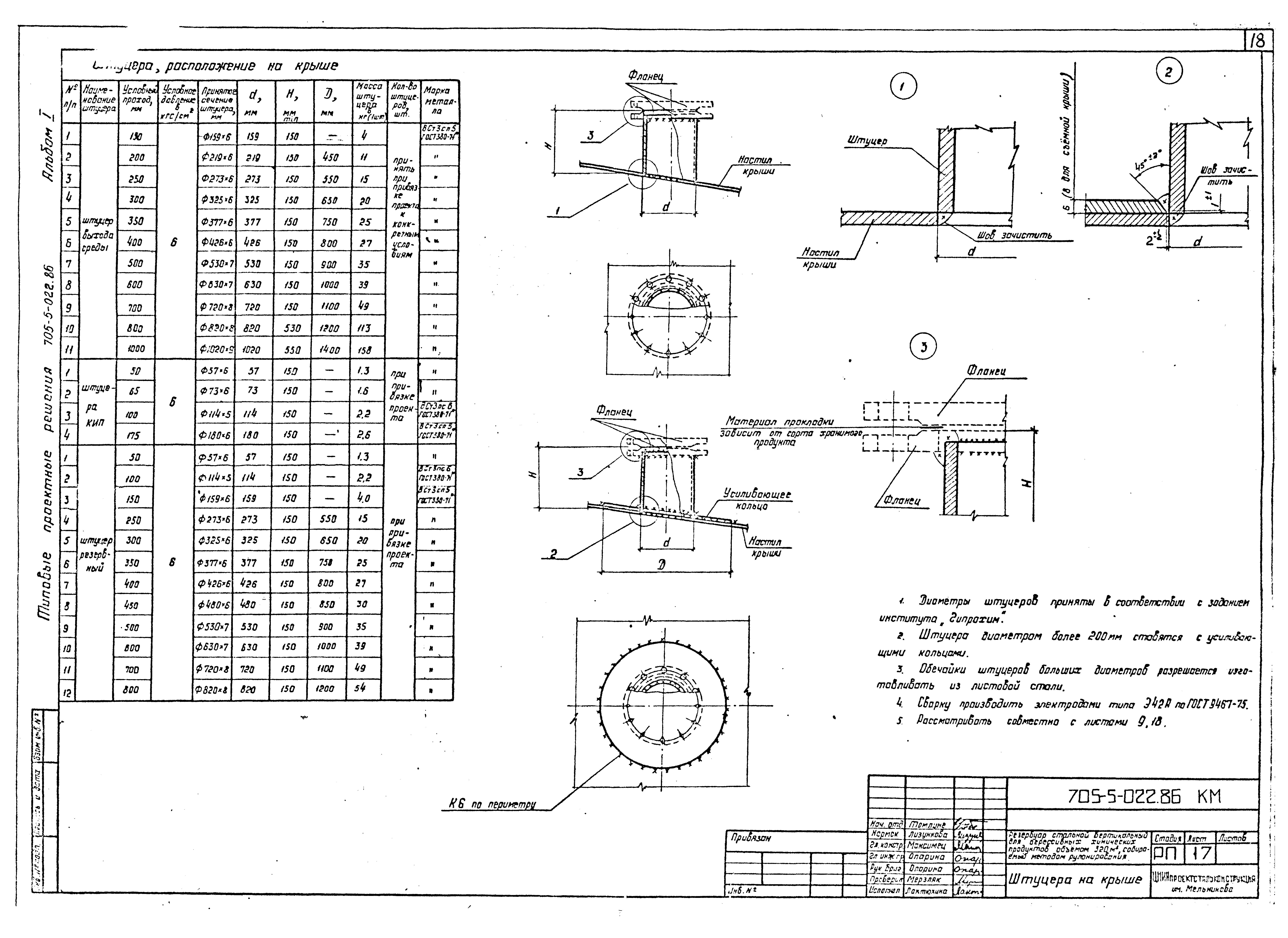
| Оглавление: | Общие данные Техническая спецификация металла (плотность продукта 1,7 т/куб. м, температура 85 градусов Цельсия) Техническая спецификация металла (плотность продукта 1,84 т/куб. м, температура 50 градусов Цельсия) Техническая спецификация металла (плотность продукта 1,92 т/куб. м, температура 50 градусов Цельсия) Ведомость металлоконструкций по видам профилей (плотность продукта 1,7 т/куб. м, температура 85 градусов Цельсия) Ведомость металлоконструкций по видам профилей (плотность продукта 1,84 т/куб. м, температура 50 градусов Цельсия) Ведомость металлоконструкций по видам профилей (плотность продукта 1,92 т/куб. м, температура 50 градусов Цельсия) Общий вид резервуара Днище Стенка Крыша резервуара приварная Крыша резервуара съемная Крепление люка для погружного насоса Люк верхний Dy800 Люк нижний Dy800 Штуцера на крыше Штуцера на крыше и в стенке Нагрузки на фундамент |
| Разработан: | ЦНИИпроектстальконструкция |
| Утверждён: | 22.05.1986 Министерство по производству минеральных удобрений СССР (USSR Ministry of Mineral Fertilizer Production 25-128) |



















