Скачать Типовые проектные решения 705-5-024.86 Альбом III. Приспособления для монтажа резервуараДата актуализации: 01.01.2021
|
| Обозначение: | Типовые проектные решения 705-5-024.86 |
| Обозначение англ: | 705-5-024.86 |
| Статус: | справочные материалы, мп, тпр |
| Название рус.: | Альбом III. Приспособления для монтажа резервуара |
| Дата добавления в базу: | 01.10.2014 |
| Дата актуализации: | 01.01.2021 |
| Дата окончания срока действия: | 22.05.1986 |
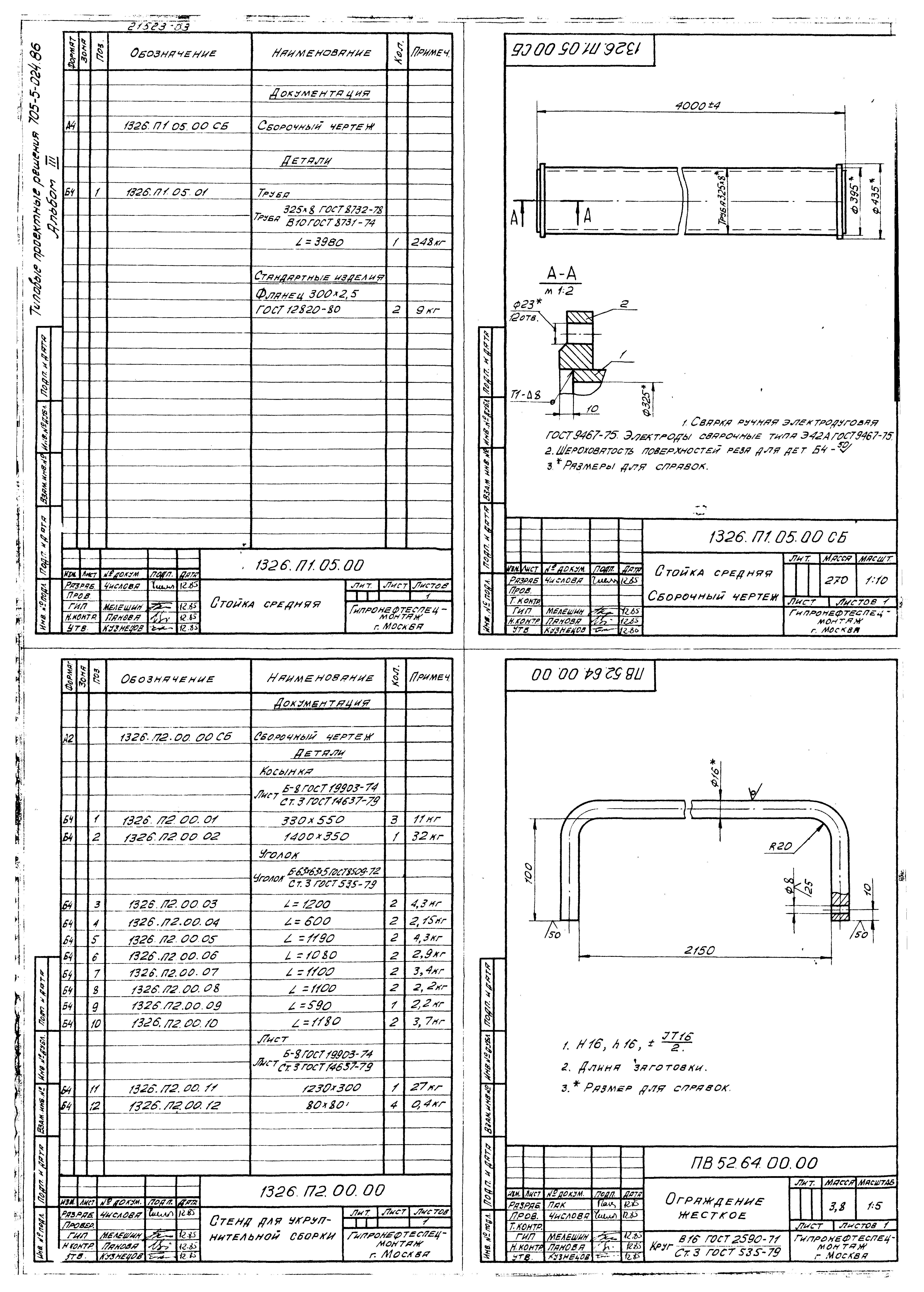
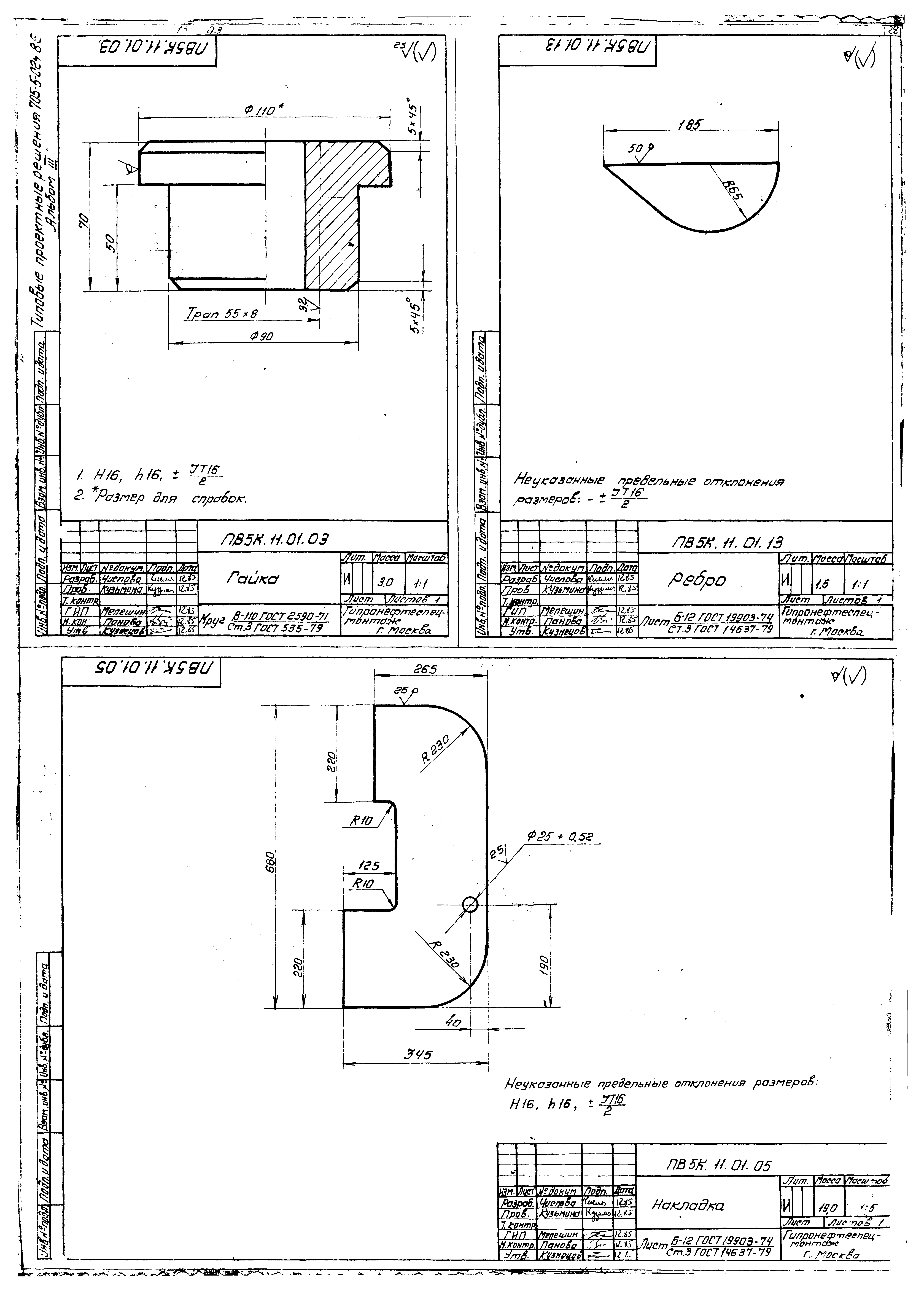
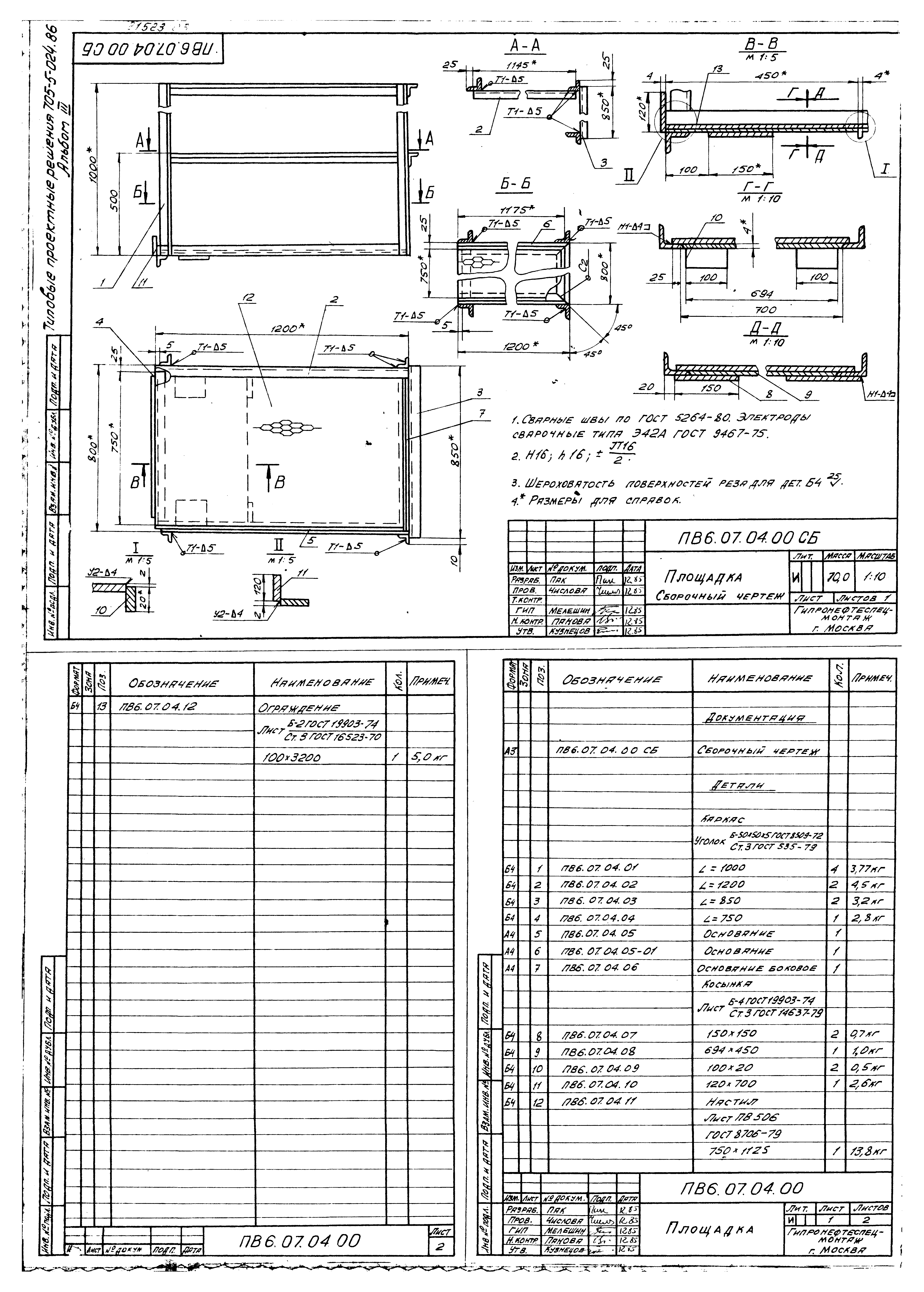
| Оглавление: | 1326.П1.00.00СБ Стойка монтажная. Сборочный чертеж 1326.П1.00.00 Стойка монтажная 1326.П1.01.00СБ Стойка верхняя. Сборочный чертеж 1326.П1.01.00 Стойка верхняя 1326.П1.02.00СБ Стойка нижняя. Сборочный чертеж 1326.П1.03.00СБ Лестница. Сборочный чертеж 1326.П1.03.00 Лестница 1326.П1.02.00 Стойка нижняя 1326.П1.04.00СБ Подкос. Сборочный чертеж 1326.П1.04.00 Подкос 1326.П1.04.01 Швеллер 1326.П1.05.00СБ Стойка средняя. Сборочный чертеж 1326.П1.05.00 Стойка средняя ПВ52.64.00.00 Ограждение жесткое 1326.П2.00.00 Стенд для укрупнительной сборки 1326.П2.00.00СБ Стенд для укрупнительной сборки. Сборочный чертеж 1326.П3.00.00 Штуцер для отводного блока Q = 10 т 1326.П3.00.00СБ Штуцер для отводного блока Q = 10 т. Сборочный чертеж 1326.П3.00.01 Накладка 1326.П4.00.00СБ Площадка на постамент. Сборочный чертеж 1326.П4.00.00 Площадка на постамент ПВ51.64.00.00СБ Настил. Сборочный чертеж ПВ51.64.00.00 Настил ПВ2.12.00.00СБ Замерное устройство. Сборочный чертеж ПВ2.12.02.00СБ Стойка. Сборочный чертеж ПВ2.12.03.00СБ Ось. Сборочный чертеж ПВ2.12.01.02 Кронштейн ПВ2.12.01.00СБ Хомут. Сборочный чертеж ПВ2.12.00.01 Пластина ПВ2.12.01.01 Скоба ПВ2.12.00.00 Замерное устройство ПВ2.12.02.00 Стойка ПВ2.12.03.00 Ось ПВ2.12.01.00 Хомут ПВ4.03.01.00 Корпус ПВ4.03.00.00 Струбцина для прижима обвозочного уголка ПВ4.03.00.00СБ Струбцина для прижима обвозочного уголка. Сборочный чертеж ПВ4.03.01.02 Гайка ПВ4.03.00.02 Винт ПВ4.03.01.00СБ Корпус. Сборочный чертеж ПВ7.11.00.00 Клин ПВ7.11.00.01 Уголок ПВ7.11.00.00СБ Клин. Сборочный чертеж ПВ5.50.00.00 Ролик поддерживающий ПВ5.50.00.01 Скоба ПВ5.50.00.00СБ Ролик поддерживающий. Сборочный чертеж ПВ61.13.00.00СБ Подмости. Сборочный чертеж ПВ61.13.00.00 Подмости ПВ61.13.00.01 Скоба ПВ61.13.01.00СБ Площадка. Сборочный чертеж ПВ61.13.01.00 Площадка ПВ61.13.01.01 Крюк ПВ61.13.02.00СБ Лестница. Сборочный чертеж ПВ61.13.02.00 Лестница ПВ61.13.00.00 Подмости ПВ5К.11.00.00СБ Захват для подъема рулонов массой 45 - 65 тонн краном. Сборочный чертеж ПВ5К.11.02.00СБ Упор. Сборочный чертеж ПВ5К.11.01.00 Корпус ПВ5К.11.00.00 Захват для подъема рулонов массой 45 - 65 тонн краном ПВ5К.11.02.00 Упор ПВ5К.11.01.00СБ Корпус. Сборочный чертеж ПВ5К.11.01.03 Гайка ПВ5К.11.01.13 Ребро ПВ5К.11.01.05 Накладка ПВ5К.11.00.02 Подпятник ПВ5К.11.00.03 Кольцо запорное ПВ5К.11.00.01 Винт ПВ5К.11.01.11 Фланец ПВ5К.11.01.09 Ребро ПВ5К.11.01.07 Пластина ПВ5К.11.01.06 Стенка ПВ5К.11.01.01 Щека ПВ5К.14.00.00СБ Шарнир для подъема рулонов массой 45 - 65 т краном. Сборочный чертеж ПВ5К.14.01.00СБ Опора. Сборочный чертеж ПВ5К.14.01.00 Опора ПВ5К.14.00.00 Шарнир для подъема рулонов массой 45 - 65 т краном ПВ5К.14.01.13 Ребро ПВ5К.14.03.00 Палец ПВ5К.14.03.00СБ Палец. Сборочный чертеж ПВ5К.14.02.00СБ Основание. Сборочный чертеж ПВ5К.14.01.08 Фиксатор ПВ5К.14.01.11 Сектор ПВ5К.14.02.00 Основание ПВ5К.14.01.14 Кронштейн ПВ5К.14.01.03 Ушко ПВ5К.14.01.05 Ребро ПВ6.07.00.00СБ Приспособление для замыкания вертикального монтажного стыка. Сборочный чертеж ПВ6.07.00.00 Приспособление для замыкания вертикального монтажного стыка ПВ6.07.02.00СБ Балка. Сборочный чертеж ПВ6.07.03.00СБ Лестница. Сборочный чертеж ПВ6.07.02.06 Гайка ПВ6.07.02.07 Скоба ПВ6.07.03.00 Лестница ПВ6.07.02.02 Ловитель ПВ6.07.02.01 Кронштейн ПВ6.07.02.03 Пластина ПВ6.07.02.05 Основание ПВ6.07.02.06 Основание боковое ПВ6.07.01.03 Швеллер ПВ6.07.01.02 Швеллер ПВ6.07.01.05 Швеллер ПВ6.07.01.04 Швеллер ПВ6.07.02.00 Балка ПВ6.07.04.00СБ Площадка. Сборочный чертеж ПВ6.07.04.00 Площадка ПВ6.07.01.00СБ Кронштейн. Сборочный чертеж ПВ6.07.01.01 Косынка ПВ6.07.01.00 Кронштейн ПВ6.07.00.02 Винт ПВ3.02.00.00СБ Скоба для развертывания рулона. Сборочный чертеж ПВ3.02.00.01 Палец ПВ3.02.00.00 Скоба для развертывания рулона ПВ3.02.02.00СБ Корпус. Сборочный чертеж ПВ3.02.02.02 Щека ПВ3.02.02.00 Корпус ПВ3.02.01.01 Втулка ПВ3.02.01.02 Кольцо ПВ3.02.01.01СБ Втулка. Сборочный чертеж ПВ3.02.01.00 Втулка ПВ4.05.00.03 Гайка ПВ4.05.01.01 Уголок ПВ4.05.00.00СБ Стяжное приспособление. Сборочный чертеж ПВ4.05.01.02 Ребро ПВ4.05.01.00 Кронштейн ПВ4.05.00.02 Сухарь ПВ4.05.00.00 Стяжное приспособление ПВ4.05.01.00СБ Кронштейн. Сборочный чертеж ПВ4.05.00.00СБ Кронштейн. Сборочный чертеж ПВ4.05.00.00СБ Кронштейн ПВ7.07.00.00 Карман ПВ12.02.00.00 Поддон ПВ81.04.00.00 Кронштейн для расчалок ПВ81.04.00.01 Пластина ПВ81.04.00.00СБ Кронштейн для расчалок. Сборочный чертеж ПВ12.01.00.01 Серьга ПВ12.01.00.00СБ Отвес. Сборочный чертеж ПВ12.01.00.02 Груз ПВ12.01.00.00 Отвес ПВ9.20.00.00 Лестница ПВ9.20.00.00СБ Лестница. Сборочный чертеж ПВ9.20.00.00 Лестница ПВ6.04.00.00СБ Приспособление для формооборазования. Сборочный чертеж ПВ6.04.00.00 Приспособление для формооборазования ПВ6.04.00.02 Ловитель ПВ6.04.00.01 Скоба ПВ6.04.01.00СБ Раскос. Сборочный чертеж ПВ6.04.00.10 Косынка ПВ6.04.01.00 Раскос ПВ6.04.01.01 Укосина ПВ6.04.00.01 Укосина ПВ6.04.00.07 Пластина ПВ6.04.00.04 Пластина ПВ6.04.00.08 Стойка ПВ6.04.00.03 Косынка ПВ10.05.00.00СБ Строп 4-х ветвевой Q = 5 т. Сборочный чертеж ПВ10.05.00.00 Строп 4-х ветвевой Q = 5 т ПВ10.04.00.00СБ Строп 3-х ветвевой Q = 3 т. Сборочный чертеж ПВ10.04.00.00 Строп 3-х ветвевой Q = 3 т ПВ8.05.00.00СБ Упор клиновой. Сборочный чертеж ПВ8.05.00.04 Диафрагма ПВ8.05.00.01 Ось ПВ8.05.00.00 Упор клиновой ПВ8.05.00.07 Ручка ПВ8.05.00.09 Уголок ПВ8.05.00.08 Уголок ПВ8.05.00.10 Уголок ПВ8.05.00.11 Уголок ПВ8.05.00.13 Уголок ПВ7.84.03.00СБ Опора ролика. Сборочный чертеж ПВ7.84.00.00 Опора роликовая поворотная ПВ7.84.00.00СБ Опора роликовая поворотная. Сборочный чертеж ПВ7.84.01.00СБ Основание ролика. Сборочный чертеж ПВ7.84.01.00 Основание ролика ПВ7.84.02.00СБ Ролик. Сборочный чертеж ПВ7.84.02.00 Ролик ПВ7.84.03.00 Опора ролика |
| Разработан: | Гипронефтеспецмонтаж Минмонтажспецстроя СССР (Giproneftespetsmontazh, Minmontazhspetsstroy (USSR) ) |
| Утверждён: | 22.05.1986 Министерство по производству минеральных удобрений СССР (USSR Ministry of Mineral Fertilizer Production 25-128) |





































































