Скачать Типовой проект 709-9-79.87 Альбом 1. Общая пояснительная записка. Архитектурно-строительные решения. Санитарно-техническая и электротехническая частиДата актуализации: 01.01.2021
|
| Обозначение: | Типовой проект 709-9-79.87 |
| Обозначение англ: | 709-9-79.87 |
| Статус: | не определен законодательством |
| Название рус.: | Альбом 1. Общая пояснительная записка. Архитектурно-строительные решения. Санитарно-техническая и электротехническая части |
| Дата добавления в базу: | 01.10.2014 |
| Дата актуализации: | 01.01.2021 |
| Дата введения: | 10.03.1988 |
| Дата окончания срока действия: | 30.06.2003 |
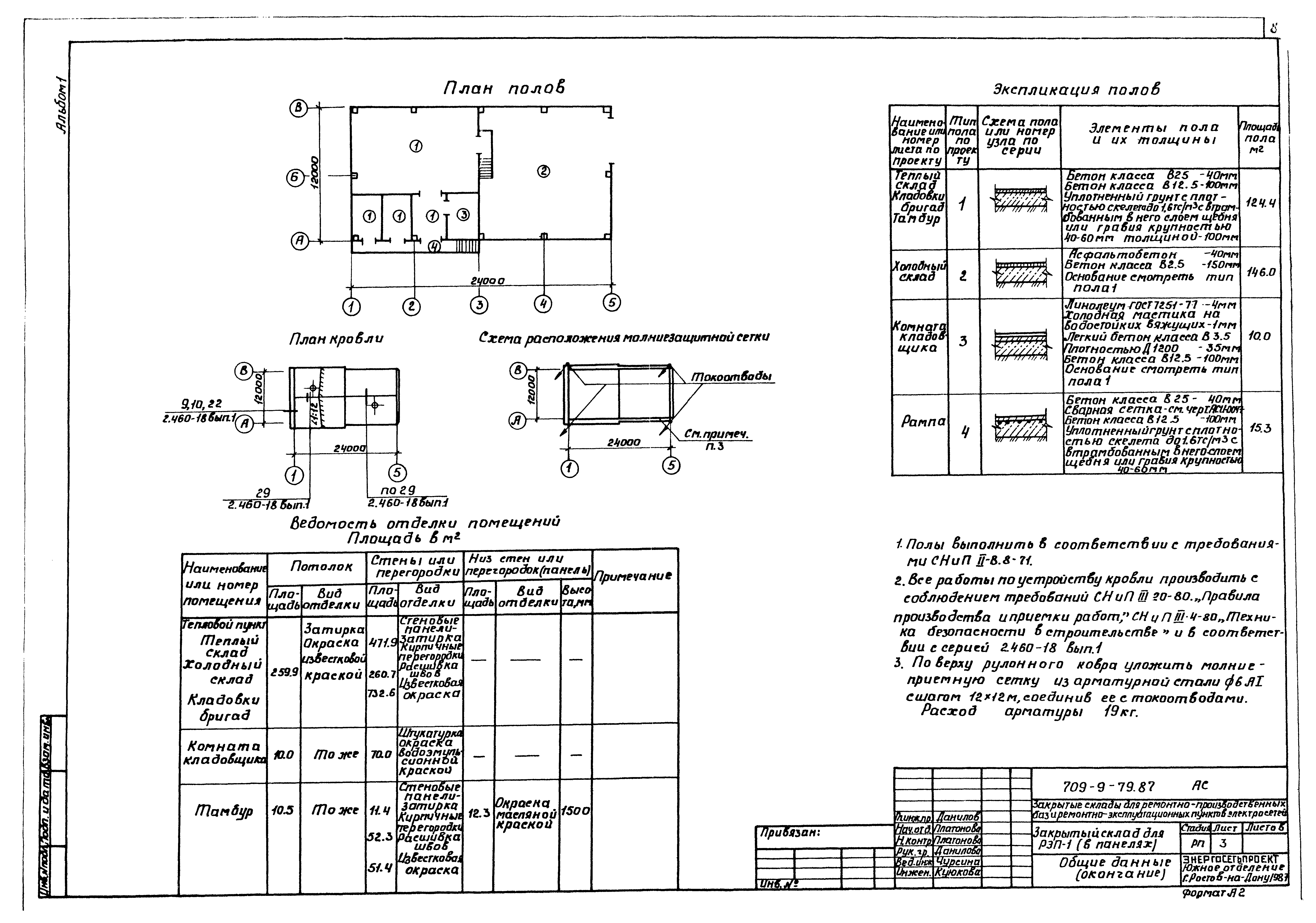
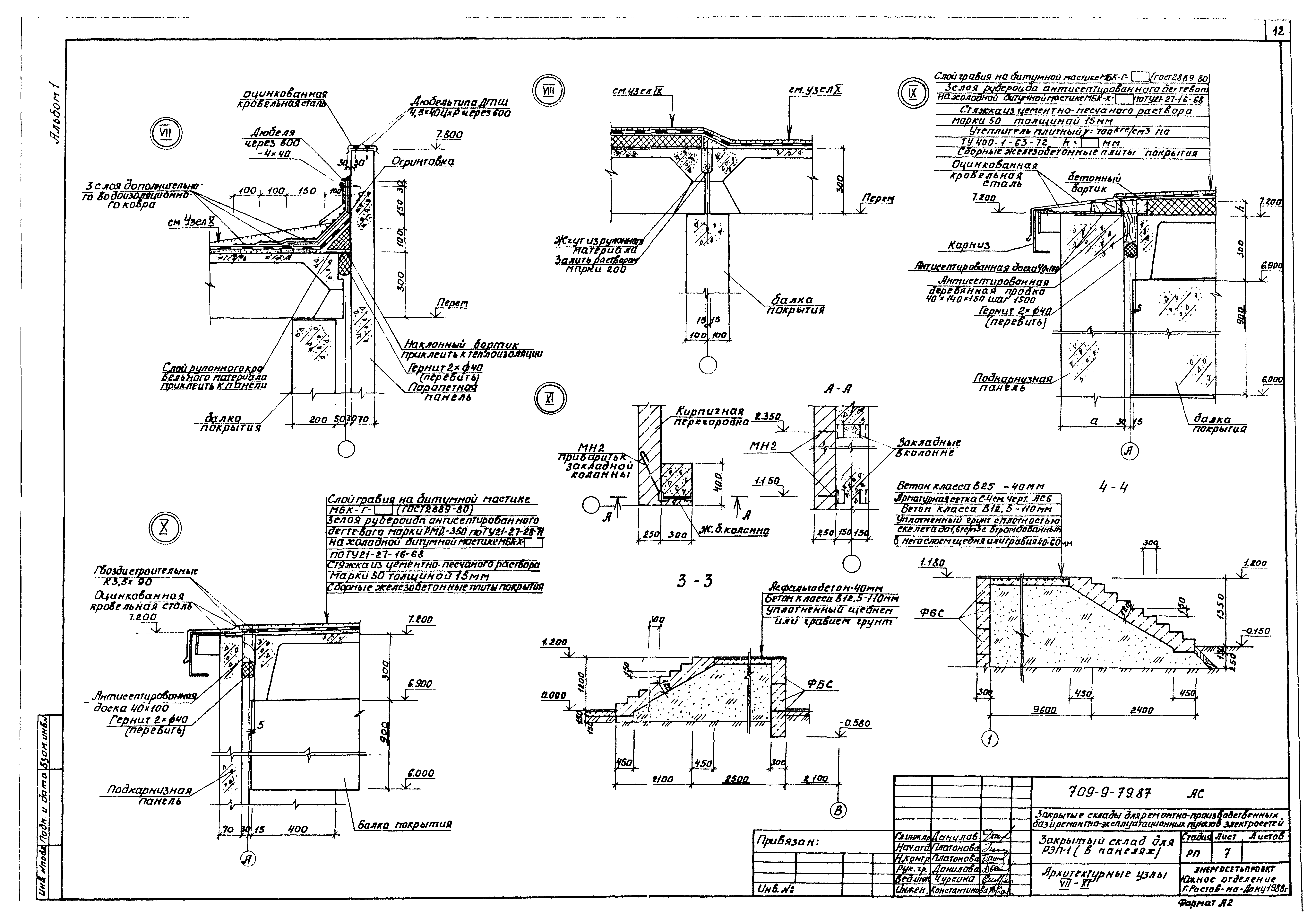
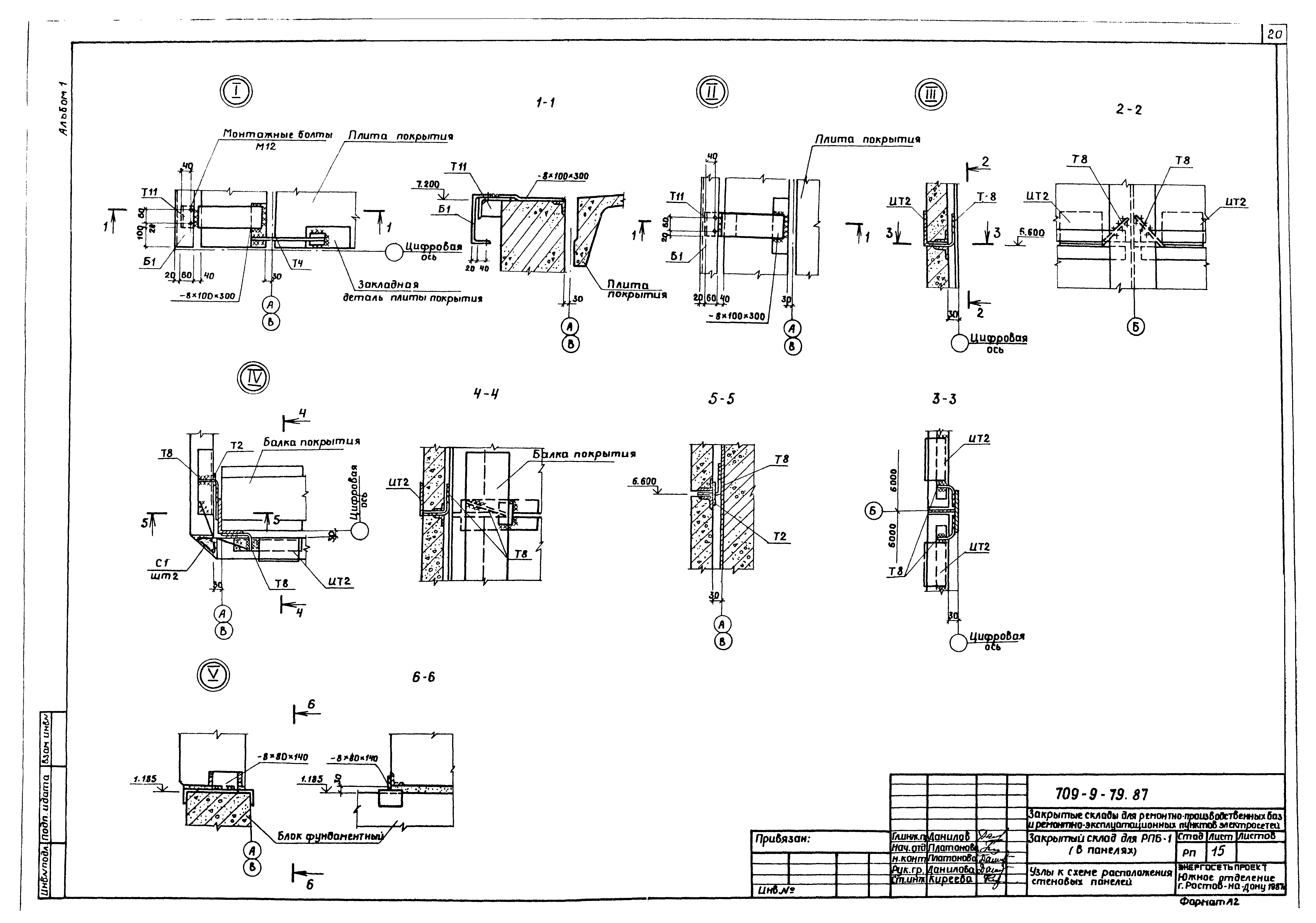
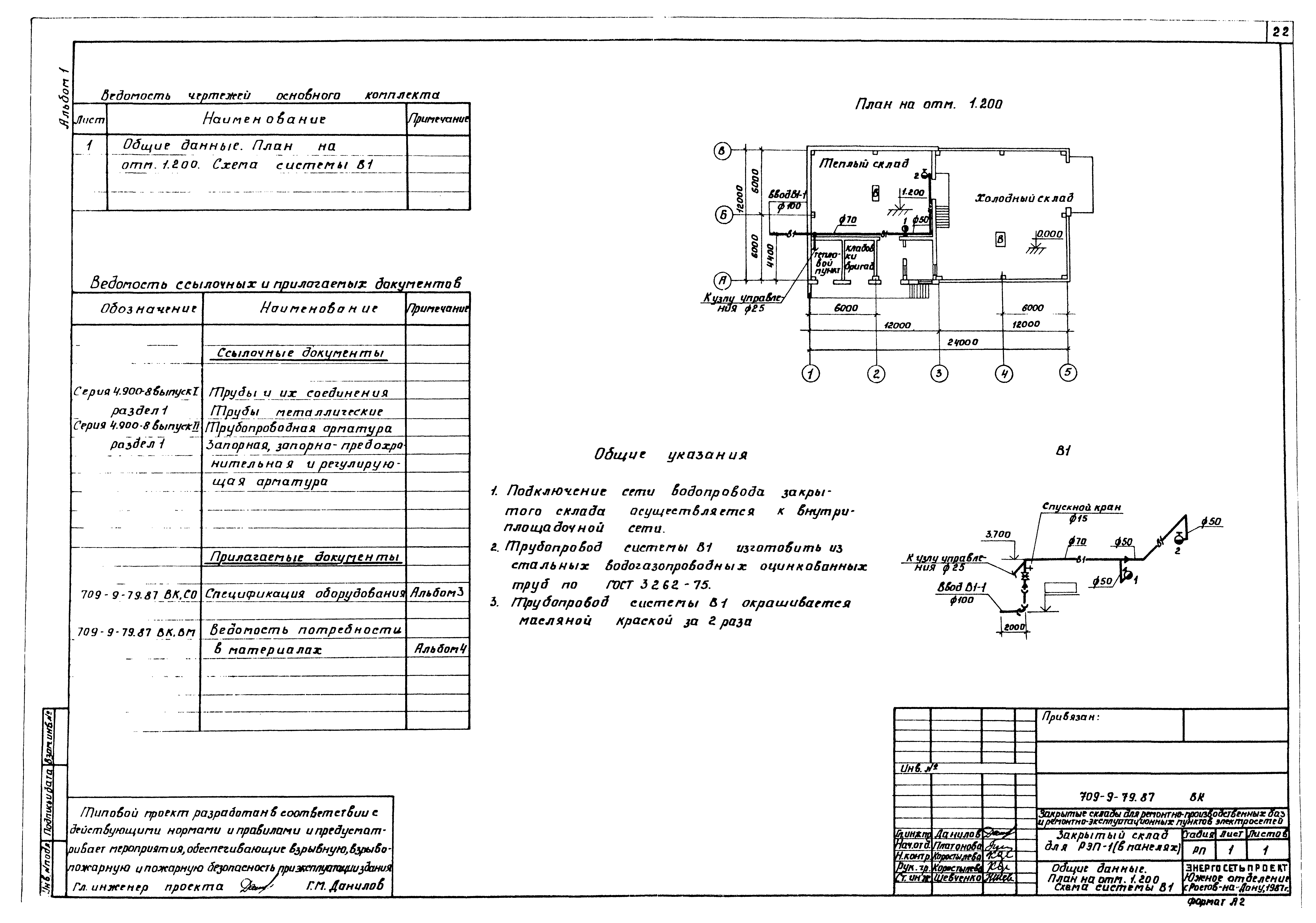
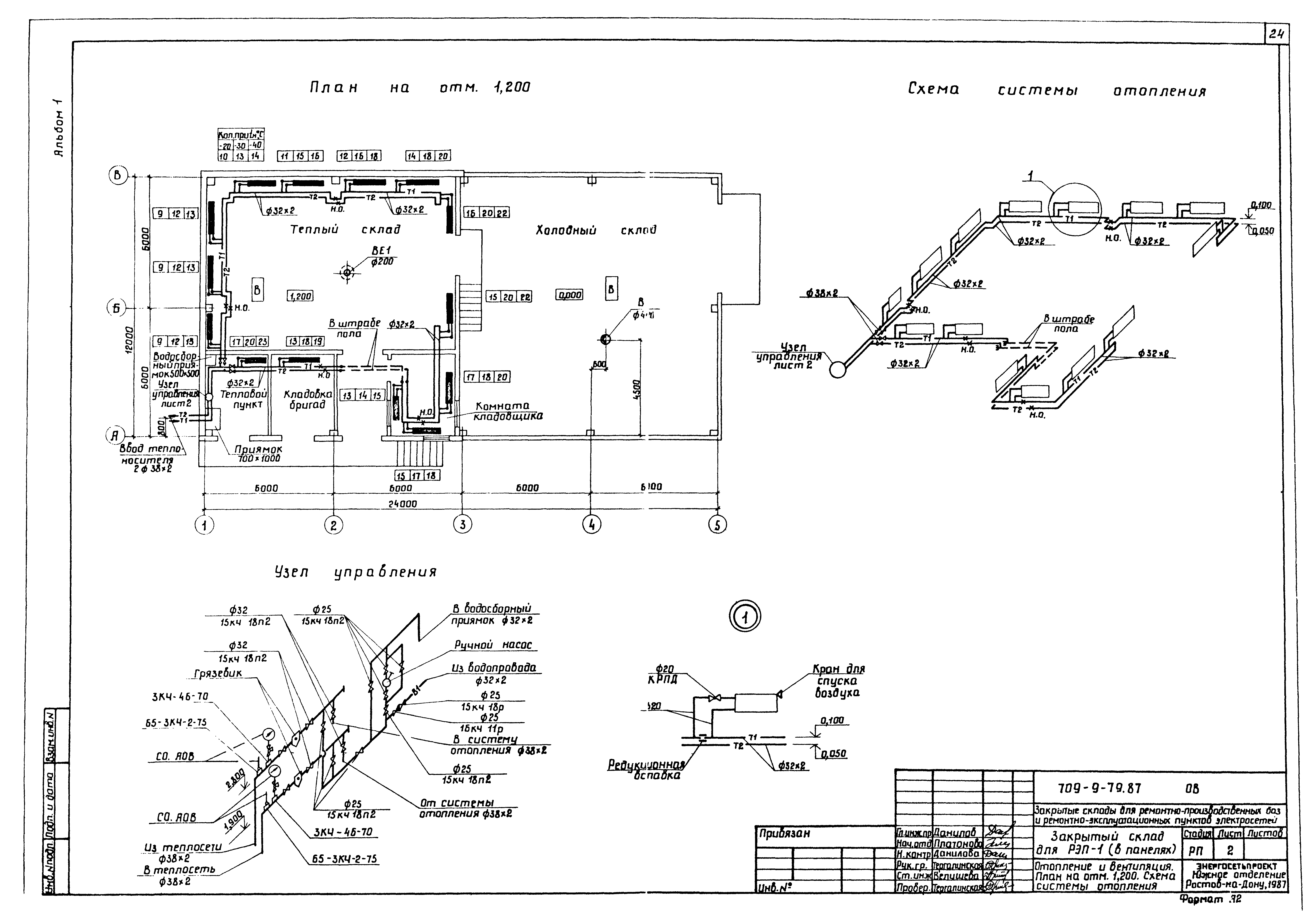
| Оглавление: | Содержание альбома Пояснительная записка Архитектурно-строительные решения Общие данные План. Разрез 1-1, 2-2. Спецификация Фасады Архитектурные узлы I - VI Архитектурные узлы VII - XI Схема расположения фундаментов. Спецификация Схема расположения фундаментов. Развертки Схема расположения фундаментов. Фрагменты планов 1, 2, 3. Сечения Схема расположения каркаса. Спецификация Схема расположения плит покрытия. Спецификация Схемы расположения стеновых панелей Спецификация к схемам расположения стеновых панелей Узлы к схемам расположения стеновых панелей Схема расположения монорельса. Спецификация Водопровод Общие данные. План на отм. 1.200. Схема системы В1 Отопление и вентиляция Общие данные Отопление и вентиляция. План на отм. 1.200. Схема системы отопления Силовое электрооборудование и электроосвещение Общие данные План силовой распределительной сети. Молниезащита План сети электрического освещения. Принципиальная схема силовой распределительной сети и сети электрического освещения |
| Разработан: | Южное отделение Энергосетьпроекта |
| Утверждён: | 10.03.1988 Минэнерго СССР (USSR Minenergo 18) |




























