Скачать Типовой проект 902-3-89.90 Альбом 2. Технологические решения. Отопление и вентиляция. Генеральные планы. Электротехнические решенияДата актуализации: 01.01.2021
|
| Обозначение: | Типовой проект 902-3-89.90 |
| Обозначение англ: | 902-3-89.90 |
| Статус: | не определен законодательством |
| Название рус.: | Альбом 2. Технологические решения. Отопление и вентиляция. Генеральные планы. Электротехнические решения |
| Дата добавления в базу: | 01.10.2014 |
| Дата актуализации: | 01.01.2021 |
| Дата введения: | 09.10.1990 |
| Дата окончания срока действия: | 30.06.2003 |
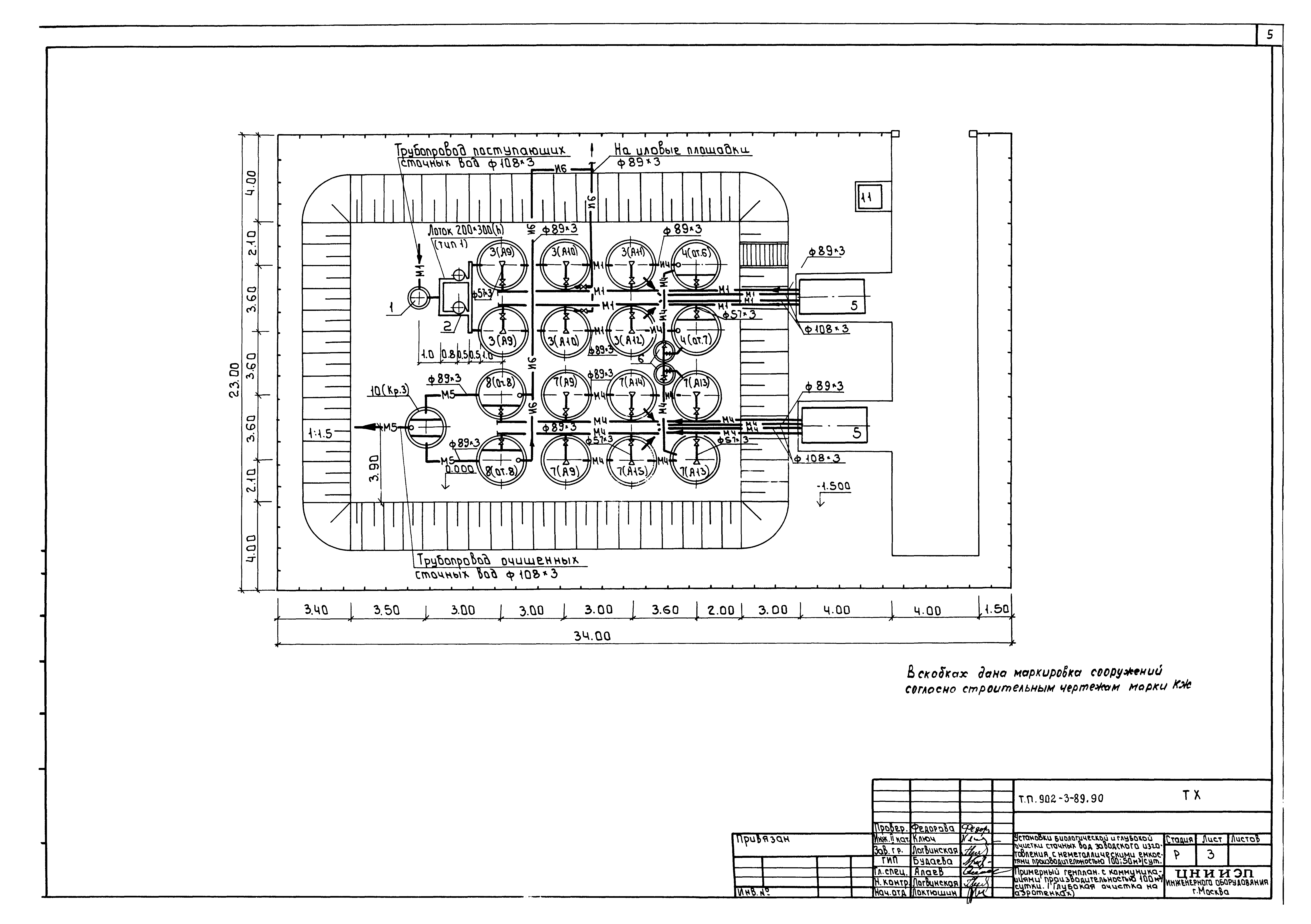
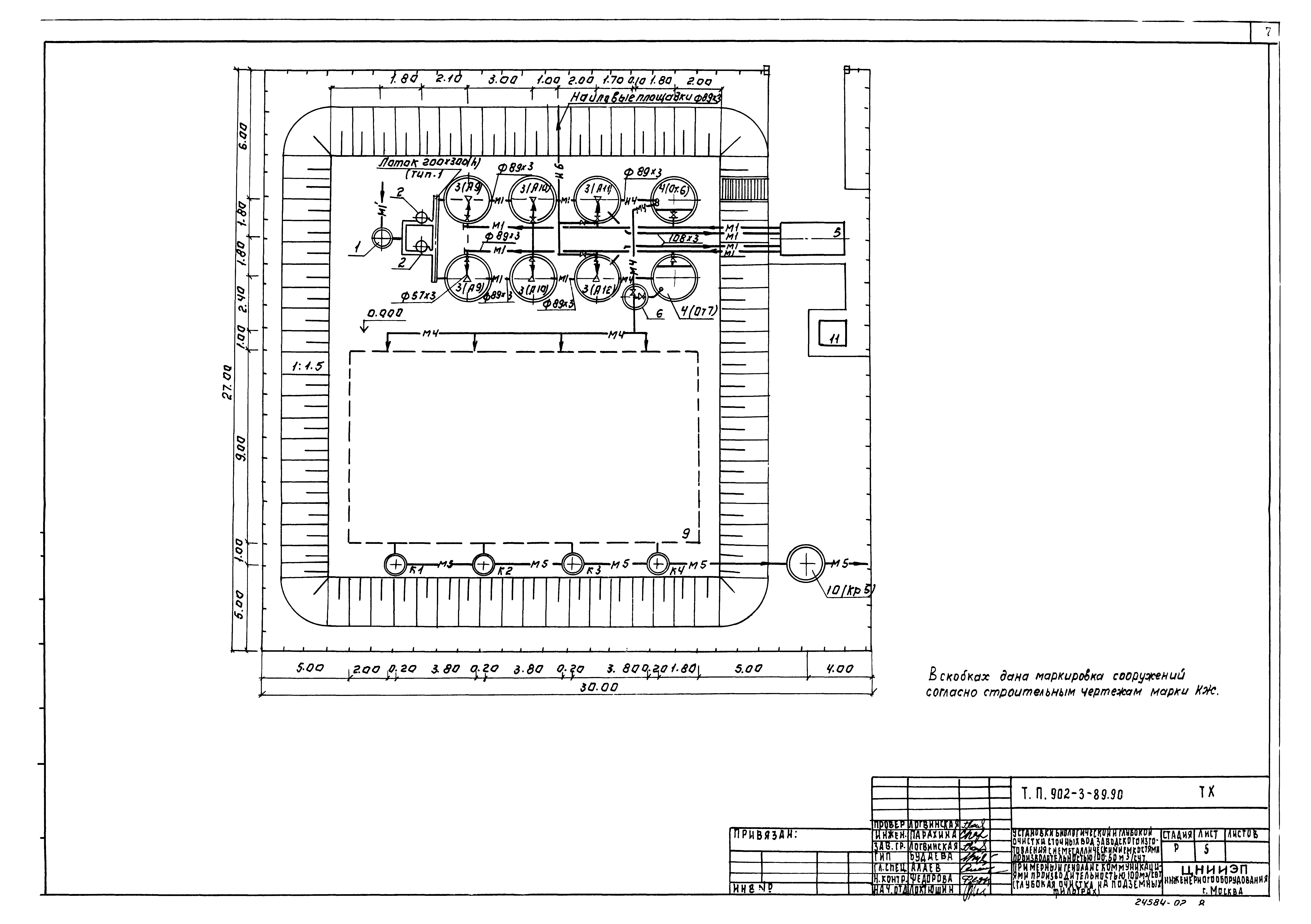
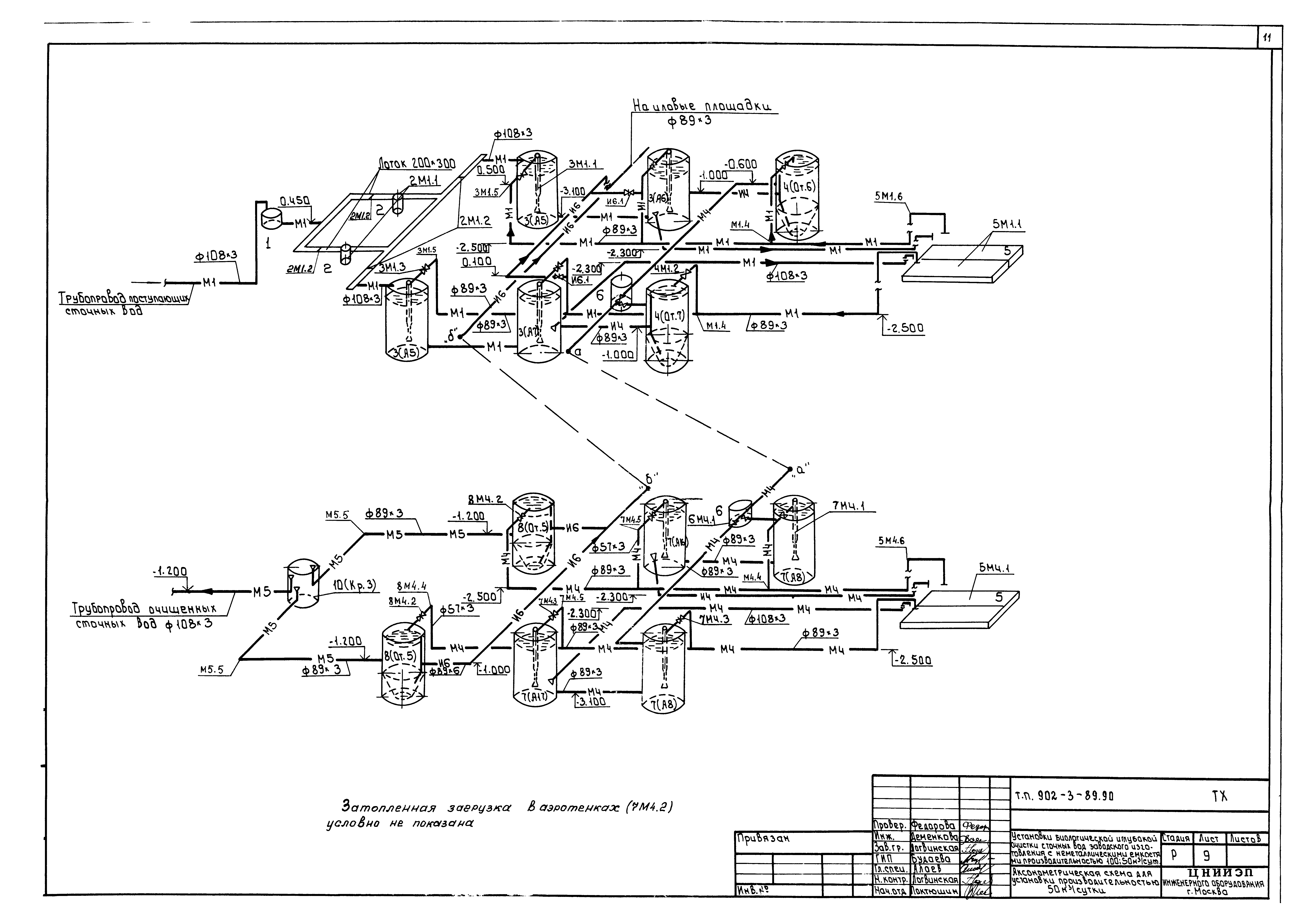
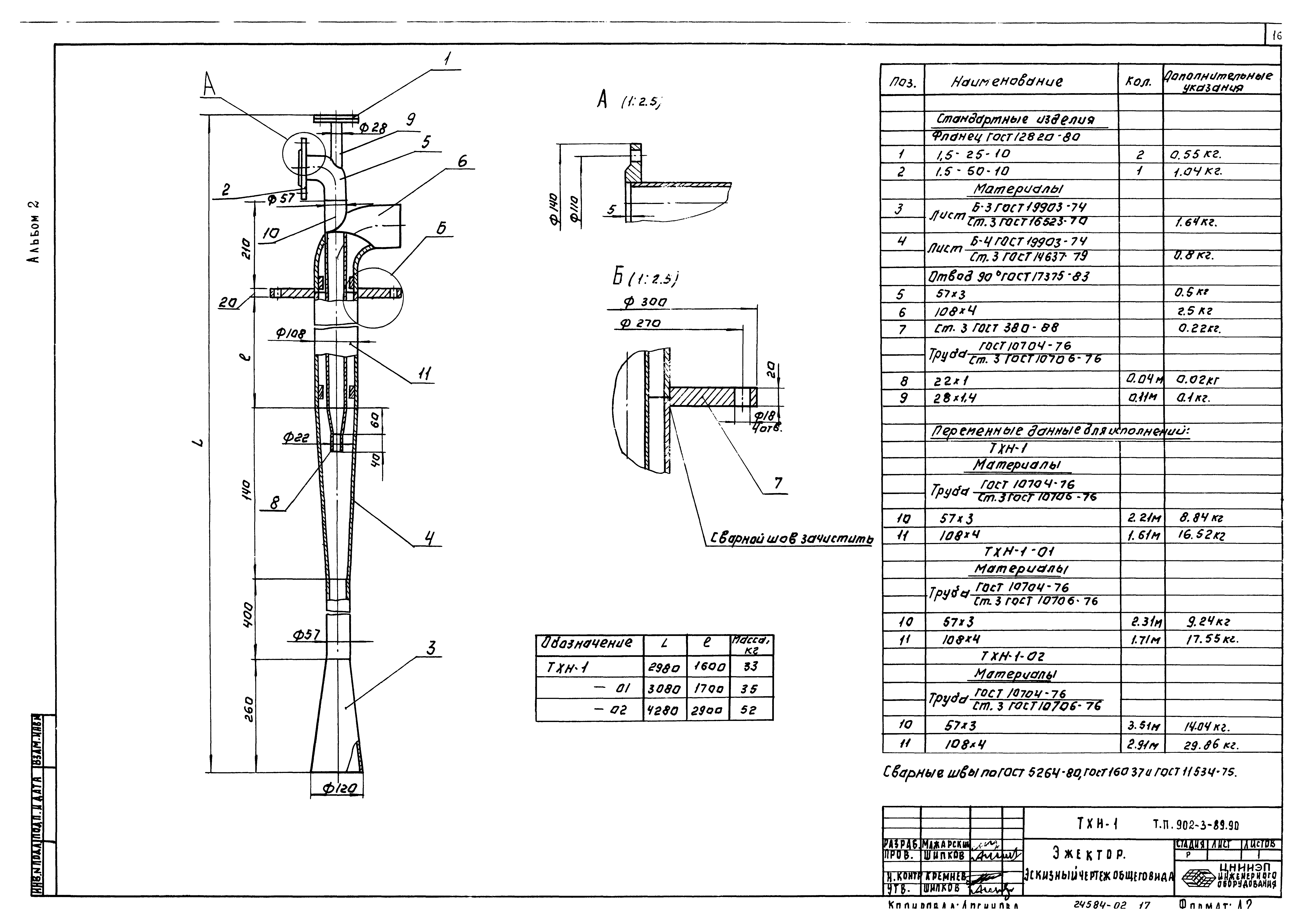
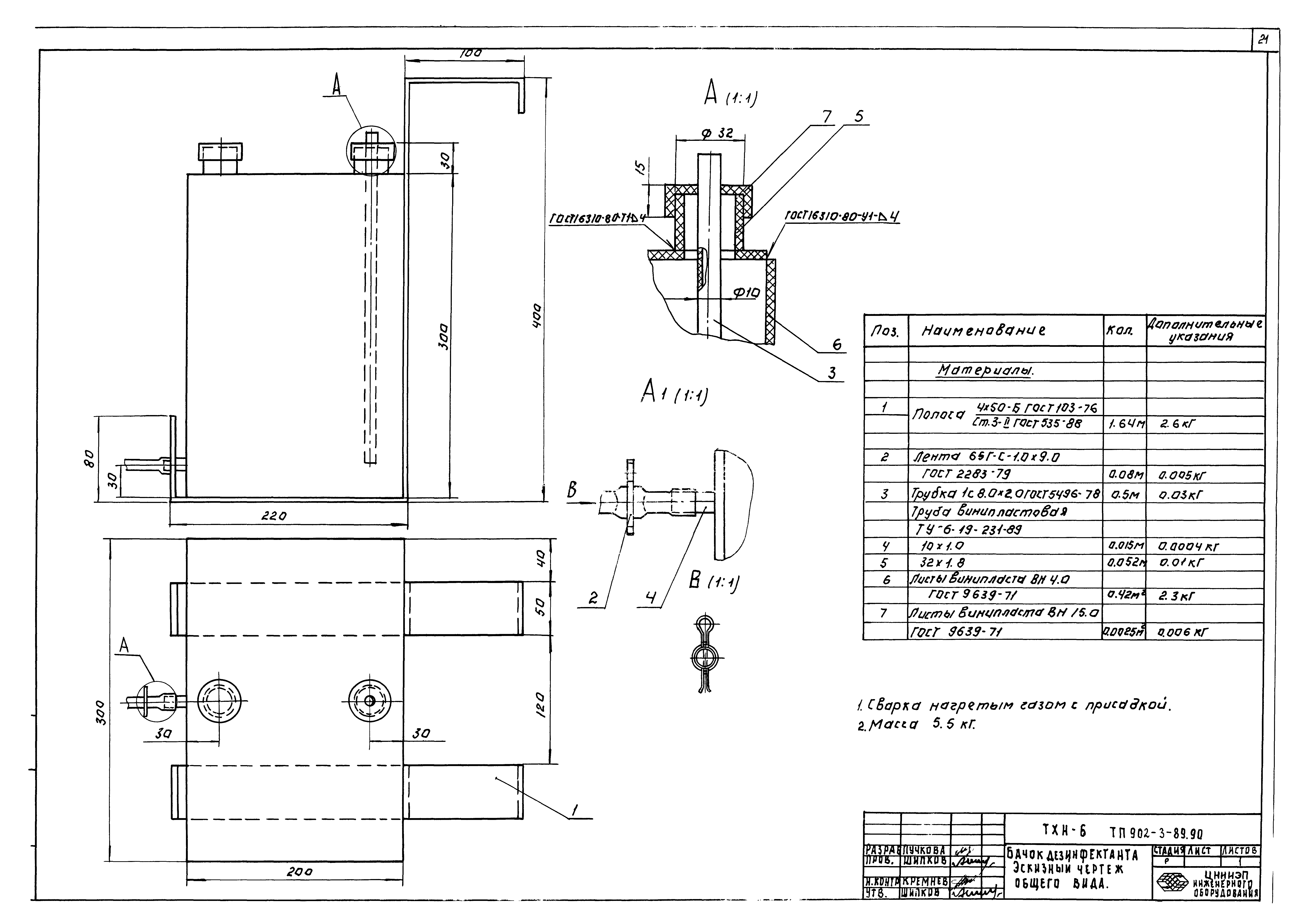
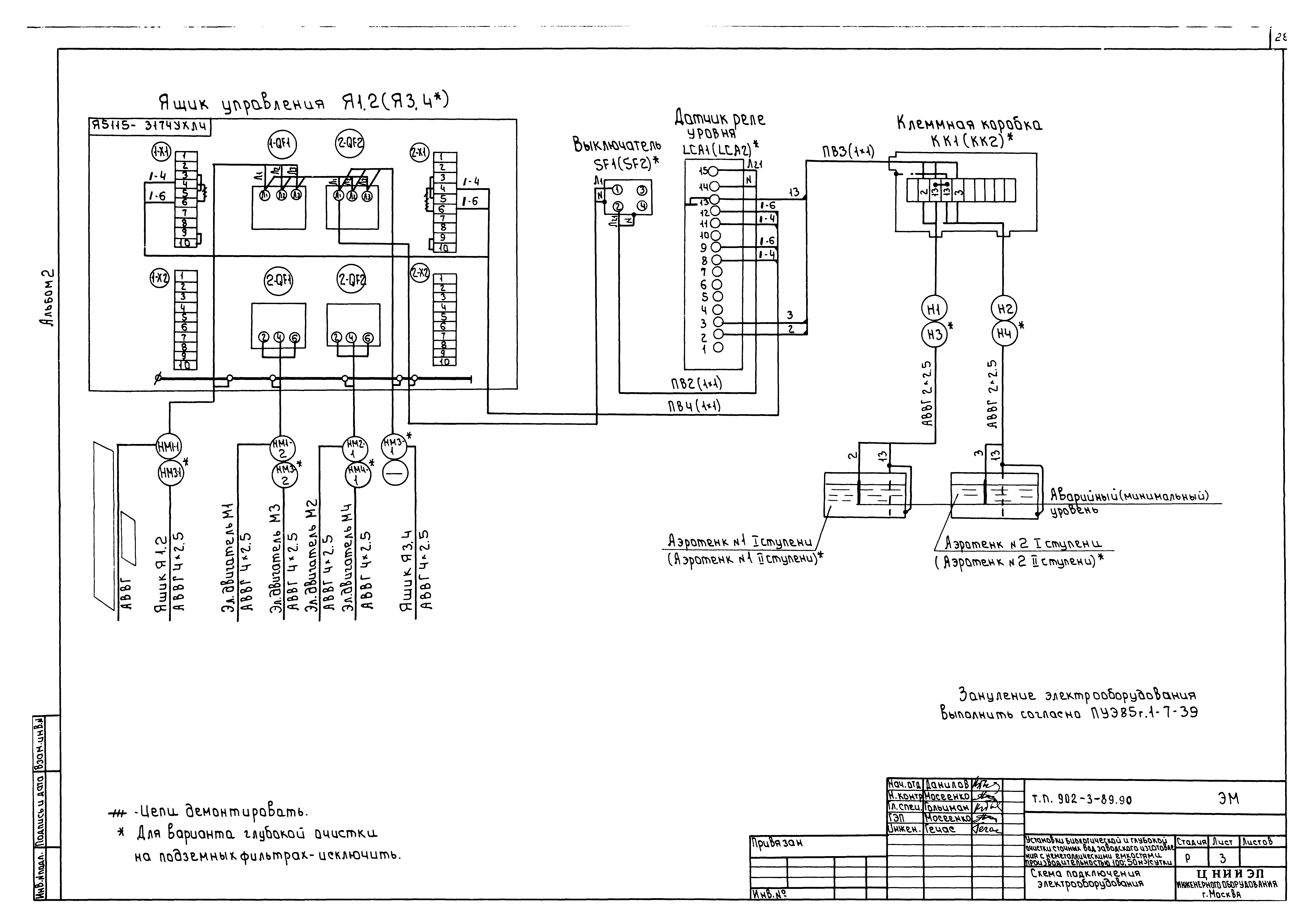
| Оглавление: | Содержание альбома Технологические решения Общие данные Схема расположения установки. Схемы использования и сброса очищенной воды. Резервуар очищенной воды Примерный генплан с коммуникациями производительностью 100 куб. м/сутки (глубокая очистка на аэротенках) Примерный генплан с коммуникациями производительностью 50 куб. м/сутки (глубокая очистка на аэротенках) Примерный генплан с коммуникациями производительностью 100 куб. м/сутки (глубокая очистка на подземных фильтрах) Примерный генплан с коммуникациями производительностью 50 куб. м/сутки (глубокая очистка на подземных фильтрах) Схема движения воды Аксонометрическая схема для установки производительностью 100 куб. м/сутки Аксонометрическая схема для установки производительностью 50 куб. м/сутки Аэротенк. Отстойник. Планы. Разрезы 1-1, 2-2, 3-3, 4-4 Контактный резервуар. Камера переключений. Планы. Разрезы 1-1, 2-2, 3-3, 4-4 Блок контейнер. План. Разрез 1-1. Пример решения иловых площадок. Таблицы колодцев Подземные фильтры. План. Разрез 1-1, 2-2 Эжектор. Эскизный чертеж общего вида Решетка. Эскизный чертеж общего вида Песколовка Ф 500 мм. Эскизный чертеж общего вида Затопленная загрузка. Эскизный чертеж общего вида Лоток. Эскизный чертеж общего вида Бачок дезинфектанта. Эскизный чертеж общего вида Рама эжектора. Эскизный чертеж общего вида Отопление и вентиляция Общие данные. План на отм. 0.000. Схема системы отопления. Схема системы ВЕ-1 Генеральные планы Примерный генплан М1:200 (глубокая очистка на аэротенках) Примерный генплан М1:200 (глубокая очистка на подземных фильтрах) Электротехнические решения Общие данные. Схема электрическая принципиальная распределительной сети 380/220 В Схема электрическая принципиальная управления насосами Схема подключения электрооборудования Кабельный журнал. План расположения электрооборудования и прокладка кабеля Организация строительства Схема стройгенплана График производства работ на производительность 100 куб. м/сутки График производства работ на производительность 50 куб. м/сутки |
| Разработан: | ЦНИИЭП |
| Утверждён: | 09.10.1990 Госгражданстрой (Gosgrazhdanstroy 167) |
| Заменяет собой: |

































