Скачать Типовые проектные решения 903-1-0255.3.87 Альбом 1. Решения тепломеханические. Автоматизация. Спецификации оборудования. Ведомости потребности в материалахДата актуализации: 01.01.2021
|
| Обозначение: | Типовые проектные решения 903-1-0255.3.87 |
| Обозначение англ: | 903-1-0255.3.87 |
| Статус: | справочные материалы, мп, тпр |
| Название рус.: | Альбом 1. Решения тепломеханические. Автоматизация. Спецификации оборудования. Ведомости потребности в материалах |
| Дата добавления в базу: | 01.10.2014 |
| Дата актуализации: | 01.01.2021 |
| Дата введения: | 22.01.1988 |
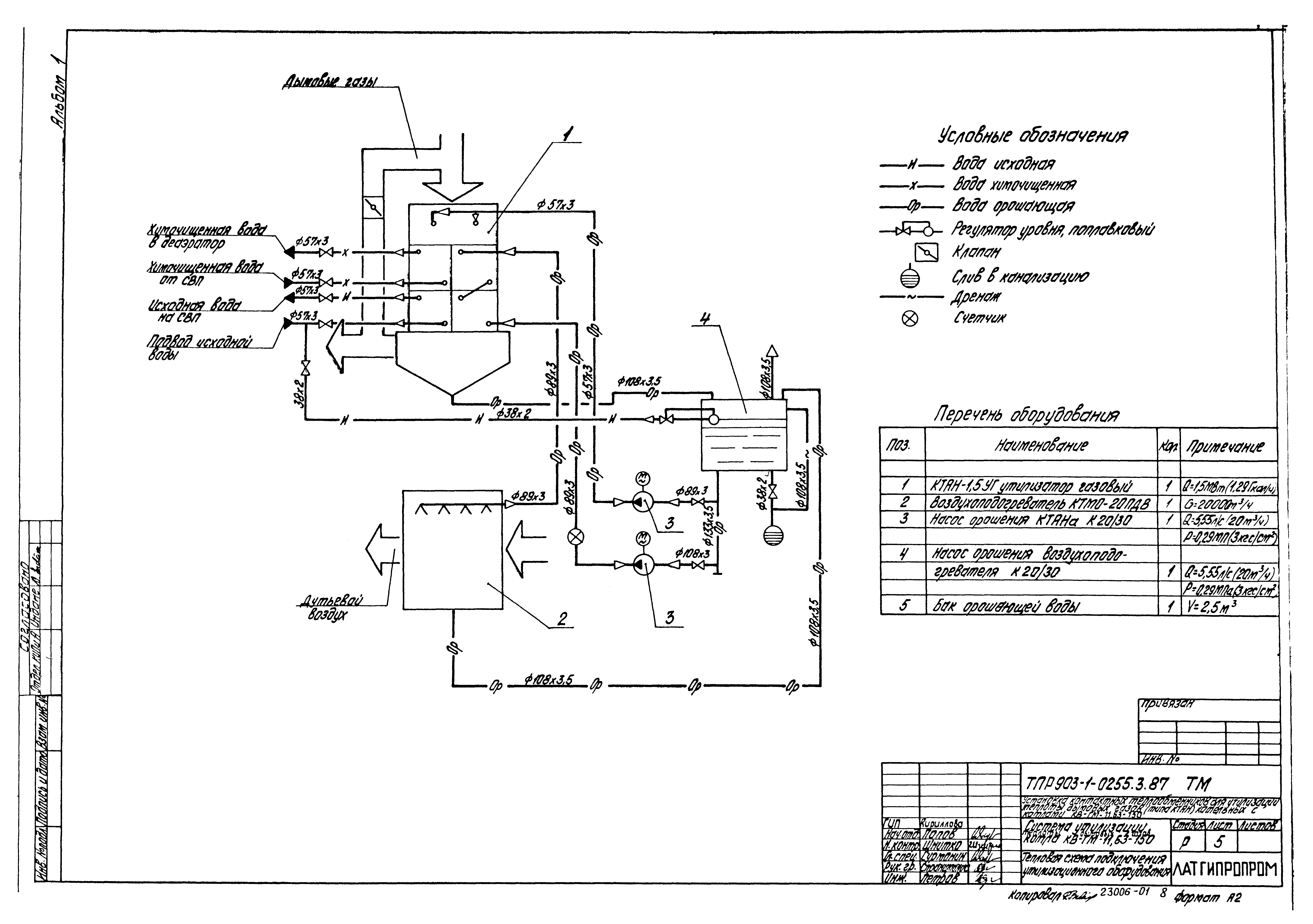
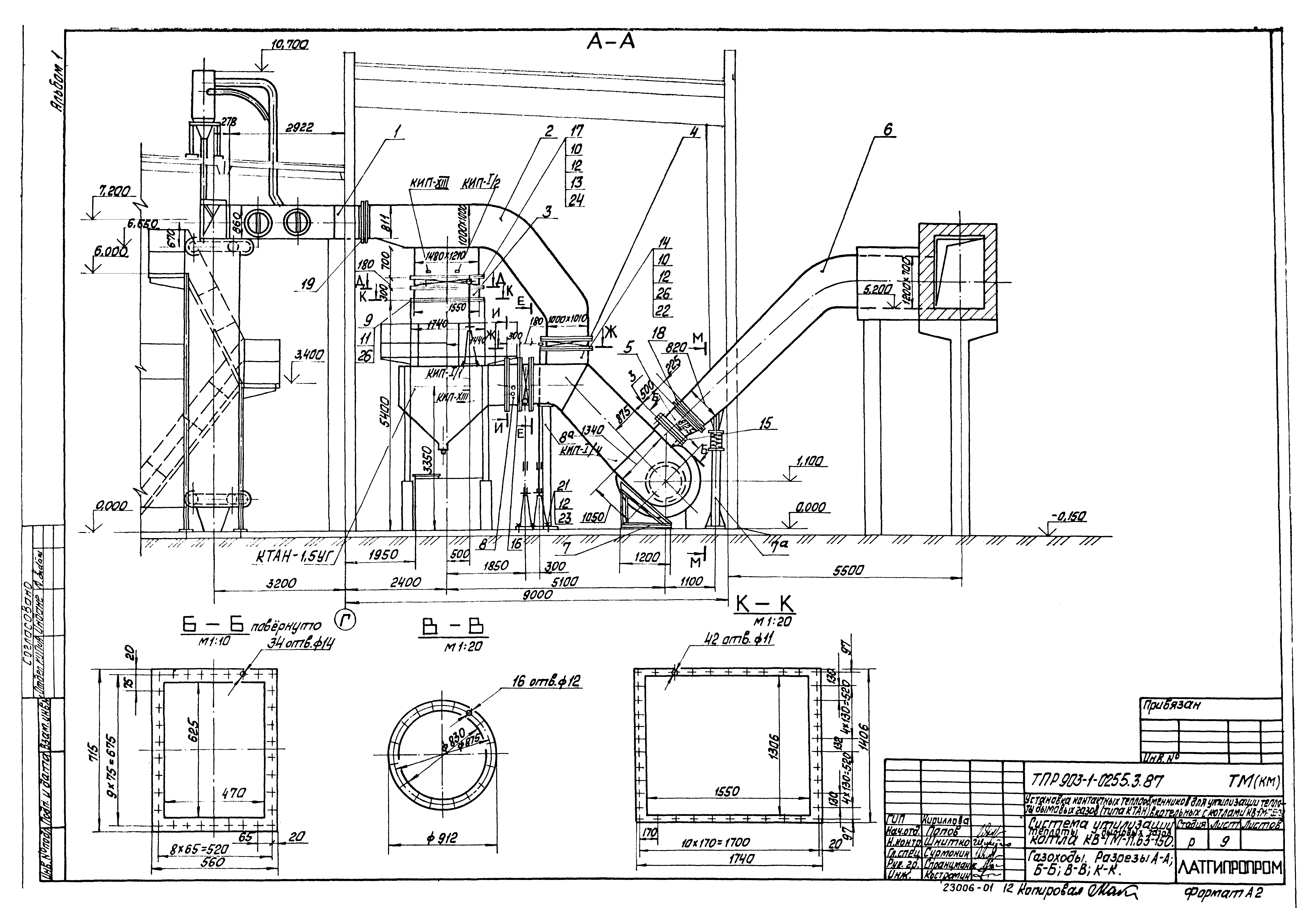
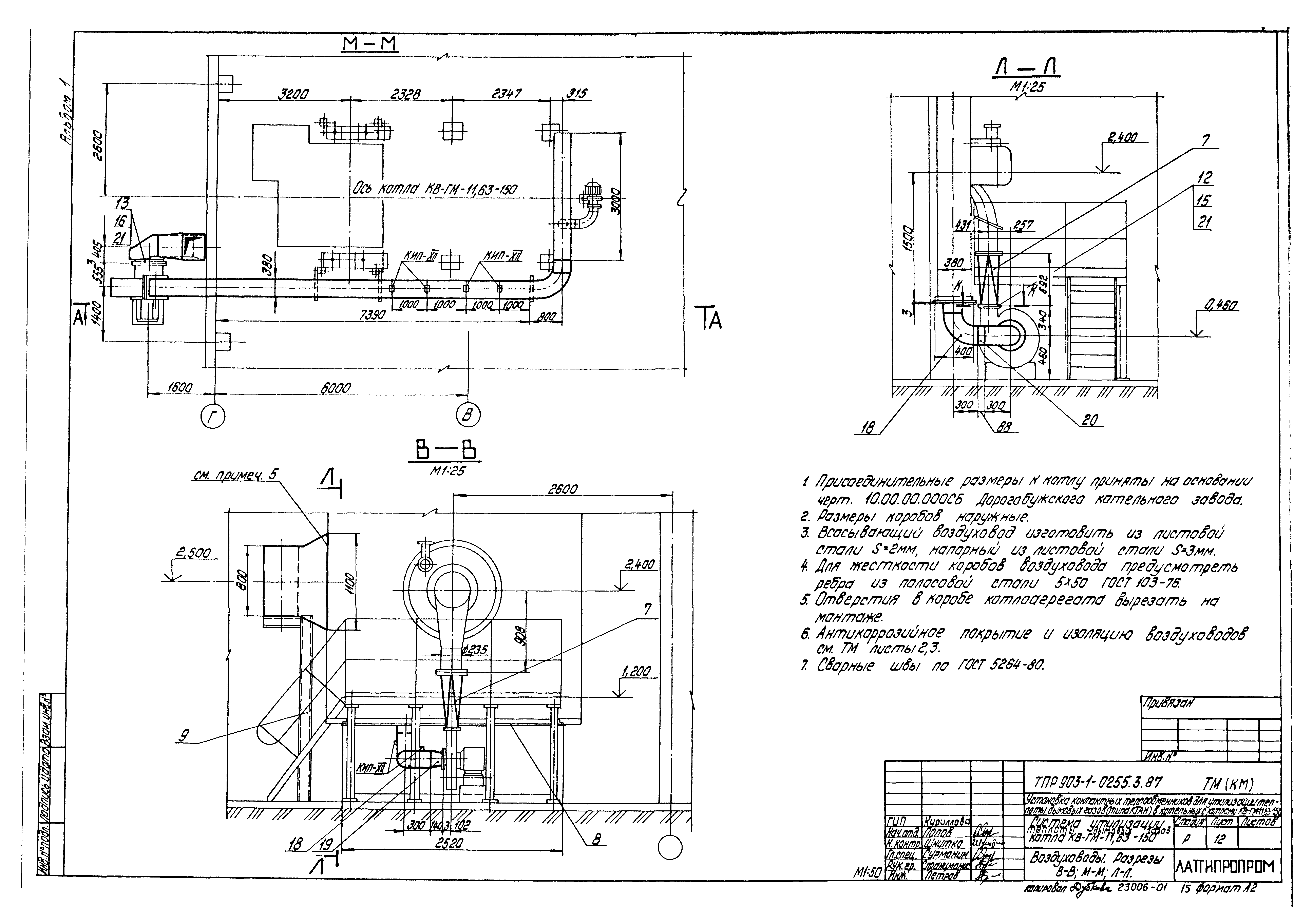
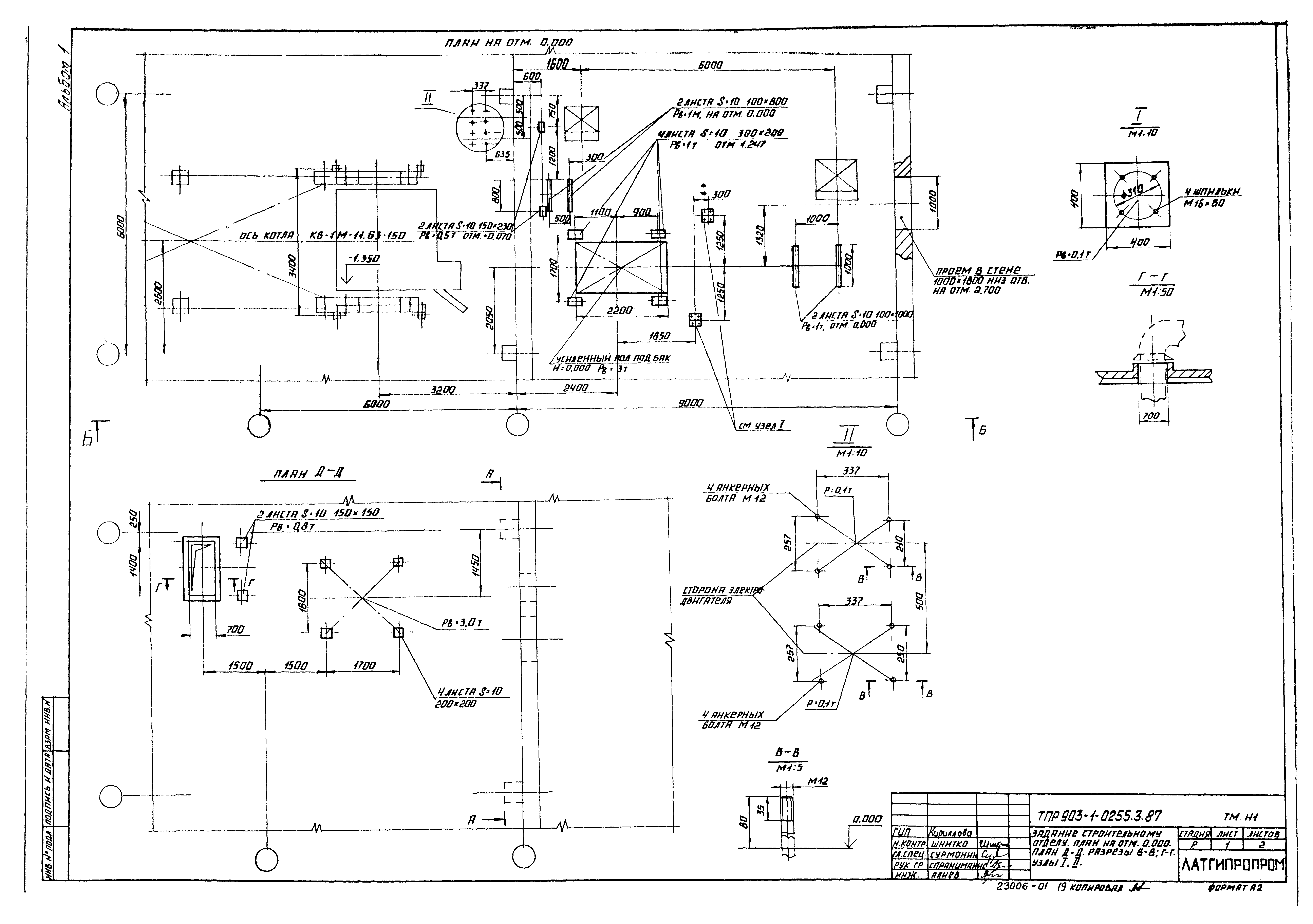
| Оглавление: | Тепломеханическая часть Общие данные Тепловая схема подключения утилизационного оборудования Компоновка оборудования. План Компоновка оборудования. Разрез А-А Газоходы. План. Разрезы Д-Д, Е-Е, Ж-Ж, И-И, М-М Газоходы. Разрезы А-А, Б-Б, В-В, К-К Газоходы. Спецификация Воздуховоды. Разрезы А-А, Е-Е, Д-Д, К-К, Н-Н, П-П. Узел 1 Воздуховоды. Разрезы В-В, М-М, Л-Л Воздуховоды. Разрезы Б-Б, Г-Г. План Р-Р Трубопроводы. План Трубопроводы. Разрезы А-А, Б-Б Задание строительному отделу. План на отм. 0.000. План Д-Д. Разрезы В-В, Г-Г. Узлы I, II Клапан поплавковый Ду50. Общий вид. Вид А. Разрез Б-Б Воздухоподогреватель КТМО-20 ПДВ. Общий вид Изоляция теплоутилизаторов, газовоздухопроводов и бакового устройства Спецификация оборудования Ведомость потребности в материалах Автоматизация Общие данные Схема автоматизации Схема соединений внешних проводок Спецификация оборудования |
| Разработан: | Латгипропром |
| Утверждён: | 22.01.1988 Госстрой Латвийской ССР (11) |
| Издан: | ЦИТП Госстроя СССР (CITP, Gosstroy (USSR) 1988 г. ) |



































