Скачать Типовой проект 407-3-627.91 Альбом 2. Электротехнические решения. Схемы и компоновочные чертежиДата актуализации: 01.01.2021
|
| Обозначение: | Типовой проект 407-3-627.91 |
| Обозначение англ: | 407-3-627.91 |
| Статус: | действует |
| Название рус.: | Альбом 2. Электротехнические решения. Схемы и компоновочные чертежи |
| Дата добавления в базу: | 01.10.2014 |
| Дата актуализации: | 01.01.2021 |
| Дата введения: | 13.01.1992 |
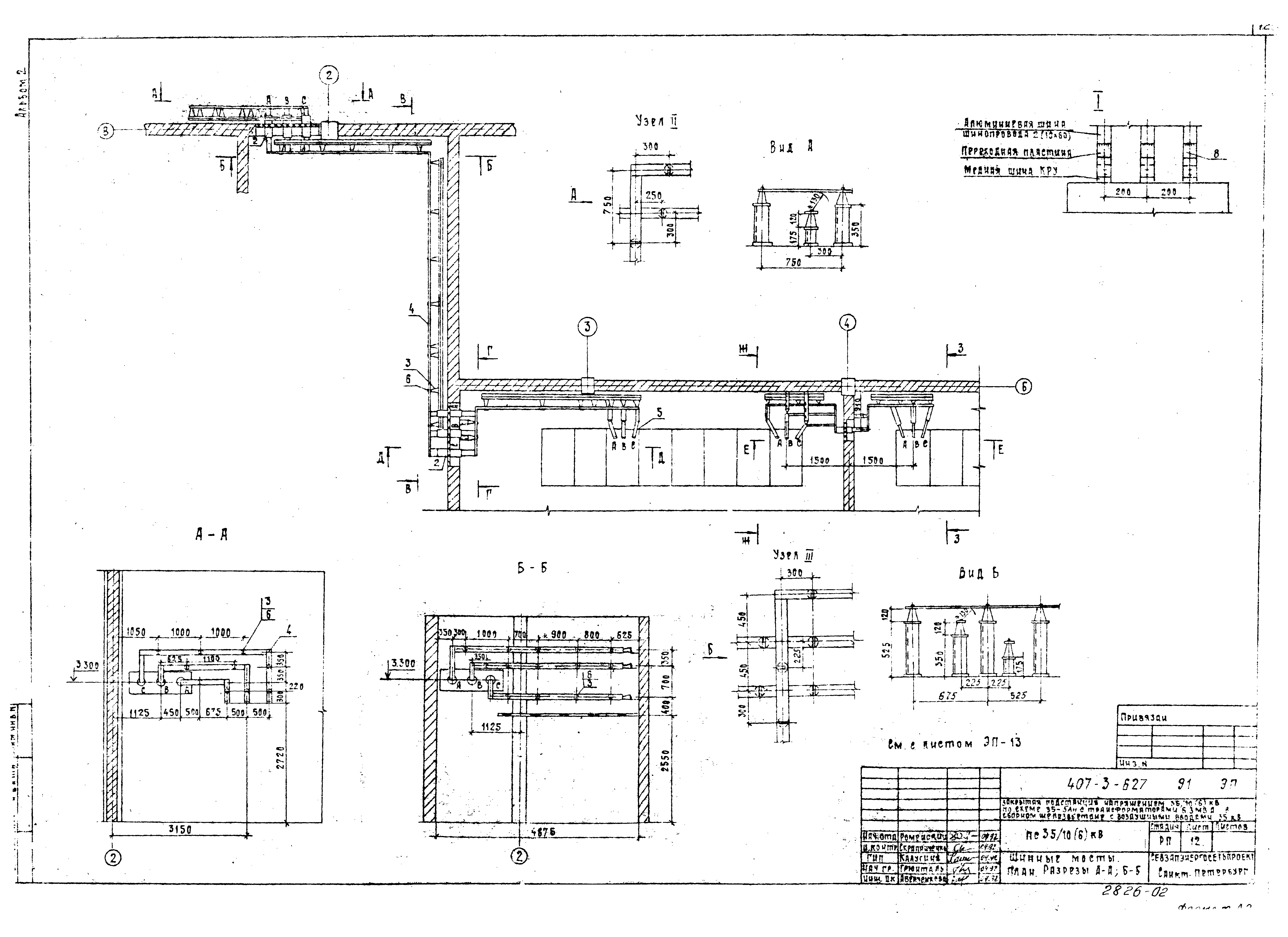
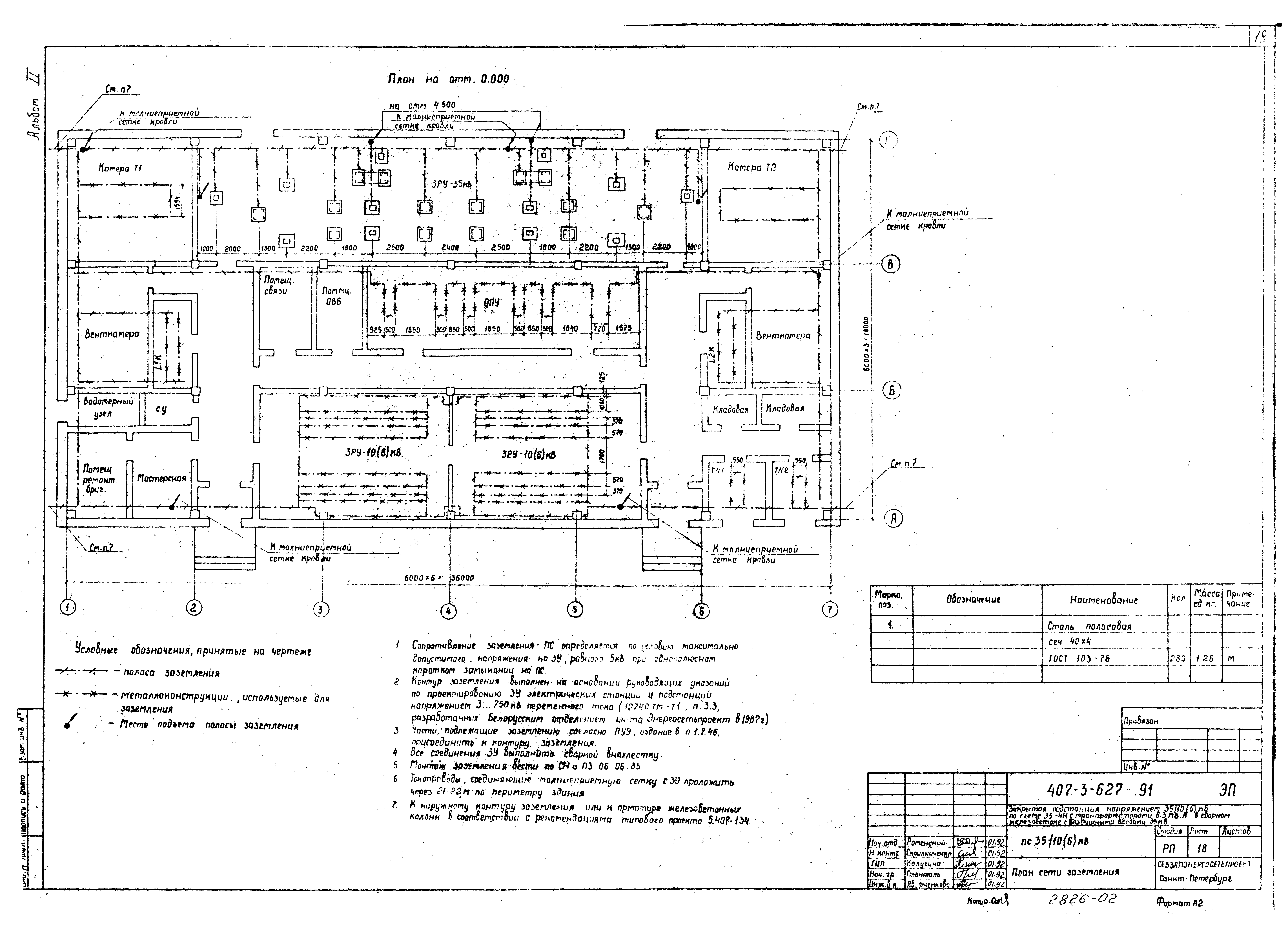
| Оглавление: | Общие данные Схема принципиальная электрическая Схема собственных нужд переменного тока План на отм. 0.000 Разрезы А-А, Б-Б, В-В Спецификация материалов и оборудования ЗРУ-35 кВ Установка трансформатора ТМН-6300/35. План, разрезы, спецификация Установка трансформатора собственных нужд типа ТМ250/ кВ Марки МКЗ-1, МКЗ-2, МКЗ-3 ЗРУ-10 кВ. План, разрезы, спецификация ОПУ. План, разрезы, спецификация Шинные мосты. План, разрезы А-А, Б-Б Шинные мосты. Разрезы В-В, Г-Г, Д-Д, Е-Е. Спецификация План сети освещения. Схемы сетей освещения и сварки Спецификация оборудования и материалов к листу ЭП-14. Таблица План сети отопления и вентиляции. Спецификация Расстановка кабельных конструкций. План на отм. 0.000. Разрезы. Спецификация План сети заземления Журнал силовых кабелей Спецификация оборудования |
| Разработан: | Севзапэнергосетьпроект |
| Утверждён: | 13.01.1992 Минэнерго СССР (USSR Minenergo 1) |
| Издан: | Севзапэнергосетьпроект (1992 г. ) |

























