Скачать Типовой проект 211-1-400.87 Альбом IV. Изделия заводского изготовленияДата актуализации: 01.01.2021
|
| Обозначение: | Типовой проект 211-1-400.87 |
| Обозначение англ: | 211-1-400.87 |
| Статус: | не определен законодательством |
| Название рус.: | Альбом IV. Изделия заводского изготовления |
| Дата добавления в базу: | 01.10.2014 |
| Дата актуализации: | 01.01.2021 |
| Дата введения: | 16.01.1987 |
| Дата окончания срока действия: | 30.06.2003 |
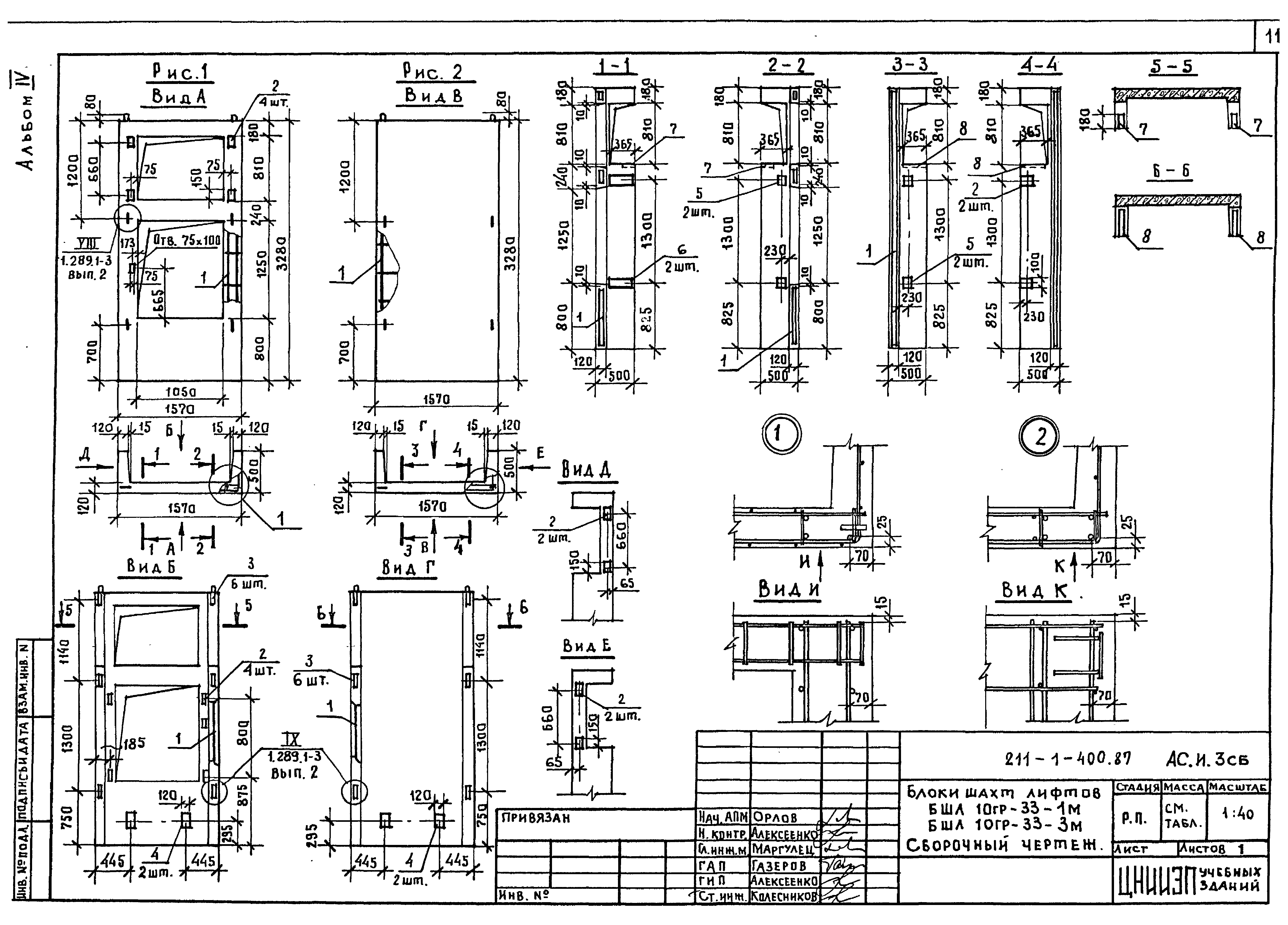
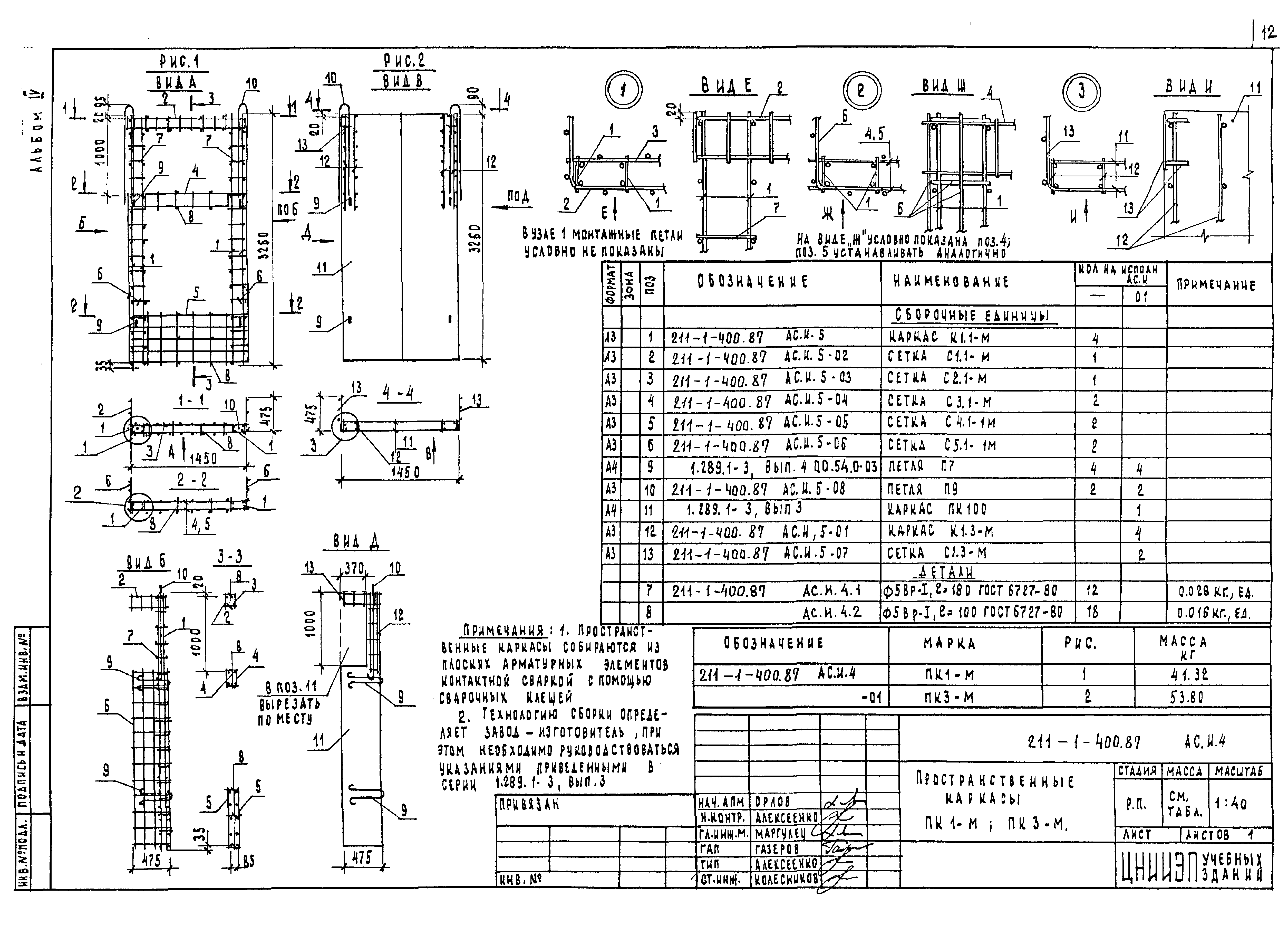
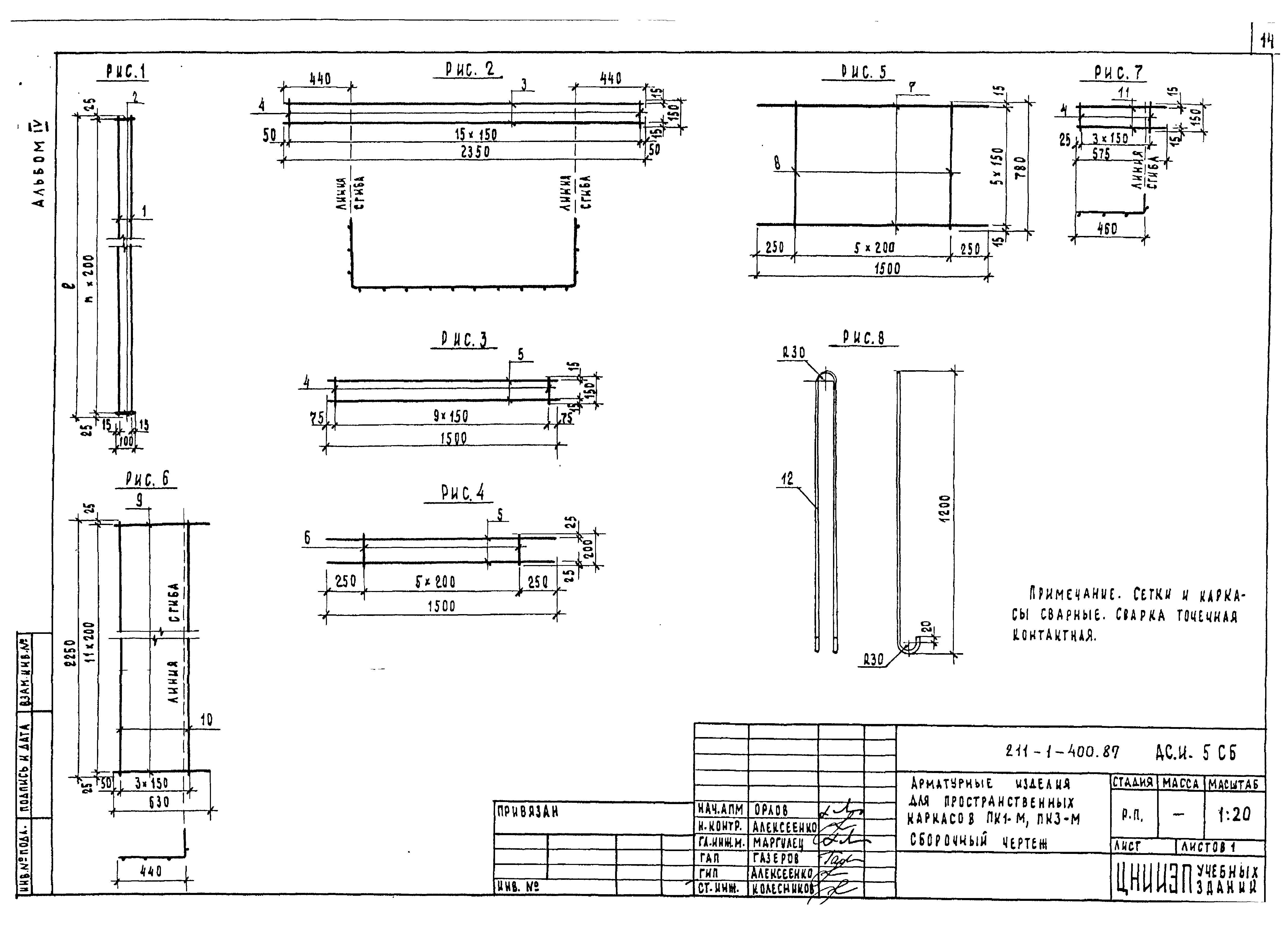
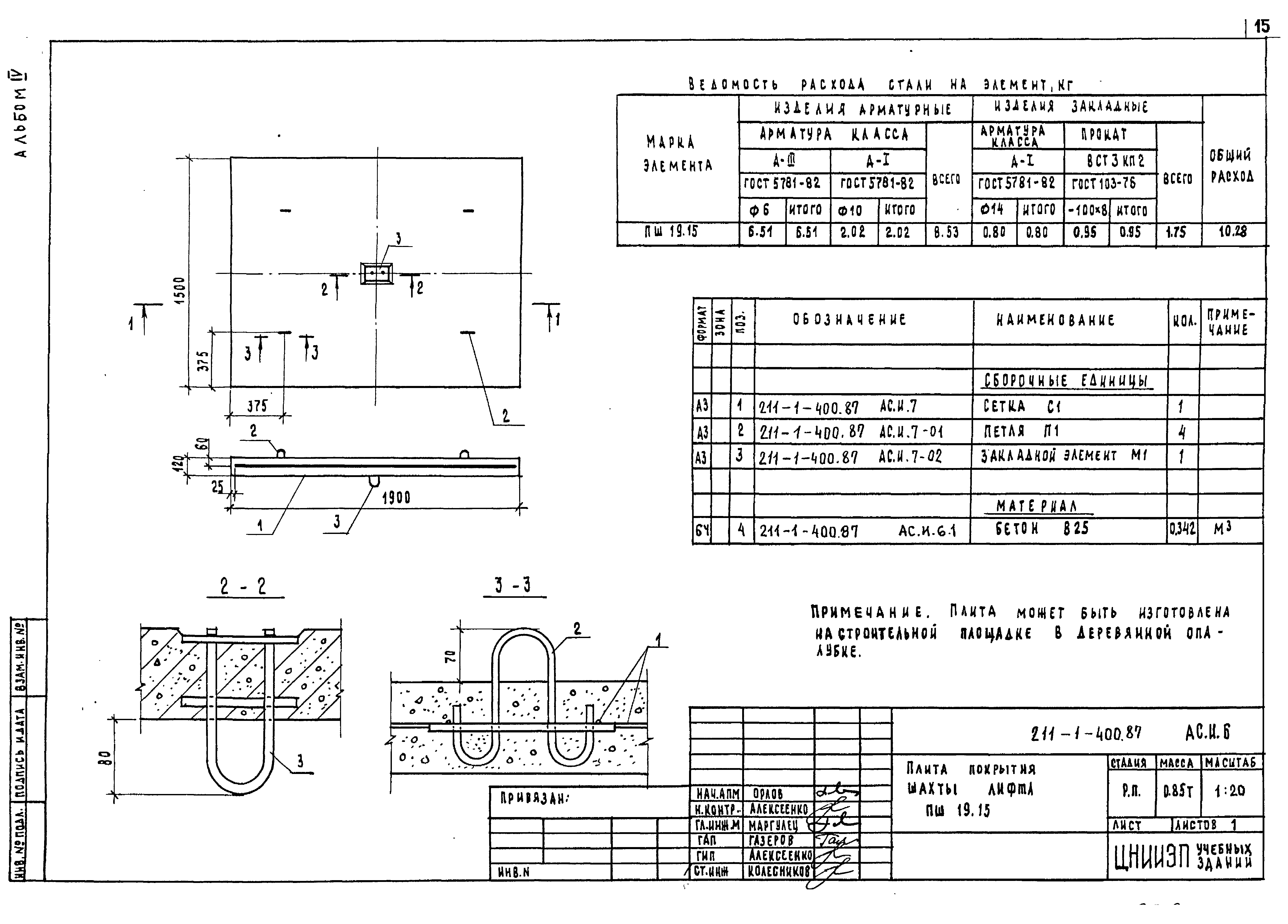
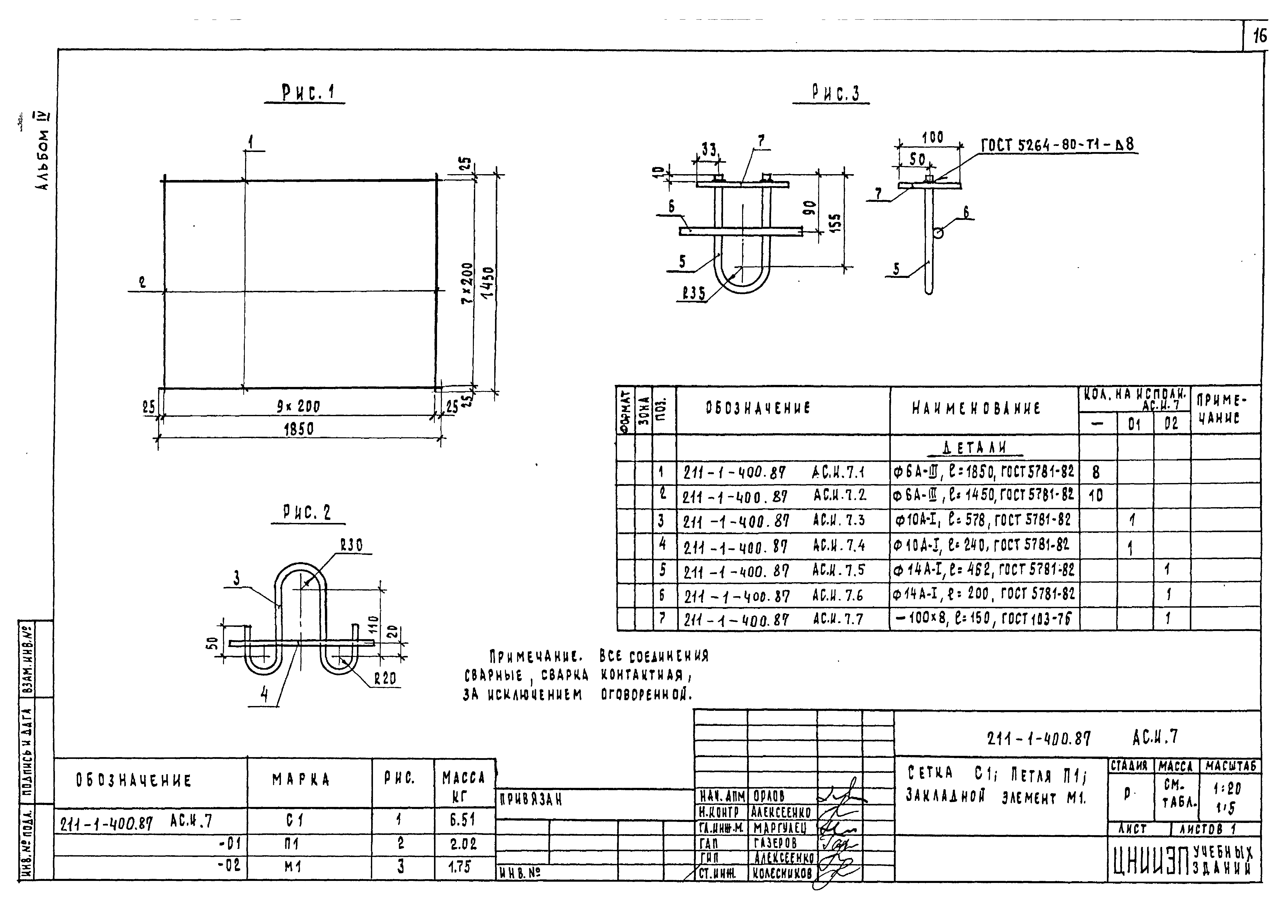
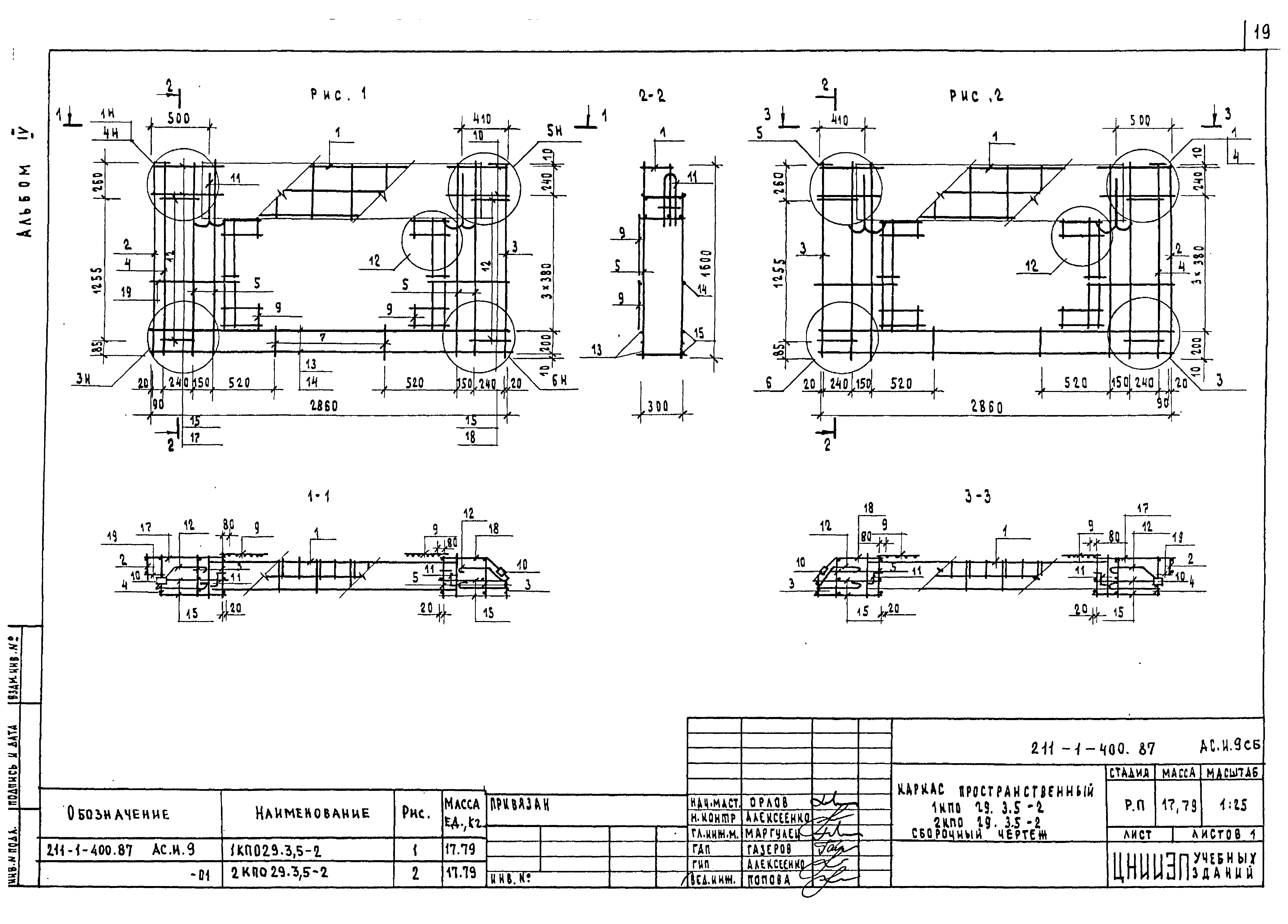
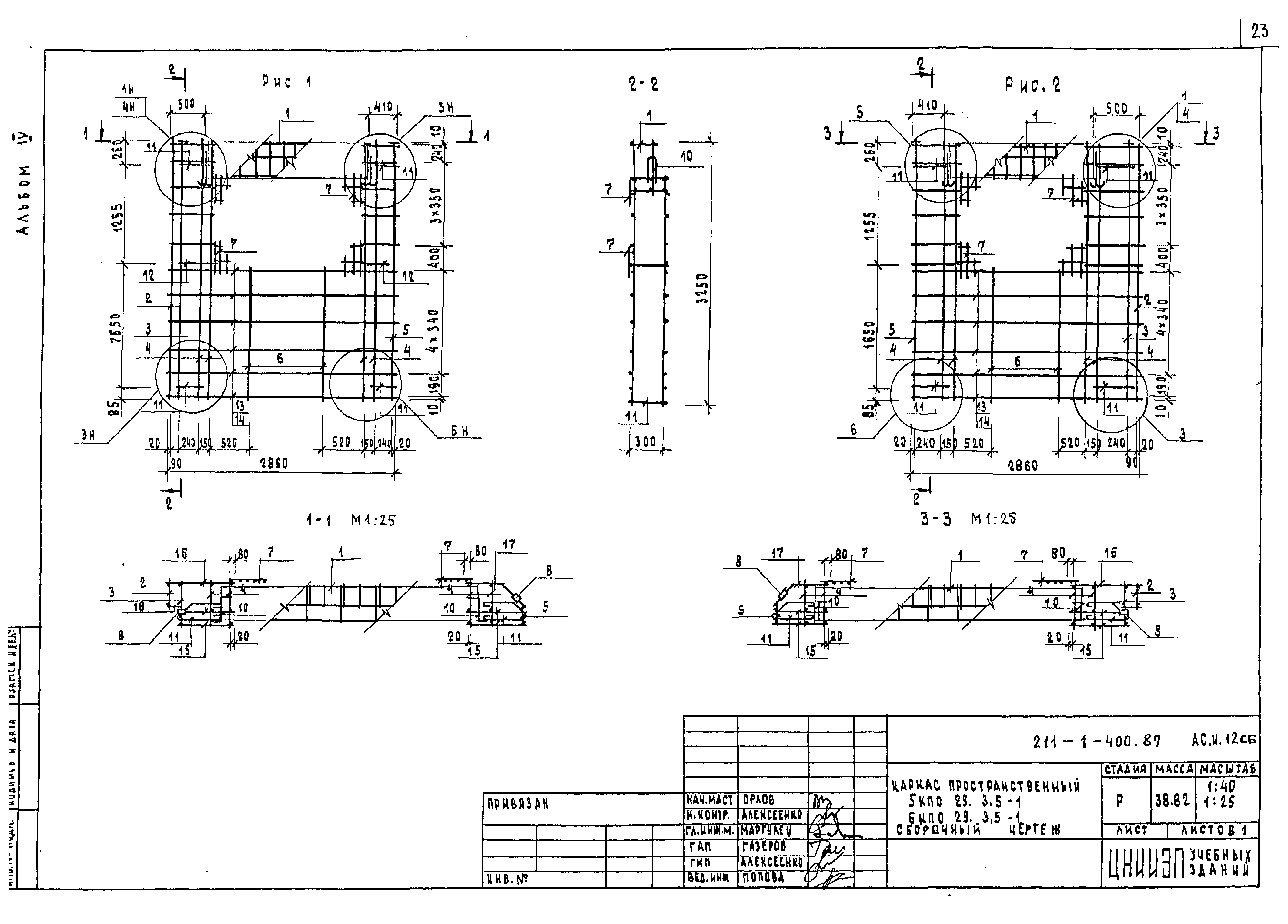
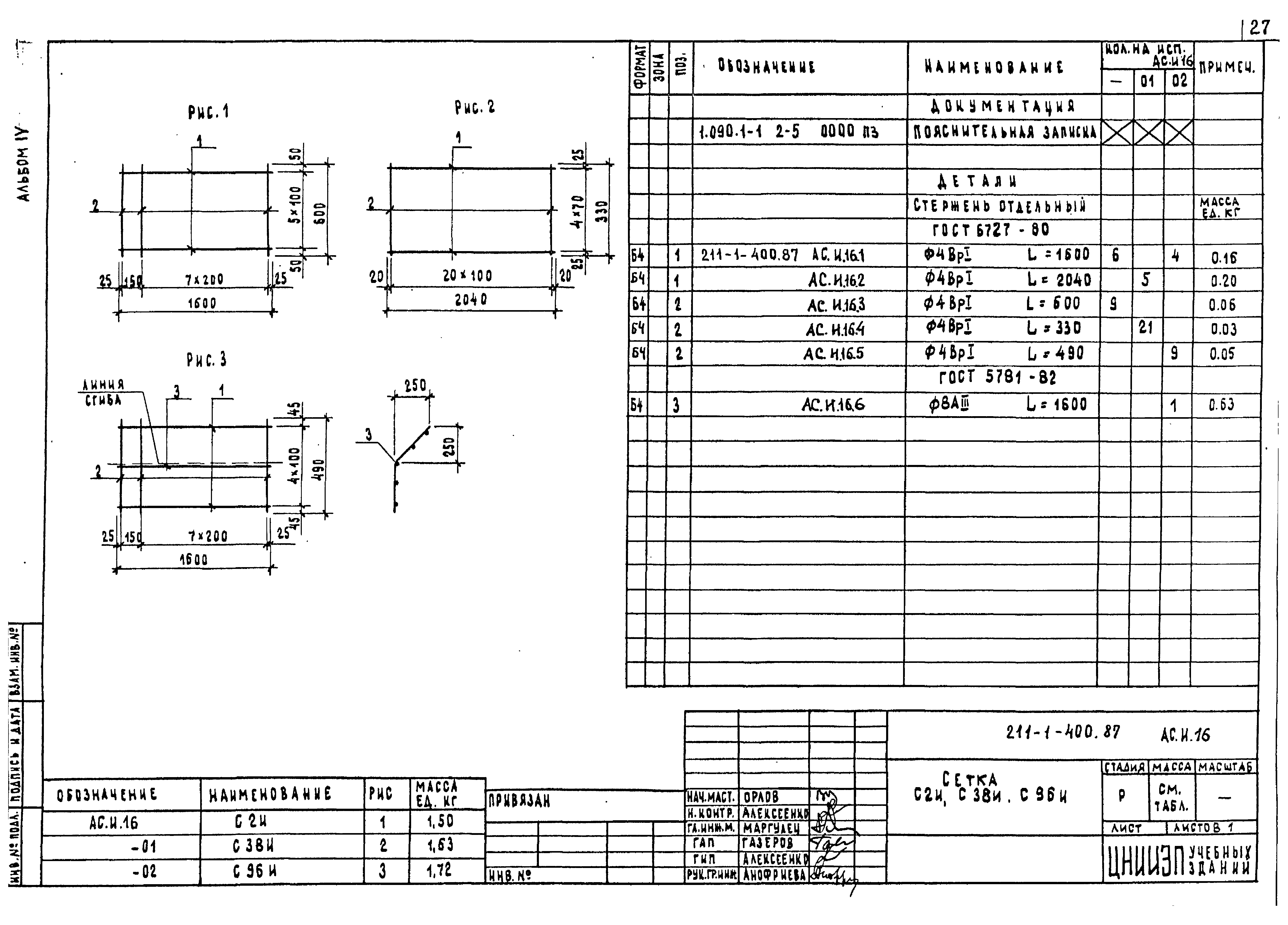
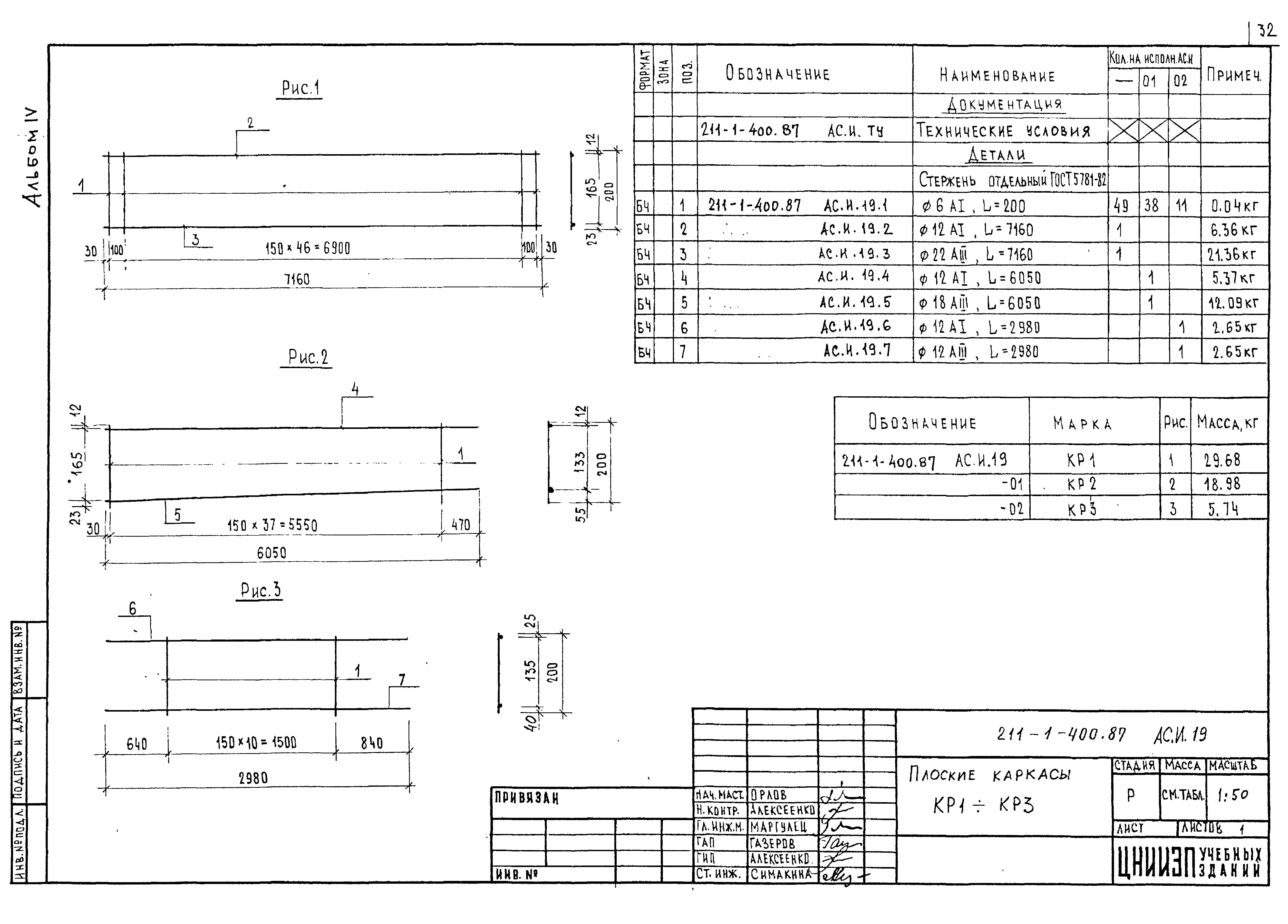
| Оглавление: | 211-1-400.87 АС.И.00 Содержание 211-1-400.87 АС.И.ТУ Технические условия 211-1-400.87 АС.И.1 Установка оконных блоков в наружных стеновых панелях (при t наружного воздуха минус 20 градусов Цельсия 211-1-400.87 АС.И.2 Установка оконных блоков в наружных стеновых панелях (при t наружного воздуха минус 30, минус 40 градусов Цельсия 211-1-400.87 АС.И.3 Блоки шахт лифтов БШЛ 10гр-33-1м; БШЛ 10гр-33-3м 211-1-400.87 АС.И.3СБ Блоки шахт лифтов БШЛ 10гр-33-1м; БШЛ 10гр-33-3м. Сборочный чертеж 211-1-400.87 АС.И.4 Пространственные каркасы ПК1-м; ПК3-м 211-1-400.87 АС.И.5 Арматурные изделия для пространственных каркасов ПК1-м, ПК3-м 211-1-400.87 АС.И.5СБ Арматурные изделия для пространственных каркасов ПК1-м, ПК3-м. Сборочный чертеж 211-1-400.87 АС.И.6 Плита покрытия шахты лифта ПШ19-15 211-1-400.87 АС.И.7 Сетка С1, петля П1, закладной элемент М1 211-1-400.87 АС.И.8 Панель стеновая 1ПС029.16.3,5-п-2; 2ПС029.16.3,5-п-2 211-1-400.87 АС.И.9 Каркас пространственный 1КП029.3,5-2; 2КП029.3,5-2 211-1-400.87 АС.И.9СБ Каркас пространственный 1КП029.3,5-2; 2КП029.3,5-2. Сборочный чертеж 211-1-400.87 АС.И.10 Каркас плоский КР25-и 211-1-400.87 АС.И.11 Панель стеновая 5ПС029.33.3,5-п-1; 6ПС029.33.3,5-п-1 211-1-400.87 АС.И.12 Каркас пространственный 5КП029.3,5-1; 6КП029.3,5-1 211-1-400.87 АС.И.12СБ Каркас пространственный 5КП029.3,5-1; 6КП029.3,5-1. Сборочный чертеж 211-1-400.87 АС.И.14 Панель стеновая 1ПС029.16.3,5-пт-2; 2ПС029.16.3,5-пт-2 211-1-400.87 АС.И.14СБ Панель стеновая 1ПС029.16.3,5-пт-2; 2ПС029.16.3,5-пт-2. Сборочный чертеж 211-1-400.87 АС.И.15 Каркас плоский КР9и, КР28и 211-1-400.87 АС.И.16 Сетка С2и, С38и, С96и 211-1-400.87 АС.И.17 Панель стеновая 5ПС029.33.3,5-пт-1; 6ПС029.33.3,5-пт-1 211-1-400.87 АС.И.17СБ Панель стеновая 5ПС029.33.3,5-пт-1; 6ПС029.33.3,5-пт-1. Сборочный чертеж 211-1-400.87 АС.И.18 Плиты перекрытий ПР72.15-6АтVт-4; ПР72.15-6АтVт-5; ПР60.15-6АтVт-4; ПР72.15-6АтVт-6 211-1-400.87 АС.И.19 Каркасы плоские КР1 - КР3 211-1-400.87 АС.И.20 Экран санузла ИЭС-1 211-1-400.87 АС.И.21 Дверь служебная ИДС21-15гу 211-1-400.87 АС.И.21СБ Дверь служебная ИДС21-15гу. Сборочный чертеж 211-1-400.87 АС.И.22 Чертеж-заказ на изготовление лифта 211-1-400.87 АС.И.23 Плиты перекрытий ПР72.15-6АтVт-7; ПР72.15-6АтVт-8; ПР72.15-6АтVт-9 |
| Разработан: | ЦНИИЭП учебных зданий |
| Утверждён: | 16.01.1987 Госгражданстрой (Gosgrazhdanstroy 9) |





































