Скачать Типовые проектные решения 704-3-056.93 Альбом II. Узлы (из ТПР 704-3-055.93)Дата актуализации: 01.01.2021
|
| Обозначение: | Типовые проектные решения 704-3-056.93 |
| Обозначение англ: | 704-3-056.93 |
| Статус: | справочные материалы, мп, тпр |
| Название рус.: | Альбом II. Узлы (из ТПР 704-3-055.93) |
| Дата добавления в базу: | 01.10.2014 |
| Дата актуализации: | 01.01.2021 |
| Дата введения: | 28.12.1993 |
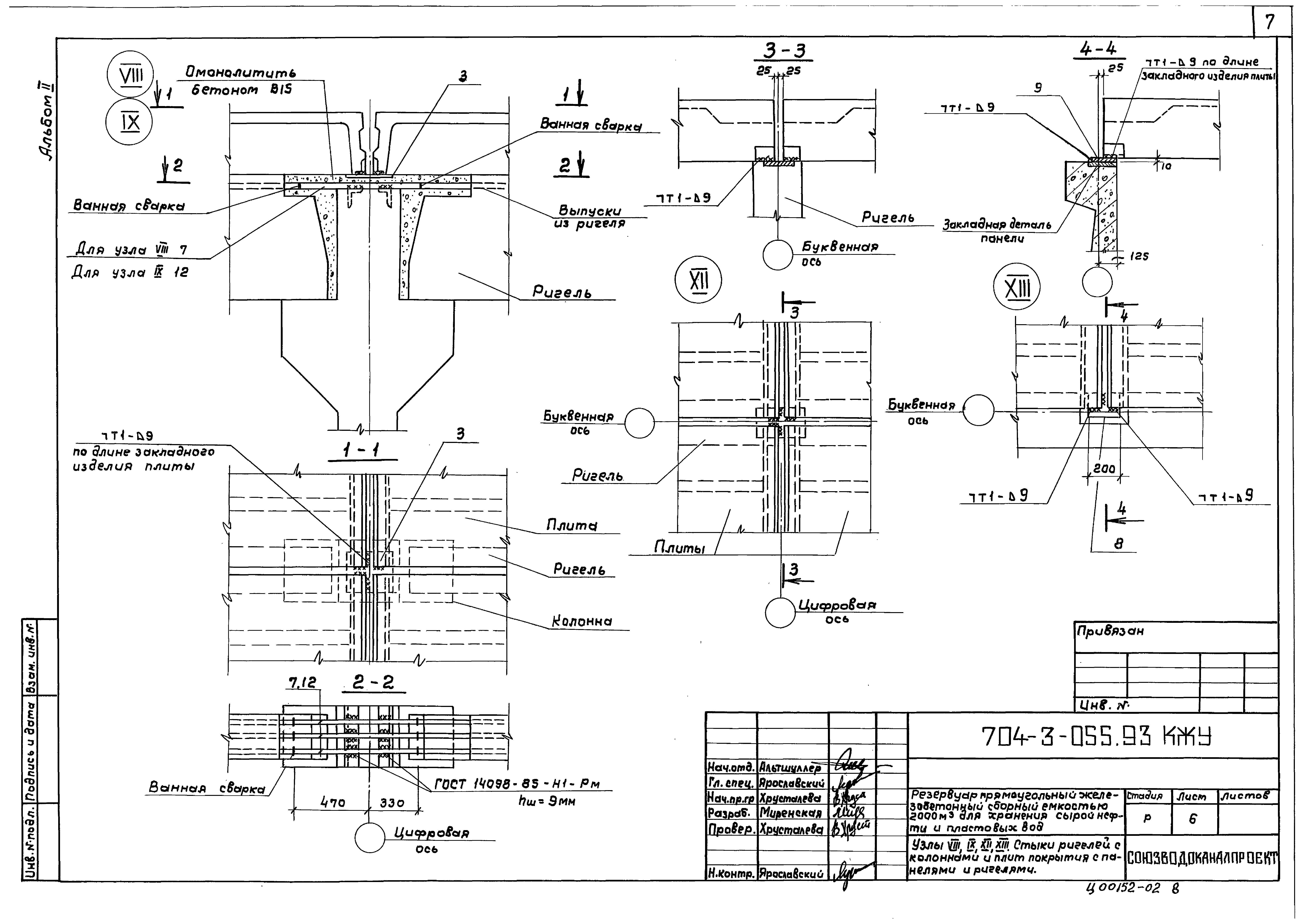
| Оглавление: | Общие данные Узлы I, II, III. Стыки элементов покрытия. Деталь заделки зуба Узлы IV, V, VI. Стыки заделки колонн и стеновых панелей Спецификация к узлам VII - XIV. Узел XVI Узлы VII, X, XI. Стыки ригелей с колоннами и плит покрытия с панелями Узлы VIII, IX, XII, XIII. Стыки ригелей с колоннами и плит покрытия с панелями Узел XIV. Камера люка-лаза. Сборочный чертеж Узел XV. Установка наружной стремянки и стремянки люка-лаза Деталь установки технологических патрубков и прохода технологических труб через стены Монолитные участки УМ1, УМ1н, УМ1А. Опалубочный чертеж Монолитные участки УМ1, УМ1н, УМ1А. Арматурный чертеж Монолитные участки УМ1, УМ1н, УМ1А. Узлы, детали. Ведомость расхода стали |
| Разработан: | ГПИ Союзводоканалпроект |
| Утверждён: | 16.12.1993 Госстрой России (Russian Federation Gosstroy 9-3-3/288) |













