Скачать Типовой проект 708-76.93 Альбом 3. Электротехническая часть. Силовое электрооборудование. Силовое электрооборудование технологической аспирации. Электроосвещение. Связь и сигнализацияДата актуализации: 01.01.2021
|
| Обозначение: | Типовой проект 708-76.93 |
| Обозначение англ: | 708-76.93 |
| Статус: | не определен законодательством |
| Название рус.: | Альбом 3. Электротехническая часть. Силовое электрооборудование. Силовое электрооборудование технологической аспирации. Электроосвещение. Связь и сигнализация |
| Дата добавления в базу: | 01.10.2014 |
| Дата актуализации: | 01.01.2021 |
| Дата введения: | 06.12.1993 |
| Дата окончания срока действия: | 30.06.2003 |
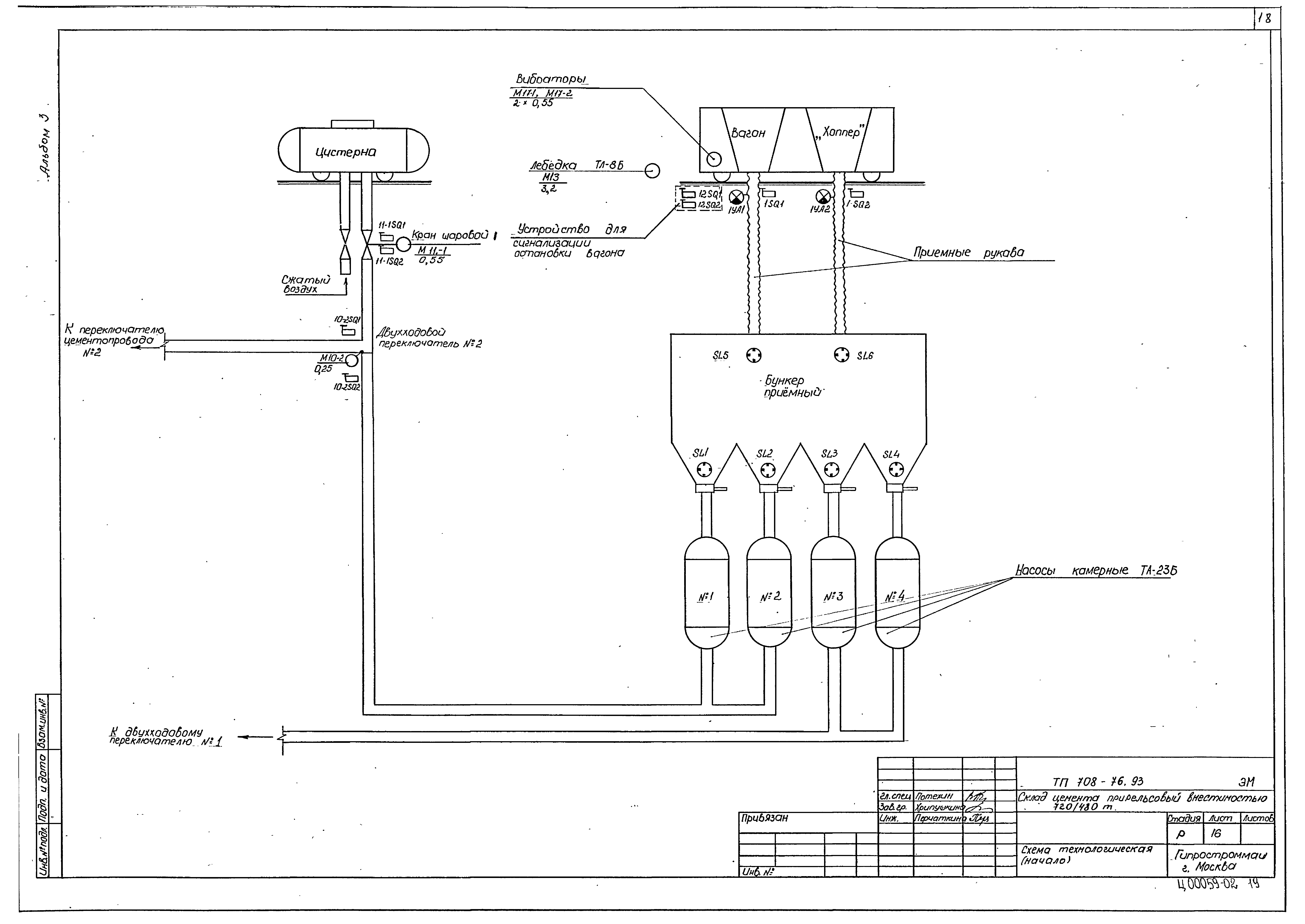
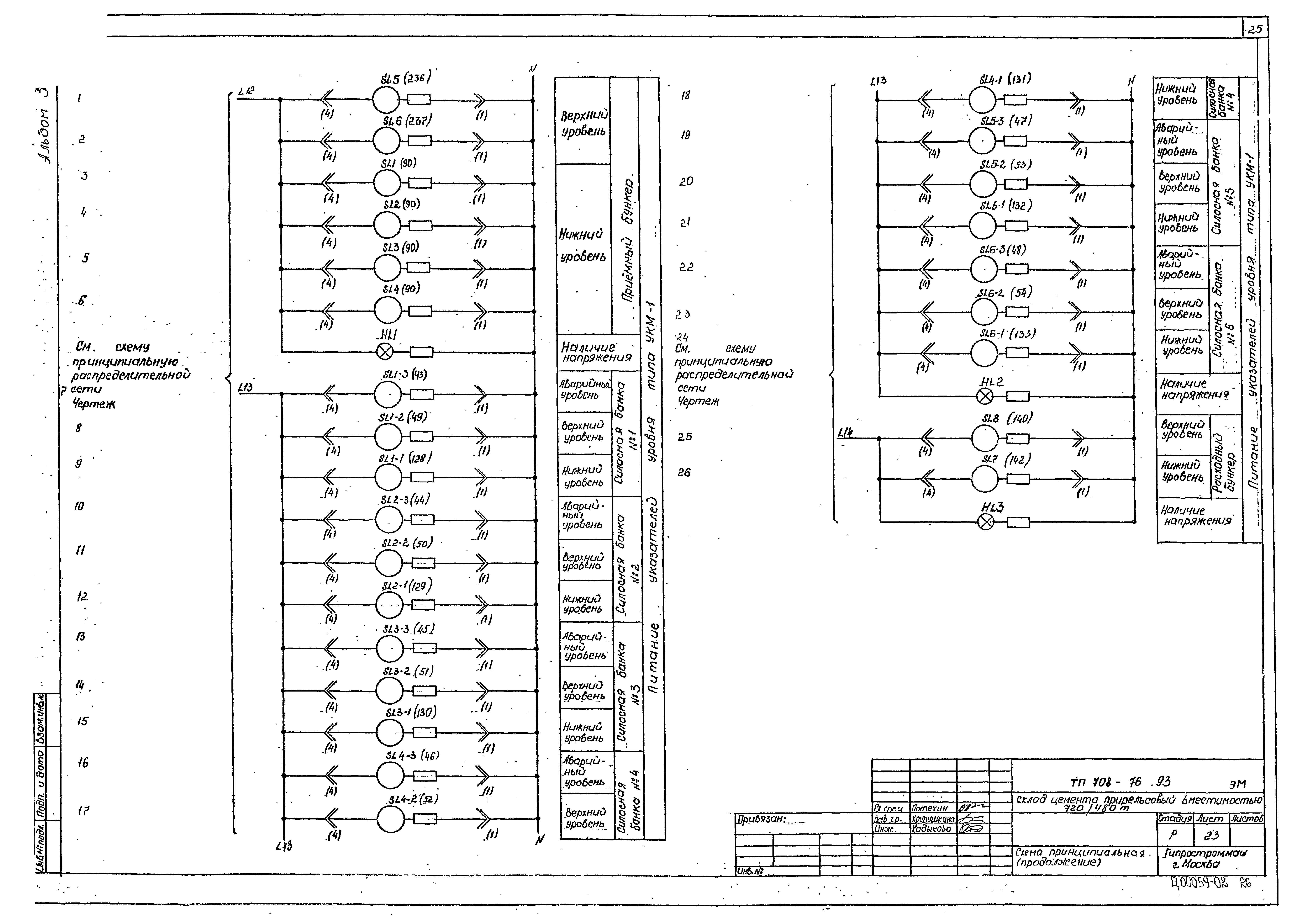
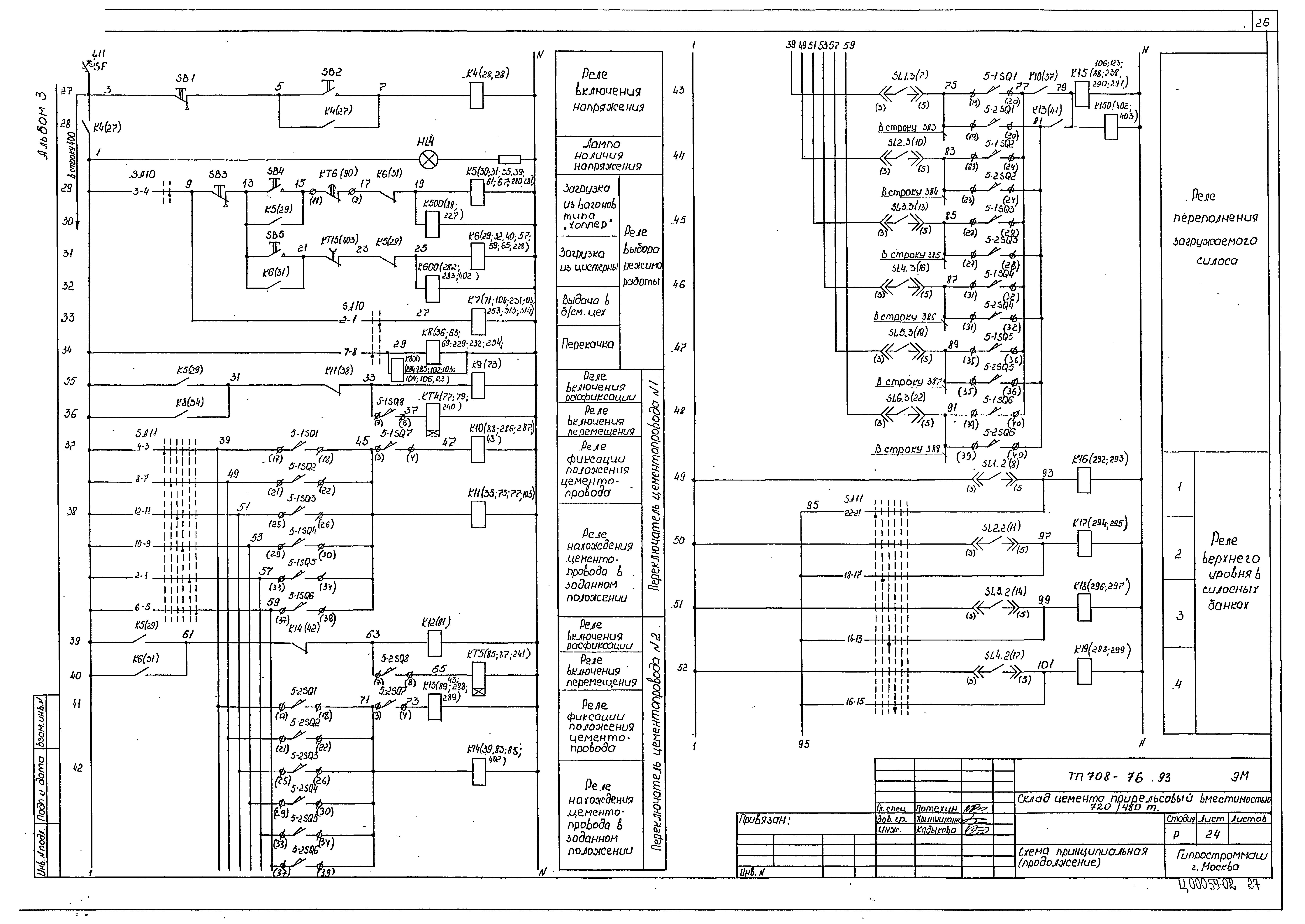
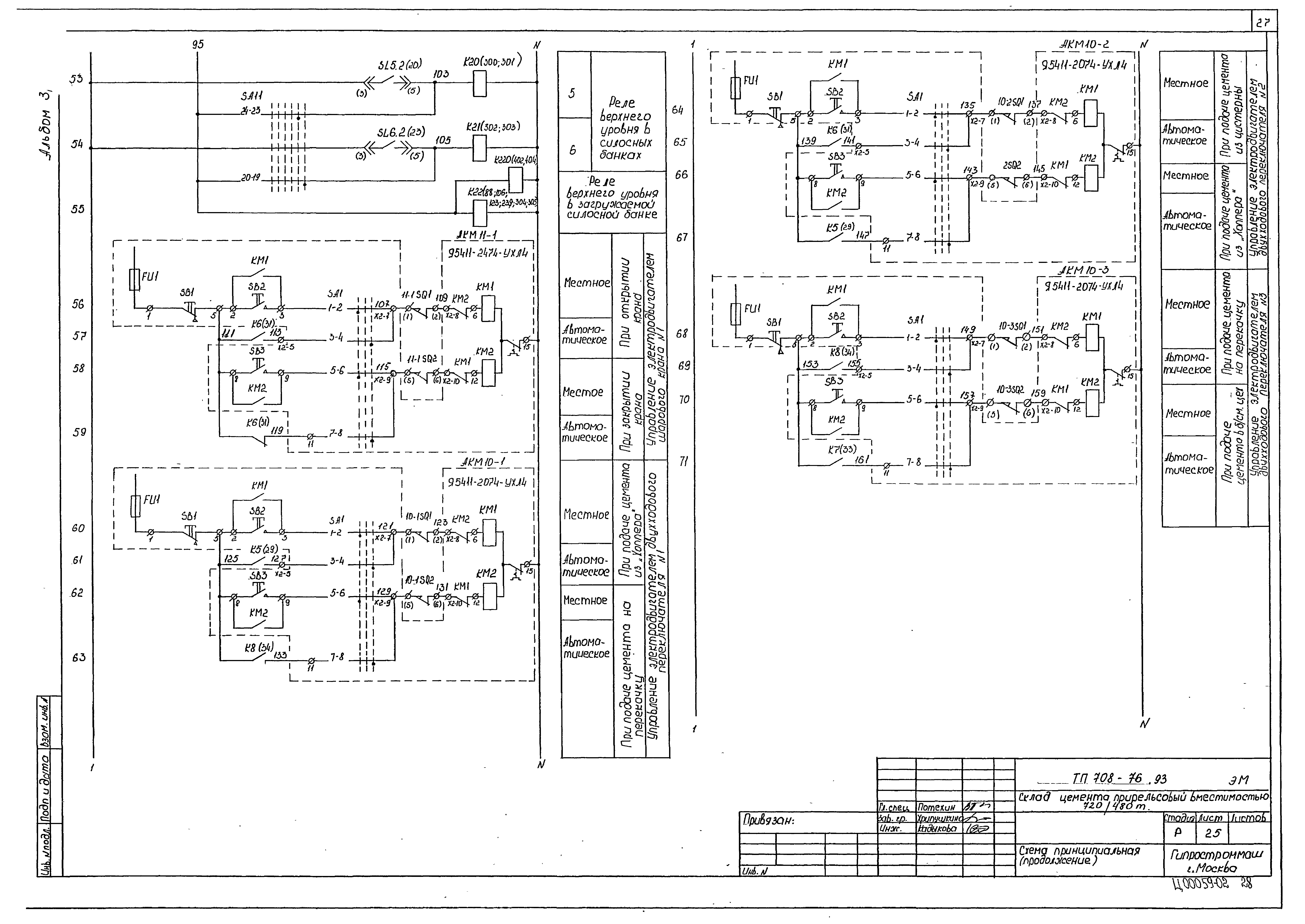
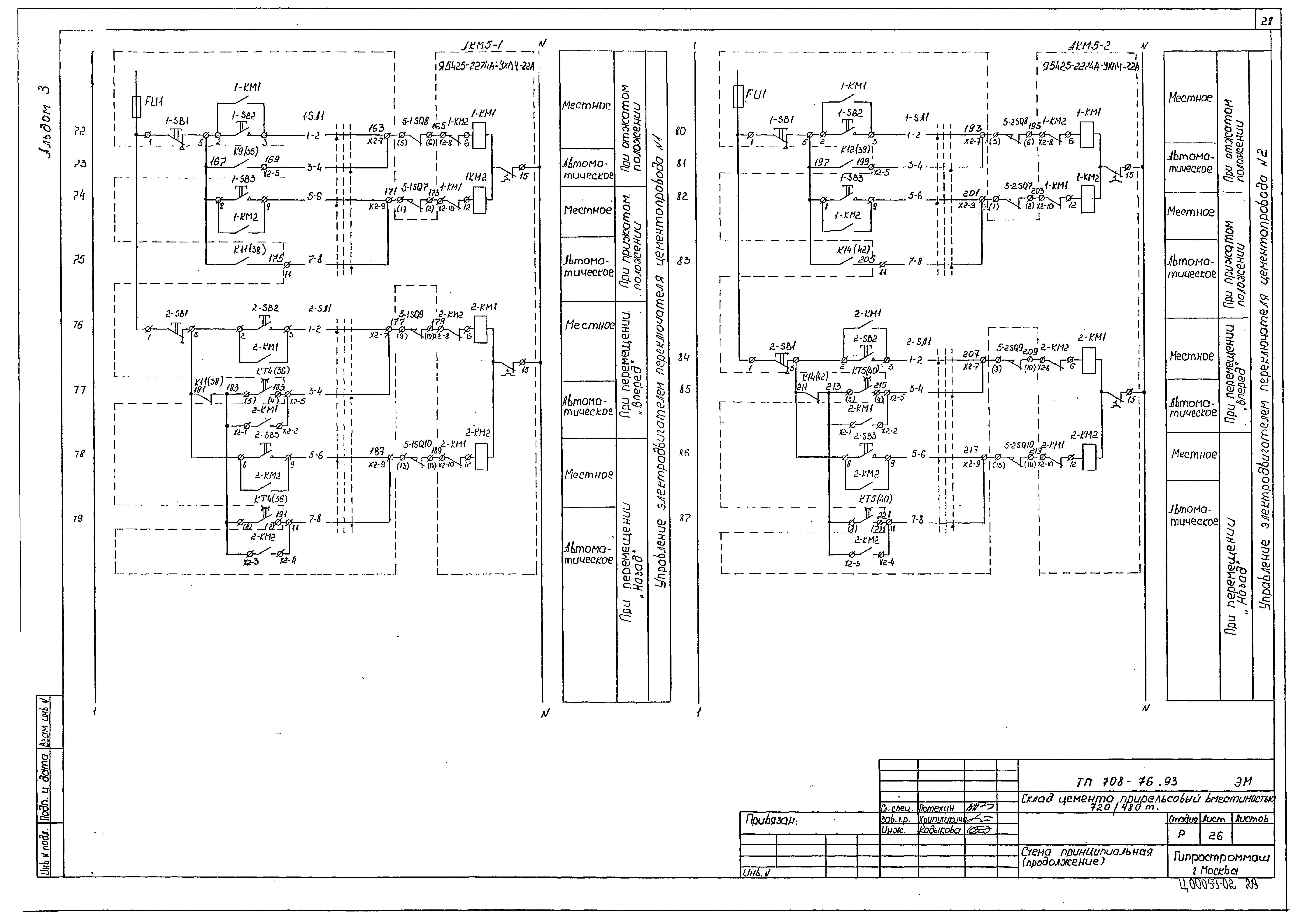
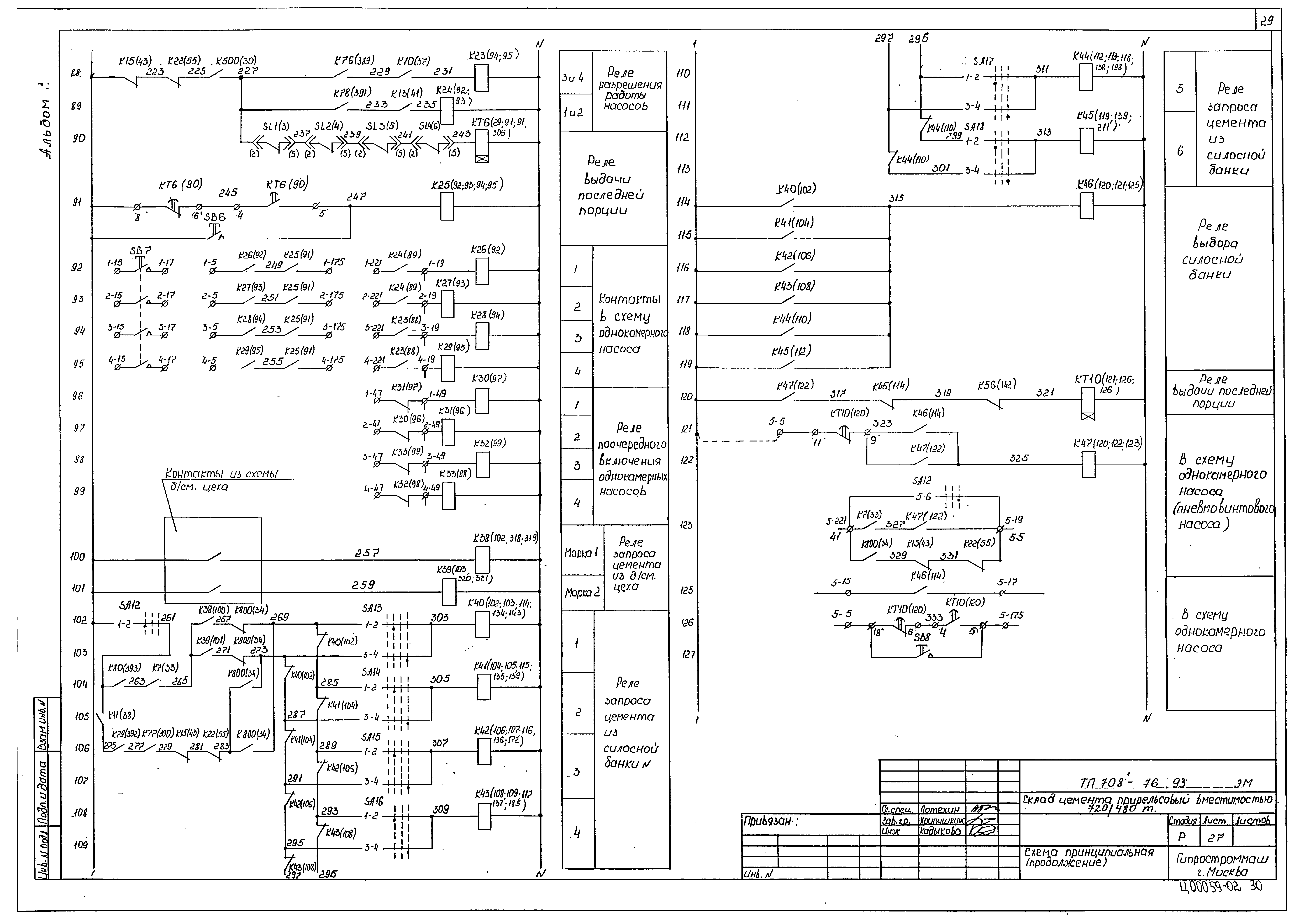
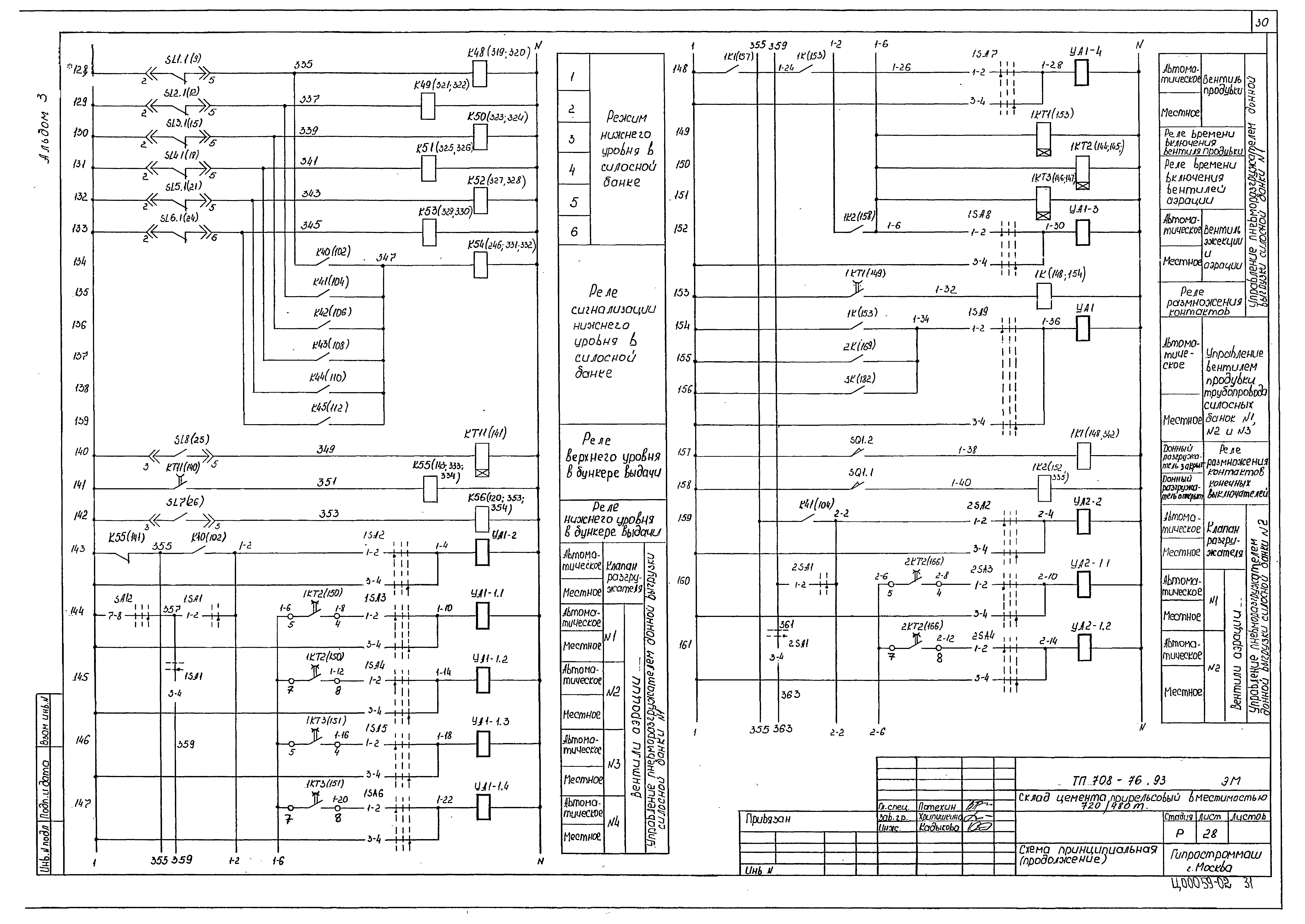
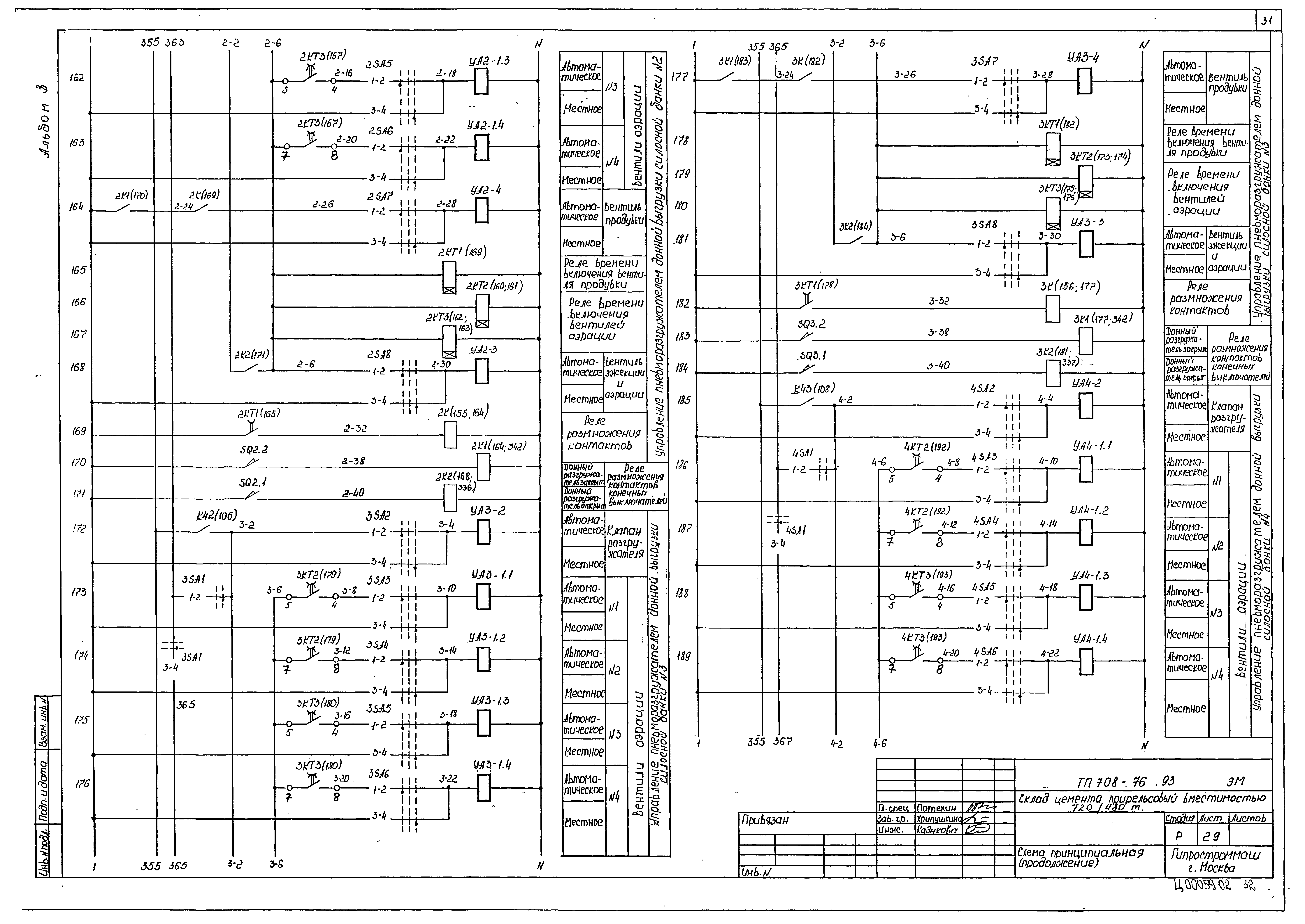
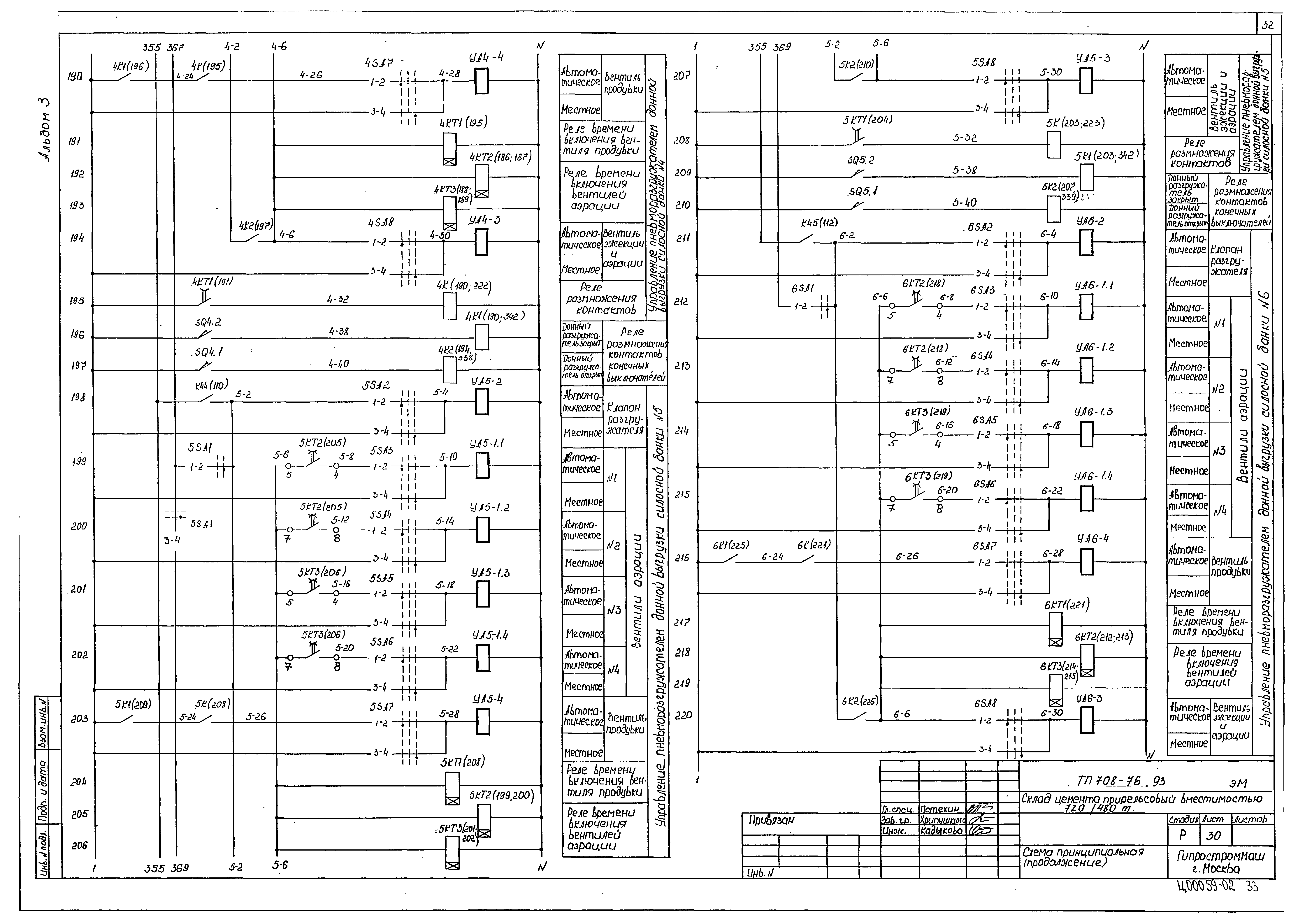
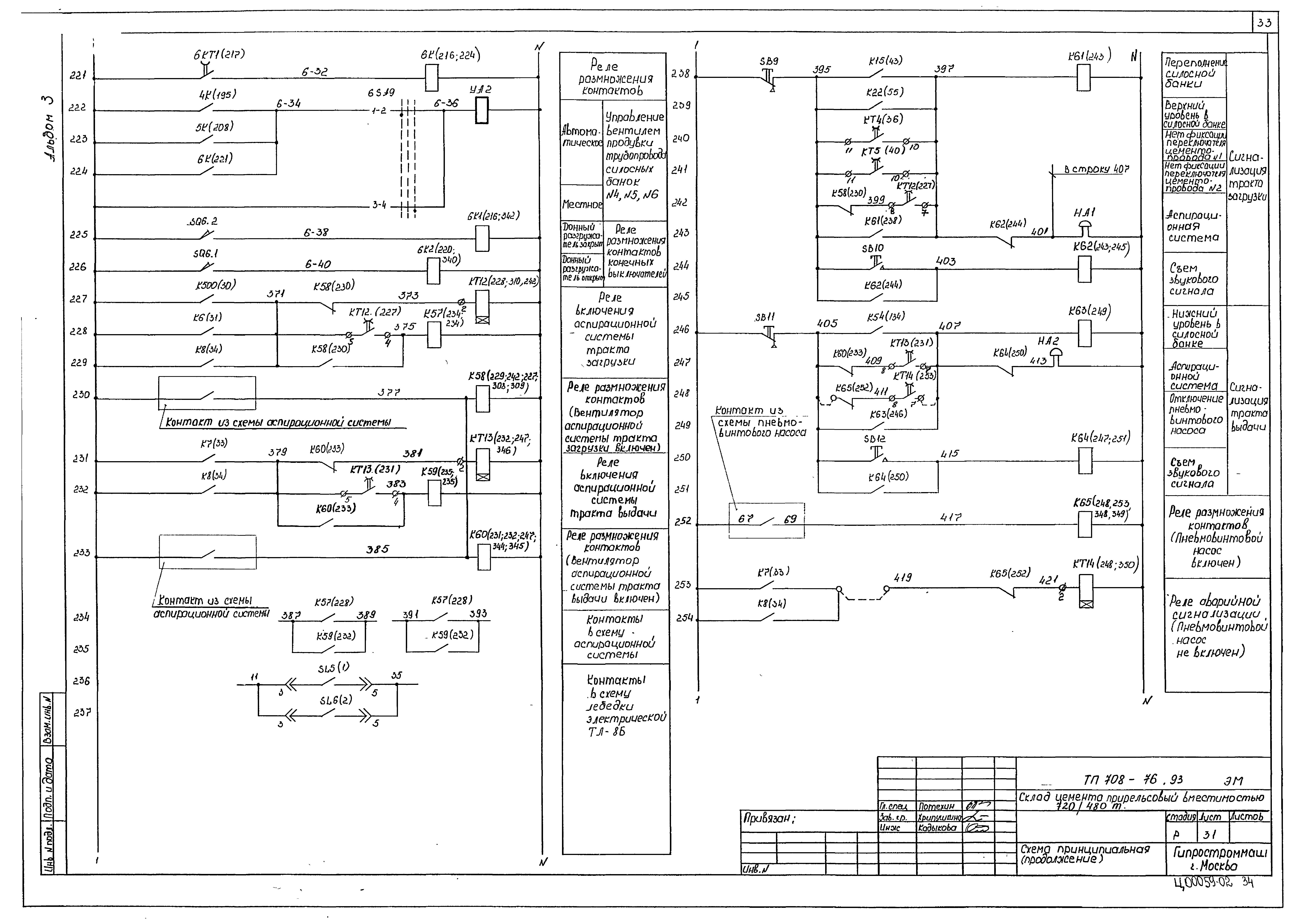
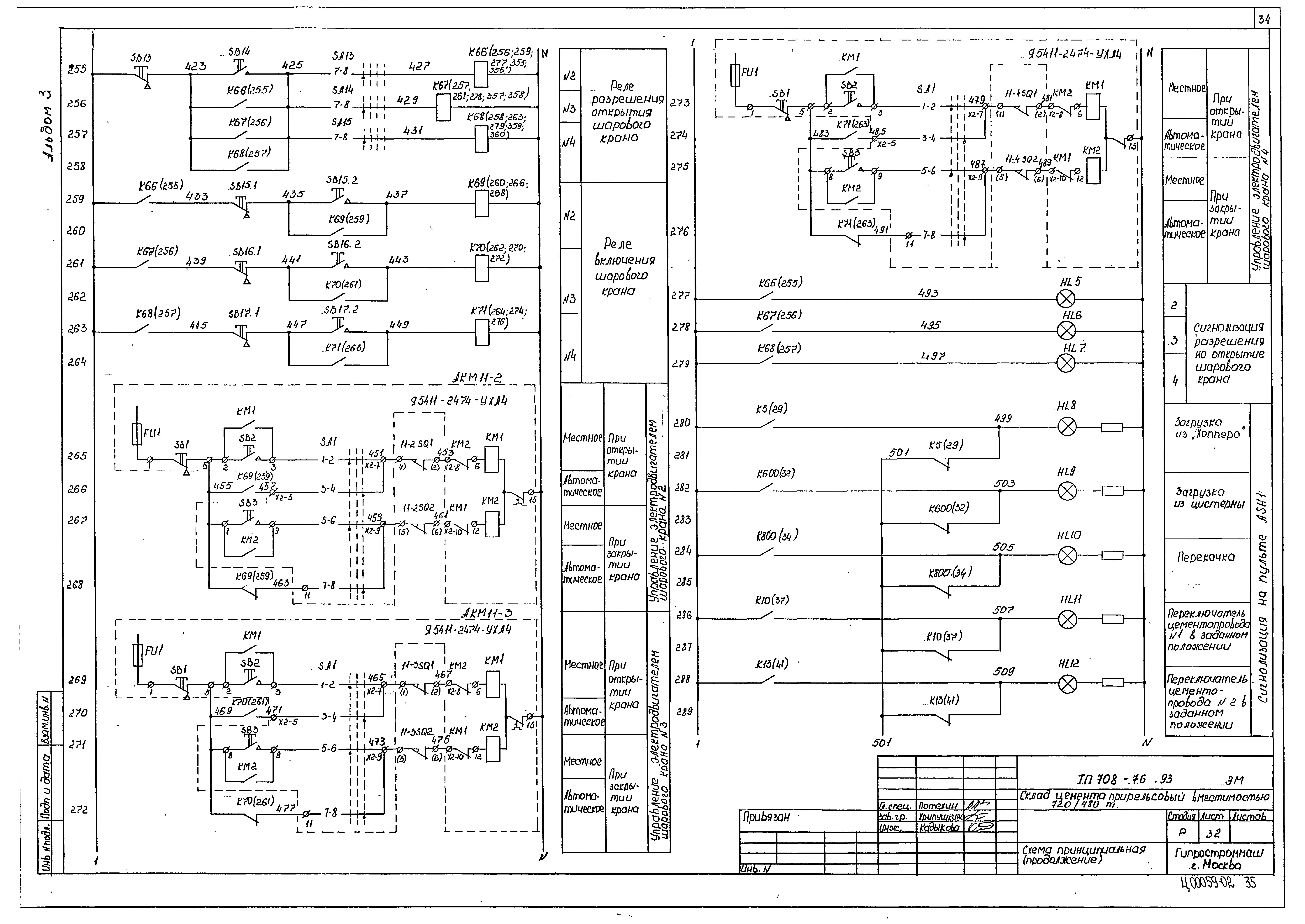
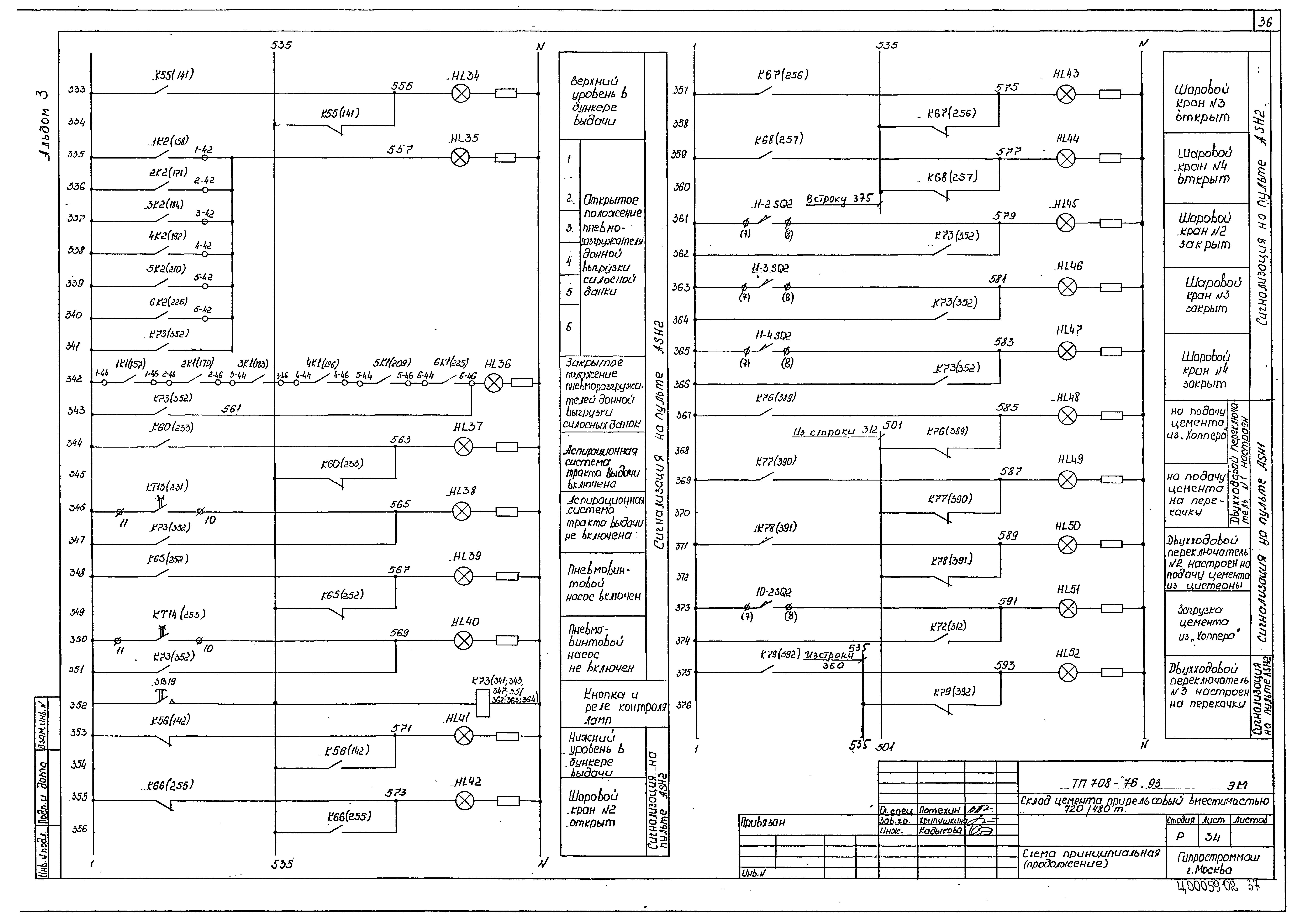
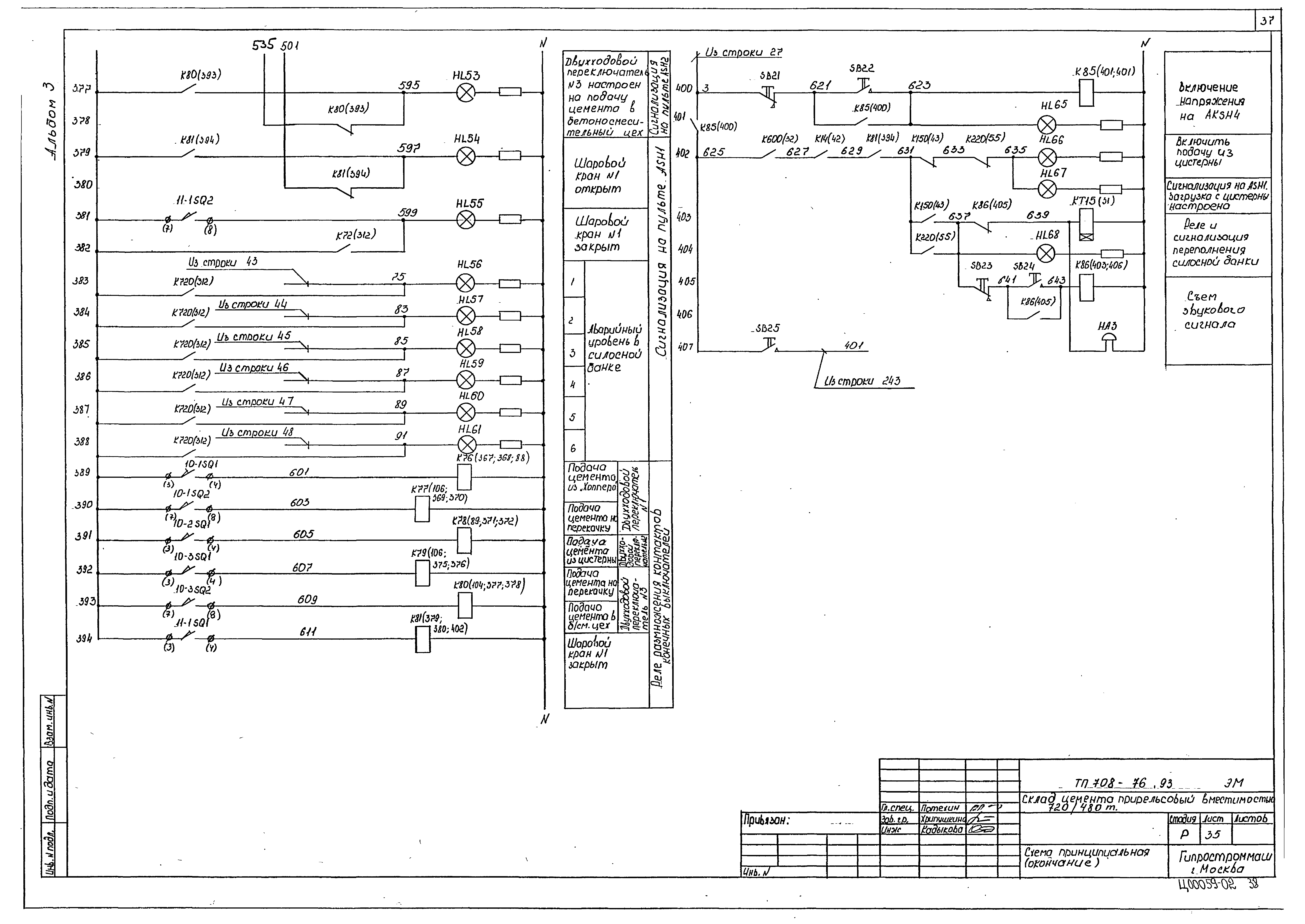
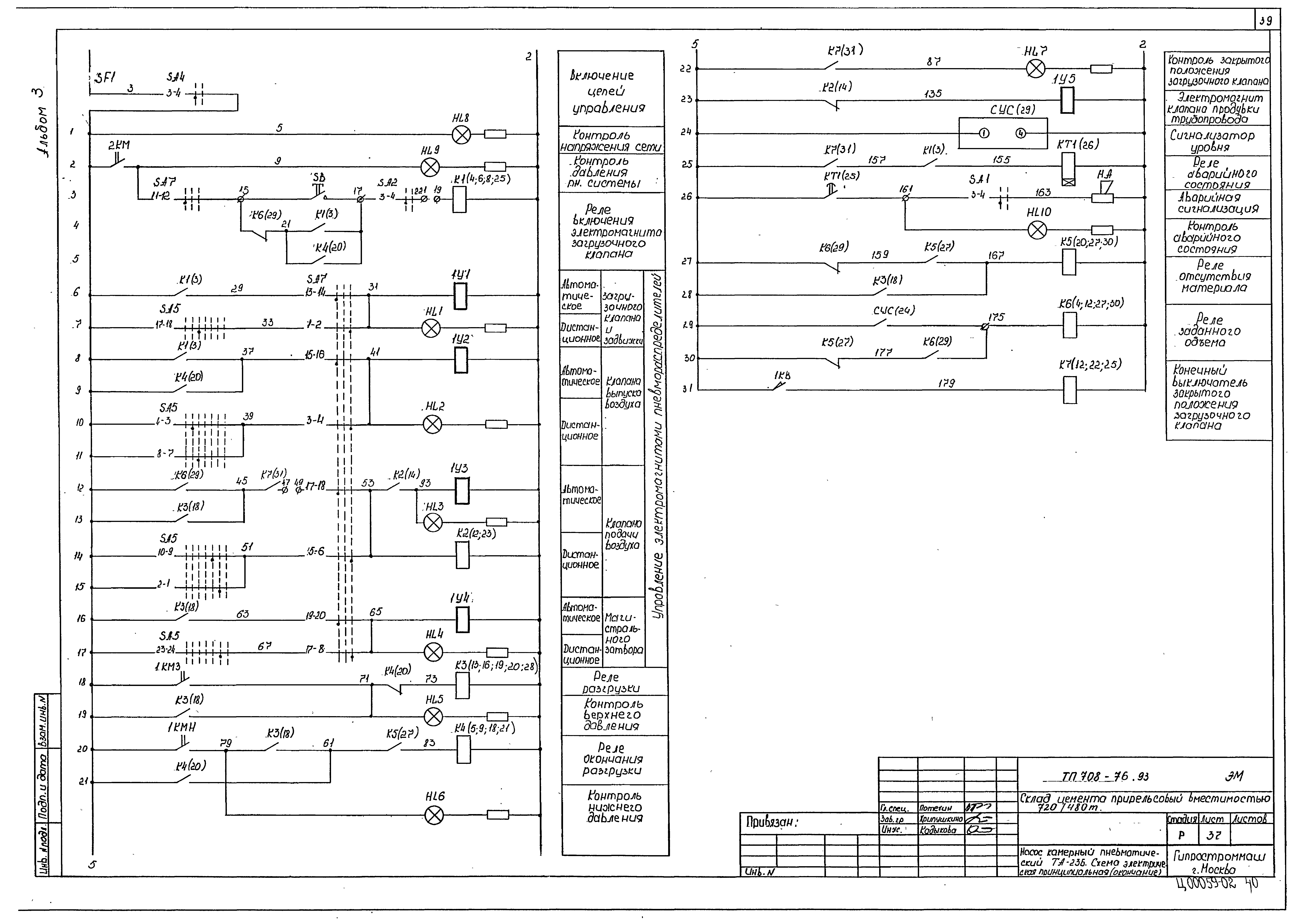
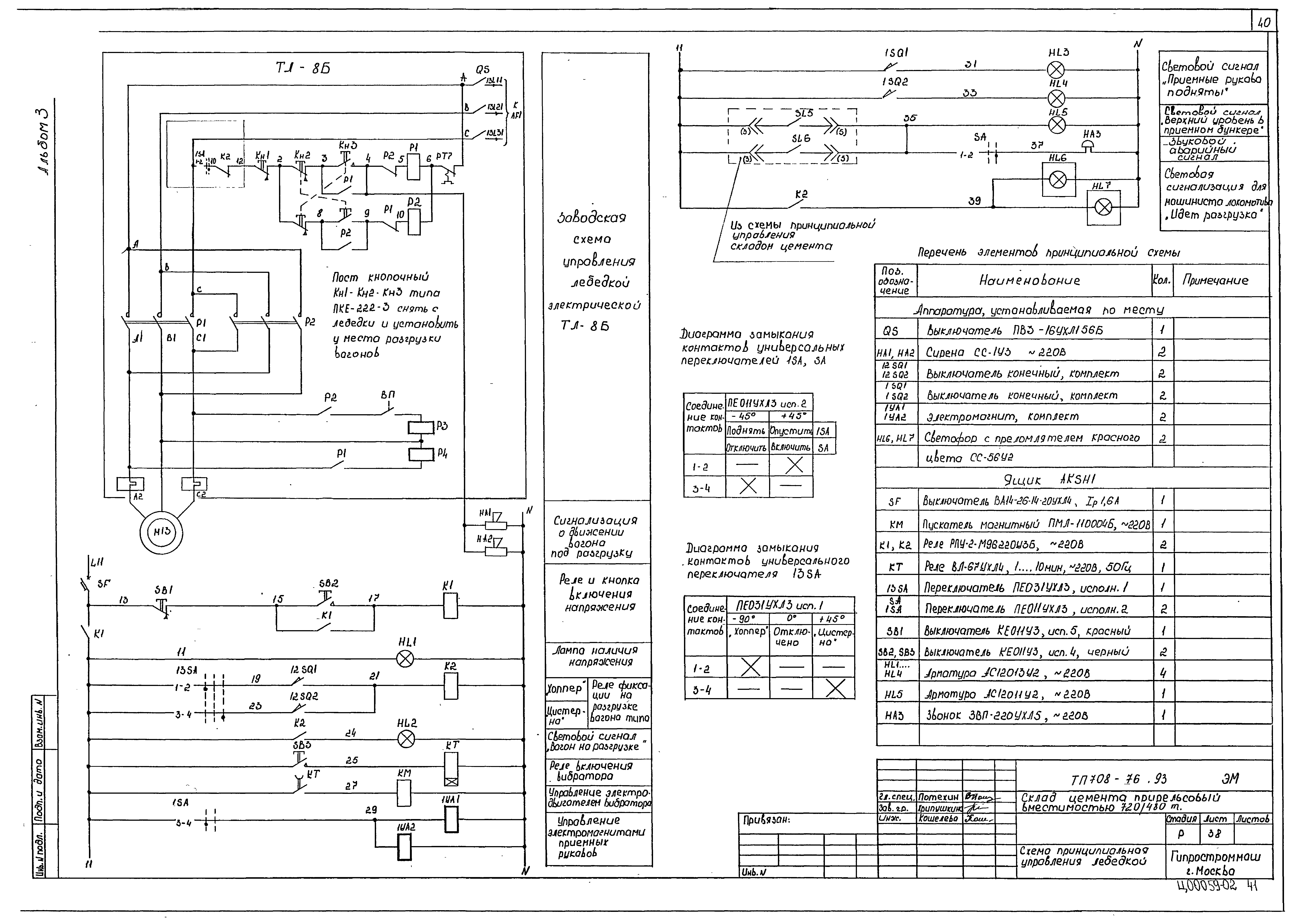
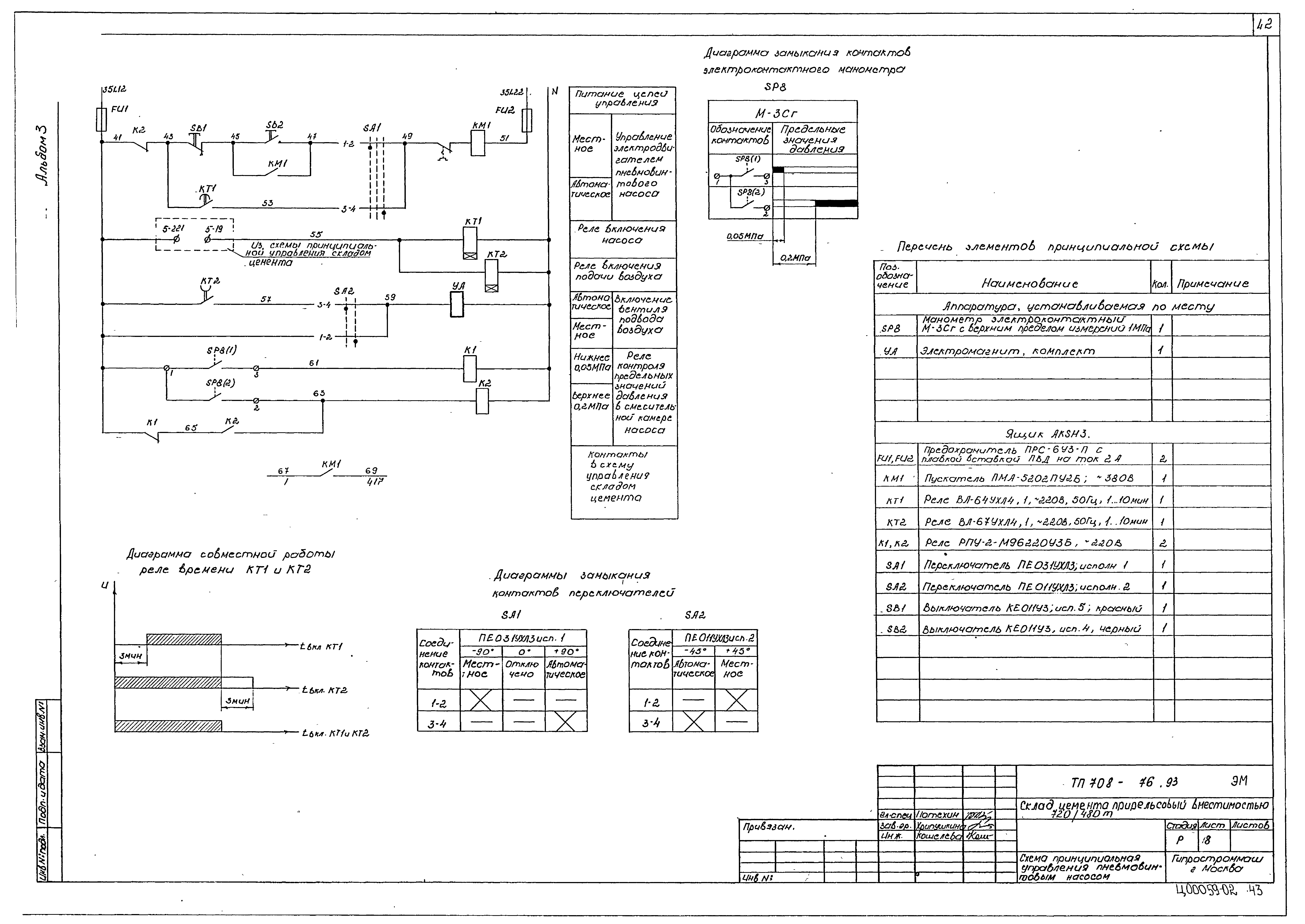
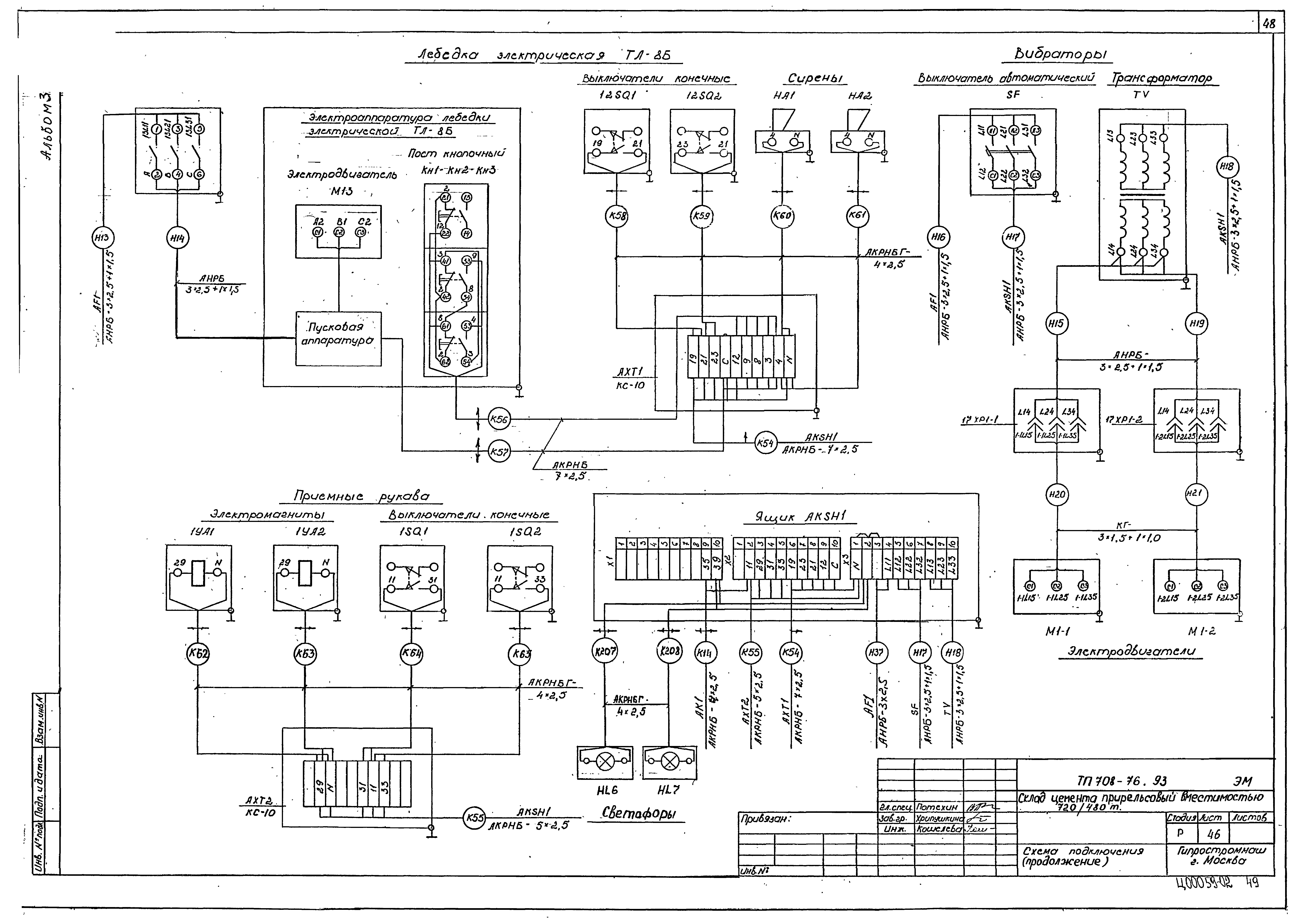
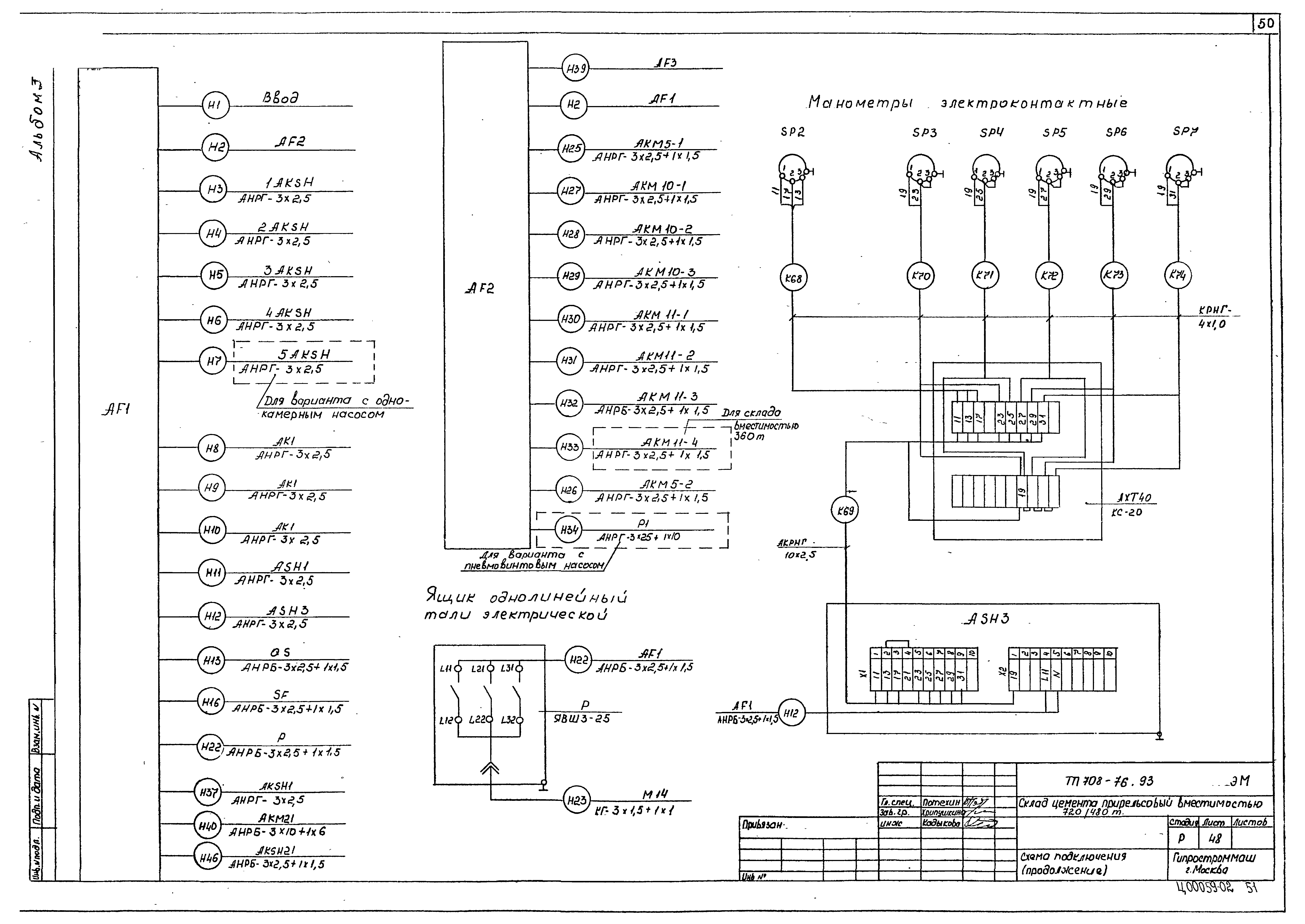
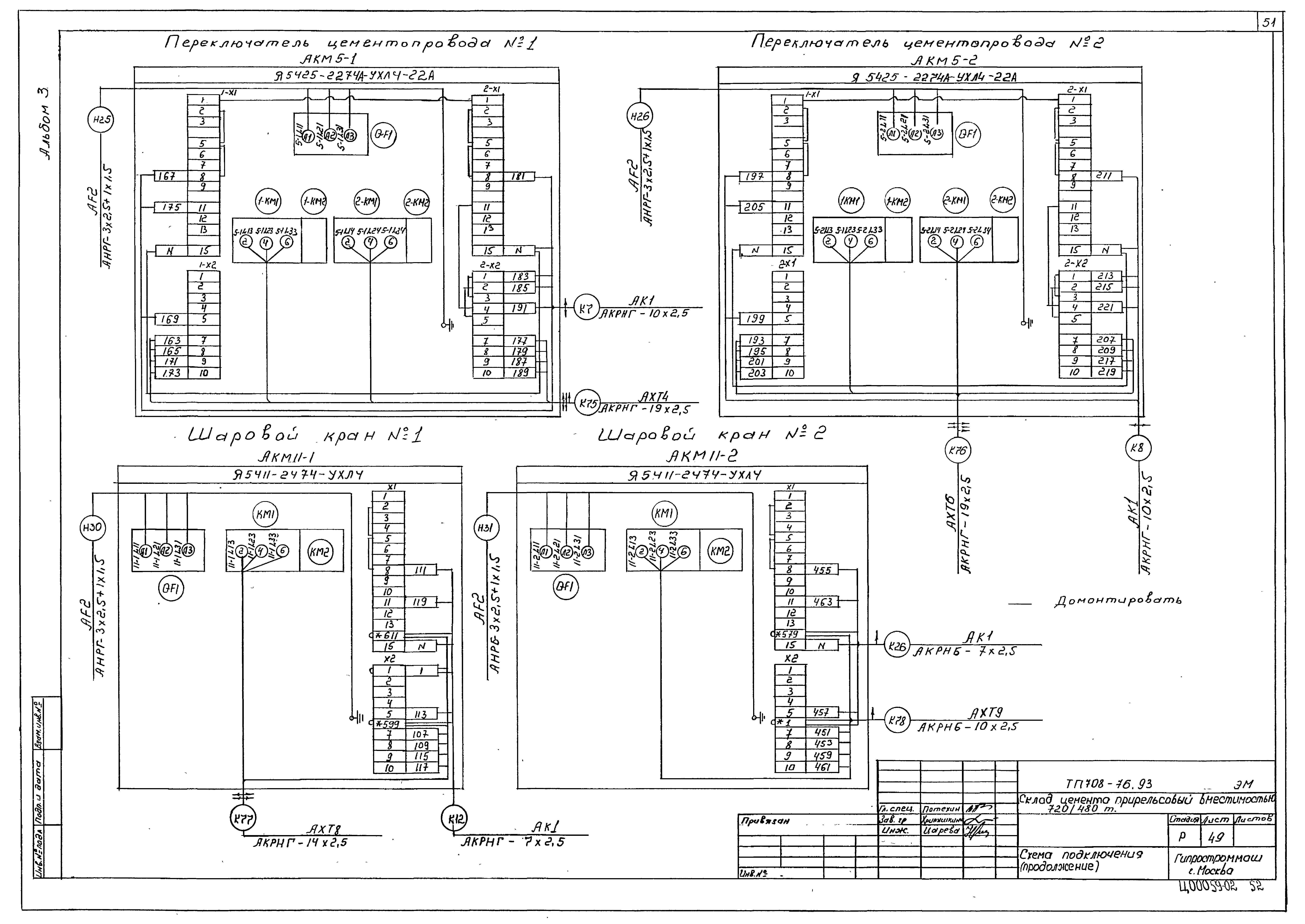
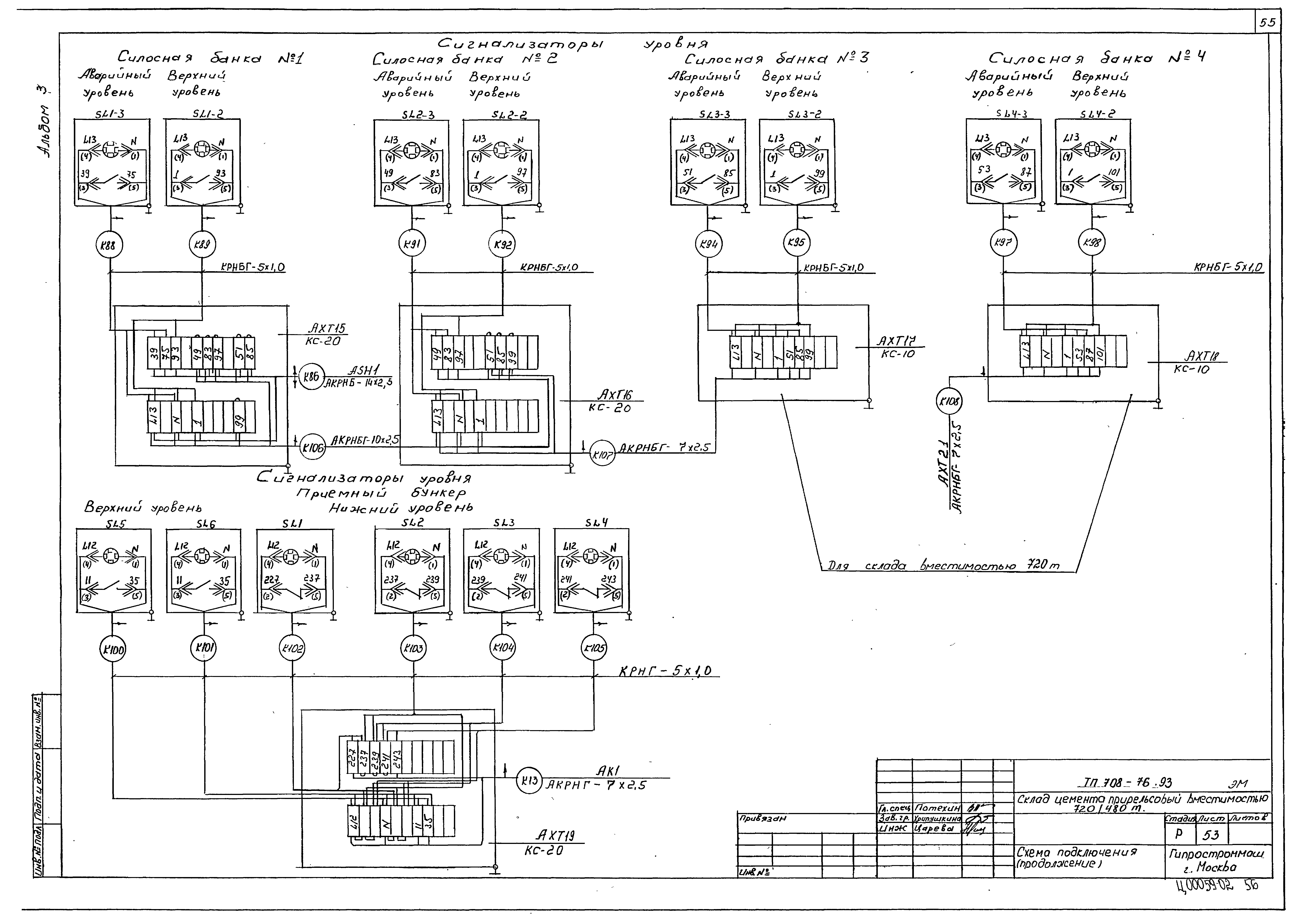
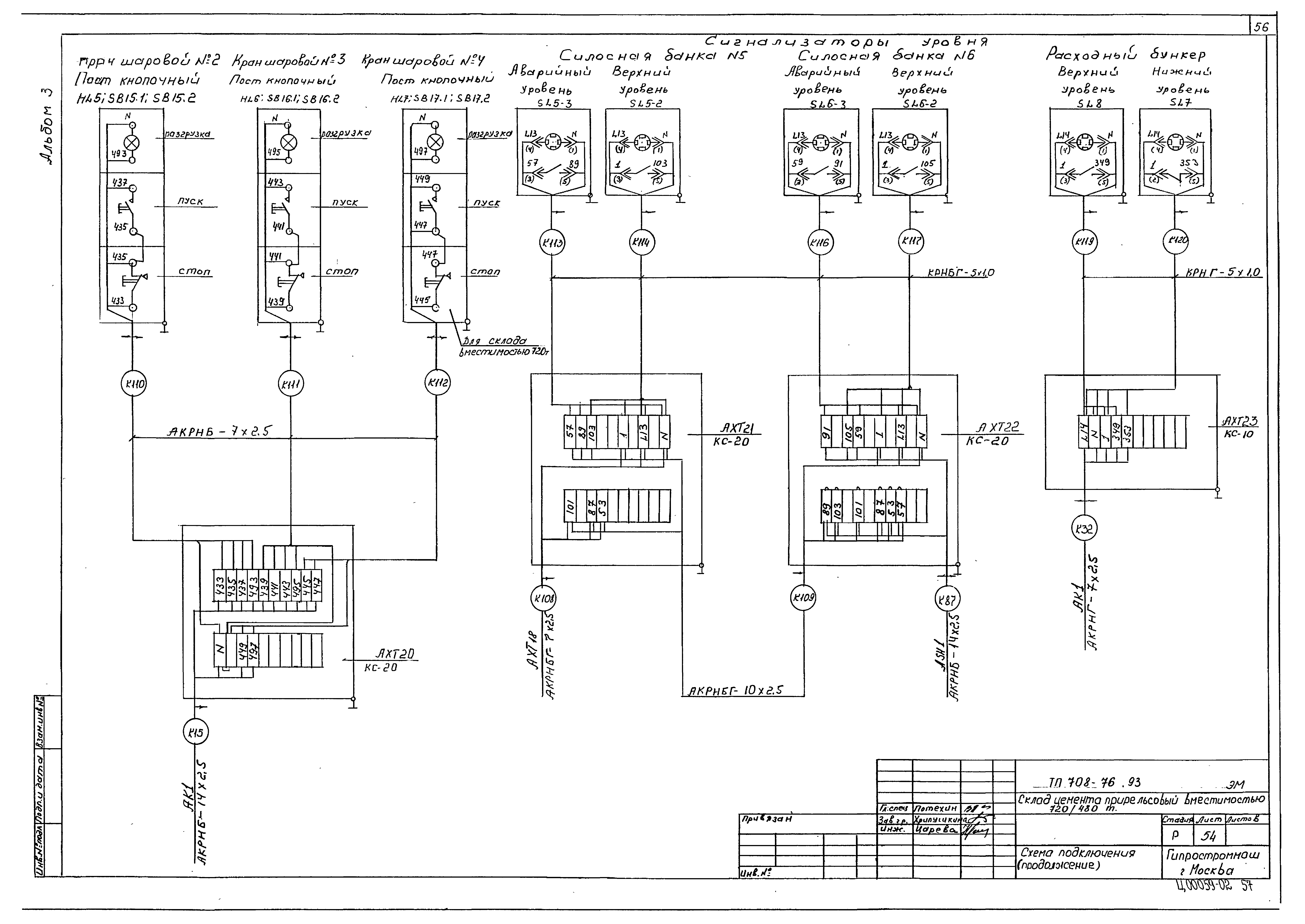
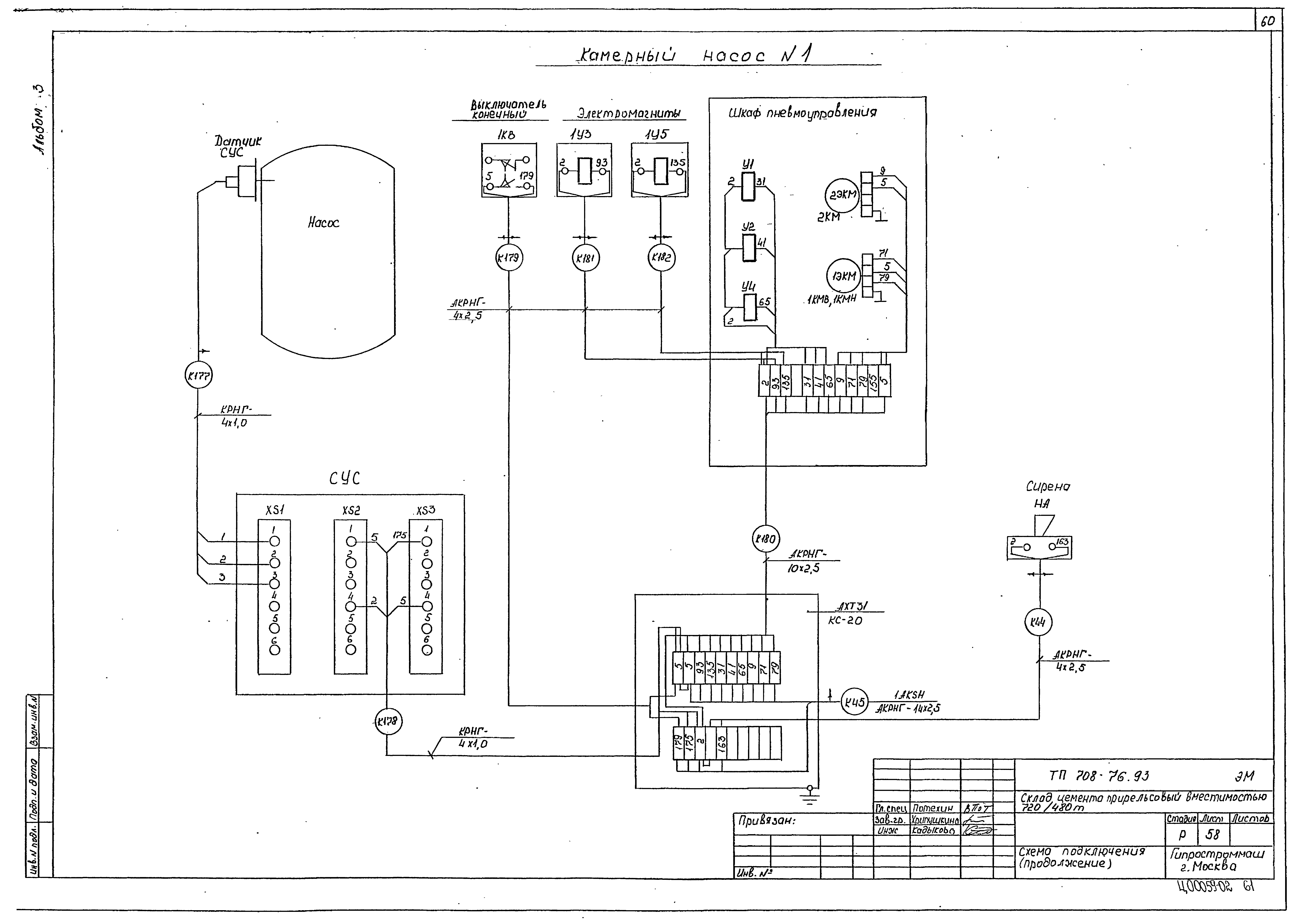
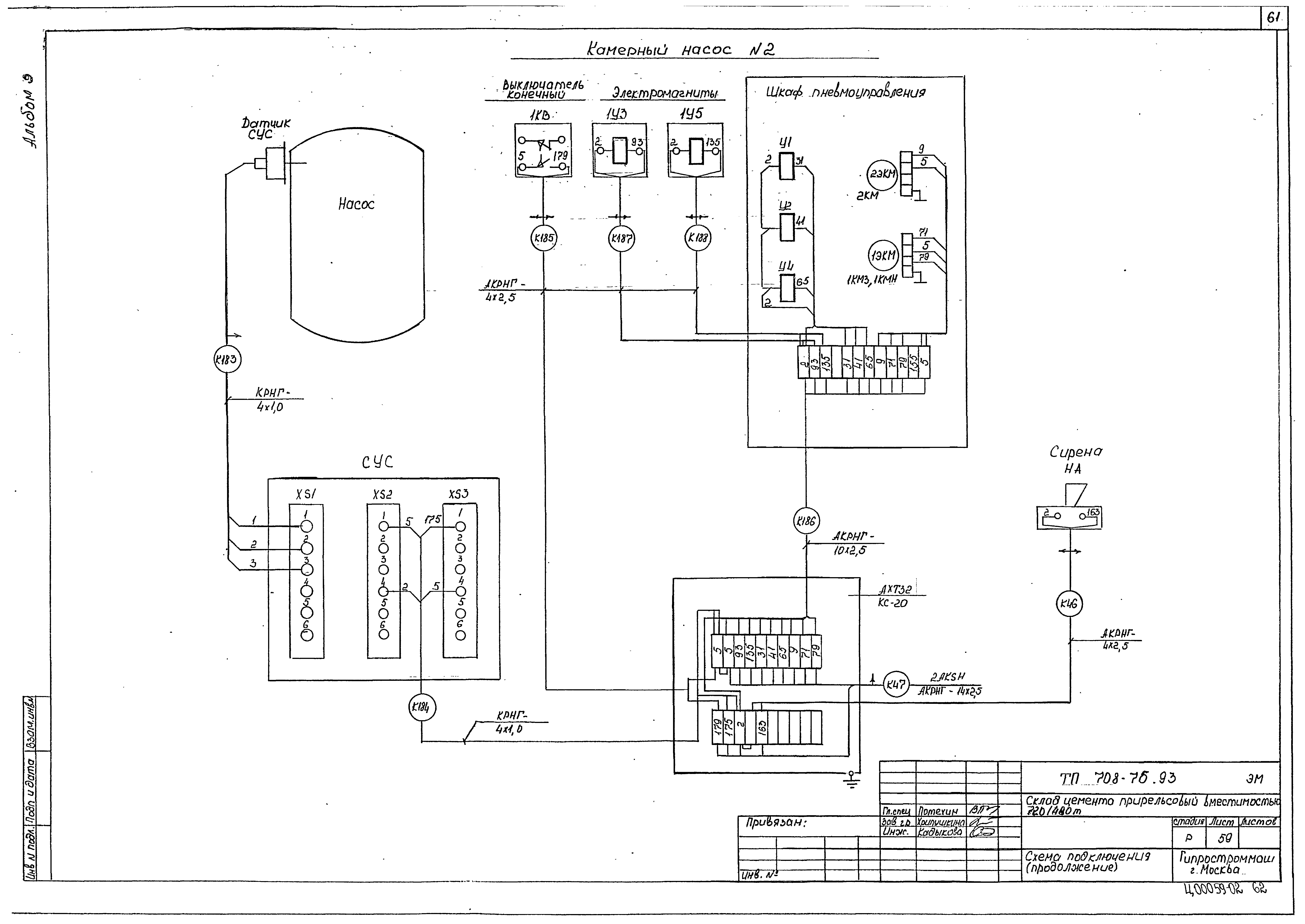
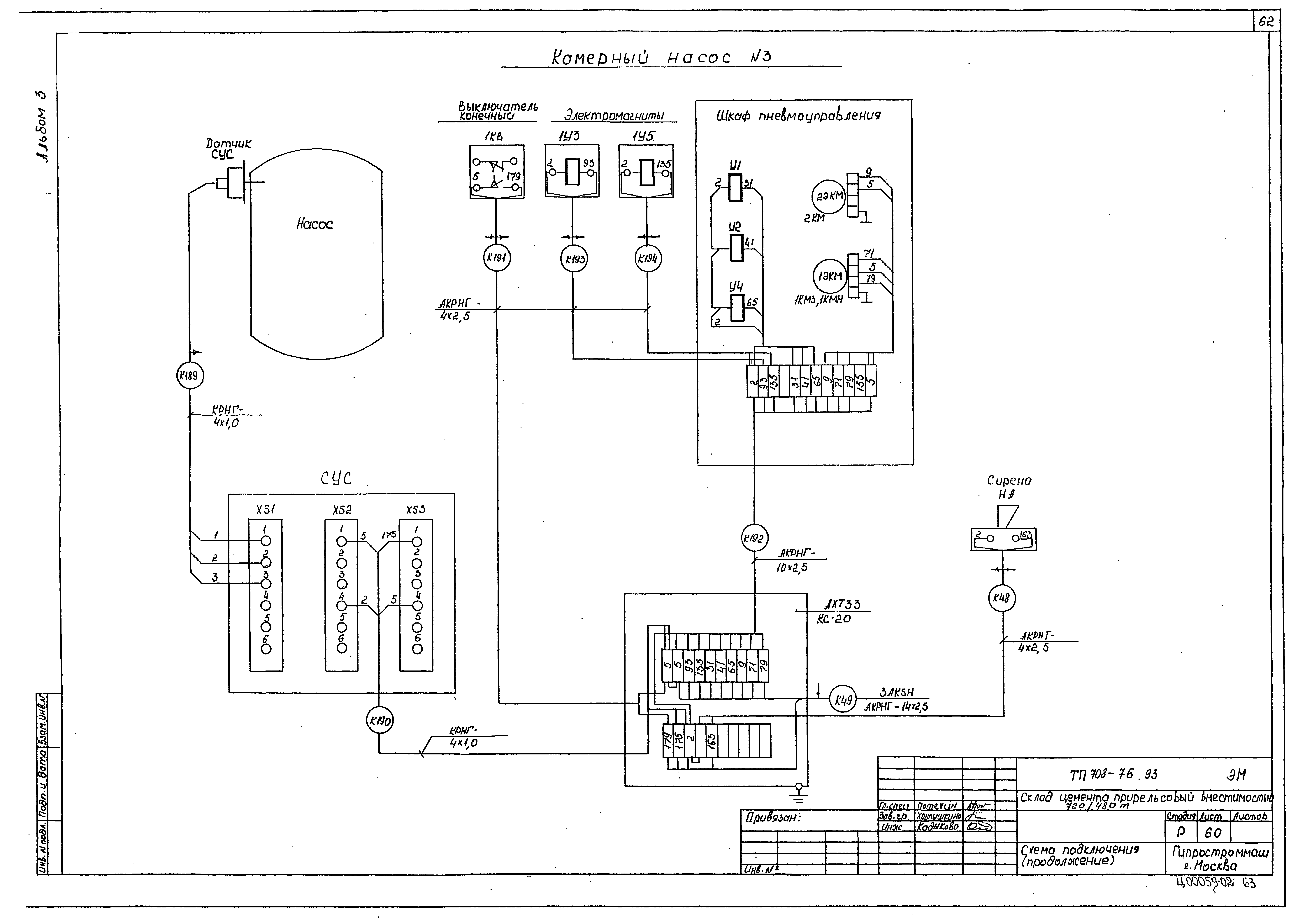
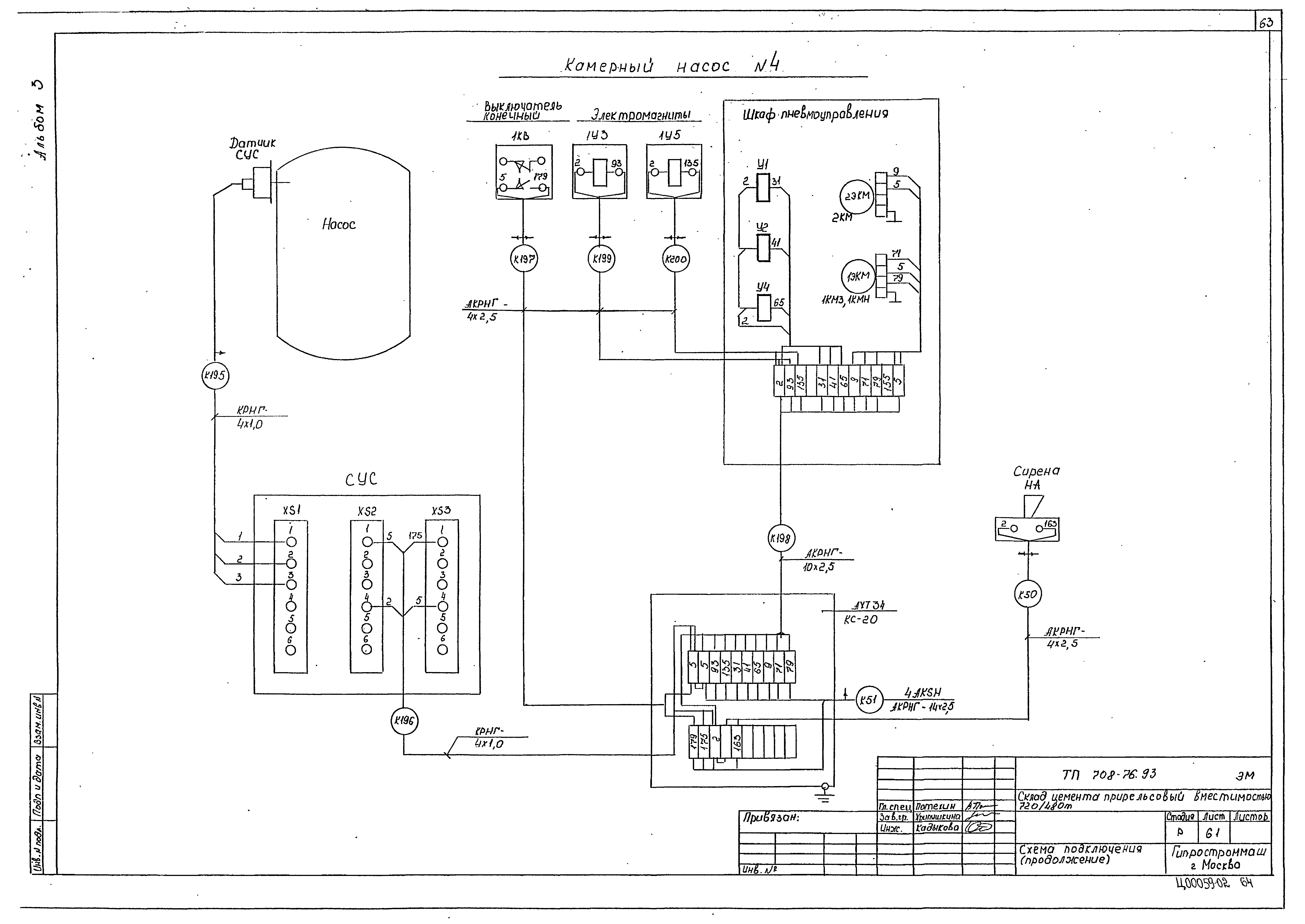
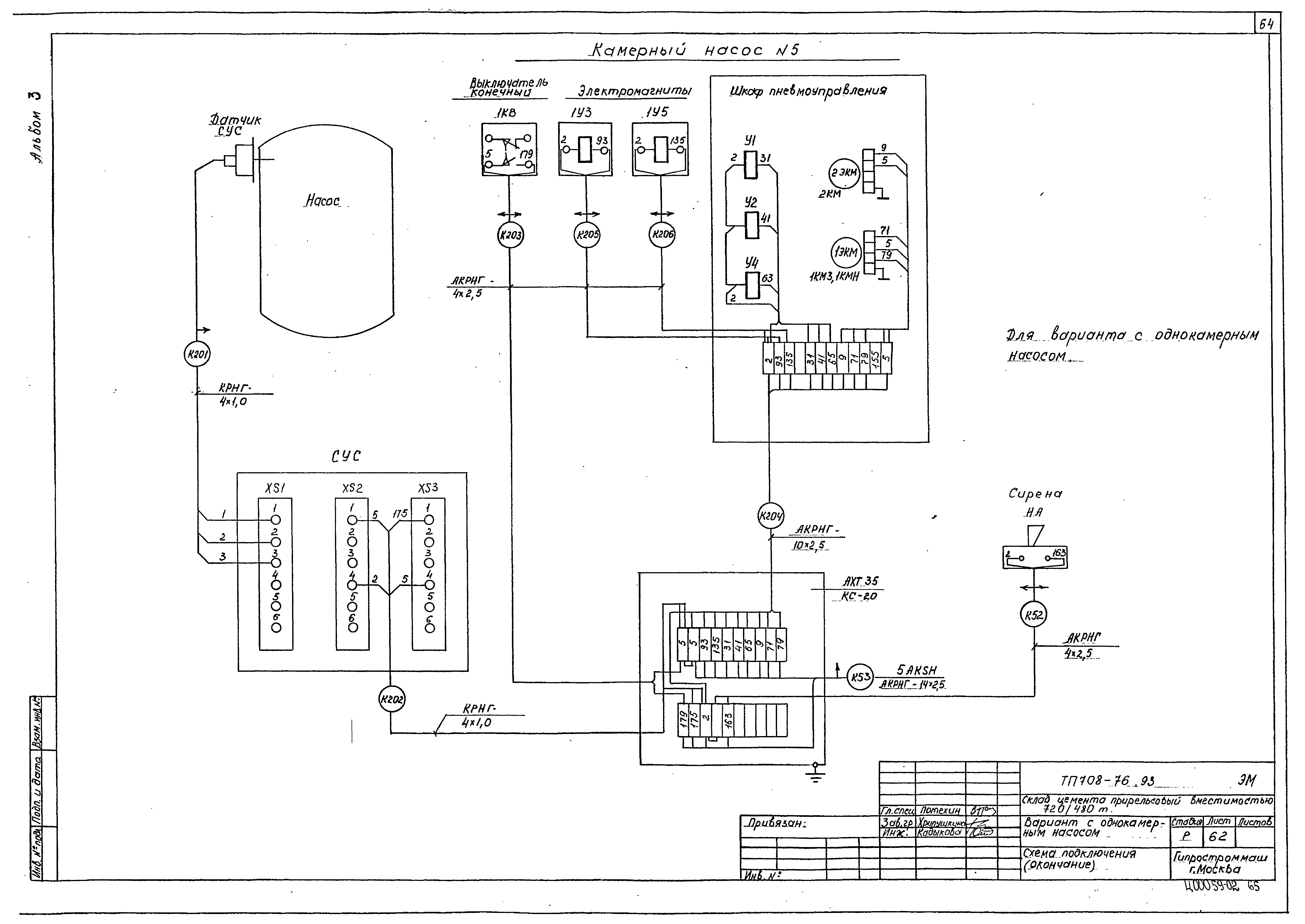
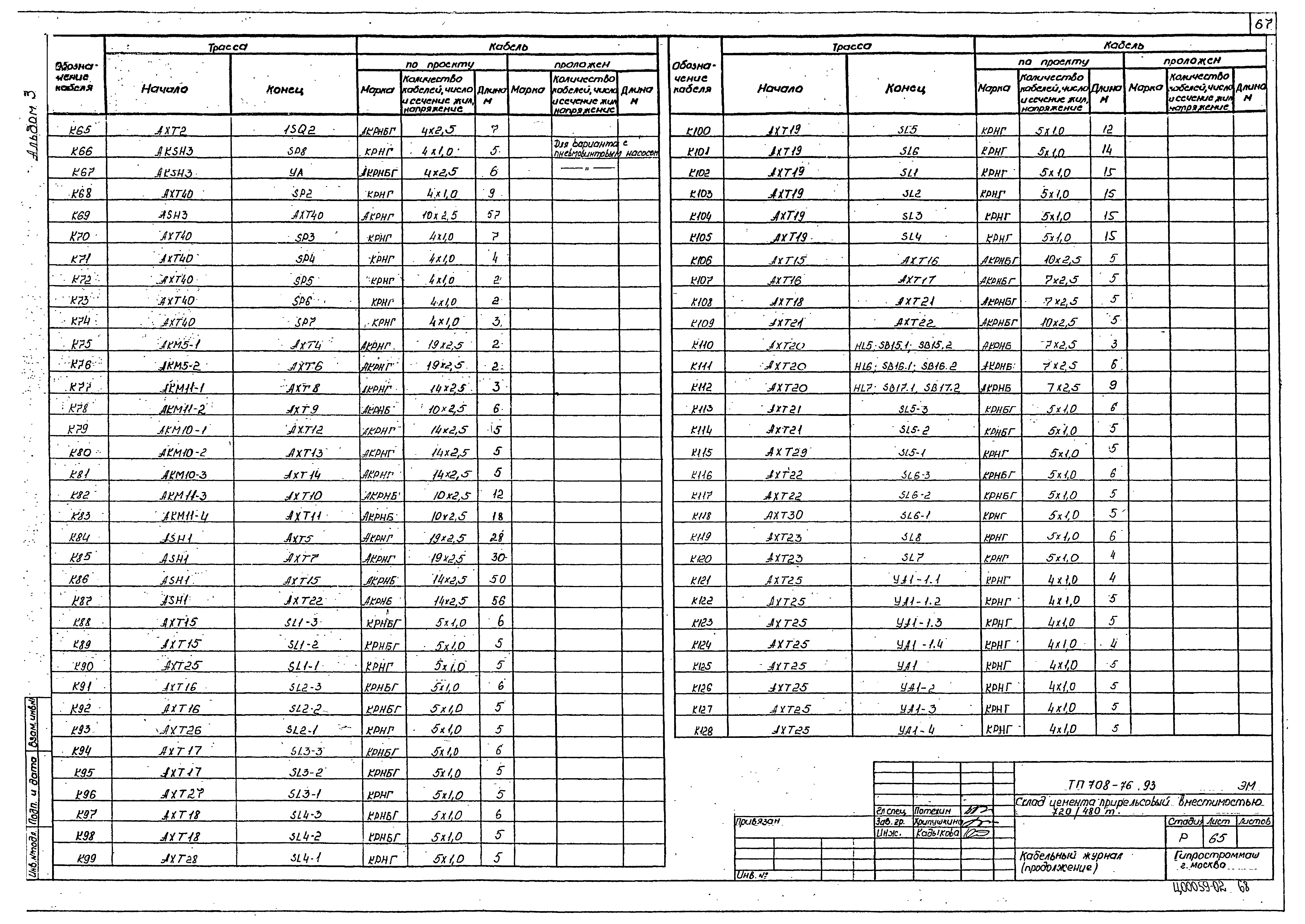
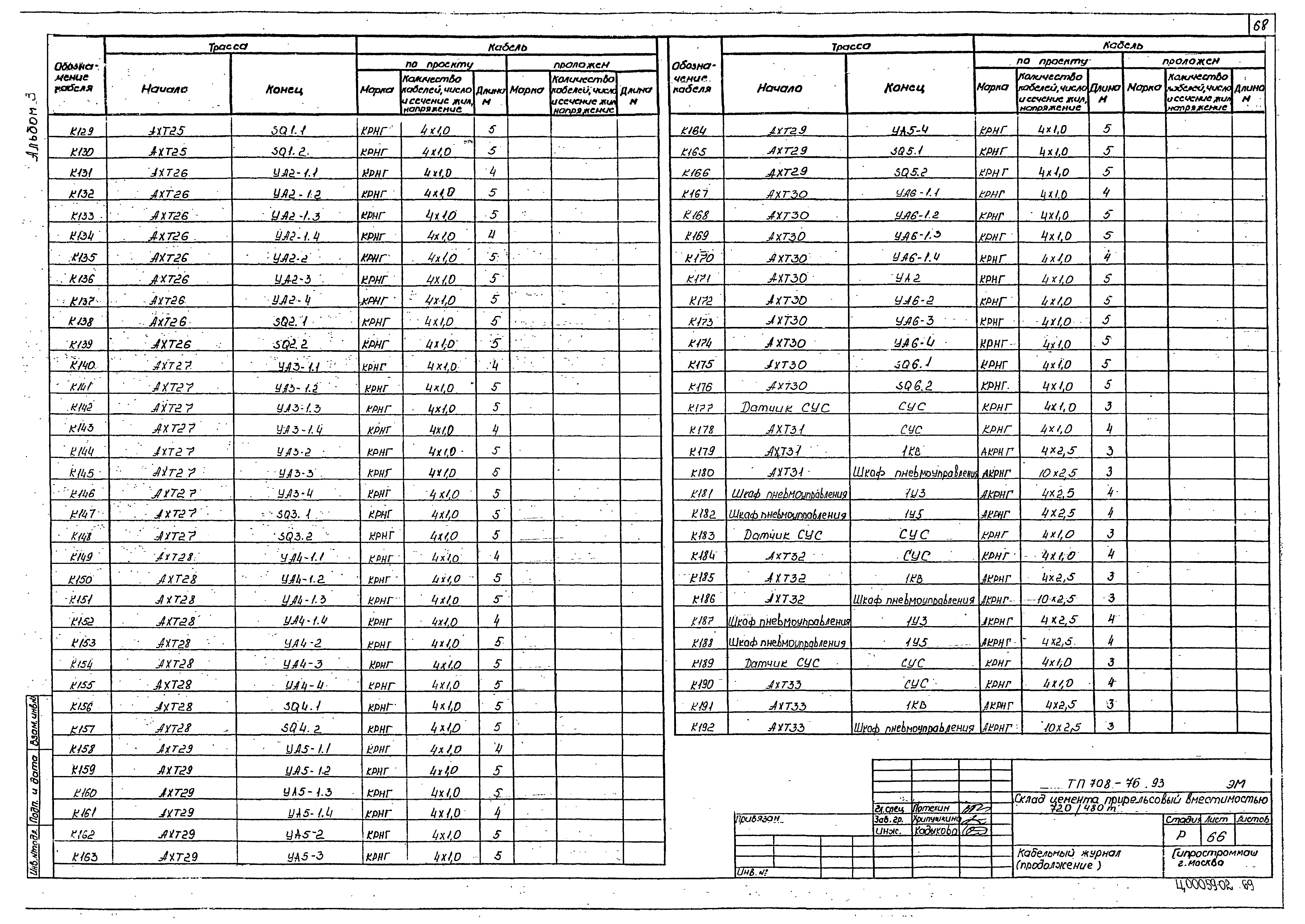
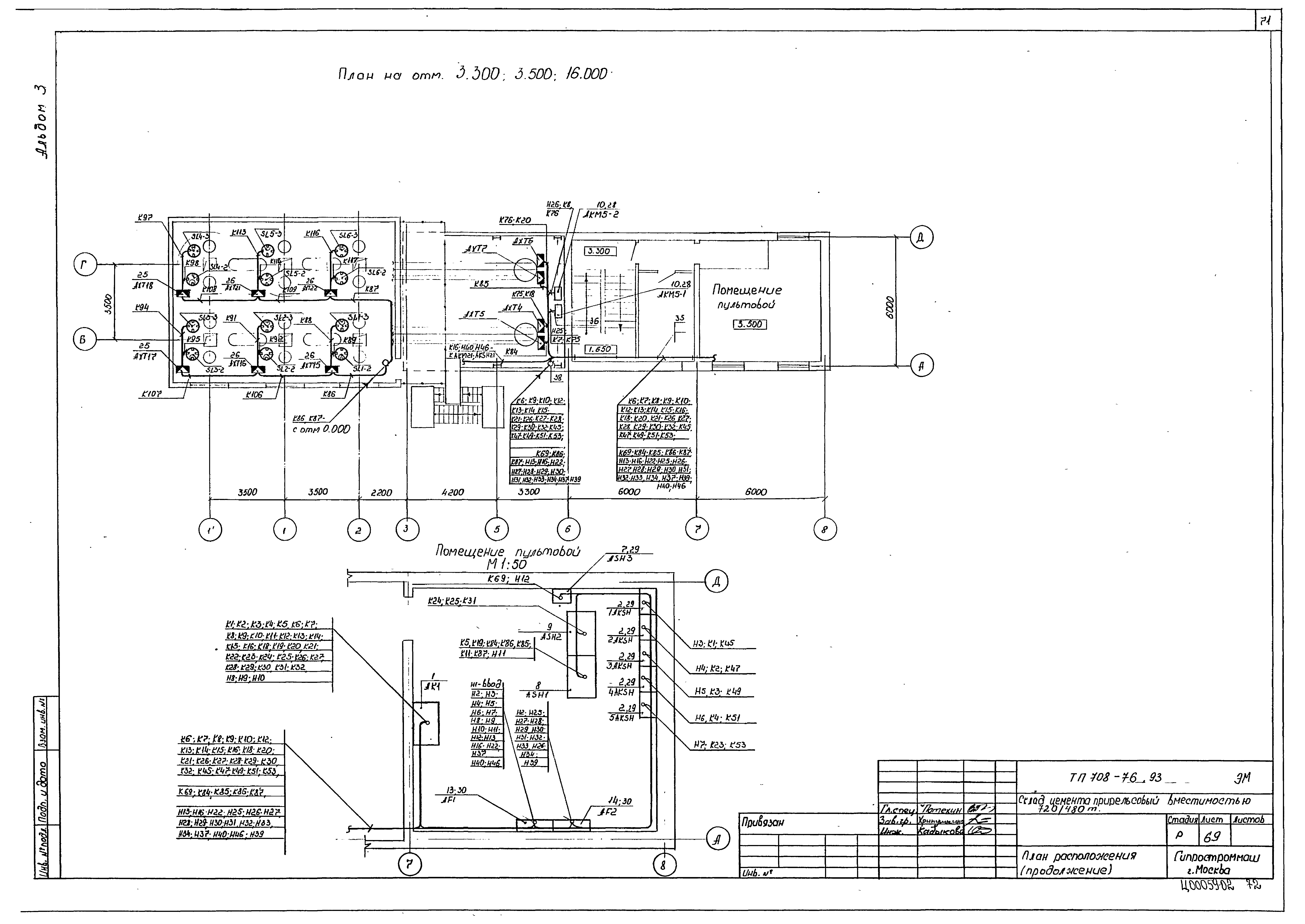
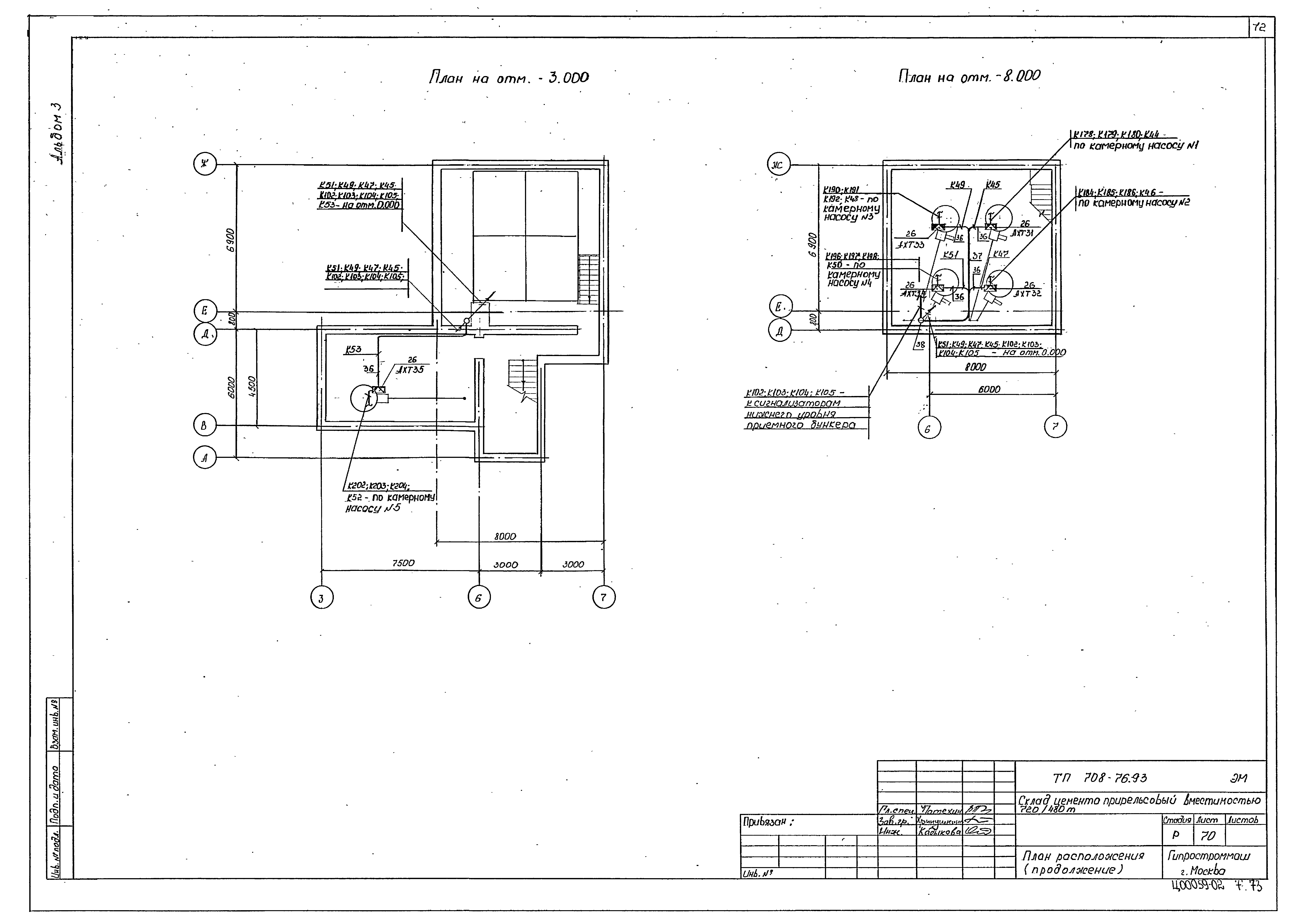
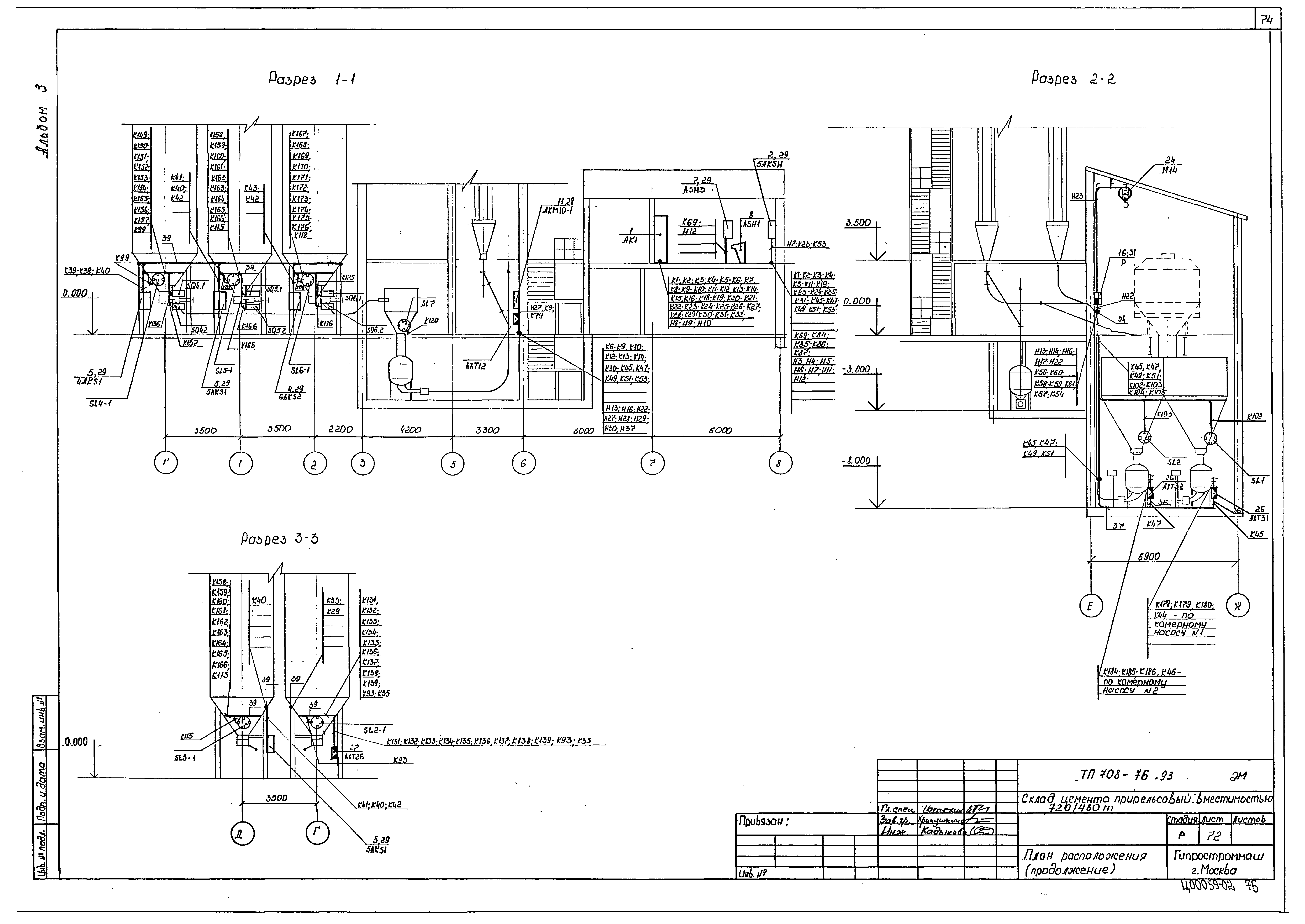
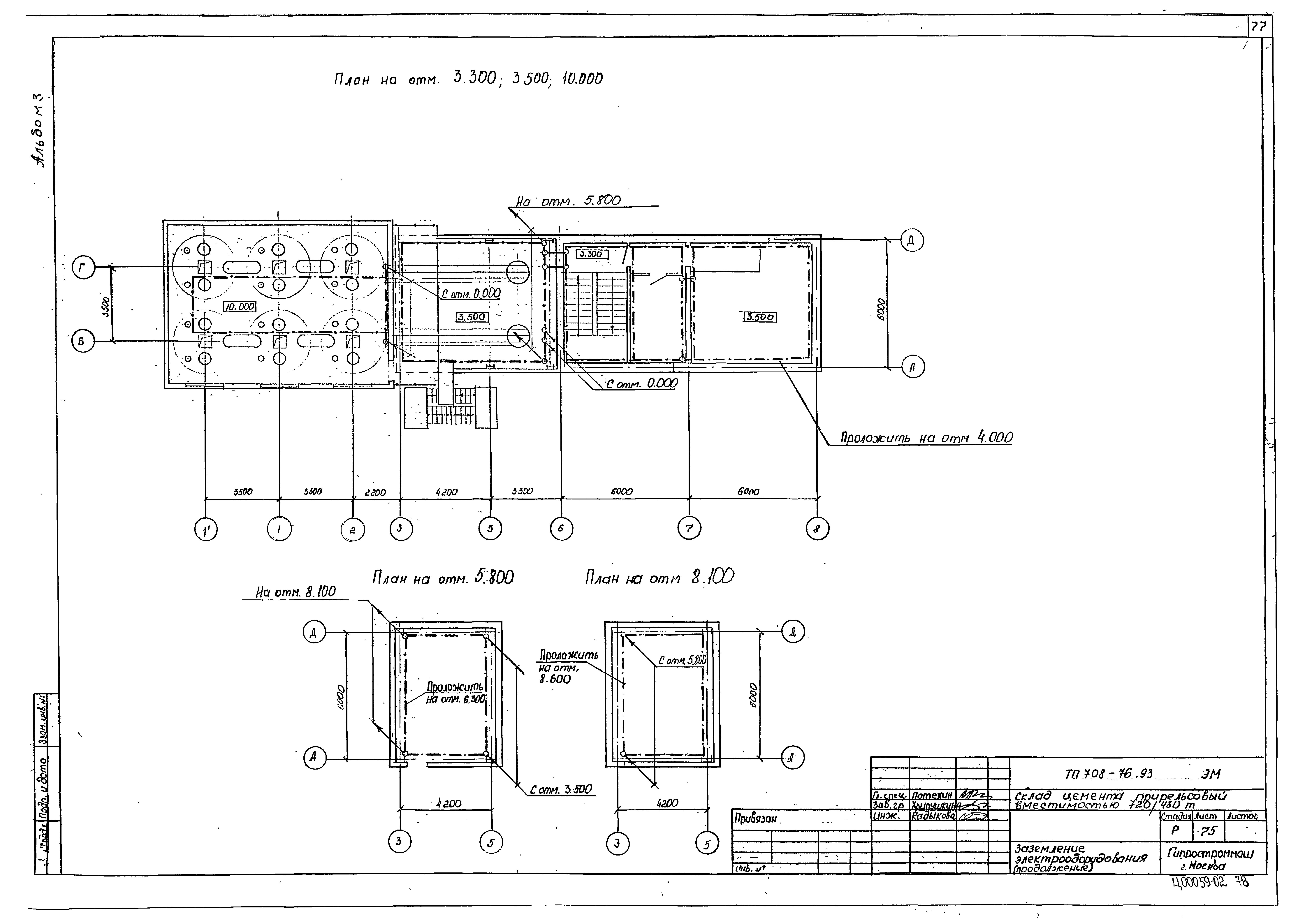
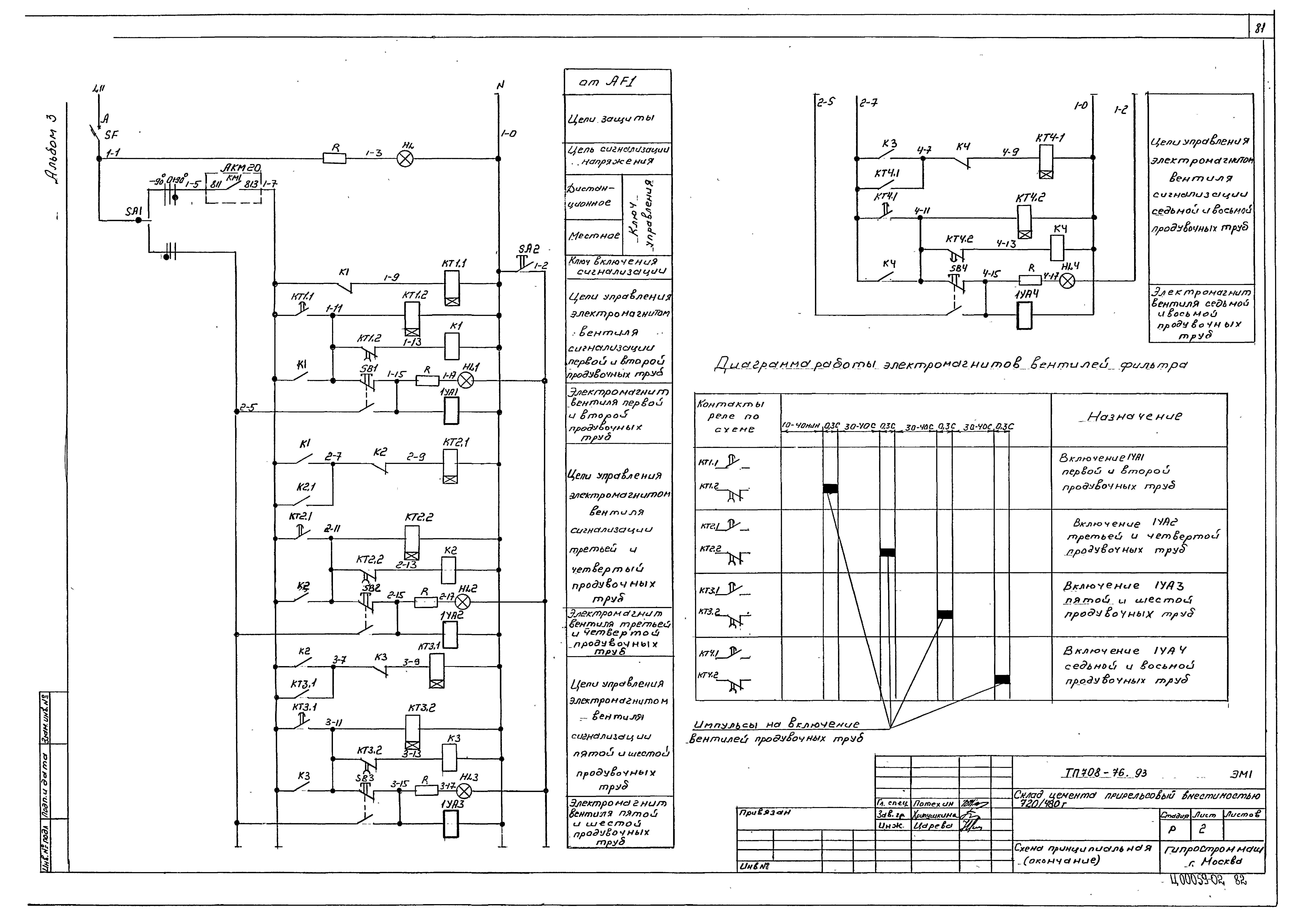
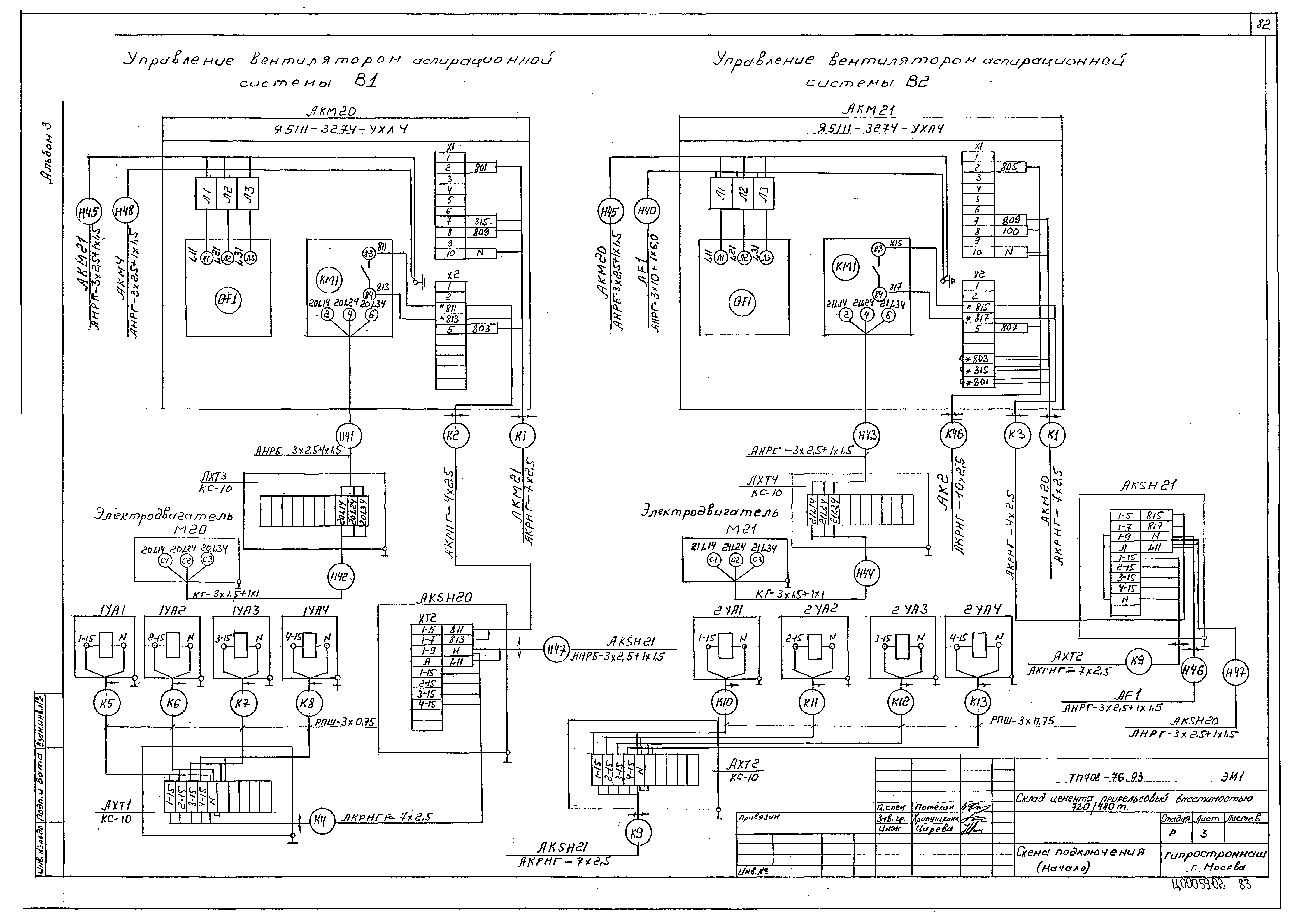
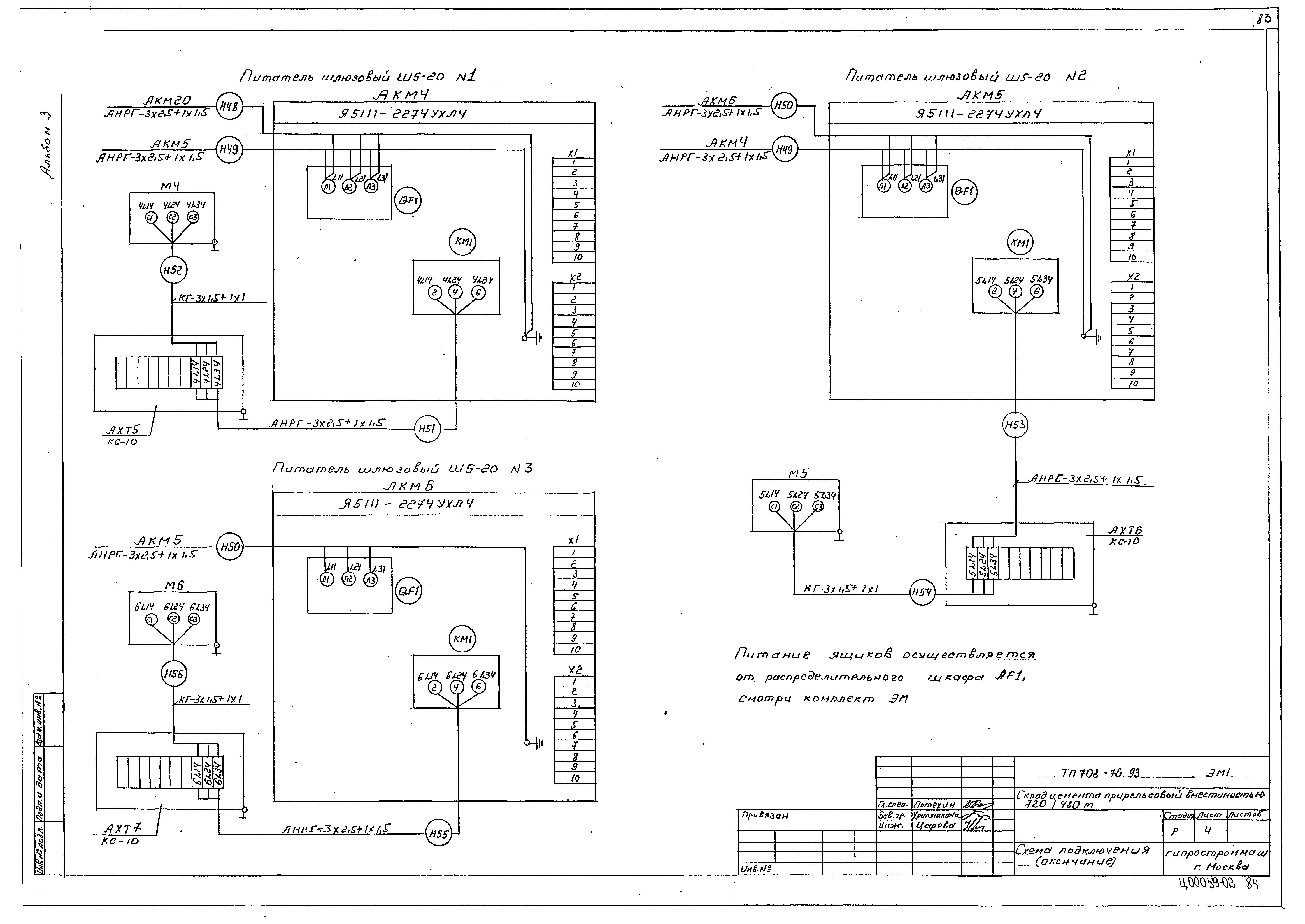
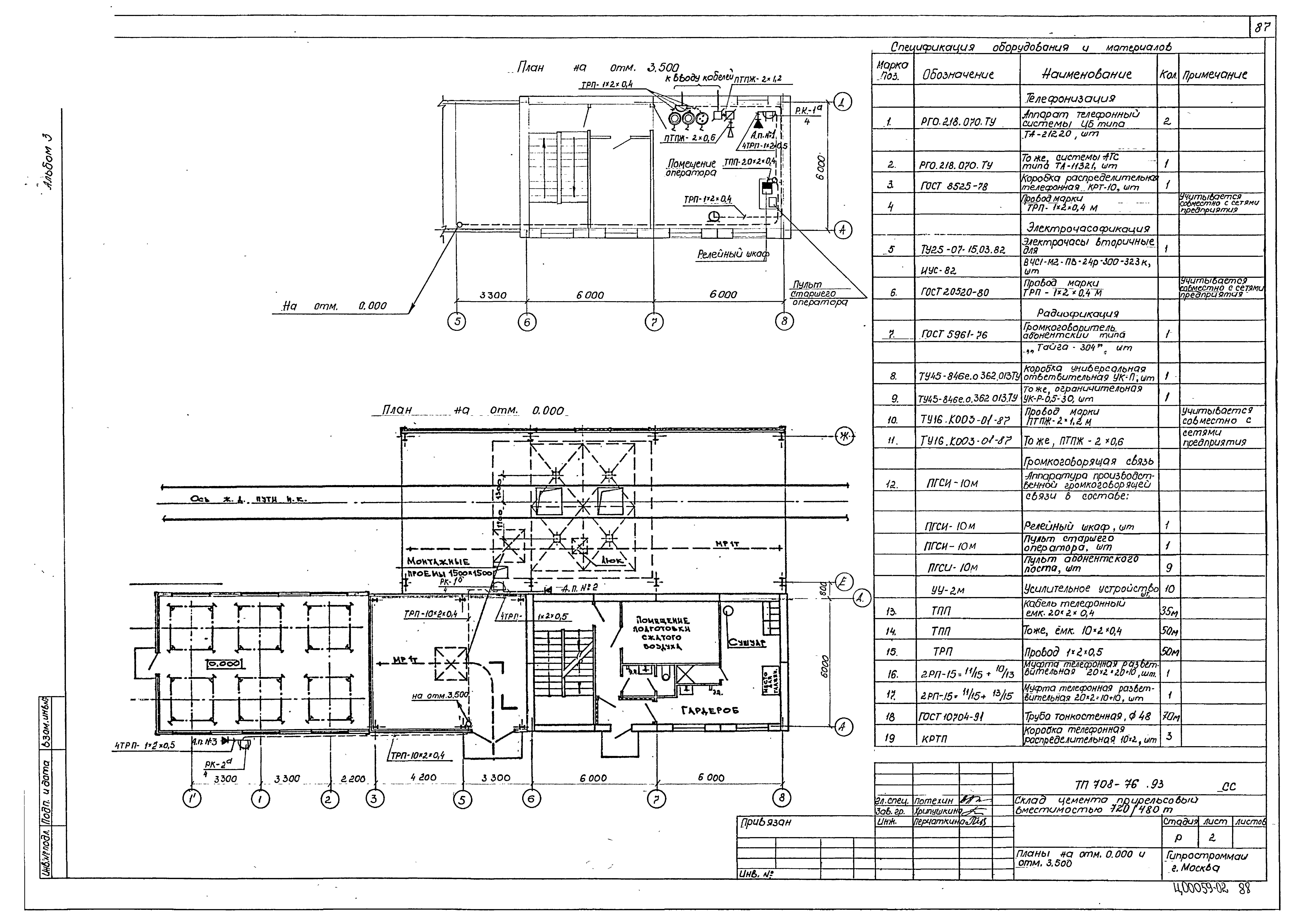
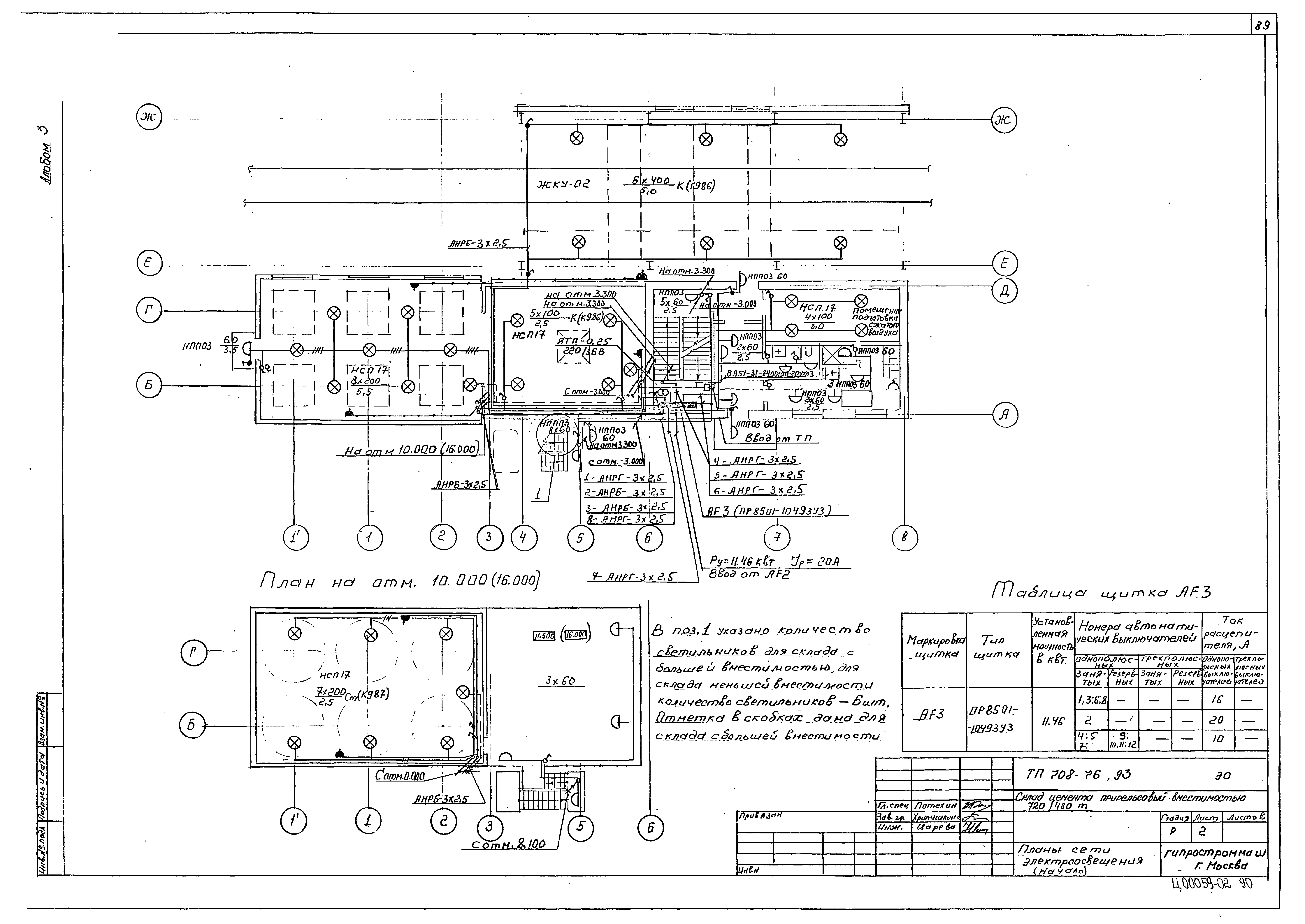
| Оглавление: | Содержание альбома Силовое электрооборудование Общие данные Схема принципиальная распределительной сети Схема технологическая Схема принципиальная Насос камерный пневматический ТА-23Б. Схема электрическая принципиальная Схема принципиальная управления лебедкой Схема принципиальная сигнализации отклонения давления в сети Схема принципиальная управления пневмовинтовым насосом Схема подключения Кабельный журнал План расположения Заземление электрооборудования Ведомость объемов электромонтажных и строительных работ и задание МЭЗ Силовое электрооборудование технологической аспирации Общие данные. Схема принципиальная Схема подключения Кабельный журнал и план расположения Ведомости на электрооборудование, кабельные изделия и материалы Связь и сигнализация Общие данные. Устройства связи и сигнализации. Скелетные схемы Планы на отм. 0.000 и отм. 3.500 Электроосвещение Общие данные Планы сети электроосвещения Конструкция и установка светильников с лампой накаливания Коробка с выключателем и коробка со штепсельной розеткой Ведомости электрооборудования, кабельных изделий и материалов |
| Разработан: | Гипростроммаш Проектный институт №2 |
| Утверждён: | 30.11.1993 Главпроект Госстроя России (9-3-1/254) |





























































































