Скачать Типовой проект 708-76.93 Альбом 5. Архитектурные решения. Конструкции железобетонные. Конструкции железобетонные (вариант выдачи пневмовинтовым насосом)Дата актуализации: 01.01.2021
|
| Обозначение: | Типовой проект 708-76.93 |
| Обозначение англ: | 708-76.93 |
| Статус: | не определен законодательством |
| Название рус.: | Альбом 5. Архитектурные решения. Конструкции железобетонные. Конструкции железобетонные (вариант выдачи пневмовинтовым насосом) |
| Дата добавления в базу: | 01.10.2014 |
| Дата актуализации: | 01.01.2021 |
| Дата введения: | 06.12.1993 |
| Дата окончания срока действия: | 30.06.2003 |
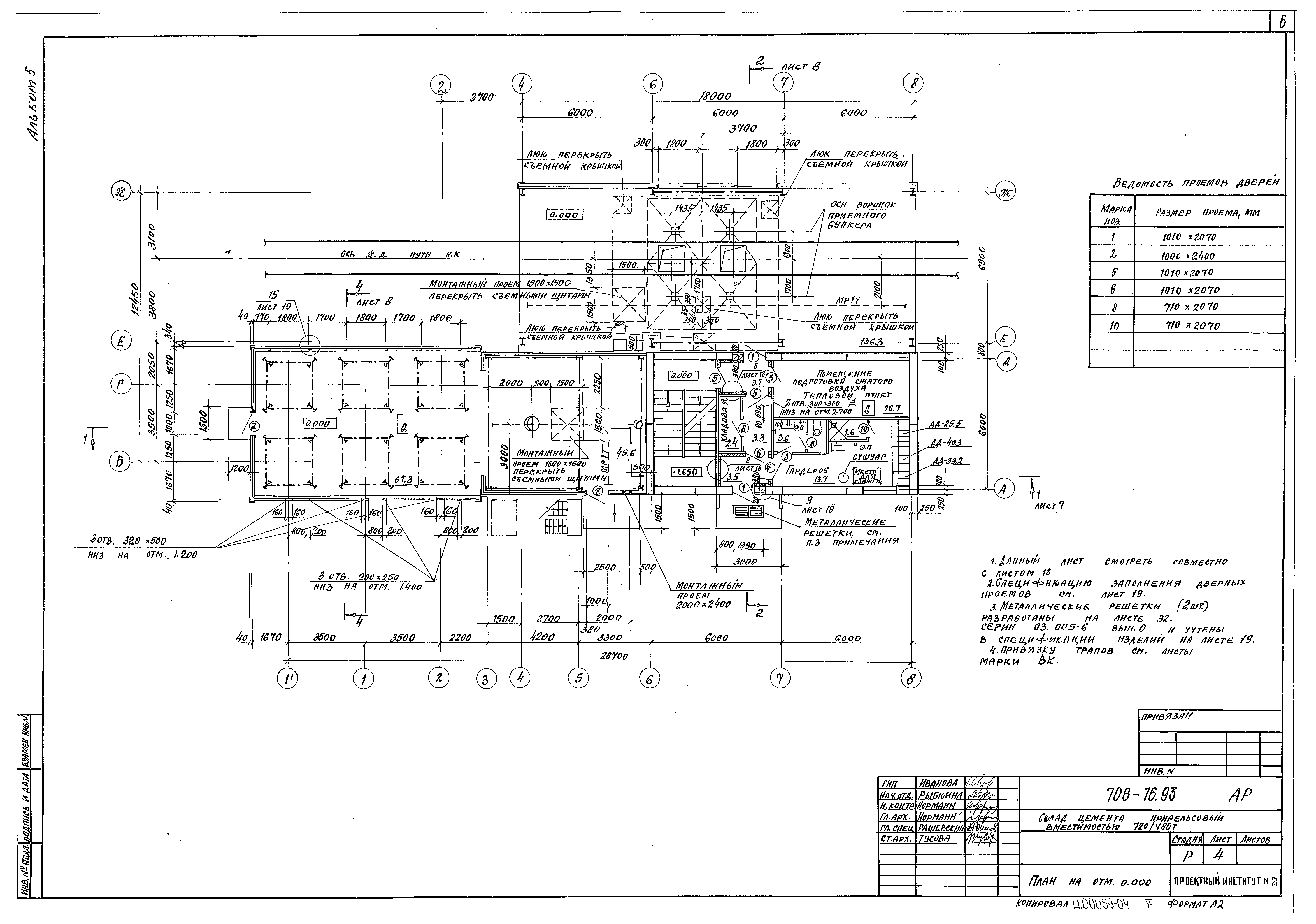
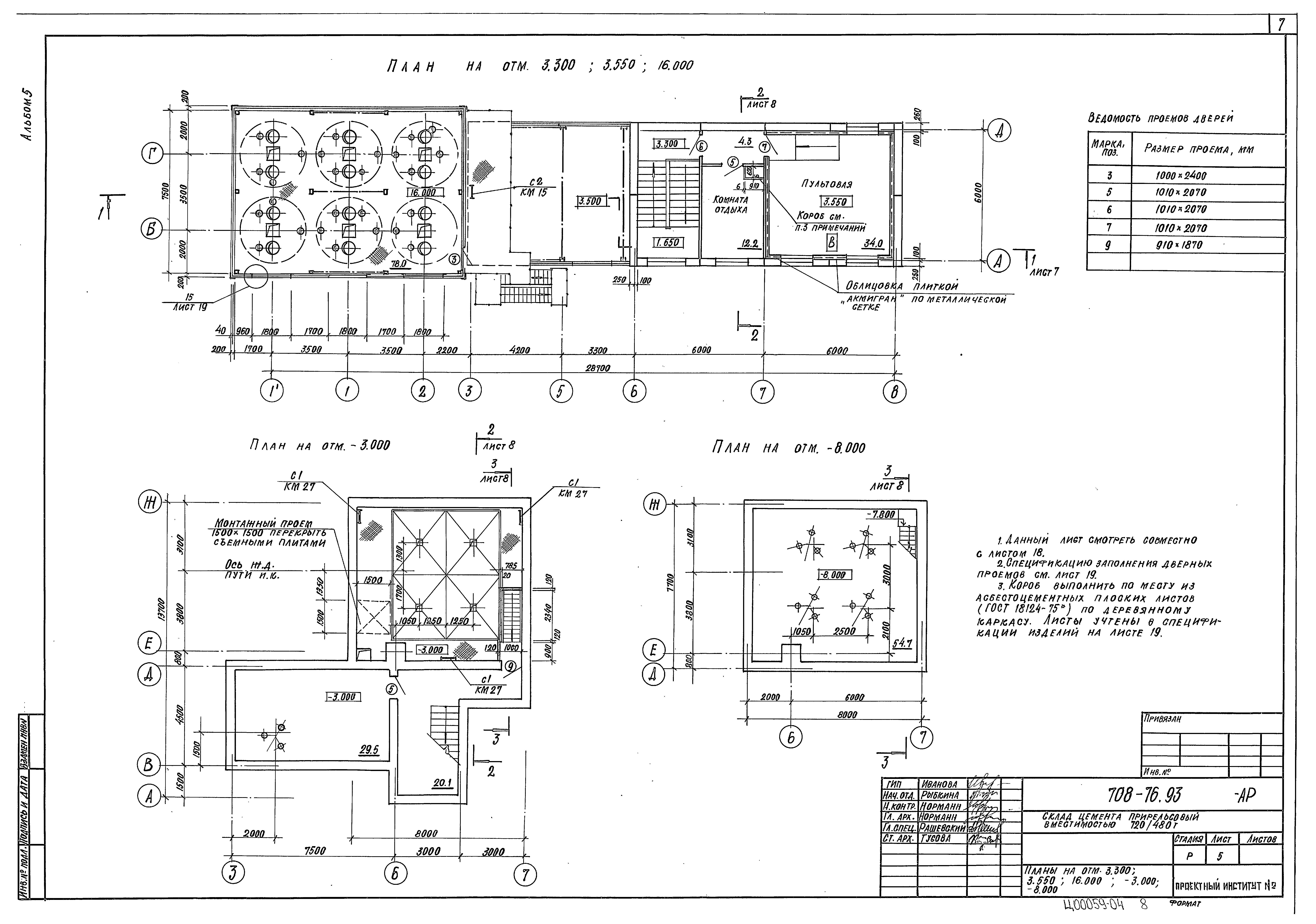
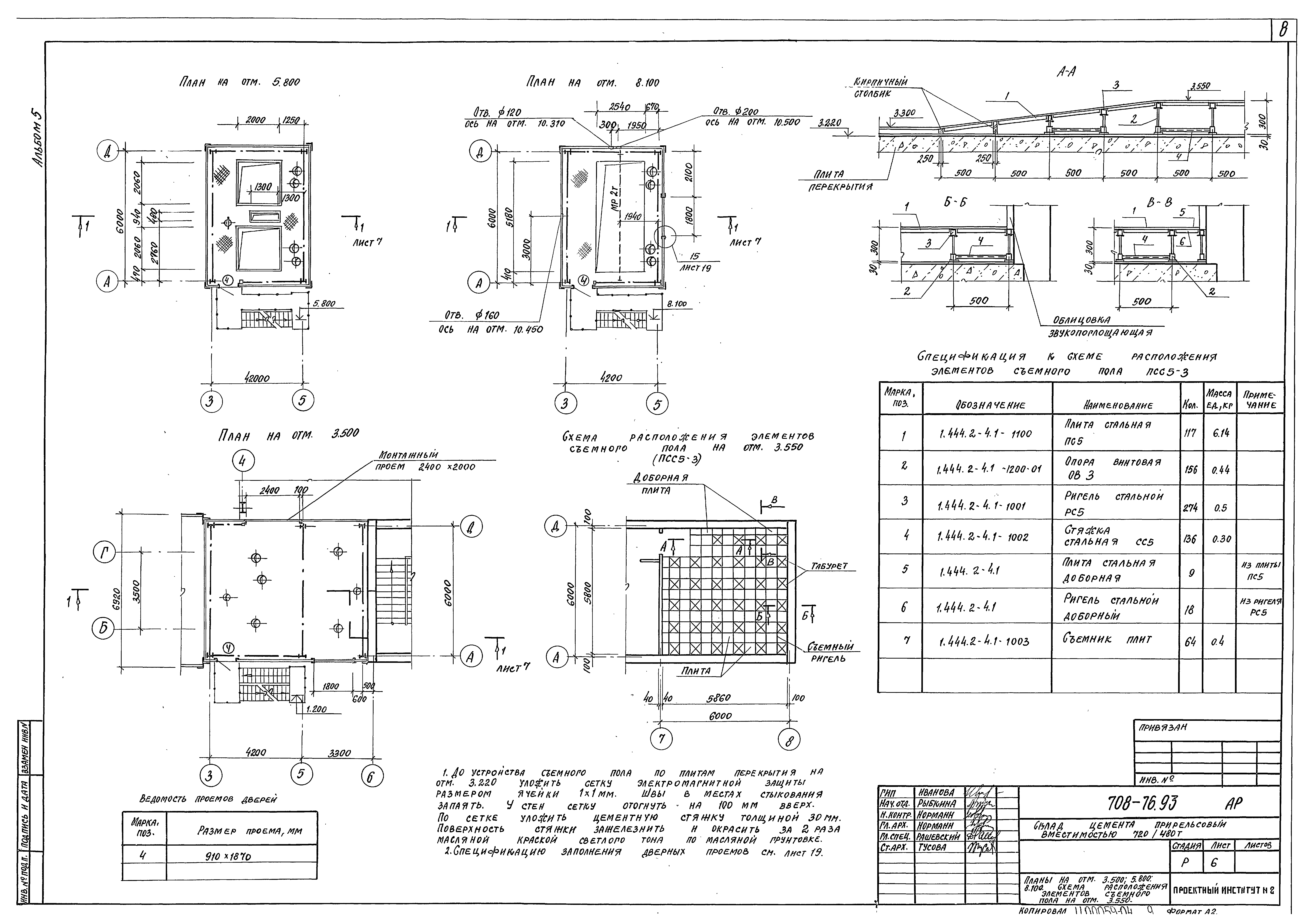
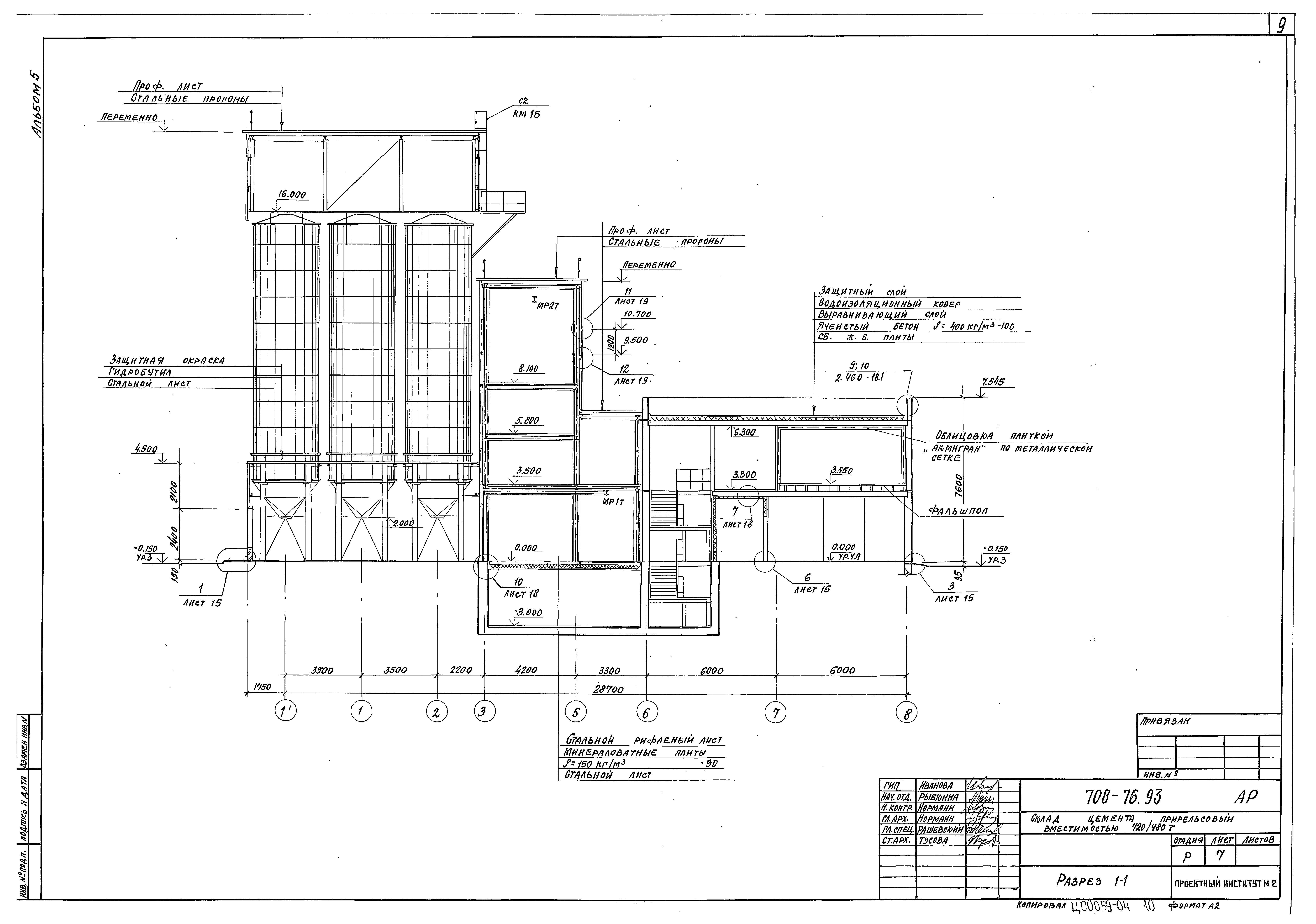
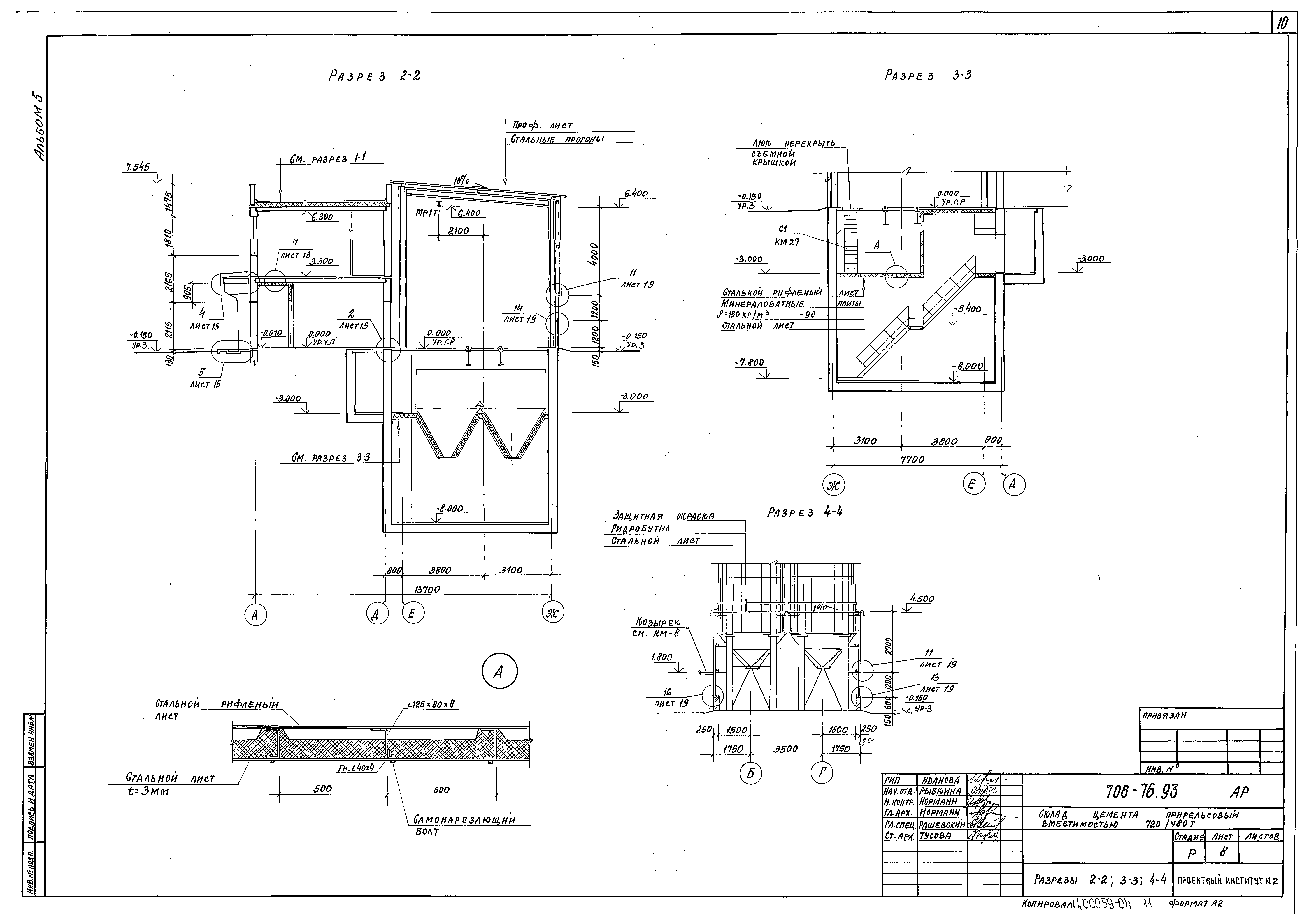
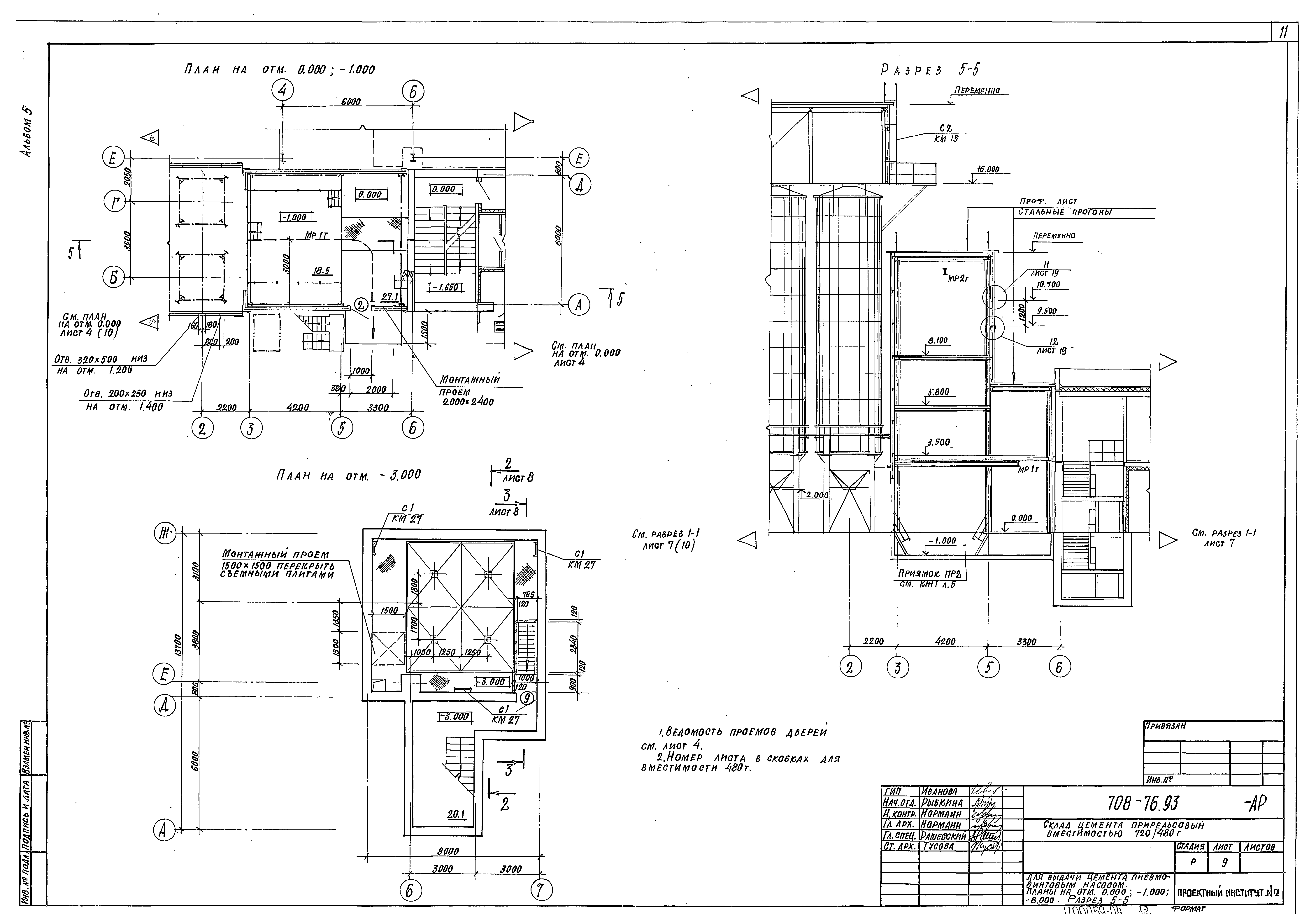
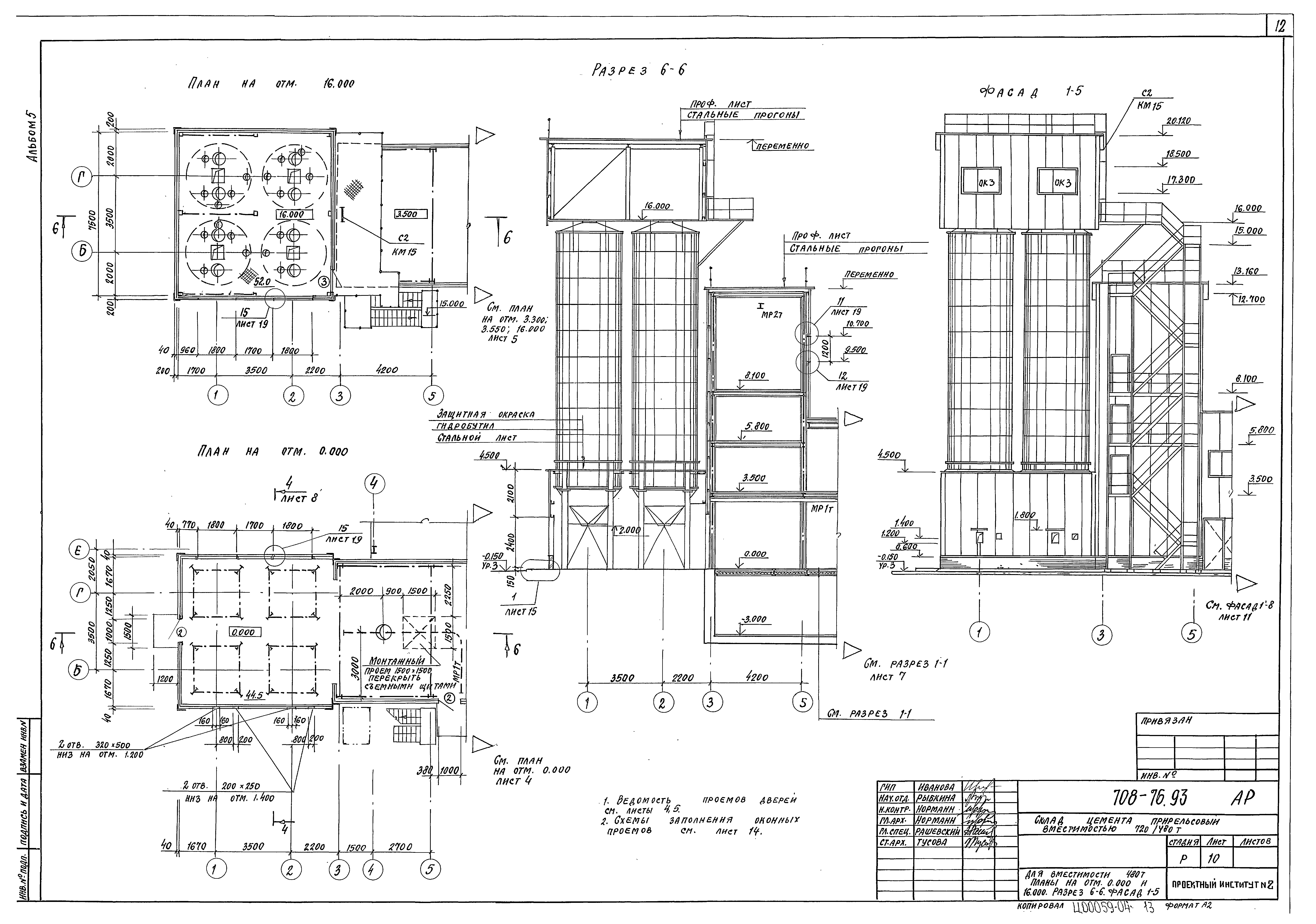
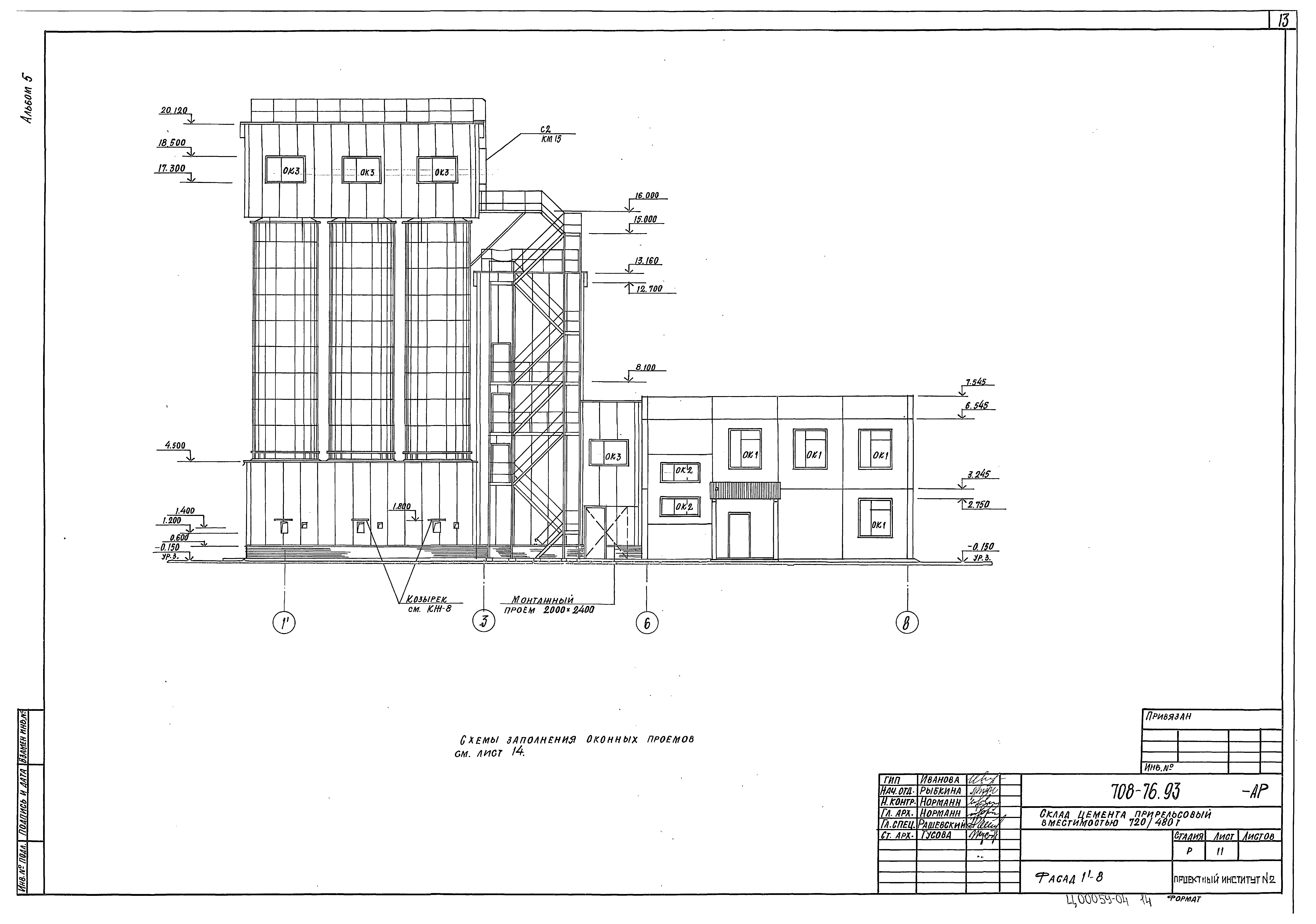
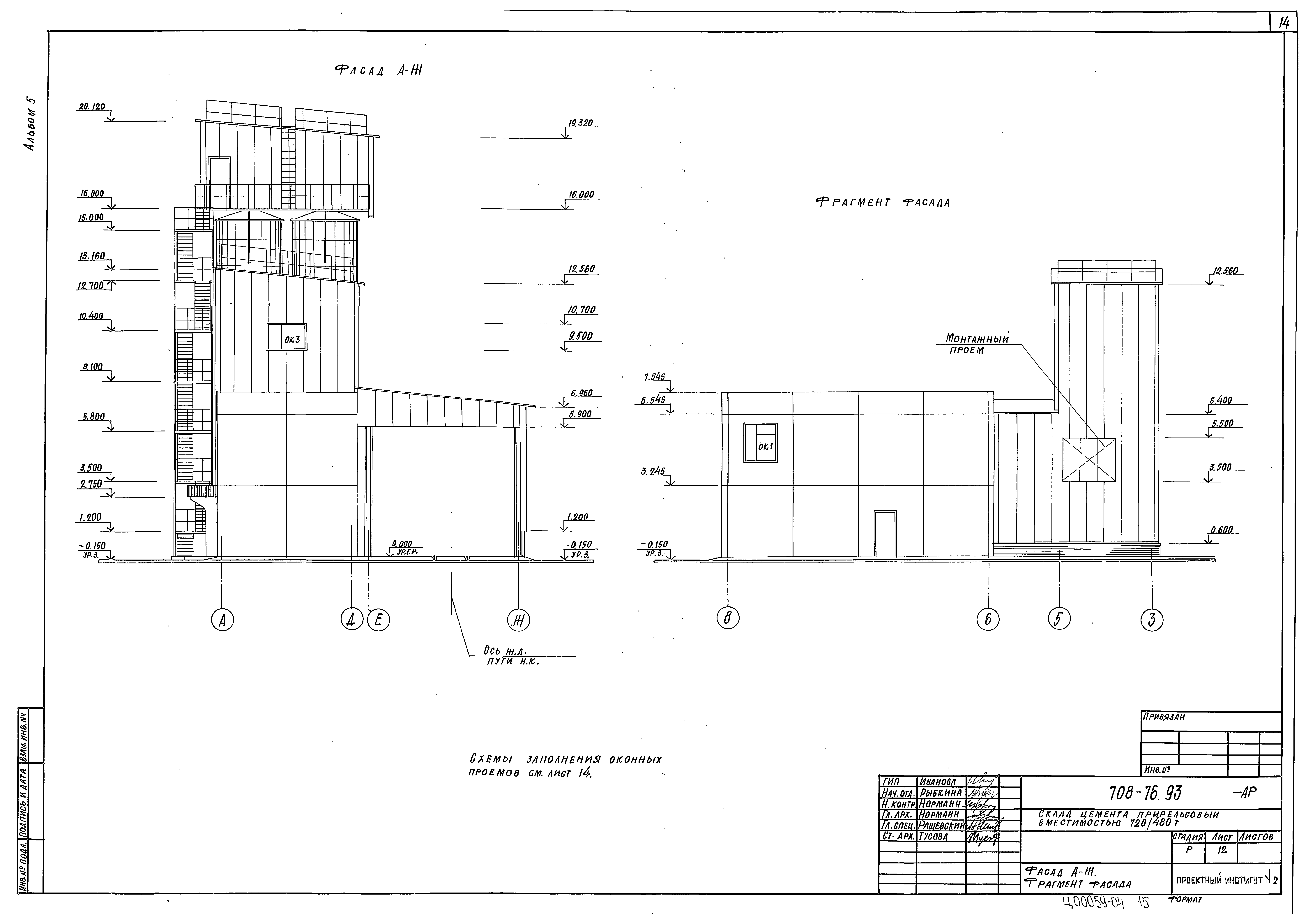
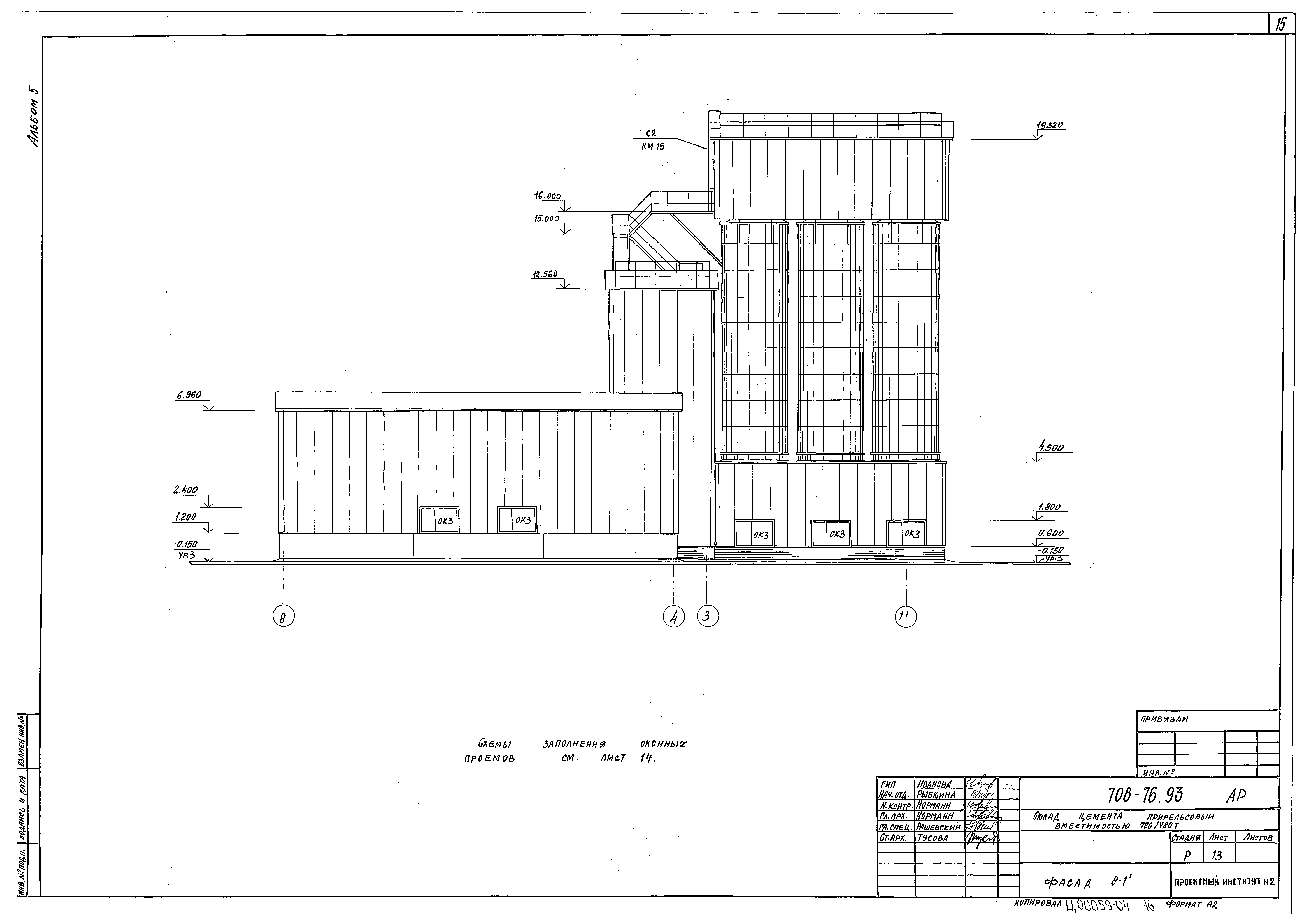
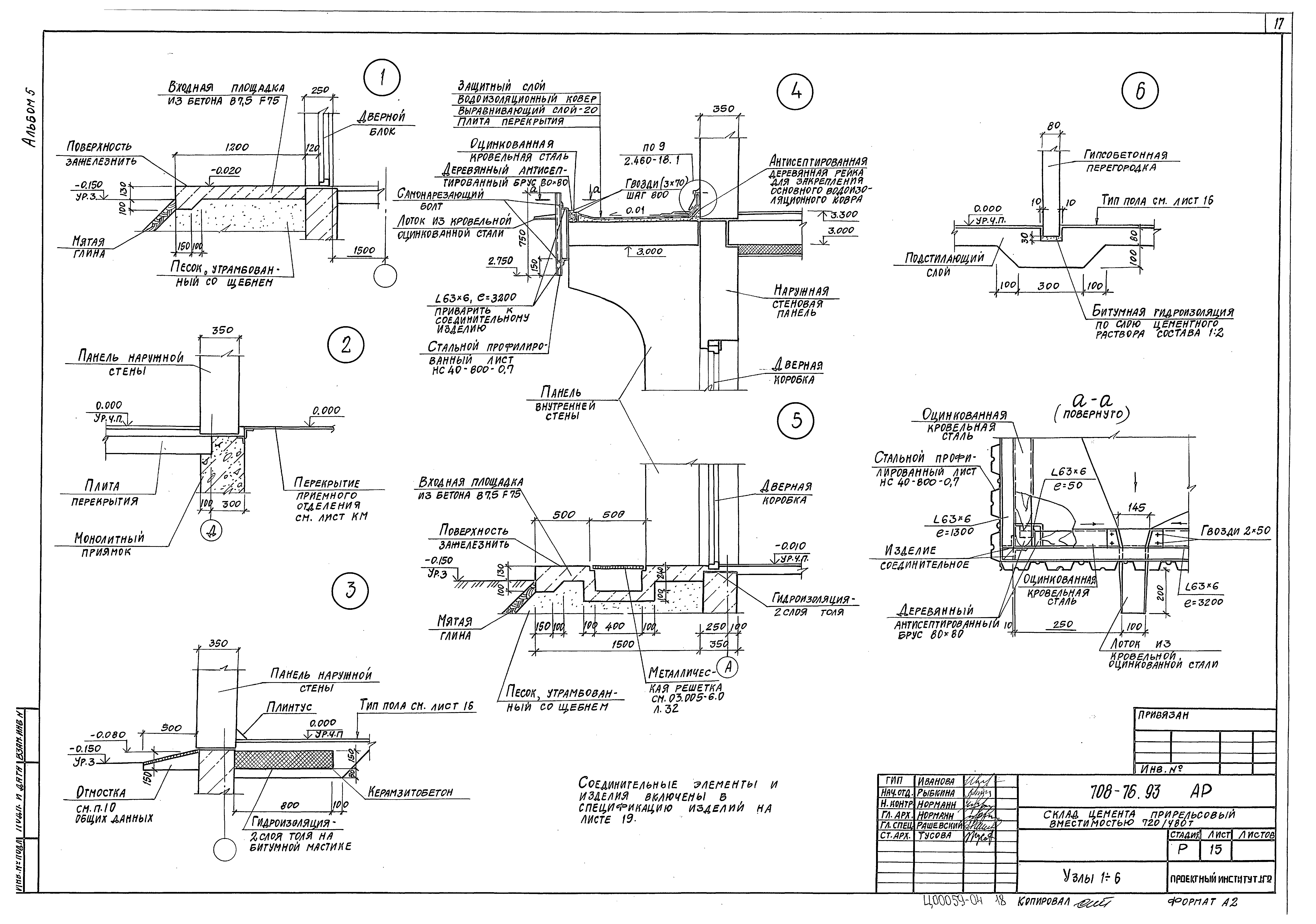
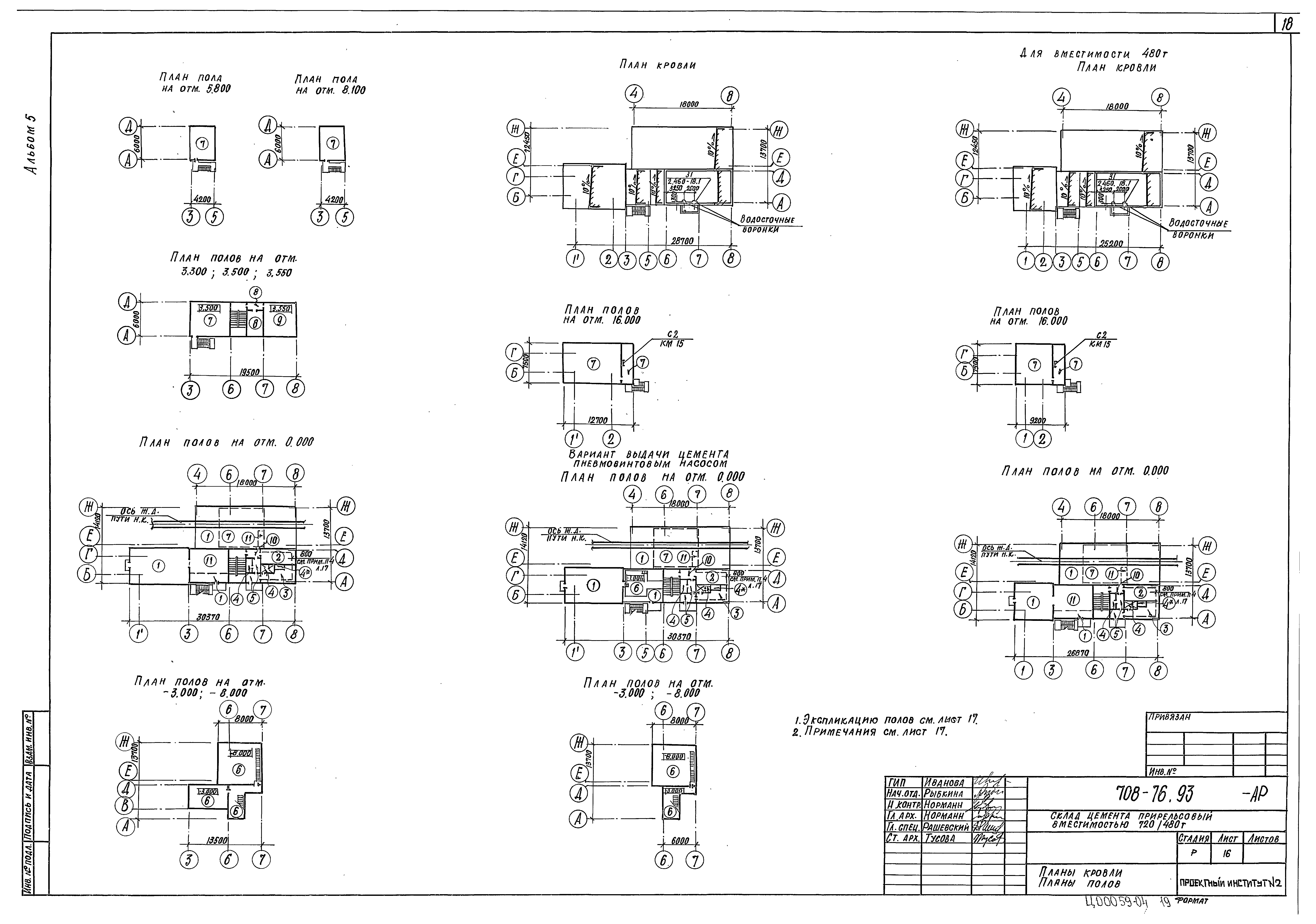
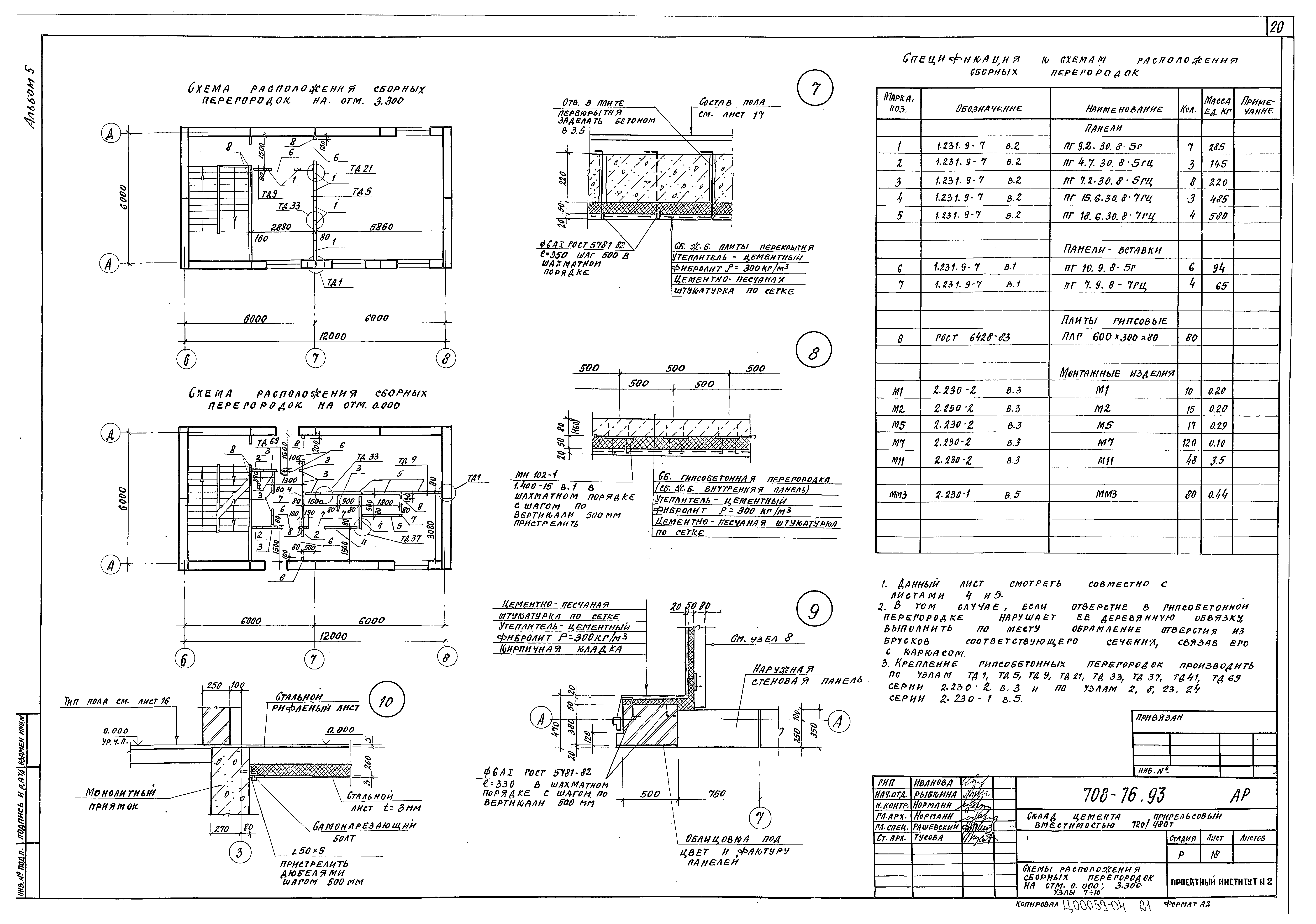
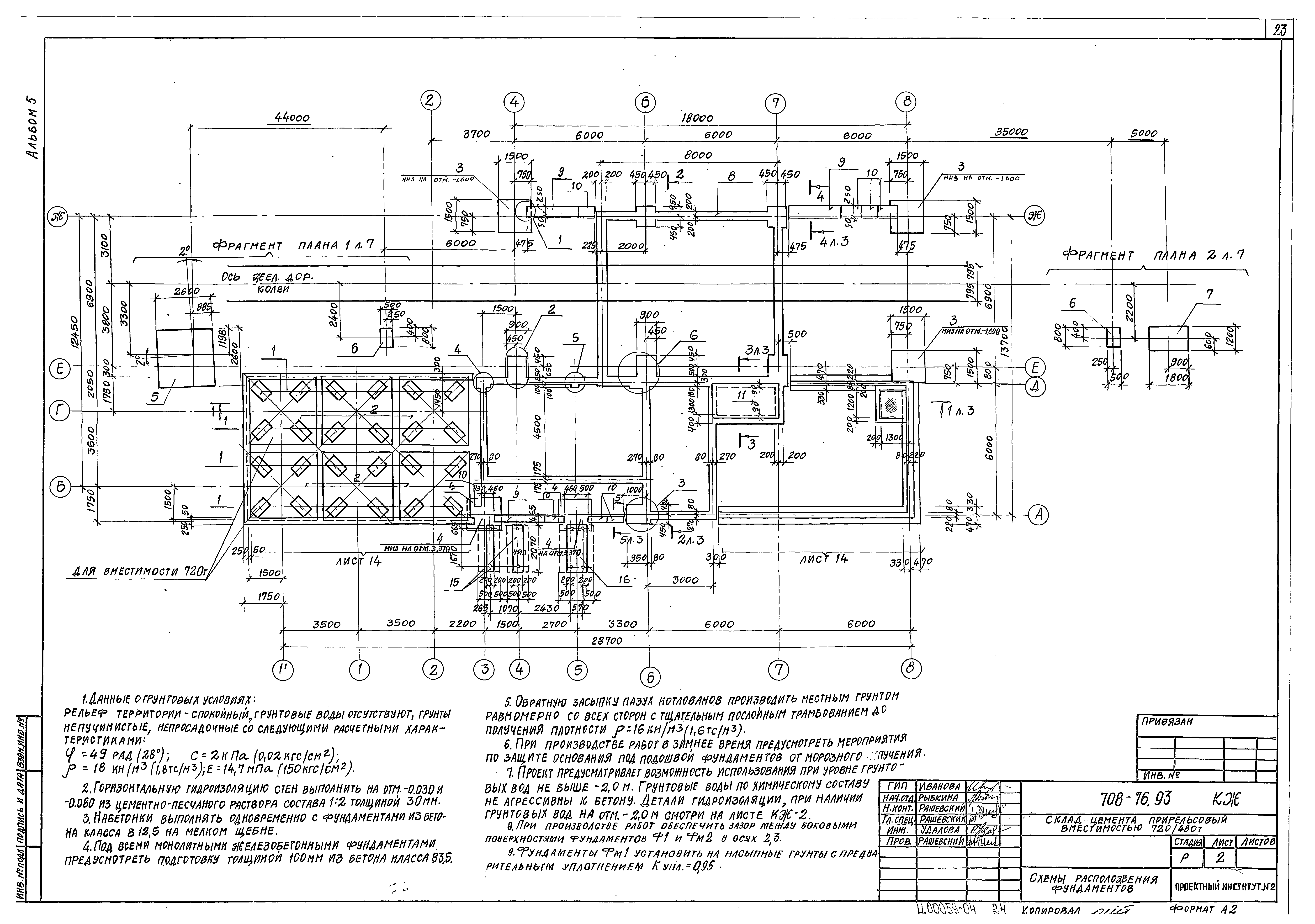
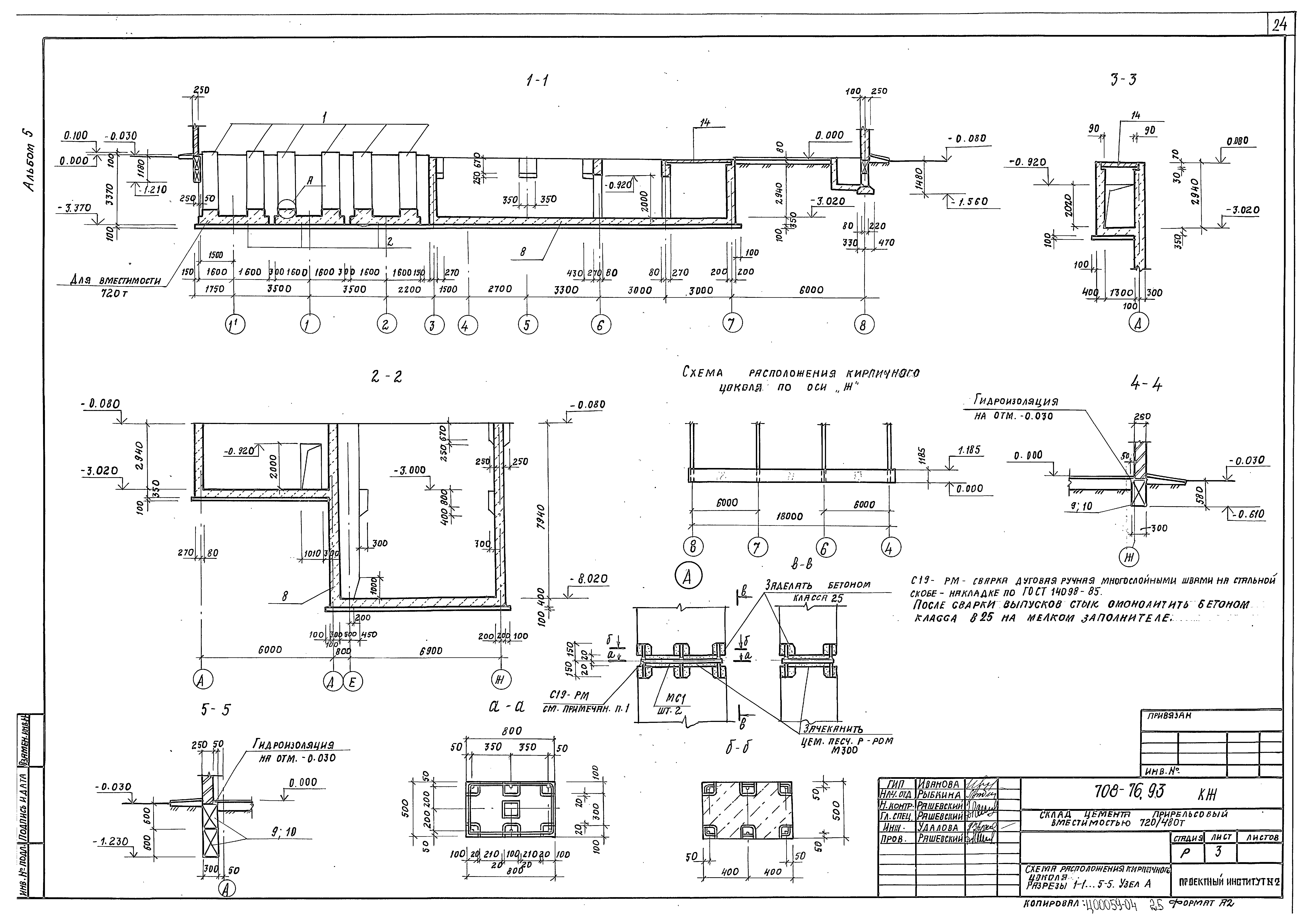
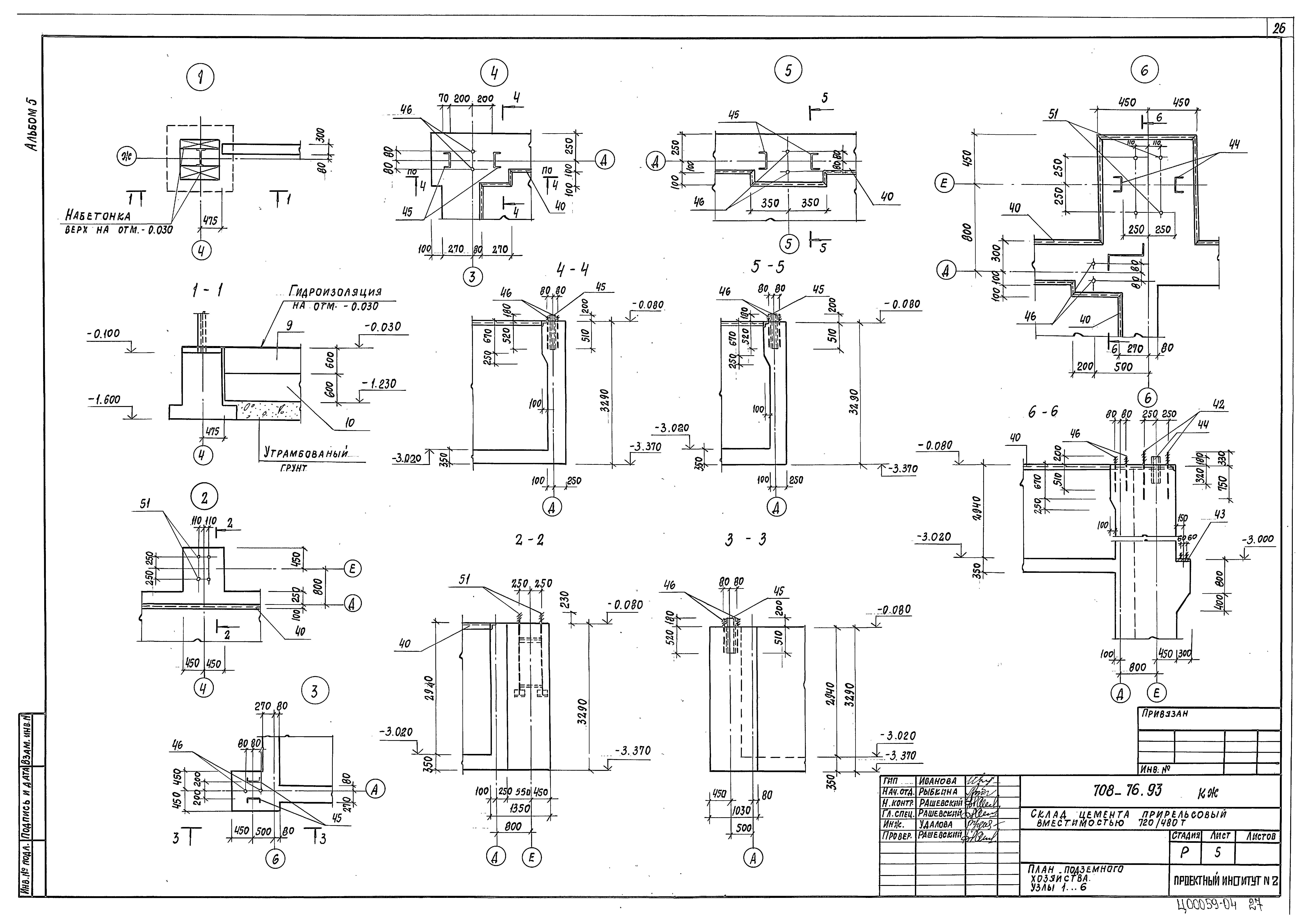
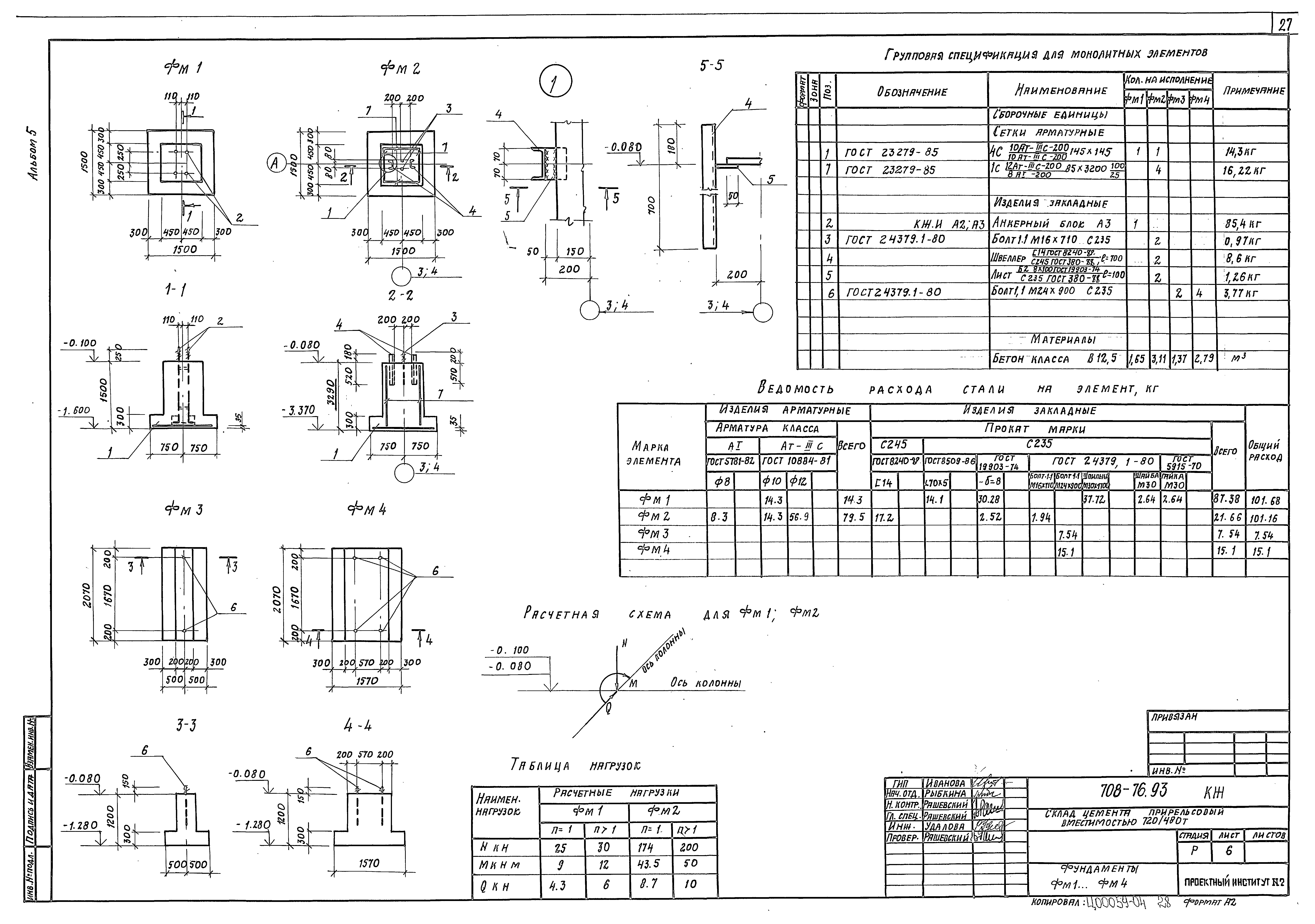
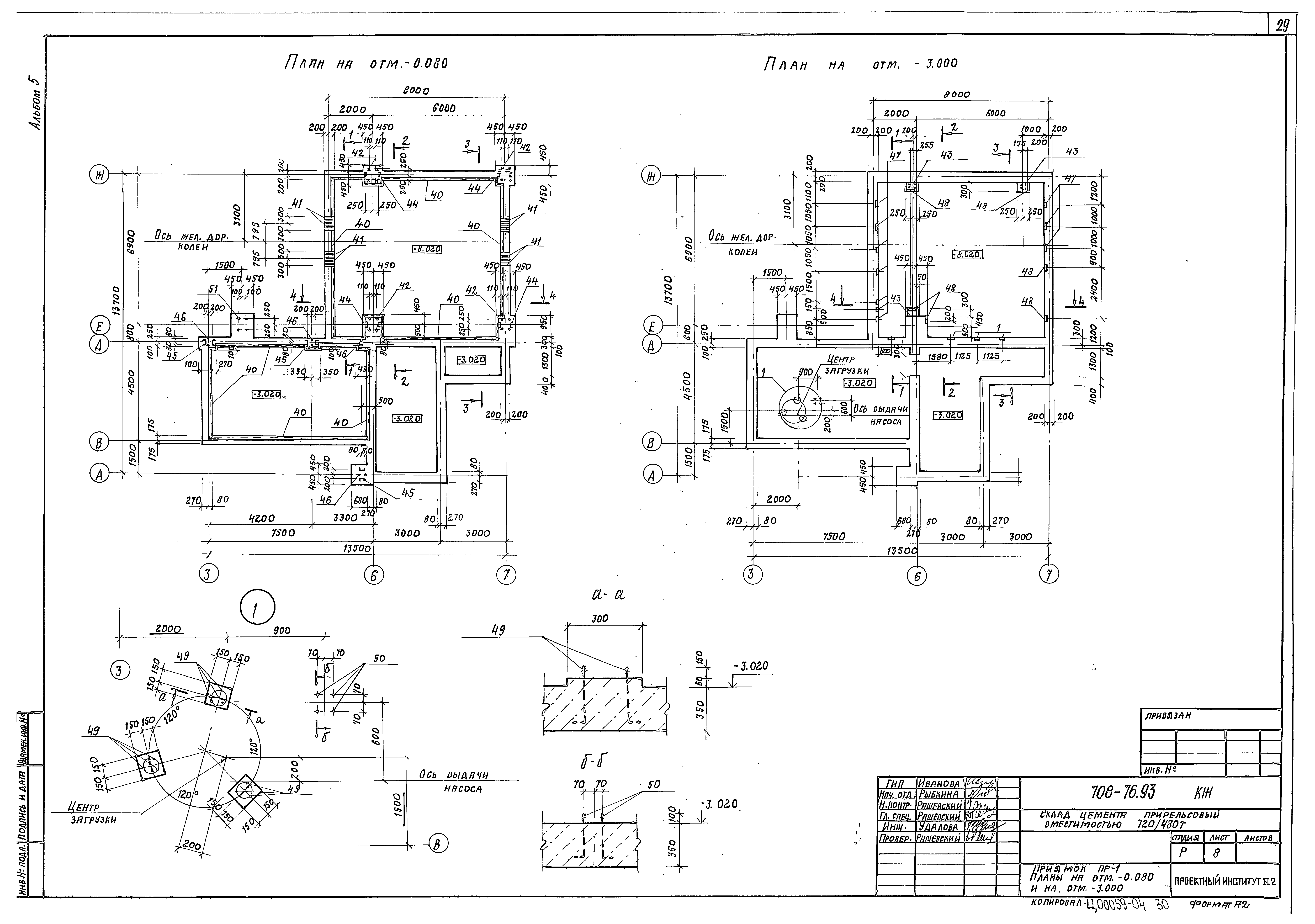
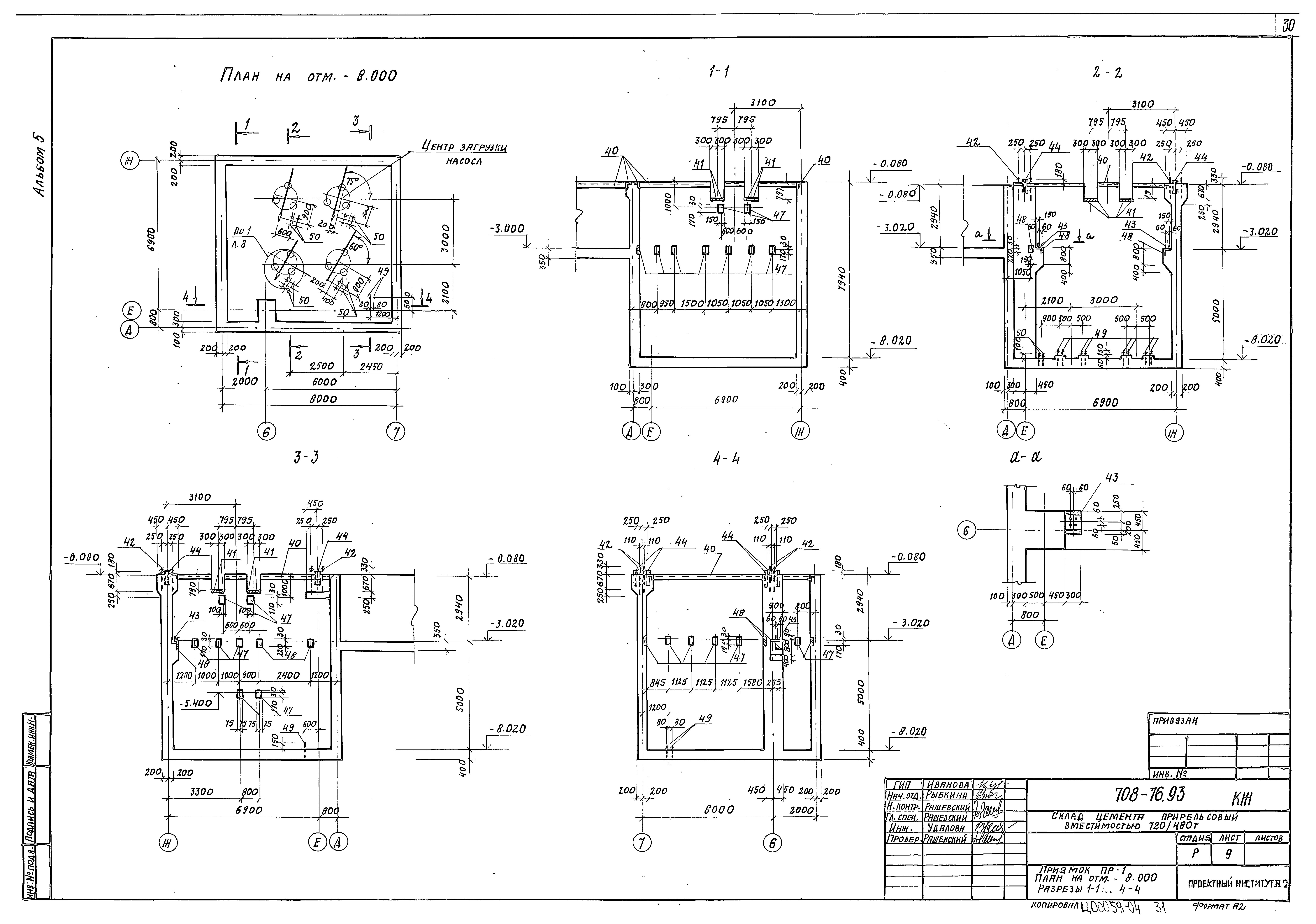
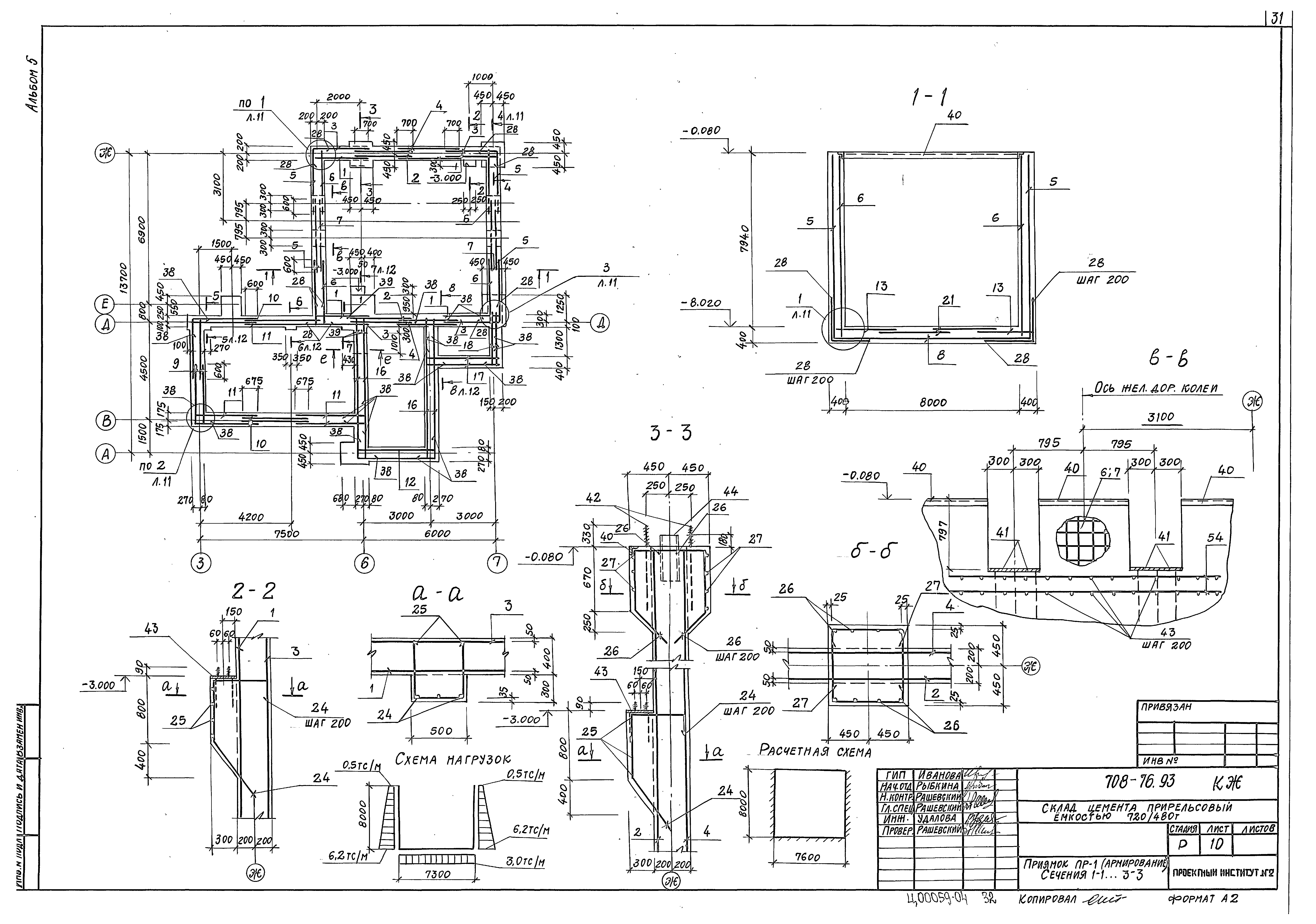
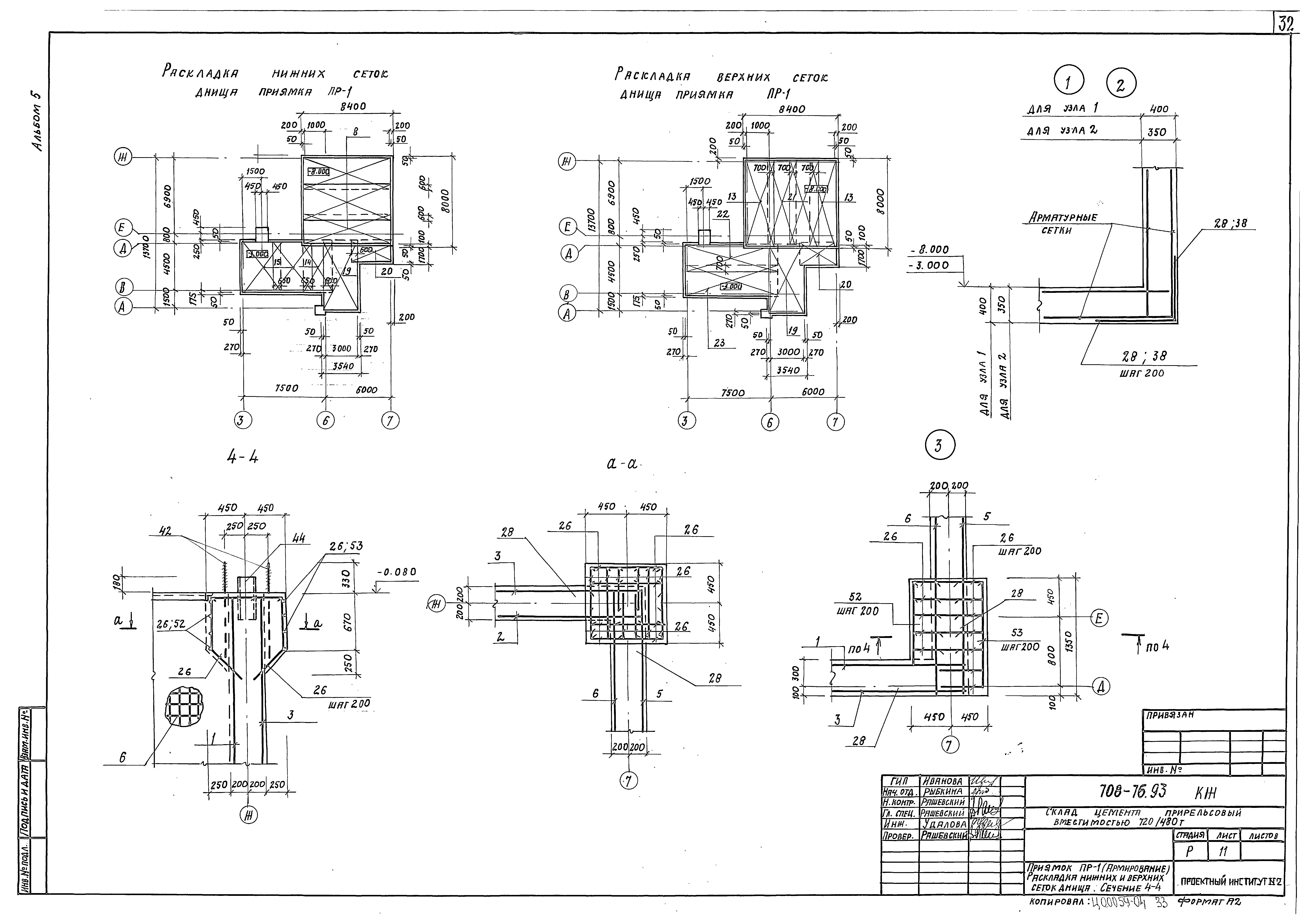
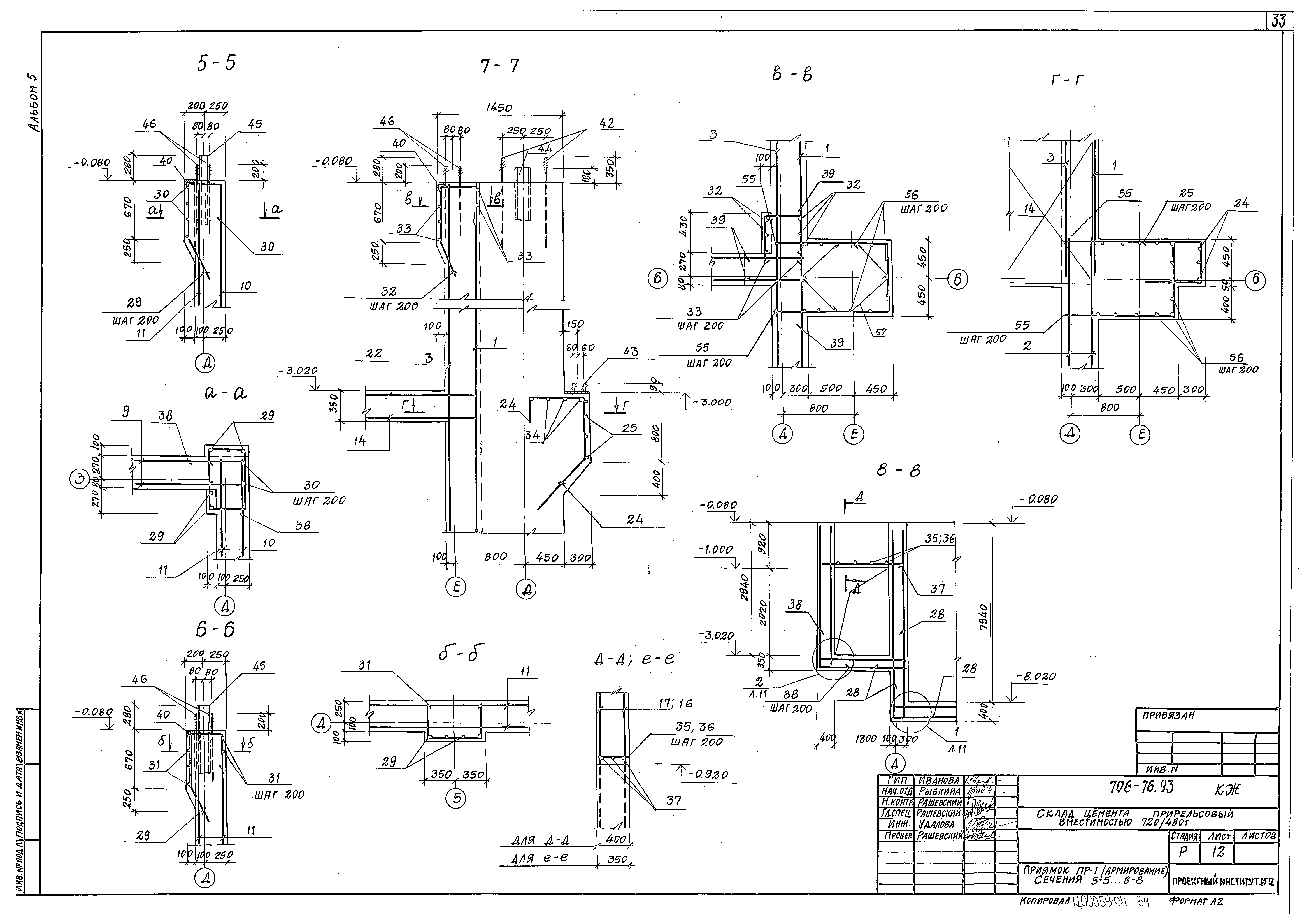
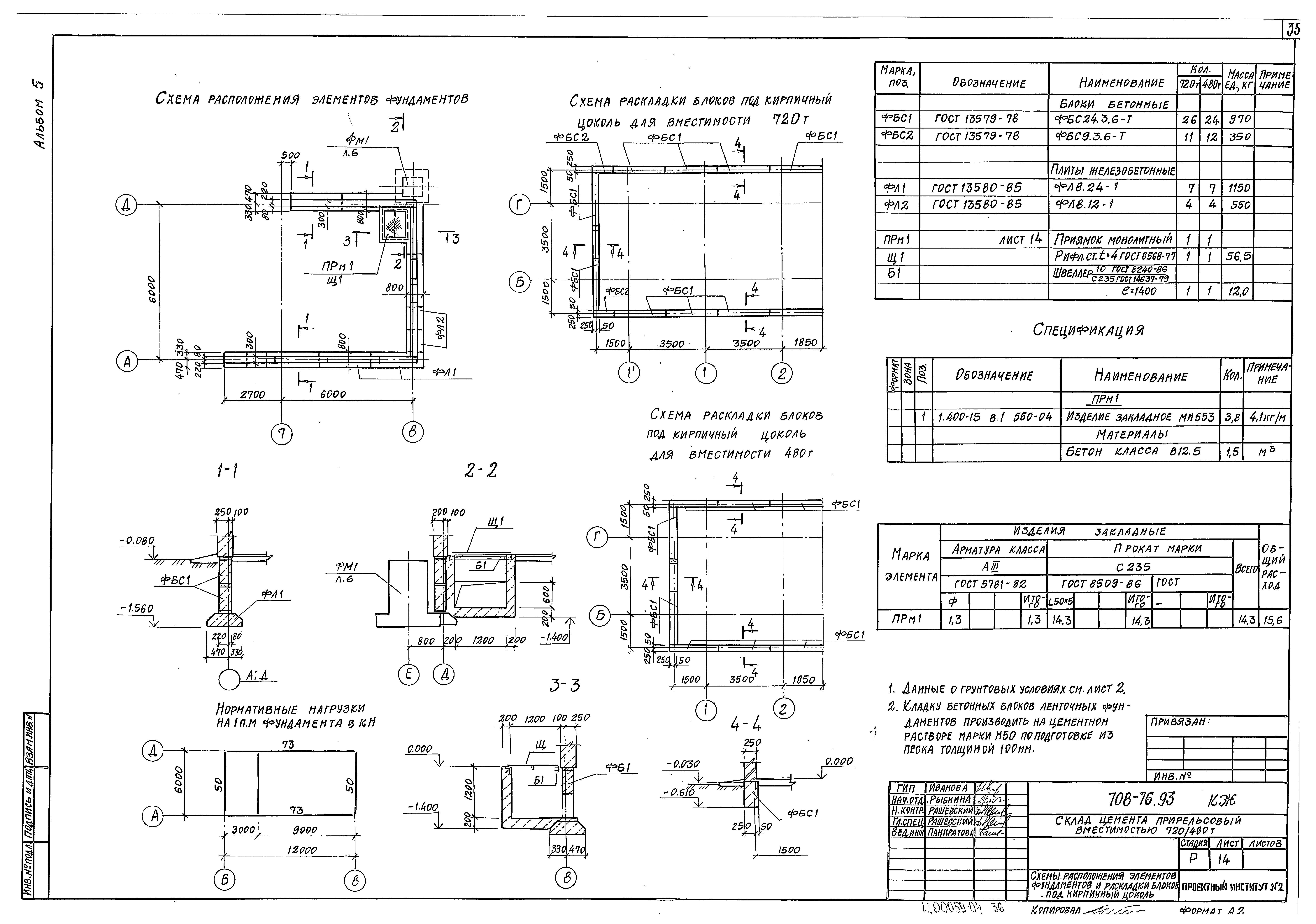
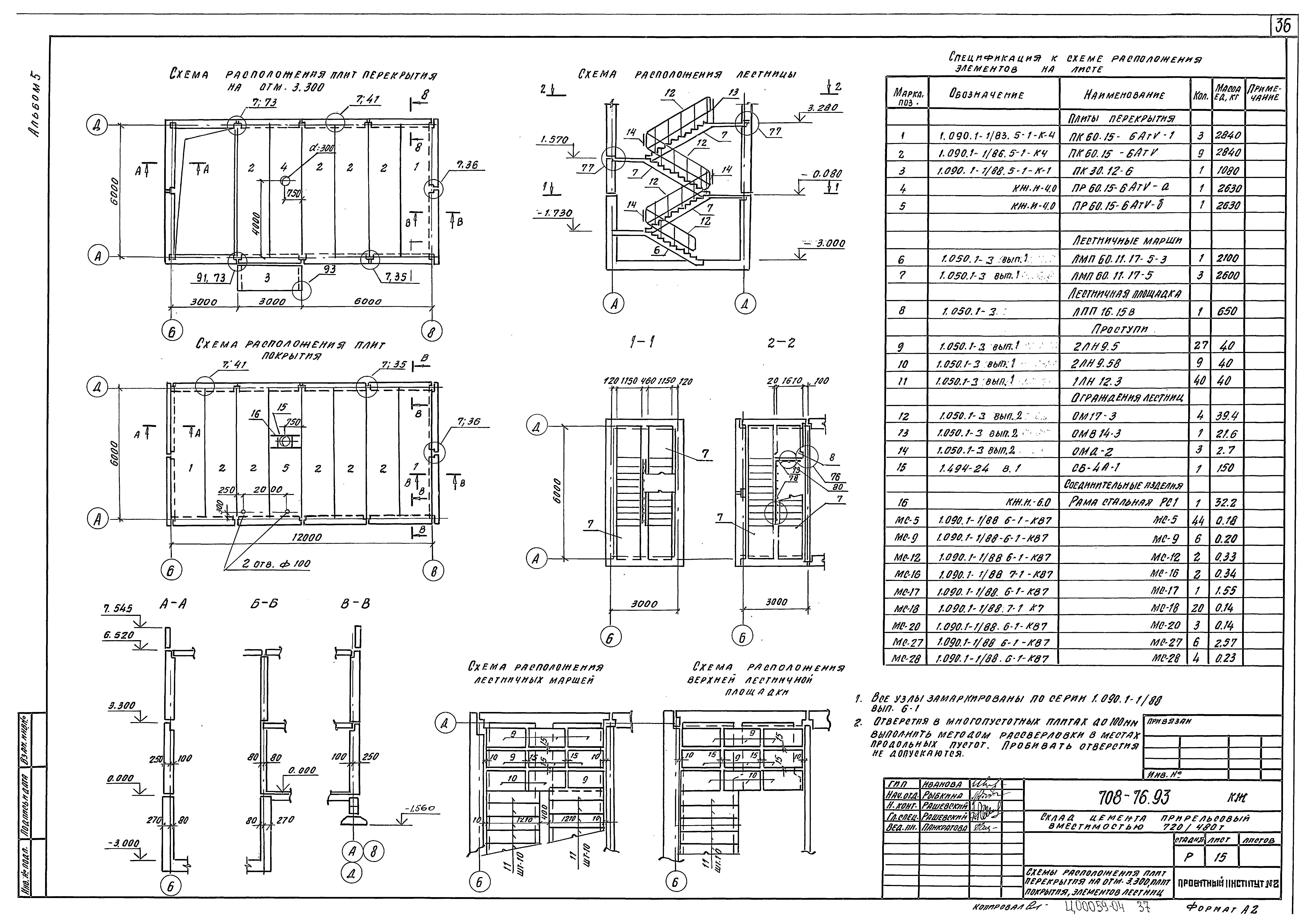
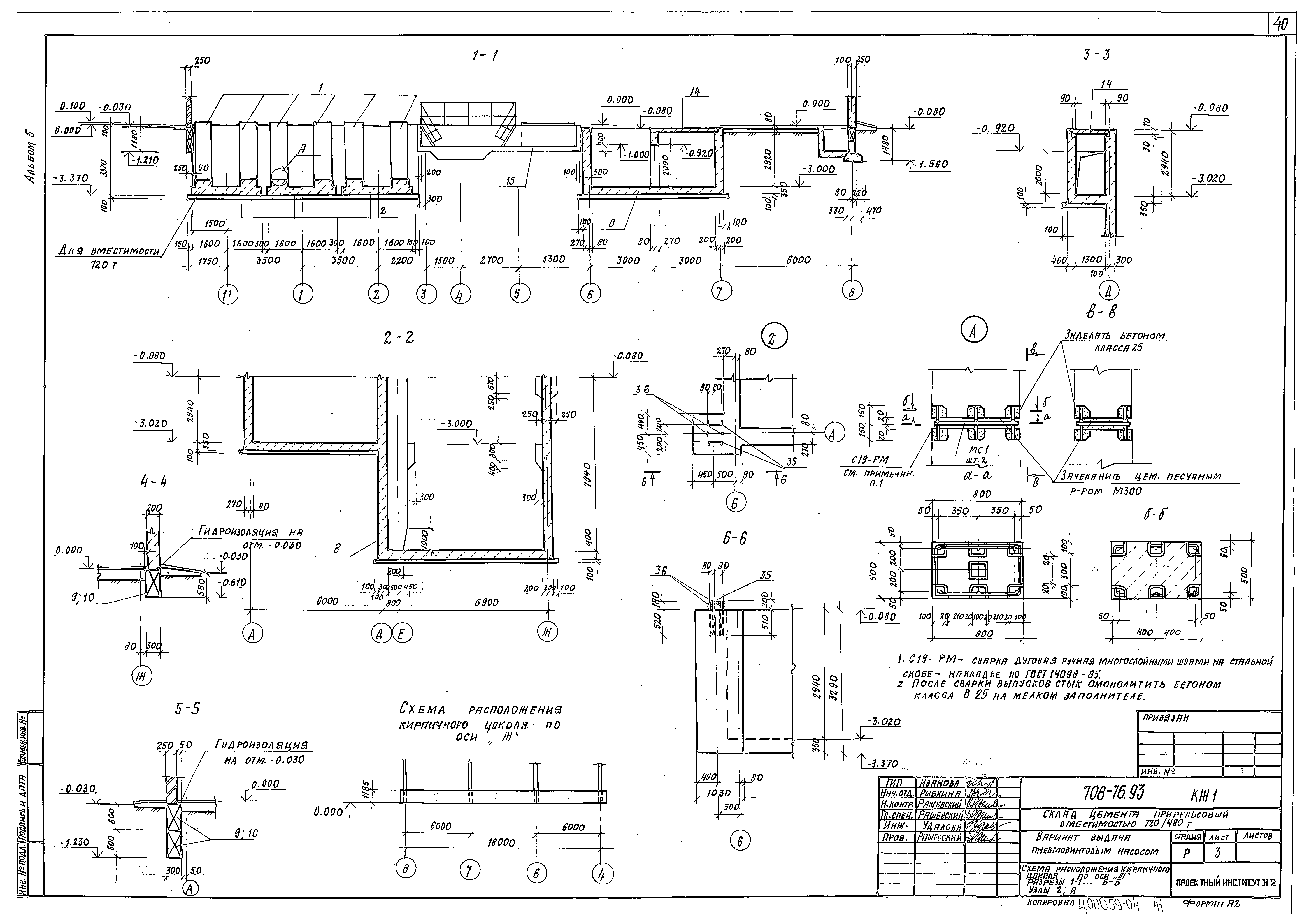
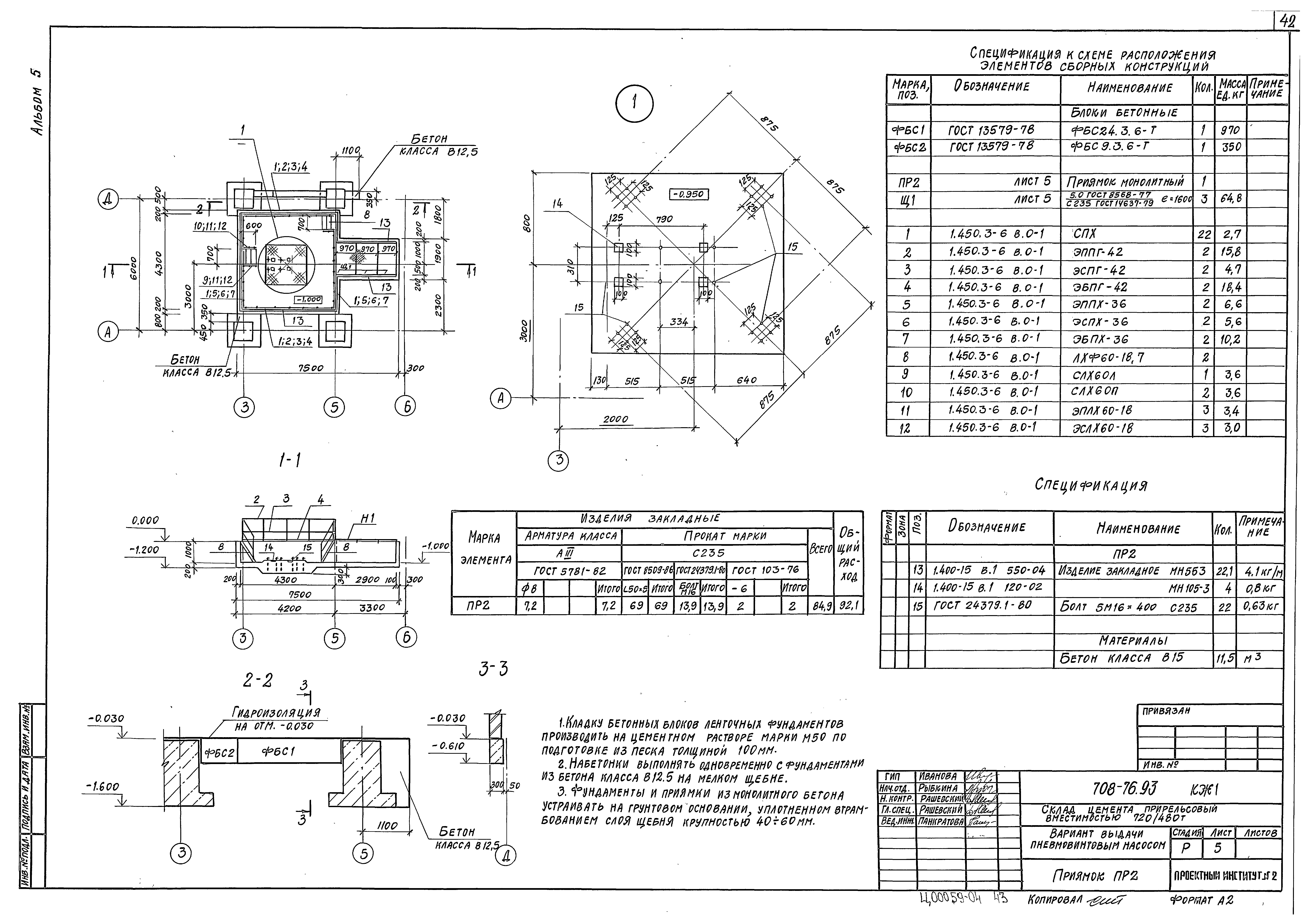
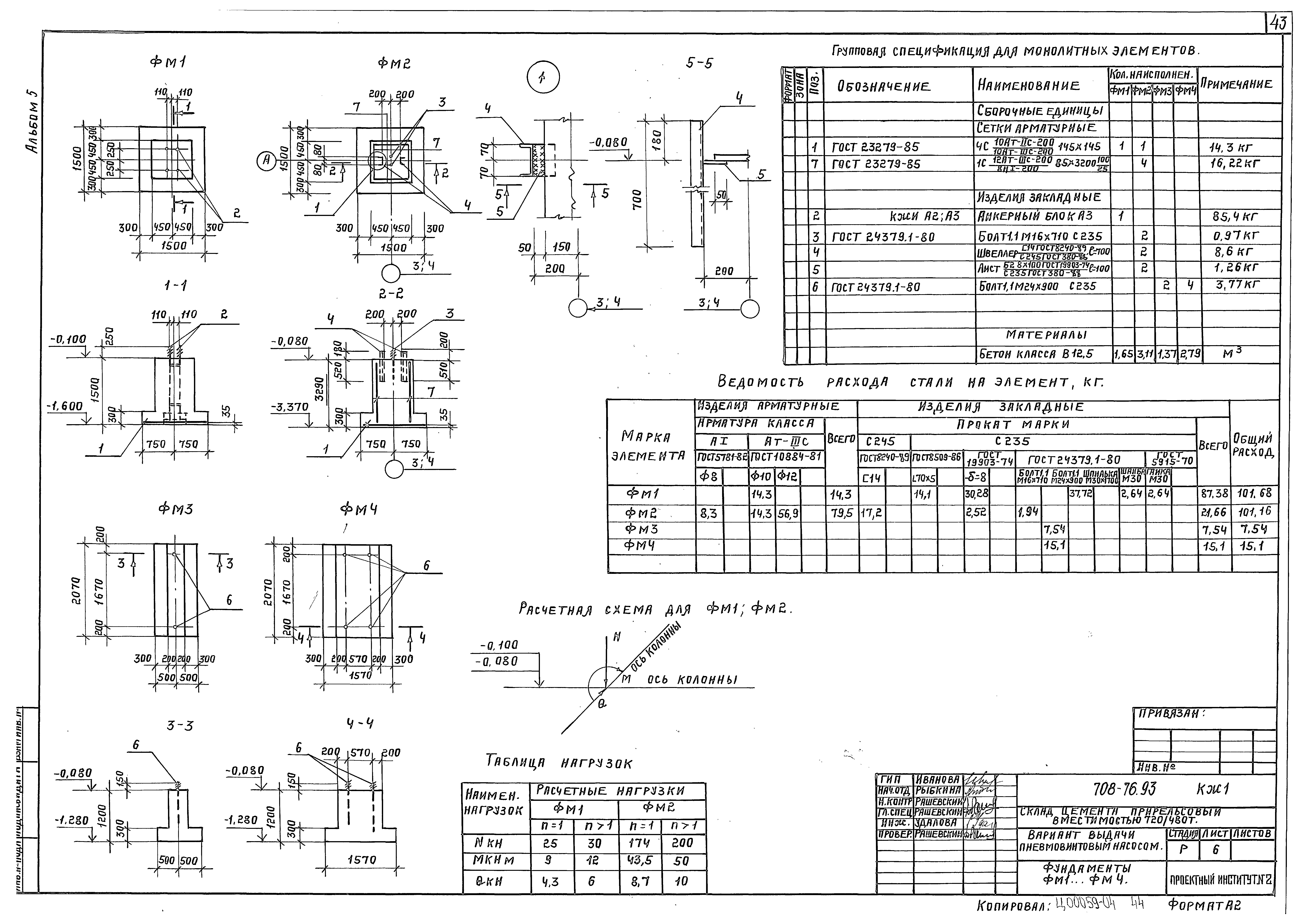
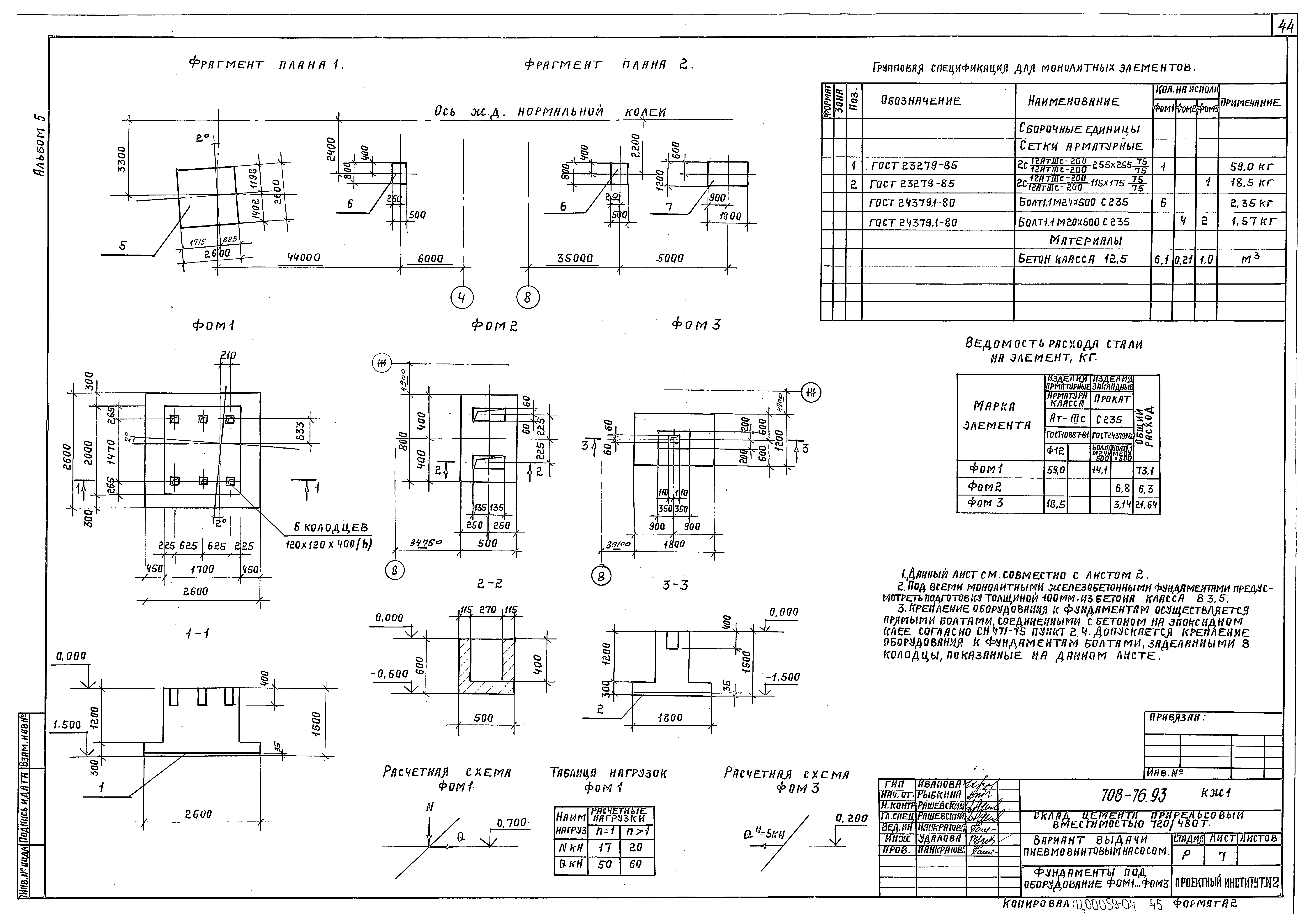
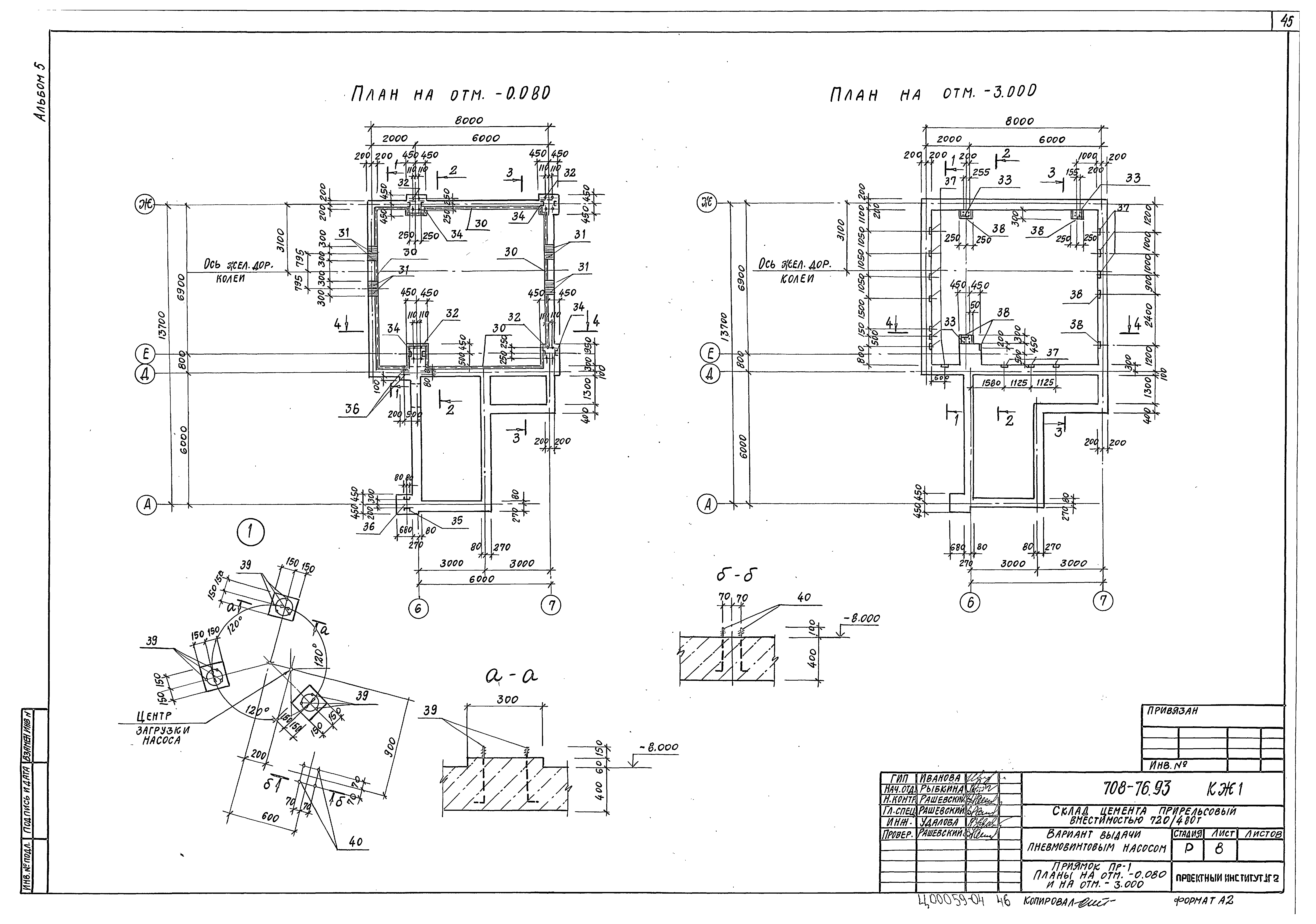
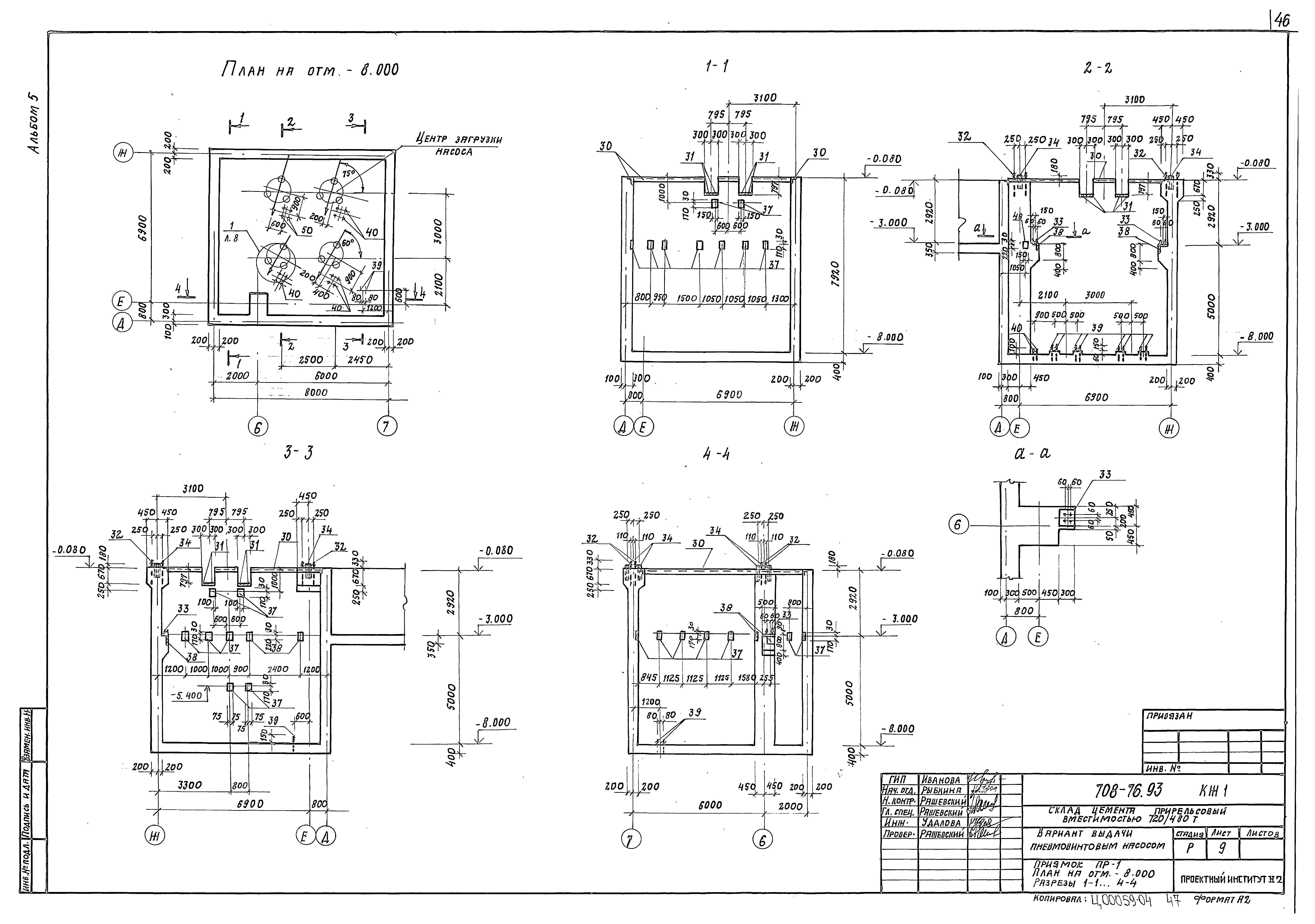
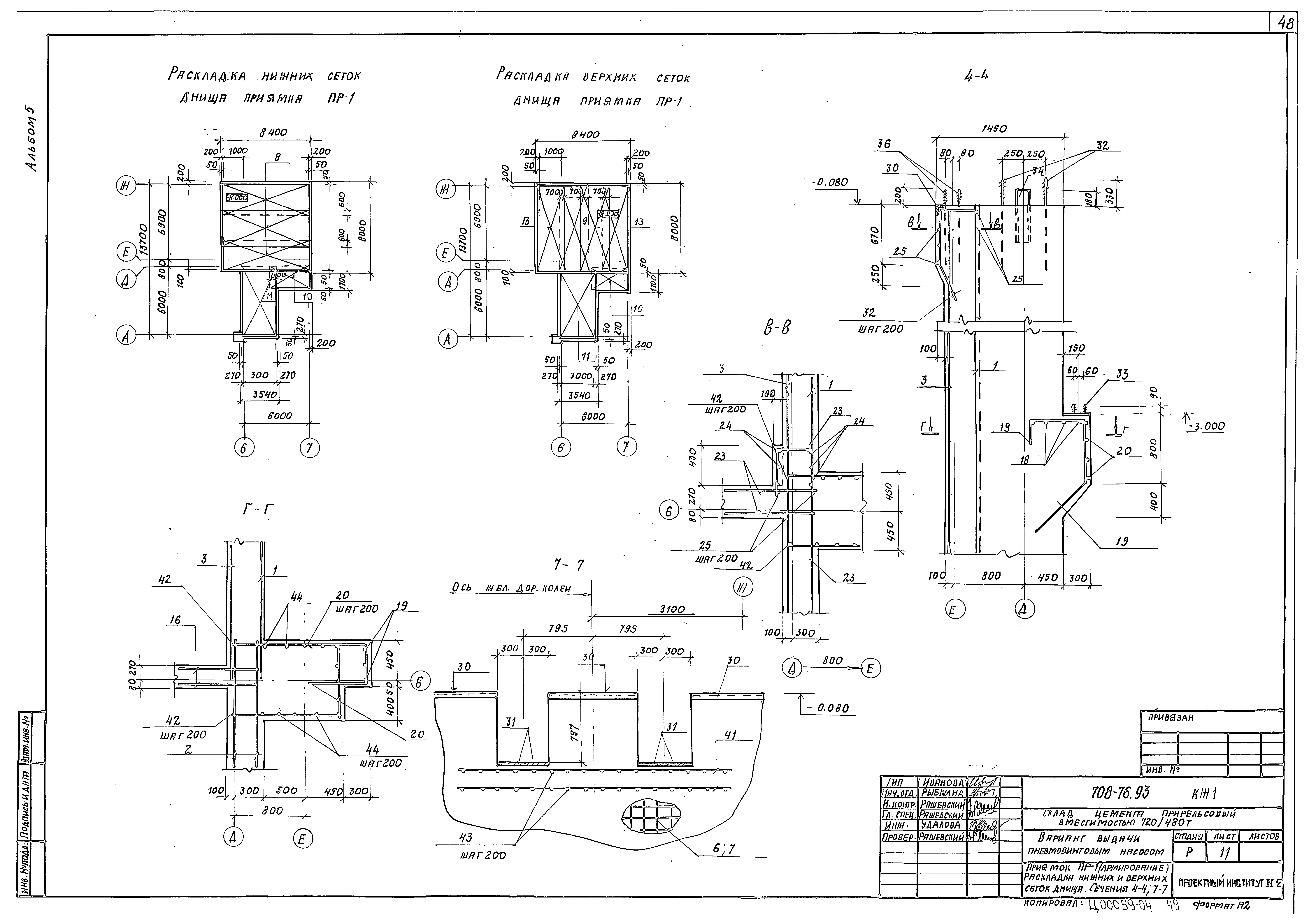
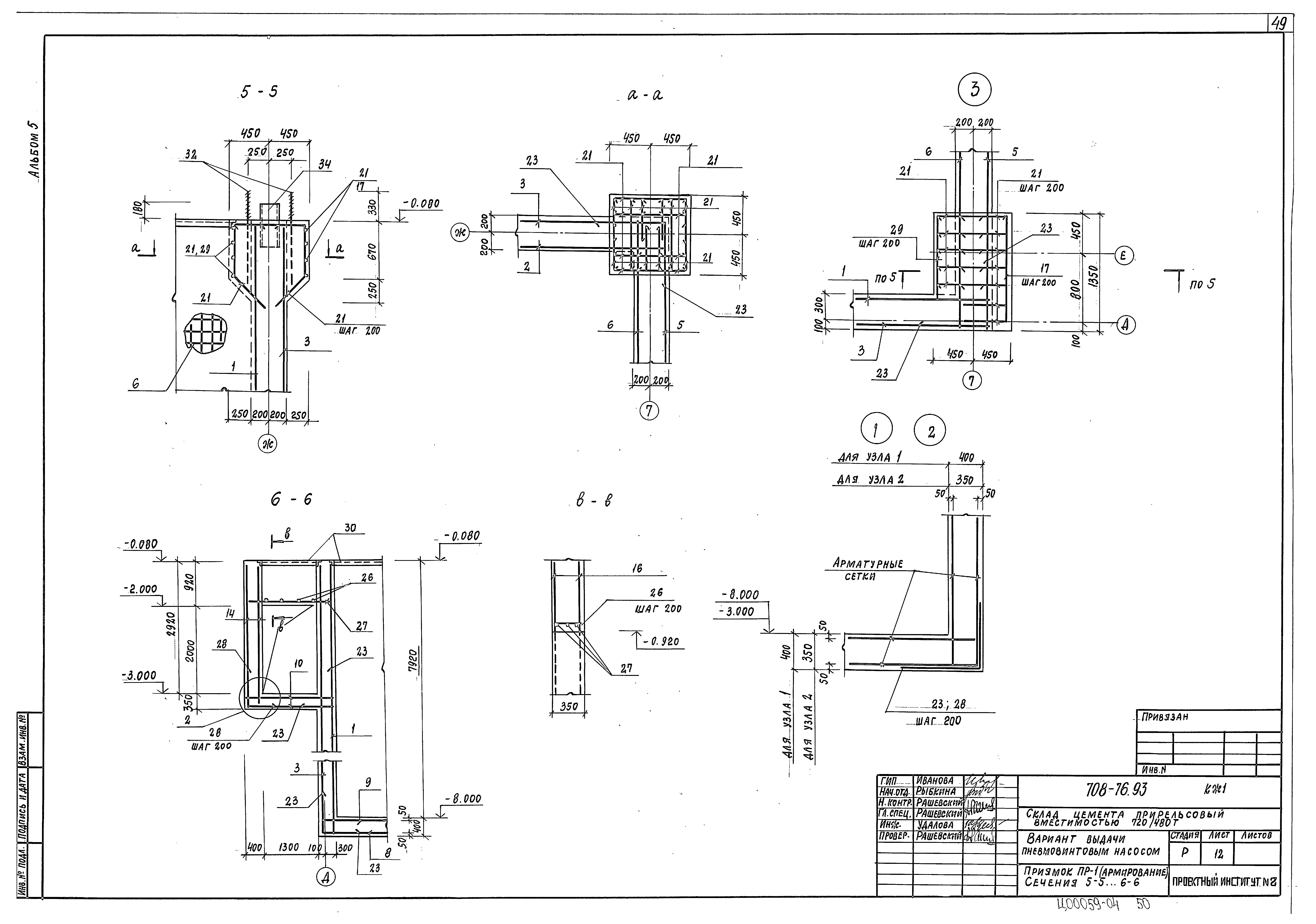
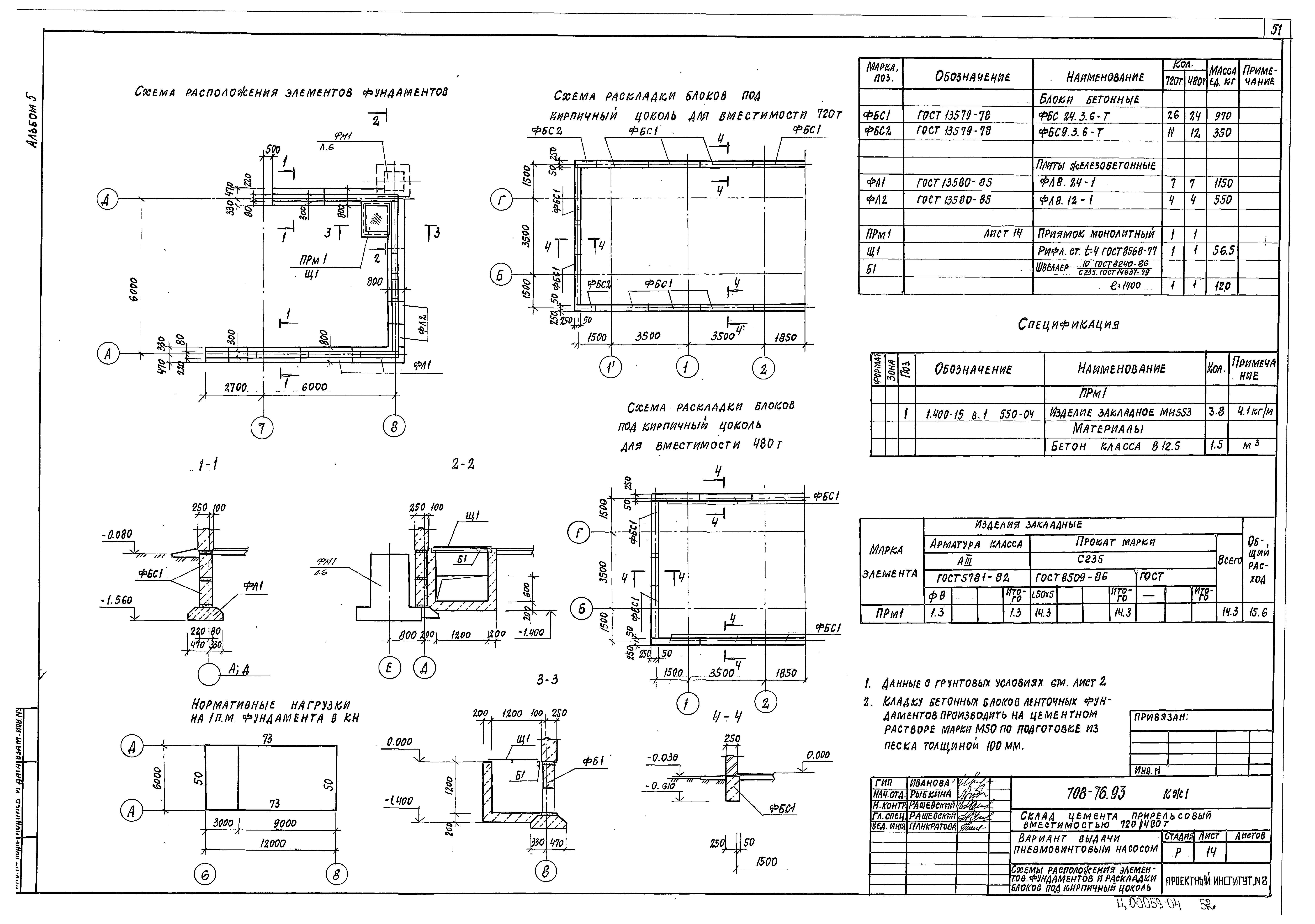
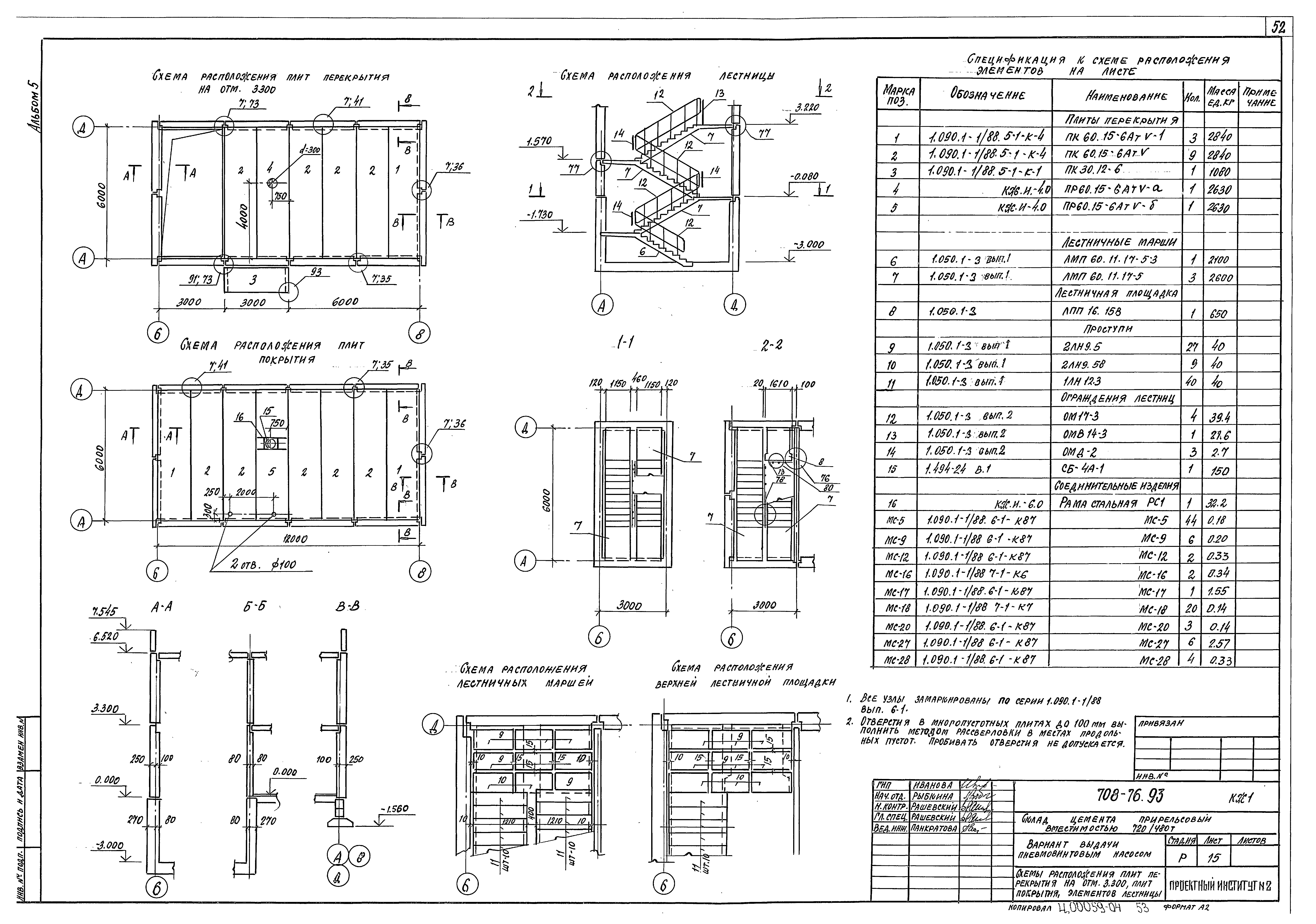
| Оглавление: | Содержание альбома Архитектурные решения Общие данные План на отм. 0.000 Планы на отм. 3.300; 3.550; 16.000; - 3.000; - 8.000 Планы на отм. 3.500; 5.800; 8.100. Схема расположения элементов съемного пола на отм. 3.550 Разрез 1-1 Разрезы 2-2, 3-3, 4-4 Для выдачи цемента пневмовинтовым насосом. Планы на отм. 0.000; - 1.000; - 8.000. Разрез 5-5 Для вместимости 480 т. Планы на отм. 0.000; 16.000. Разрез 6-6. Фасад 1 - 5 Фасад 1` - 8 Фасад А - Ж. Фрагмент фасада Фасад 8 - 1` Фасад Ж - Б. Схемы заполнения оконных проемов Узлы 1 - 6 Планы кровли. Планы полов Экспликация полов. Деталь установки трапа в полу Схемы расположения сборных перегородок на отм. 0.000; 3.300. Узлы 7 - 10 Спецификация изделий. Спецификация заполнения проемов дверей. Узлы 11 - 16 Конструкции железобетонные Общие данные Схемы расположения фундаментов, подземного хозяйства Разрезы 1-1, 2-2. Схема расположения кирпичного цоколя Деталь гидроизоляции. Спецификация к схеме расположения элементов конструкций План подземного хозяйства. Узлы 1…6 Фундаменты Фм1, Фм2 Фундаменты под оборудование ФОм1…ФОм3 Приямок ПР-1. Планы на отм. - 0.080 и на отм. - 3.000 Приямок ПР-1. План на отм. - 8.000. Разрезы 1-1…4-4 Приямок ПР-1 (армирование). Сечения 1-1…3-3 Приямок ПР-1 (армирование). Раскладка нижних и верхних сеток днища. Сечение 4-4 Приямок ПР-1 (армирование). Сечения 5-5, 6-6 Приямок ПР-1 (армирование). Спецификация. Ведомость расхода стали Схемы расположения элементов фундаментов и раскладка блоков под кирпичный цоколь Схемы расположения плит перекрытия на отм. 3.300, плит покрытия, элементов лестницы Схемы расположения наружных и внутренних стеновых панелей Конструкции железобетонные (вариант выдачи пневмовинтовым насосом) Общие данные Схемы расположения фундаментов, подземного хозяйства. Узел 1 Разрезы 1-1, 2-2. Схема расположения кирпичного цоколя. Узел 2 Деталь гидроизоляции. Спецификация к схеме расположения элементов конструкций. Узел 3 Приямок ПР2 Фундаменты Фм1, Фм2 Фундаменты под оборудование ФОм1…ФОм3 Приямок ПР-1. Планы на отм. - 0.080 и на отм. - 3.000 Приямок ПР-1. План на отм. - 8.000. Разрезы 1-1…4-4 Приямок ПР-1 (армирование). Сечения 1-1…3-3 Приямок ПР-1 (армирование). Раскладка нижних и верхних сеток днища. Сечение 4-4 Приямок ПР-1 (армирование). Сечения 5-5, 6-6 Приямок ПР-1 (армирование). Спецификация. Ведомость расхода стали Схемы расположения элементов фундаментов и раскладка блоков под кирпичный цоколь Схемы расположения плит перекрытия на отм. 3.300, плит покрытия, элементов лестницы Схемы расположения наружных и внутренних стеновых панелей |
| Разработан: | Гипростроммаш Проектный институт №2 |
| Утверждён: | 30.11.1993 Главпроект Госстроя России (9-3-1/254) |





















































