Скачать Типовой проект 708-76.93 Альбом 8. Отопление и вентиляция. Технологическая аспирация. Внутренний водопровод и канализация. Технологические коммуникации. Технологические коммуникации (вариант выдачи пневмовинтовым насосом)Дата актуализации: 01.01.2021
|
| Обозначение: | Типовой проект 708-76.93 |
| Обозначение англ: | 708-76.93 |
| Статус: | не определен законодательством |
| Название рус.: | Альбом 8. Отопление и вентиляция. Технологическая аспирация. Внутренний водопровод и канализация. Технологические коммуникации. Технологические коммуникации (вариант выдачи пневмовинтовым насосом) |
| Дата добавления в базу: | 01.10.2014 |
| Дата актуализации: | 01.01.2021 |
| Дата введения: | 06.12.1993 |
| Дата окончания срока действия: | 30.06.2003 |
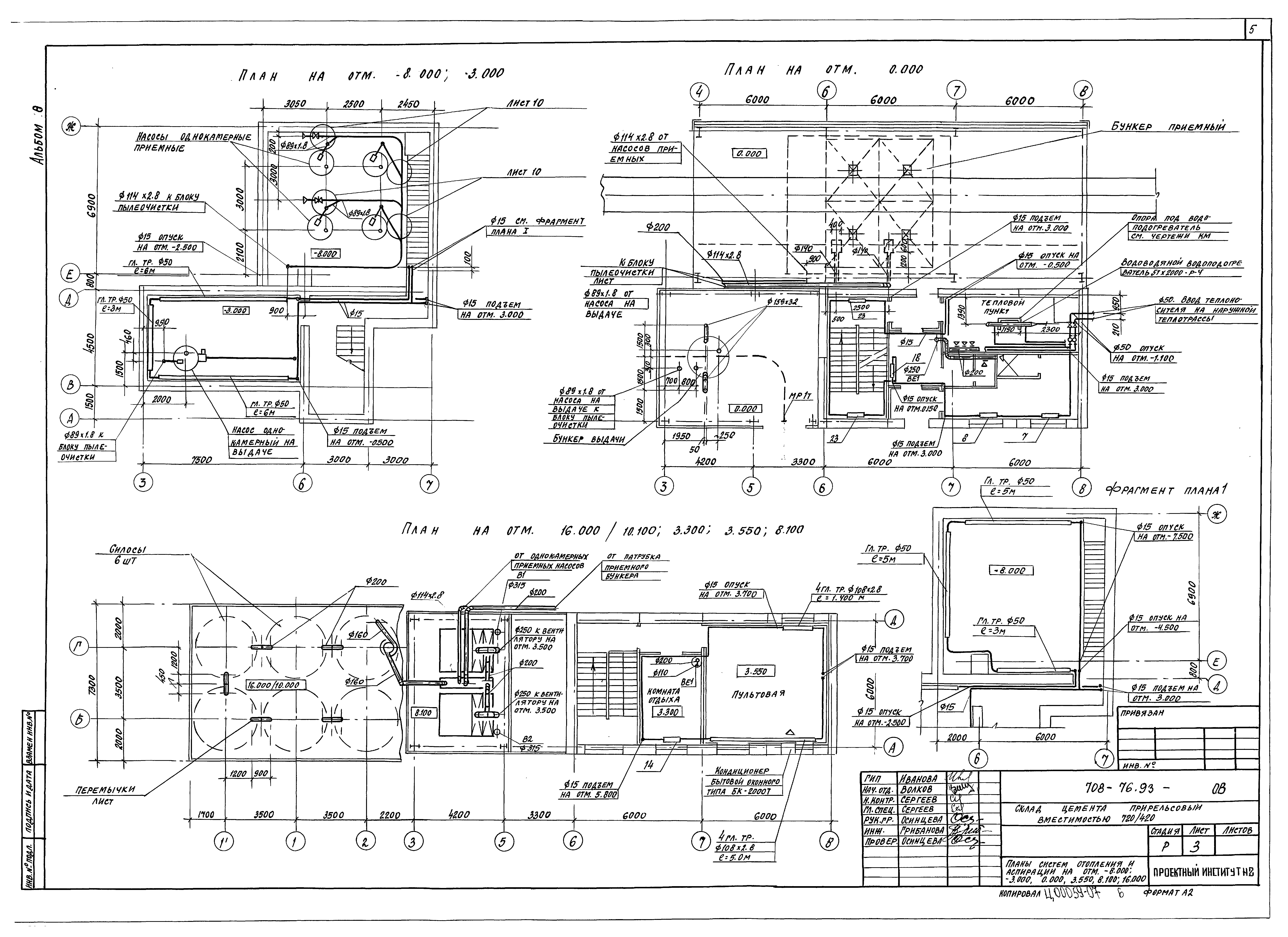
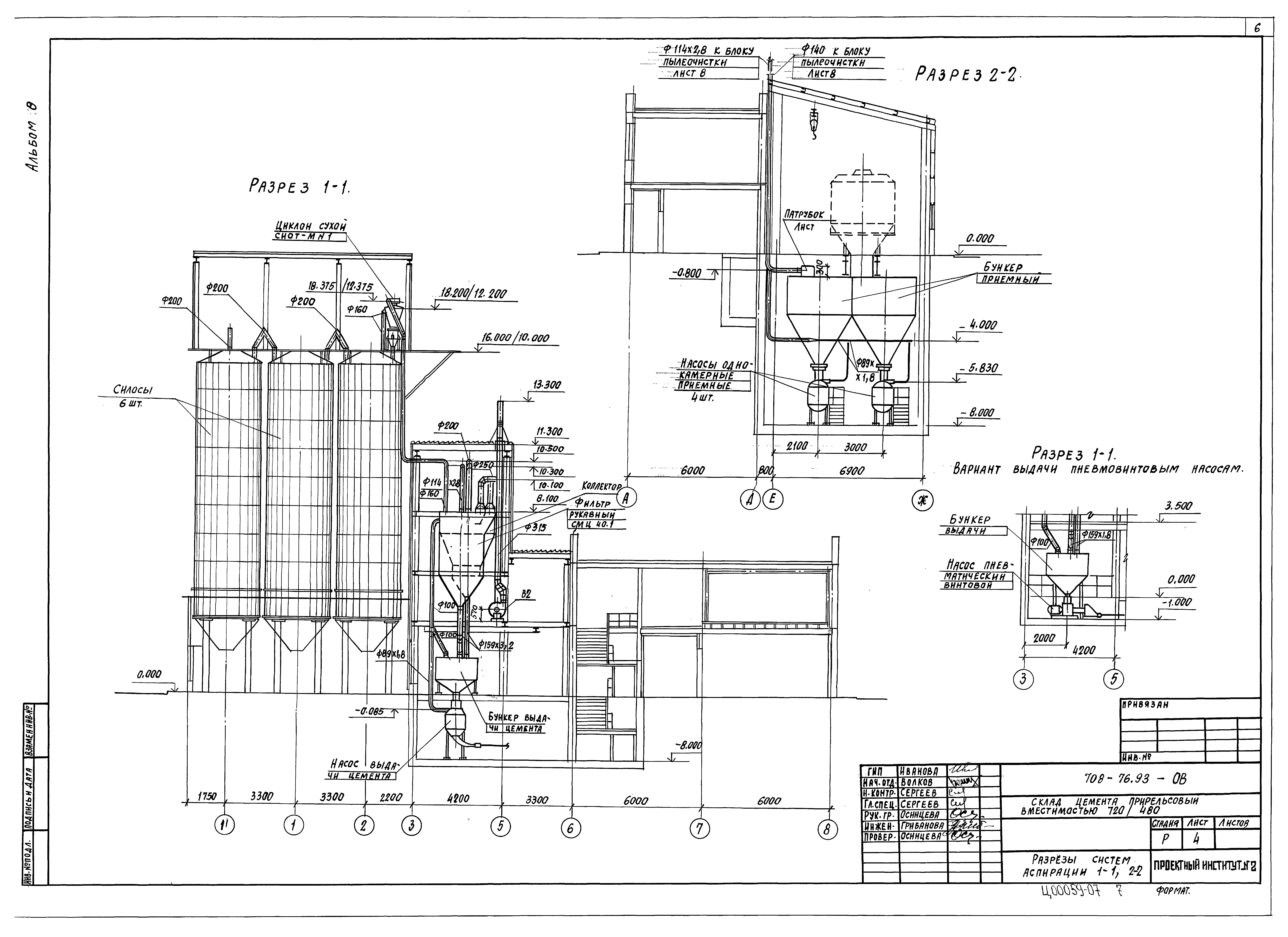
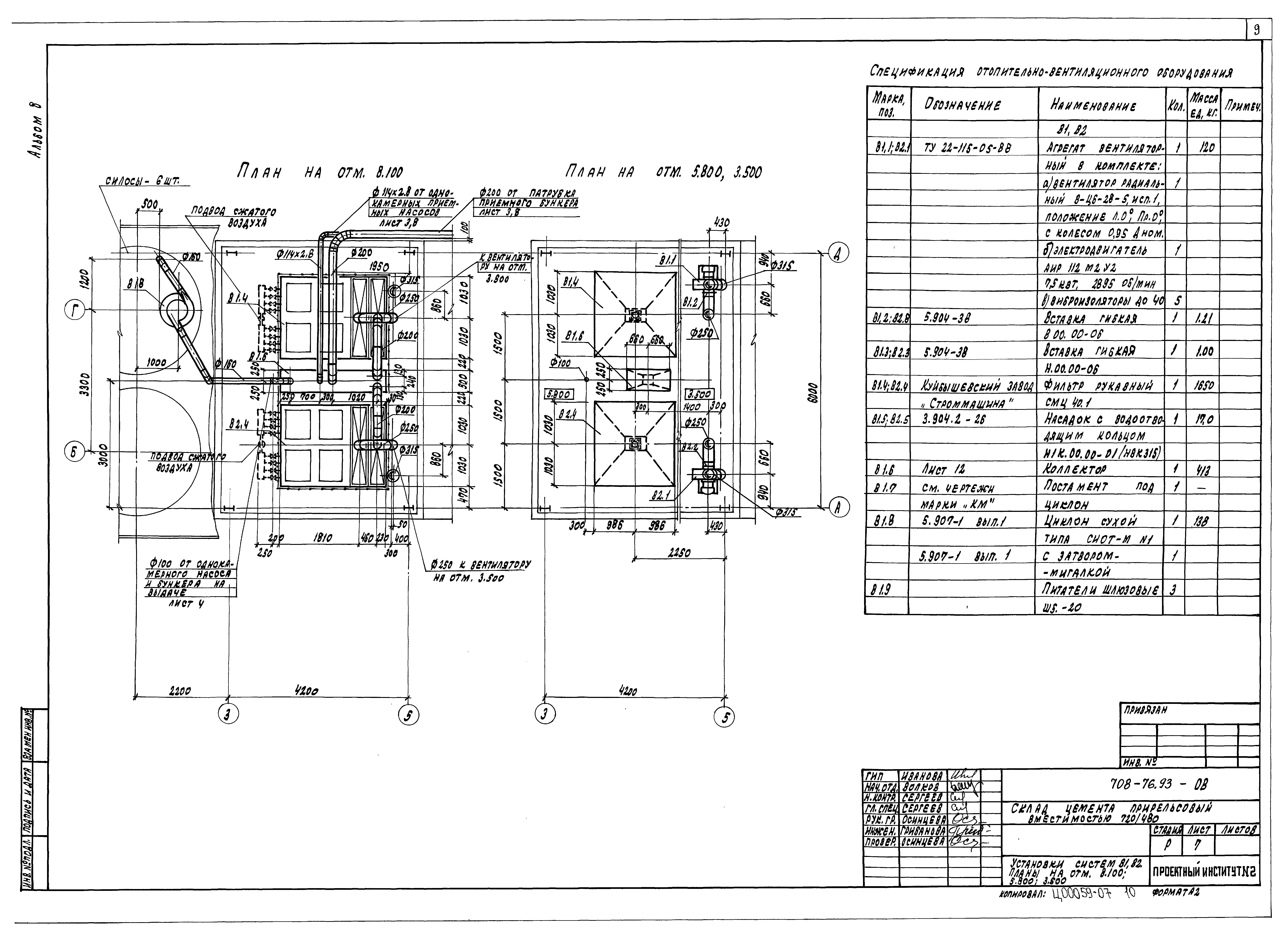
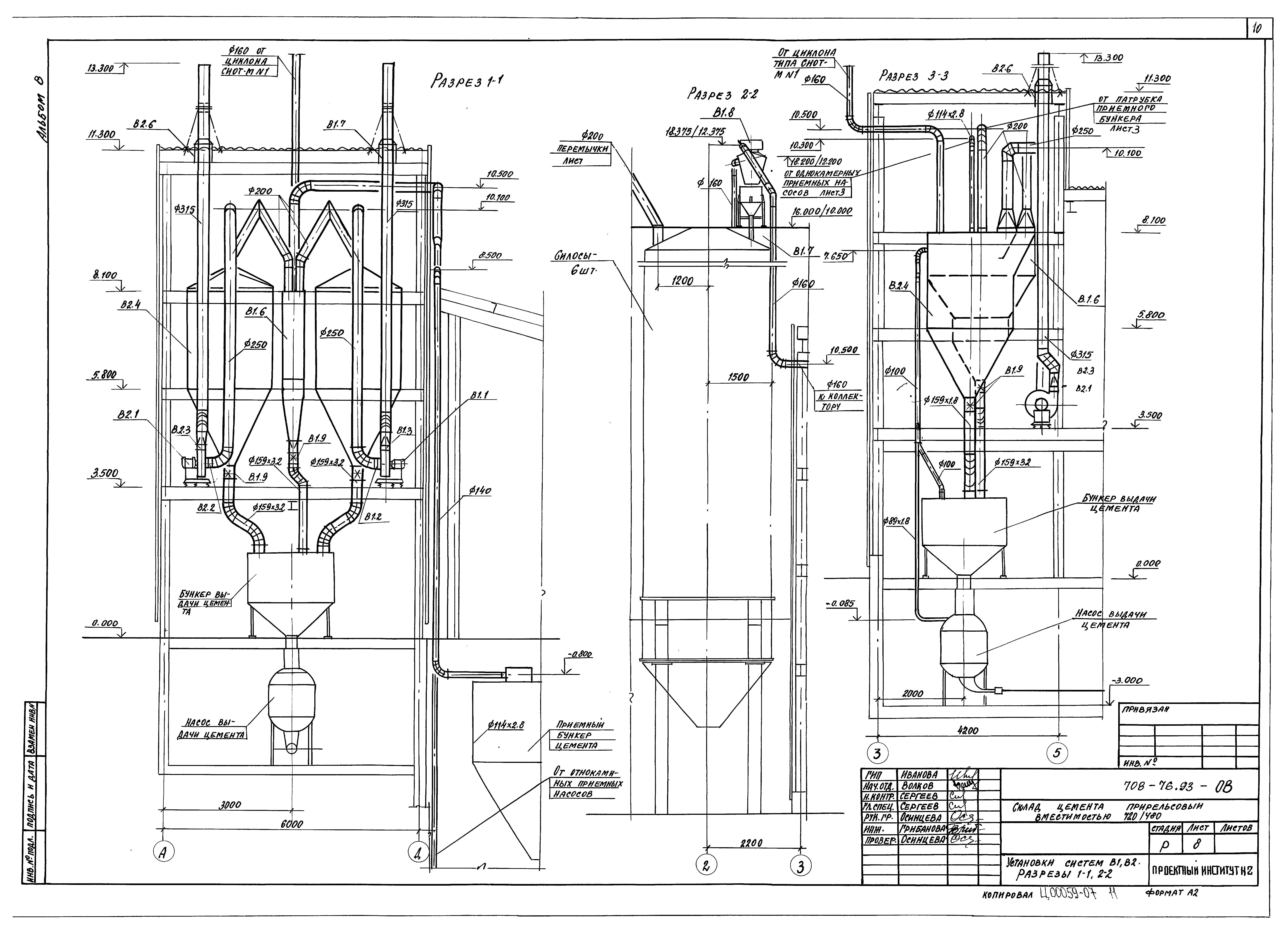
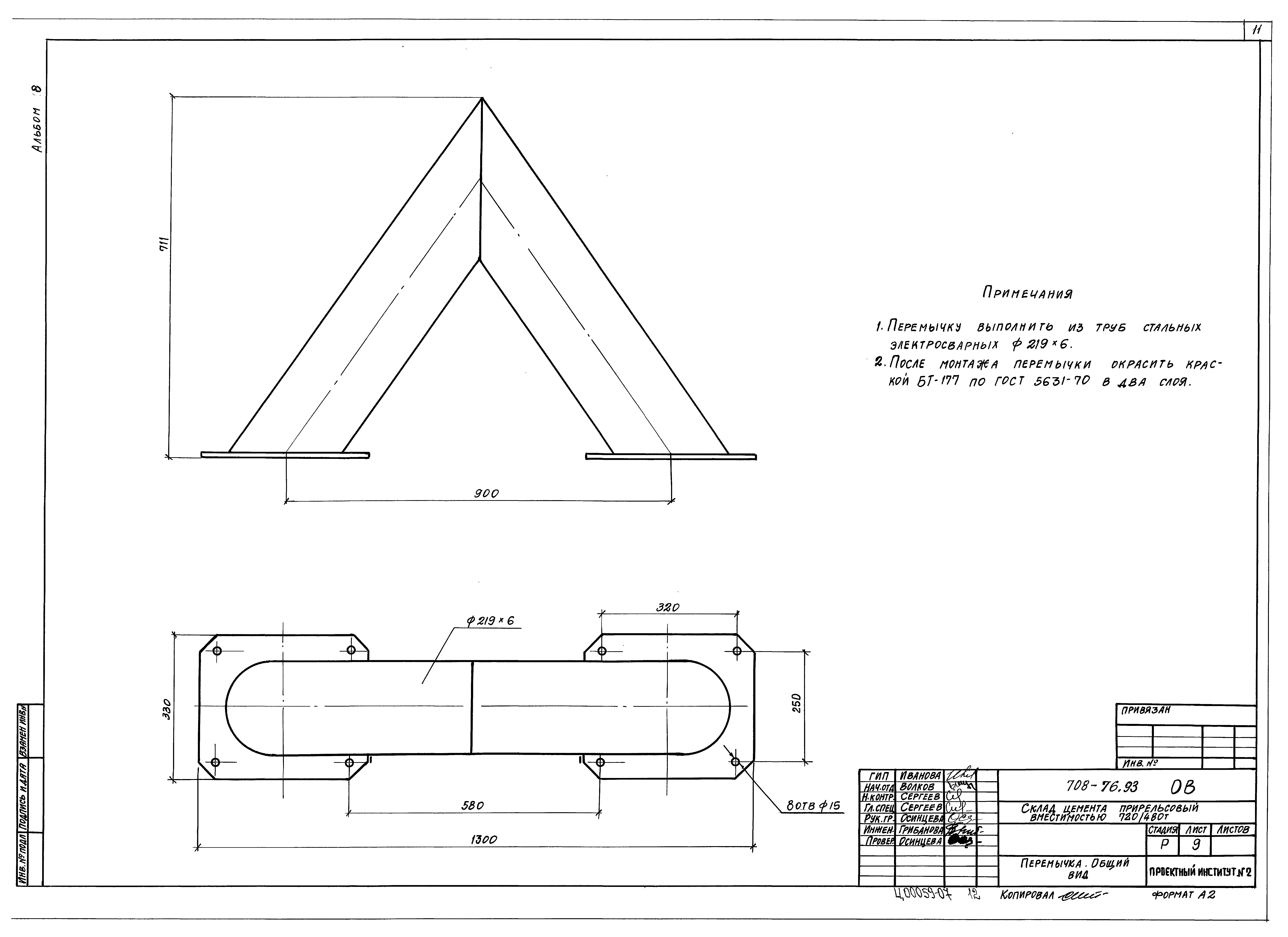
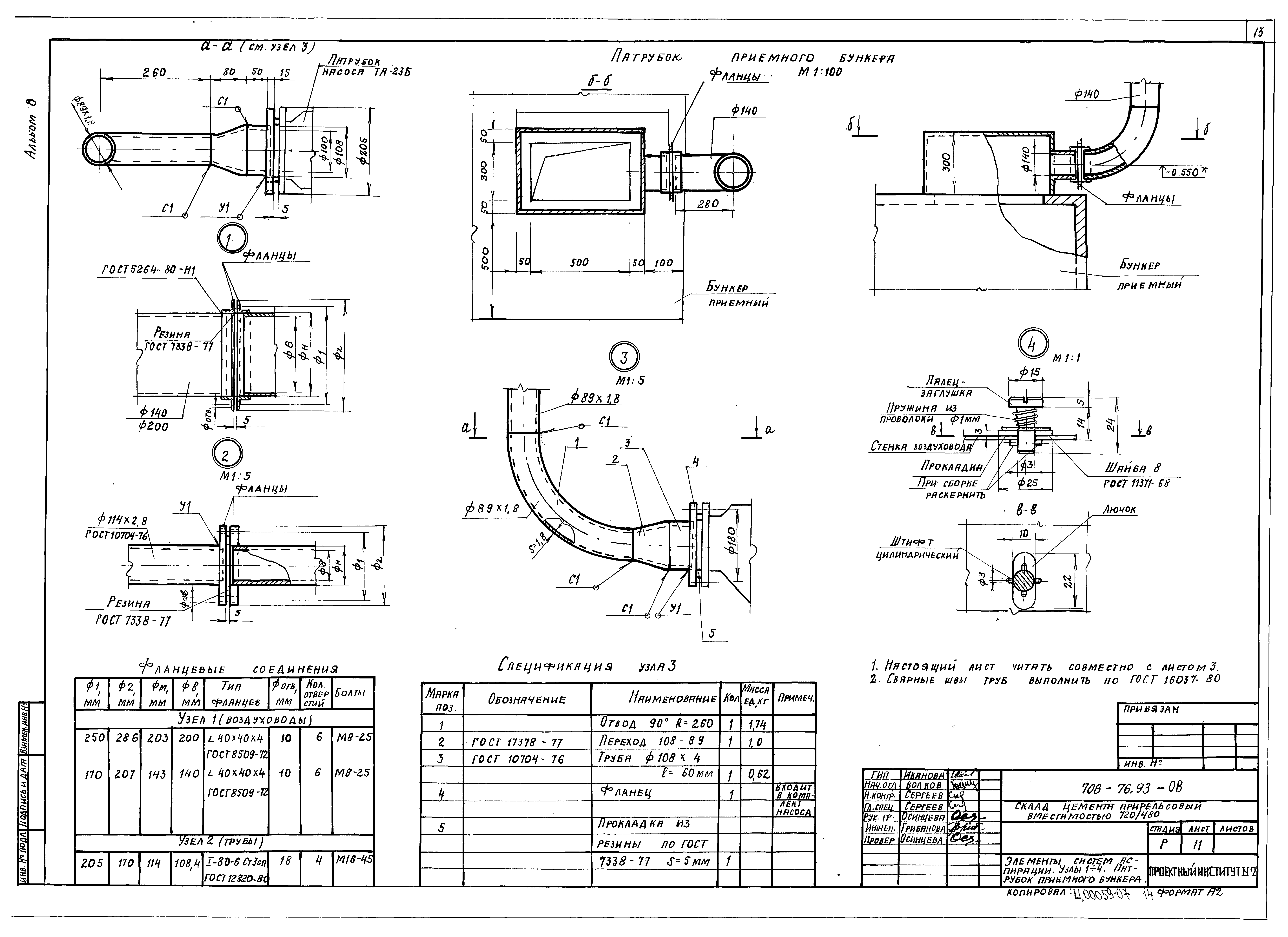
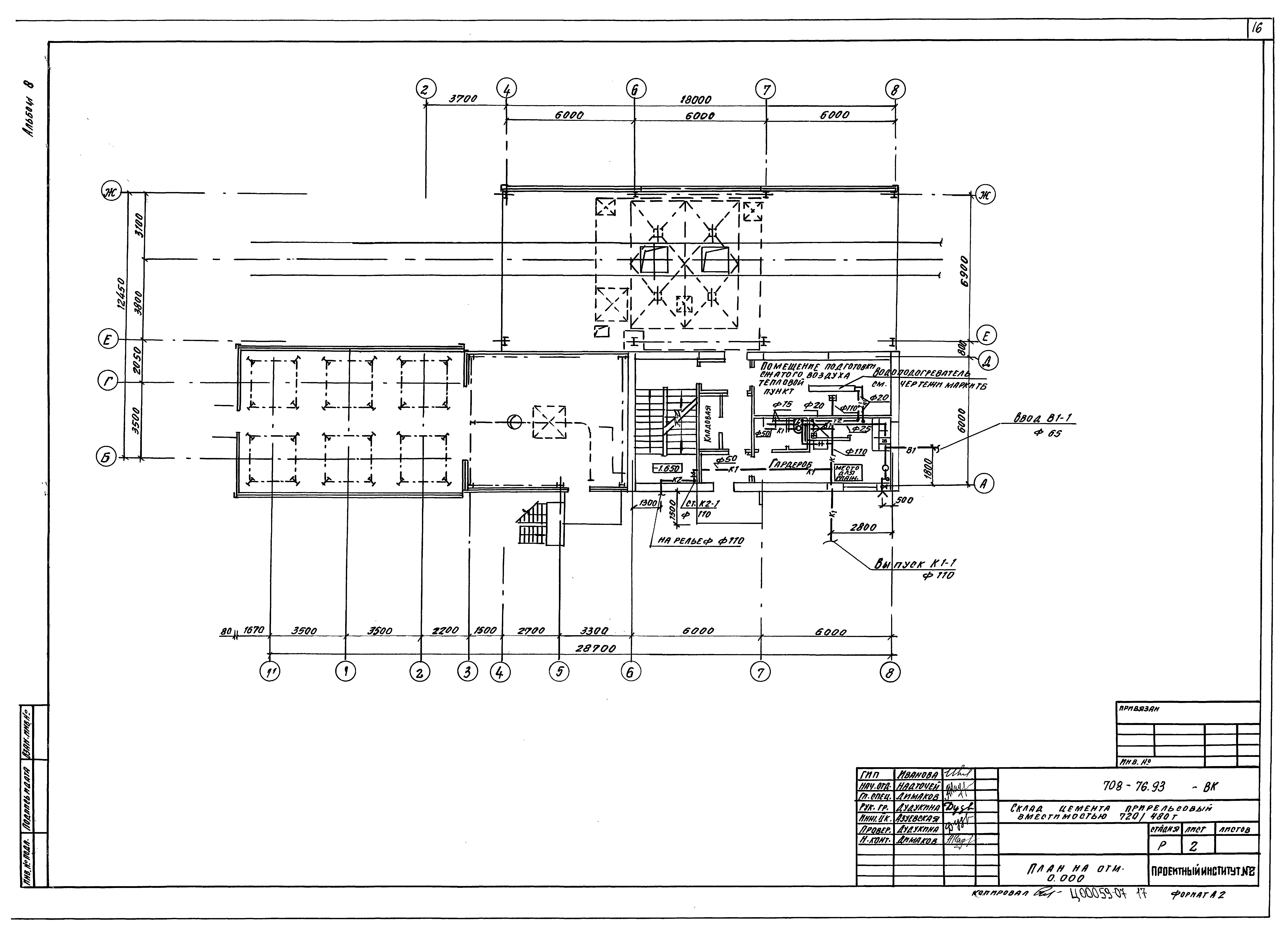
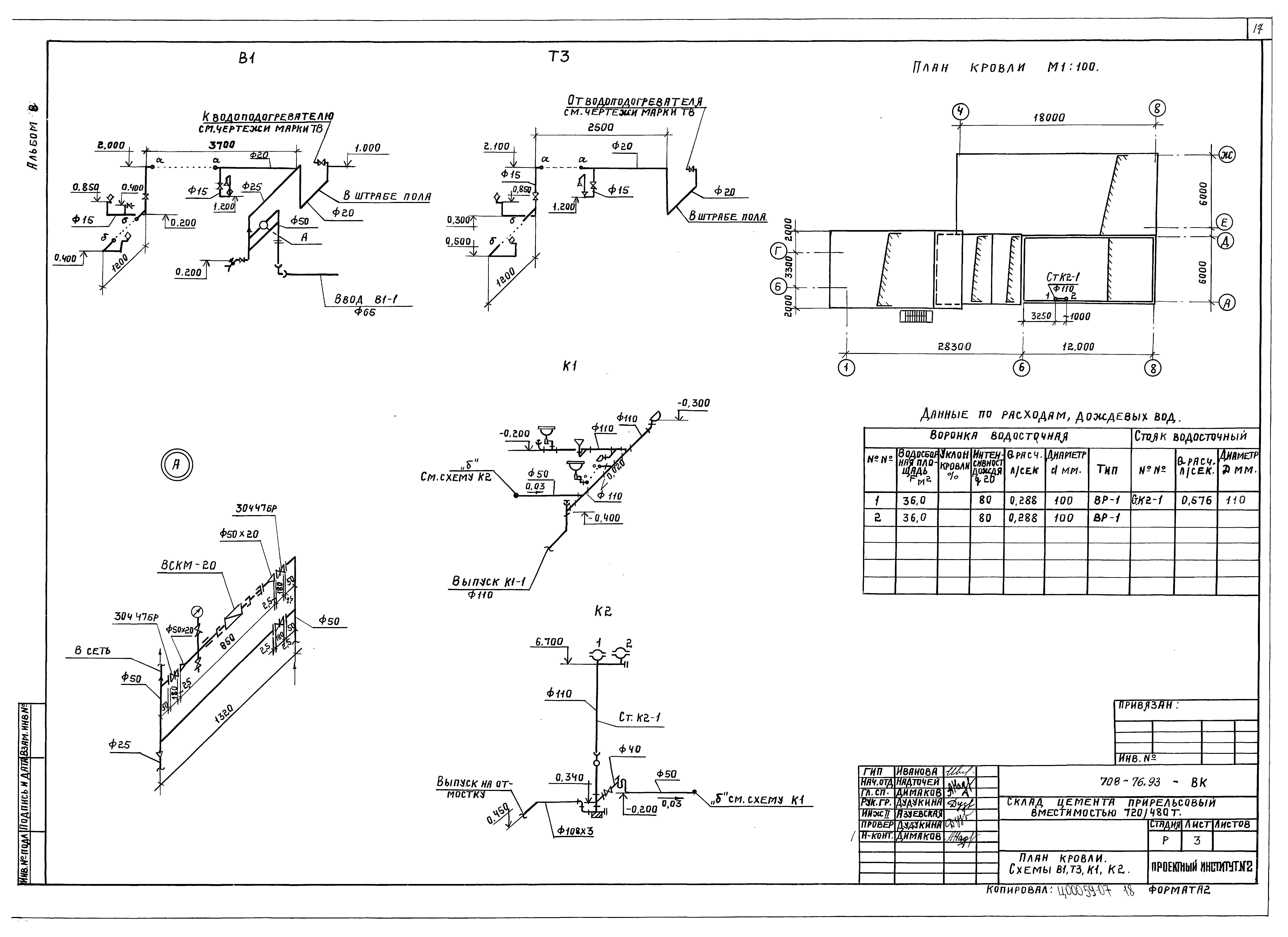
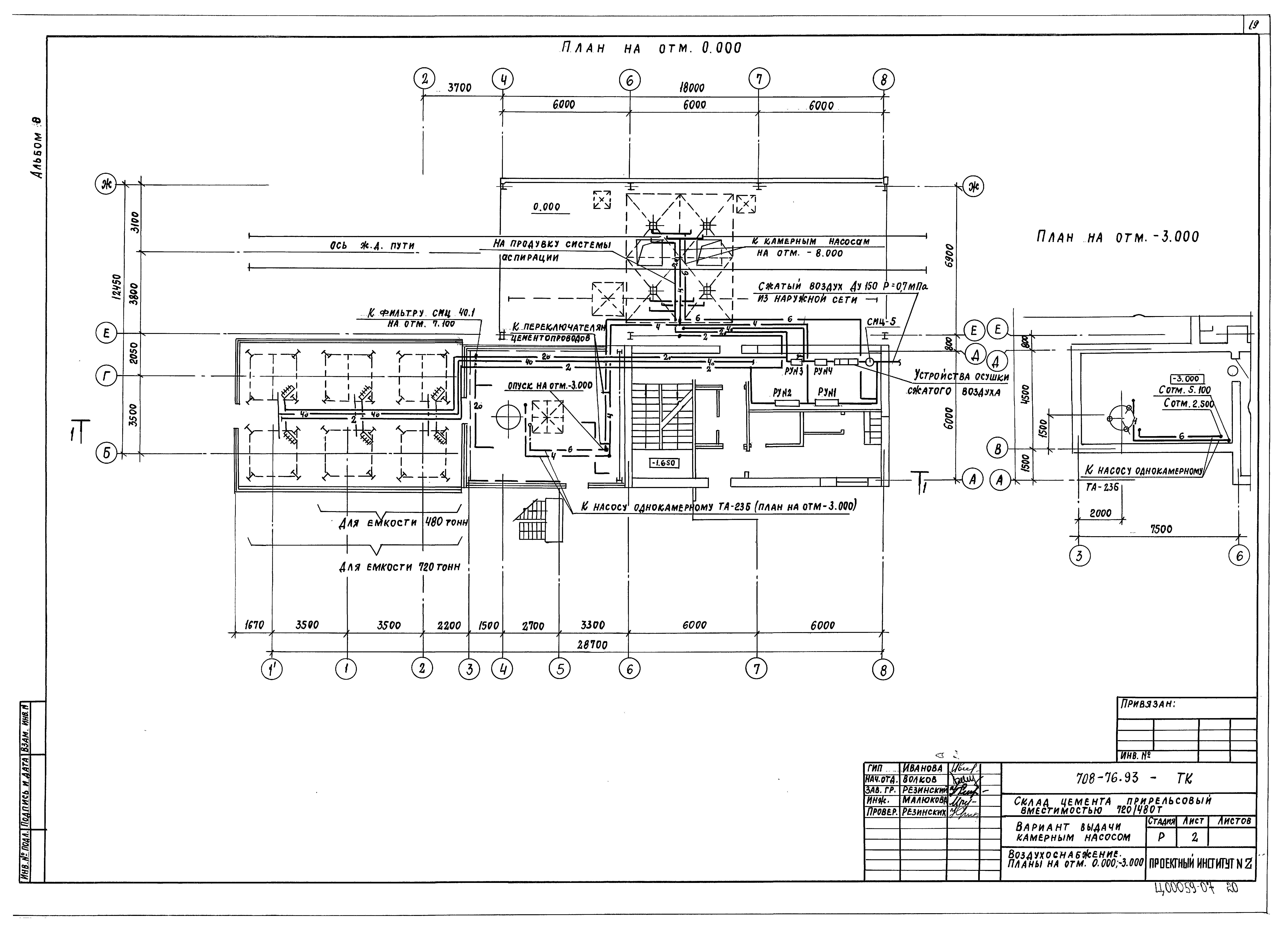
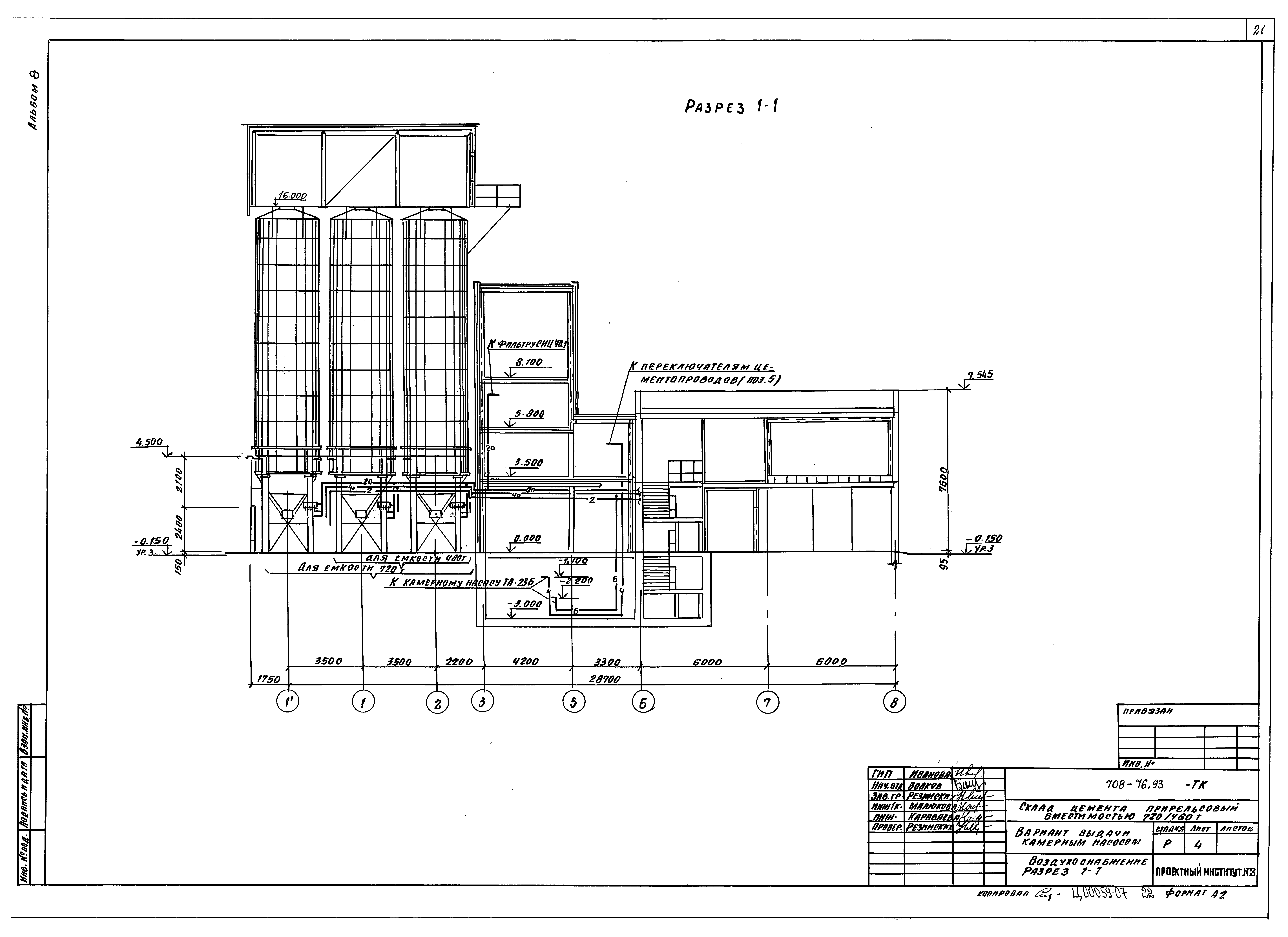
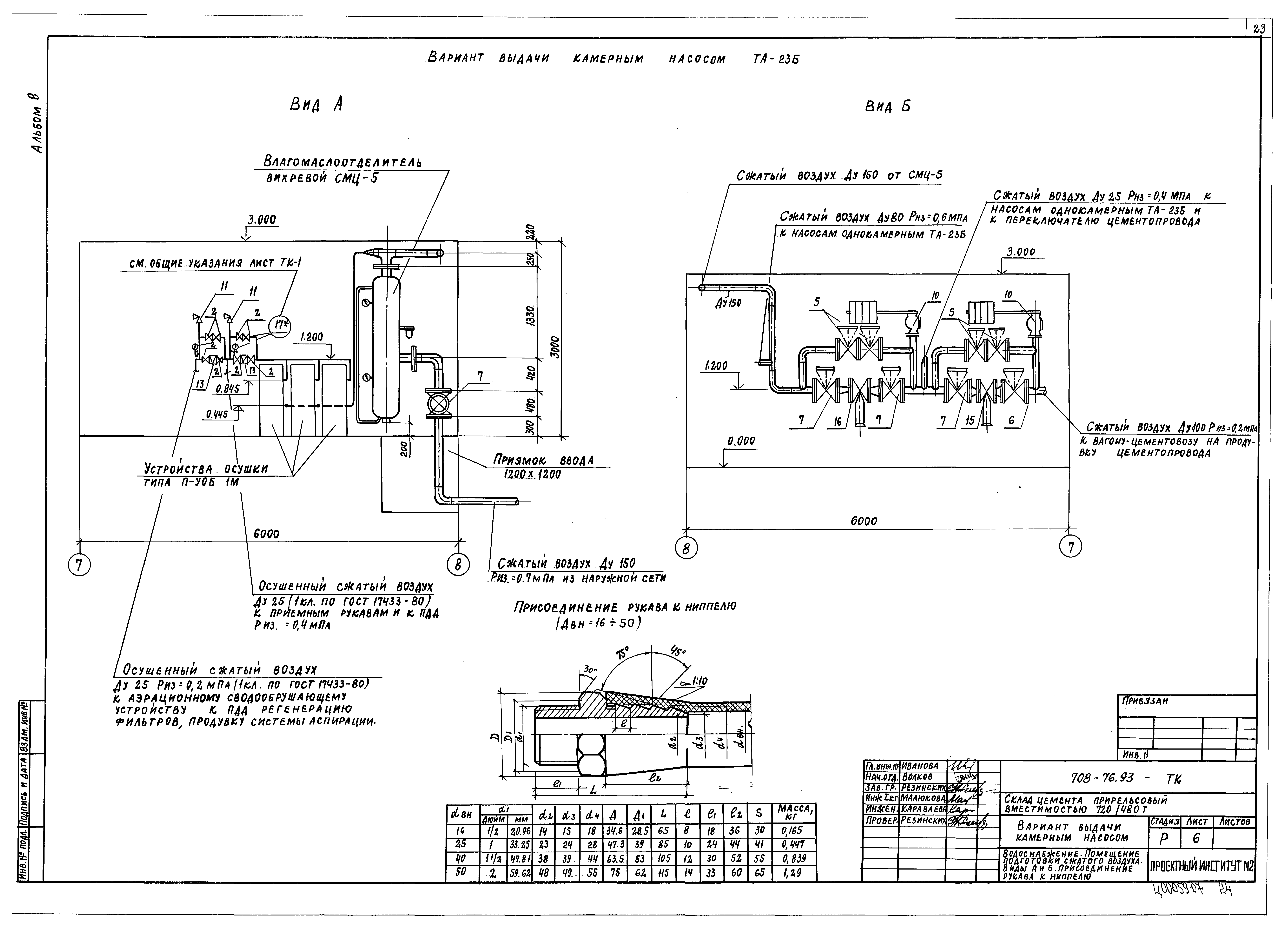
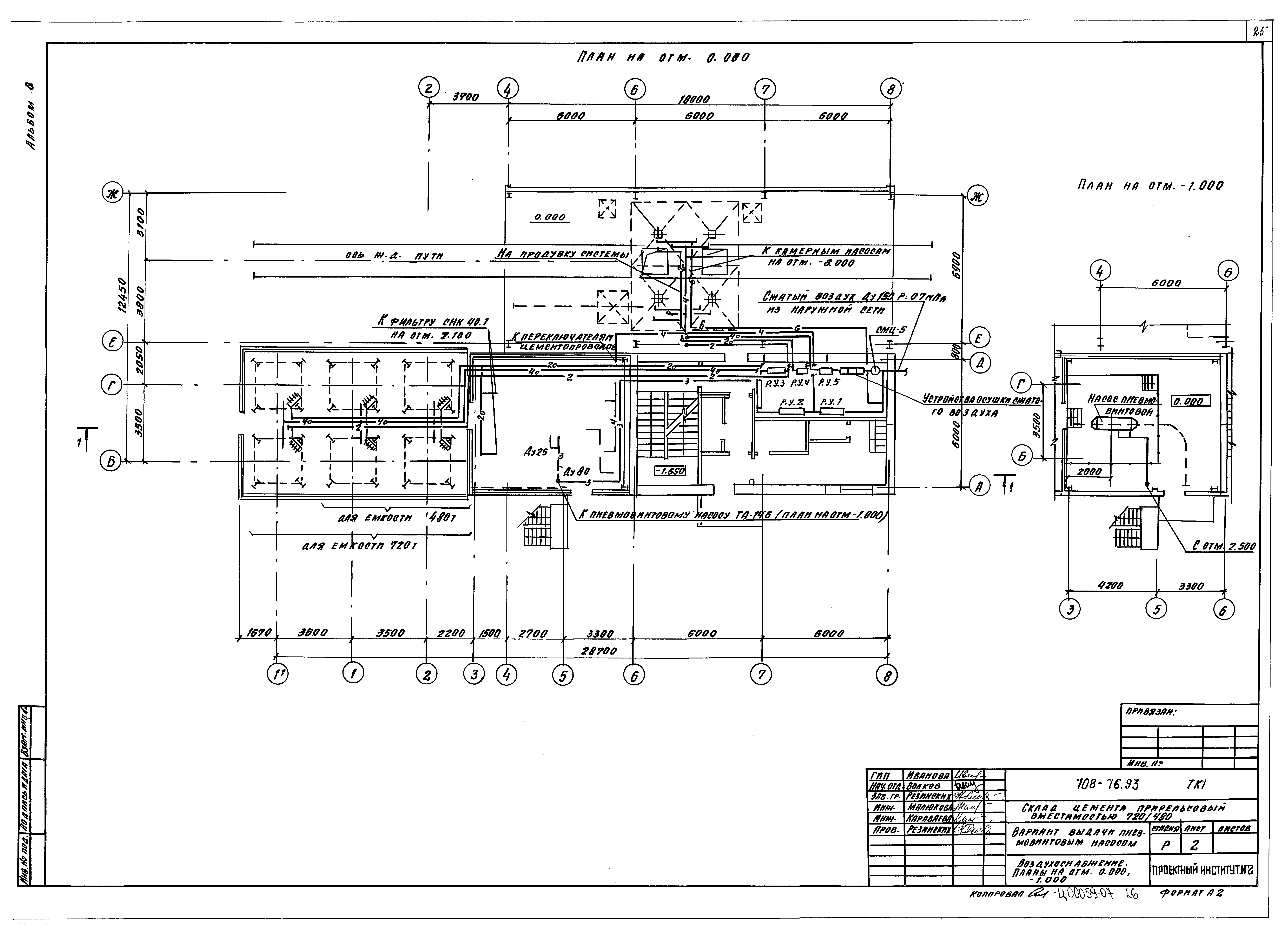
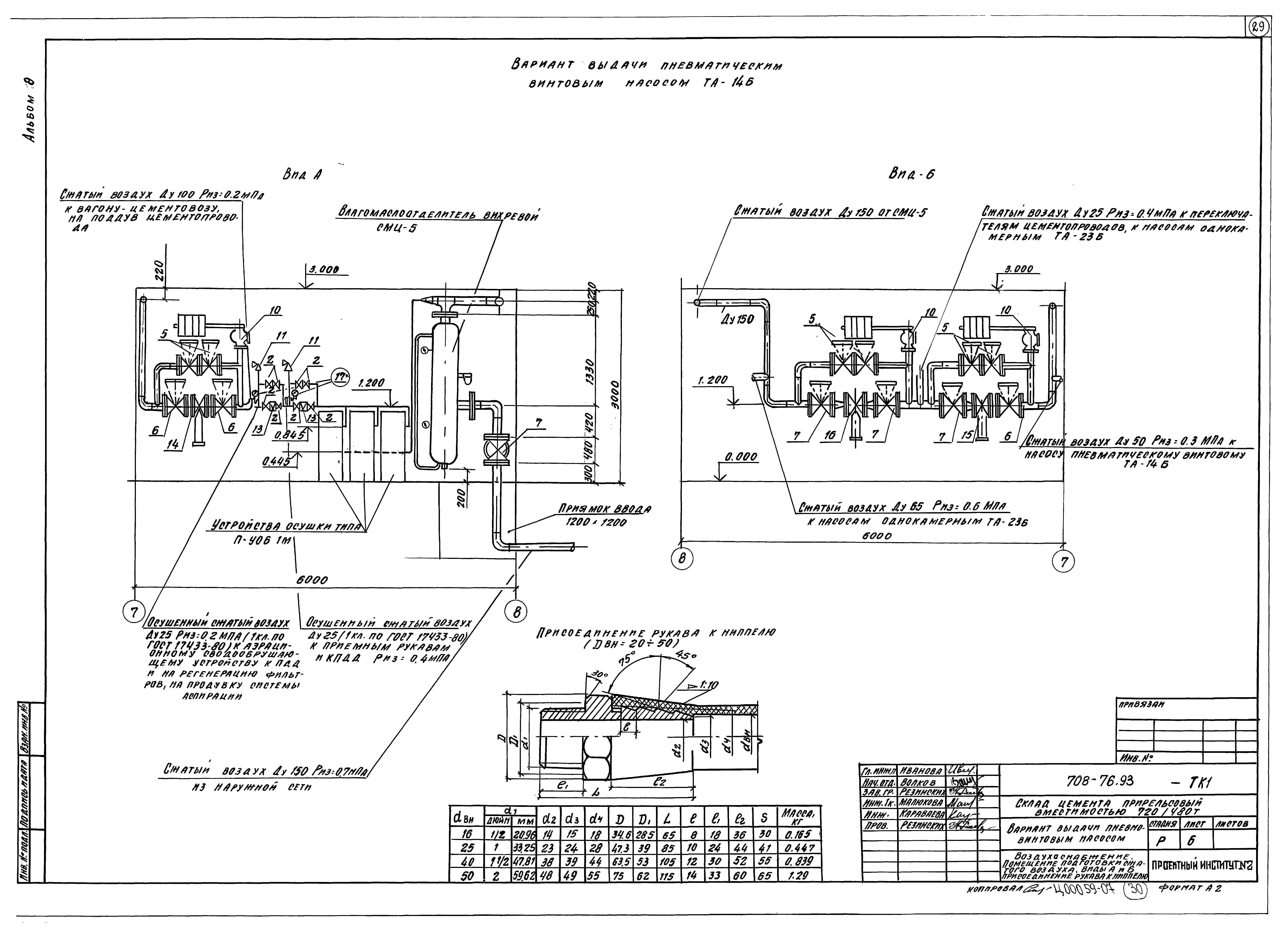
| Оглавление: | Содержание альбома Отопление и вентиляция. Технологическая аспирация Общие данные Планы систем отопления и аспирации на отм. - 8.000; - 3.000; 0.000; 3.550; 8.100; 16.000/10.000 Разрезы систем аспирации 1-1, 2-2 Схемы систем отопления, обвязки водоподогревателя и узла управления Схемы систем вентиляции, аспирации и обеспыливания воздуха Установки систем В1, В2. Планы на отм. 8.100; 3.800; 3.500 Установки систем В1, В2. Разрезы 1-1, 2-2 Перемычка Тройник концевой Ф 89х1,8 Элементы систем аспирации. Узлы 1 - 5. Патрубок приемного бункера Коллектор. Общий вид Внутренний водопровод и канализация Общие данные План на отм. 0.000 План кровли. Схемы В1, Т3, К1, К2 Технологические коммуникации (вариант выдачи камерным насосом) Общие данные Планы на отм. 0.000; - 3.000 Схема трубопроводов Разрез 1-1 Помещение подготовки сжатого воздуха. План на отм. 0.000. Условные обозначения Помещение подготовки сжатого воздуха. Узлы А и Б. Присоединение рукава к ниппелю Технологические коммуникации (вариант выдачи пневмовинтовым насосом) Общие данные Планы на отм. 0.000; - 1.000 Схема трубопроводов Разрез 1-1 Помещение подготовки сжатого воздуха. План на отм. 0.000. Условные обозначения Помещение подготовки сжатого воздуха. Виды А и Б. Присоединение рукава к ниппелю |
| Разработан: | Гипростроммаш Проектный институт №2 |
| Утверждён: | 30.11.1993 Главпроект Госстроя России (9-3-1/254) |





























