Скачать Типовой проект 801-4-102.13.86 Альбом I. Архитектурно-строительные решенияДата актуализации: 01.01.2021
|
| Обозначение: | Типовой проект 801-4-102.13.86 |
| Обозначение англ: | 801-4-102.13.86 |
| Статус: | не определен законодательством |
| Название рус.: | Альбом I. Архитектурно-строительные решения |
| Дата добавления в базу: | 01.10.2014 |
| Дата актуализации: | 01.01.2021 |
| Дата введения: | 26.08.1985 |
| Дата окончания срока действия: | 30.06.2003 |
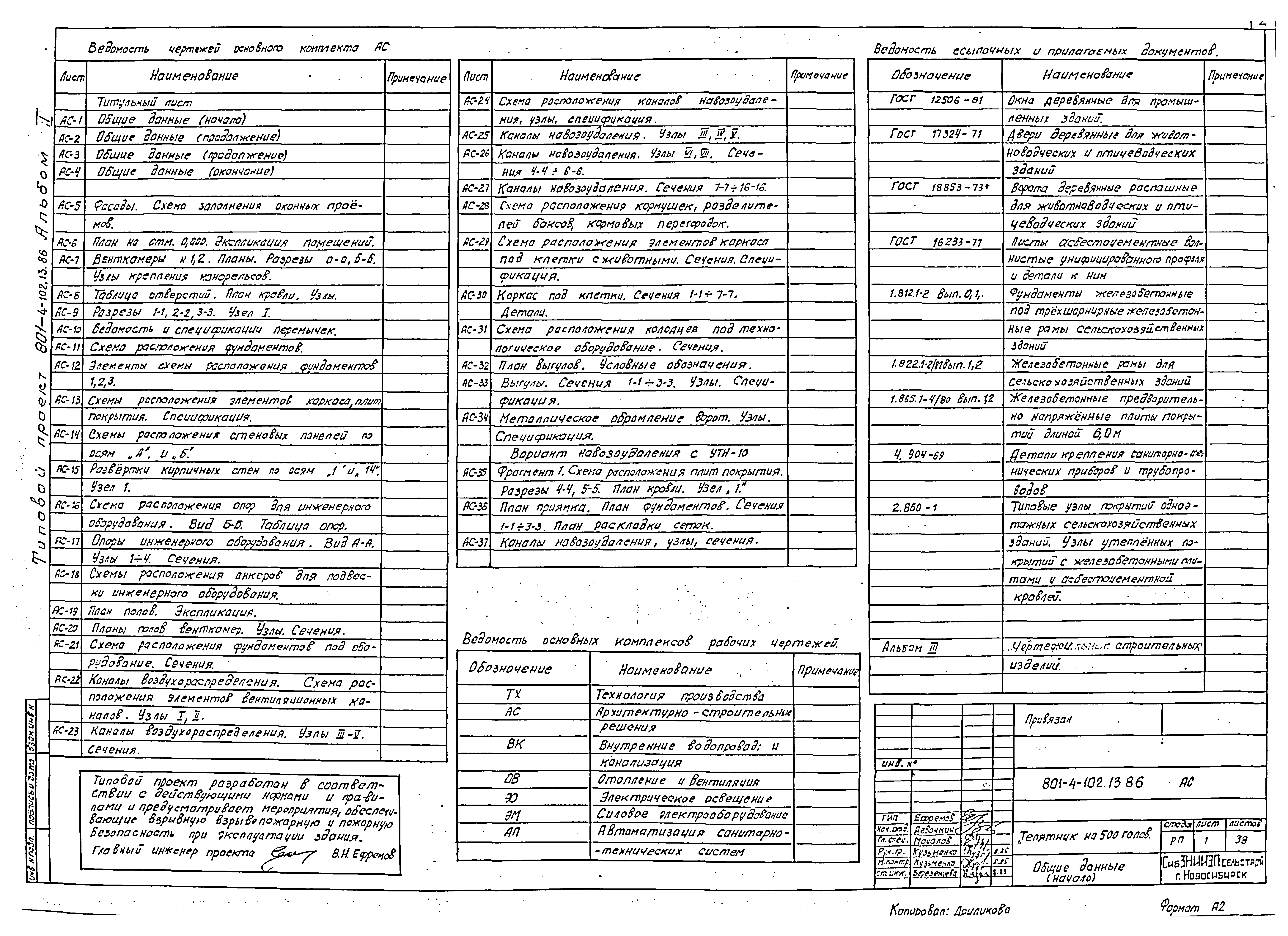
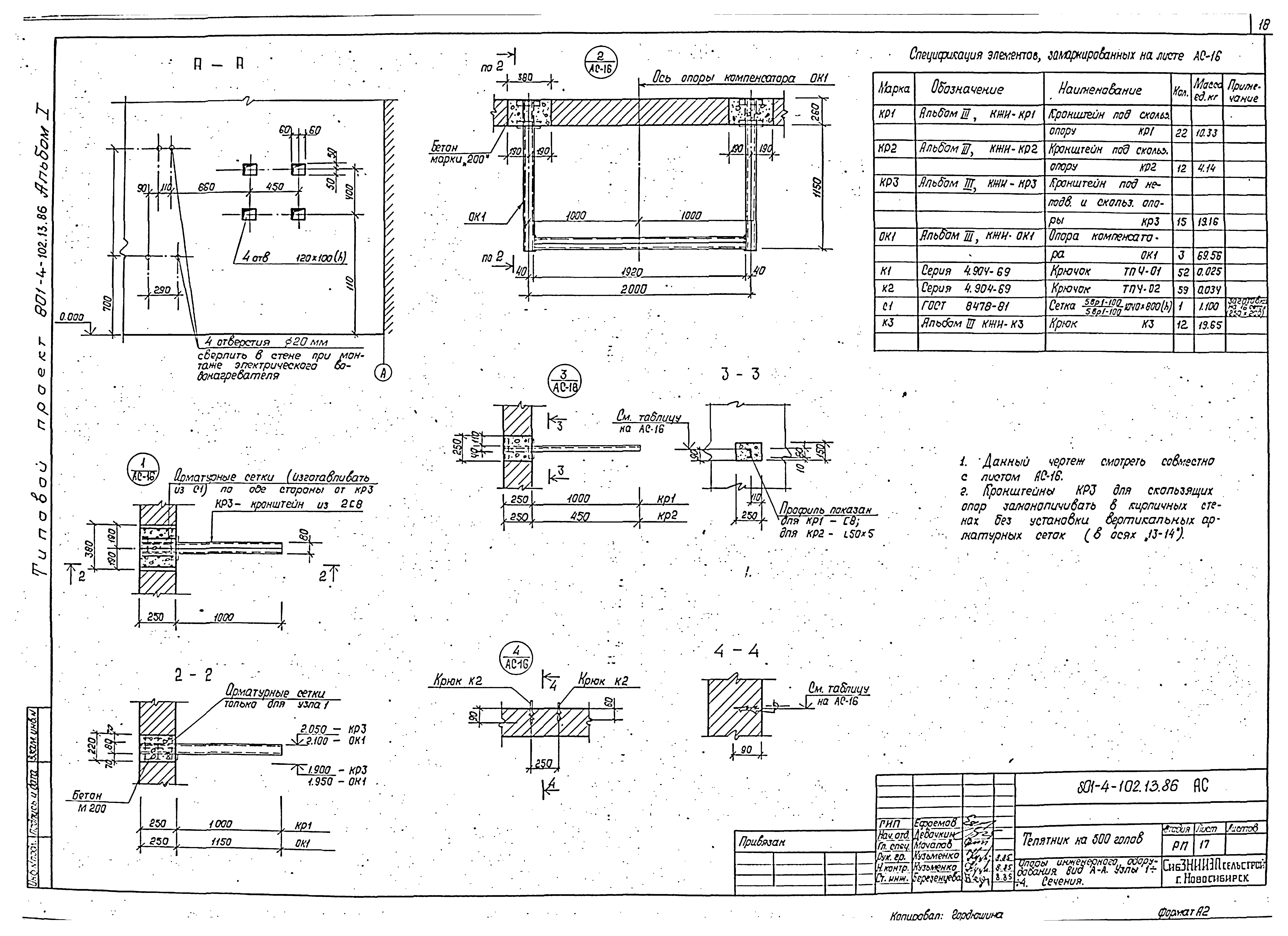
| Оглавление: | Общие данные Фасады. Схема заполнения оконных проемов План на отм. 0.000. Экспликация помещений Венткамеры №1, 2. Планы. Разрезы а-а, б-б. Узлы крепления монорельсов Таблица отверстий. План кровли. Узлы Разрезы 1-1, 2-2, 3-3. Узел I Ведомость и спецификации перемычек Схема расположения фундаментов Элементы схемы расположения фундаментов 1, 2, 3 Схемы расположения элементов каркаса, плит покрытия. Спецификация Схемы расположения стеновых панелей по осям "А" и "Б" Развертки кирпичных стен по осям "1" и "14". Узел 1 Схема расположения опор для инженерного оборудования. Вид Б-Б. Таблица опор Опоры инженерного оборудования. Вид А-А. Узлы 1 - 4. Сечения Схемы расположения анкеров для подвески инженерного оборудования План полов. Экспликации Планы полов венткамер. Узлы. Сечения Схема расположения фундаментов под оборудование. Сечения Каналы воздухораспределения. Схема расположения элементов вентиляционных каналов. Узлы I, II Каналы воздухораспределения. Узлы III - V. Сечения Схема расположения каналов навозоудаления, узлы, спецификация Каналы навозоудаления. Узлы III, IV, V Каналы навозоудаления. Узлы VI, VII Каналы навозоудаления. Сечения 7-7 - 16-16 Схема расположения кормушек, разделителей боксов, кормовых перегородок Схема расположения элементов каркаса под клетки с животными. Сечения. Спецификация Каркас под клетки. Сечения 1-1 - 7-7. Детали Схема расположения колодцев под технологическое оборудование. Сечения План выгулов. Условные обозначения Выгулы. Сечения 1-1 - 3-3. Узлы. Спецификация Металлическое обрамление ворот. Узлы. Спецификация Вариант навозоудаления с УТН-10. Фрагмент 1. Схема расположения плит покрытия. Разрезы 4-4, 5-5. План кровли. Узел "1" Вариант навозоудаления с УТН-10. План приямка. План фундаментов. Сечения 1-1 - 3-3. План раскладки сеток Вариант навозоудаления с УТН-10. Каналы навозоудаления, узлы, сечения |
| Разработан: | СибЗНИИЭПсельстрой |
| Утверждён: | 28.06.1985 Минсельхоз РСФСР (Russian Federation Minselkhoz 24Т) |






































