Скачать Типовые проектные решения 820-2-035.92 Альбом 1. Пояснительная записка. Конструкции железобетонныеДата актуализации: 01.01.2021
|
| Обозначение: | Типовые проектные решения 820-2-035.92 |
| Обозначение англ: | 820-2-035.92 |
| Статус: | справочные материалы, мп, тпр |
| Название рус.: | Альбом 1. Пояснительная записка. Конструкции железобетонные |
| Дата добавления в базу: | 01.10.2014 |
| Дата актуализации: | 01.01.2021 |
| Дата введения: | 18.03.1992 |
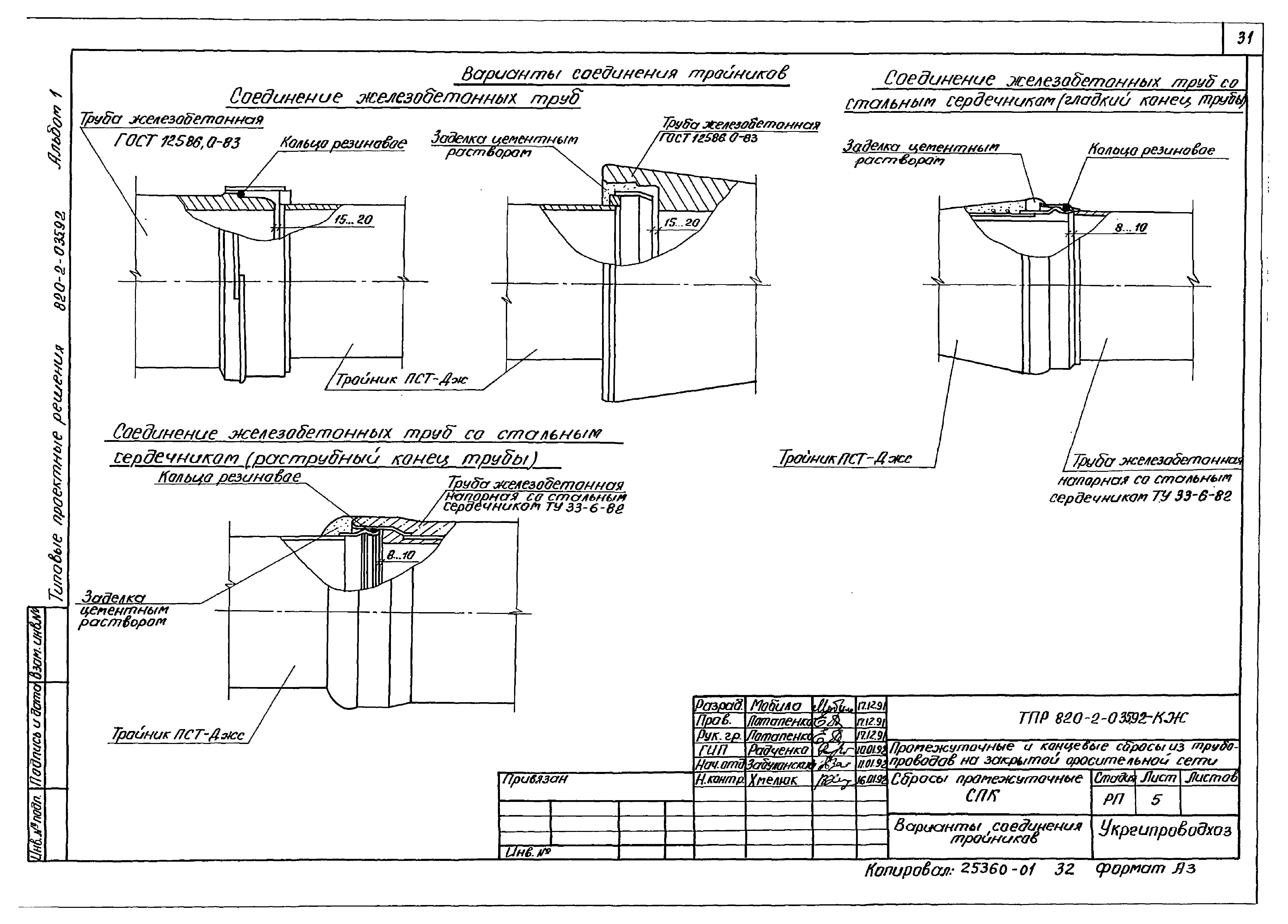
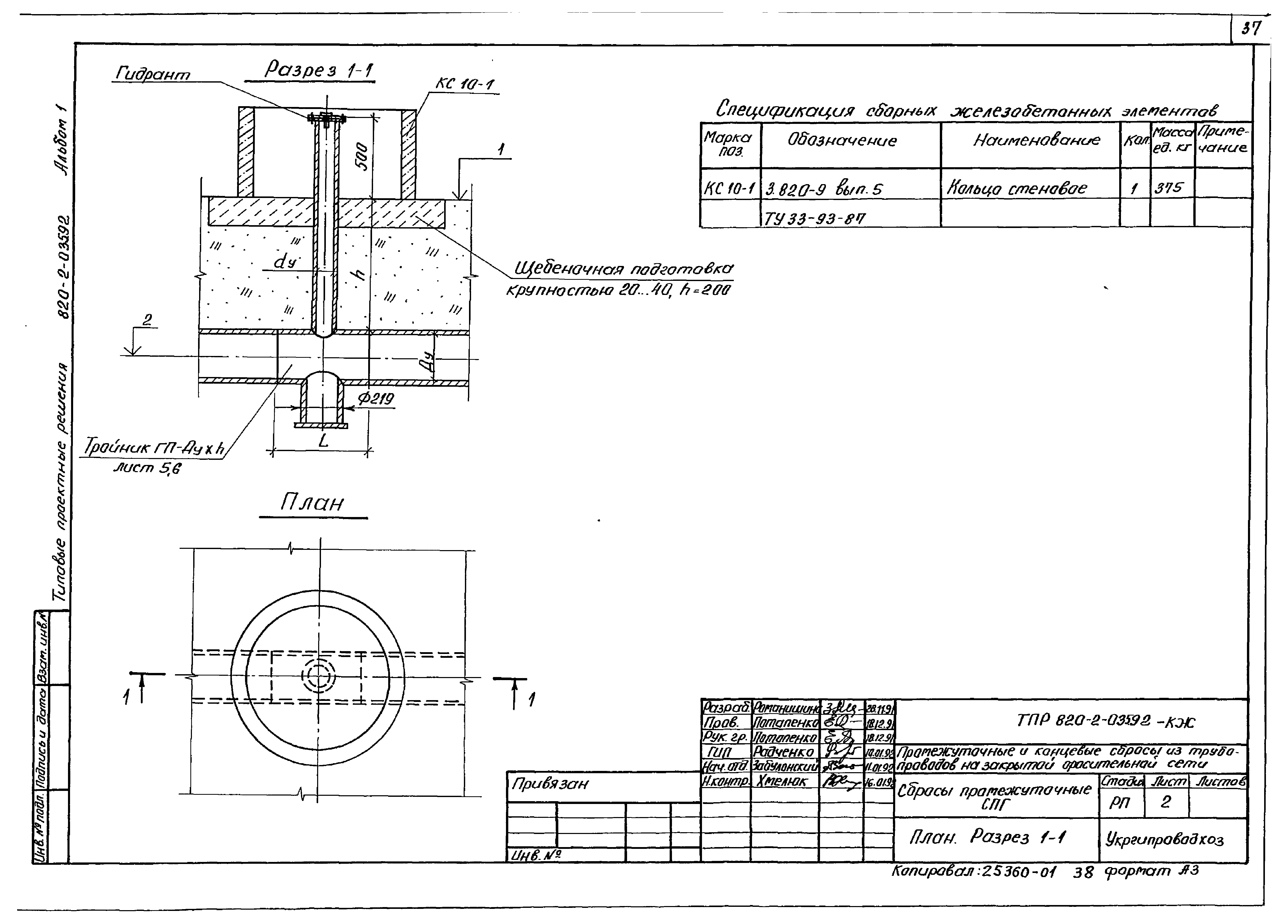
| Оглавление: | Пояснительная записка Сбросы промежуточные СП Общие данные План. Разрез 1-1 Узел I Варианты соединения тройников Таблица привязки сооружений Сбросы промежуточные СПК Общие данные План. Разрез 1-1 Узлы I, II Варианты соединения тройников Таблица привязки сооружений Сбросы промежуточные СПГ Общие данные План. Разрез 1-1 Варианты соединения тройников Таблица привязки сооружений Сбросы концевые СК для труб без упоров Общие данные План. Разрез 1-1 Разрез 2-2. Узел I Таблица привязки сооружений Сбросы концевые СК для труб с упорами Общие данные План. Разрез 1-1 Разрез 2-2. Узел I Таблица привязки сооружений Сбросы концевые СКК для труб без упоров Общие данные План. Разрез 1-1 Узел I. Разрез 2-2 Таблица привязки сооружений Сбросы концевые СКК для труб с упорами Общие данные План. Разрез 1-1 Узел I. Разрез 2-2 Таблица привязки сооружений Сбросы концевые СКГ для труб без упоров Общие данные План. Разрез 1-1 Таблица привязки сооружений Сбросы концевые СКГ для труб с упорами Общие данные План. Разрез 1-1 Таблица привязки сооружений |
| Разработан: | Укргипроводхоз Минводхоза Украинской ССР |
| Утверждён: | 18.03.1992 Водстрой (873) |
| Заменяет собой: |
|


































































