Скачать Типовые проектные решения 820-4-045.92 Альбом 3. Изделия металлическиеДата актуализации: 01.01.2021
|
| Обозначение: | Типовые проектные решения 820-4-045.92 |
| Обозначение англ: | 820-4-045.92 |
| Статус: | справочные материалы, мп, тпр |
| Название рус.: | Альбом 3. Изделия металлические |
| Дата добавления в базу: | 01.10.2014 |
| Дата актуализации: | 01.01.2021 |
| Дата введения: | 28.04.1992 |
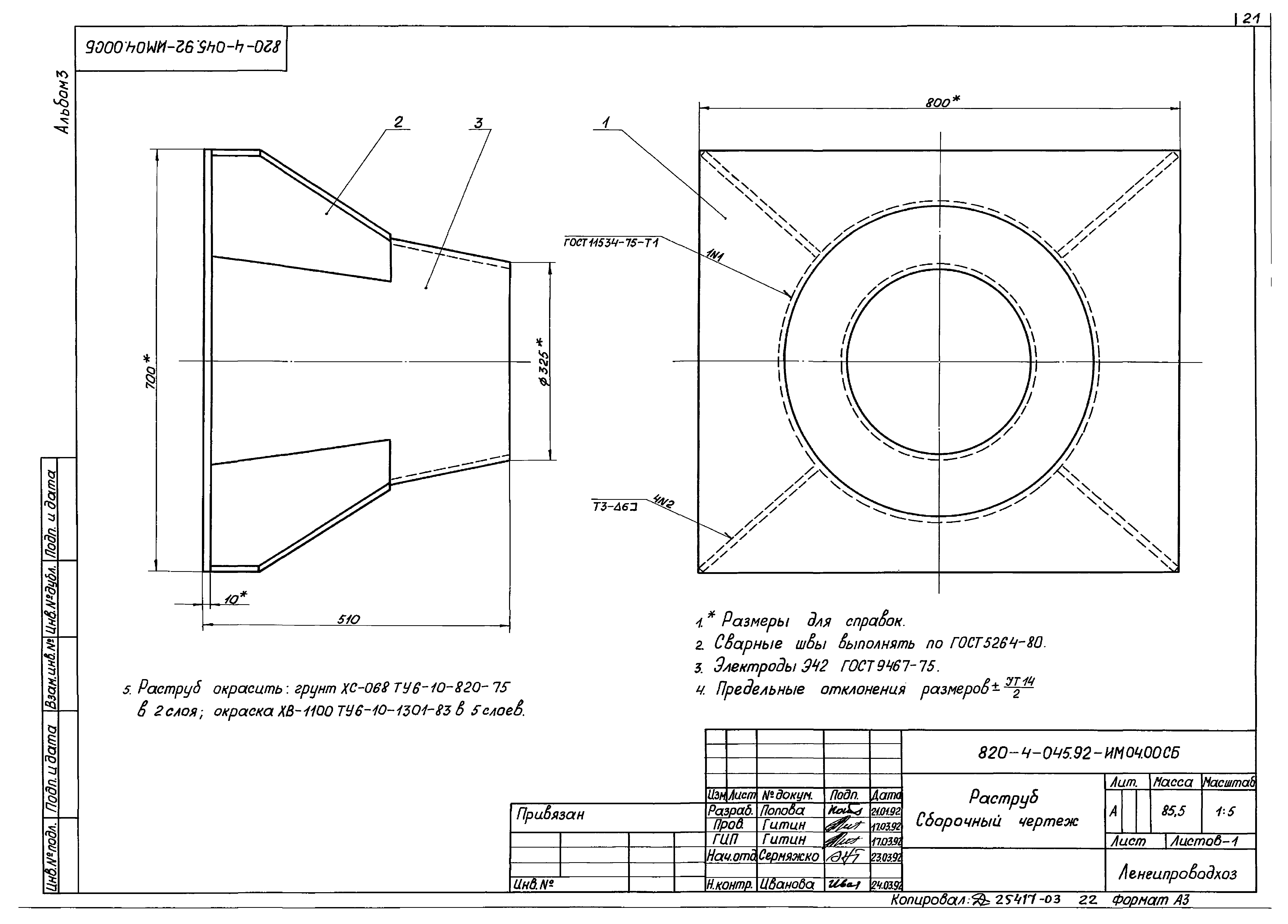
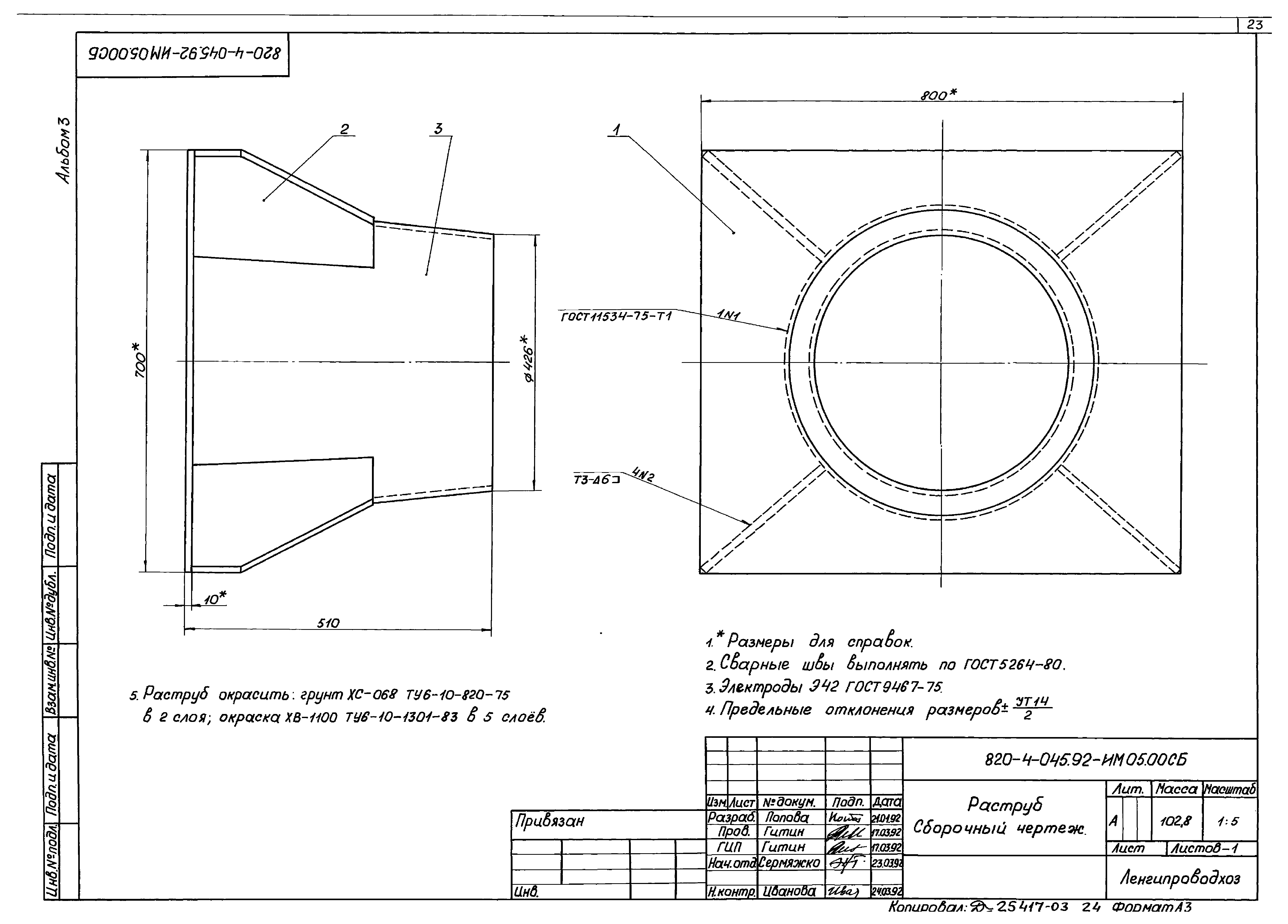
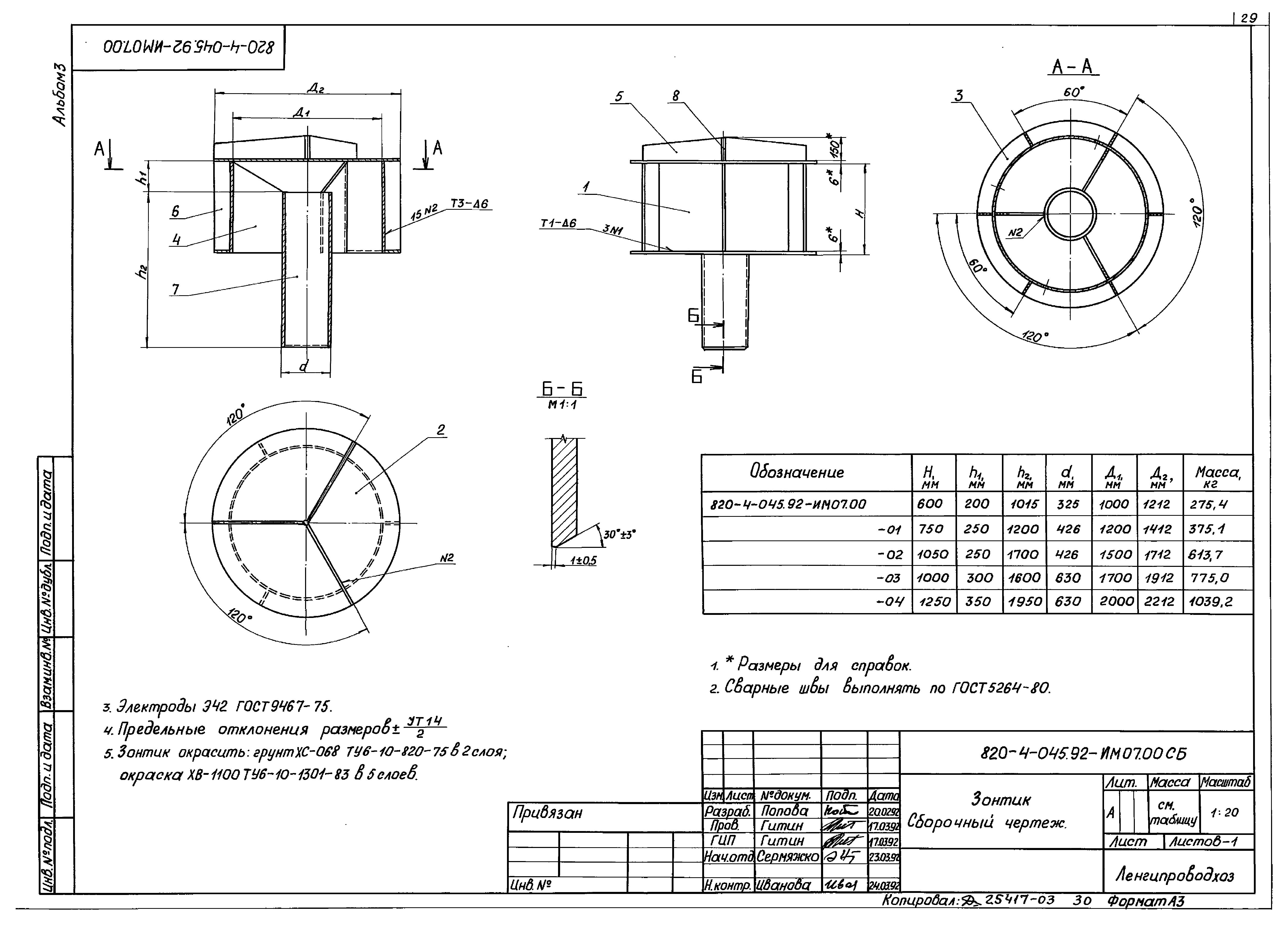
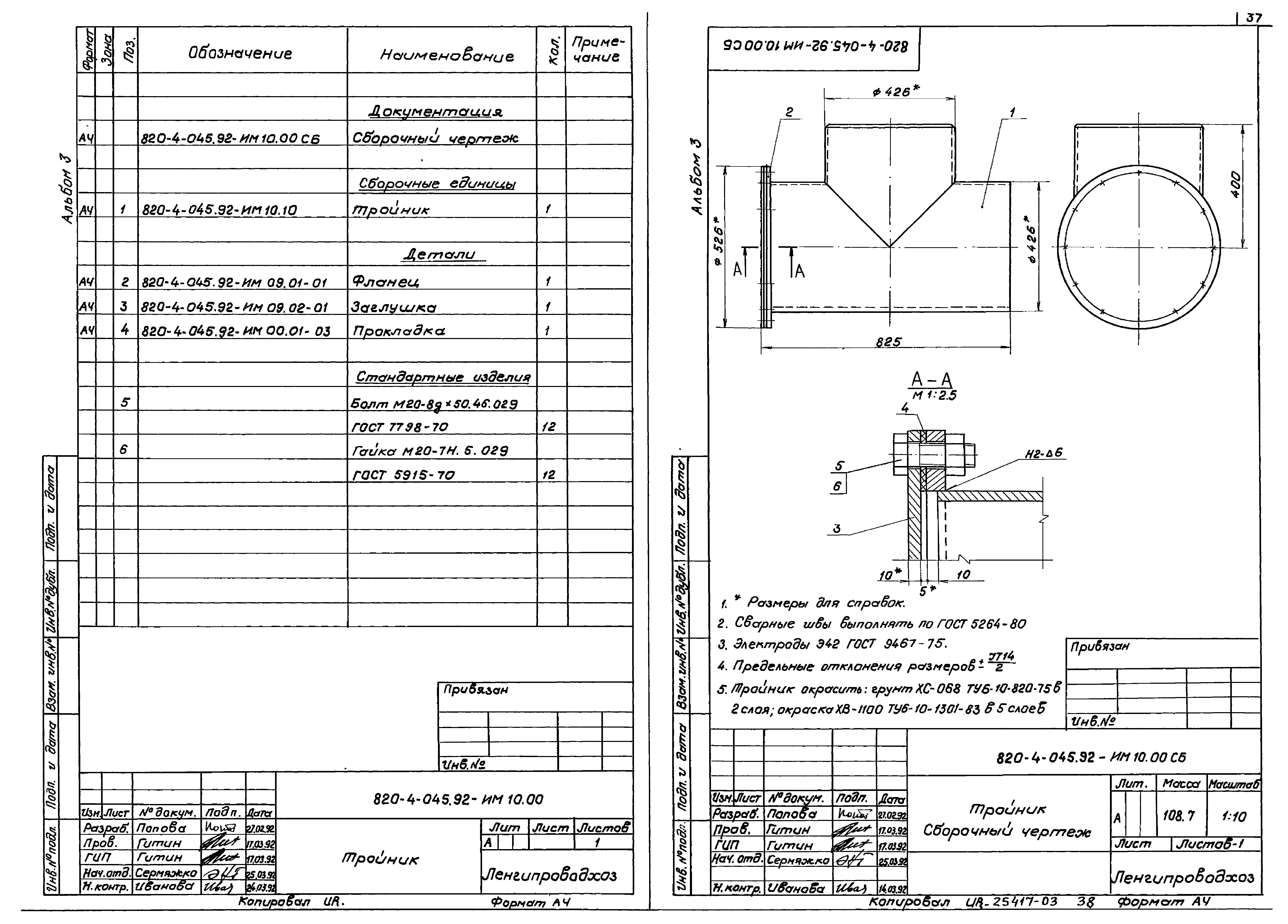
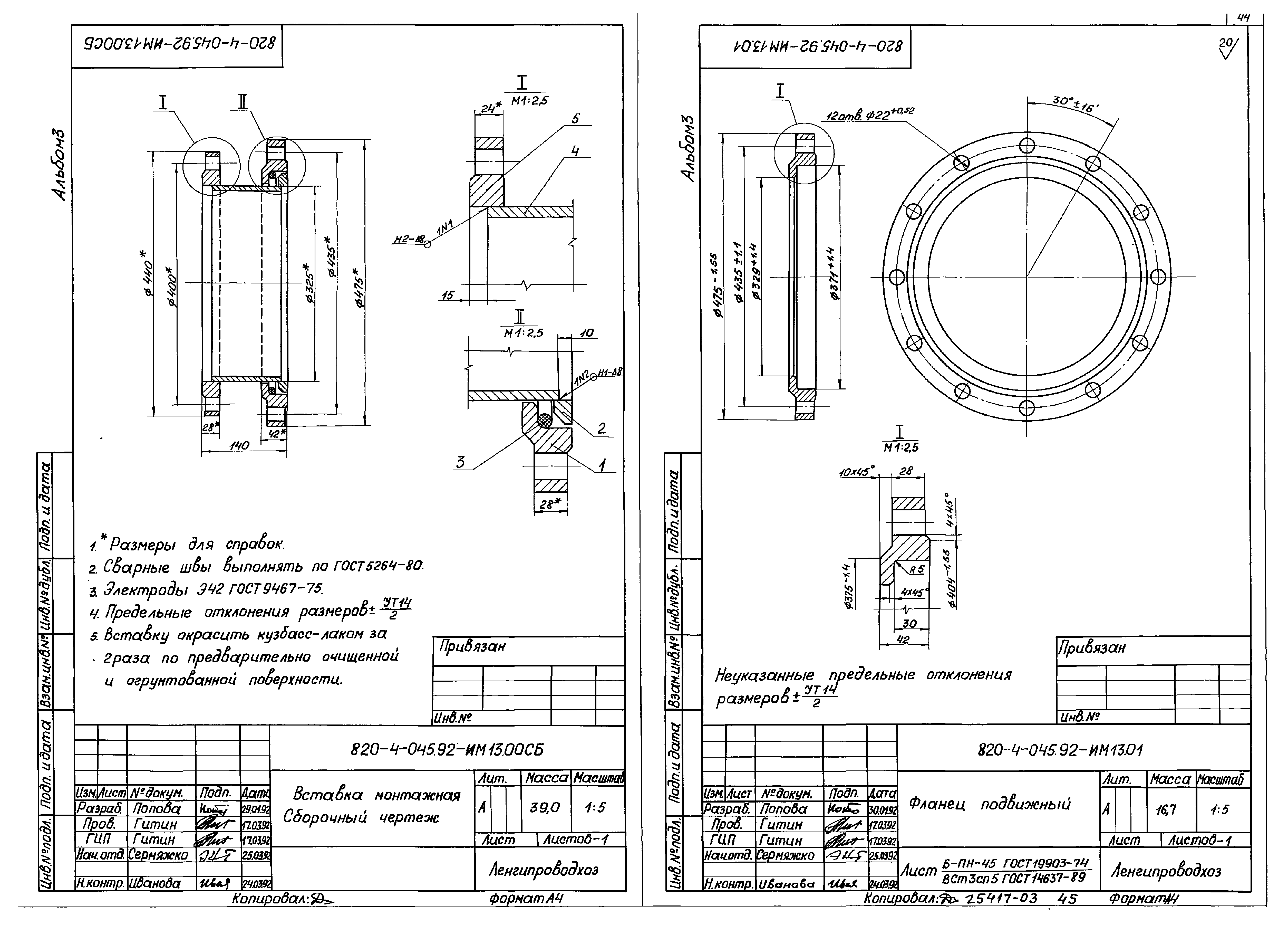
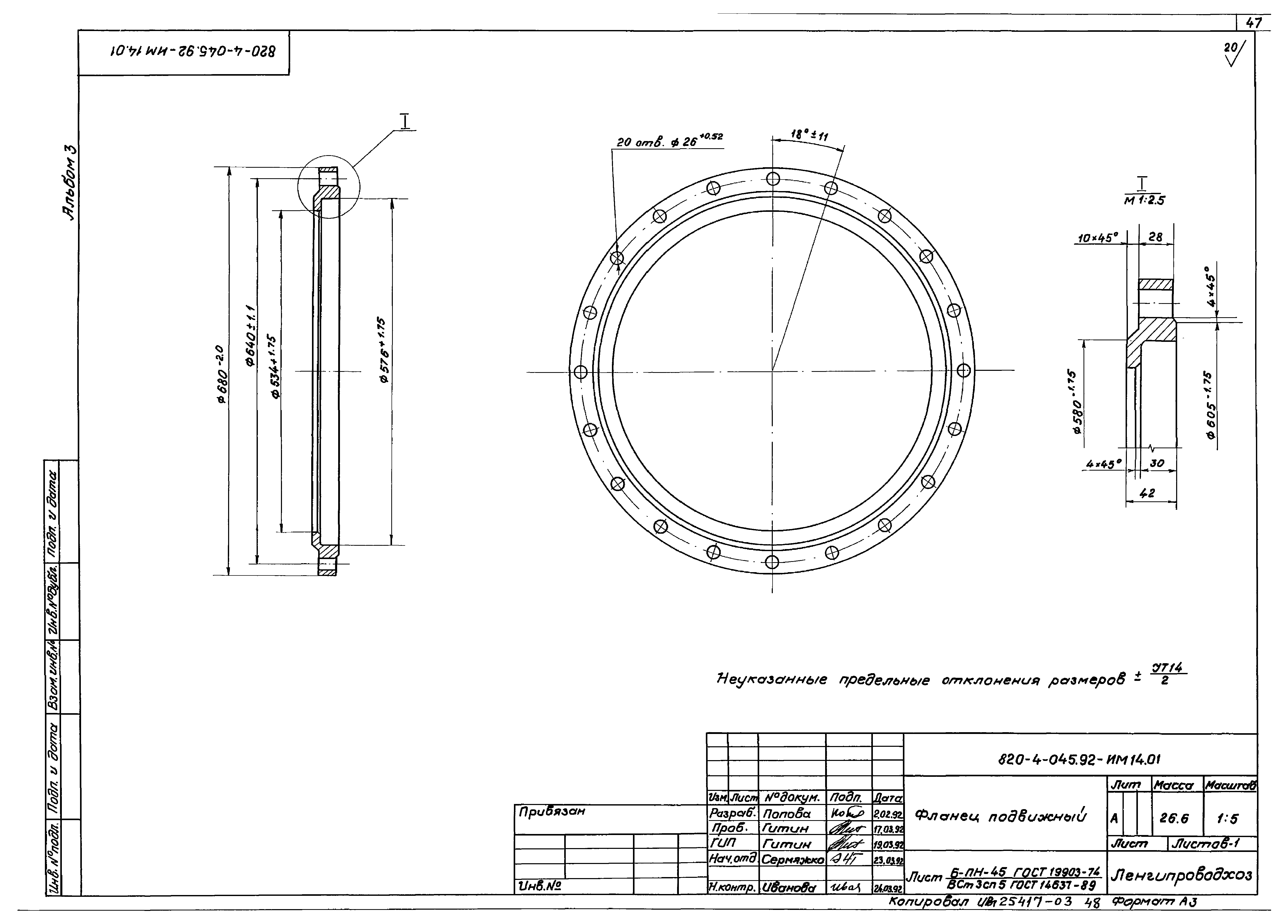
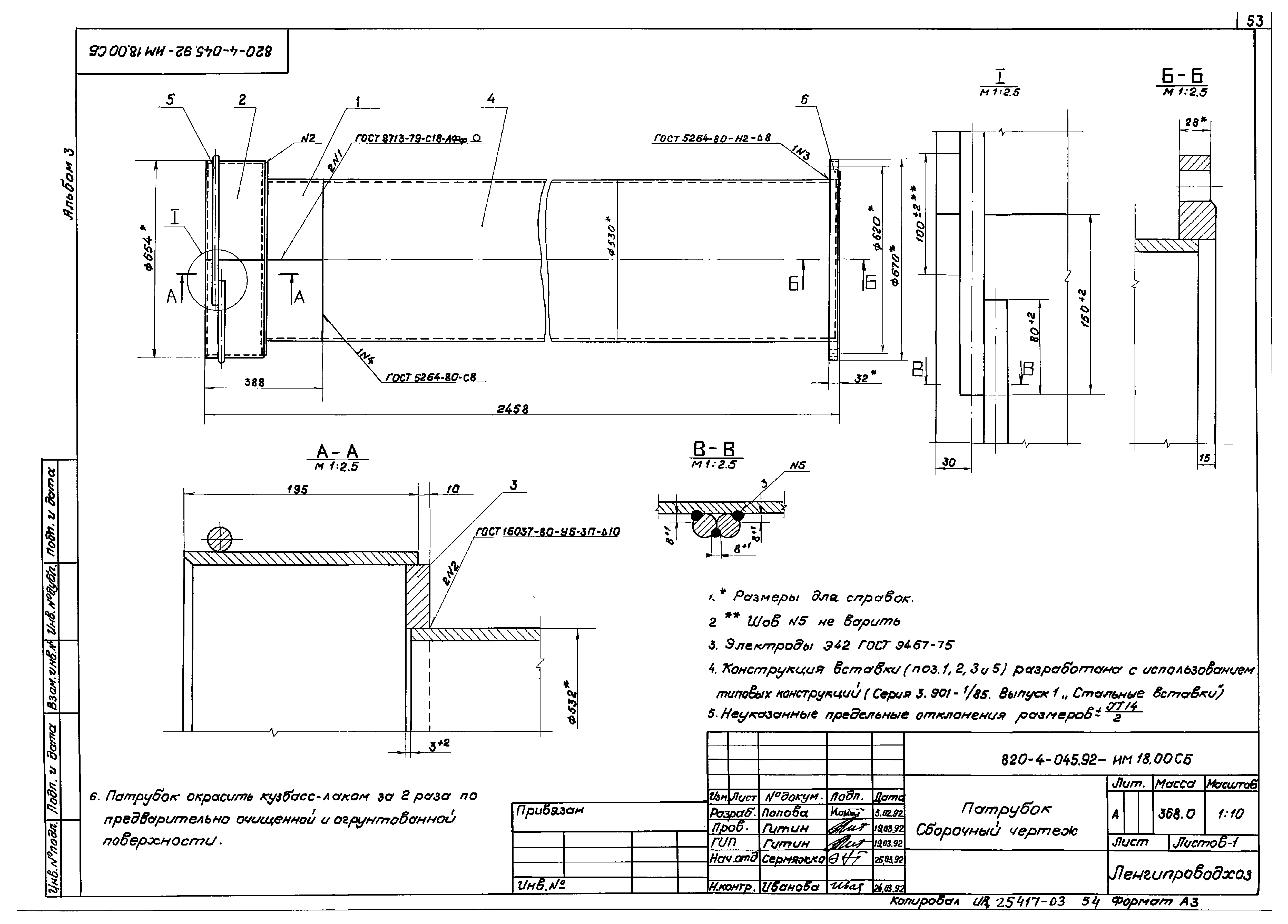
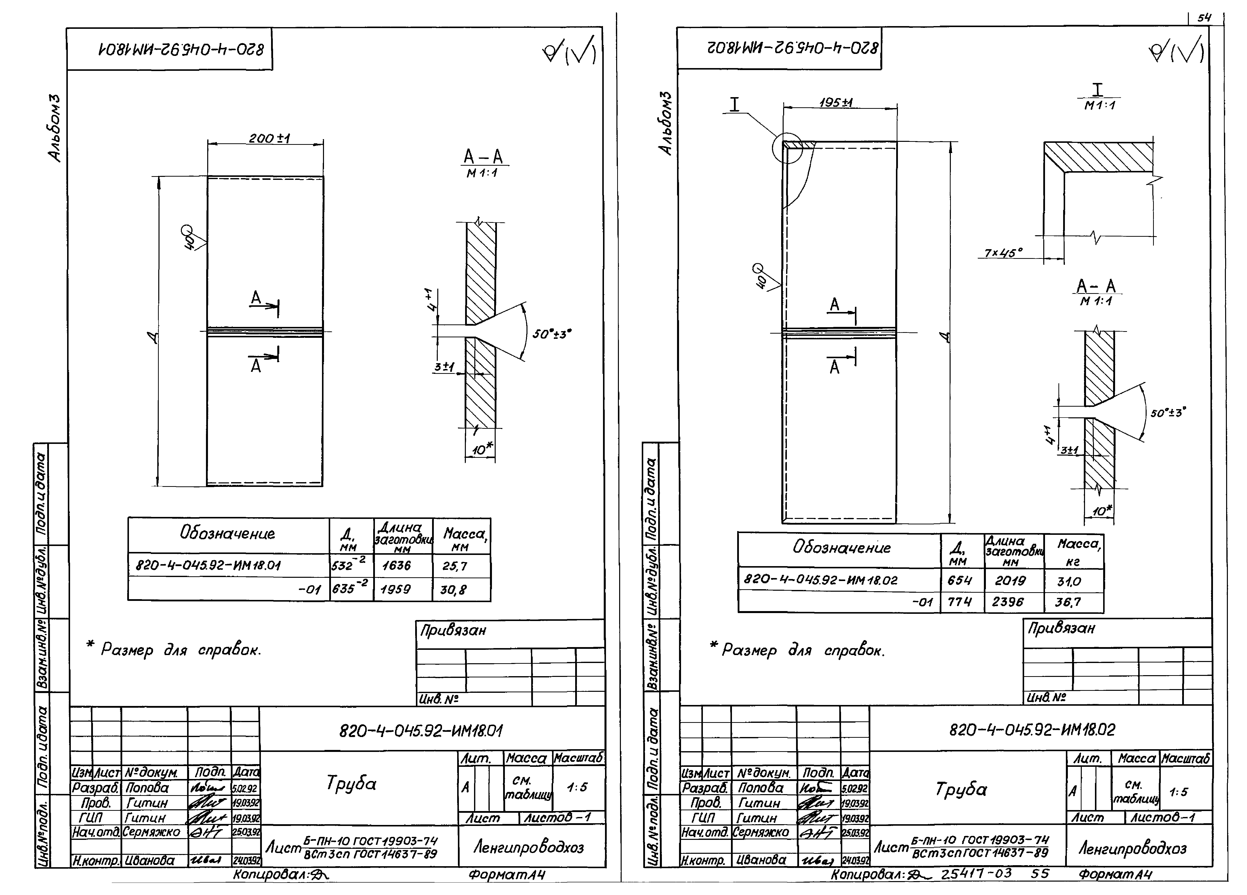
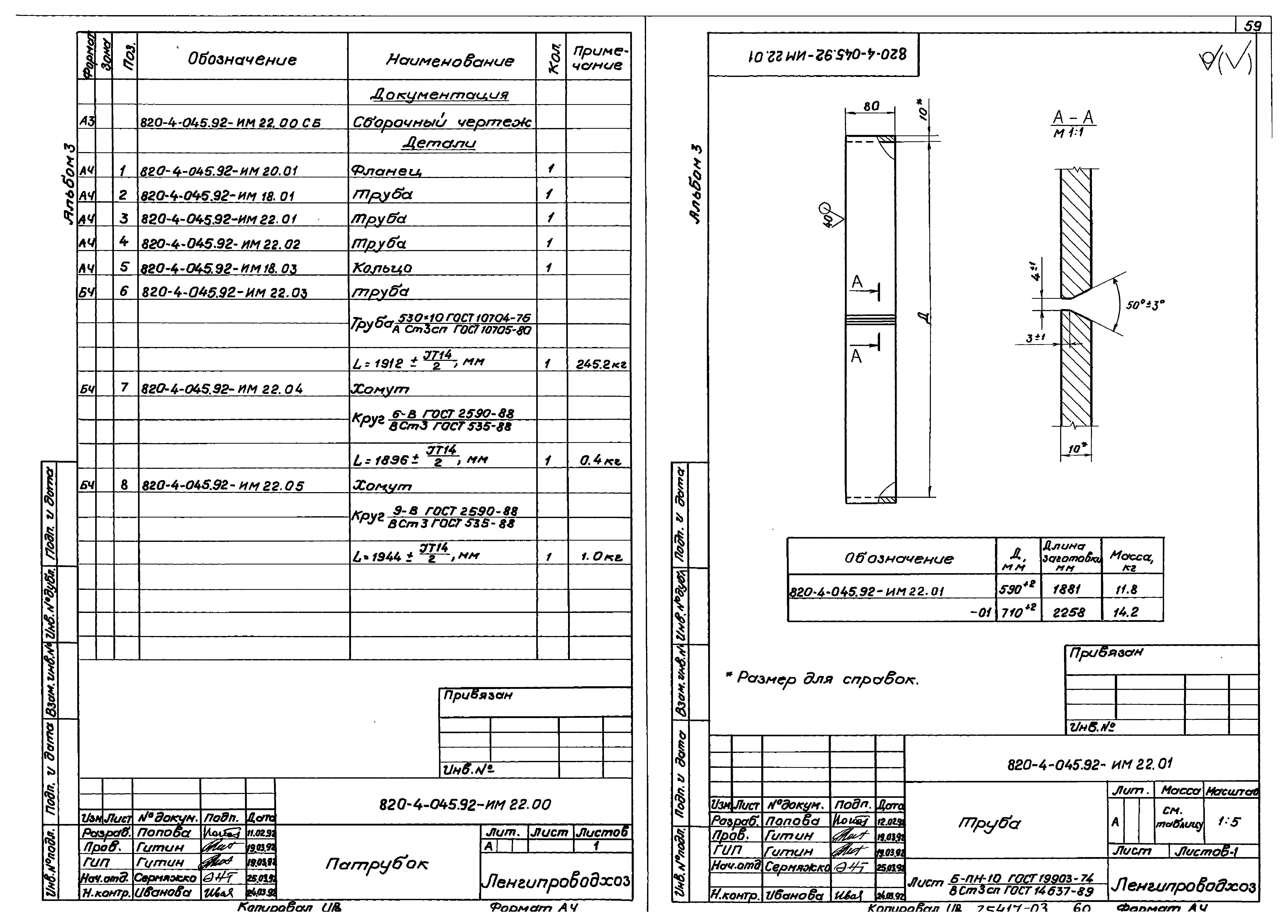
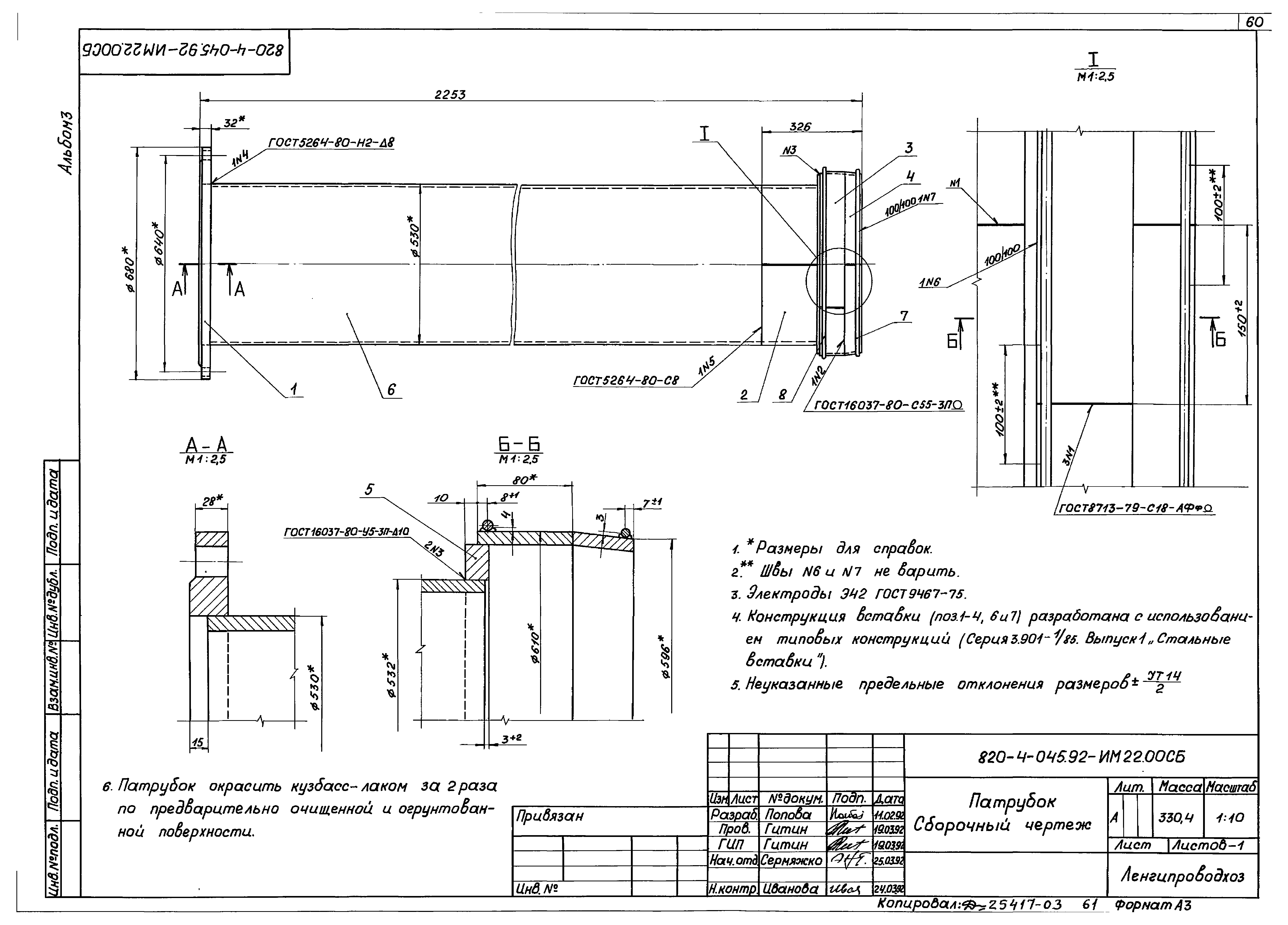
| Оглавление: | 820-4-045.92-ИМ01.00 Решетка 820-4-045.92-ИМ01.11 Уголок 820-4-045.92-ИМ01.00СБ Решетка. Сборочный чертеж 820-4-045.92-ИМ01.10 Корпус 820-4-045.92-ИМ01.10СБ Корпус. Сборочный чертеж 820-4-045.92-ИМ01.12 Штырь 820-4-045.92-ИМ01.20 Панель съемная 820-4-045.92-ИМ01.20СБ Панель съемная. Сборочный чертеж 820-4-045.92-ИМ01.21 Уголок 820-4-045.92-ИМ01.01 Клин 820-4-045.92-ИМ02.00 Решетка 820-4-045.92-ИМ02.00СБ Решетка. Сборочный чертеж 820-4-045.92-ИМ02.10 Корпус 820-4-045.92-ИМ02.10СБ Корпус. Сборочный чертеж 820-4-045.92-ИМ02.20 Панель съемная 820-4-045.92-ИМ02.20СБ Панель съемная. Сборочный чертеж 820-4-045.92-ИМ00.02 Секция диафрагмы 820-4-045.92-ИМ03.00 Решетка 820-4-045.92-ИМ03.00СБ Решетка. Сборочный чертеж 820-4-045.92-ИМ03.10 Корпус 820-4-045.92-ИМ03.10СБ Корпус. Сборочный чертеж 820-4-045.92-ИМ03.20 Панель съемная 820-4-045.92-ИМ03.20СБ Панель съемная. Сборочный чертеж 820-4-045.92-ИМ04.00 Раструб 820-4-045.92-ИМ04.02 Ребро 820-4-045.92-ИМ04.00СБ Раструб. Сборочный чертеж 820-4-045.92-ИМ04.01 Лист 820-4-045.92-ИМ05.00 Раструб 820-4-045.92-ИМ05.00СБ Раструб. Сборочный чертеж 820-4-045.92-ИМ05.01 Ребро 820-4-045.92-ИМ06.00 Раструб 820-4-045.92-ИМ06.00СБ Раструб. Сборочный чертеж 820-4-045.92-ИМ06.01 Лист 820-4-045.92-ИМ06.02 Ребро 820-4-045.92-ИМ07.00 Зонтик 820-4-045.92-ИМ07.00СБ Зонтик. Сборочный чертеж 820-4-045.92-ИМ07.01 Труба 820-4-045.92-ИМ07.02 Лист 820-4-045.92-ИМ07.03 Кольцо 820-4-045.92-ИМ07.04 Ребро 820-4-045.92-ИМ07.05 Ребро 820-4-045.92-ИМ07.06 Ребро 820-4-045.92-ИМ08.00 Тройник 820-4-045.92-ИМ08.00СБ Тройник. Сборочный чертеж 820-4-045.92-ИМ08.10 Тройник 820-4-045.92-ИМ08.10СБ Тройник. Сборочный чертеж 820-4-045.92-ИМ09.00 Тройник 820-4-045.92-ИМ09.00СБ Тройник. Сборочный чертеж 820-4-045.92-ИМ09.01 Фланец 820-4-045.92-ИМ09.02 Заглушка 820-4-045.92-ИМ10.00 Тройник 820-4-045.92-ИМ10.00СБ Тройник. Сборочный чертеж 820-4-045.92-ИМ08.11 Труба 820-4-045.92-ИМ10.10 Тройник 820-4-045.92-ИМ10.10СБ Тройник. Сборочный чертеж 820-4-045.92-ИМ10.11 Труба 820-4-045.92-ИМ11.00 Тройник 820-4-045.92-ИМ11.00СБ Тройник. Сборочный чертеж 820-4-045.92-ИМ11.10 Тройник 820-4-045.92-ИМ11.10СБ Тройник. Сборочный чертеж 820-4-045.92-ИМ12.00 Тройник 820-4-045.92-ИМ12.00СБ Тройник. Сборочный чертеж 820-4-045.92-ИМ11.11 Труба 820-4-045.92-ИМ13.00 Вставка монтажная 820-4-045.92-ИМ13.00СБ Вставка монтажная. Сборочный чертеж 820-4-045.92-ИМ13.01 Фланец подвижный 820-4-045.92-ИМ13.02 Кольцо 820-4-045.92-ИМ13.03 Уплотнение 820-4-045.92-ИМ14.00 Вставка монтажная 820-4-045.92-ИМ14.00СБ Вставка монтажная. Сборочный чертеж 820-4-045.92-ИМ14.01 Фланец подвижный 820-4-045.92-ИМ15.00 Патрубок 820-4-045.92-ИМ15.00СБ Патрубок. Сборочный чертеж 820-4-045.92-ИМ16.00 Патрубок 820-4-045.92-ИМ16.00СБ Патрубок. Сборочный чертеж 820-4-045.92-ИМ16.01 Фланец 820-4-045.92-ИМ20.01 Фланец 820-4-045.92-ИМ17.00 Патрубок 820-4-045.92-ИМ17.00СБ Патрубок. Сборочный чертеж 820-4-045.92-ИМ17.01 Переход 820-4-045.92-ИМ18.00 Патрубок 820-4-045.92-ИМ18.00СБ Патрубок. Сборочный чертеж 820-4-045.92-ИМ18.01 Труба 820-4-045.92-ИМ18.02 Труба 820-4-045.92-ИМ18.03 Кольцо 820-4-045.92-ИМ19.00 Патрубок 820-4-045.92-ИМ19.00СБ Патрубок. Сборочный чертеж 820-4-045.92-ИМ20.00 Патрубок 820-4-045.92-ИМ20.00СБ Патрубок. Сборочный чертеж 820-4-045.92-ИМ21.00 Патрубок 820-4-045.92-ИМ21.00СБ Патрубок. Сборочный чертеж 820-4-045.92-ИМ22.00 Патрубок 820-4-045.92-ИМ22.01 Труба 820-4-045.92-ИМ22.00СБ Патрубок. Сборочный чертеж 820-4-045.92-ИМ23.00 Патрубок 820-4-045.92-ИМ22.02 Труба 820-4-045.92-ИМ23.00СБ Патрубок. Сборочный чертеж 820-4-045.92-ИМ24.00 Рассеивающий порог 820-4-045.92-ИМ24.00СБ Рассеивающий порог. Сборочный чертеж 820-4-045.92-ИМ24.01 Труба 820-4-045.92-ИМ24.02 Ребро 820-4-045.92-ИМ25.00 Рассеивающий порог 820-4-045.92-ИМ25.00СБ Рассеивающий порог. Сборочный чертеж 820-4-045.92-ИМ25.01 Труба 820-4-045.92-ИМ25.02 Ребро 820-4-045.92-ИМ26.00 Рассеивающий порог 820-4-045.92-ИМ26.00СБ Рассеивающий порог. Сборочный чертеж 820-4-045.92-ИМ26.01 Труба 820-4-045.92-ИМ26.02 Ребро 820-4-045.92-ИМ27.00 Насадка 820-4-045.92-ИМ27.00СБ Насадка. Сборочный чертеж 820-4-045.92-ИМ00.01 Прокладка 820-4-045.92-ИМ27.01 Труба 820-4-045.92-ИМ28.00 Колено 820-4-045.92-ИМ28.00СБ Колено. Сборочный чертеж 820-4-045.92-ИМ28.01 Секция 820-4-045.92-ИМ28.02 Секция |
| Разработан: | Ленгипроводхоз |
| Утверждён: | 28.04.1992 Союзводпроект (873) |
| Заменяет собой: |
|








































































