Скачать Типовые проектные решения 820-4-046.92 Альбом 2. Нестандартизированное оборудованиеДата актуализации: 01.01.2021
|
| Обозначение: | Типовые проектные решения 820-4-046.92 |
| Обозначение англ: | 820-4-046.92 |
| Статус: | справочные материалы, мп, тпр |
| Название рус.: | Альбом 2. Нестандартизированное оборудование |
| Дата добавления в базу: | 01.10.2014 |
| Дата актуализации: | 01.01.2021 |
| Дата введения: | 30.06.1992 |
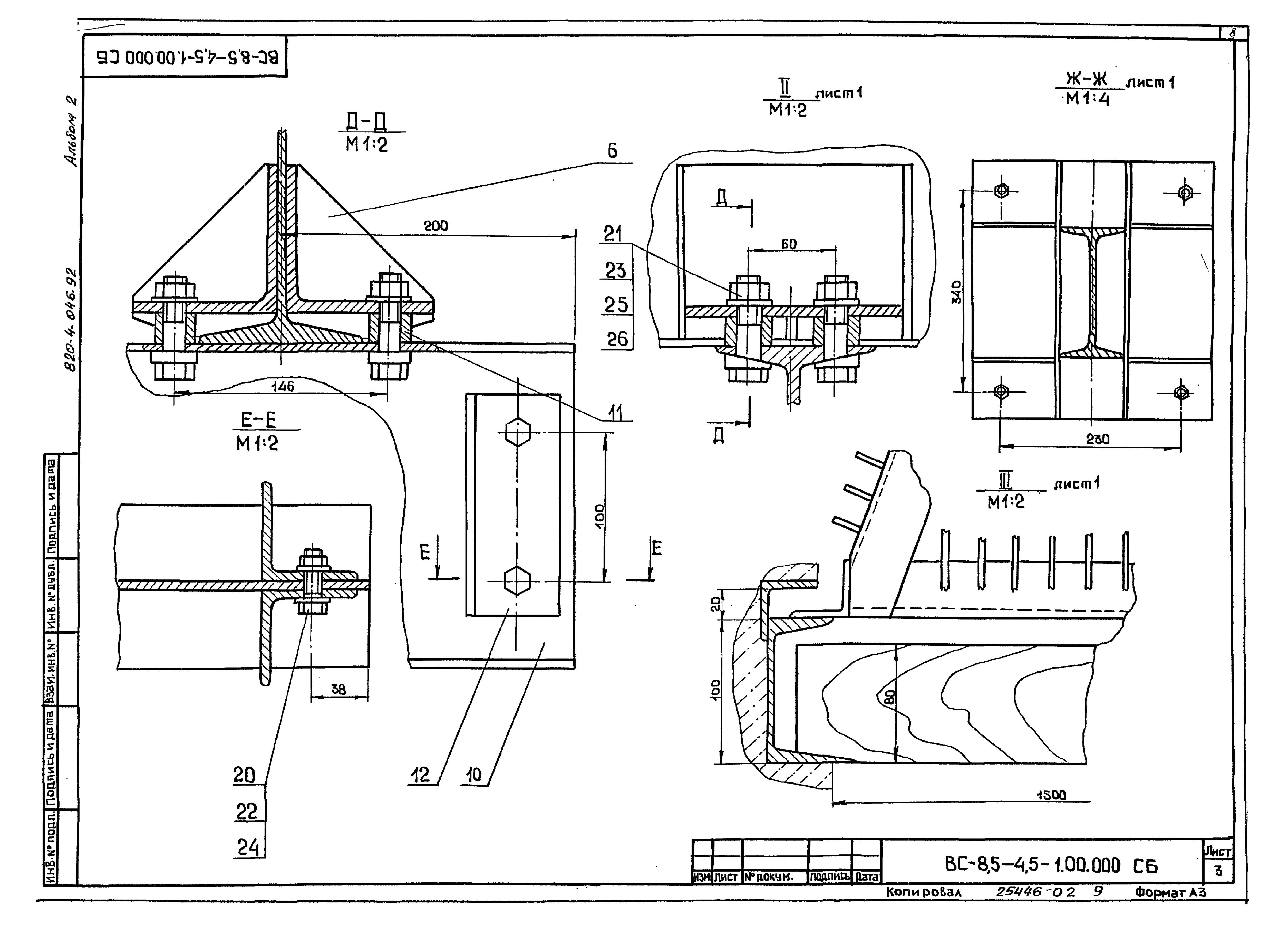
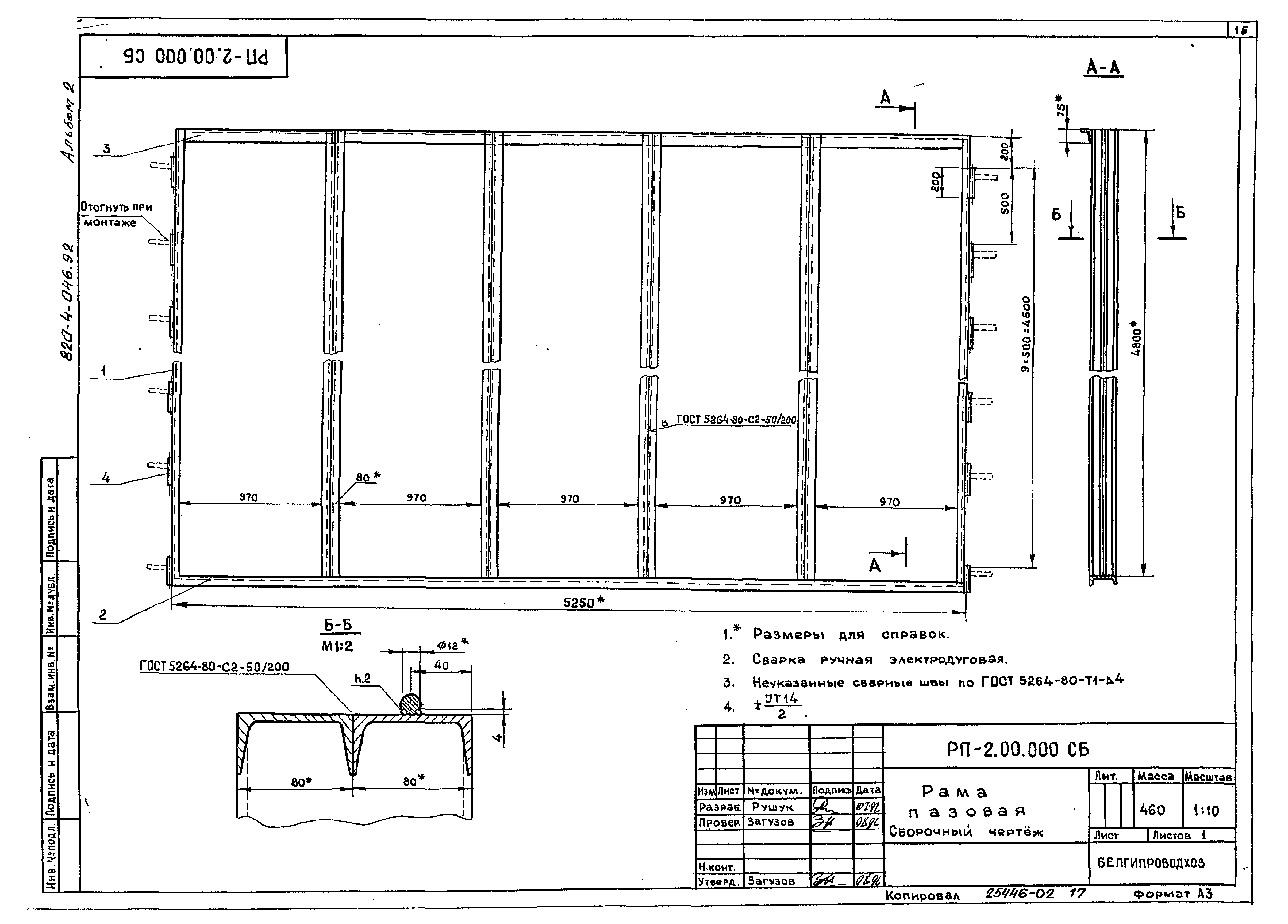
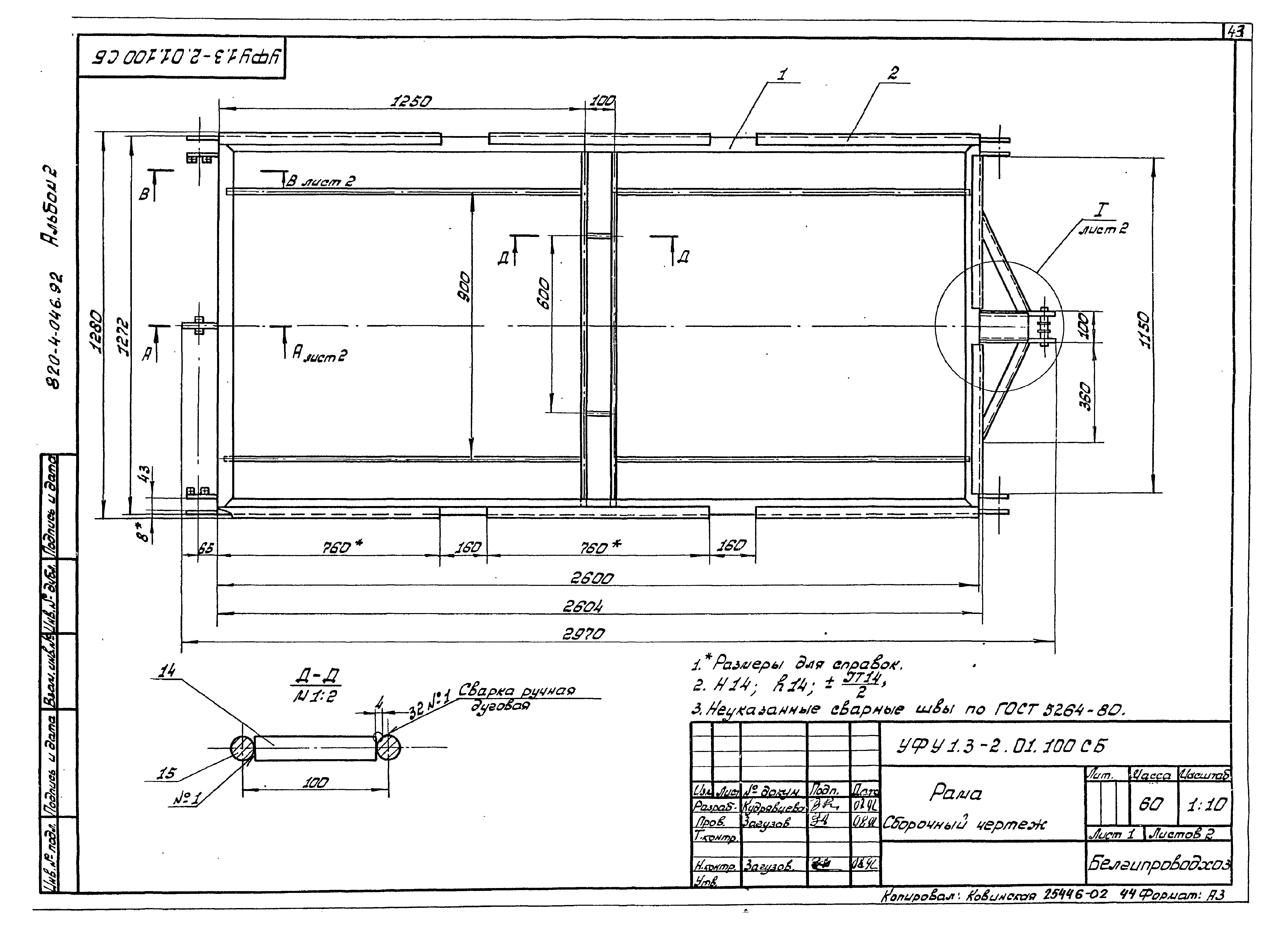
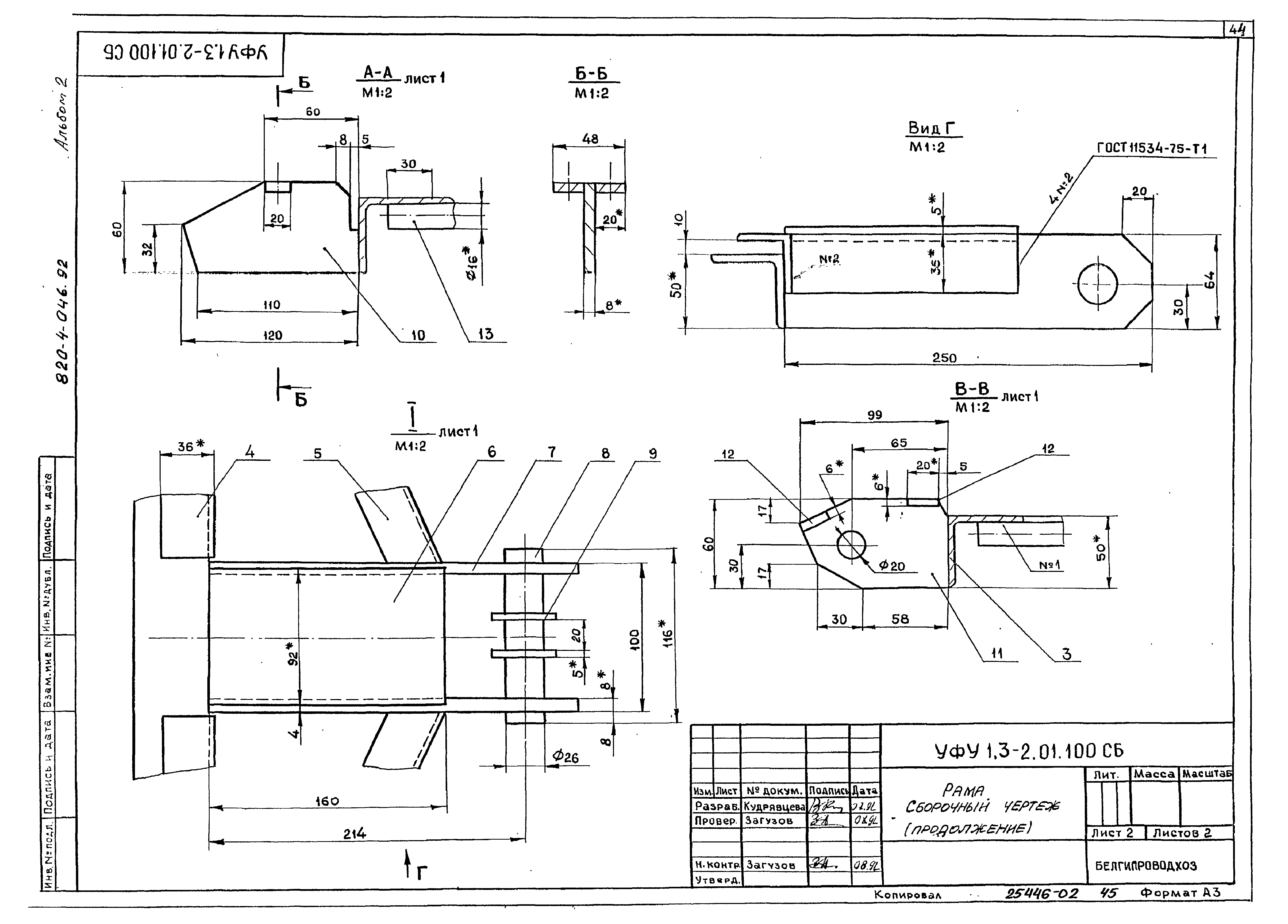
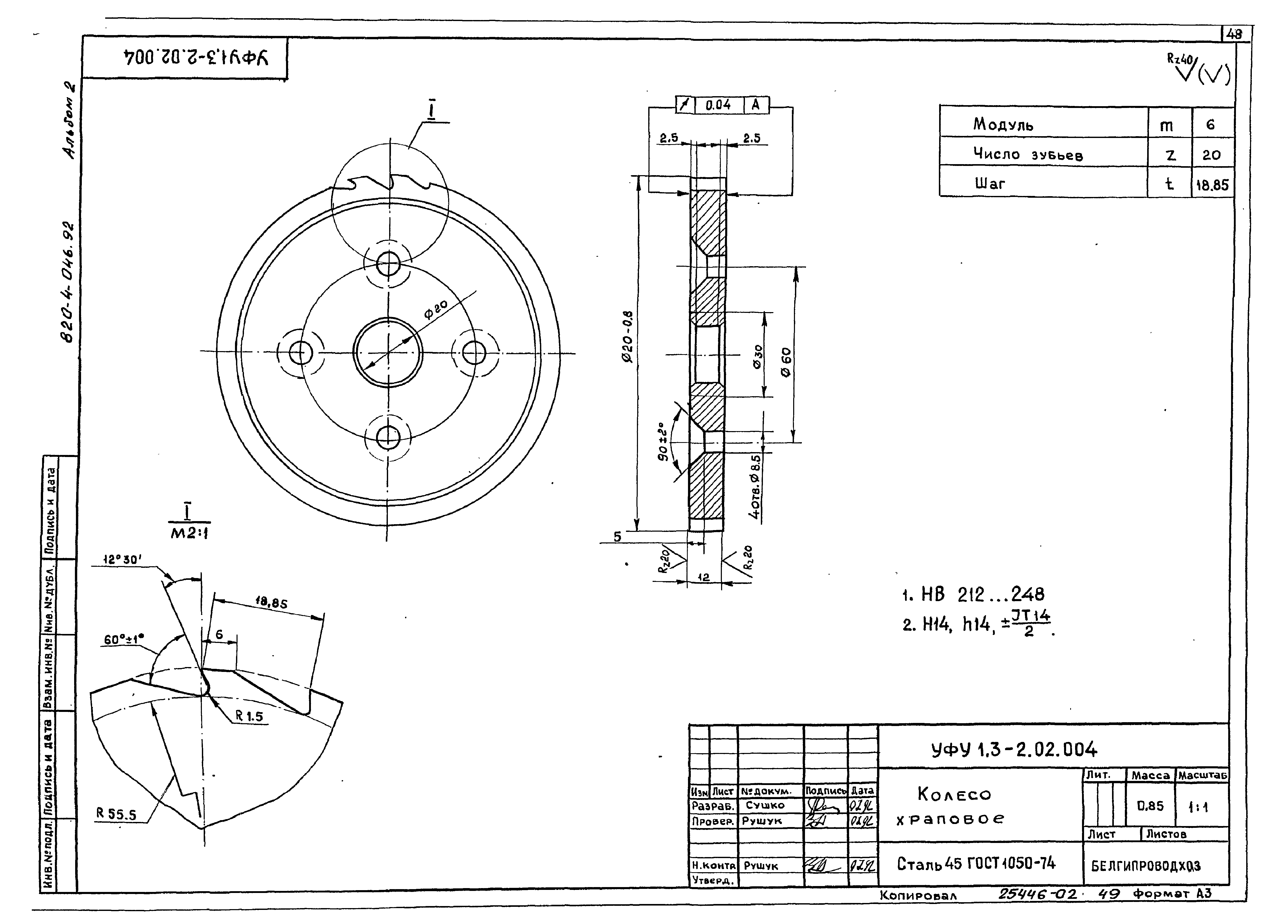
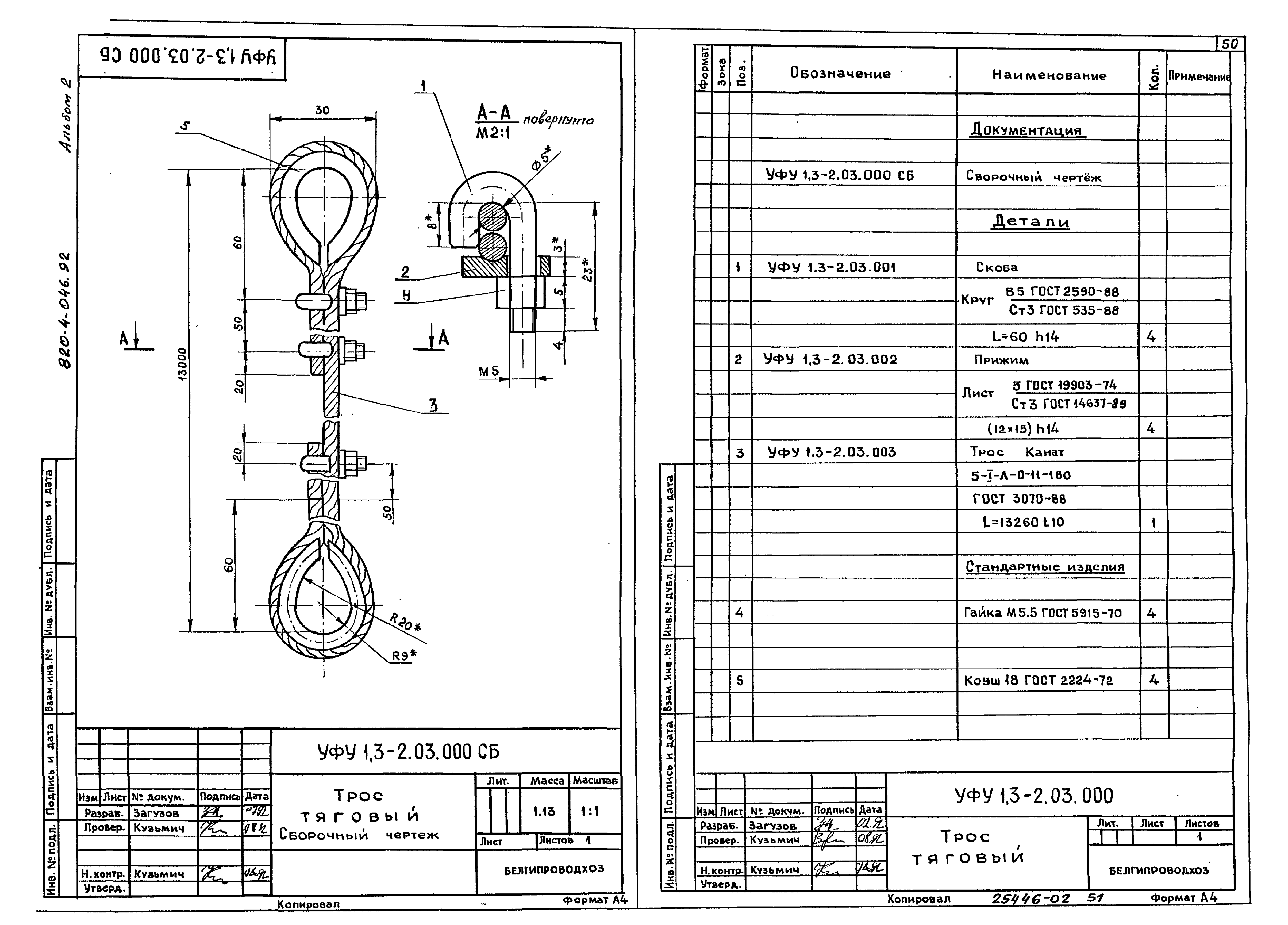
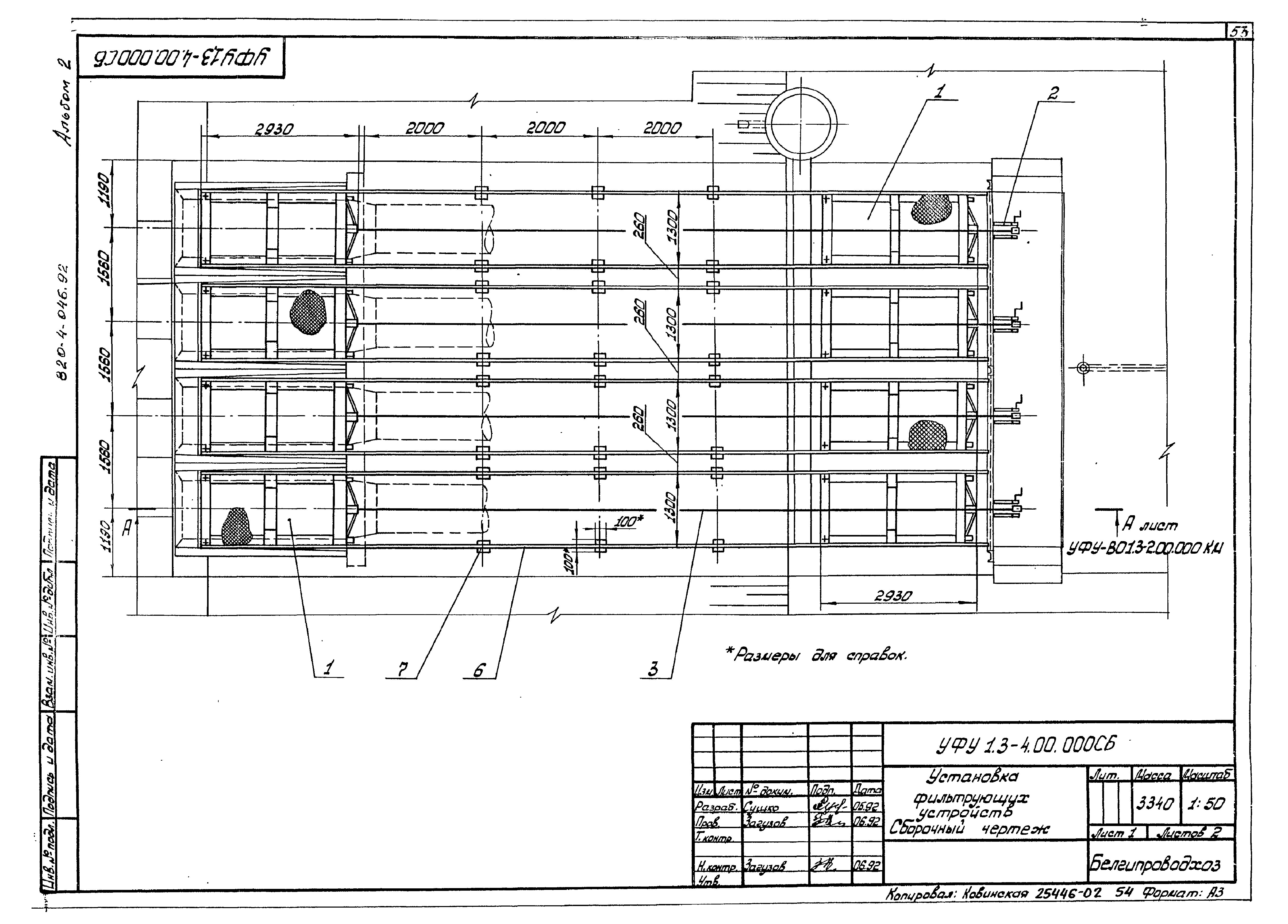
| Оглавление: | ТТ.00.000 Технические требования ВС-8,5-4,5-1.00.000 Водозаборное сооружение с фильтрами тонкой очистки воды для оросительных насосных станций ВС-8,5-4,5-1.00.000СБ Водозаборное сооружение с фильтрами тонкой очистки воды для оросительных насосных станций. Сборочный чертеж Р-1.00.000 Решетка РП-1.00.000 Рама пазовая Р-1.00.000СБ Решетка. Сборочный чертеж РП-1.00.000СБ Рама пазовая. Сборочный чертеж Ф-1,5.00.000 Фильтр Ф-1,5.00.000СБ Фильтр. Сборочный чертеж РП-2.00.000 Рама пазовая Ф-1,5.00.013 Кронштейн РП-2.00.000СБ Рама пазовая. Сборочный чертеж УО.02.00.001 Ребро УО.02.00.002 Полка УО.02.00.003 Ребро УО.00.00.003 Упор УО.01.00.000 Стойка монорельса УО.01.00.001 Плита УО.01.00.000СБ Стойка монорельса. Сборочный чертеж УО.01.00.002 Ребро УО.01.00.003 Ребро УО.02.00.000 Кронштейн монорельса УО.02.00.000СБ Кронштейн монорельса. Сборочный чертеж УО.00.00.001 Балка монорельса УО.00.00.002 Втулка УО.00.004 Шандора ВС-11,5-4,5-2.00.000 Водозаборное сооружение с фильтрами тонкой очистки воды для оросительных насосных станций ВС-11,5-4,5-2.00.000СБ Водозаборное сооружение с фильтрами тонкой очистки воды для оросительных насосных станций. Сборочный чертеж ВС-11,5-4,5-4.00.000 Водозаборное сооружение с фильтрами тонкой очистки воды для оросительных насосных станций ВС-11,5-4,5-4.00.000СБ Водозаборное сооружение с фильтрами тонкой очистки воды для оросительных насосных станций. Сборочный чертеж УФУ1,3-2.00.000 Установка фильтрующих устройств УФУ1,3-2.00.000СБ Установка фильтрующих устройств. Сборочный чертеж УФУ1,3-2.01.000 Устройство фильтрующее УФУ1,3-2.01.000СБ Устройство фильтрующее. Сборочный чертеж УФУ1,3-2.01.100 Рама УФУ1,3-2.01.100СБ Рама. Сборочный чертеж УФУ1,3-2.02.000 Лебедка ручная УФУ1,3-2.02.000СБ Лебедка ручная. Сборочный чертеж УФУ1,3-2.02.003 Валик УФУ1,3-2.02.004 Колесо храповое УФУ1,3-2.02.200 Упор УФУ1,3-2.02.200СБ Упор. Сборочный чертеж УФУ1,3-2.03.000 Трос тяговый УФУ1,3-2.03.000СБ Трос тяговый. Сборочный чертеж УФУ1,3-3.00.000 Установка фильтрующих устройств УФУ1,3-3.00.000СБ Установка фильтрующих устройств. Сборочный чертеж УФУ1,3-4.00.000 Установка фильтрующих устройств УФУ1,3-4.00.000СБ Установка фильтрующих устройств. Сборочный чертеж УФУ1,3-5.00.000 Установка фильтрующих устройств УФУ1,3-5.00.000СБ Установка фильтрующих устройств. Сборочный чертеж ПО-1.00.000 Перильное ограждение ПО-1.00.000СБ Перильное ограждение. Сборочный чертеж |
| Разработан: | Союзводпроект Белгипроводхоз |
| Утверждён: | 30.06.1992 Союзводпроект (874) |
























































