Скачать Типовой проект 901-1-94.88 Альбом III. Архитектурно-строительные решения (подземная часть), указания по производству строительных работДата актуализации: 01.01.2021
|
| Обозначение: | Типовой проект 901-1-94.88 |
| Обозначение англ: | 901-1-94.88 |
| Статус: | не определен законодательством |
| Название рус.: | Альбом III. Архитектурно-строительные решения (подземная часть), указания по производству строительных работ |
| Дата добавления в базу: | 01.10.2014 |
| Дата актуализации: | 01.01.2021 |
| Дата введения: | 05.07.1988 |
| Дата окончания срока действия: | 30.06.2003 |
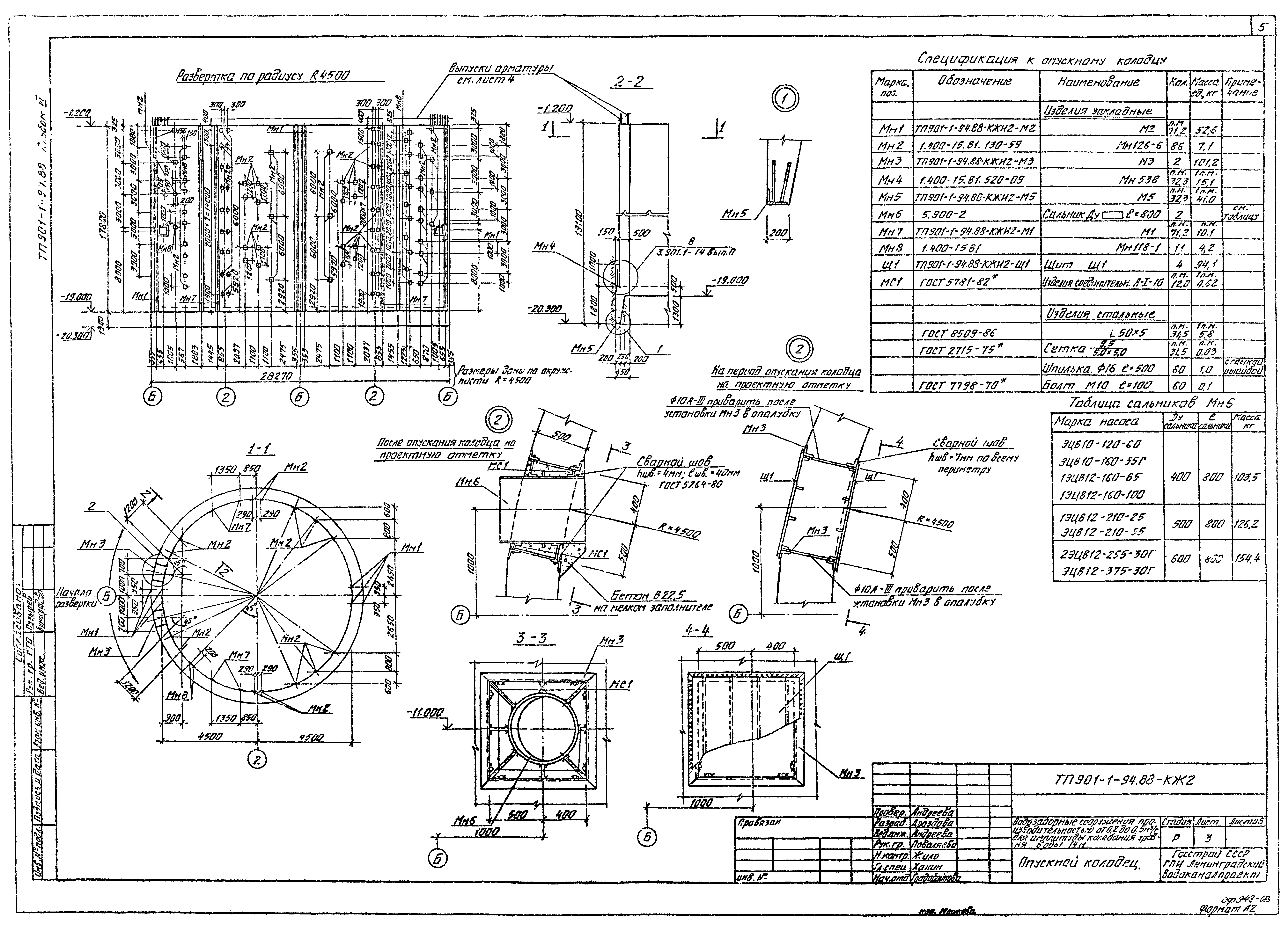
| Оглавление: | Содержание альбома Конструкции железобетонные КЖ2 Общие данные Опускной колодец Опускной колодец. Схемы армирования. Чертеж № 1 Опускной колодец. Схемы армирования. Чертеж № 2 Опускной колодец. Днище Опускной колодец. Днище. Схемы армирования Опускной колодец. Внутренние стены Опускной колодец. Внутренние стены. Схемы армирования. Чертеж № 1 Опускной колодец. Внутренние стены. Схемы армирования. Чертеж № 2 Форшахта Конструкции металлические КМ2 Общие данные. Ведомость металлоконструкций по видам профилей Техническая спецификация стали Схема расположения лестниц, площадок и опор под трубы Схема расположения лестниц, площадок и опор под трубы. Узлы Схема расположения направляющих балок для крепления насосов Организация строительства ОС Общие данные Схемы производства работ. I этап Схемы производства работ. II и V этапы Схемы производства работ. III и IV этапы Схема производства свайных работ Схемы производства монтажных работ. Надземная часть График производства работ |
| Разработан: | Ленинградский Водоканалпроект |
| Утверждён: | 06.04.1988 Госстрой СССР (Государственный комитет Совета Министров СССР по делам строительства) (USSR Gosstroy 25) |
| Издан: | ЦИТП Госстроя СССР (CITP, Gosstroy (USSR) 1988 г. ) |
| Заменяет собой: |




























