Скачать Типовой проект 901-1-95.88 Альбом III. Архитектурно-строительные решения (подземная часть), указания по производству строительных работДата актуализации: 01.01.2021
|
| Обозначение: | Типовой проект 901-1-95.88 |
| Обозначение англ: | 901-1-95.88 |
| Статус: | не определен законодательством |
| Название рус.: | Альбом III. Архитектурно-строительные решения (подземная часть), указания по производству строительных работ |
| Дата добавления в базу: | 01.10.2014 |
| Дата актуализации: | 01.01.2021 |
| Дата введения: | 05.07.1988 |
| Дата окончания срока действия: | 30.06.2003 |
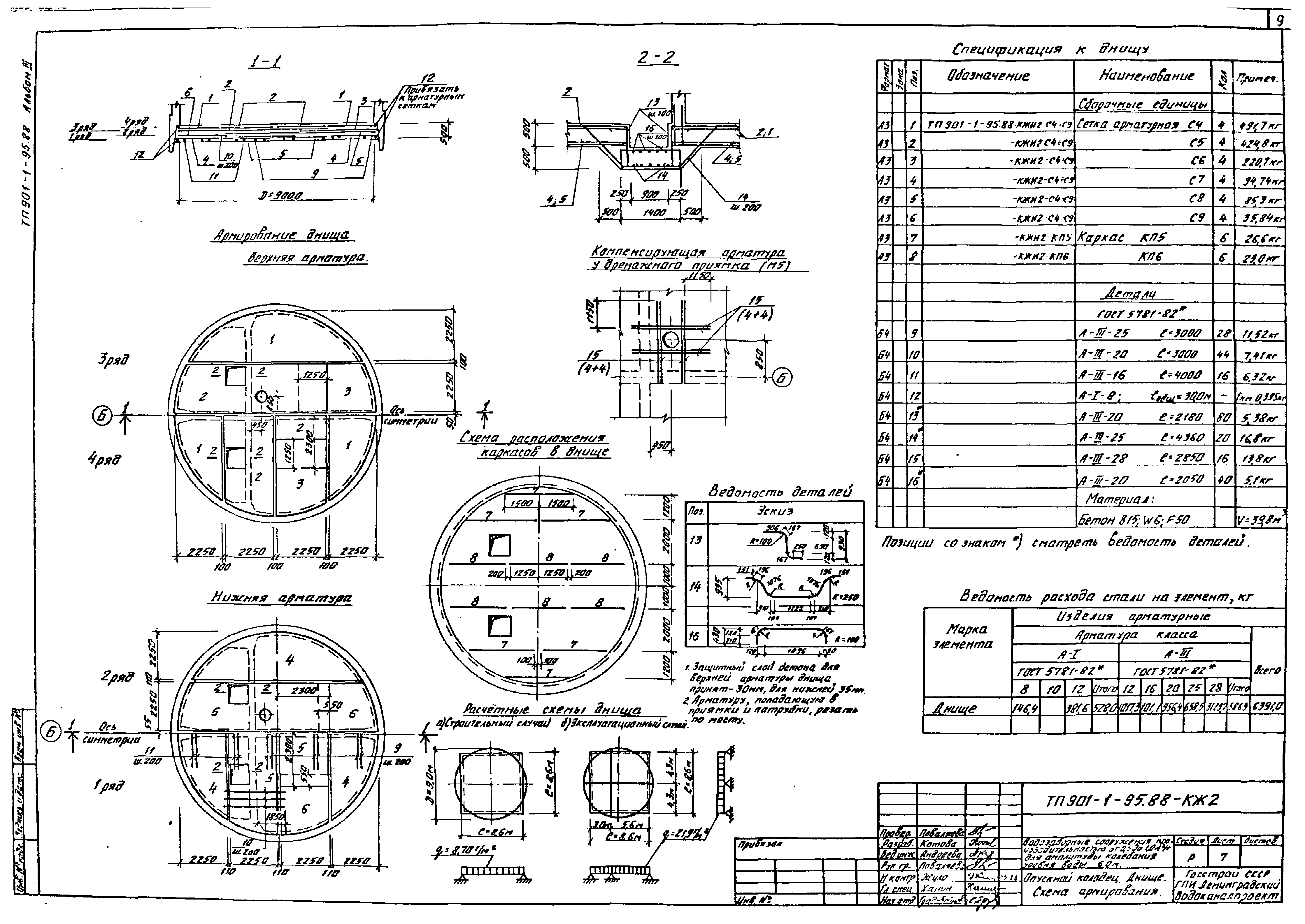
| Оглавление: | Содержание альбома Конструкции железобетонные КЖ2 Общие данные Опускной колодец Опускной колодец. Схема армирования Опускной колодец. Днище Опускной колодец. Днище. Схема армирования Опускной колодец. Внутренние стены Опускной колодец. Внутренние стены. Схема армирования Форшахта Конструкции металлические КМ2 Общие данные. Ведомость металлоконструкций по видам профилей Техническая спецификация стали Схема расположения лестниц, площадок и опор под трубы Схема расположения лестниц, площадок и опор под трубы. Узлы Организация строительства ОС Общие данные Схемы производства работ. I этап Схемы производства работ. II и III этапы Схемы производства свайных работ Схемы производства монтажных работ. Надземная часть График производства работ |
| Разработан: | Ленинградский Водоканалпроект |
| Утверждён: | 06.04.1988 Госстрой СССР (Государственный комитет Совета Министров СССР по делам строительства) (USSR Gosstroy 25) |
| Издан: | ЦИТП Госстроя СССР (CITP, Gosstroy (USSR) 1988 г. ) |
| Заменяет собой: |

























