Скачать Типовой проект 709-9-80.87 Альбом 1. Общая пояснительная записка. Архитектурно-строительные решения. Санитарно-техническая и электротехническая частиДата актуализации: 01.01.2021
|
| Обозначение: | Типовой проект 709-9-80.87 |
| Обозначение англ: | 709-9-80.87 |
| Статус: | не определен законодательством |
| Название рус.: | Альбом 1. Общая пояснительная записка. Архитектурно-строительные решения. Санитарно-техническая и электротехническая части |
| Дата добавления в базу: | 01.10.2014 |
| Дата актуализации: | 01.01.2021 |
| Дата введения: | 10.03.1988 |
| Дата окончания срока действия: | 30.06.2003 |
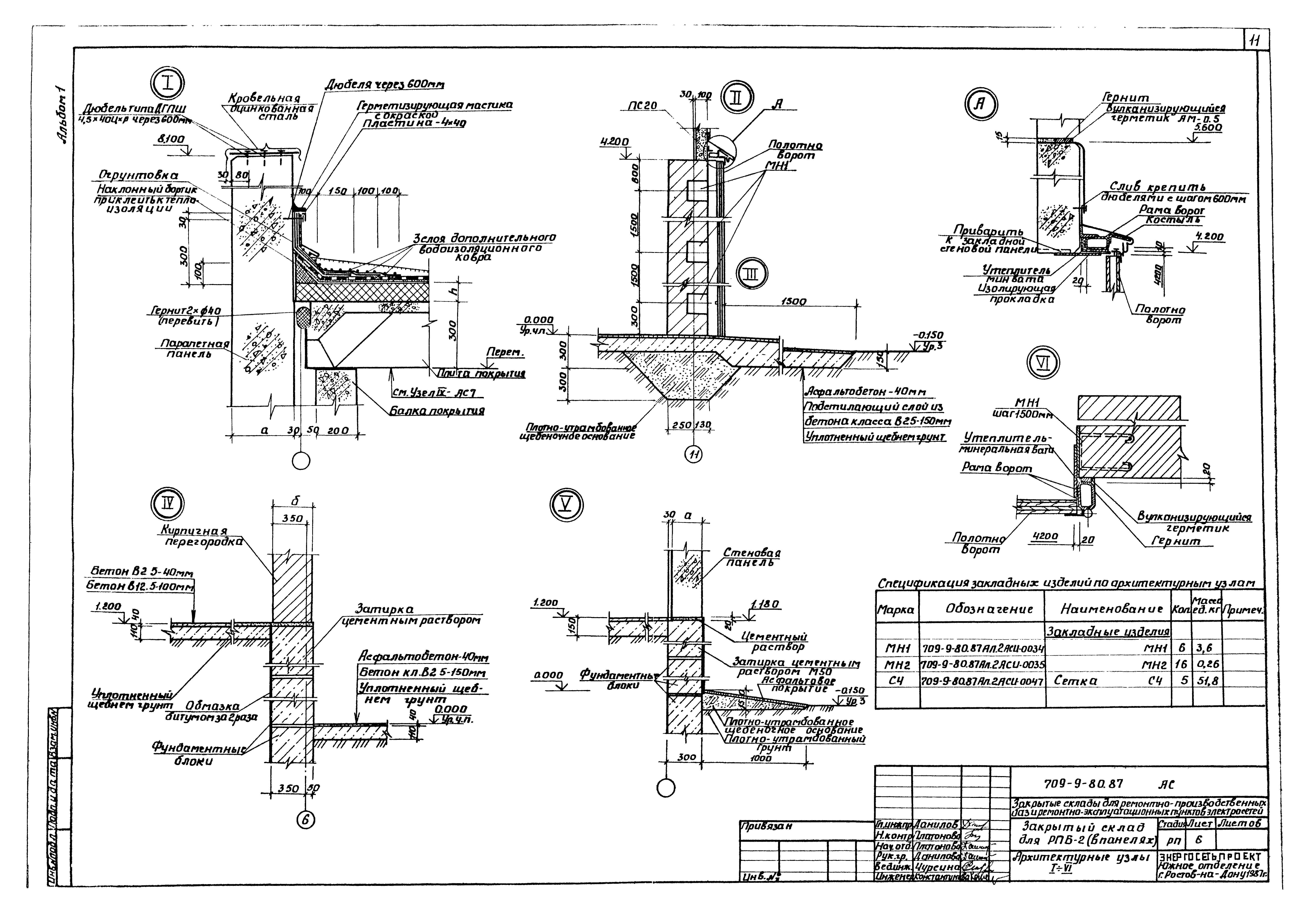
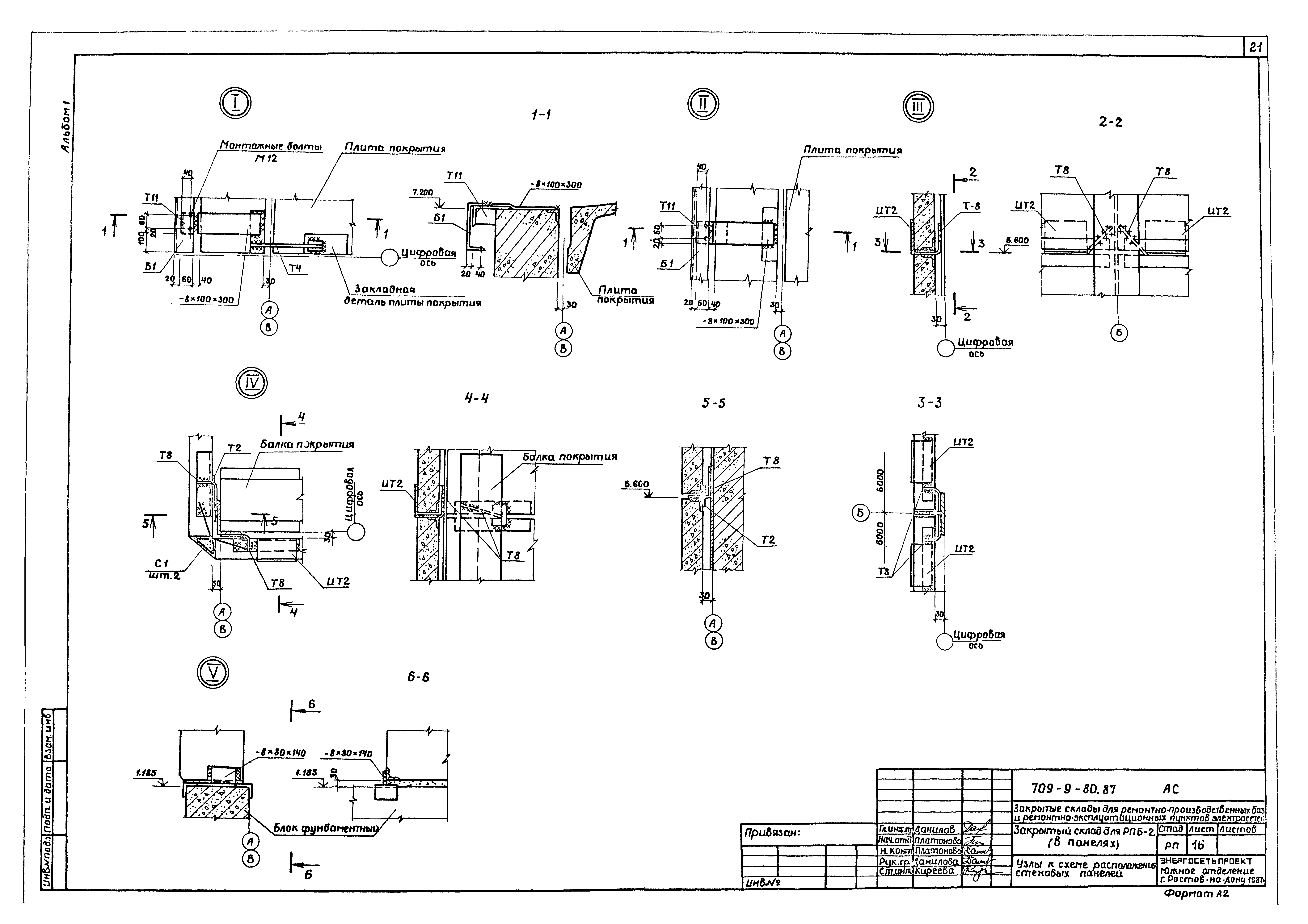
| Оглавление: | Содержание альбома Пояснительная записка Архитектурно-строительные решения Общие данные План. Разрезы 1-1, 2-2. Спецификация Фасады Архитектурные узлы I - VI Архитектурные узлы VII - XI Схема расположения фундаментов. Спецификация Схема расположения фундаментов. Развертки Схема расположения фундаментов. Фрагменты планов 1, 2, 3. Сечения Схема расположения каркаса. Спецификация Схема расположения плит покрытия Спецификация к схеме расположения плит покрытия Схемы расположения стеновых панелей Спецификация к схеме расположения стеновых панелей Узлы к схемам расположения стеновых панелей Схема расположения монорельса. Спецификация Фундаменты Фм1, Фм2 Водопровод Общие данные. План на отм. 1.200. Схема системы В1 Отопление и вентиляция Общие данные Отопление и вентиляция. План на отм. 1.200. Схема системы отопления Силовое электрооборудование и электроосвещение Общие данные План силовой распределительной сети. Молниезащита План сети электрического освещения. Принципиальная схема силовой распределительной сети и сети электрического освещения |
| Разработан: | Южное отделение Энергосетьпроекта |
| Утверждён: | 10.03.1988 Минэнерго СССР (USSR Minenergo 18) |






























