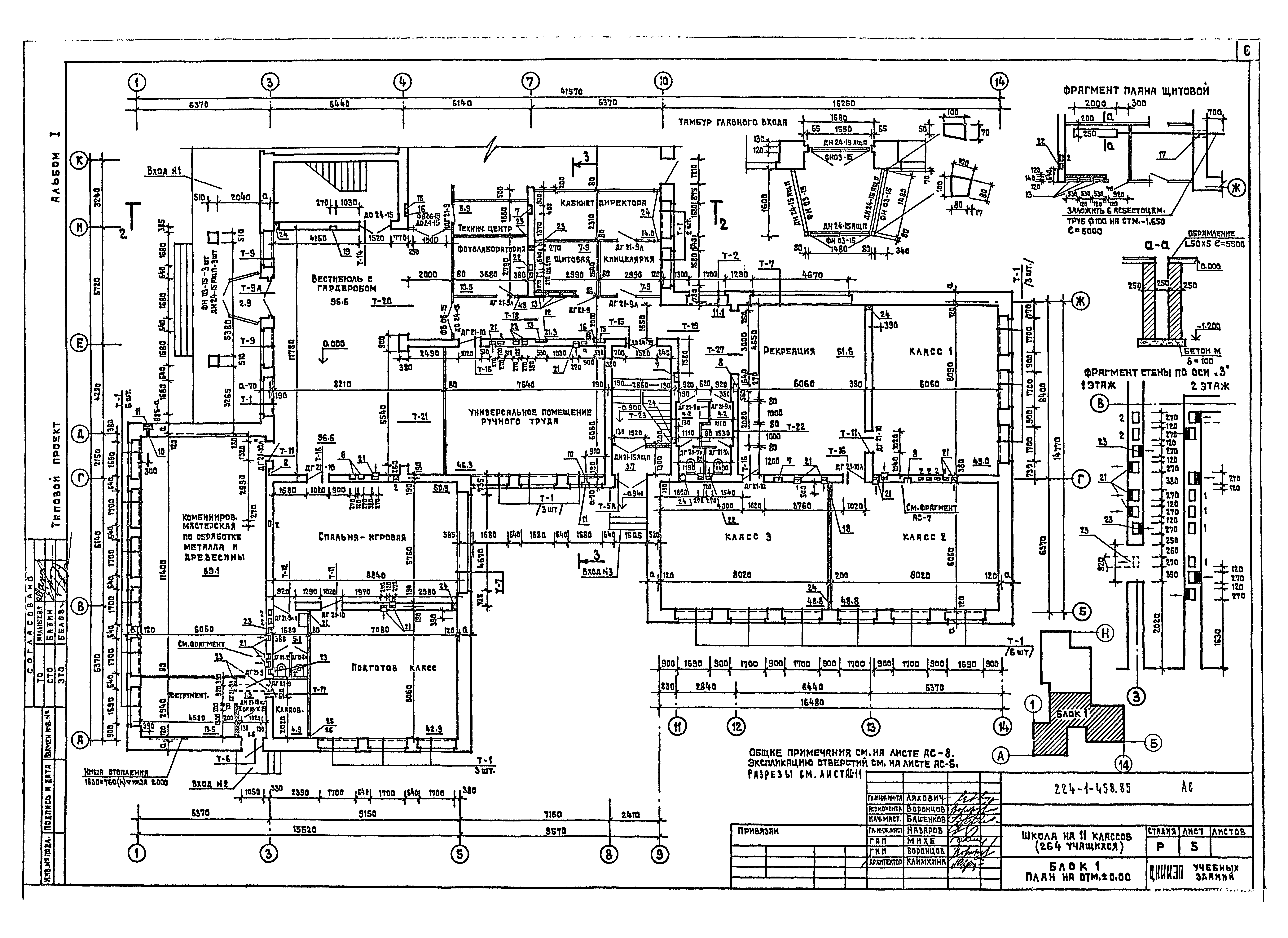
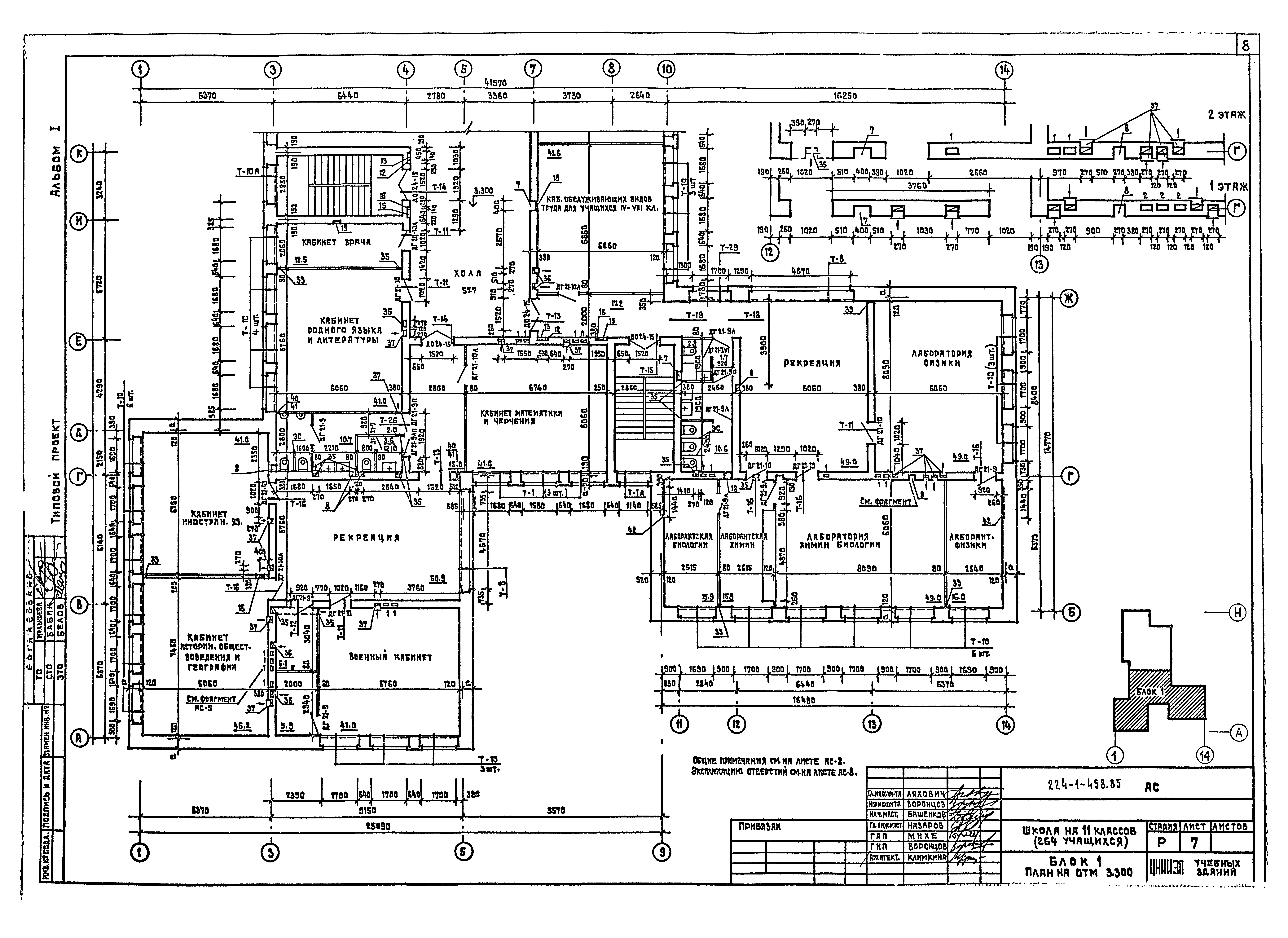
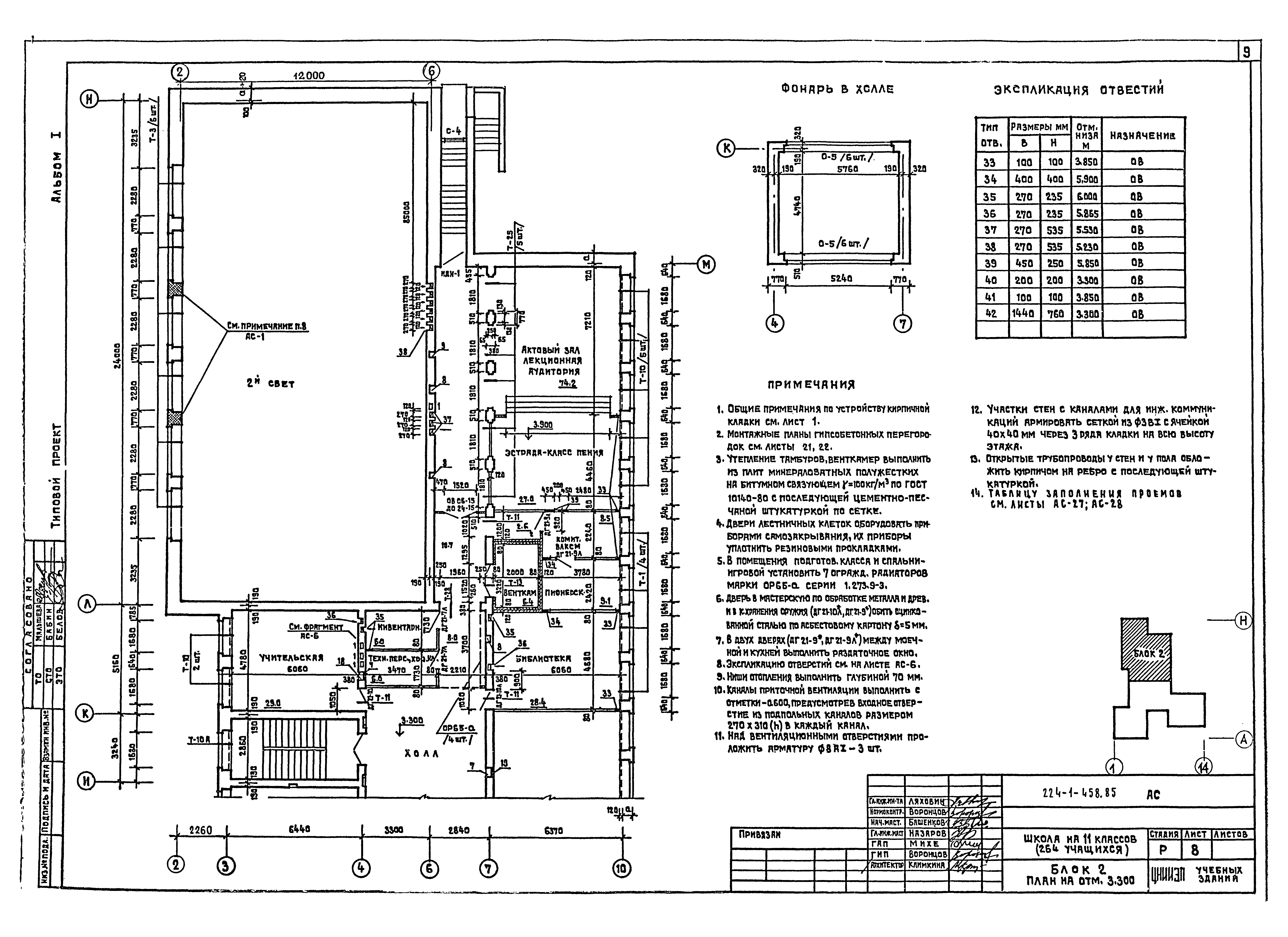
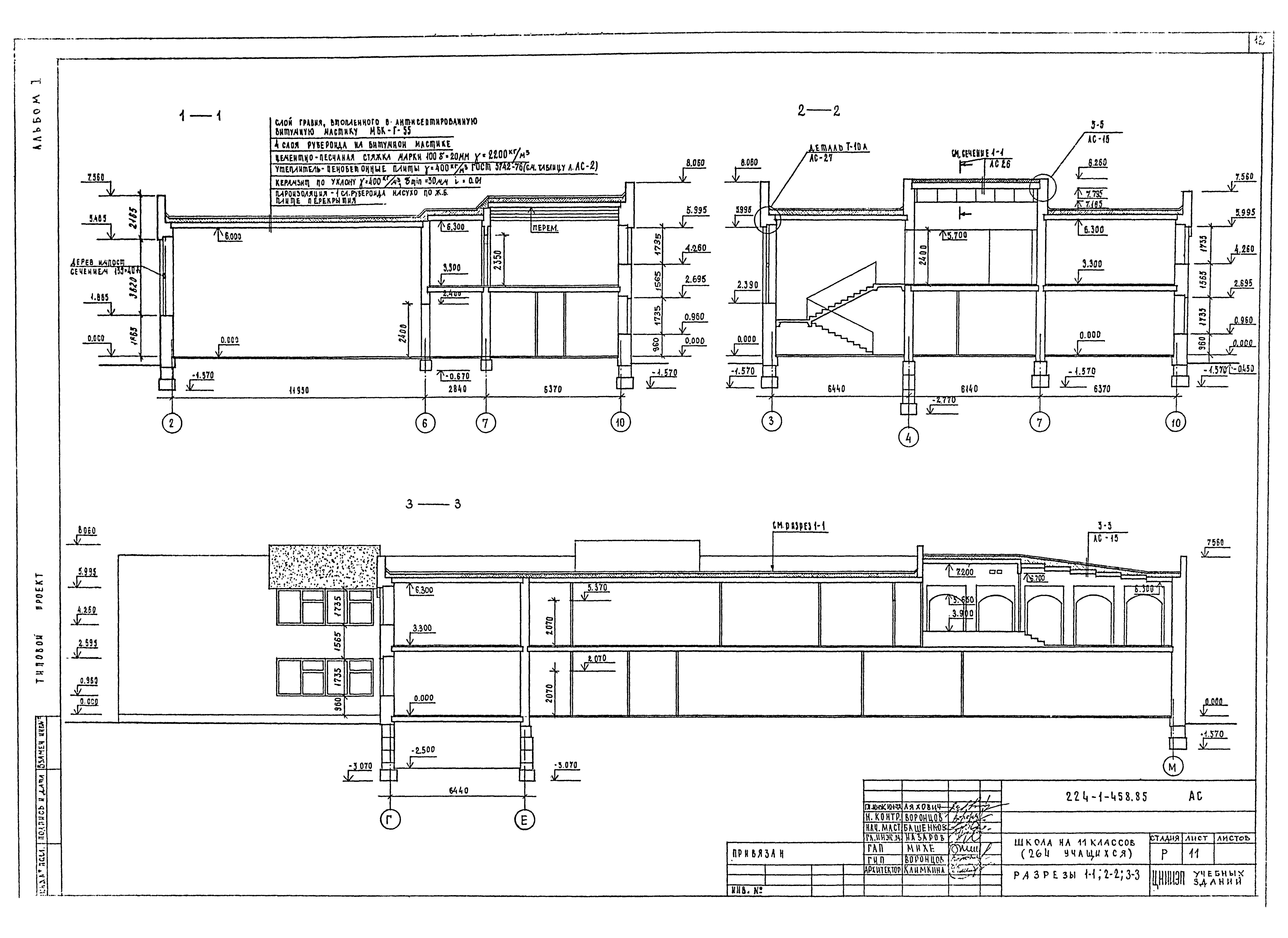
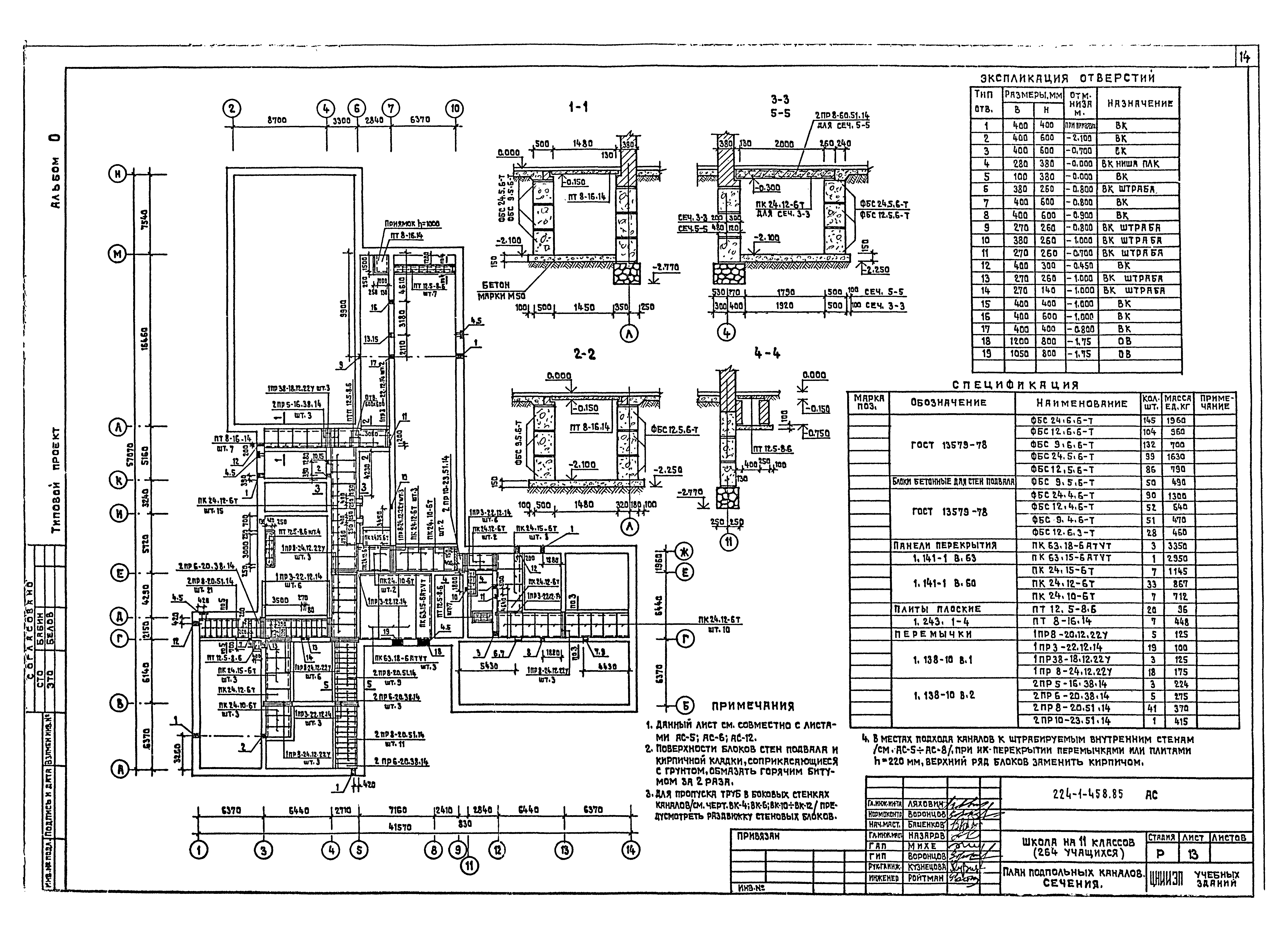
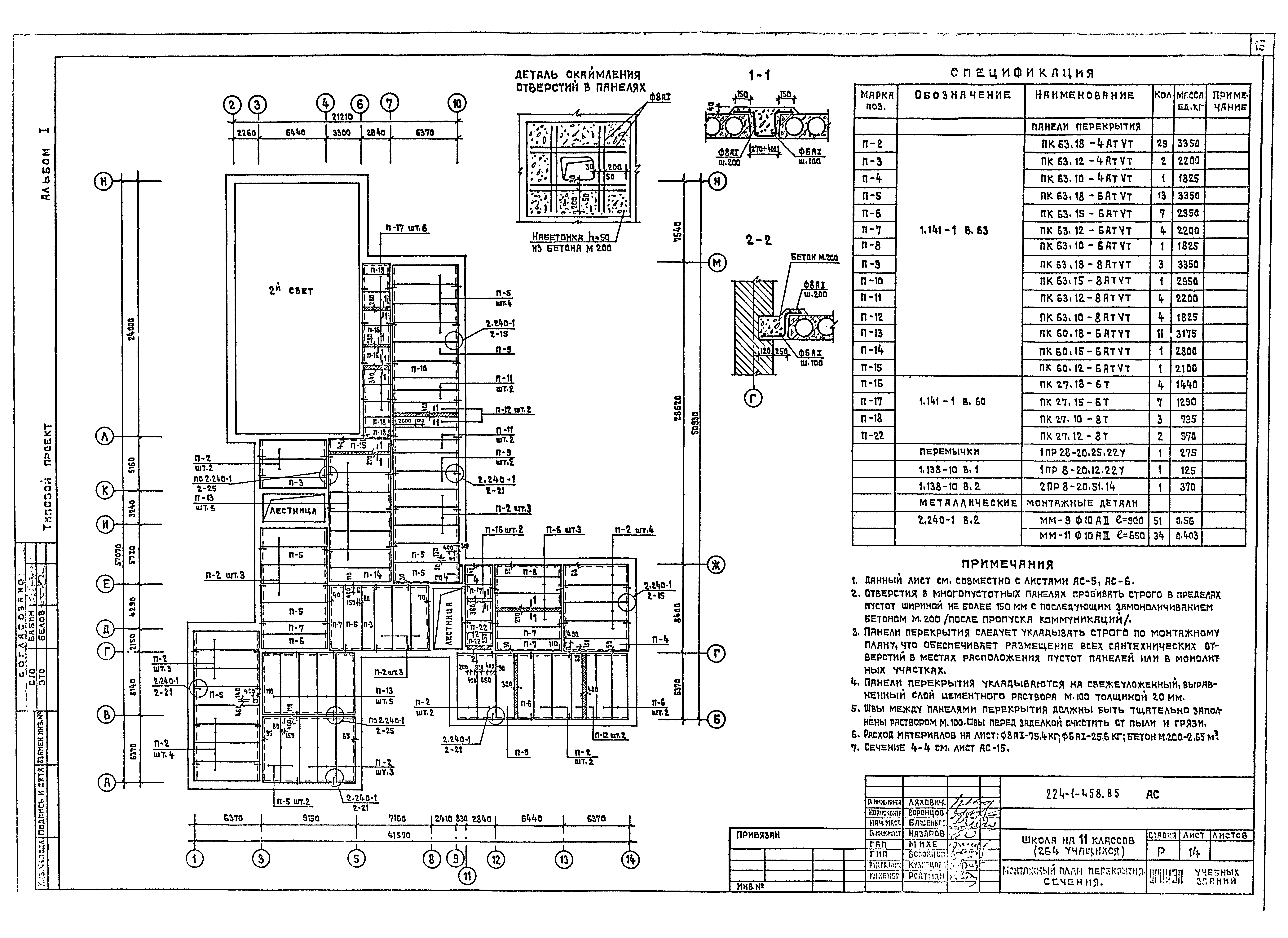
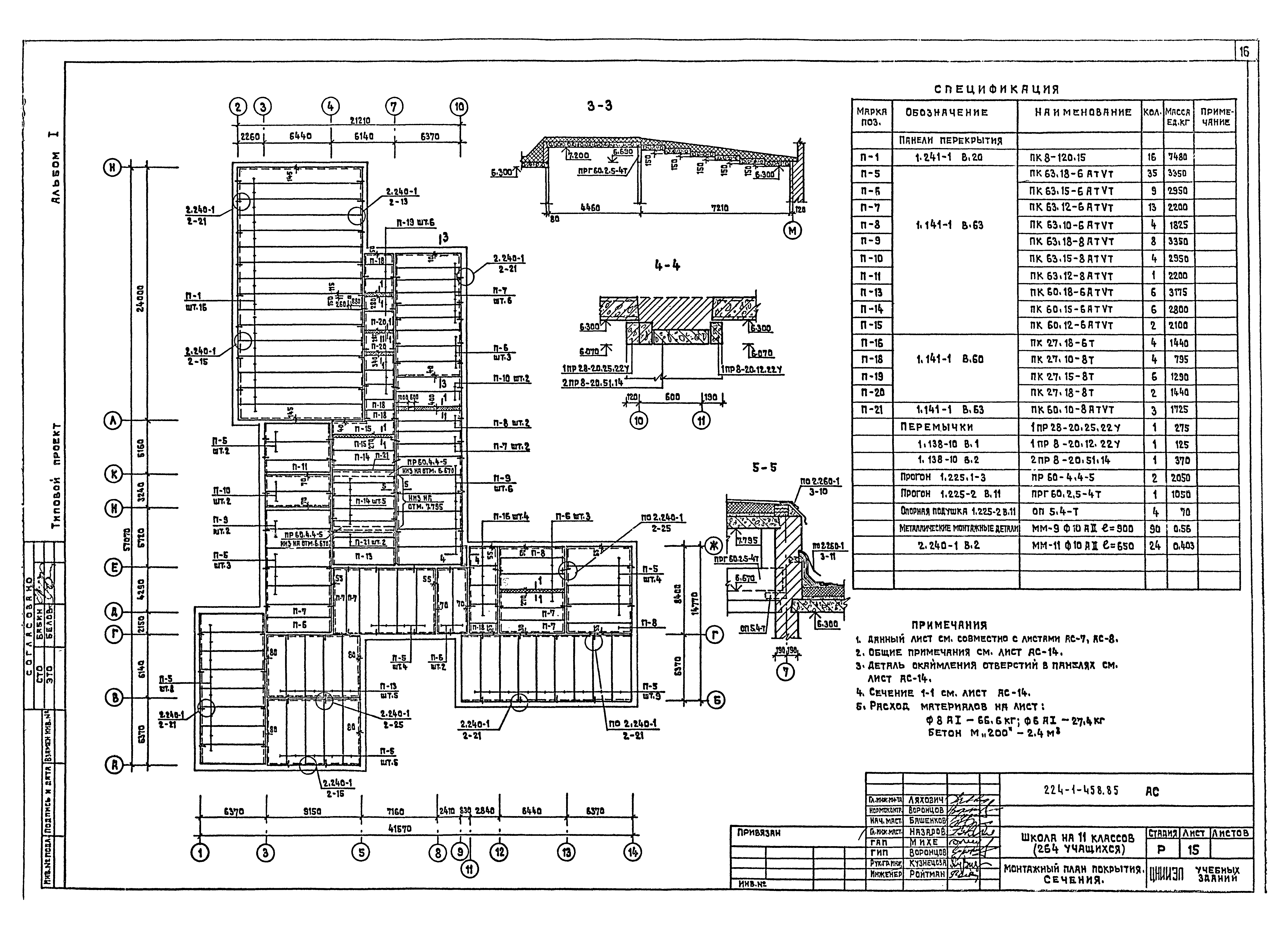
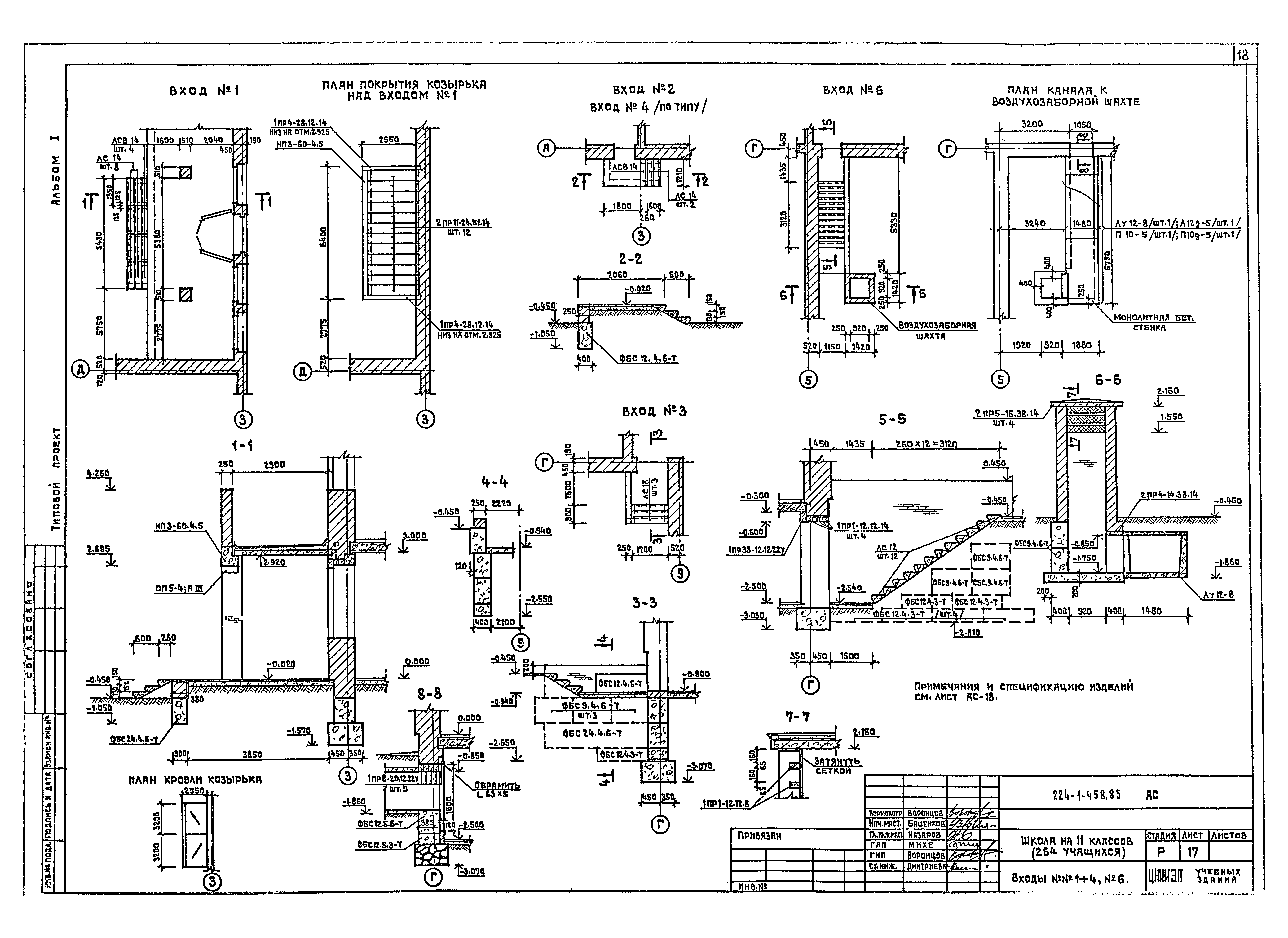
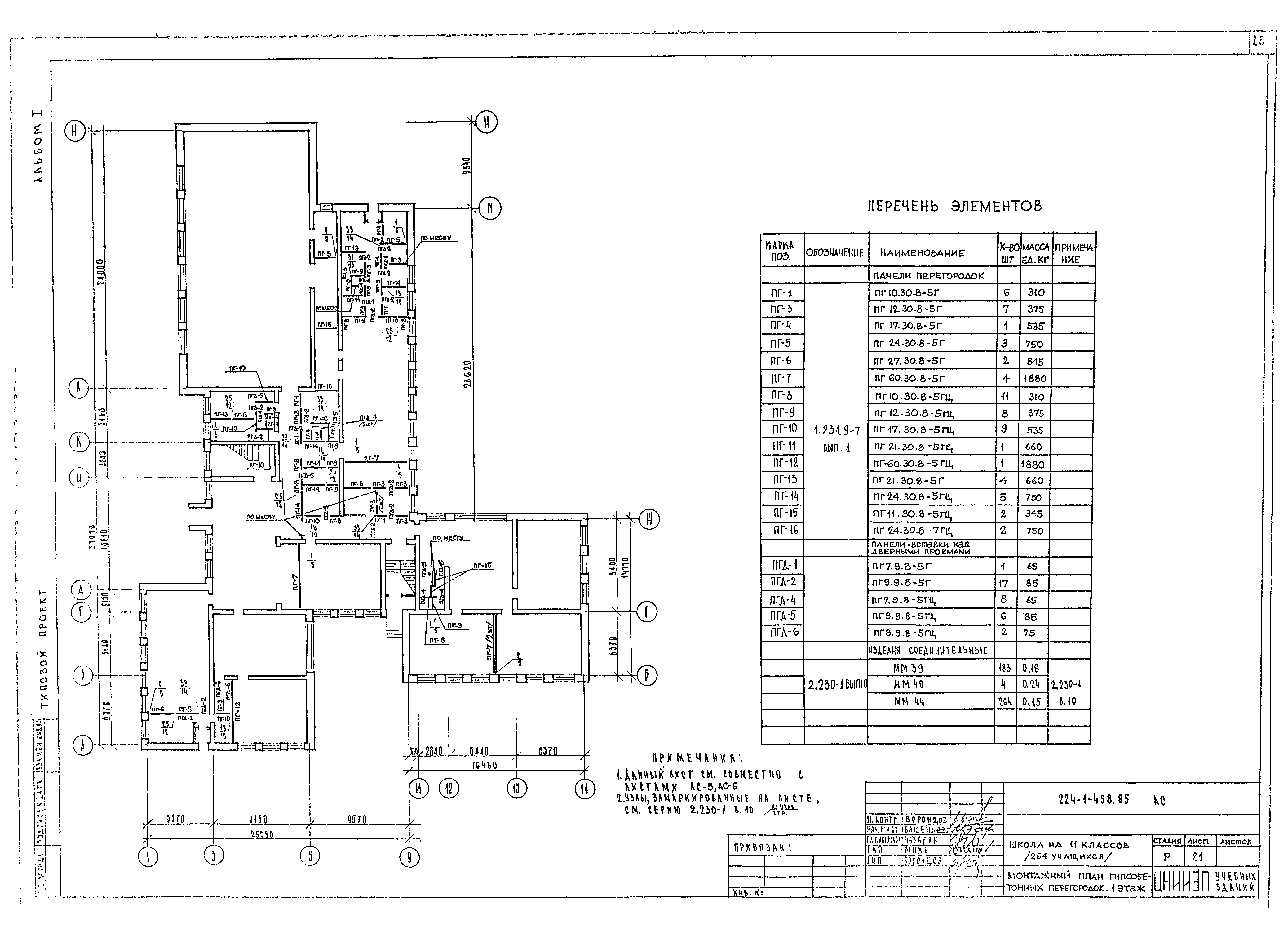
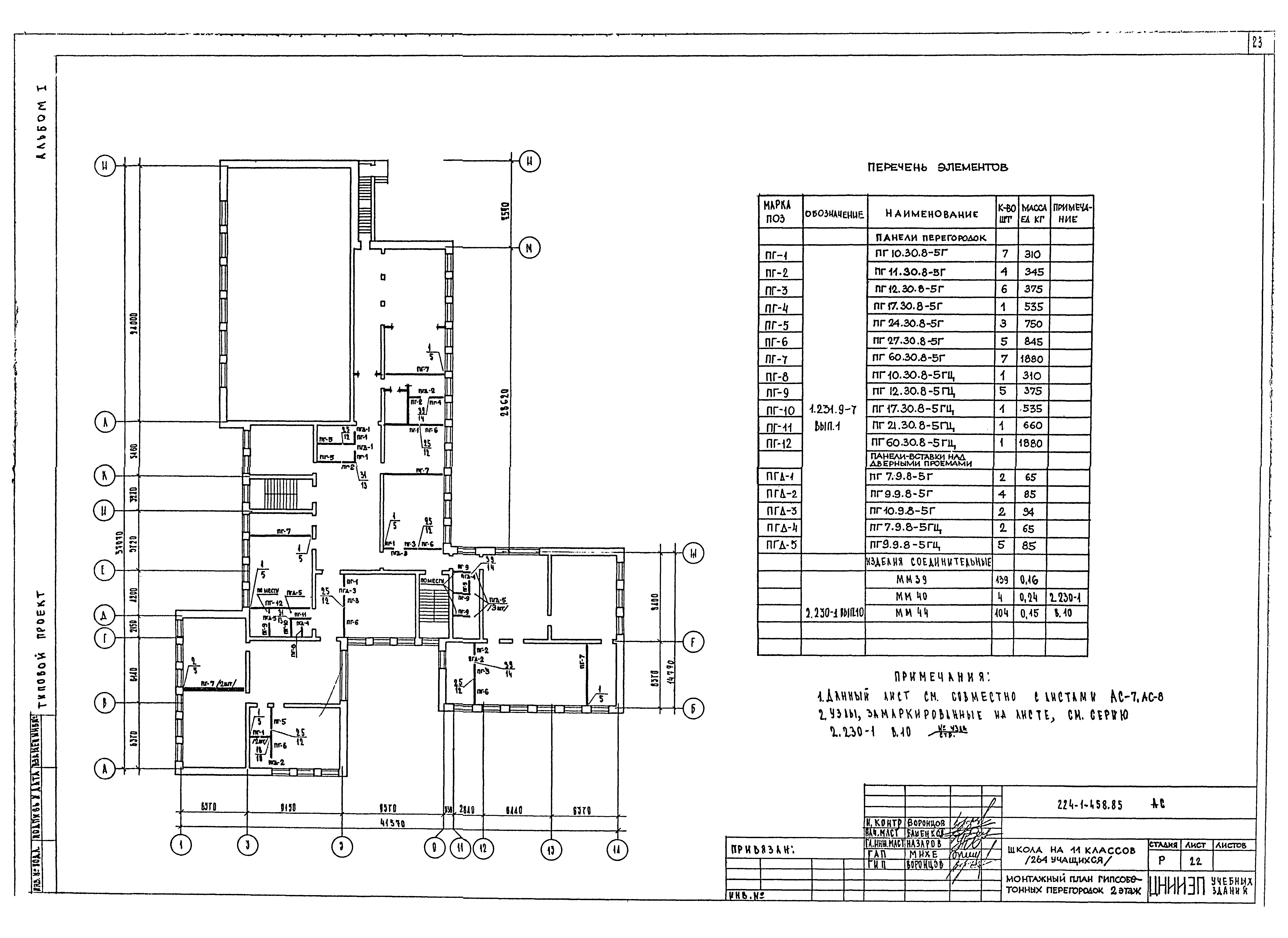
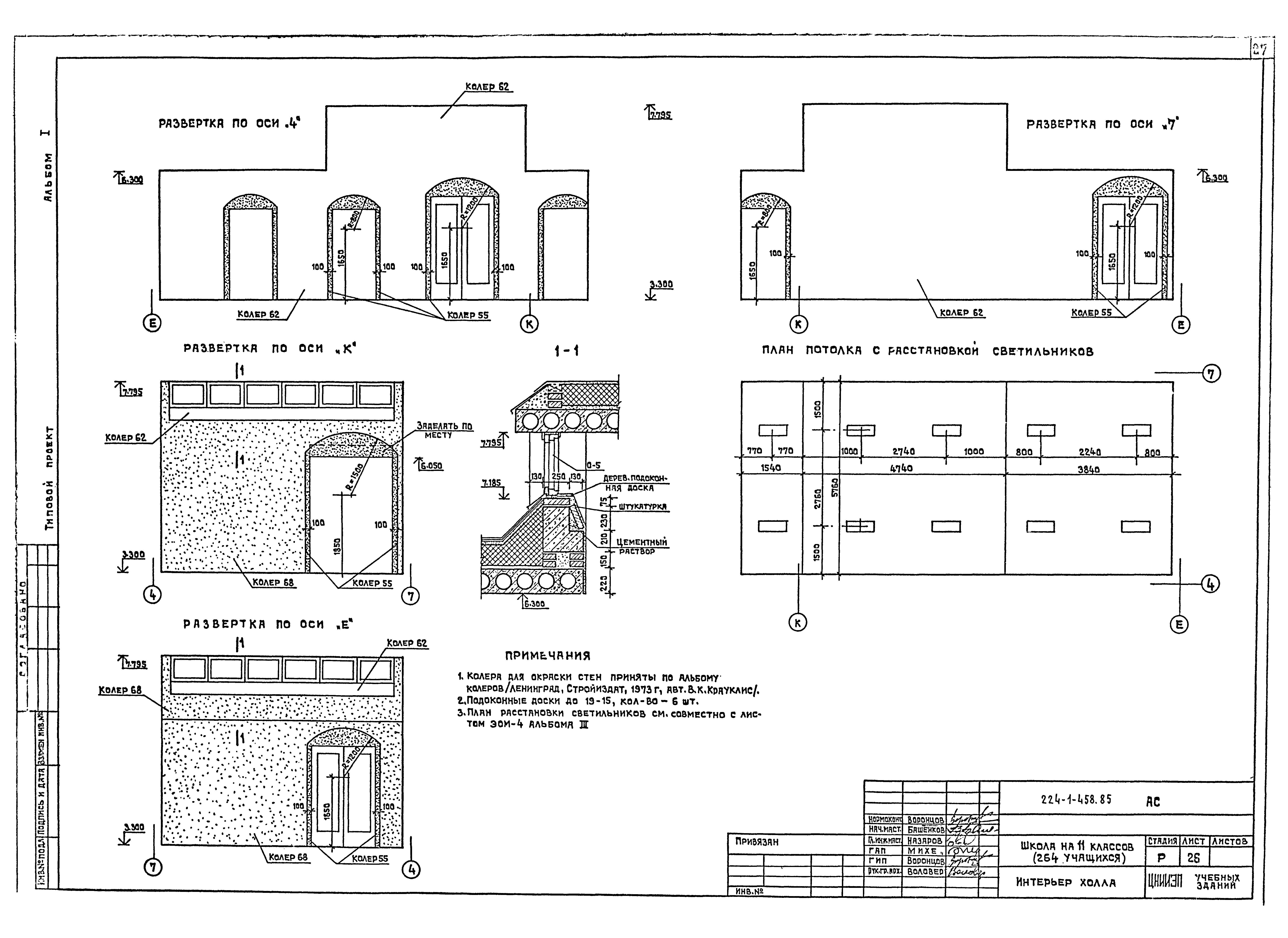
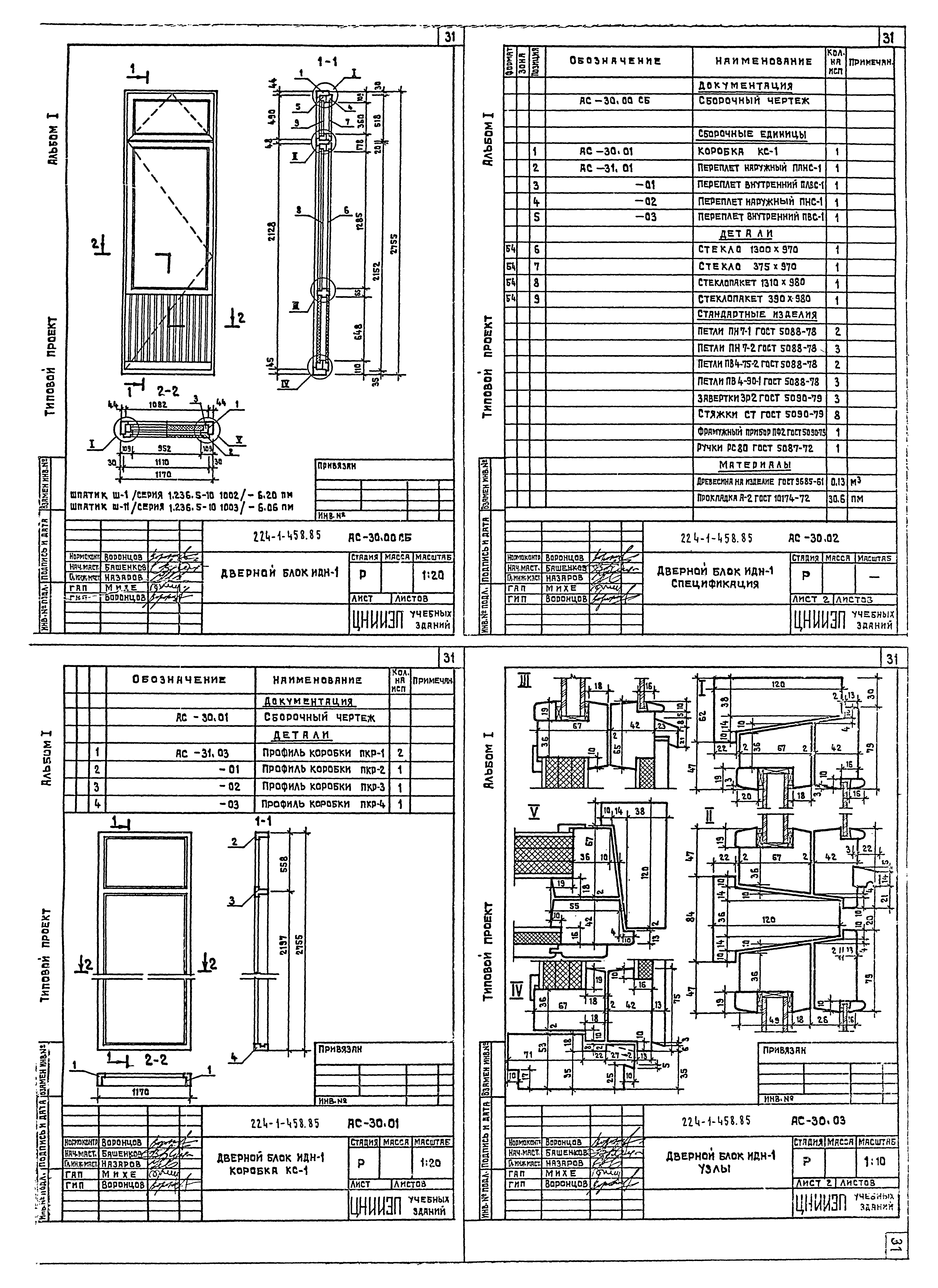
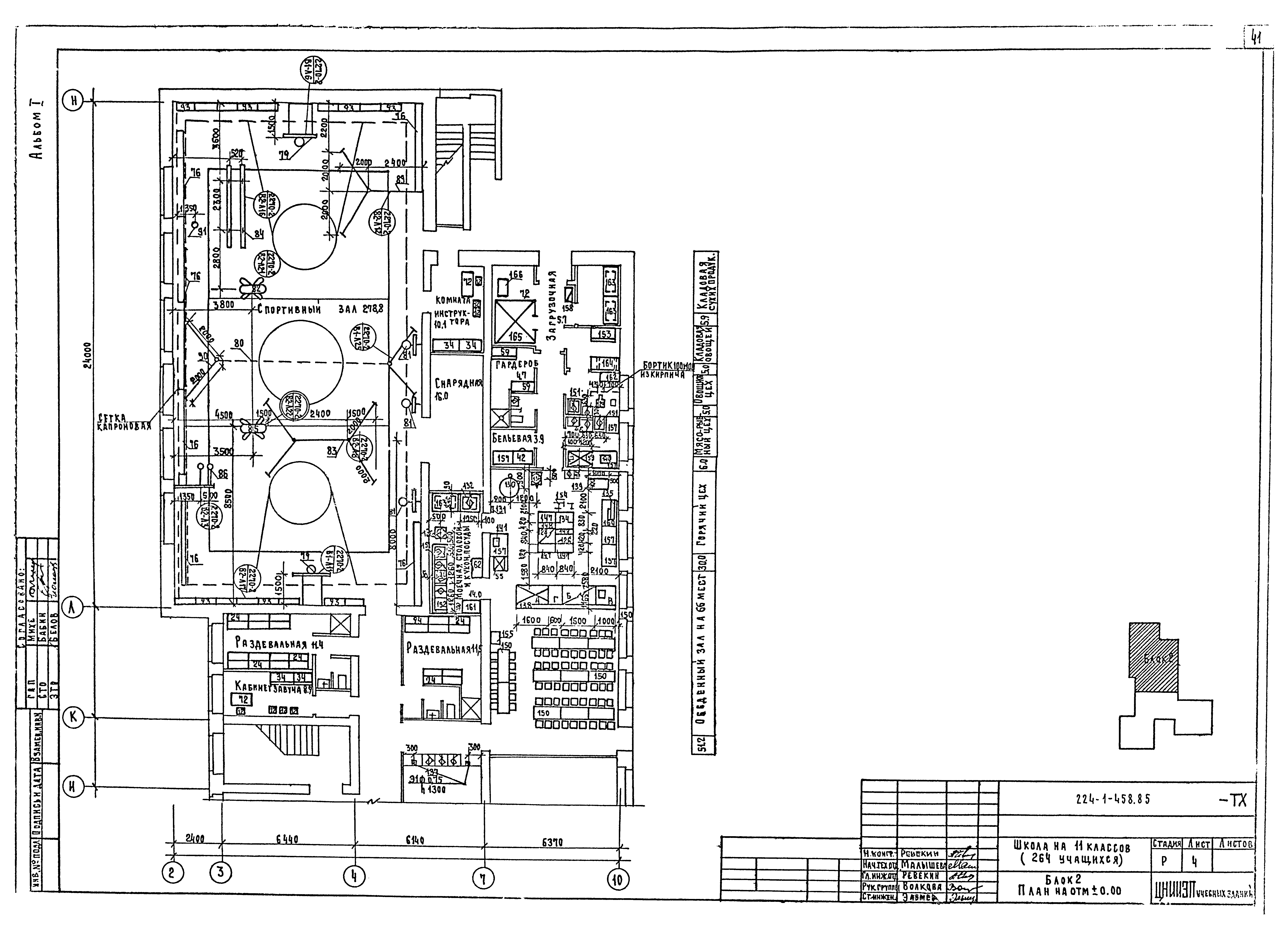
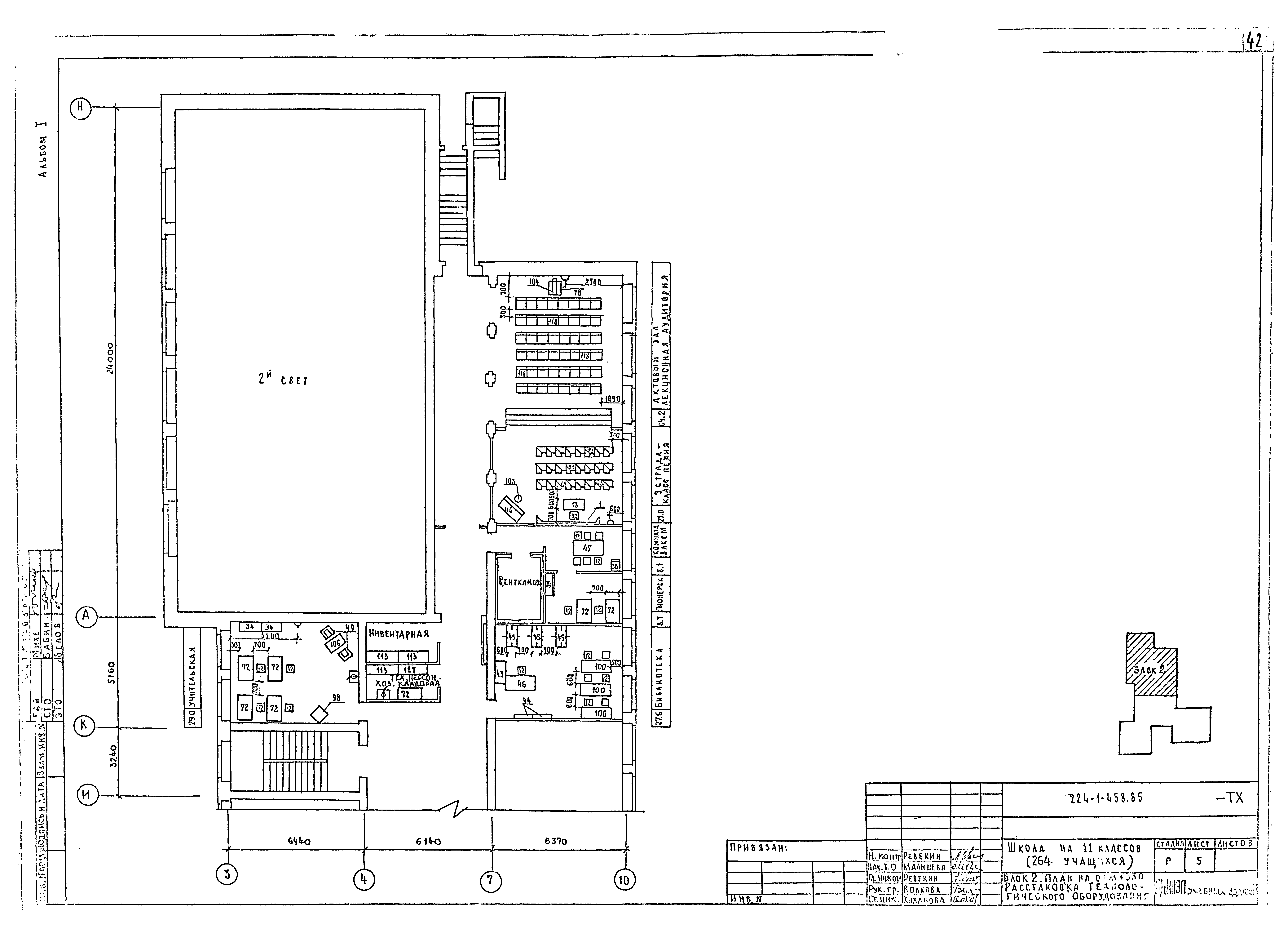
Скачать Типовой проект 224-1-458.85 Альбом I. Архитектурно-строительные и технологические чертежиДата актуализации: 01.01.2021
|
| Обозначение: | Типовой проект 224-1-458.85 |
| Обозначение англ: | 224-1-458.85 |
| Статус: | не определен законодательством |
| Название рус.: | Альбом I. Архитектурно-строительные и технологические чертежи |
| Дата добавления в базу: | 01.02.2017 |
| Дата актуализации: | 01.01.2021 |
| Дата введения: | 25.12.1985 |
| Дата окончания срока действия: | 30.06.2003 |
| Разработан: | ЦНИИЭП учебных зданий |
| Утверждён: | 24.08.1984 Госгражданстрой (Gosgrazhdanstroy 240) |
| Издан: | ЦИТП Госстроя СССР (CITP, Gosstroy (USSR) 1988 г. ) |











































