Скачать Типовой проект 294-3-39м.85 Альбом III. Водоснабжение и канализацияДата актуализации: 01.01.2021
|
| Обозначение: | Типовой проект 294-3-39м.85 |
| Обозначение англ: | 294-3-39м.85 |
| Статус: | не определен законодательством |
| Название рус.: | Альбом III. Водоснабжение и канализация |
| Дата добавления в базу: | 01.10.2014 |
| Дата актуализации: | 01.01.2021 |
| Дата введения: | 18.12.1985 |
| Дата окончания срока действия: | 30.06.2003 |
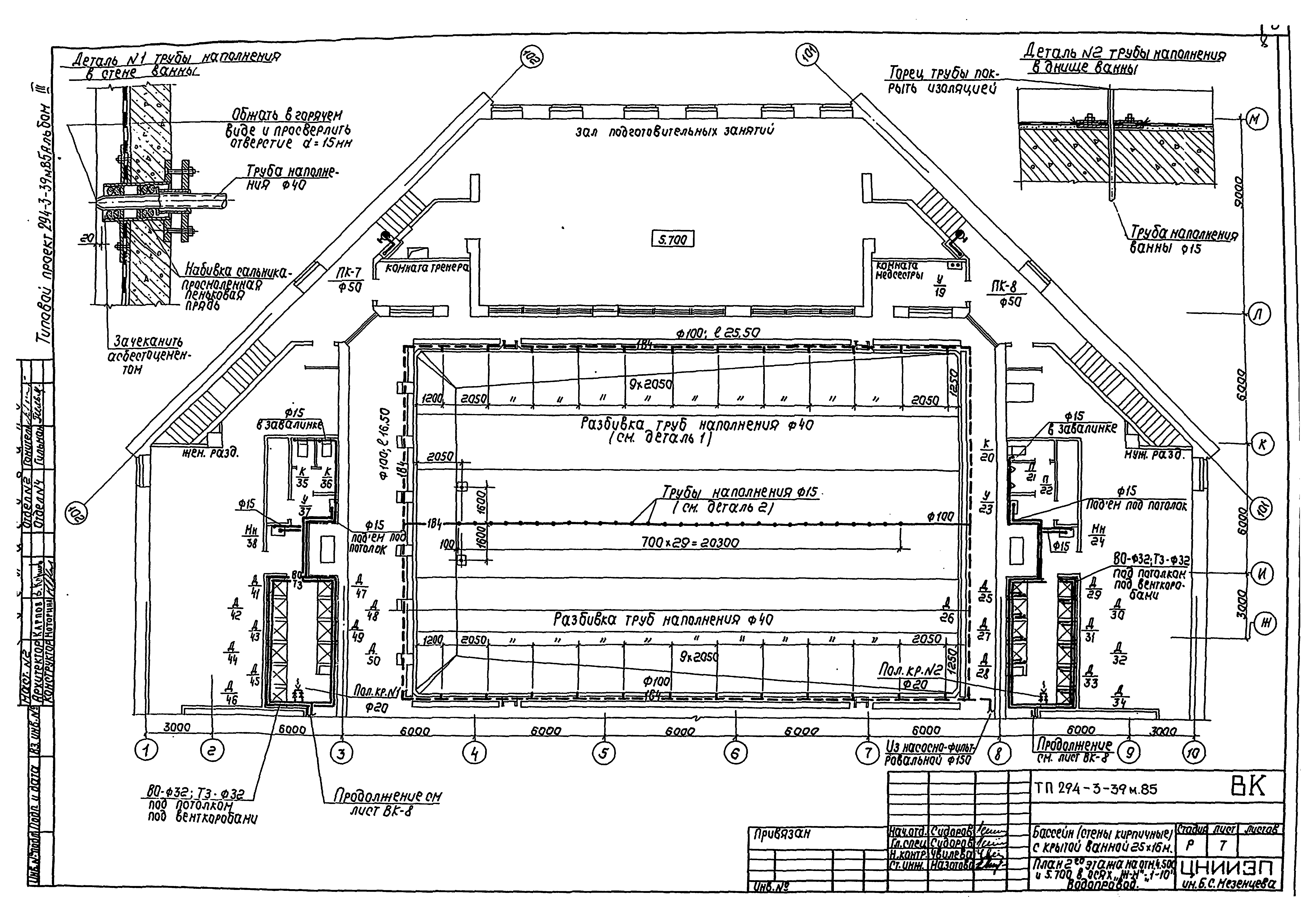
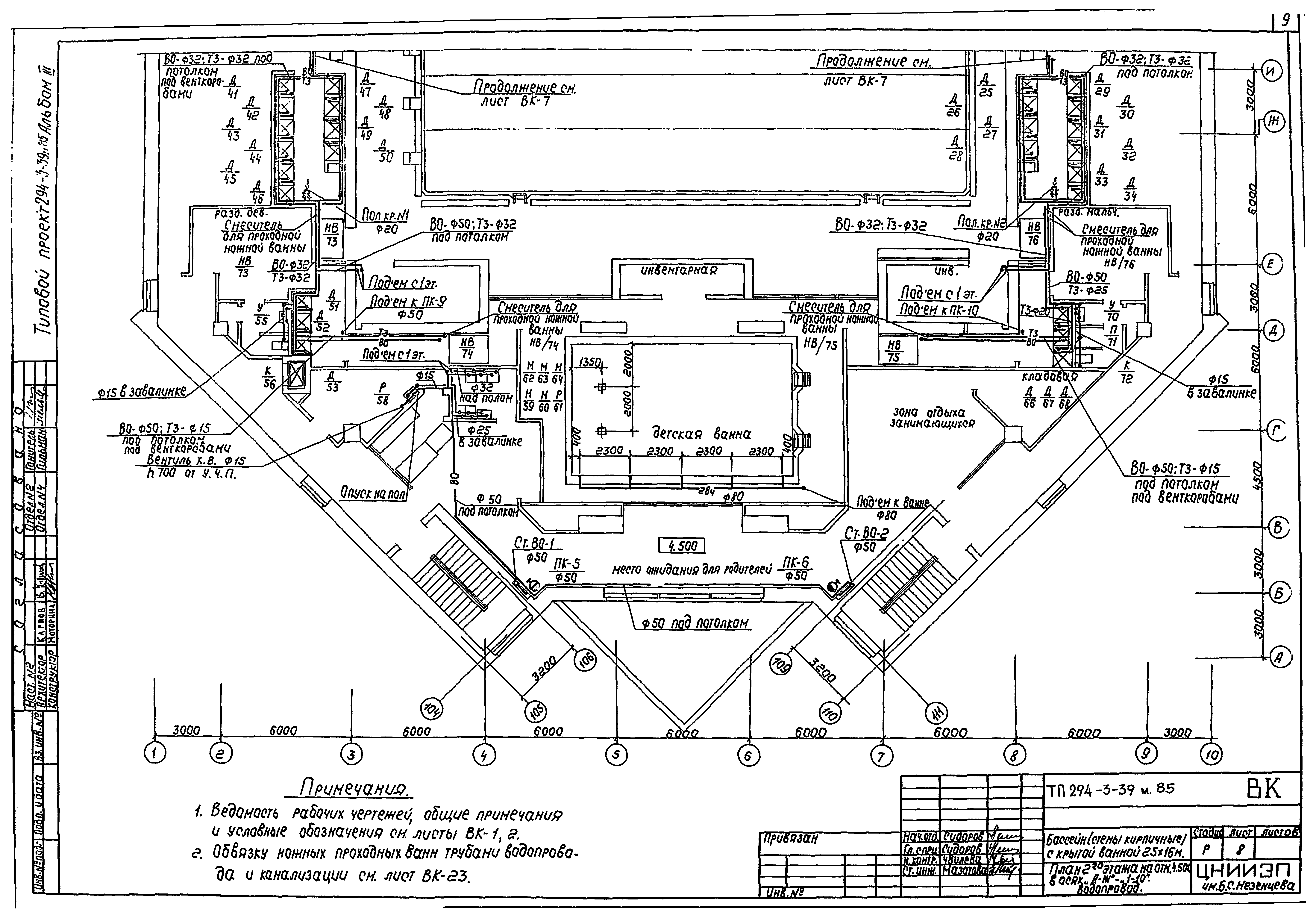
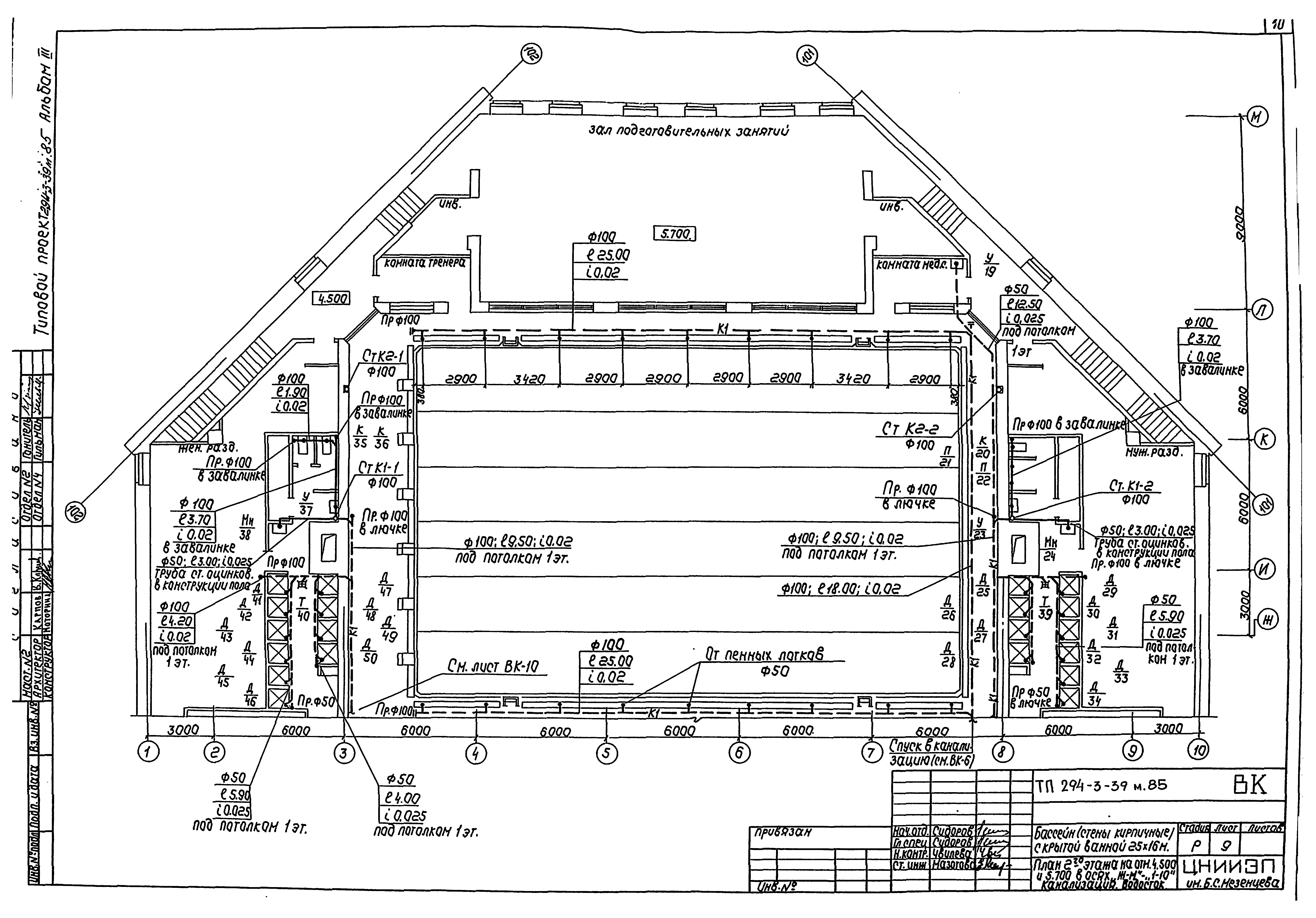
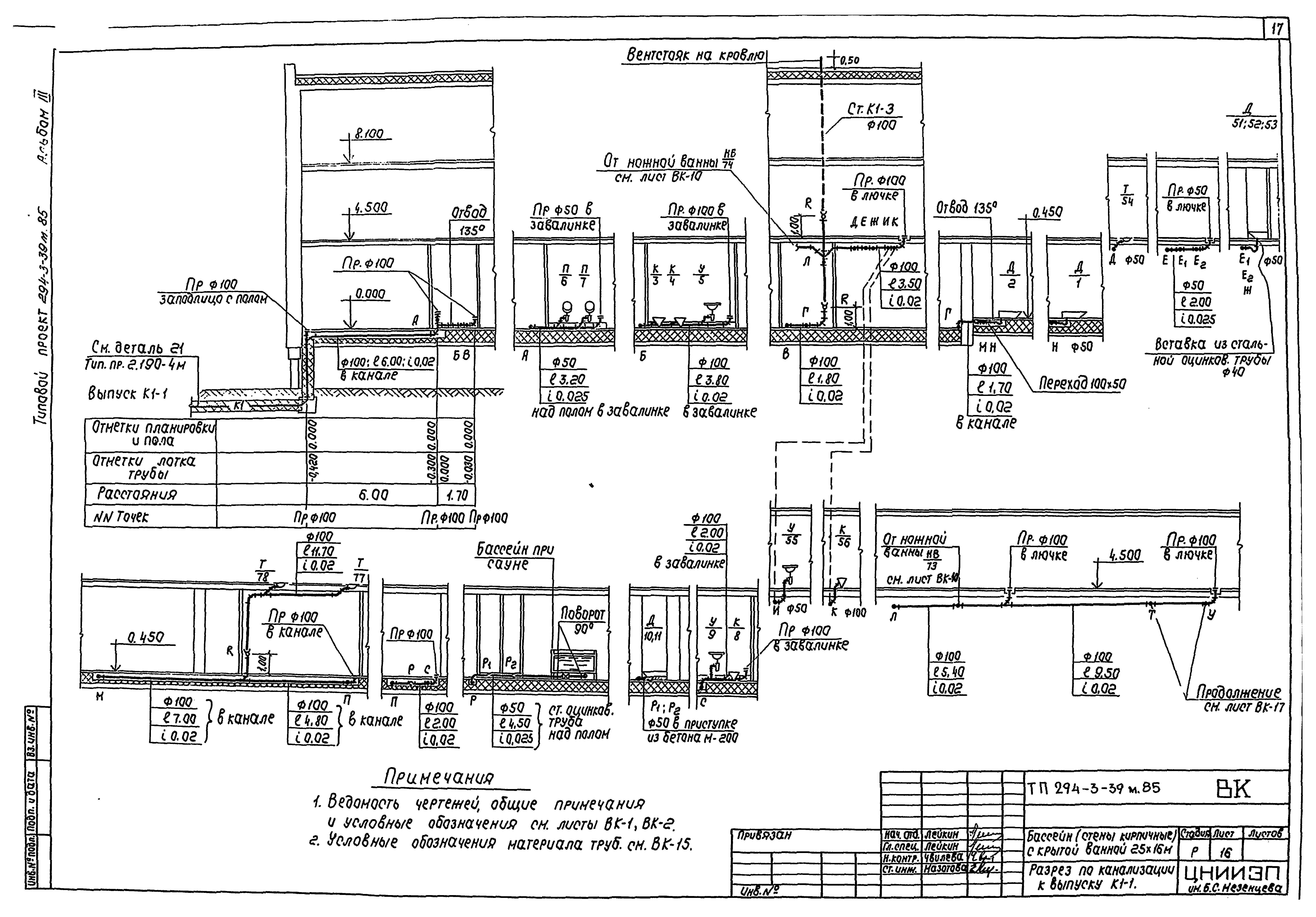
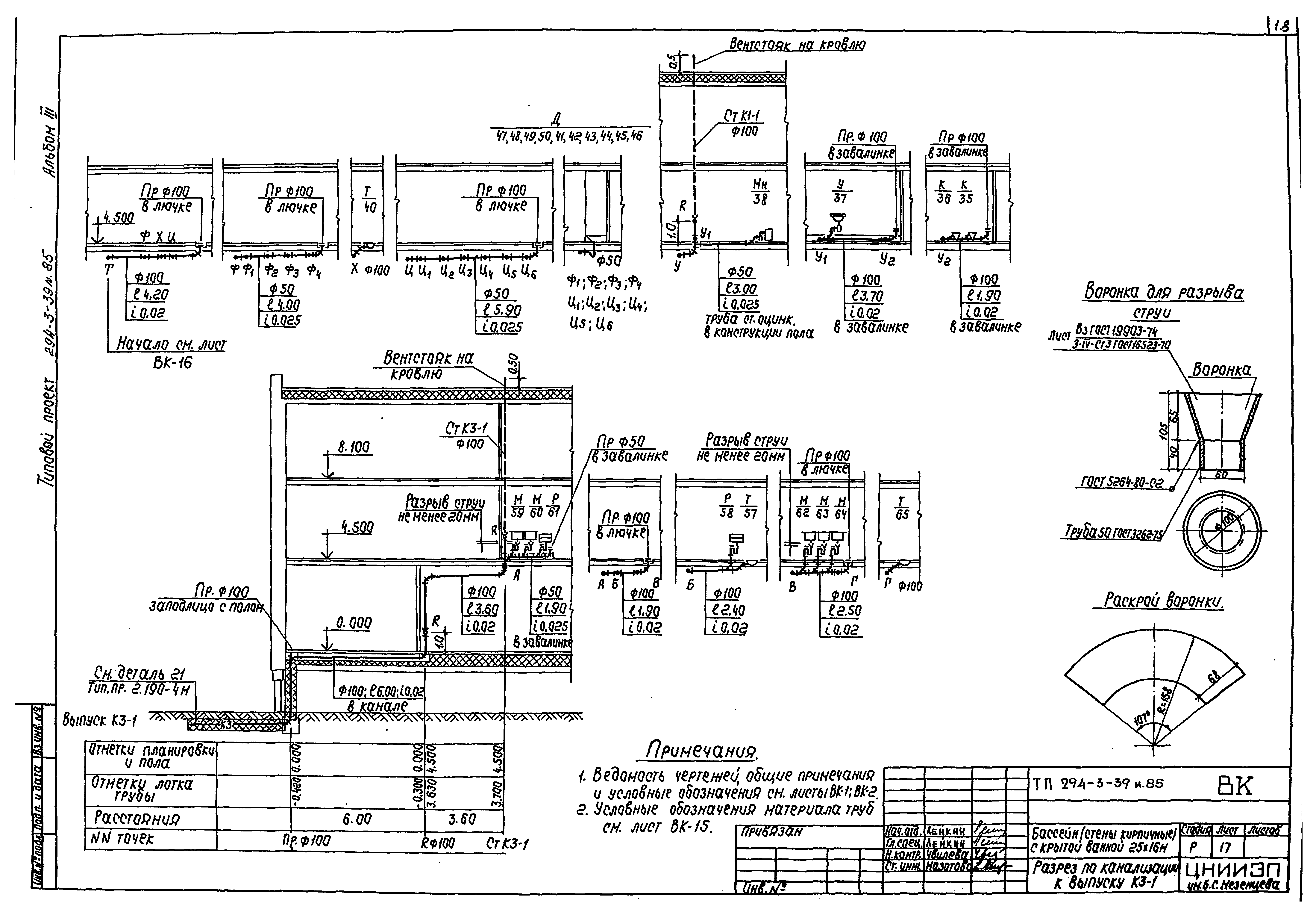
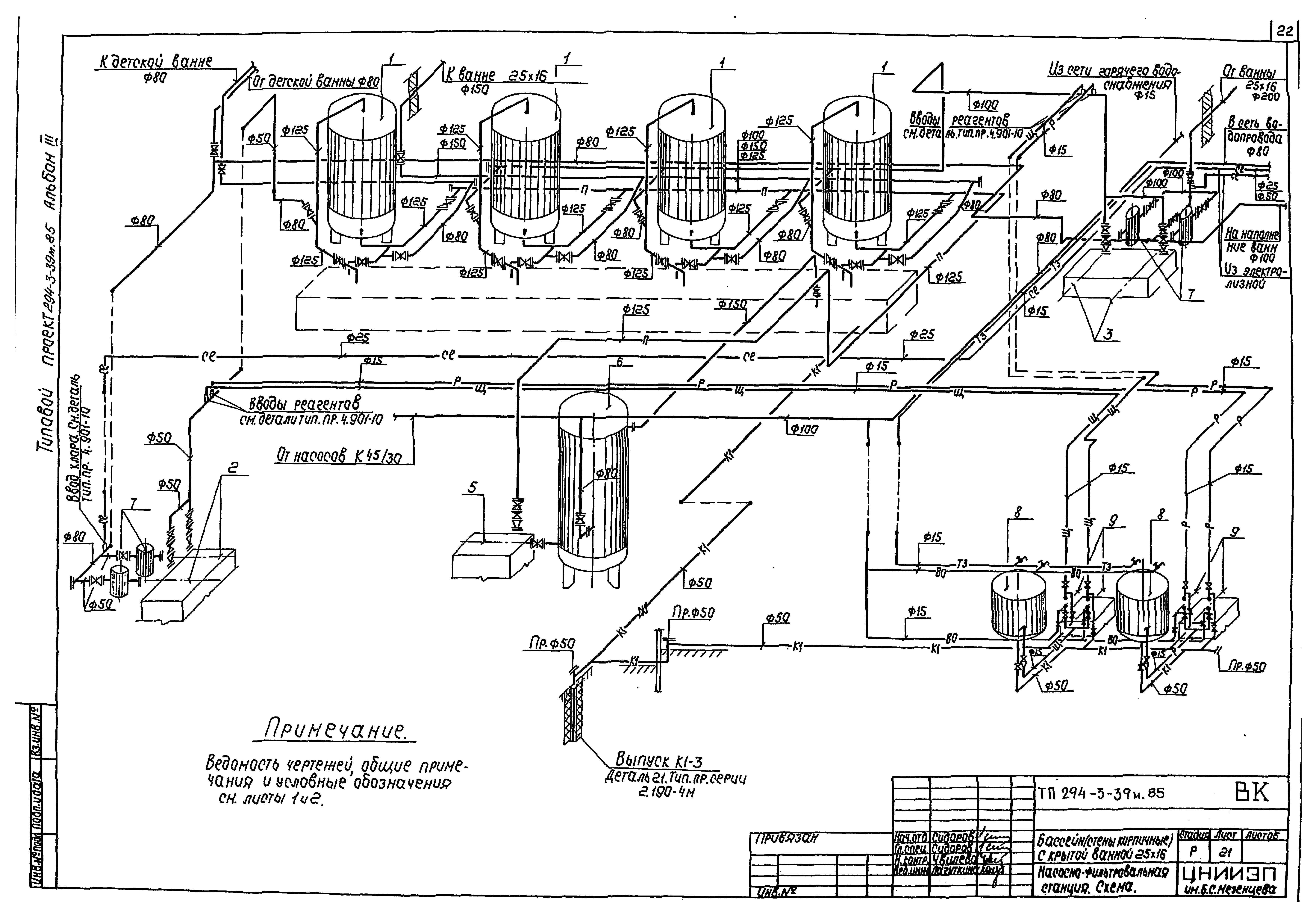
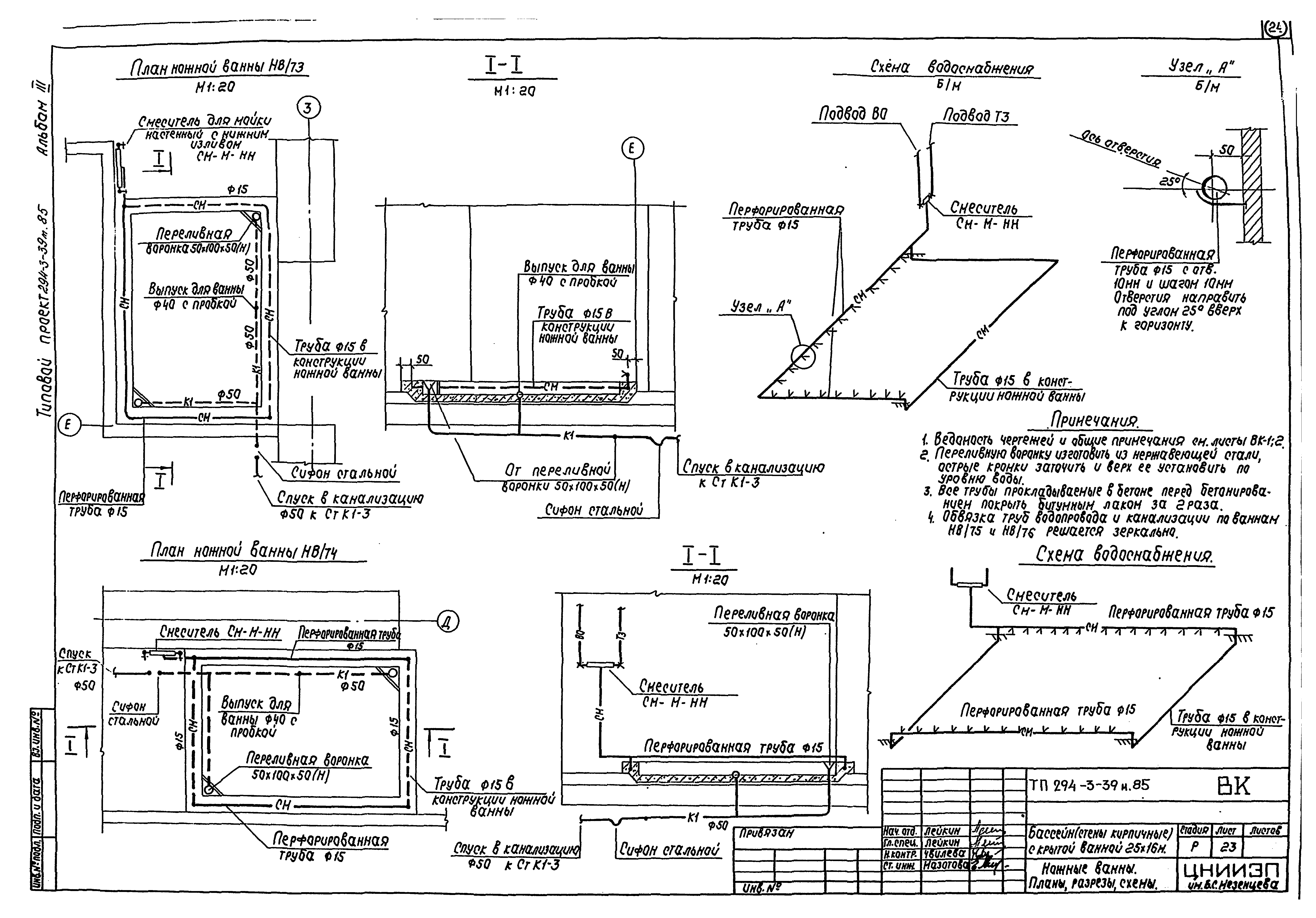
| Оглавление: | Общие данные План 1-го этажа на отм. 0.000 и 1.200 в осях "Ж - М" - "1 - 10". Водопровод План 1-го этажа на отм. 0.000 в осях "А - Ж" - "1 - 10". Водопровод План 1-го этажа на отм. 0.000 и 1.200 в осях "Ж - М" - "1 - 10". Канализация. Водосток План 1-го этажа на отм. 0.000 в осях "А - Ж" - "1 - 10". Канализация. Водосток План 2-го этажа на отм. 4.500 и 5.700 в осях "Ж - М" - "1 - 10". Водопровод План 2-го этажа на отм. 4.500 в осях "А - Ж" - "1 - 10". Водопровод План 2-го этажа на отм. 4.500 и 5.700 в осях "Ж - М" - "1 - 10". Канализация. Водосток План 2-го этажа на отм. 4.500 в осях "А - Ж" - "1 - 10". Канализация. Водосток План 3-го этажа на отм. 8.100 в осях "Ж - М" - "1 - 10". Канализация. Водосток План 3-го этажа на отм. 8.100 и 9.000 в осях "А - Ж" - "1 - 10". Водопровод. Канализация. Водосток Схема водопровода Схема обвязки ванн бассейнов Разрез по канализации к выпуску К1-2 Разрез по канализации к выпуску К1-1 Разрез по канализации к выпуску К3-1 Разрезы по водостоку к выпускам К2-1; 2; 3; 4 Насосно-фильтровальная станция. План Насосно-фильтровальная станция. Разрезы I-I, II-II, III-III Насосно-фильтровальная станция. Схема Электролизная установка. План. Разрезы. Схема Ножные ванны. Планы, разрезы, схемы |
| Разработан: | ЦНИИЭП им. Б.С. Мезенцева Госгражданстроя |
| Утверждён: | 09.10.1984 Госгражданстрой (Gosgrazhdanstroy 286) |
























