Скачать Типовой проект 503-1-90.91 Альбом 1. Пояснительная записка. Архитектурные решения. Конструкции железобетонные. Отопление и вентиляция. Электрооборудование. Автоматизация отопления и вентиляцииДата актуализации: 01.01.2021
|
| Обозначение: | Типовой проект 503-1-90.91 |
| Обозначение англ: | 503-1-90.91 |
| Статус: | не определен законодательством |
| Название рус.: | Альбом 1. Пояснительная записка. Архитектурные решения. Конструкции железобетонные. Отопление и вентиляция. Электрооборудование. Автоматизация отопления и вентиляции |
| Дата добавления в базу: | 01.10.2014 |
| Дата актуализации: | 01.01.2021 |
| Дата введения: | 05.07.1991 |
| Дата окончания срока действия: | 30.06.2003 |
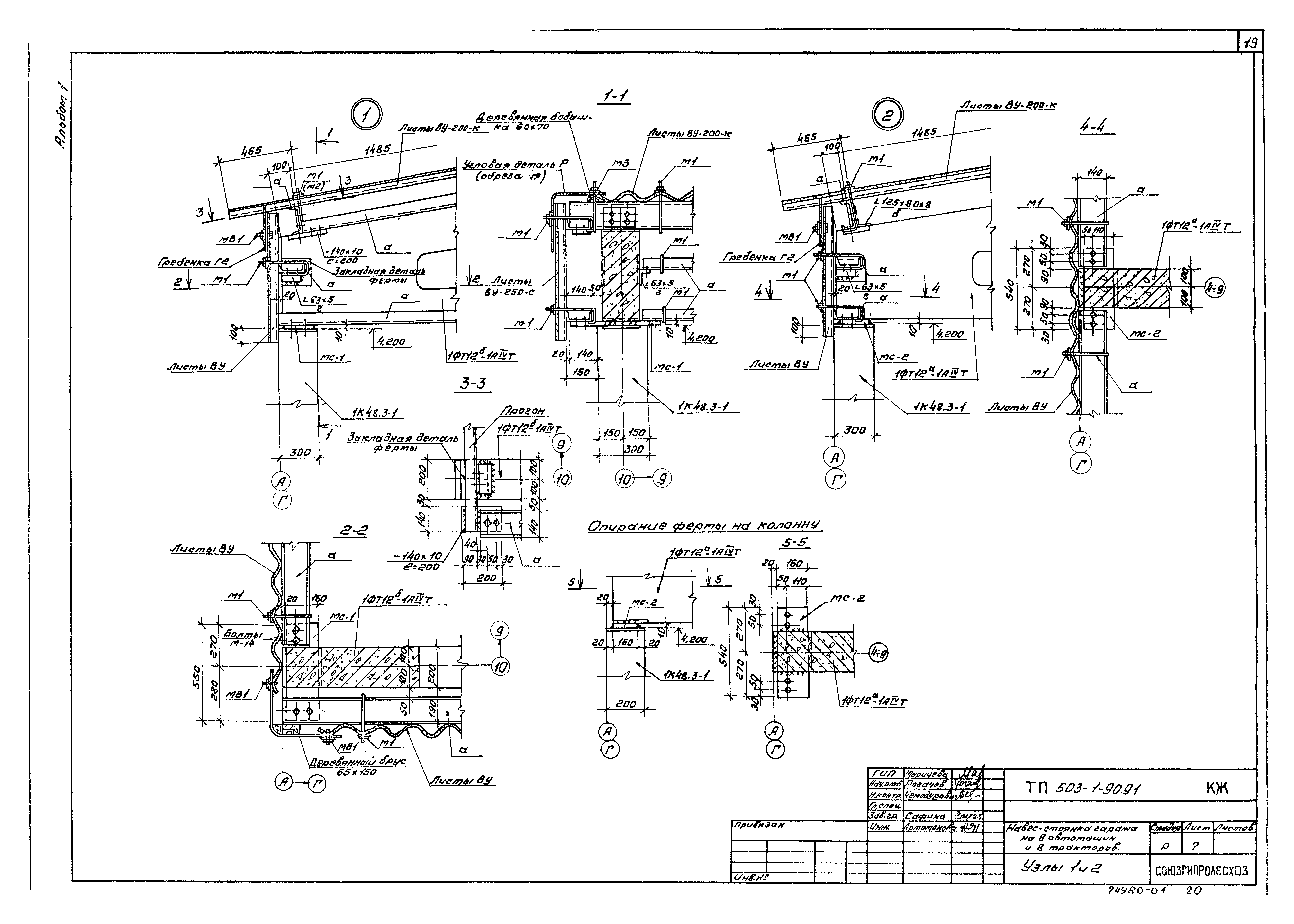
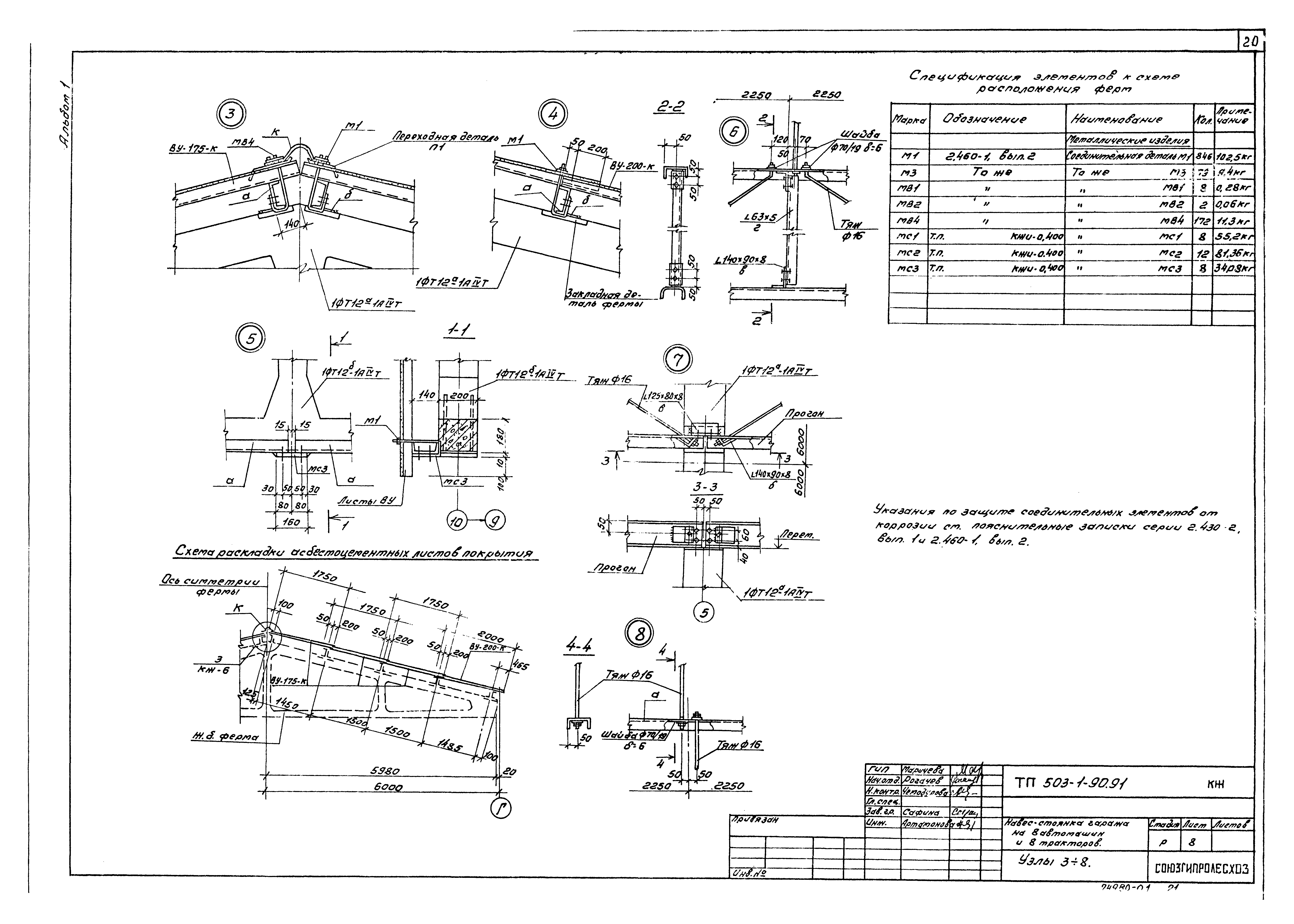
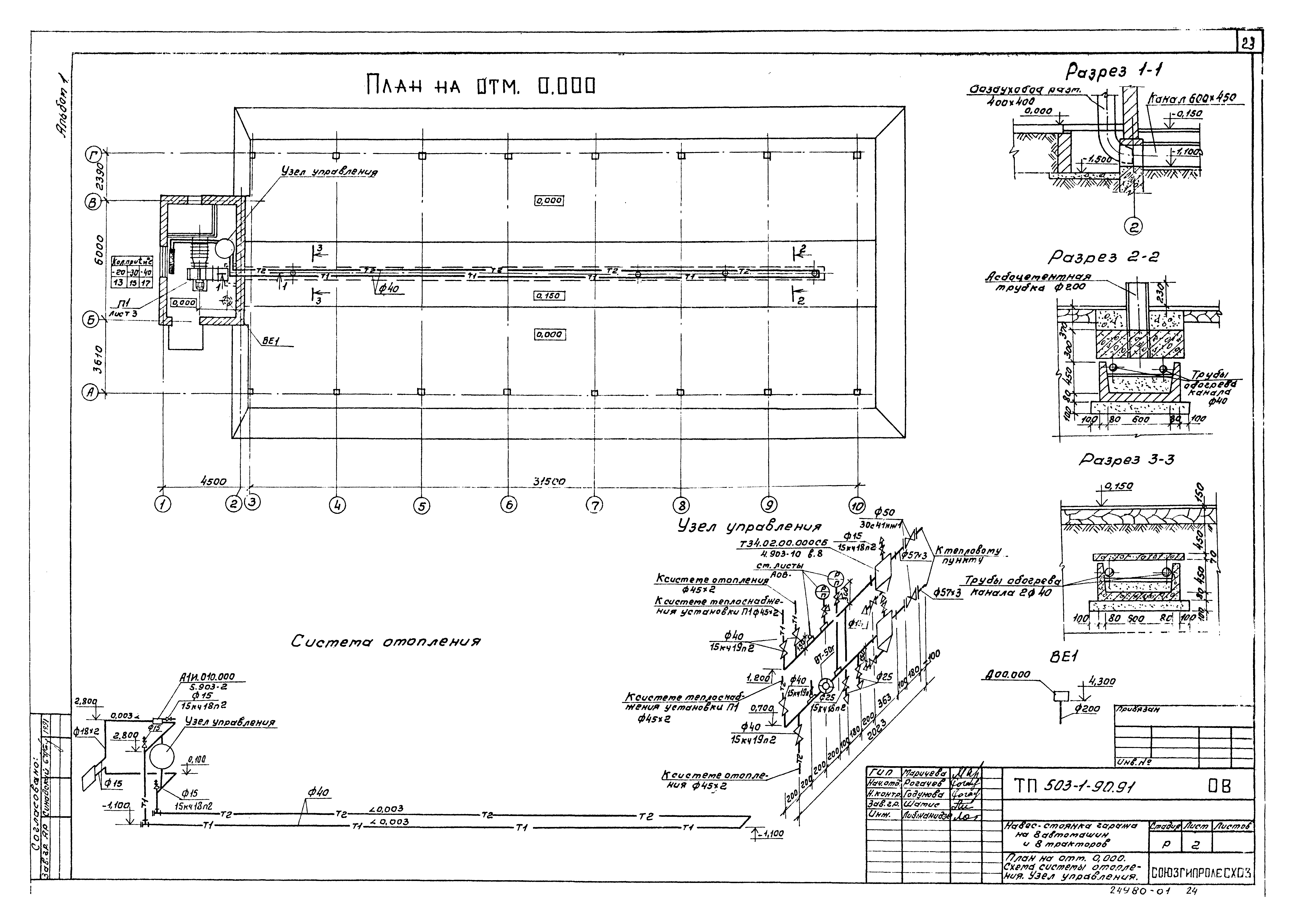
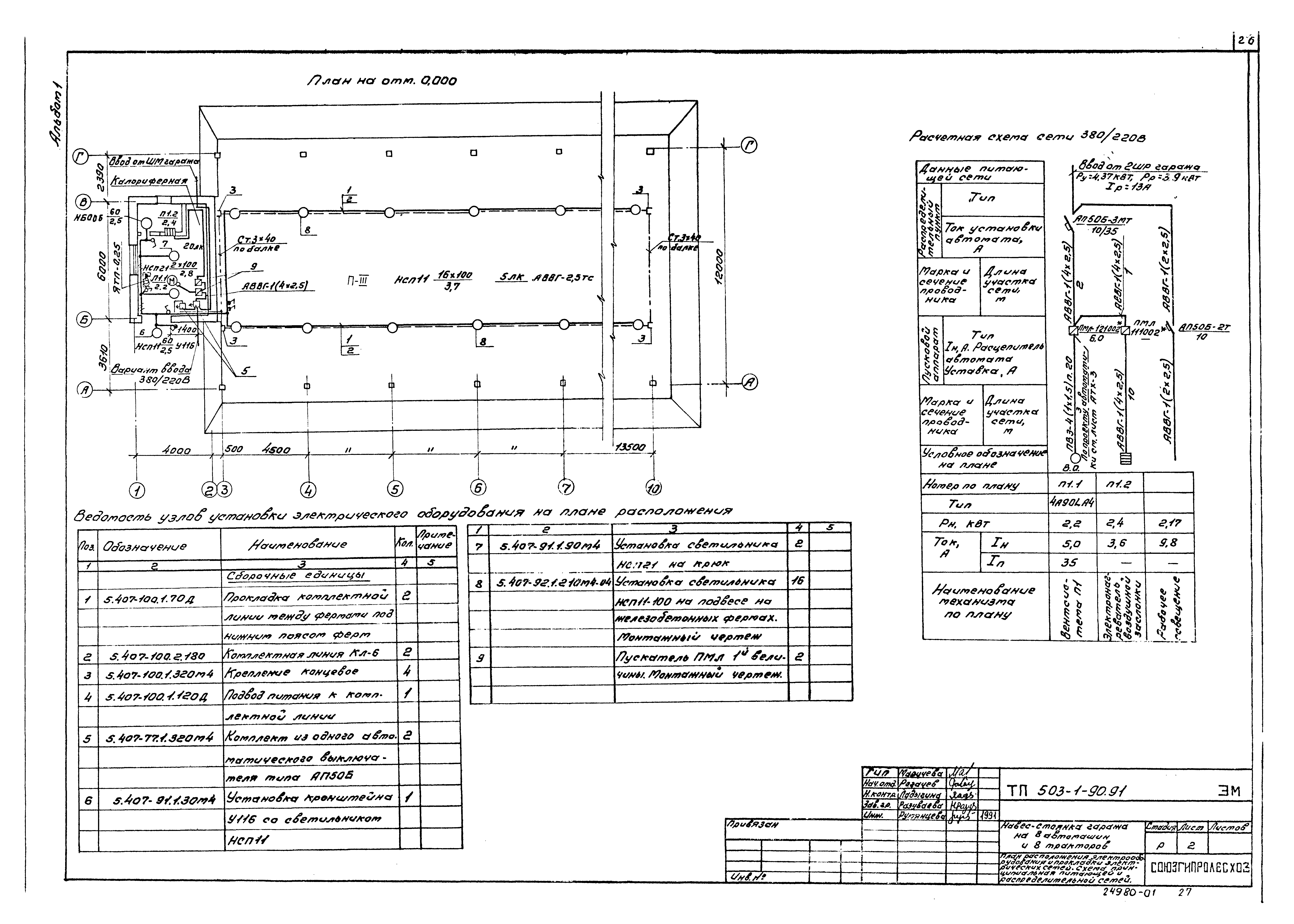
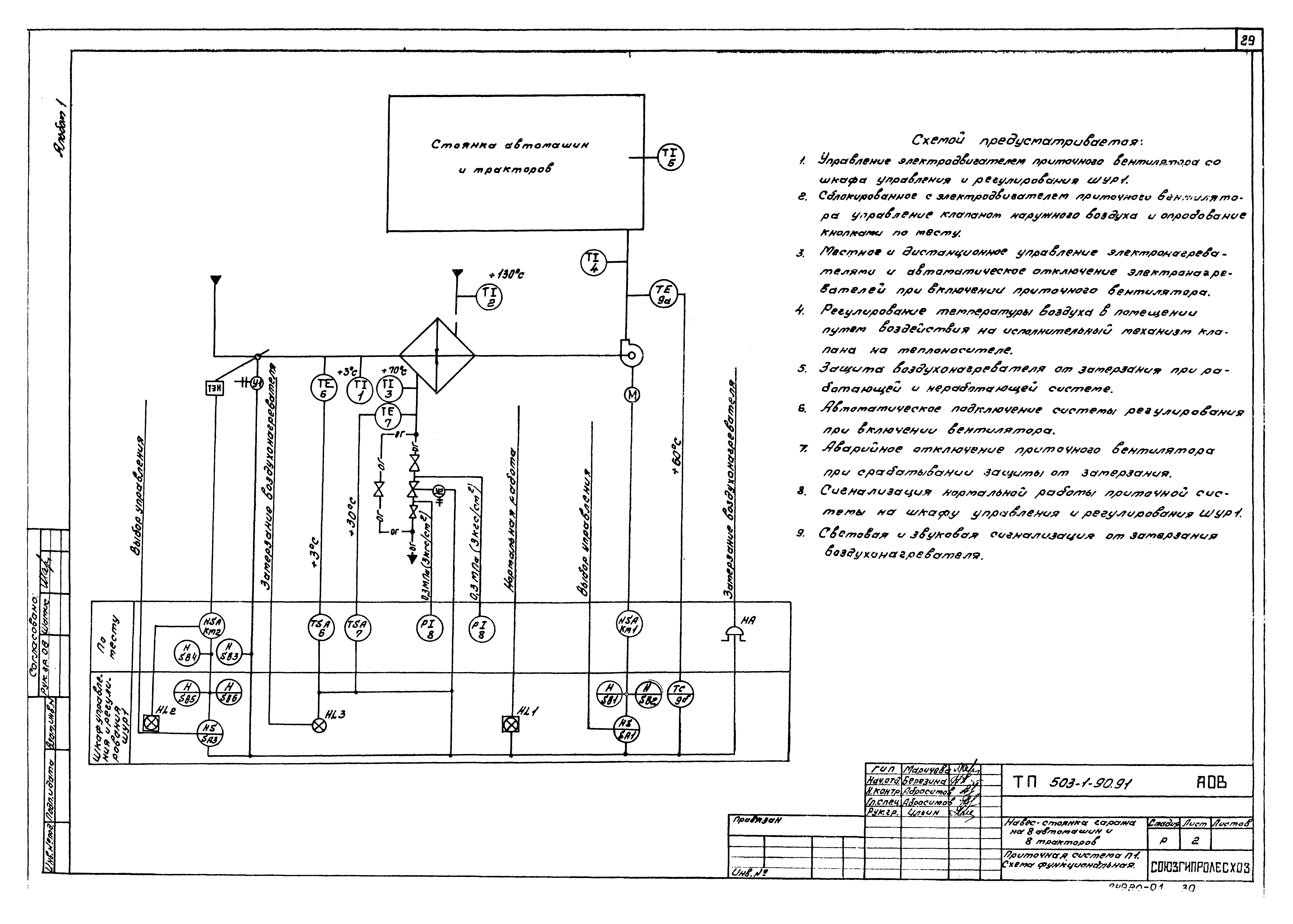
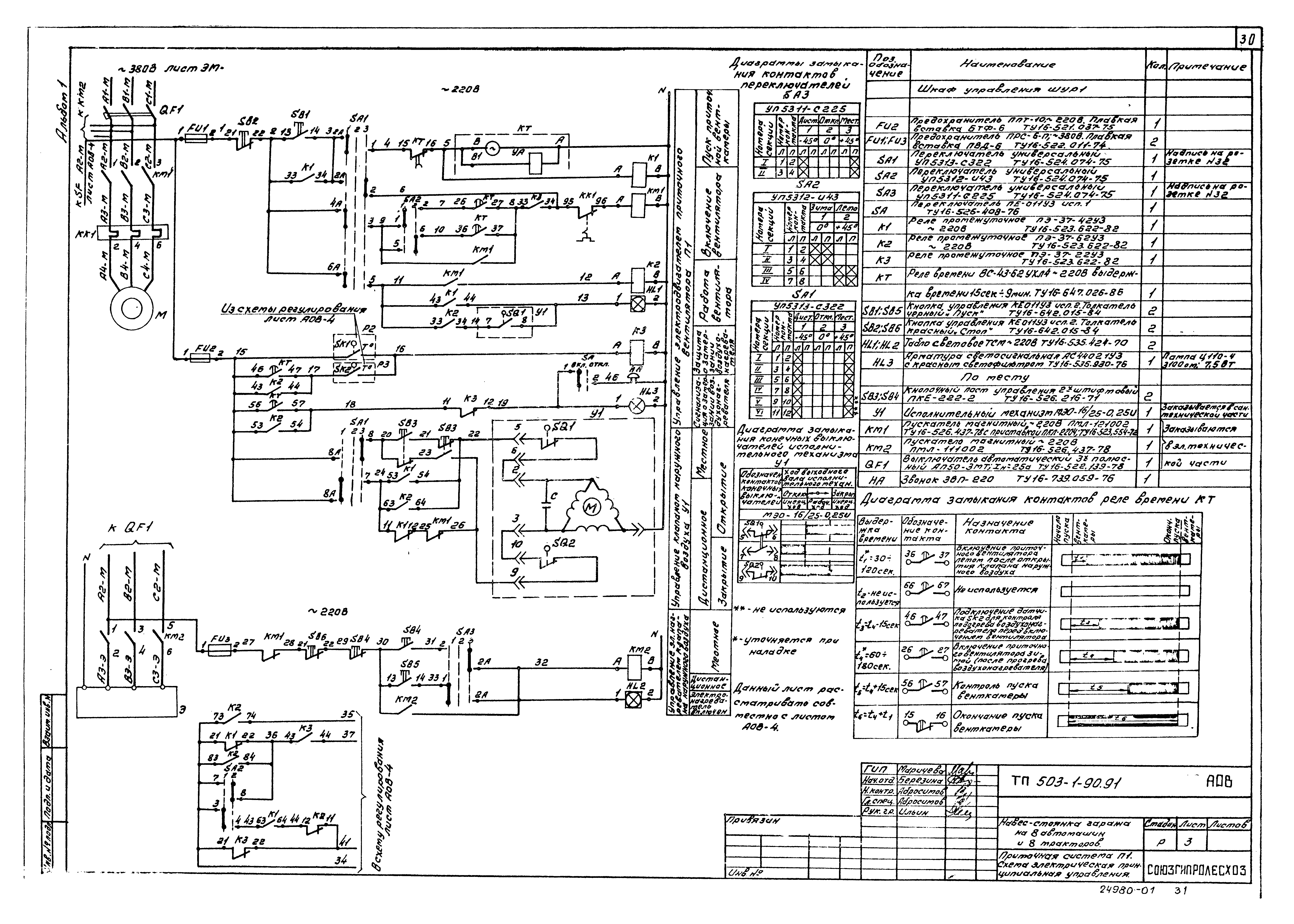
| Оглавление: | Содержание альбома Пояснительная записка Архитектурные решения Общие данные План на отм. 0.000 Разрезы 1-1, 2-2, 3-3. Деталь разреза Фасады План полов. План кровли. Экспликация полов Конструкции железобетонные Общие данные Схема расположения фундаментов. Сечения 1-1, 2-2 Схема расположения канала для подогрева автомашин. Разрезы 1-1, 2-2. Узел 1 Схемы расположения лотков и плит перекрытия канала Схемы расположения элементов подземного хозяйства и плит покрытия. Фундаменты ФОм1, ФОм2 Схемы расположения ферм и колонн. Разрезы 1-1, 2-2, 3-3 Узлы 1 и 2 Узлы 3 - 8 Схемы расположения венткамеры П1 Отопление и вентиляция Общие данные План на отм. 0.000. Схема системы отопления. Узел управления Установка системы П1. Схема системы теплоснабжения установки П1 Электрическое освещение Общие данные План расположения электрооборудования и прокладки электрических сетей. Схема принципиальная питающей сети Ведомость Автоматизация отопления и вентиляции Общие данные Приточная система П1. Схема функциональная Приточная система П1. Схема электрическая принципиальная управления Приточная система П1. Схема электрическая принципиальная регулирования Приточная система П1. Схема внешних проводок. План расположения Узел управления теплового пункта. Схема функциональная. Схема трубных проводок Задание заводу-изготовителю Приточная система П1. Шкаф управления и регулирования ШУР1. Общий вид Приточная система П1. Шкаф управления и регулирования ШУР1. Таблица соединений Приточная система П1. Шкаф управления и регулирования ШУР1. Таблица подключения Конструкции железобетонных изделий Технические условия Ферма (1ФТ12-1АIVТа; 1ФТ12-1АIVТд) Плита ПИ1 Сетка С2 Сетка С1 Петля П1 Изделие соединительное МС1 - МС3 Анкер А2 Изделие закладное МН2 Изделие закладное МН1. Сборочный чертеж Изделие закладное МН1 Уголок (обрамление) |
| Разработан: | Союзгипролесхоз |
| Утверждён: | 28.06.1991 Госкомлес СССР (USSR Goskomles 6) |
| Издан: | АПП ЦИТП (1992 г. ) |










































