Скачать Типовой проект 272-18-6 Альбом II. Отопление и вентиляция. Водопровод и канализация. Электрооборудование. Автоматизация устройств инженерного оборудования. Устройства связиДата актуализации: 01.01.2021
|
| Обозначение: | Типовой проект 272-18-6 |
| Обозначение англ: | 272-18-6 |
| Статус: | не определен законодательством |
| Название рус.: | Альбом II. Отопление и вентиляция. Водопровод и канализация. Электрооборудование. Автоматизация устройств инженерного оборудования. Устройства связи |
| Дата добавления в базу: | 01.10.2014 |
| Дата актуализации: | 01.01.2021 |
| Дата введения: | 14.08.1981 |
| Дата окончания срока действия: | 30.06.2003 |
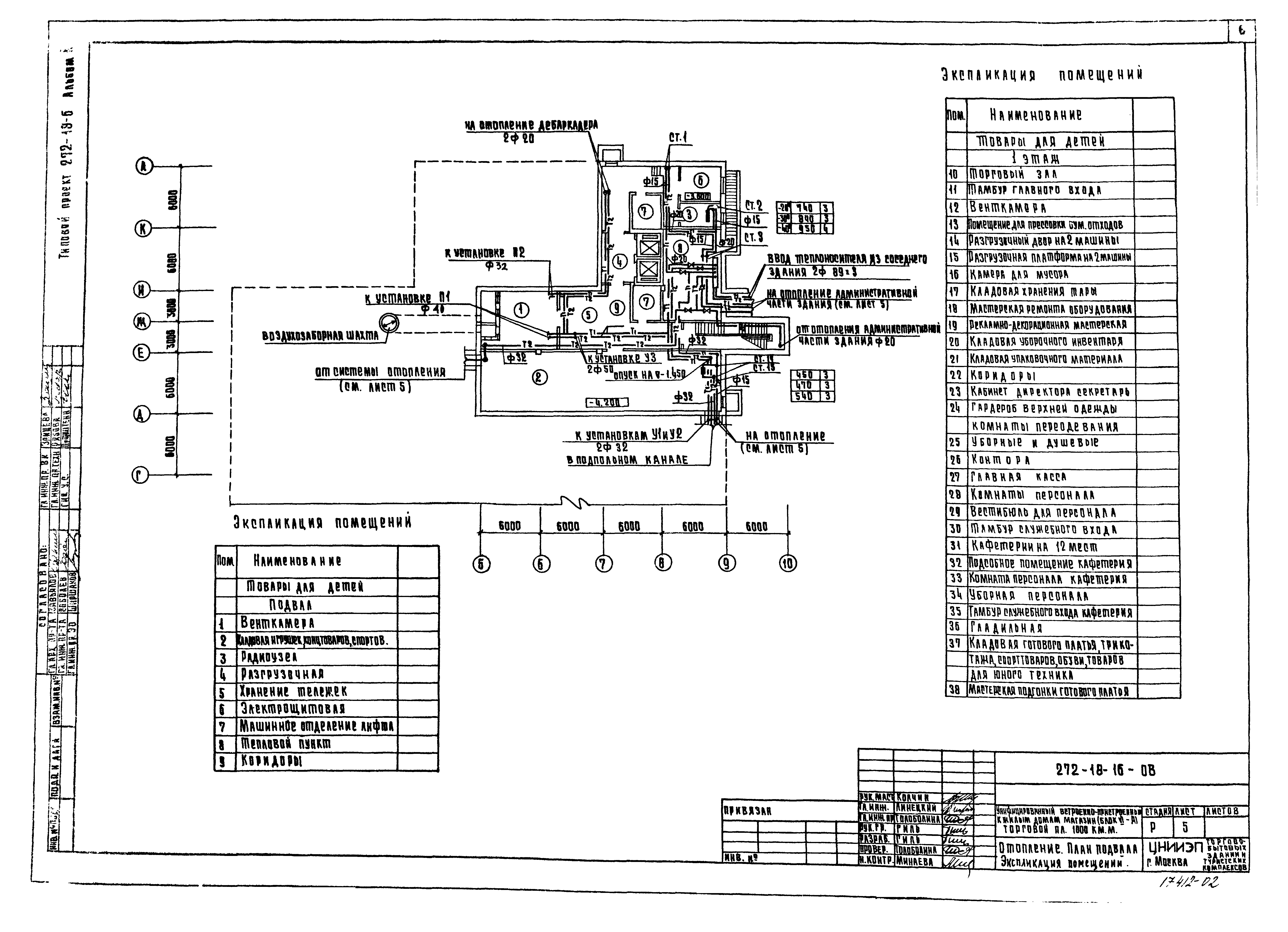
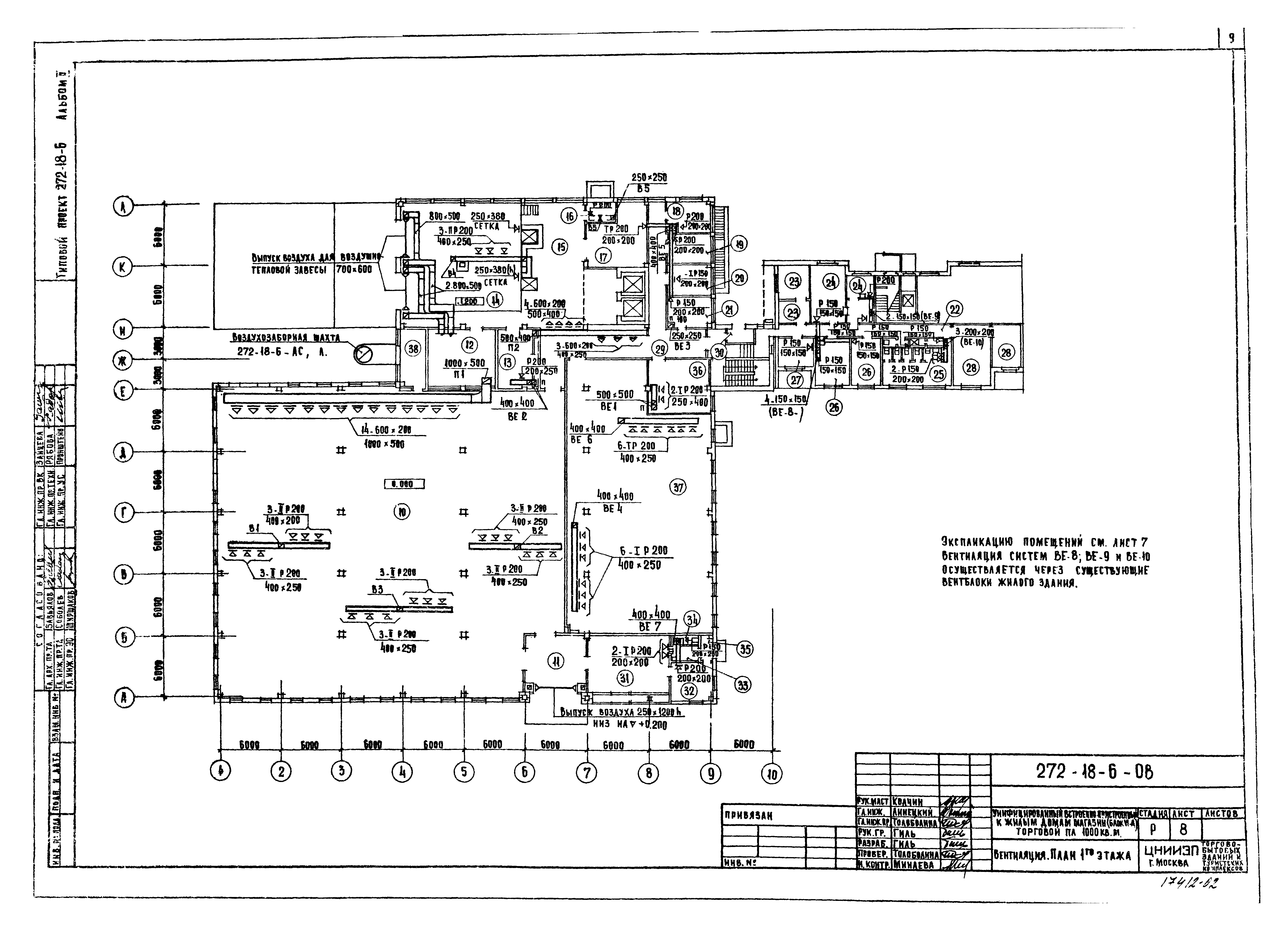
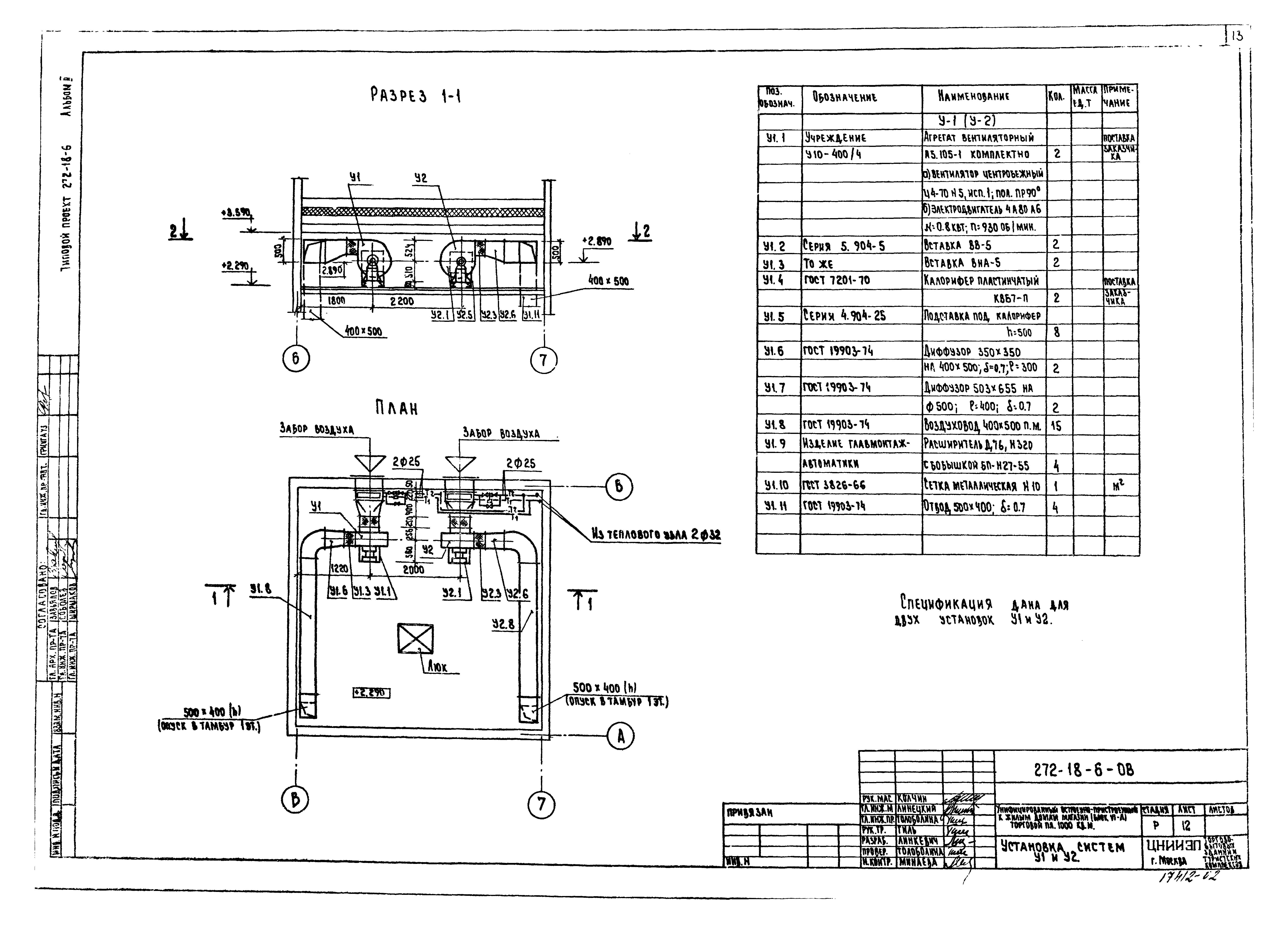
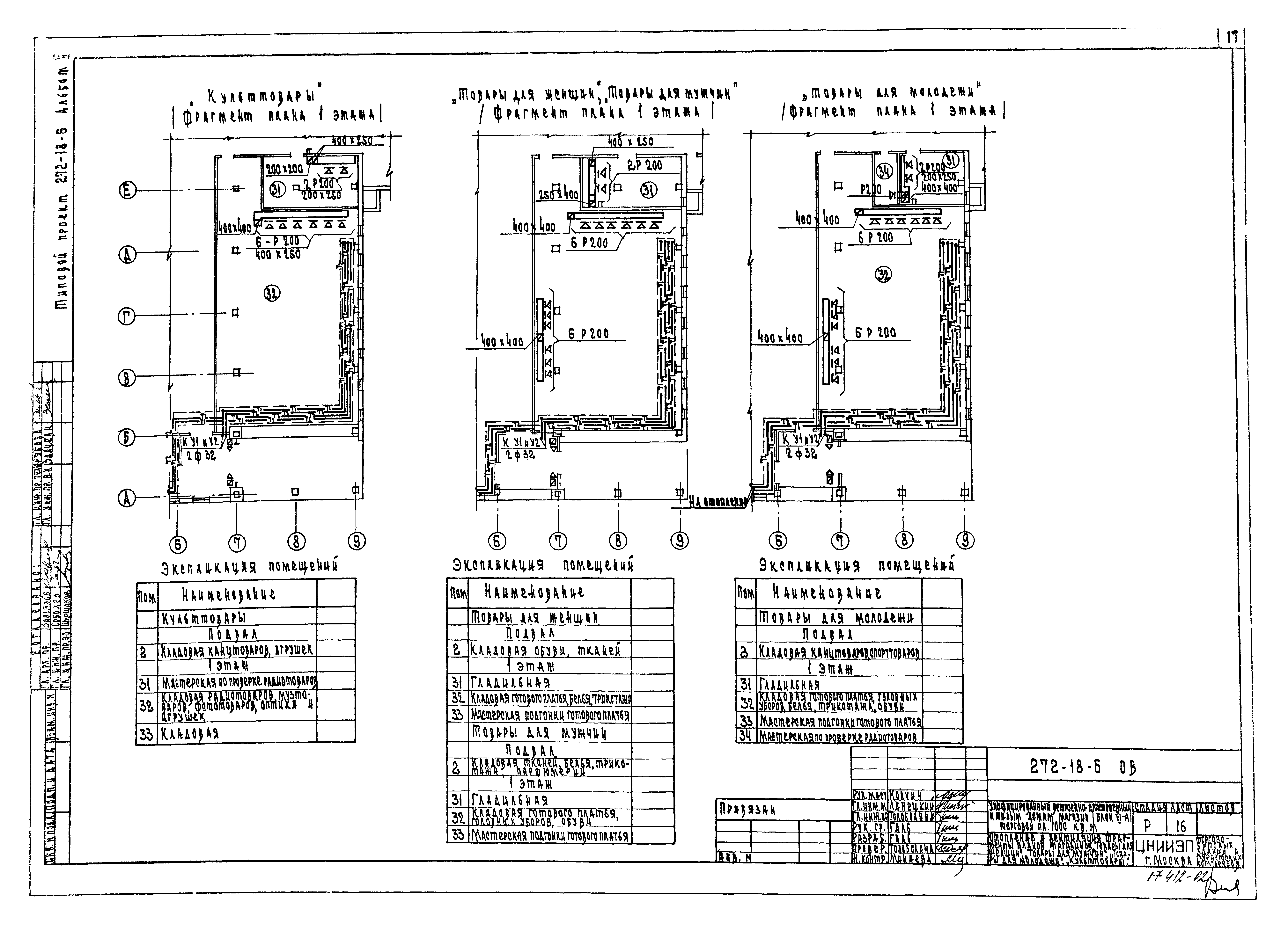
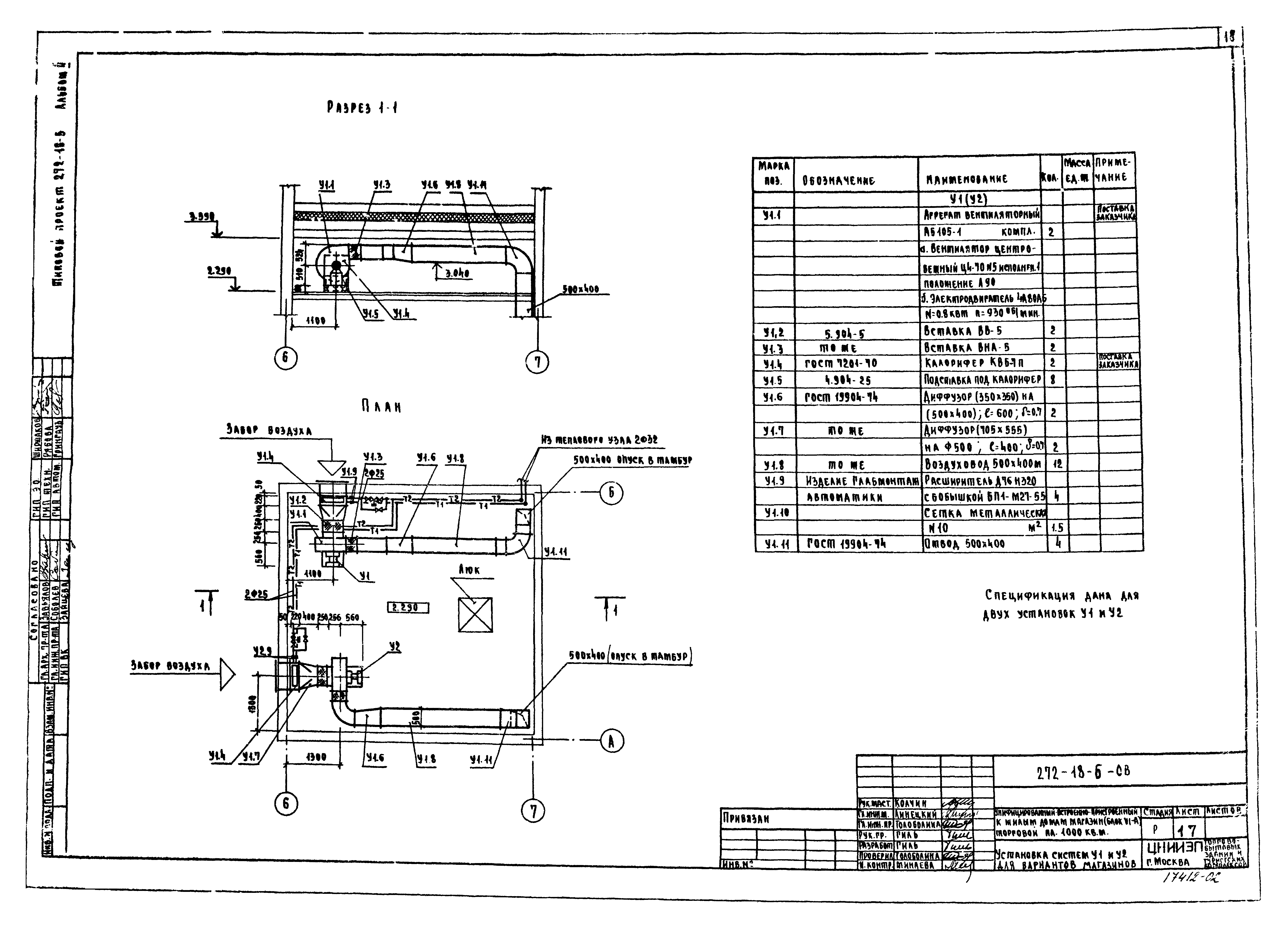
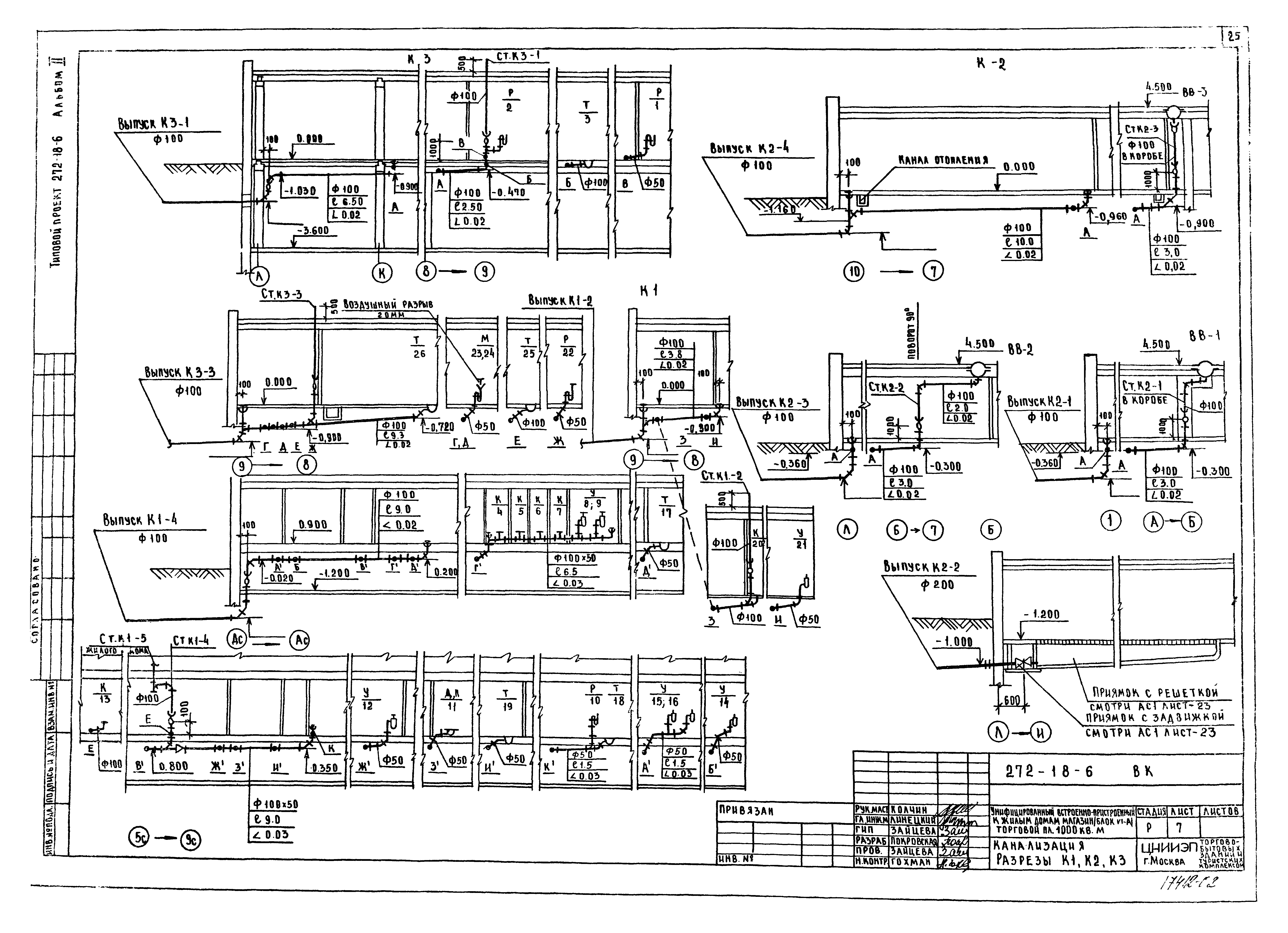
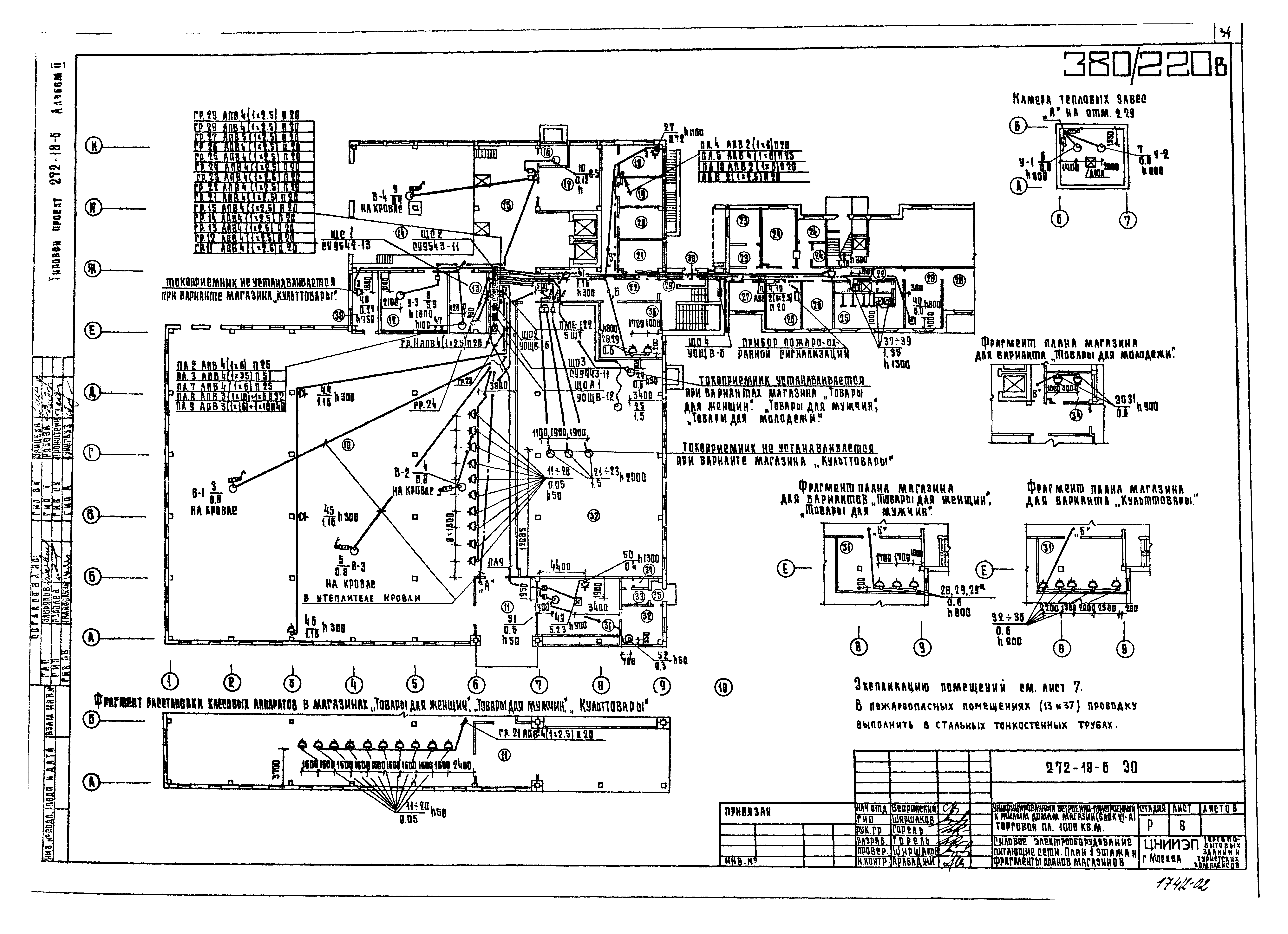
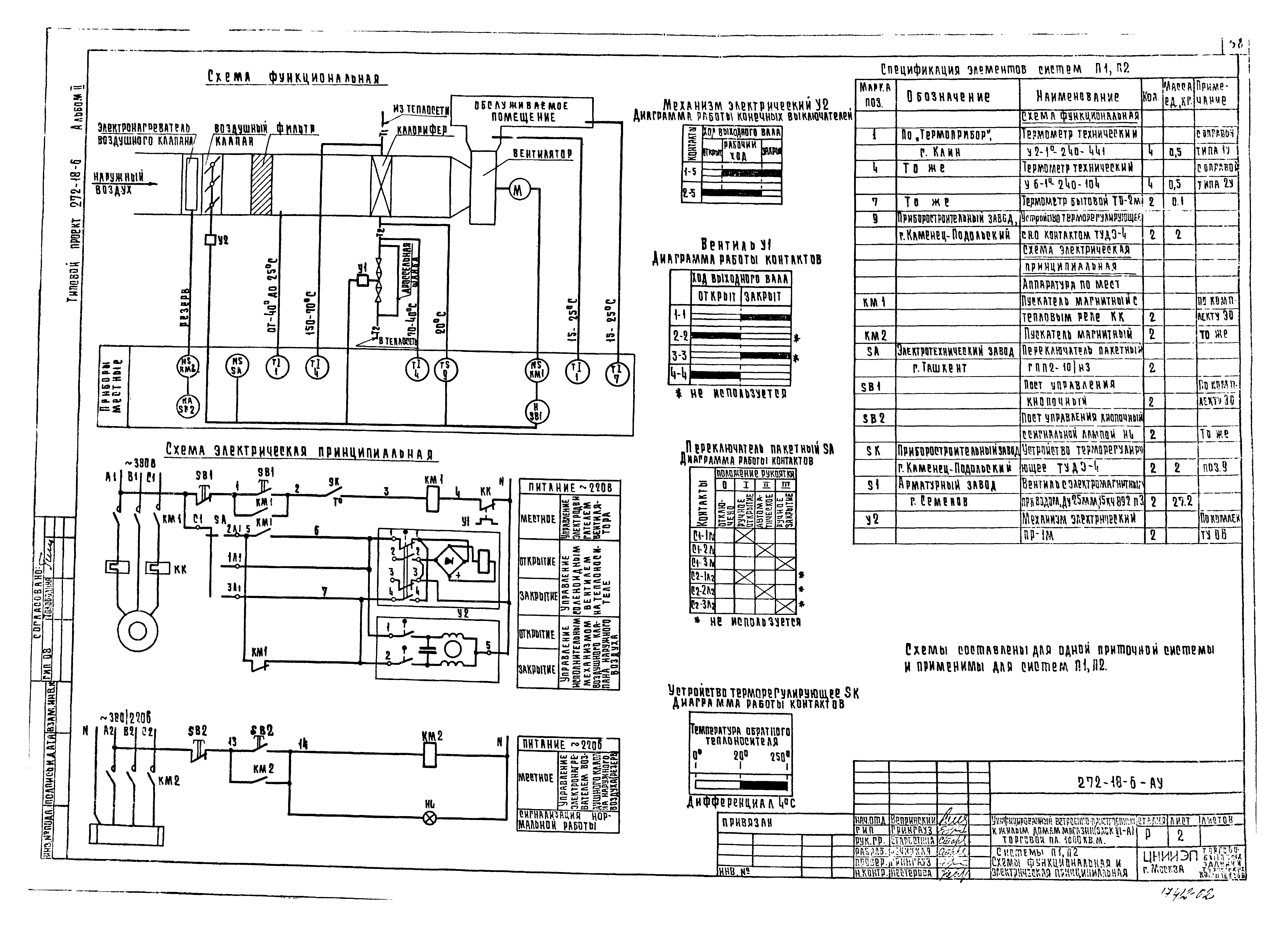
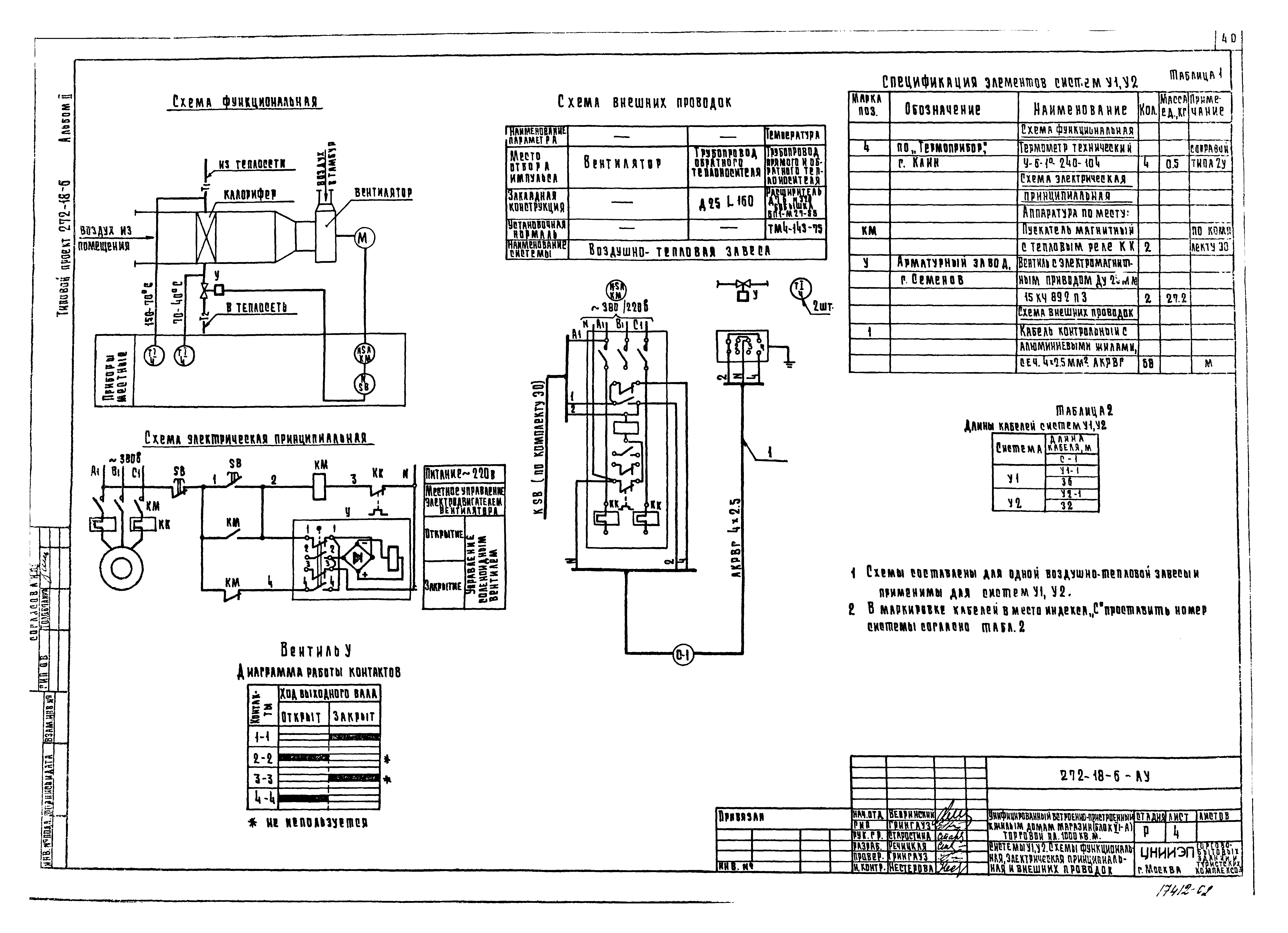
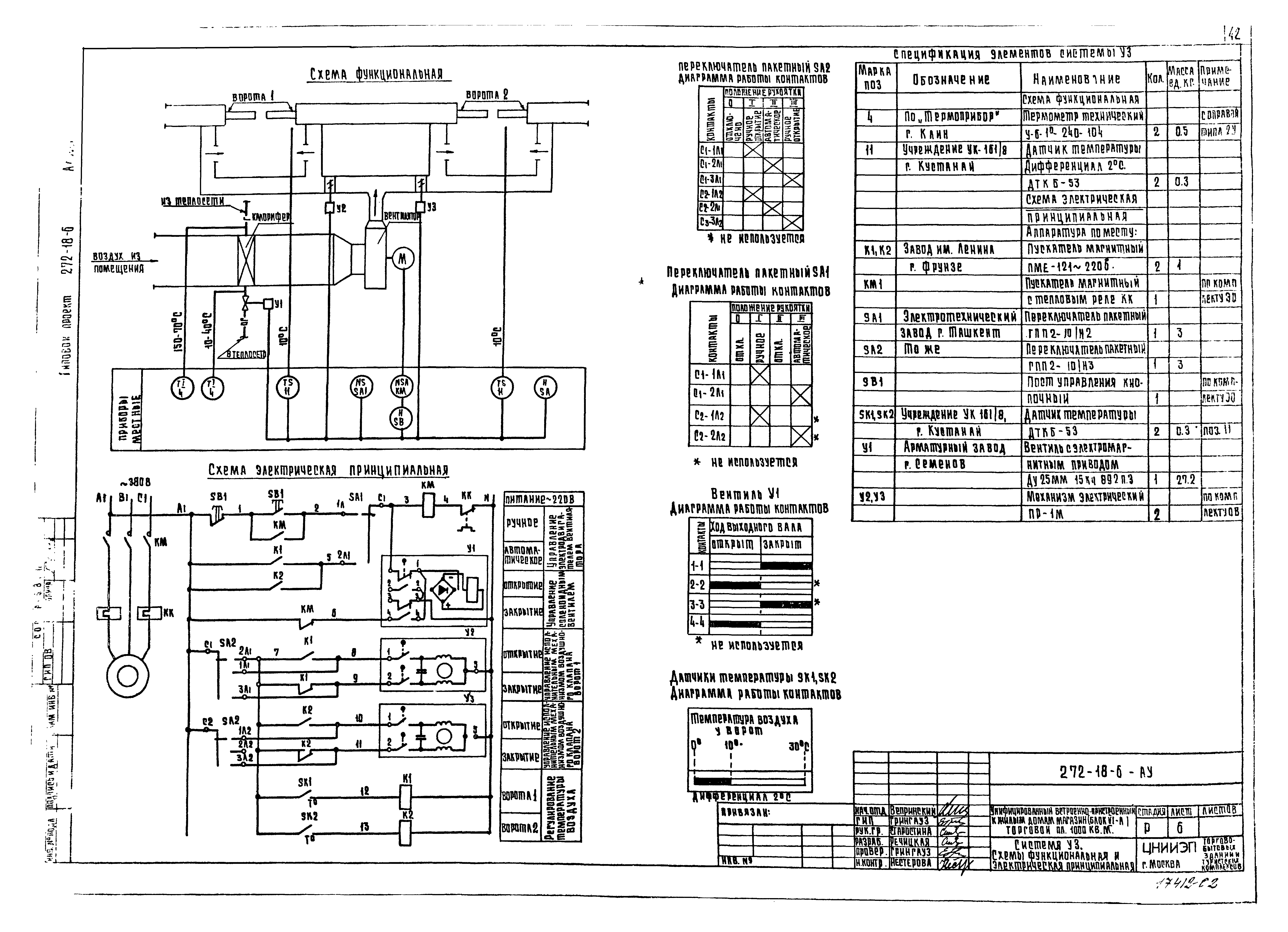
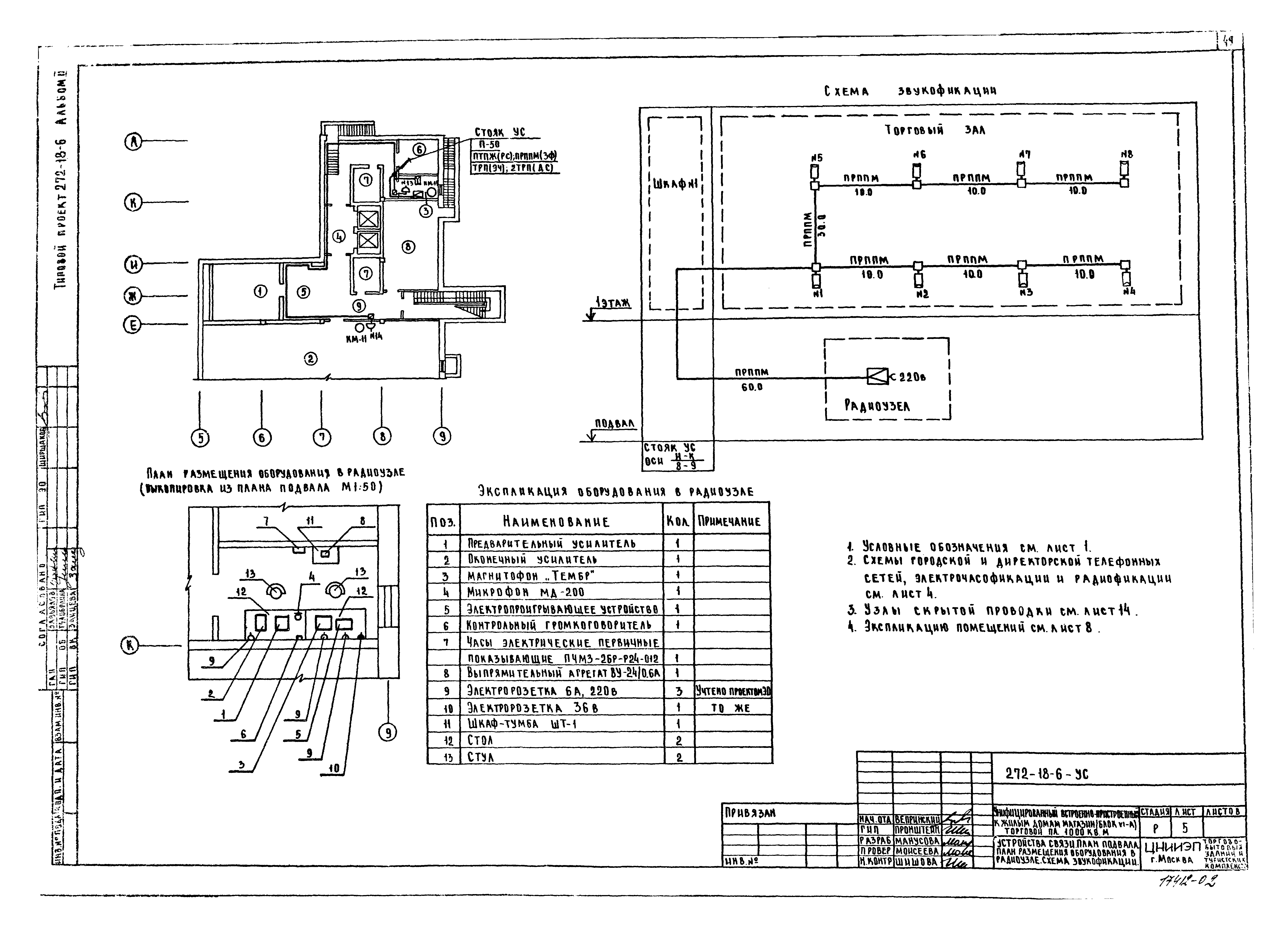
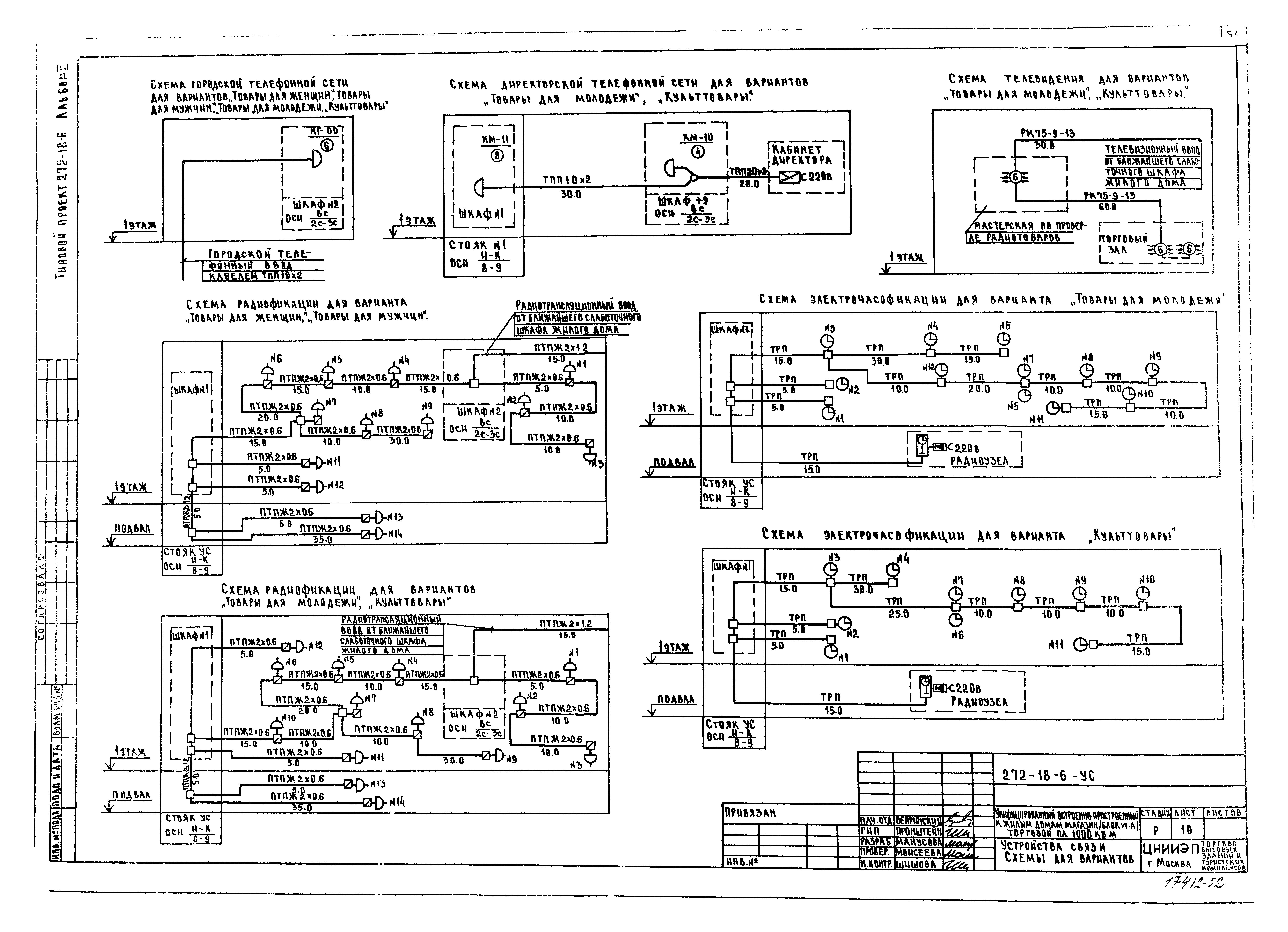
| Оглавление: | Чертежи основного комплекта марки ОВ Общие данные Отопление. План подвала. Экспликация помещений Отопление. План 1 этажа Вентиляция. План подвала. Экспликация помещений Вентиляция. План 1 этажа Схема системы отопления Установка приточных систем П1 и П2 Установка систем У1 и У2 Установка системы У3 Схемы систем вентиляции П1, П2, В1 - В5, У1 - У3, ВЕ1 - ВЕ10 Схема теплоснабжения калориферов и отопления дебаркадера Отопление и вентиляция. Фрагменты планов магазинов "Товары для женщин", "Товары для мужчин", "Товары для молодежи", "Культтовары" Установка систем У1 и У2 для вариантов магазинов Чертежи основного комплекта марки ВК Общие данные Спецификация систем водопровода и канализации Водопровод. Канализация. План подвала. Фрагменты планов 1 этажа вариантов "Товары для молодежи", "Культтовары" Водопровод. Канализация. План 1 этажа. Фрагмент плана 1 этажа варианта "Товары для женщин", "Товары для мужчин" Водопровод. Канализация. Фрагменты Водопровод. Схема систем В1, Т3 Канализация. Разрезы К1, К2, К3 Экспликация помещений. Воронка Чертежи основного комплекта марки ЭО Общие данные Спецификация Схема питающих сетей. Схема автоматического отключения вентиляции при пожаре Силовое электрооборудование. Расчетная схема ЩС1, ЩС2 Силовое электрооборудование. Питающие сети. Электроосвещение. План подвала Силовое электрооборудование. Питающие сети. План 1 этажа и фрагменты планов магазинов Электроосвещение. План 1 этажа и фрагменты планов магазинов по вариантам Размещение электрооборудования и прокладка электросетей в электрощитовой. Опросный лист Чертежи основного комплекта марки АУ Общие данные Системы П1, П2. Схемы функциональная и электрическая принципиальная Системы П1, П2. Схема внешних проводок Системы У1, У2. Схемы функциональная, электрическая принципиальная и внешних проводок Системы П1, П2, У1, У2. План расположения Система У3. Схемы функциональная и электрическая принципиальная Система У3. Схема внешних проводок Система У3. План расположения Чертежи основного комплекта марки УС Общие данные Спецификация Устройства связи. Схемы Устройства связи. План подвала. План размещения оборудования в радиоузле. Схема звукофикации Устройства связи. План 1 этажа Охранно-пожарная сигнализация. Схема. Схемы блокировки окон, дверей и витражей Охранно-пожарная сигнализация. План подвала. Экспликация помещений Охранно-пожарная сигнализация. План 1 этажа Устройства связи. Схемы для вариантов Устройства связи. Фрагменты планов магазинов по вариантам Охранно-пожарная сигнализация. Схемы для вариантов Охранно-пожарная сигнализация. Фрагменты планов магазинов по вариантам Узлы скрытой проводки Люк Л-1 (подпольная коробка). Общий вид Люк Л-1 (подпольная коробка). Рамка и крышка |
| Разработан: | ЦНИИЭП торгово-бытовых зданий и туристских комплексов |
| Утверждён: | 28.01.1980 Госгражданстрой (Gosgrazhdanstroy 26) |




























































