Скачать Типовой проект 503-4-76.92 Альбом 1. Пояснительная записка. Технология производства. Архитектурные решения. Конструкции железобетонные. Конструкции металлические. Внутренние водопровод и канализация. Отопление и вентиляцияДата актуализации: 01.01.2021
|
| Обозначение: | Типовой проект 503-4-76.92 |
| Обозначение англ: | 503-4-76.92 |
| Статус: | не определен законодательством |
| Название рус.: | Альбом 1. Пояснительная записка. Технология производства. Архитектурные решения. Конструкции железобетонные. Конструкции металлические. Внутренние водопровод и канализация. Отопление и вентиляция |
| Дата добавления в базу: | 01.10.2014 |
| Дата актуализации: | 01.01.2021 |
| Дата введения: | 15.10.1992 |
| Дата окончания срока действия: | 30.06.2003 |
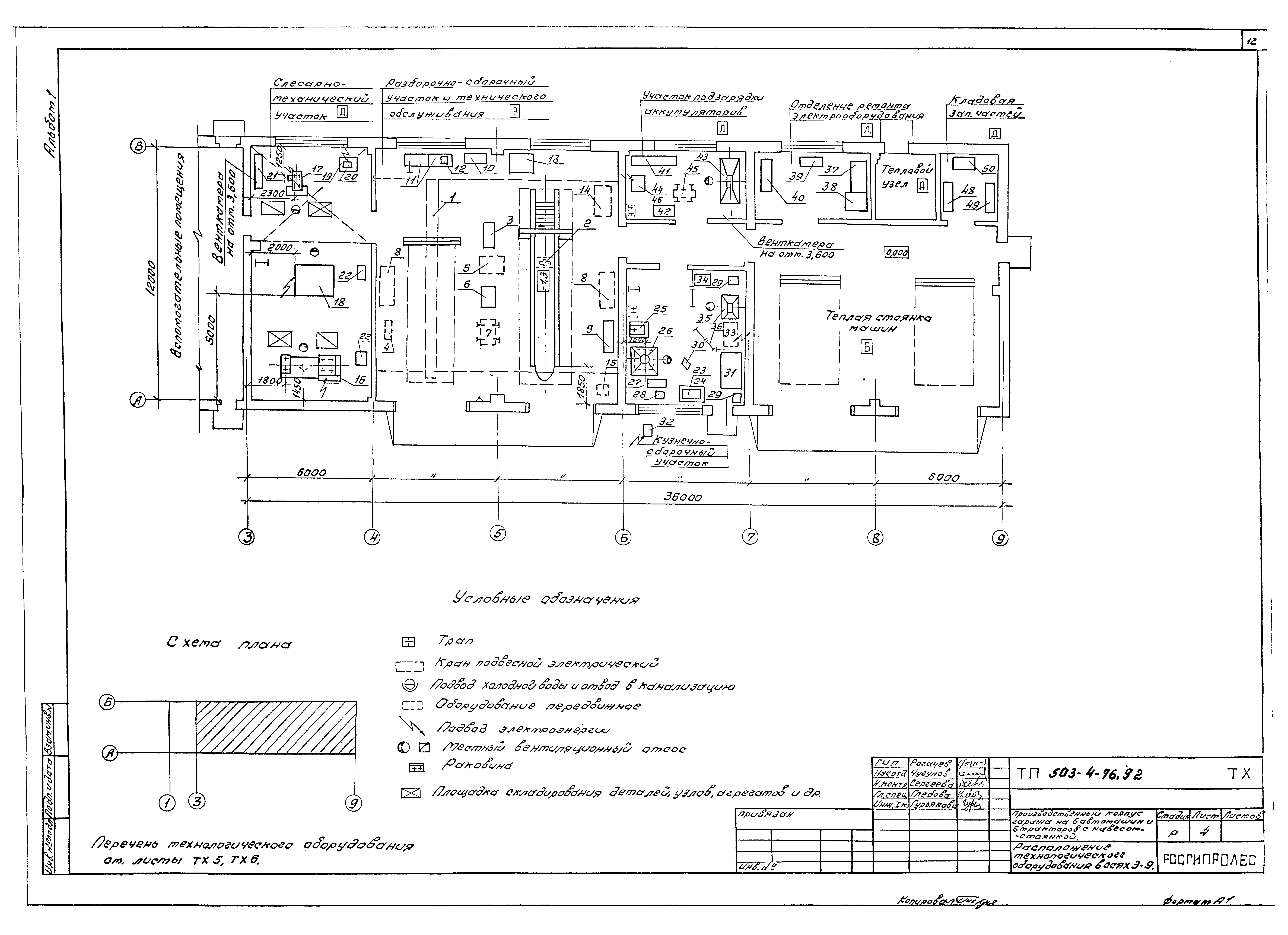
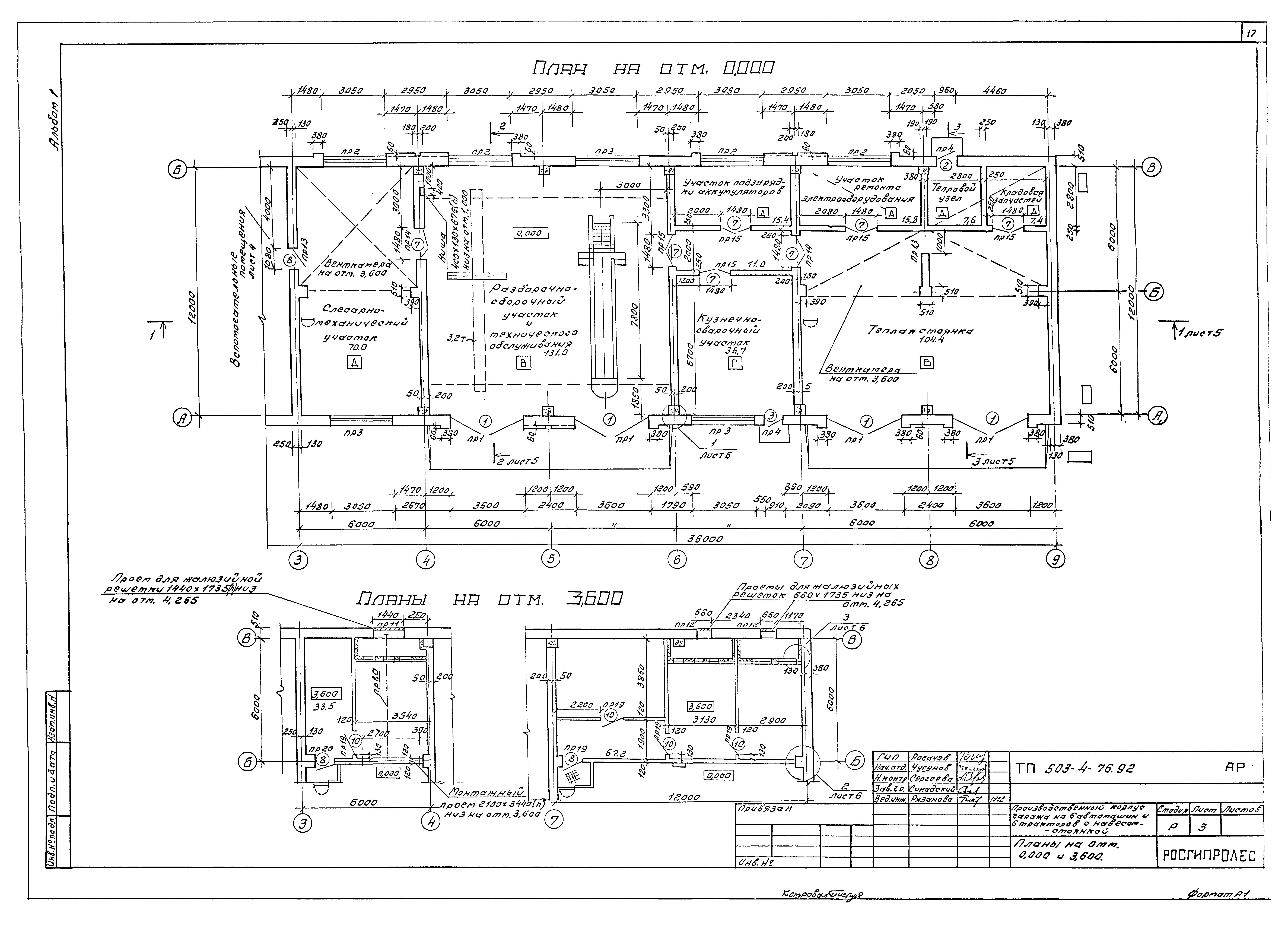
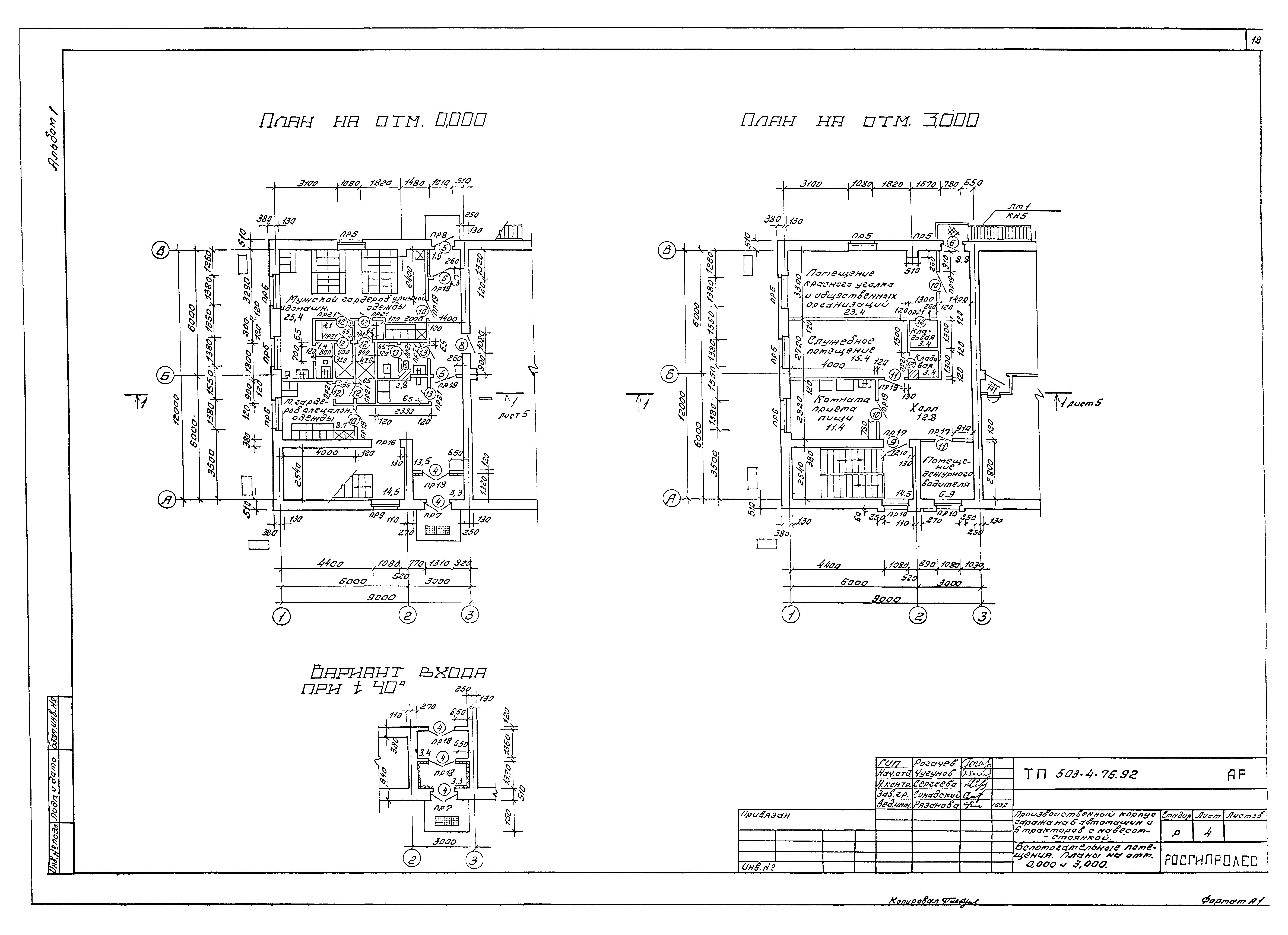
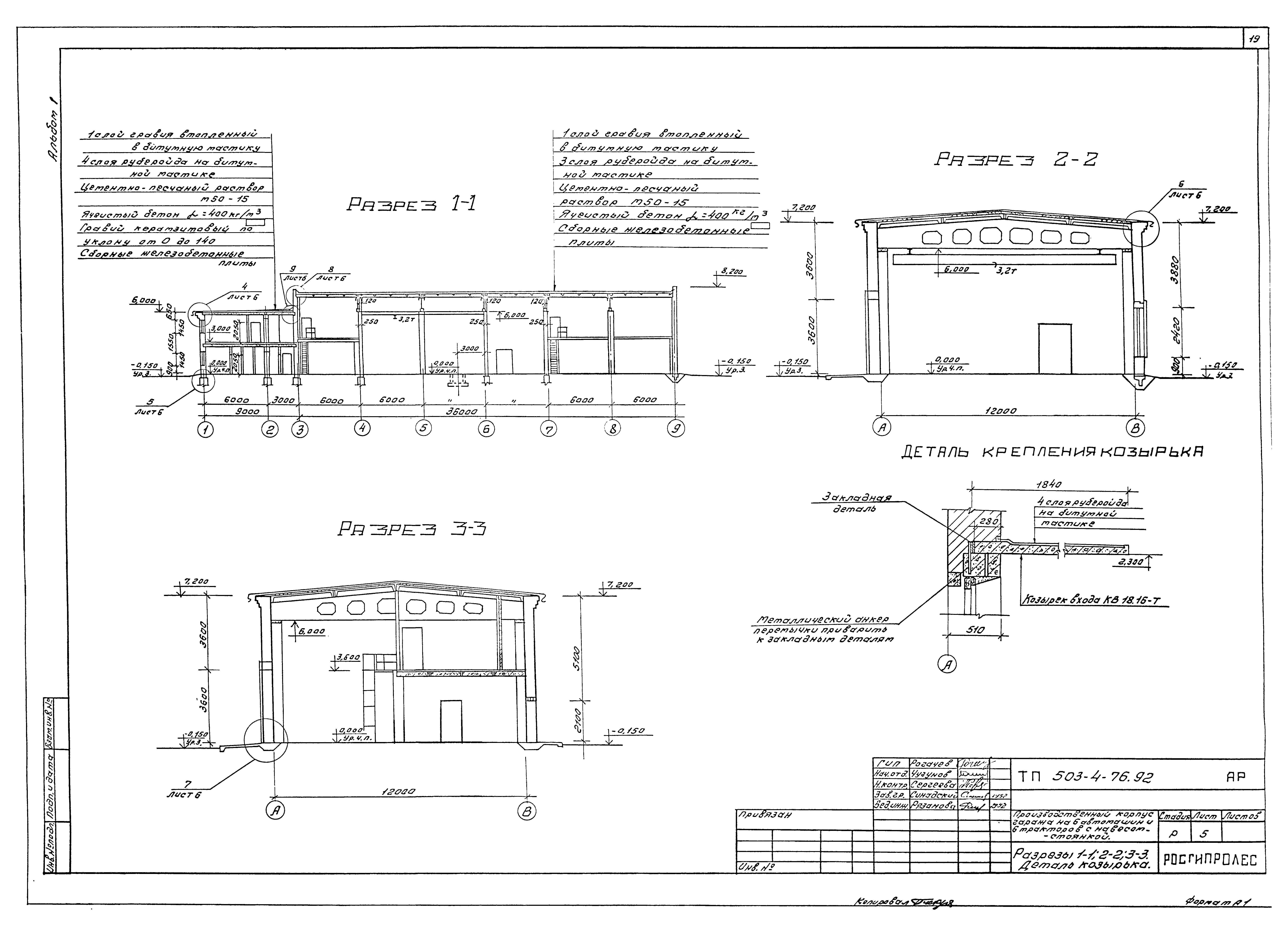
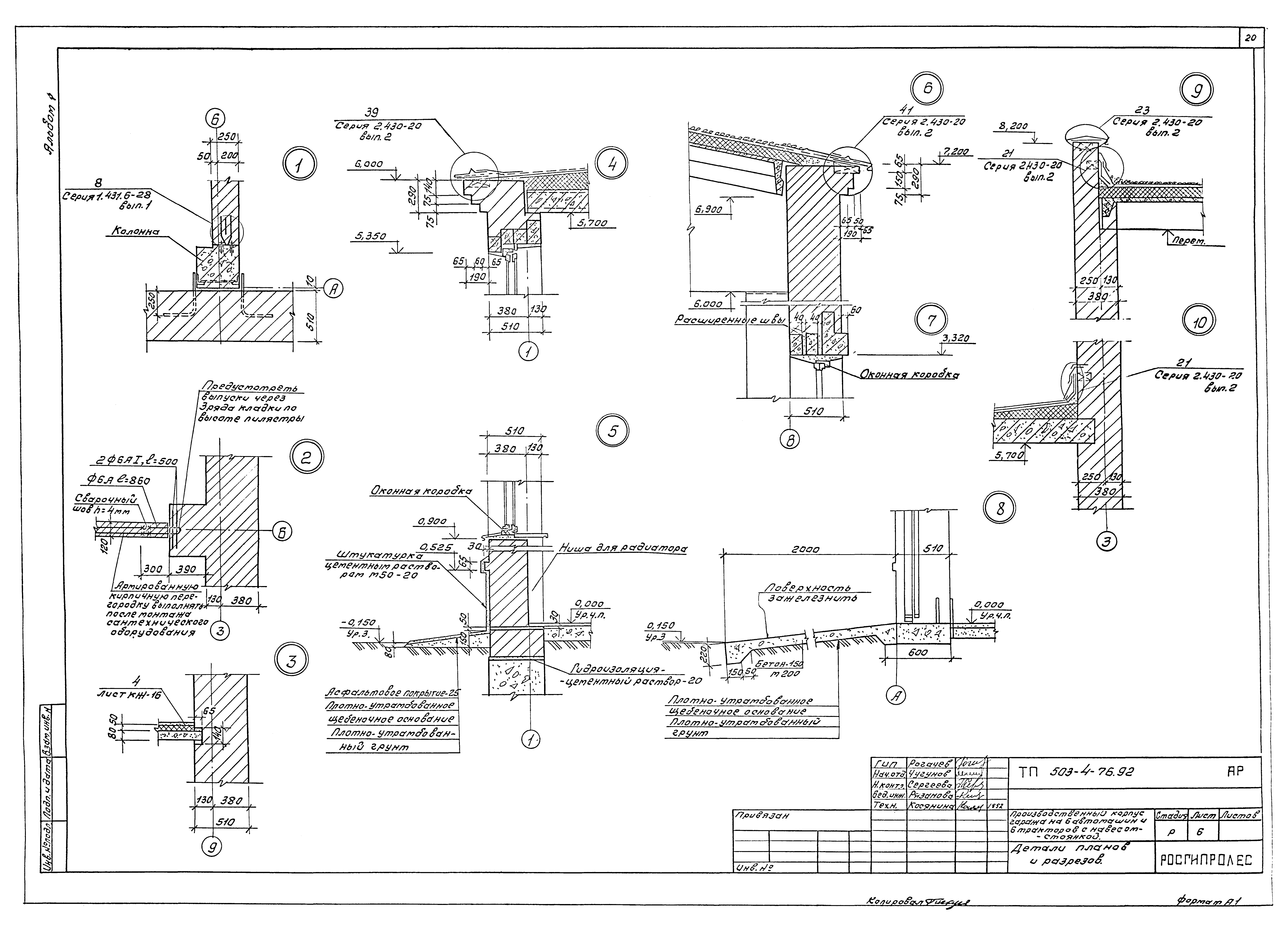
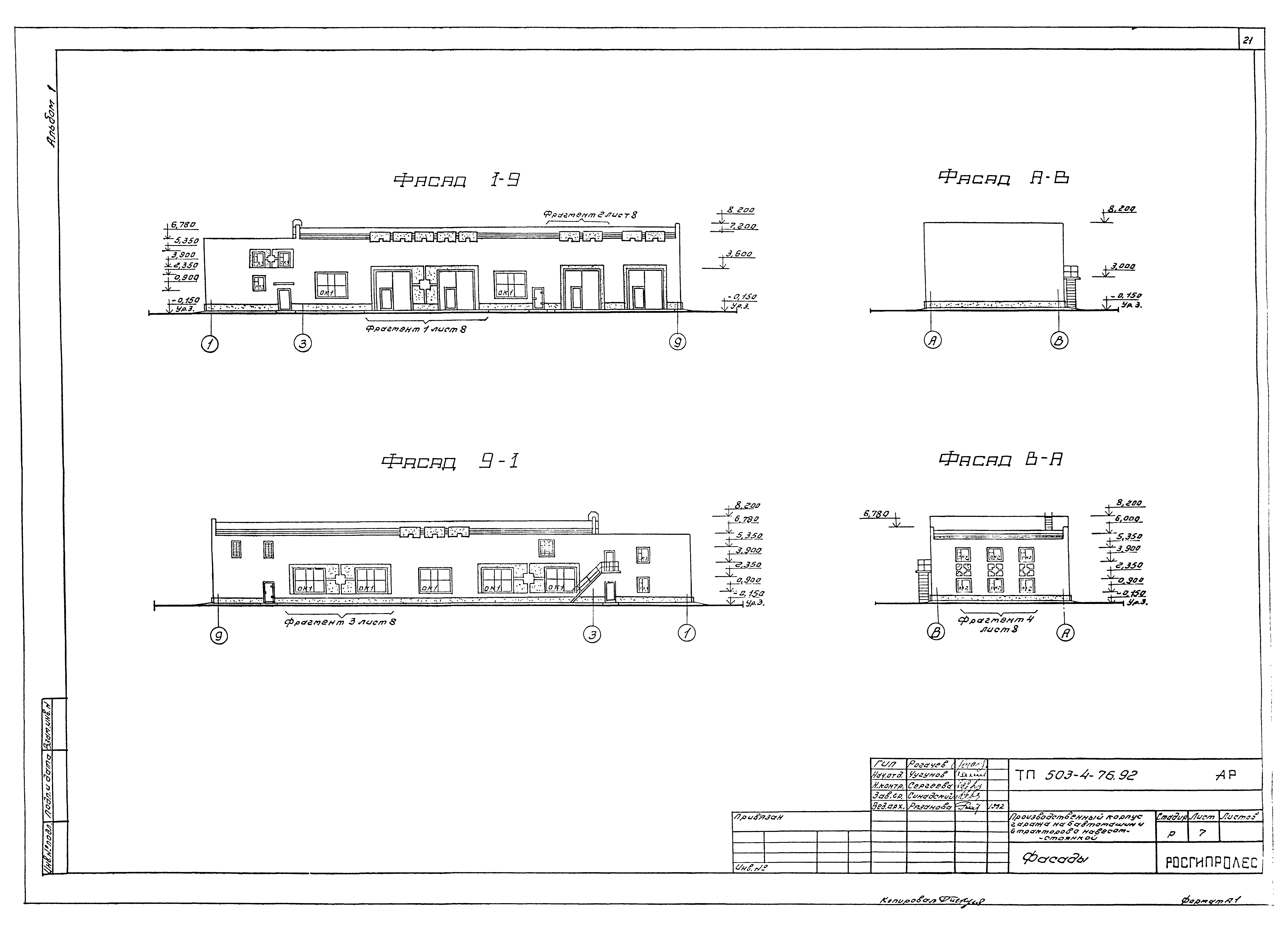
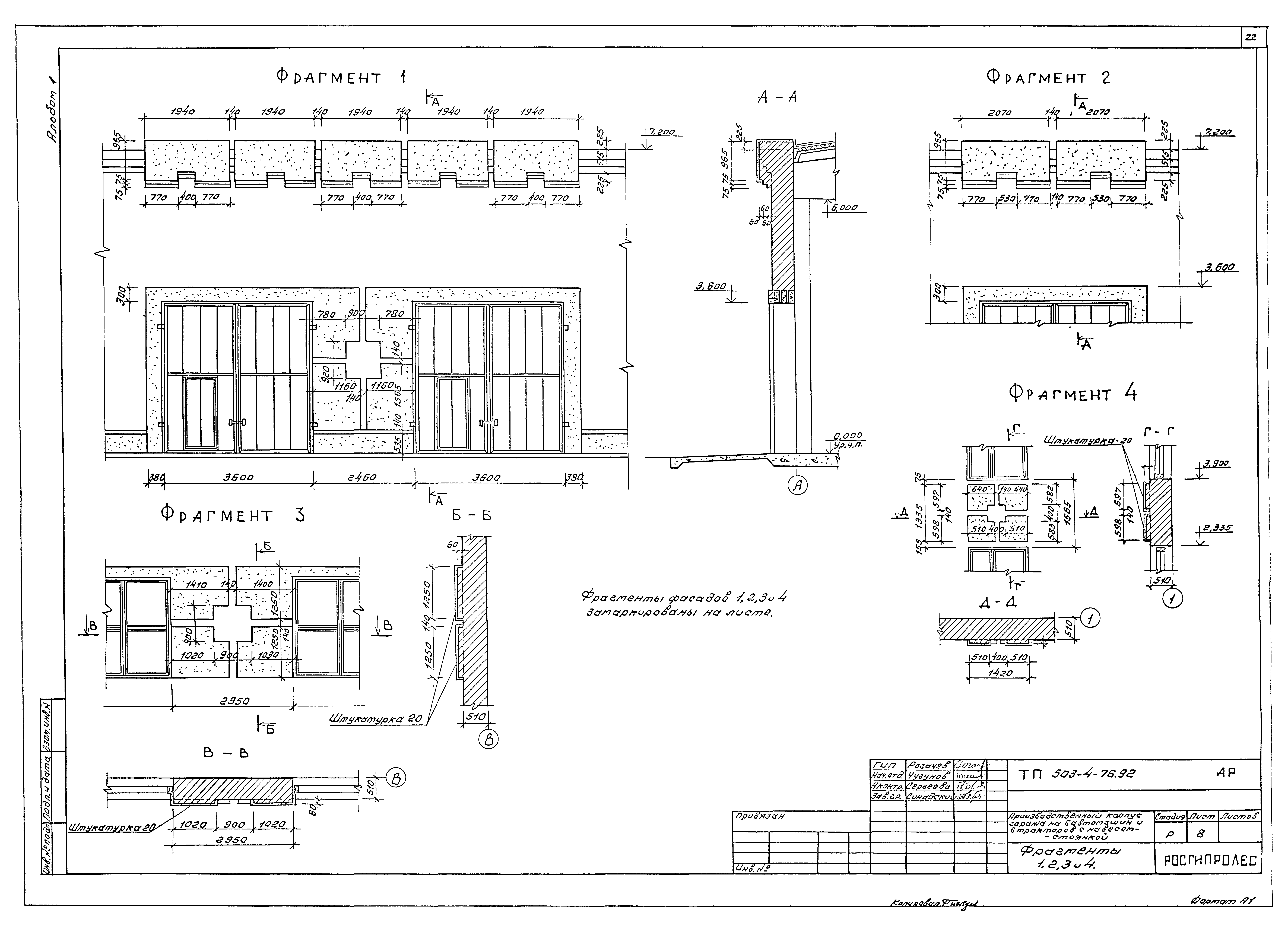
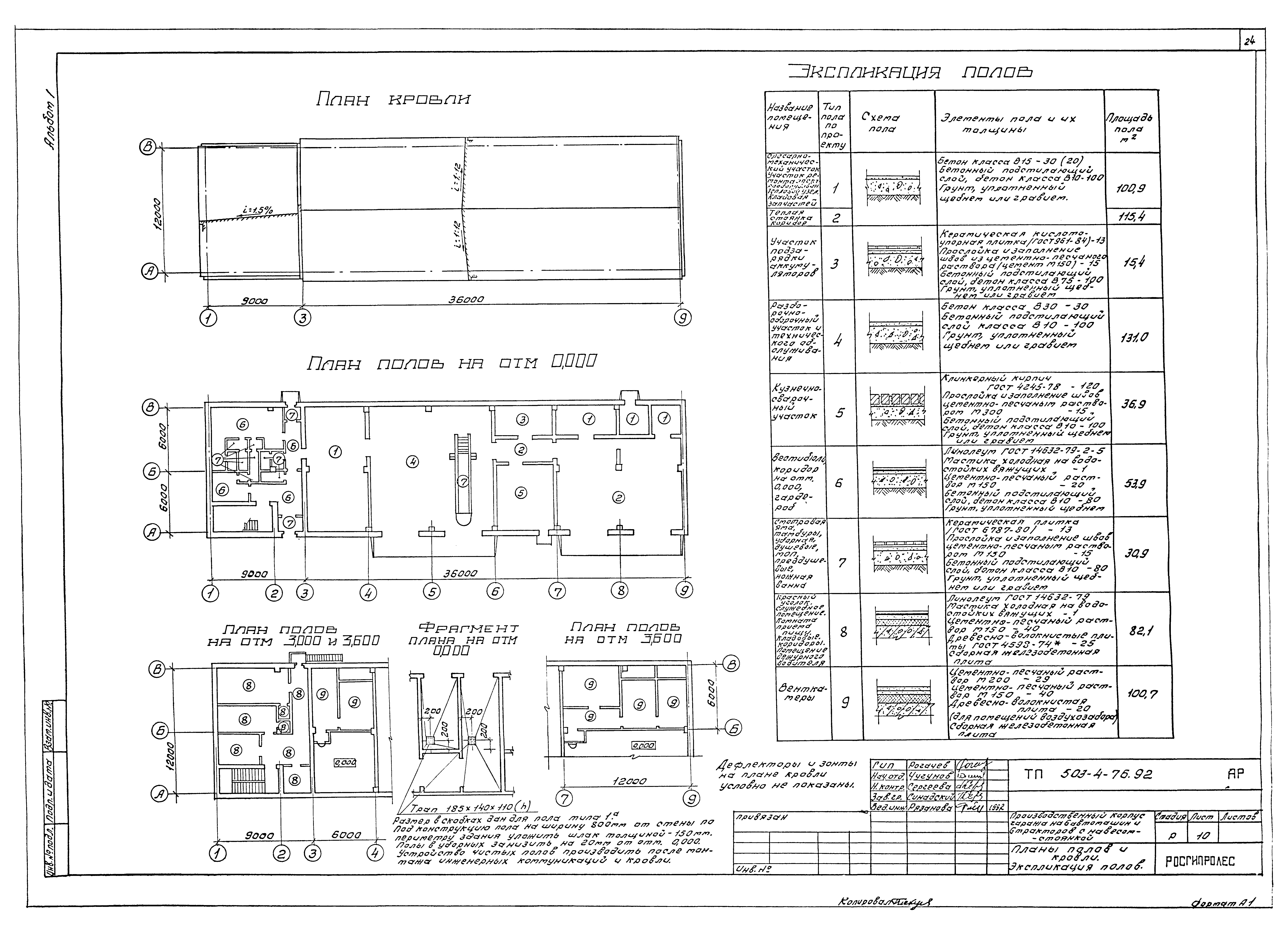
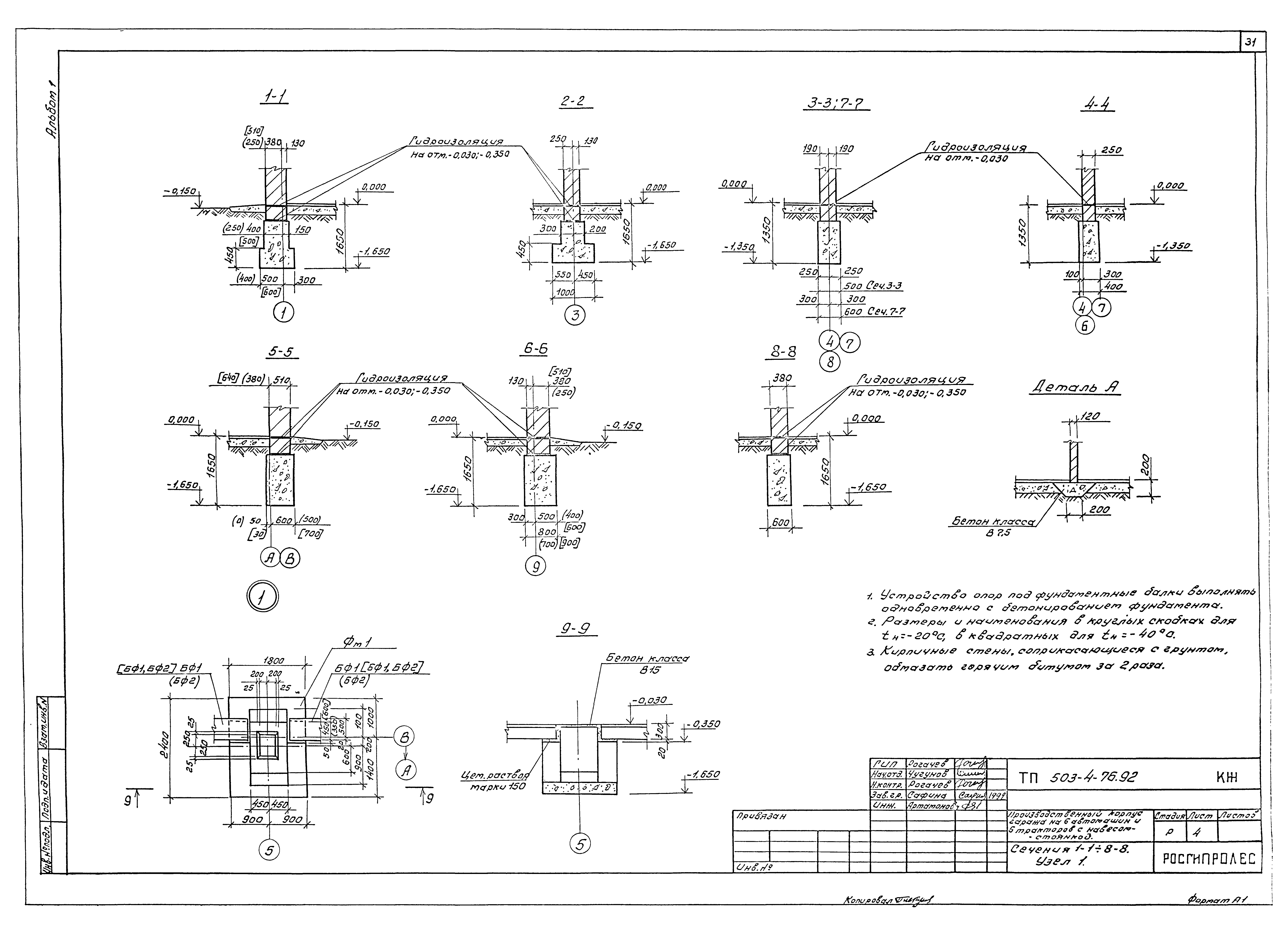
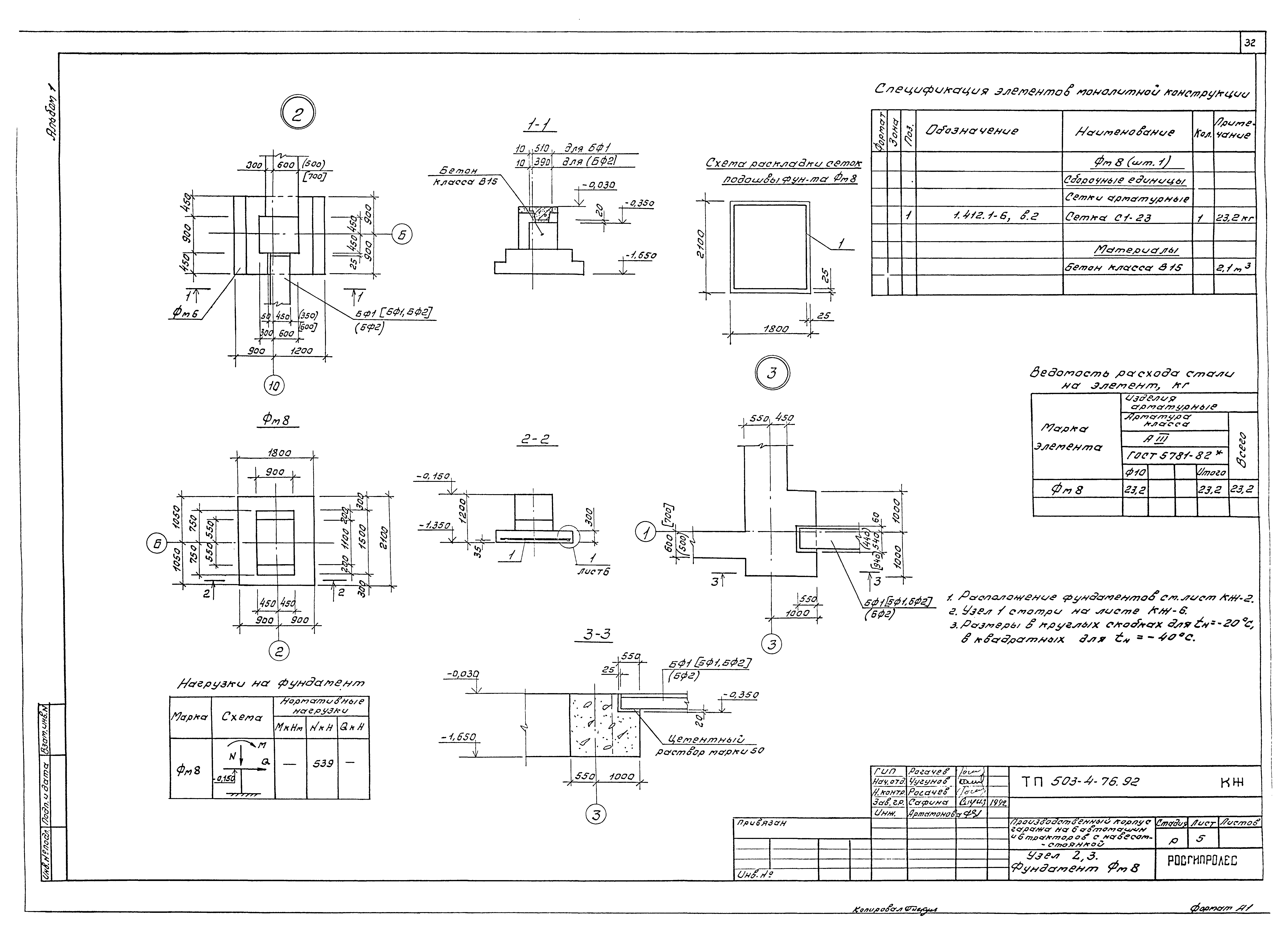
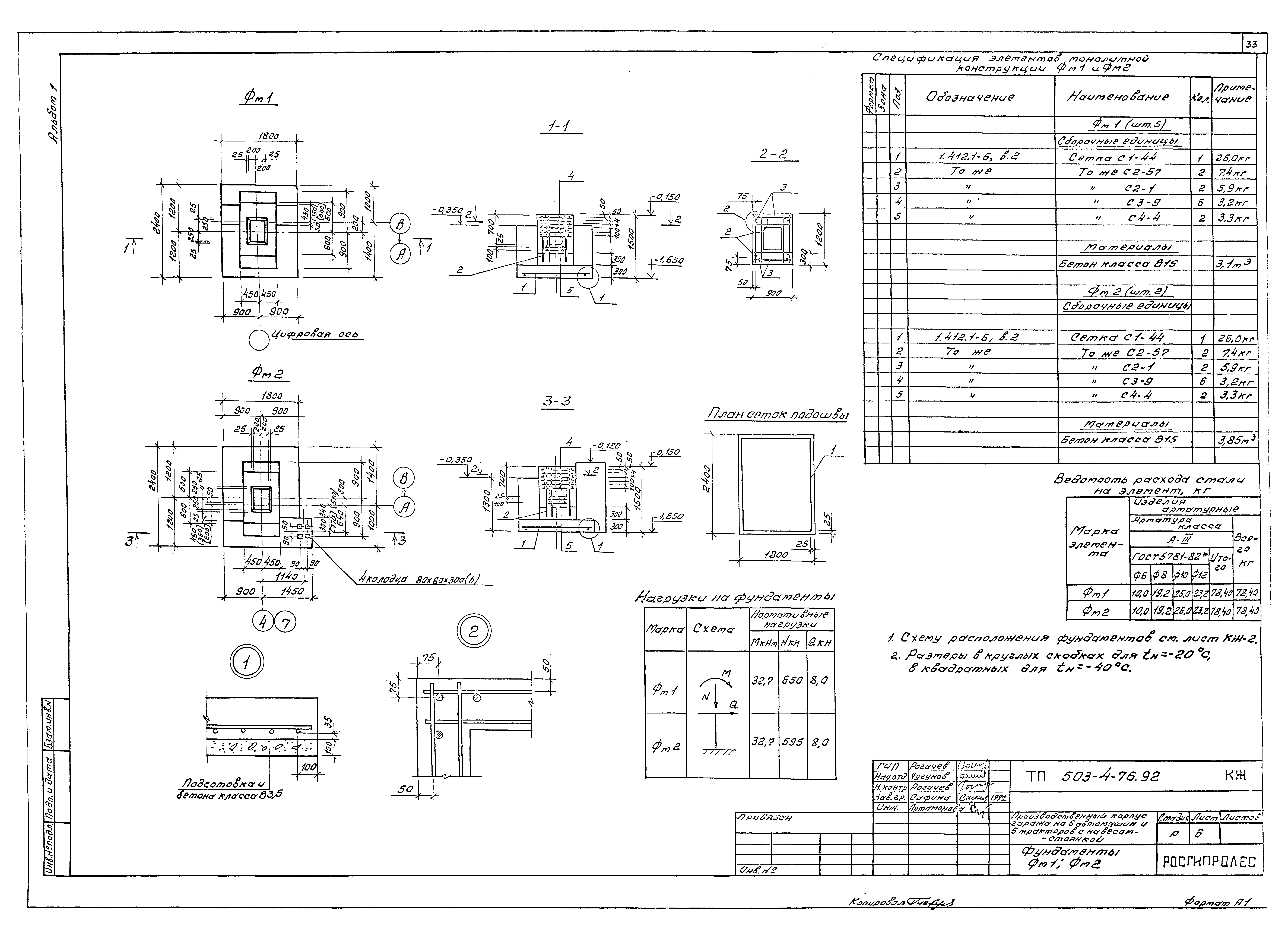
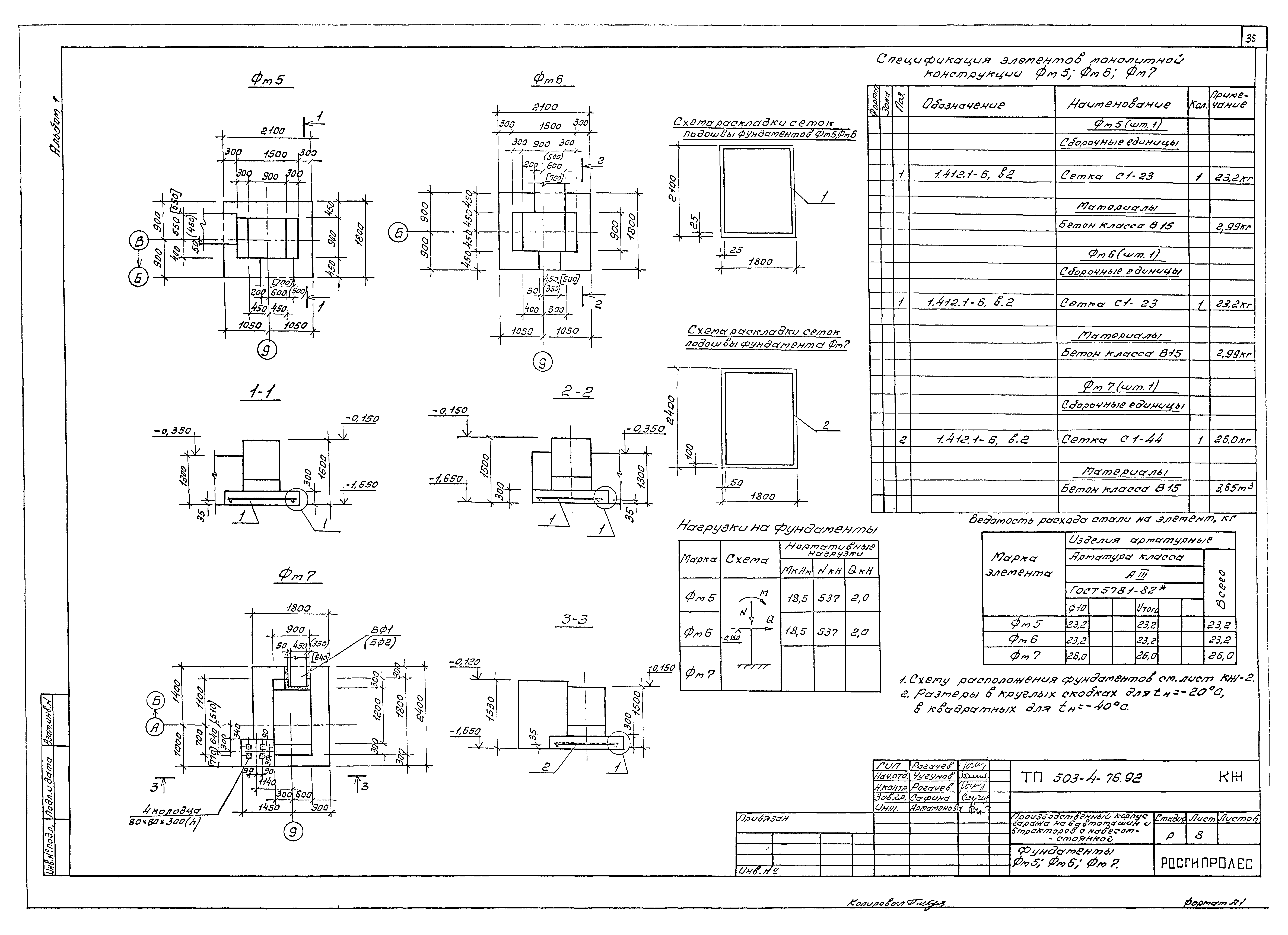
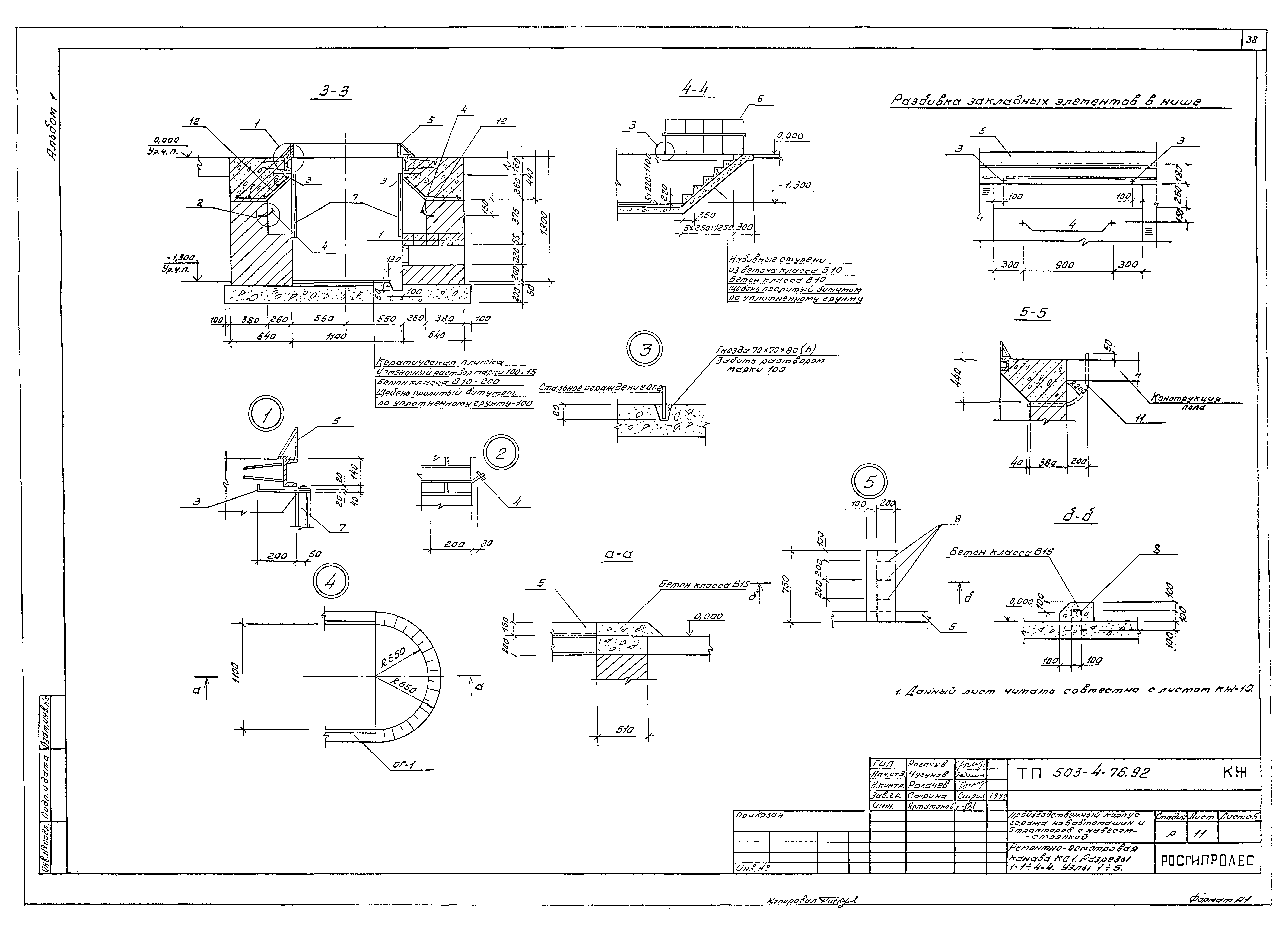
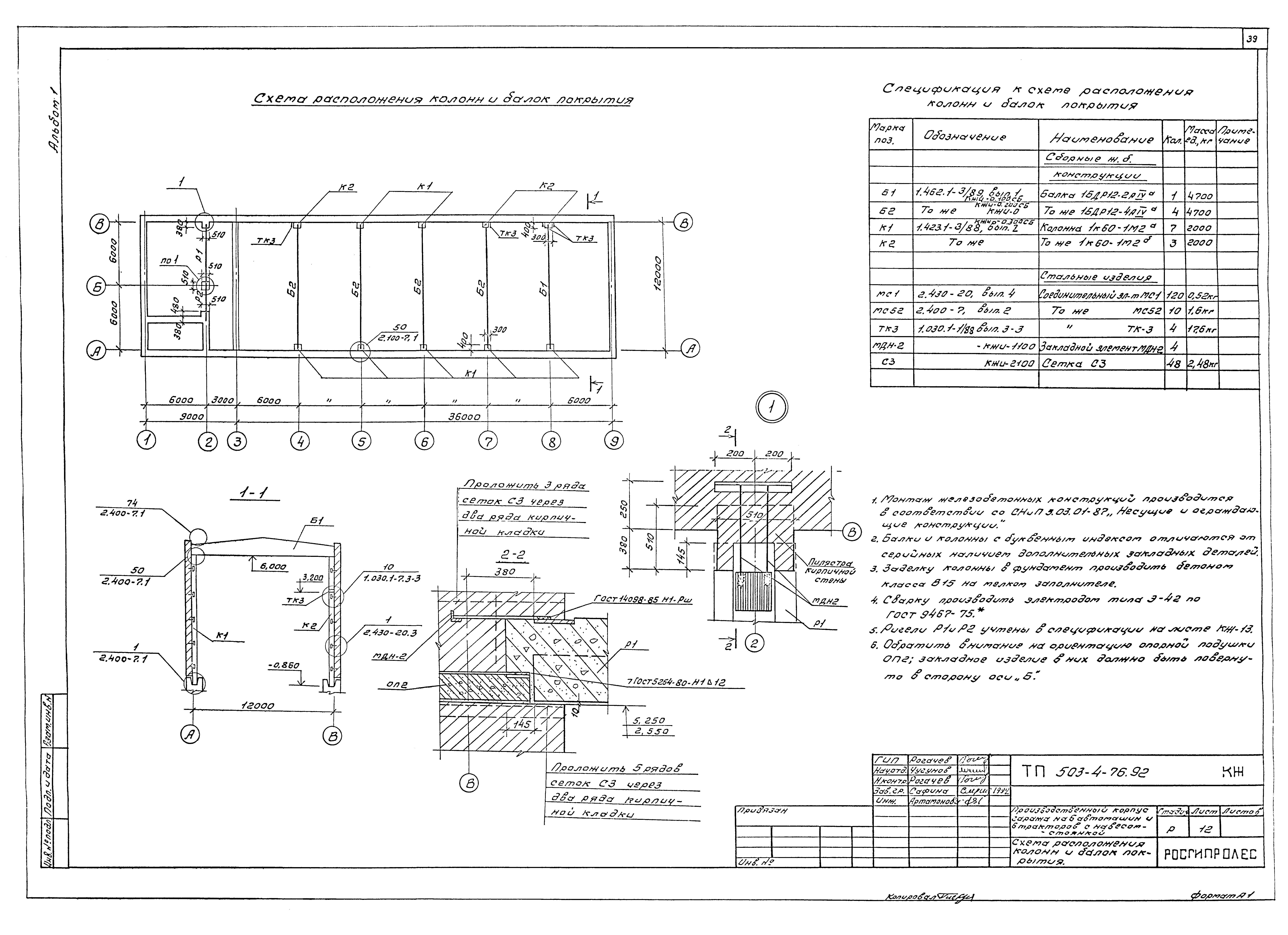
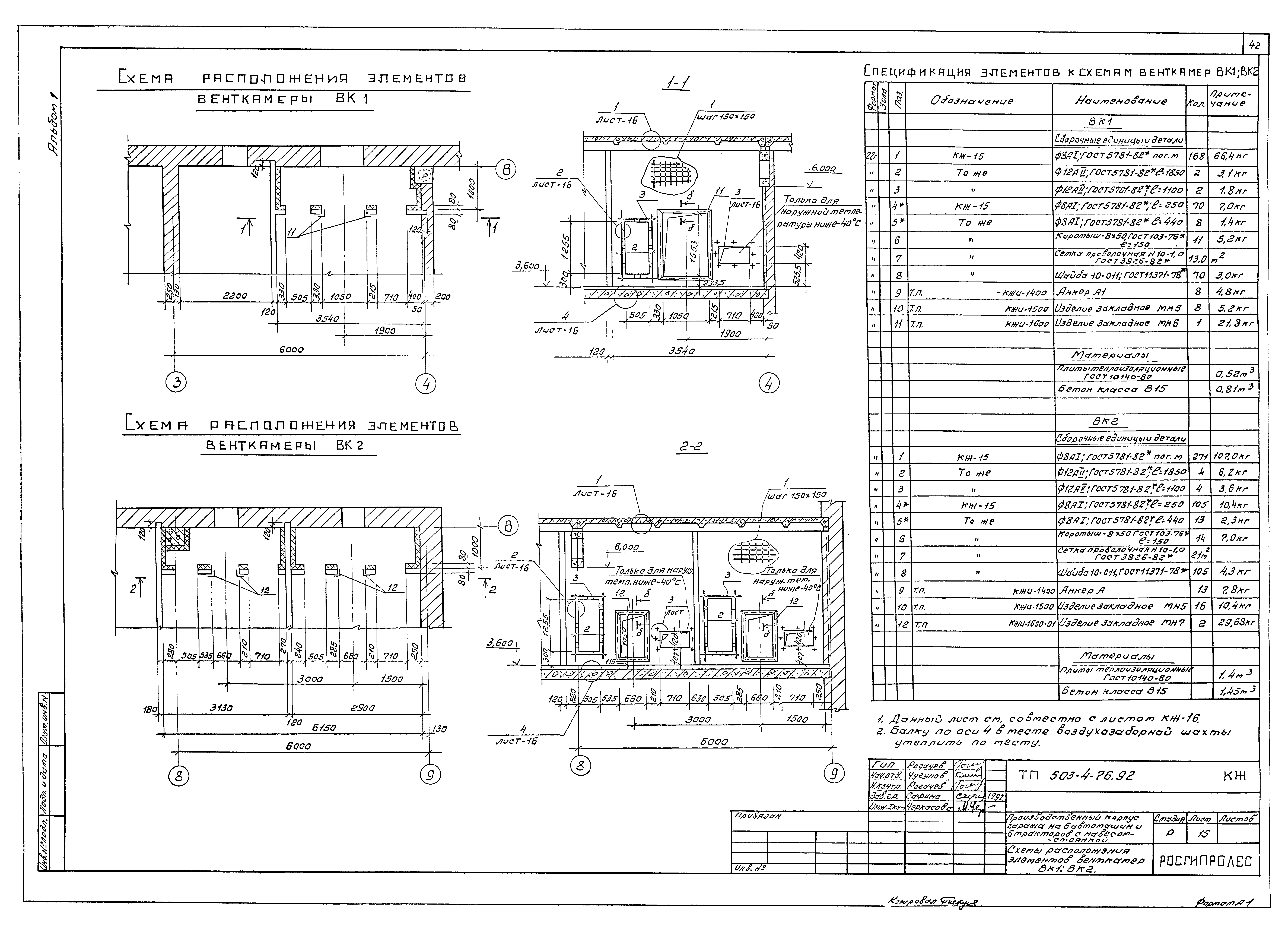
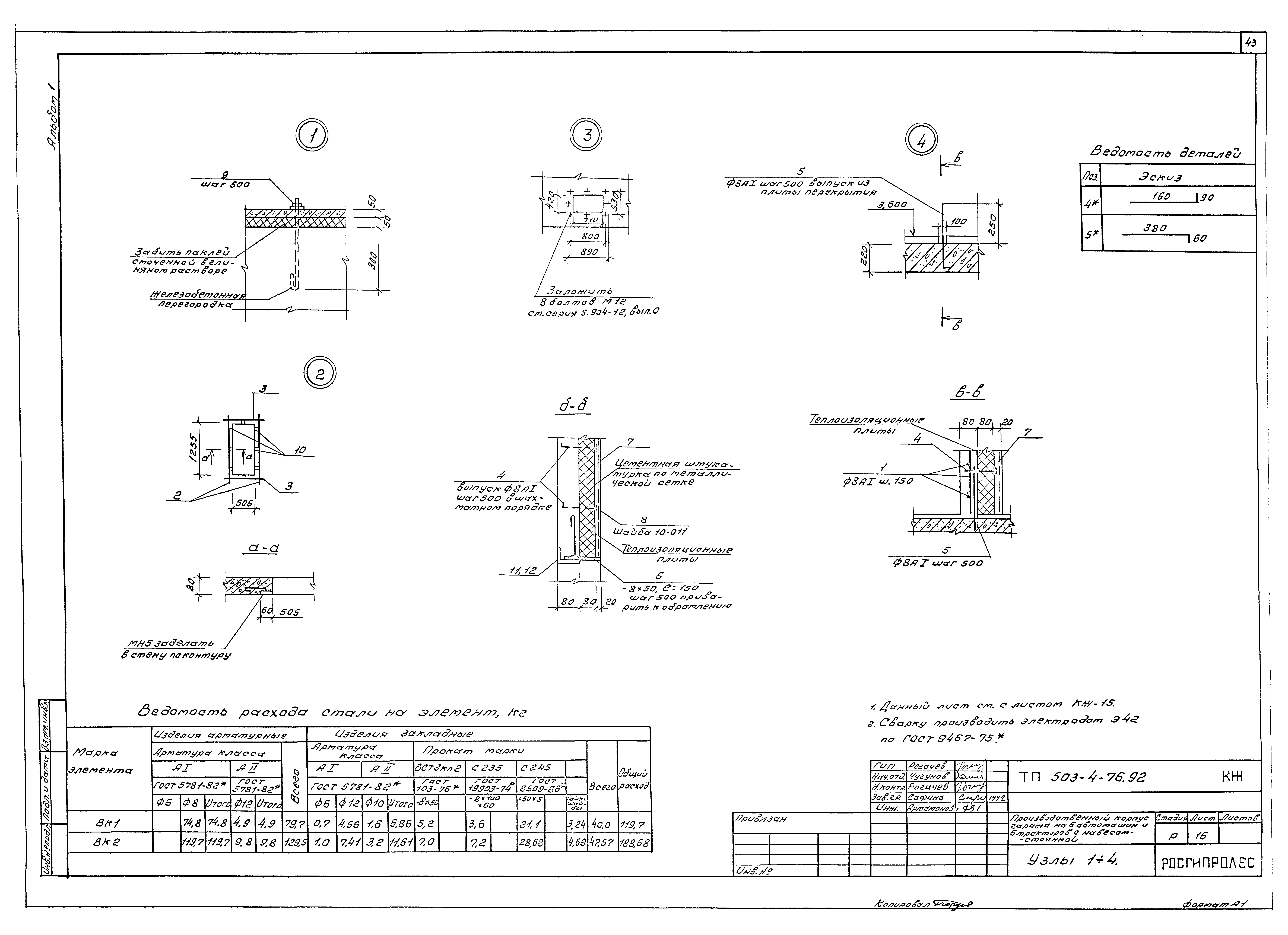
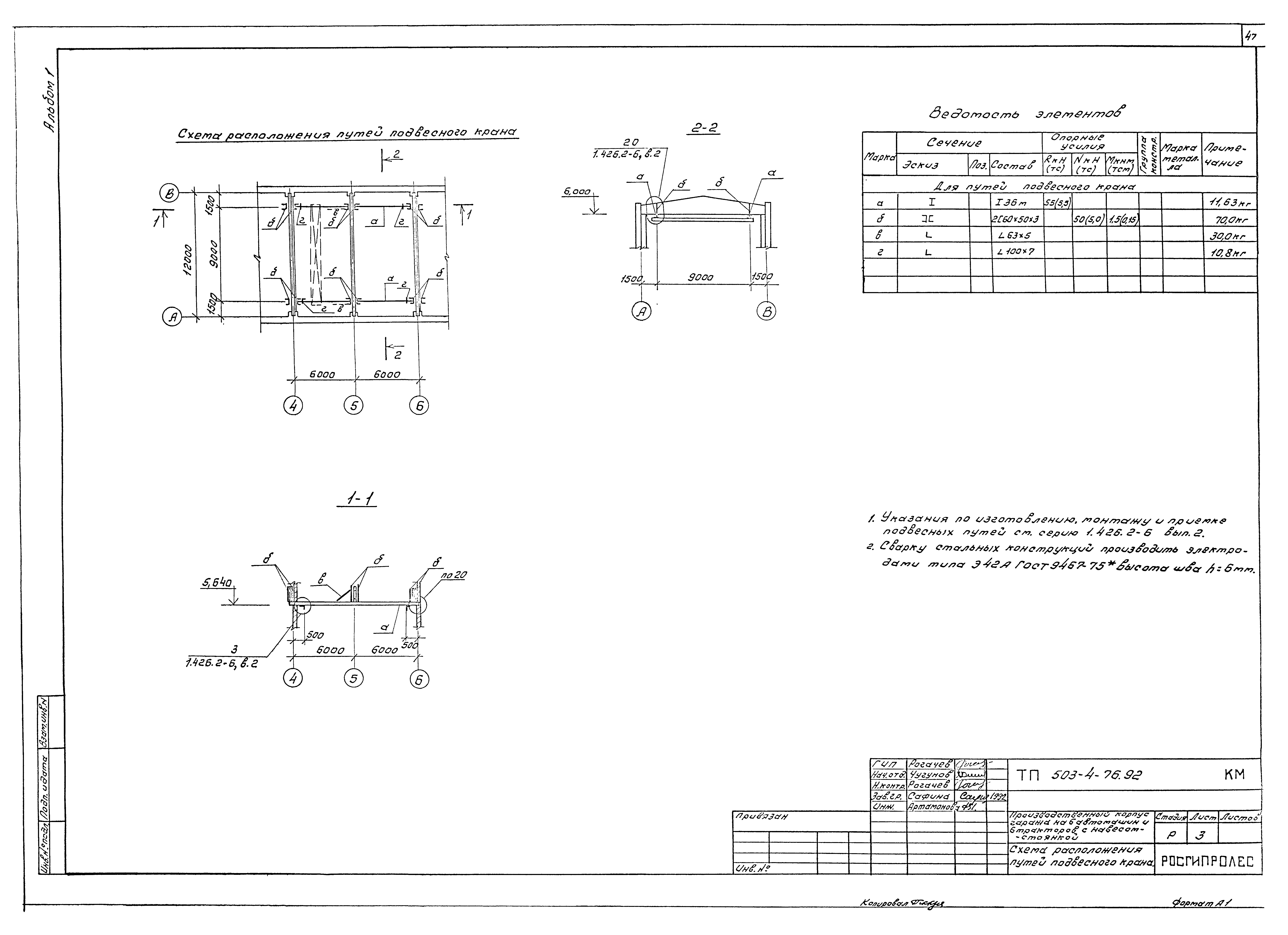
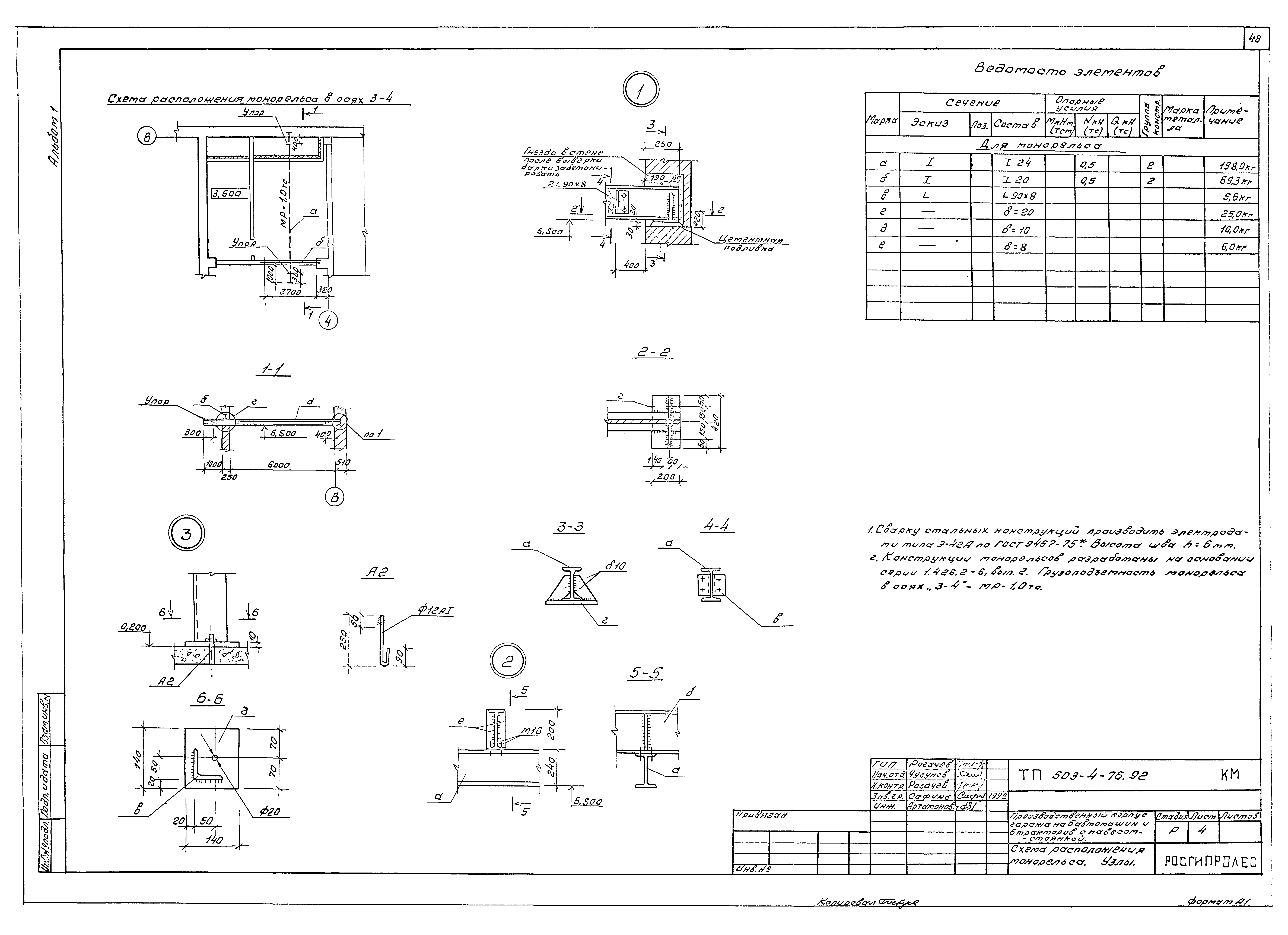
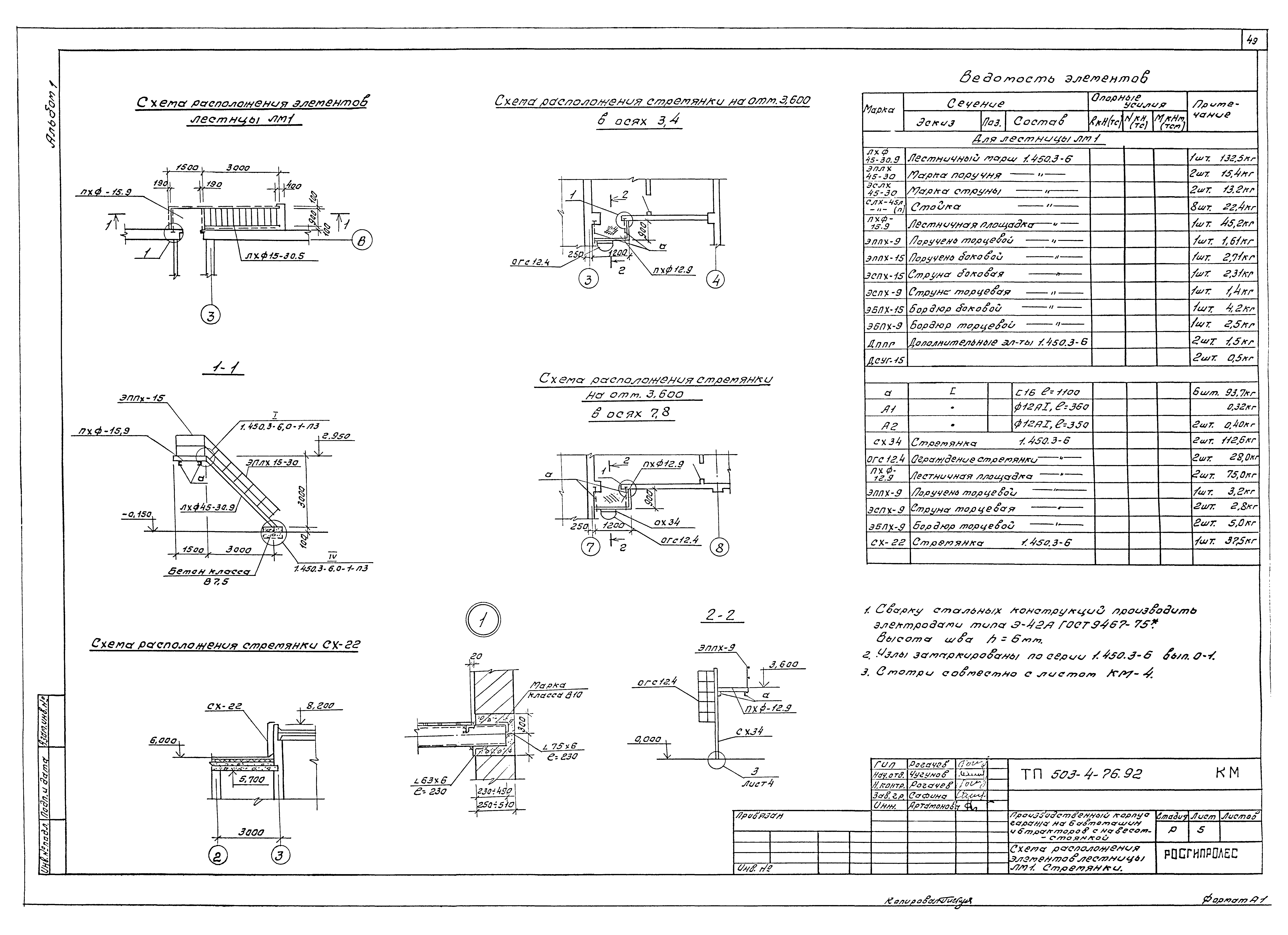
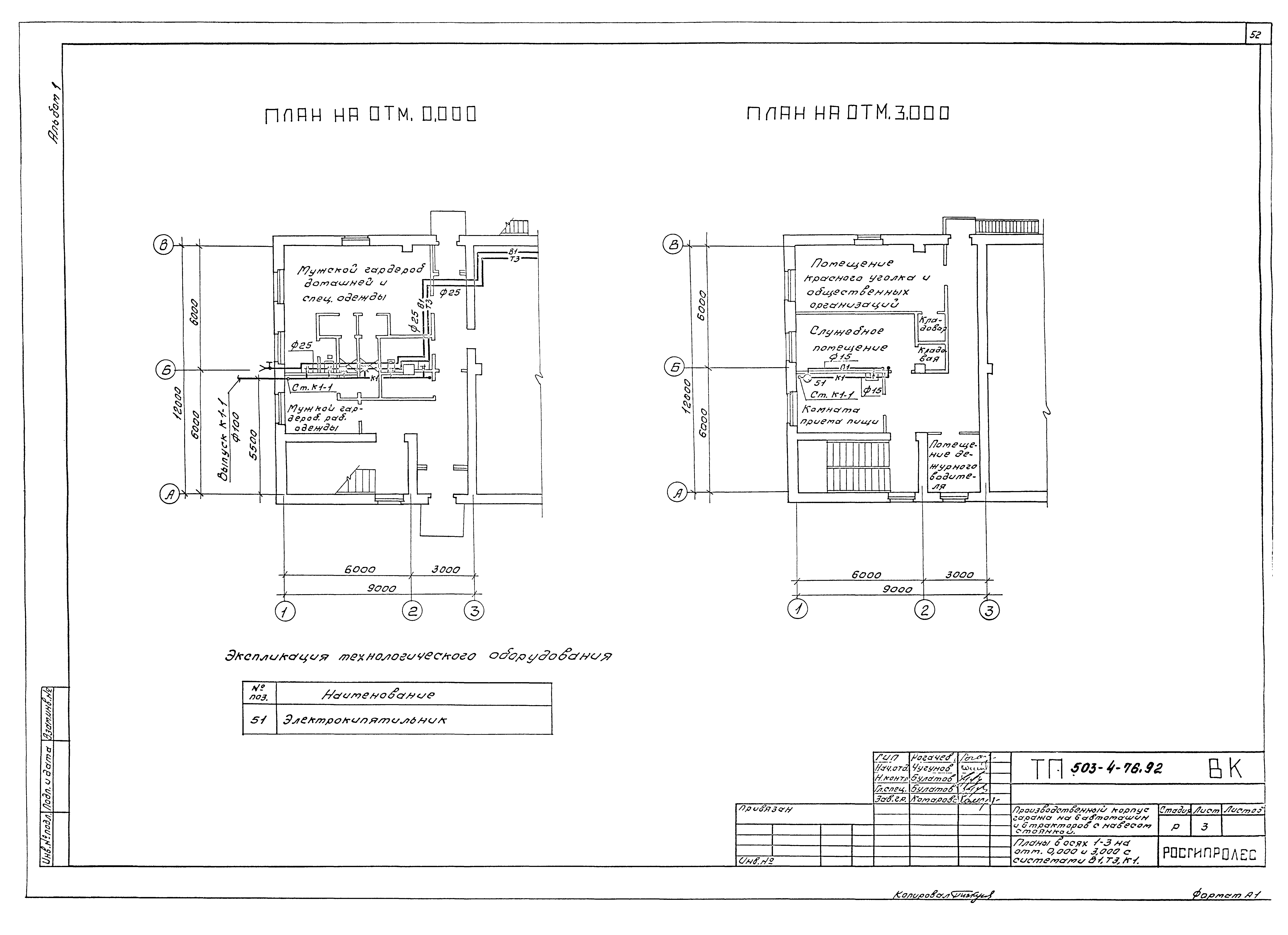
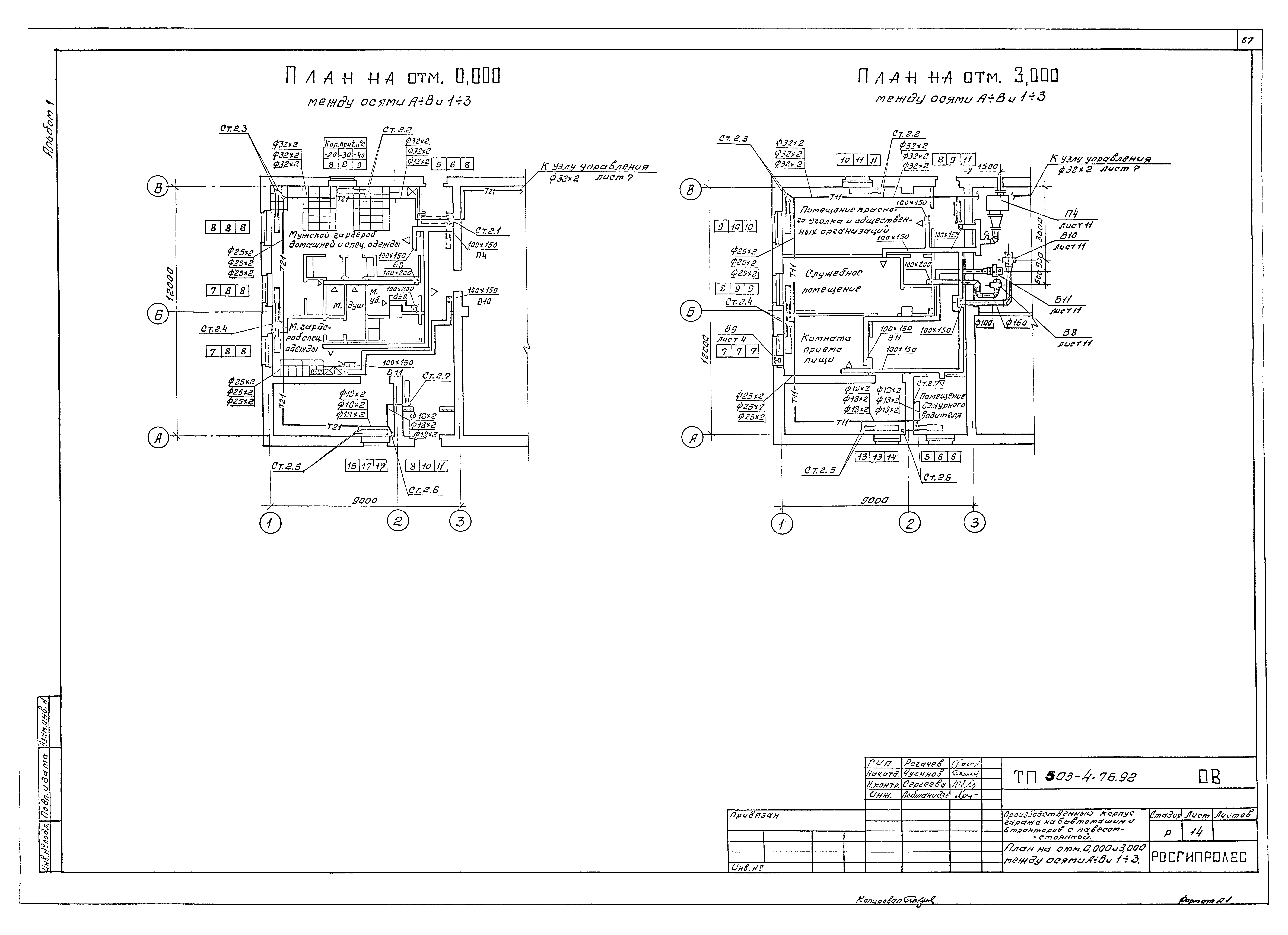
| Оглавление: | Содержание альбома Пояснительная записка Технология производства Общие данные Расположение технологического оборудования в осях 2 - 9 Перечень технологического оборудования Архитектурные решения Общие данные Планы на отм. 0.000 и 3.600 Вспомогательные помещения. Планы на отм. 0.000 и 3.000 Разрезы 1-1, 2-2, 3-3. Деталь козырька Детали планов и разрезов Фасады Фрагменты 1, 2, 3, 4 Планы расположения отверстий и ниш на отм. 0.000; 3.000 и 3.600 Планы полов и кровли. Экспликация полов Ведомость проемов ворот и дверей. Спецификация. Схемы Ведомость перемычек. Спецификация перемычек Ведомость перемычек. Спецификация перемычек для расчетной температуры минус 20 и минус 40 градусов Цельсия Конструкции железобетонные Общие данные Схема расположения фундаментов и фундаментных балок для tн = минус 20 и минус 30 градусов Цельсия Схема расположения фундаментов и фундаментных балок для tн = минус 40 градусов Цельсия Сечения 1-1 - 8-8. Узел 1 Узел 2, 3. Фундамент Фм8 Фундаменты Фм1, Фм2 Фундаменты Фм3, Фм4 Фундаменты Фм5, Фм6, Фм7 Схема расположения плит перекрытия каналов и приямка Схема расположения ремонтно-осмотровой канавы КС1 Ремонтно-осмотровая канава КС1. Разрезы 1-1 - 4-4. Узлы 1 - 5 Схема расположения колонн и балок покрытия Схема расположения плит покрытия. Разрезы 1-1 - 2-2 Схема расположения плит перекрытия. Монолитные участки МУ1, МУ2 Схема расположения элементов венткамер ВК1, ВК2 Узлы 1 - 4 Схема расположения элементов лестницы между осями 1 - 2 Конструкции металлические Общие данные Схема расположения путей подвесного крана Схема расположения монорельса. Узлы Схема расположения элементов лестницы ЛМ1. Стремянки Внутренние водопровод и канализация Общие данные План в осях 3 - 9 на отм. 0.000 с системами В1, Т3, К3 План в осях 1 - 3 на отм. 0.000 и 3.000 с системами В1, Т3, К1 Схемы систем В1, Т3, К1, К3 Отопление и вентиляция Общие данные Отопление и теплоснабжение. План на отм. 0.000 между осями А - В и 3 - 9. Планы на отм. 3.600 между осями 3 - 4 и 7 - 9 Вентиляция. План на отм. 0.000 между осями А - В и 3 - 9. Планы на отм. 3.600 между осями 3 - 4 и 7 - 9 Узел управления Схема системы отопления Схема системы теплоснабжения установок П1 - П4. Узлы 1 - 4 Схемы систем П1 - П3; В1 - В5; В7; ВЕ2 - ВЕ7 Установки систем П1, П4, В8, В10, В11 Установки систем П2, П3, В1, В2, В5, В6 Планы на отм. 0.000 и 3.000 между осями А - В и 1 - 3 Схема системы отопления 2. Схемы систем П4, В8, В10, В11, ВЕ8 Чертежи общих видов нетиповых конструкций Шланговый отсос для удаления выхлопных газов двигателей Воздуховод асбестоцементный |
| Разработан: | Росгипролес |
| Утверждён: | 15.10.1992 Росгипролес (59) |





































































