Скачать Серия 2.210-1 Выпуск 1. Цоколь и наружные стены подвалов каркасно-панельных зданийДата актуализации: 01.01.2021
|
| Обозначение: | Серия 2.210-1 |
| Обозначение англ: | Series 2.210-1 |
| Статус: | действует |
| Название рус.: | Выпуск 1. Цоколь и наружные стены подвалов каркасно-панельных зданий |
| Дата добавления в базу: | 01.10.2014 |
| Дата актуализации: | 01.01.2021 |
| Дата введения: | 12.08.1970 |
| Область применения: | В альбоме разработаны типовые детали цоколя и наружных стен подвала для решений зданий с полами по грунту, с техподпольем и с подвалом |
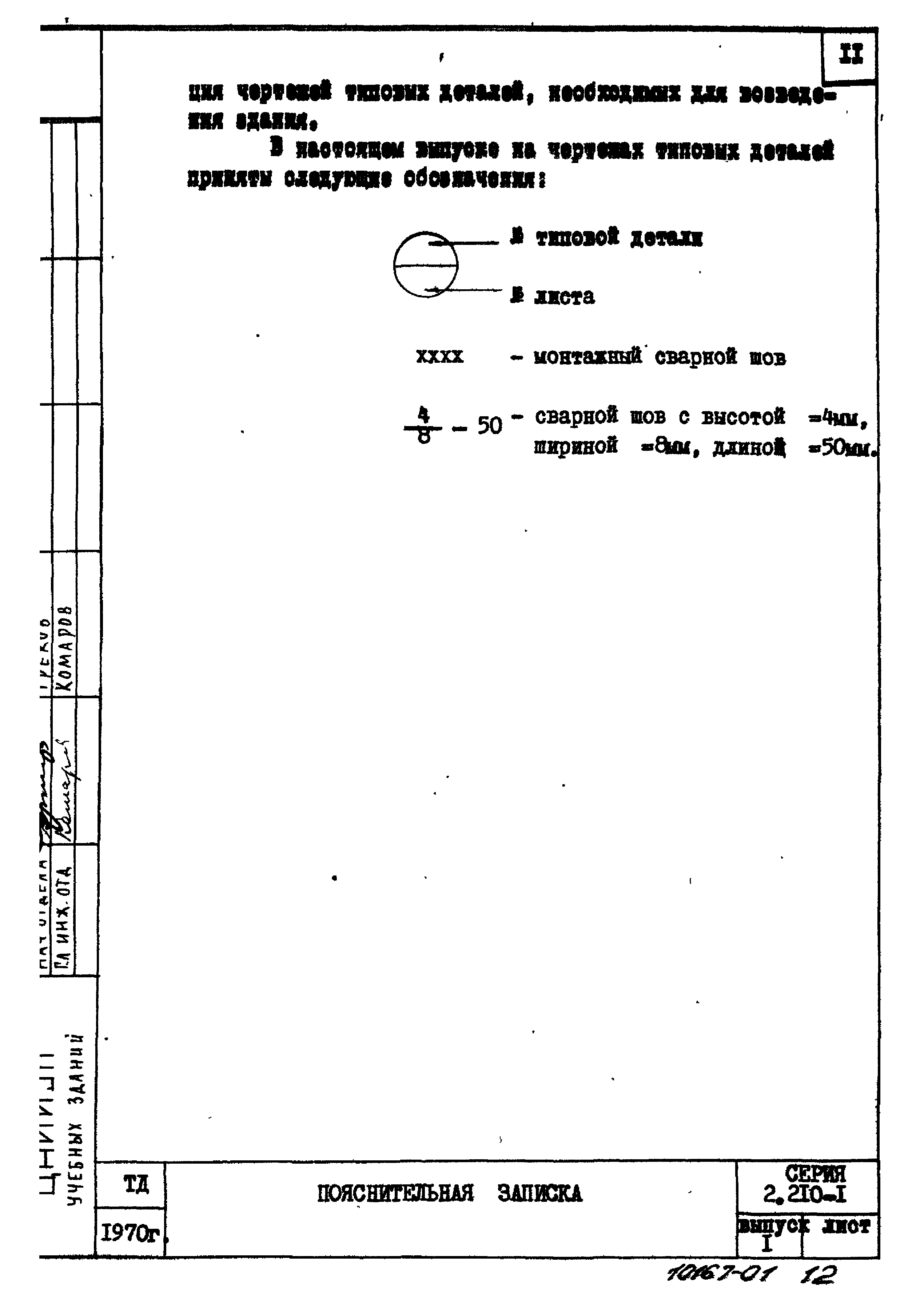
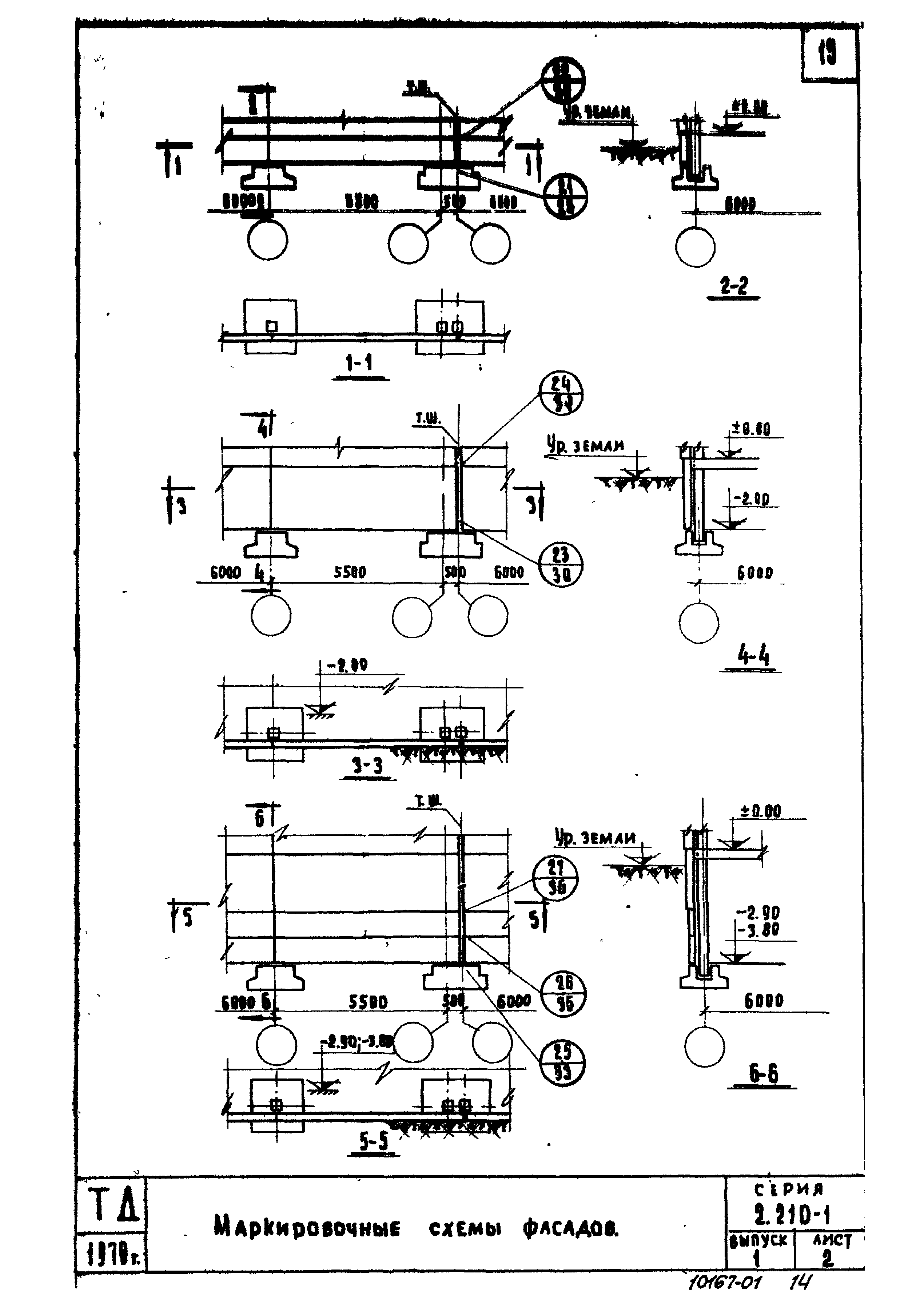
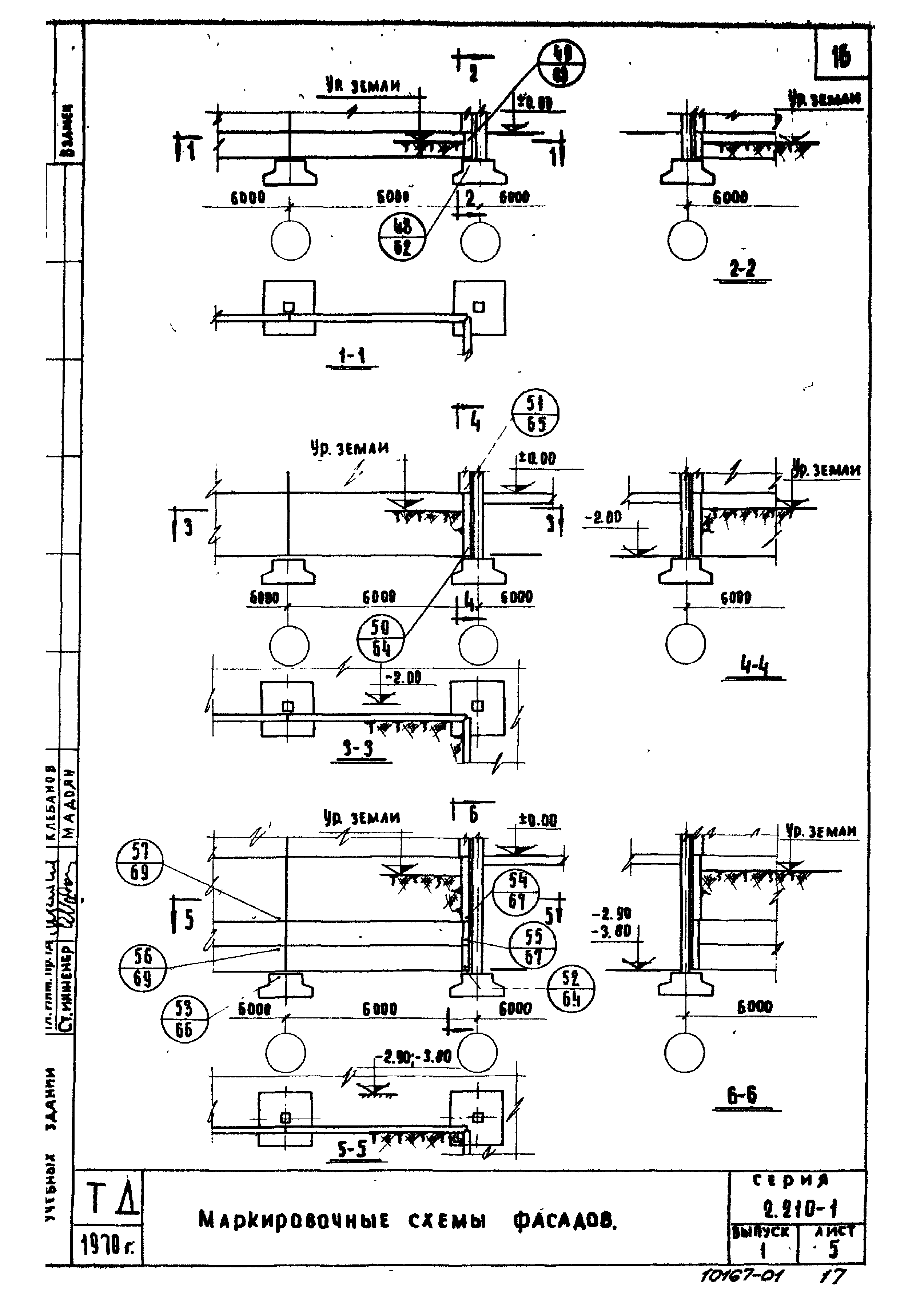
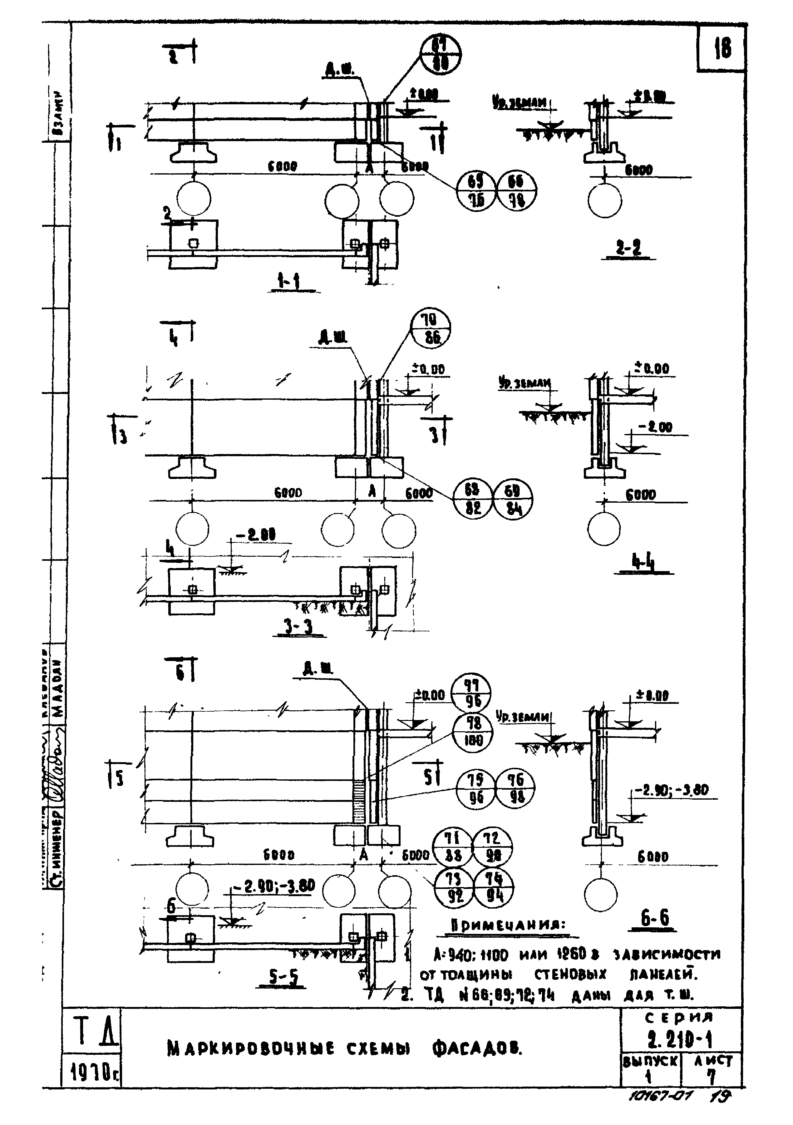
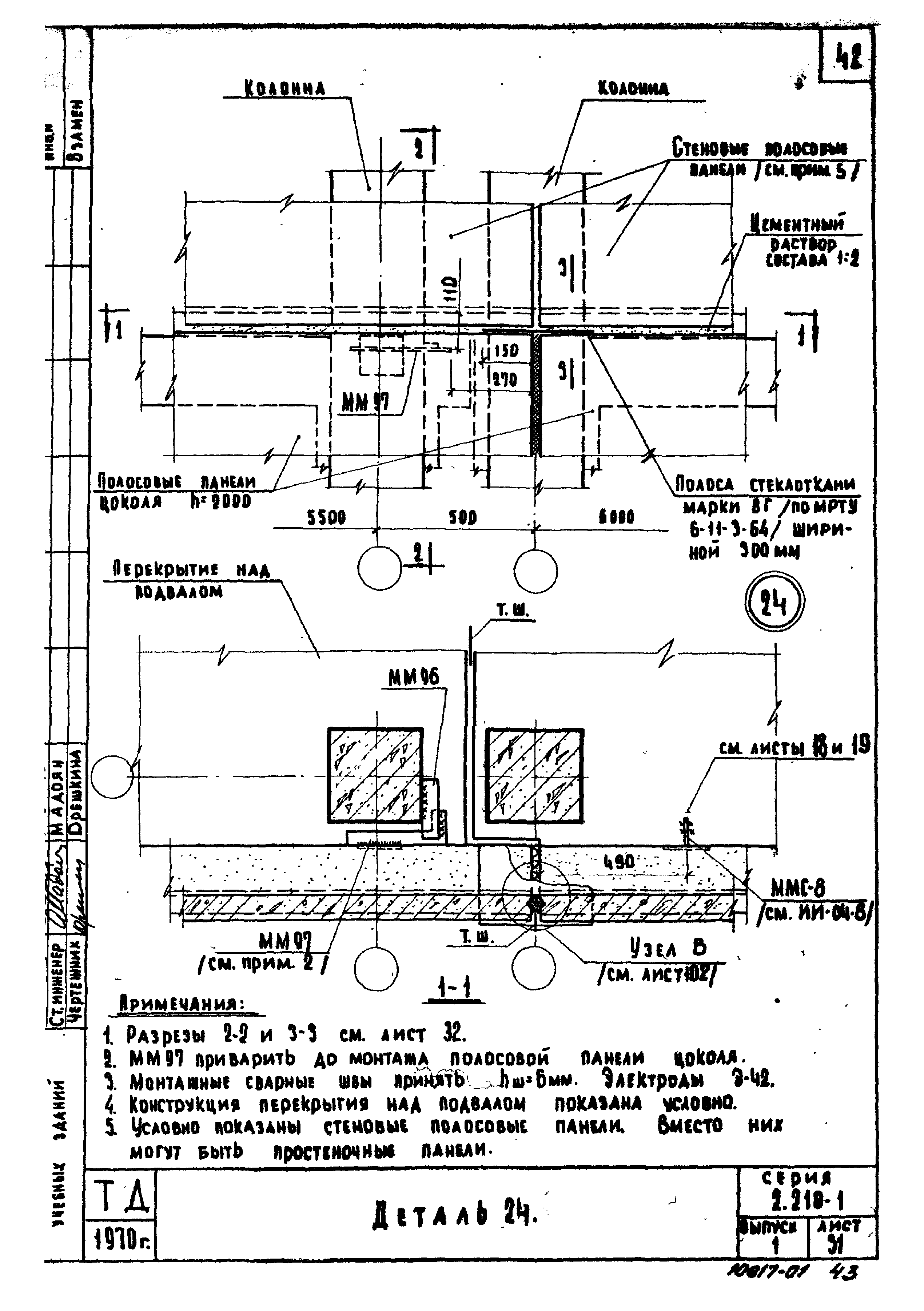
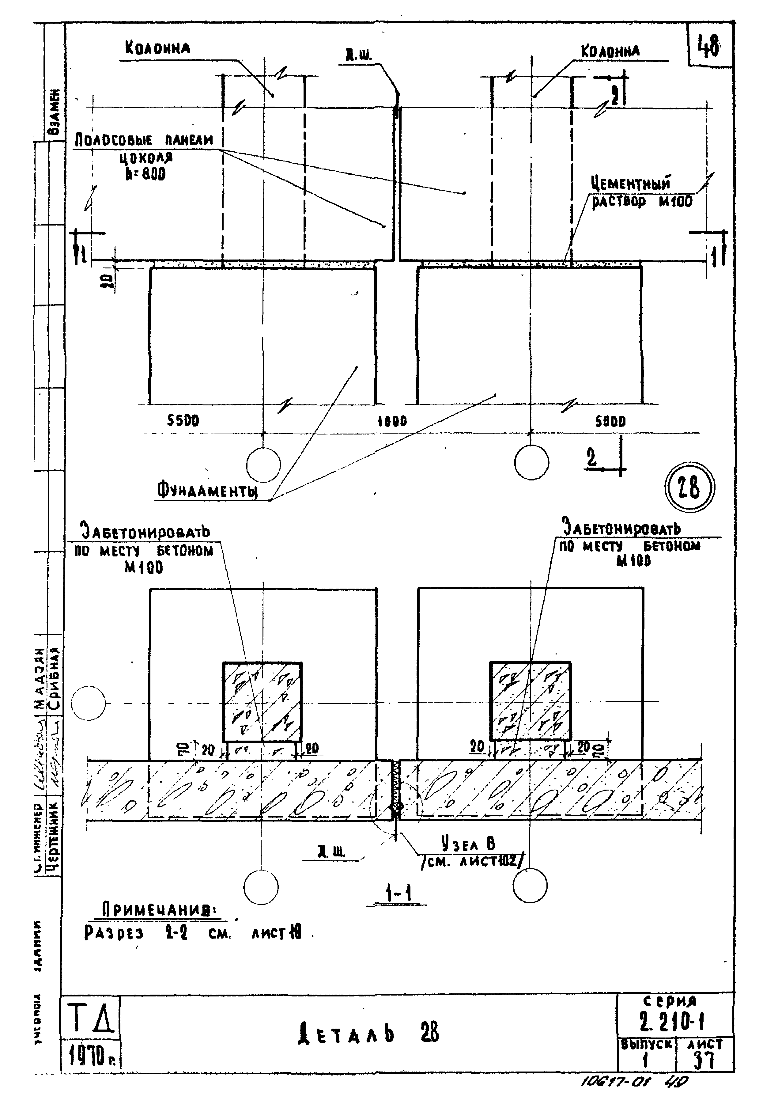
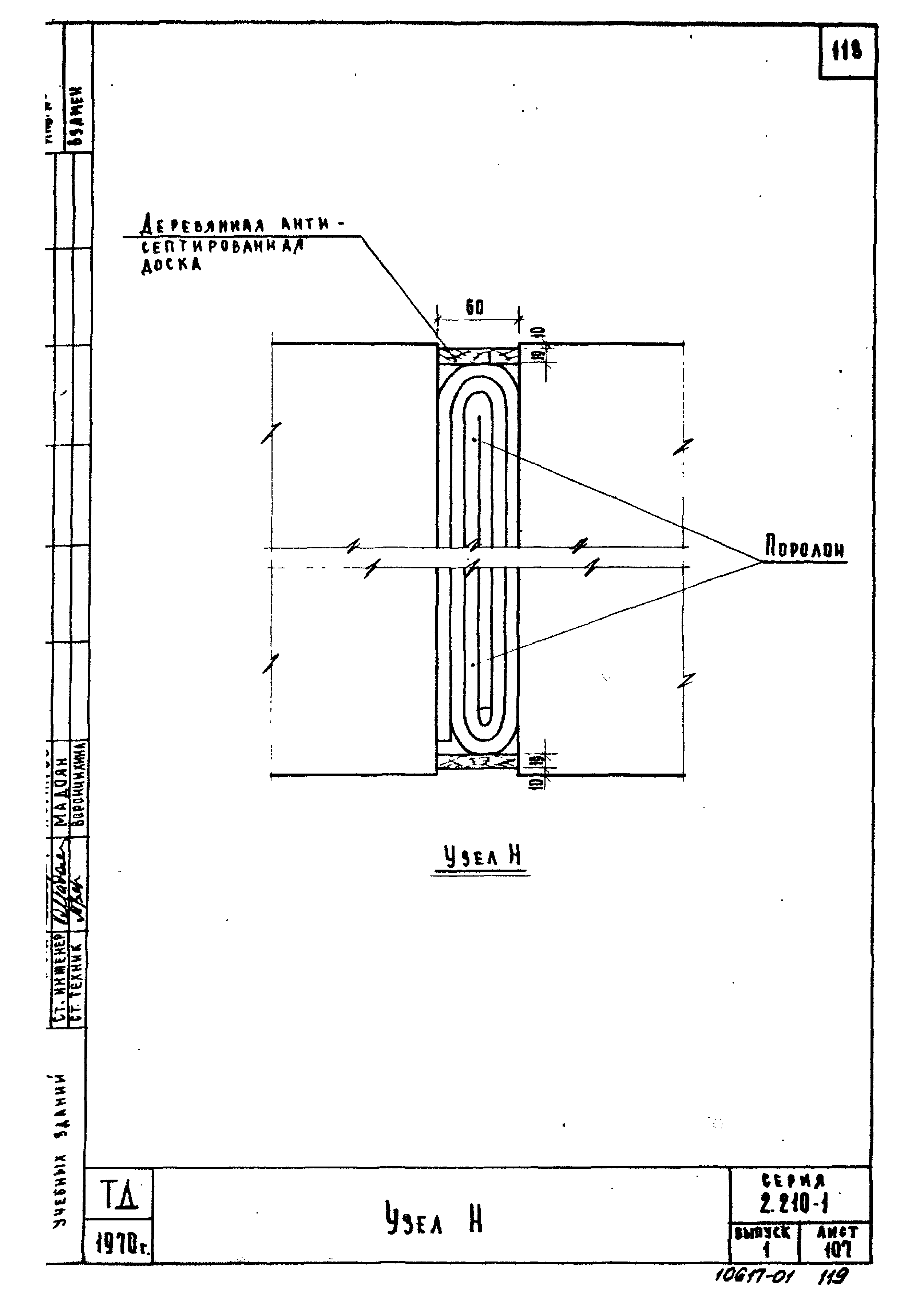
| Оглавление: | Содержание Пояснительная записка Маркировочные схемы фасадов Детали 1, 2, 7, 13 и 14 Деталь 3 Деталь 3. Разрез 2-2 Деталь 4 Деталь 5 Деталь 5. Разрезы 2-2 и 3-3 Деталь 6 Деталь 8 Деталь 8. Разрезы 2-2 и 3-3 Деталь 9 Деталь 10 Деталь 11 Деталь 12 Деталь 12. Разрезы 4-4 и 5-5 Деталь 15 Деталь 16 Детали 17 и 19 Деталь 17. Разрезы 2-2 и 3-3 Деталь 19. Разрезы 2-2 и 3-3 Детали 18 и 20 Деталь 21 Деталь 22 Деталь 23 Деталь 24 Деталь 24. Разрезы 2-2 и 3-3 Деталь 25 Деталь 25. Разрез 4-4 Деталь 26 Деталь 27 Деталь 28 Деталь 29 Деталь 30 Деталь 31 Деталь 32 Деталь 33 Деталь 34 Деталь 34. Разрез 4-4 Деталь 35 Деталь 35. Разрез 4-4 Деталь 36 Деталь 37 Деталь 38 Деталь 39 Деталь 40 Деталь 40. Разрезы 3-3 и 4-4 Деталь 41 Деталь 42 Деталь 43 Деталь 43. Разрезы 3-3 и 4-4 Деталь 44 Деталь 45 Деталь 46 Деталь 47 Деталь 47. Разрезы 3-3 и 4-4 Деталь 48 Деталь 49 Детали 50 и 52 Деталь 51 Деталь 53 Детали 54 и 55 Детали 54 и 55. Разрезы 2-2 и 3-3 Детали 56 и 57 Деталь 58 Деталь 59 Детали 60 и 62 Деталь 61 Детали 63 и 64 Детали 63 и 64. Разрез 2-2 Деталь 65 Деталь 65. Разрез 1-1 Деталь 66 Деталь 66. Разрез 1-1 Деталь 67 Деталь 67. Разрез 1-1 Деталь 68 Деталь 68. Разрез 1-1 Деталь 69 Деталь 69. Разрез 1-1 Деталь 70 Деталь 70. Разрез 1-1 Деталь 71 Деталь 71. Разрез 1-1 Деталь 72 Деталь 72. Разрез 1-1 Деталь 73 Деталь 73. Разрез 1-1 Деталь 74 Деталь 74. Разрез 1-1 Детали 75 и 77 Детали 75 и 77. Разрез 1-1 Деталь 76 Деталь 76. Разрез 1-1 Деталь 78 Узлы А и Б Узлы В и Г Узлы Д, Е и Ж Узел И Узел К Узлы Л и М Узел Н Устройство окрасочной гидроизоляции Монтажные металлические детали |
| Разработан: | ЦНИИЭП учебных зданий |
| Утверждён: | 12.08.1970 Государственный комитет по гражданскому строительству и архитектуре при Госстрое СССР (127) |
| Нормативные ссылки: |
|
























































































































