Скачать Серия 5.904-12 Выпуск 1-20/90. Калориферная секция для приточной камеры 2ПК80. Рабочие чертежиДата актуализации: 01.01.2021
|
| Обозначение: | Серия 5.904-12 |
| Обозначение англ: | Series 5.904-12 |
| Статус: | заменен |
| Название рус.: | Выпуск 1-20/90. Калориферная секция для приточной камеры 2ПК80. Рабочие чертежи |
| Дата добавления в базу: | 01.10.2014 |
| Дата актуализации: | 01.01.2021 |
| Дата введения: | 24.05.1990 |
| Дата окончания срока действия: | 01.06.1994 |
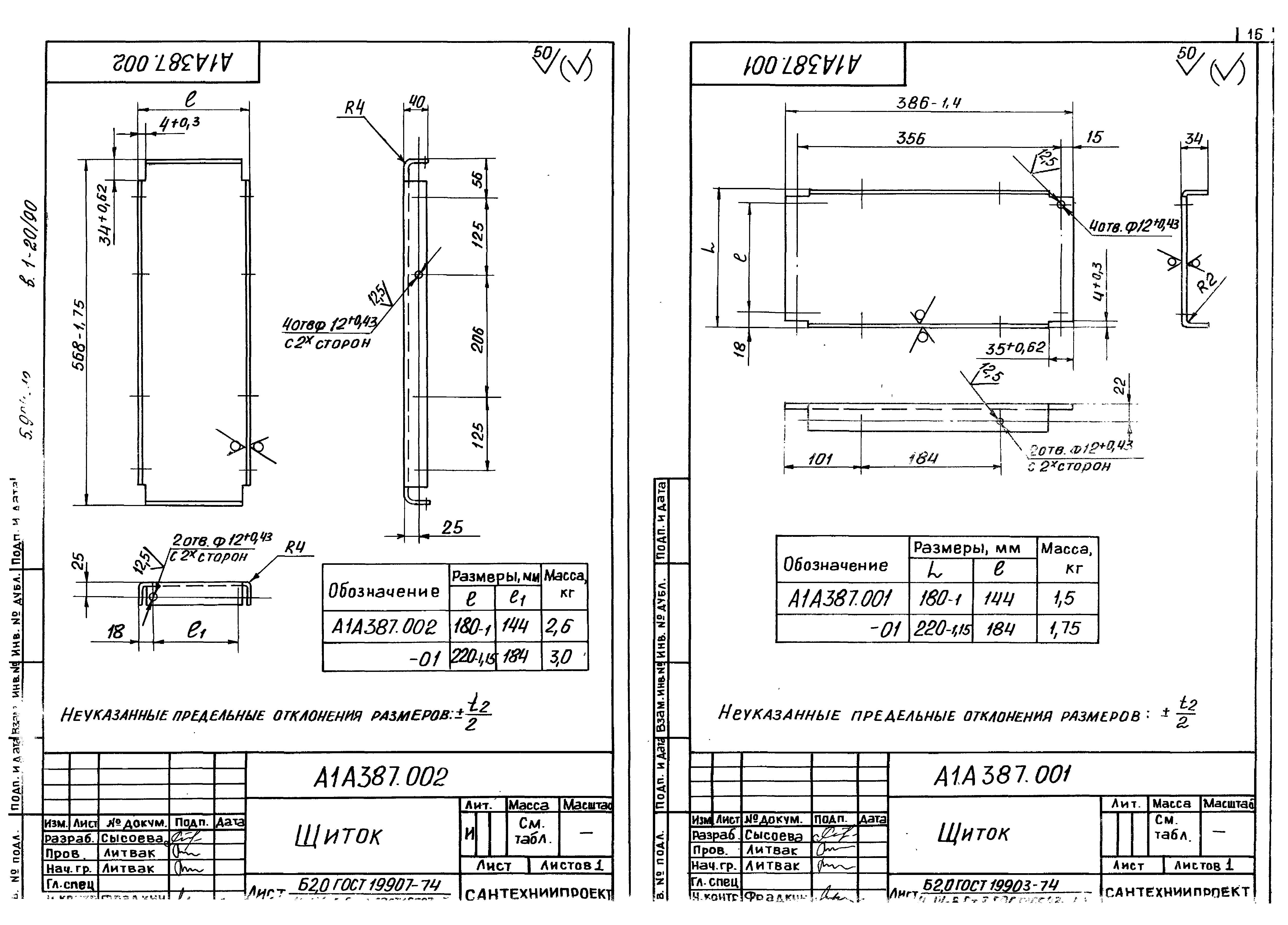
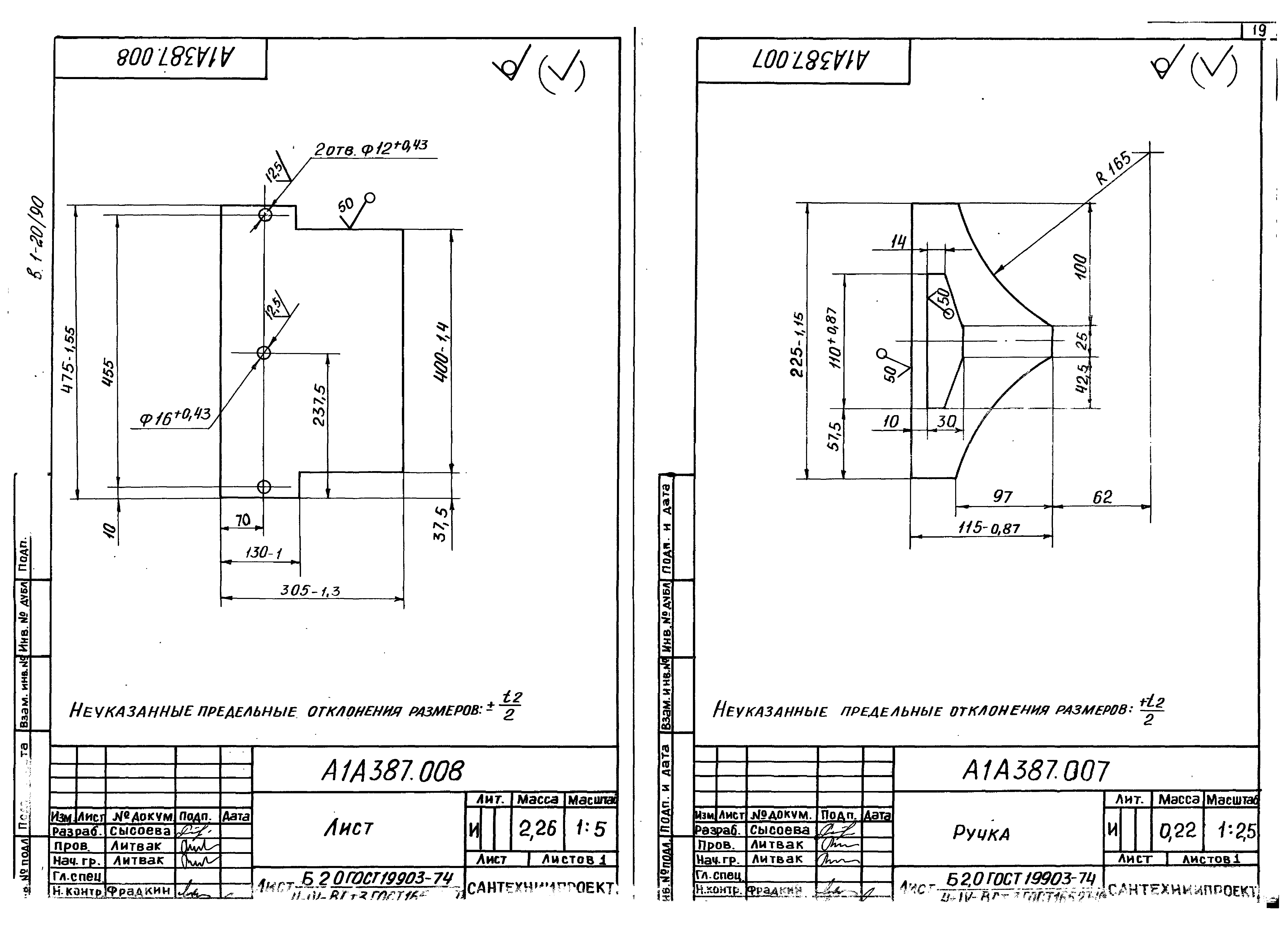
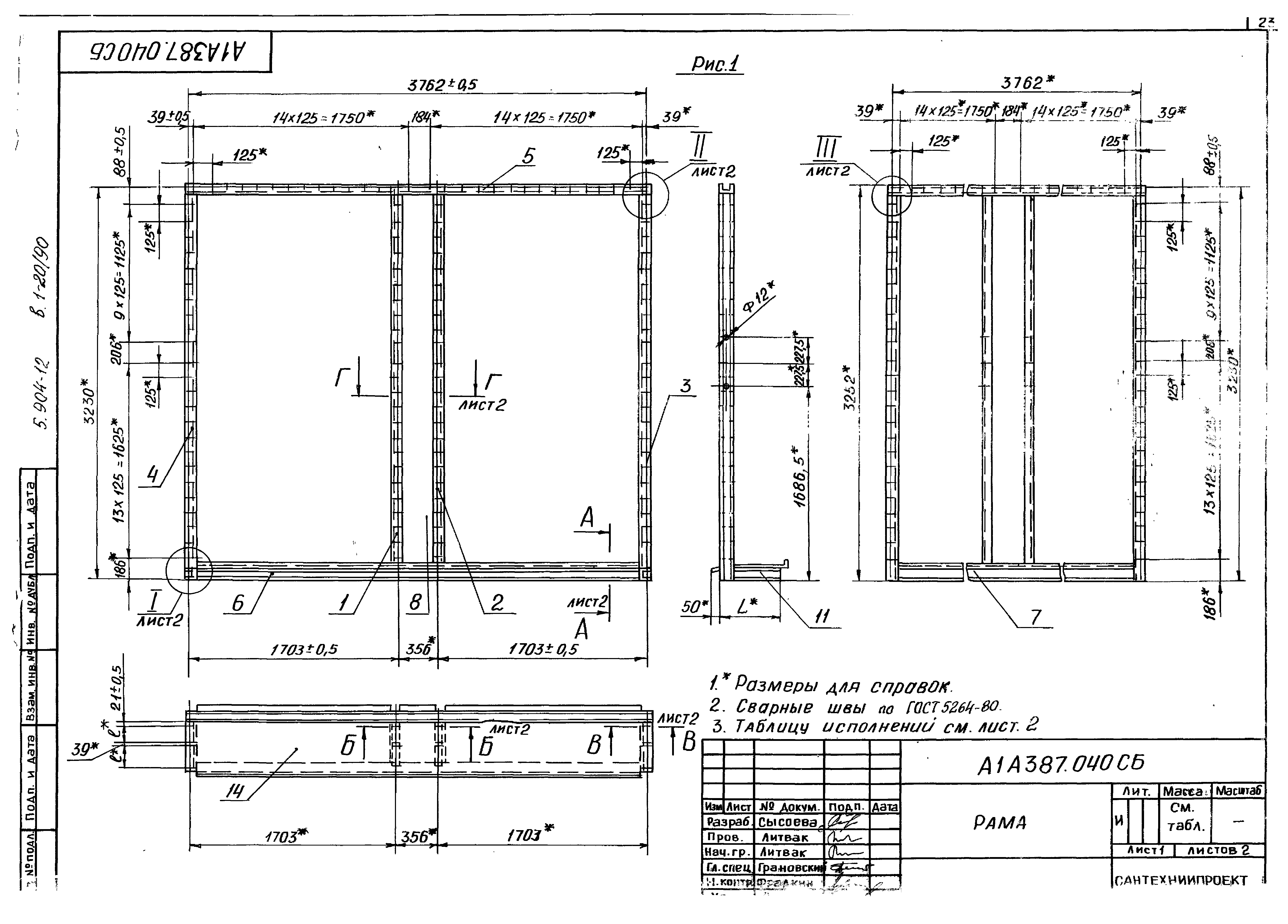
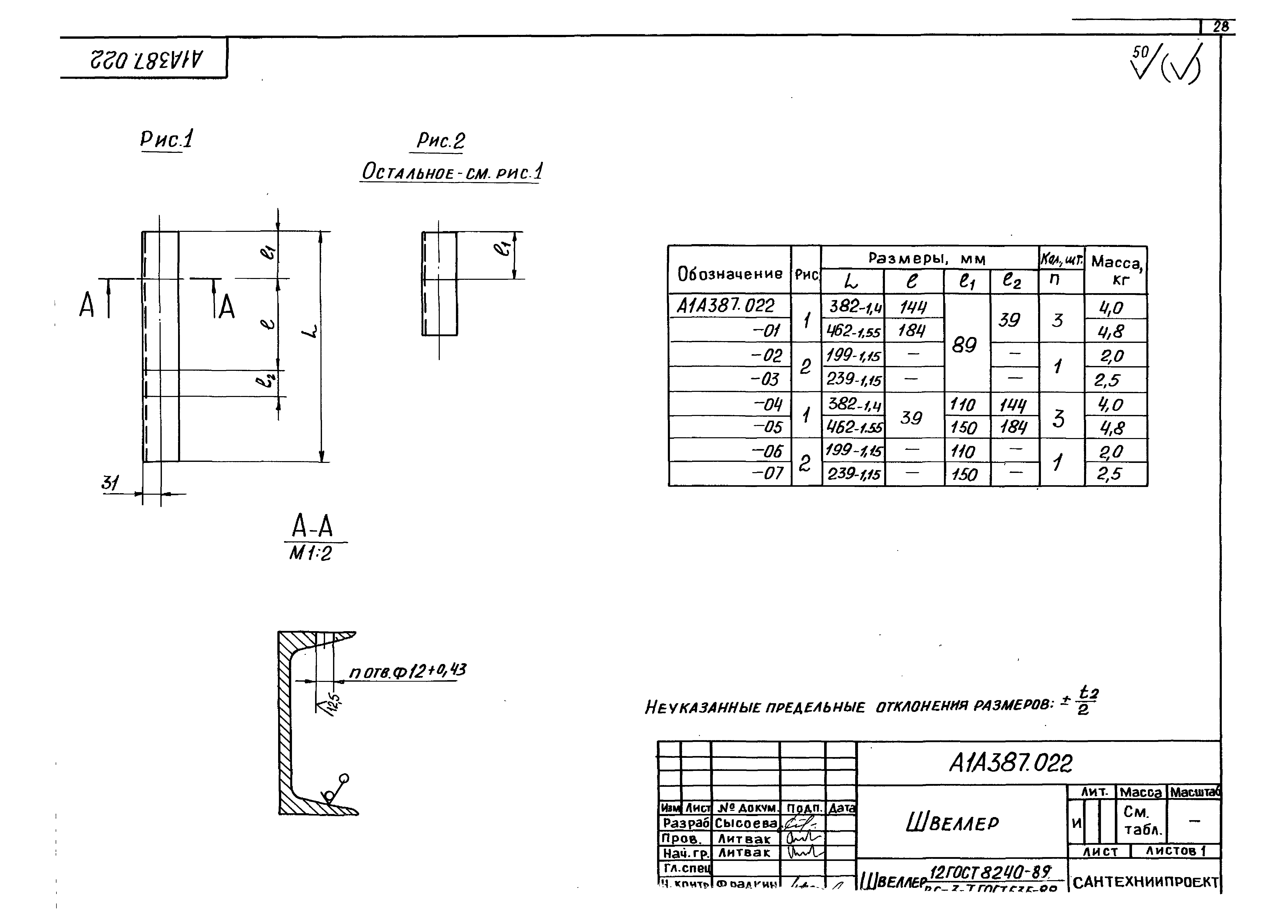
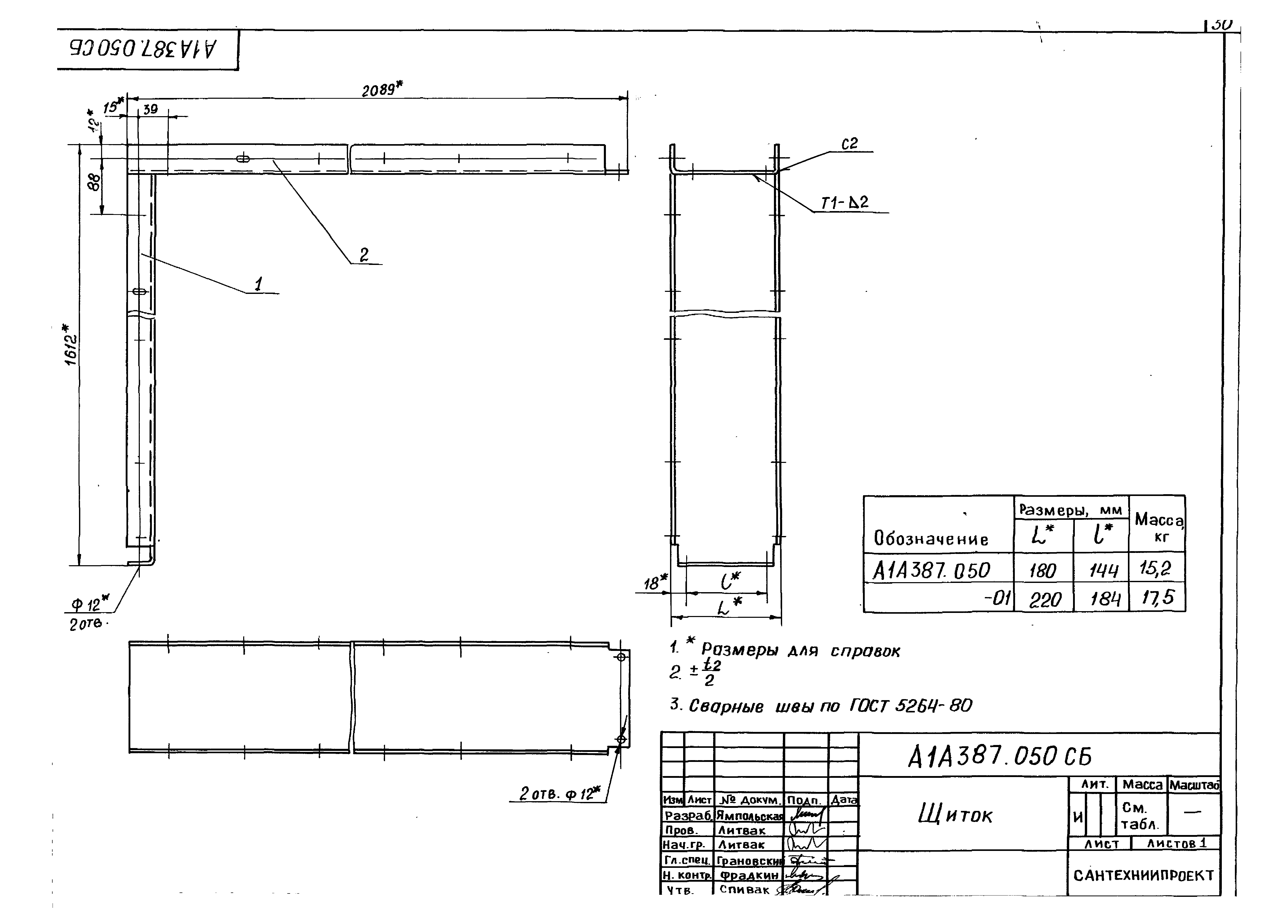
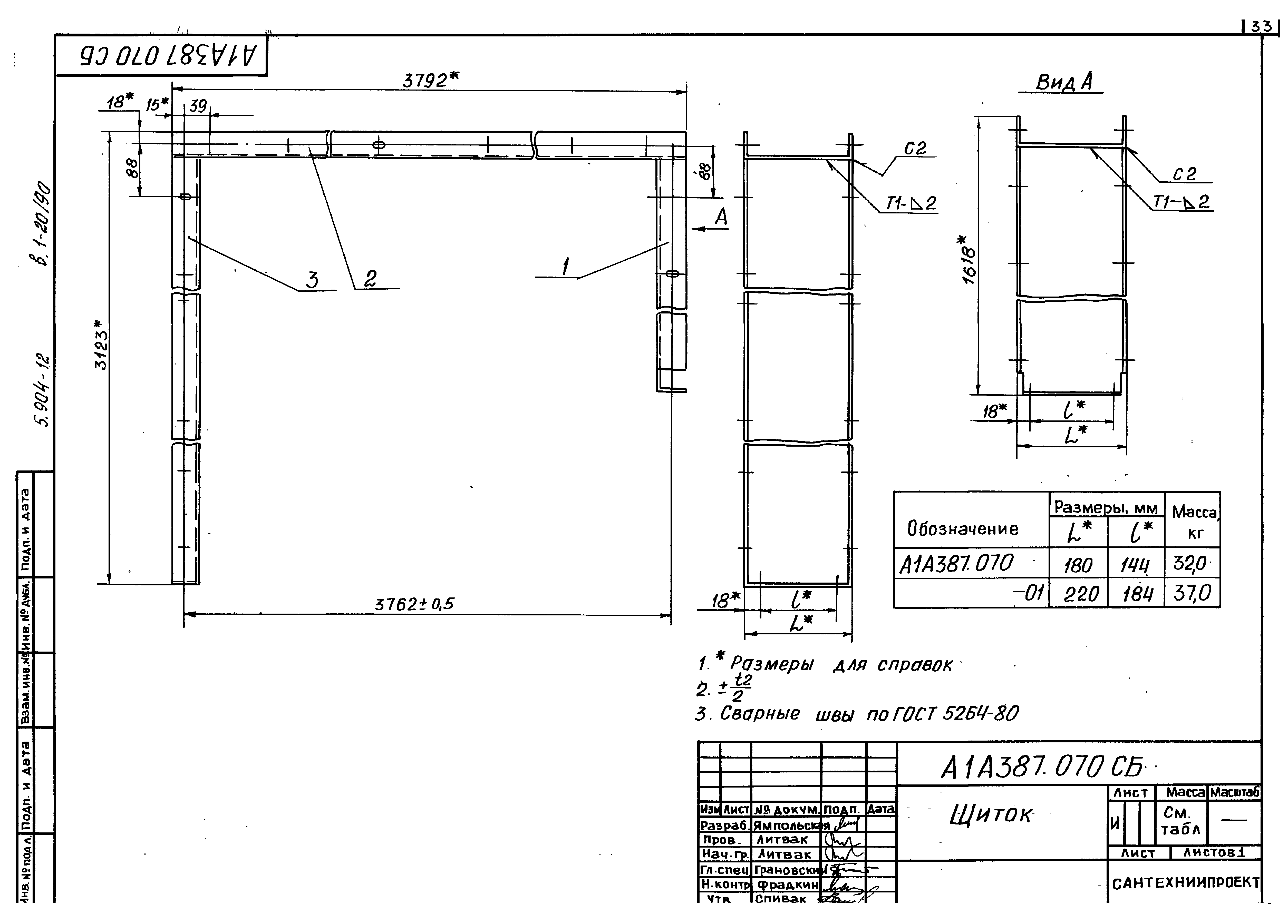
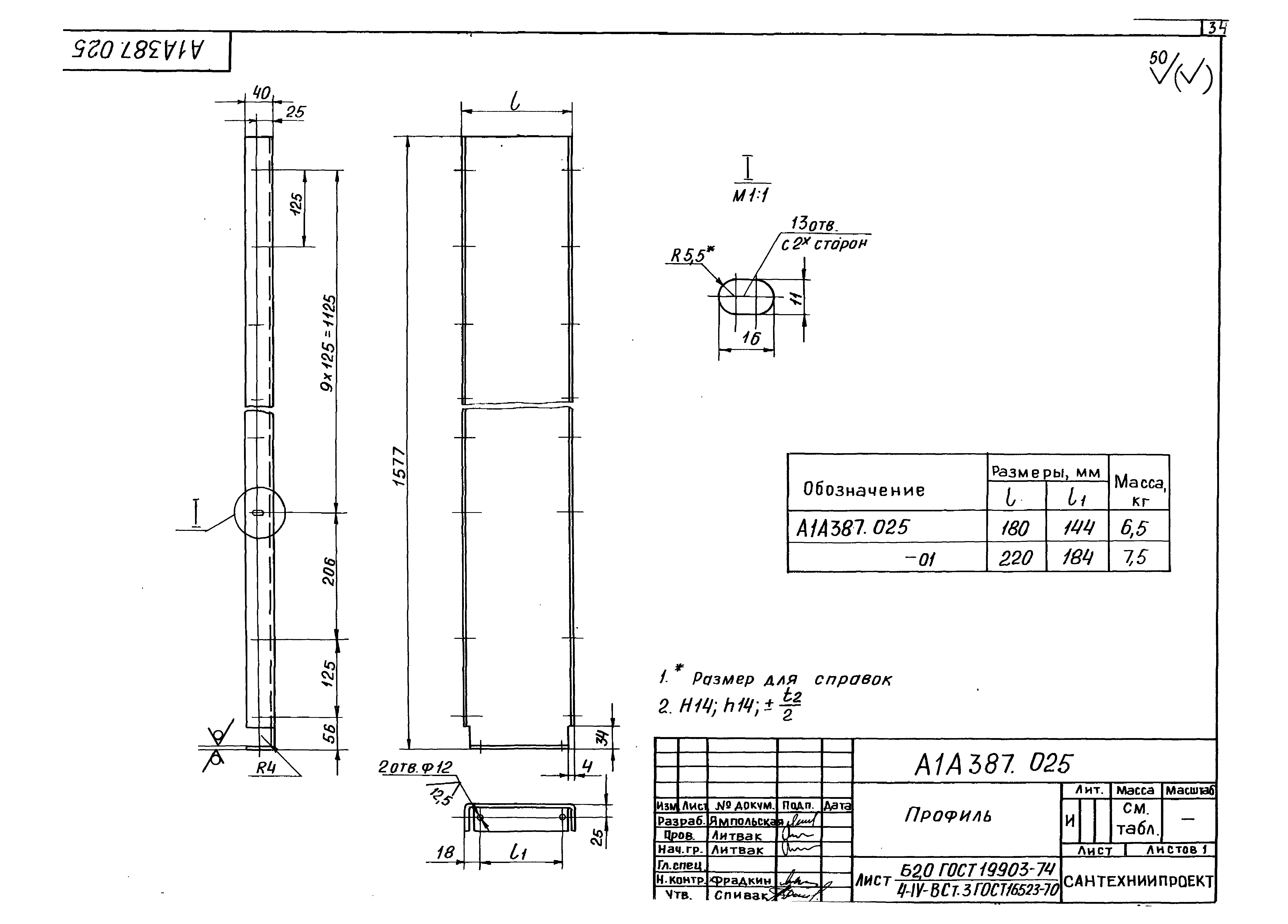
| Оглавление: | Содержание А1А387.000Д Секция калориферная для приточной камеры 2ПК80. Технические требования А1А387.000 Секция калориферная для приточной камеры 2ПК80 А1А387.010 Элемент регулирующий А1А387.000СБ Секция калориферная для приточной камеры 2ПК80 А1А387.001 Щиток А1А387.002 Щиток А1А387.020 Корпус А1А387.030 Щиток А1А387.010СБ Элемент регулирующий А1А387.020СБ Корпус А1А387.005 Стенка А1А387.006 Планка А1А387.007 Ручка А1А387.008 Лист А1А387.009 Лист А1А387.019 Лист А1А387.040 Рама А1А387.050 Щиток А1А387.040СБ Рама А1А387.014 Швеллер А1А387.015 Швеллер А1А387.016 Швеллер А1А387.021 Швеллер А1А387.022 Швеллер А1А387.023 Лист А1А387.050СБ Щиток А1А387.060 Щиток А1А387.070 Щиток А1А387.060СБ Щиток А1А387.070СБ Щиток А1А387.025 Профиль А1А387.026 Профиль А1А387.027 Профиль А1А387.028 Профиль |
| Разработан: | ГПКНИИ Сантехниипроект Госстроя СССР |
| Утверждён: | 24.05.1990 ГПКНИИ Сантехниипроект Госстроя СССР (25) |
| Издан: | АПП ЦИТП (1991 г. ) |
| Чем заменён: |




































