Скачать Типовой проект Серия 97 97.89-ИЖ2.1-3. Выпуск 1. Панели внутренних стенДата актуализации: 01.01.2021
|
| Обозначение: | Типовой проект Серия 97 |
| Обозначение англ: | Серия 97 |
| Статус: | не определен законодательством |
| Название рус.: | 97.89-ИЖ2.1-3. Выпуск 1. Панели внутренних стен |
| Дата добавления в базу: | 01.10.2014 |
| Дата актуализации: | 01.01.2021 |
| Дата введения: | 01.08.1990 |
| Дата окончания срока действия: | 30.06.2003 |
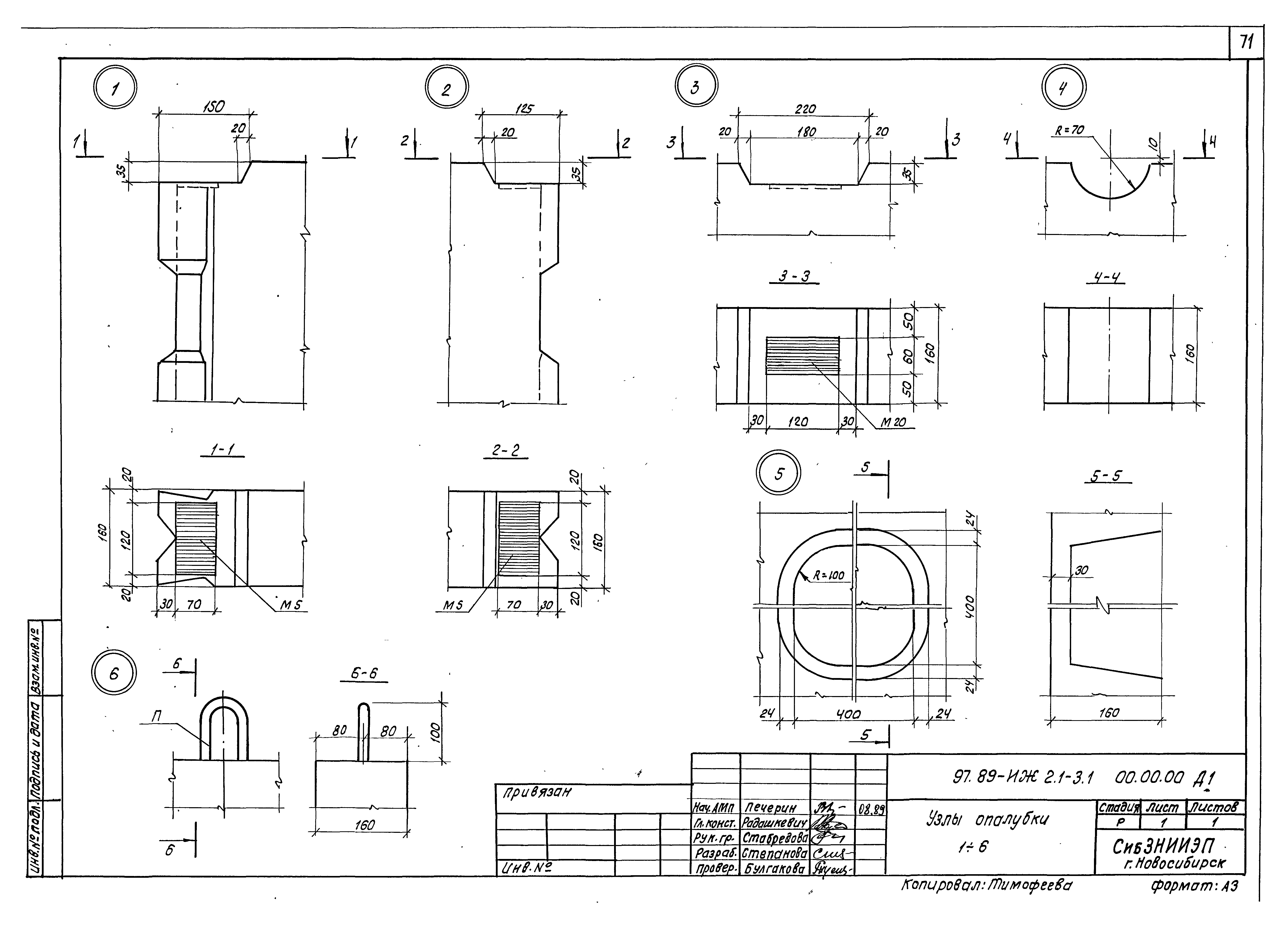
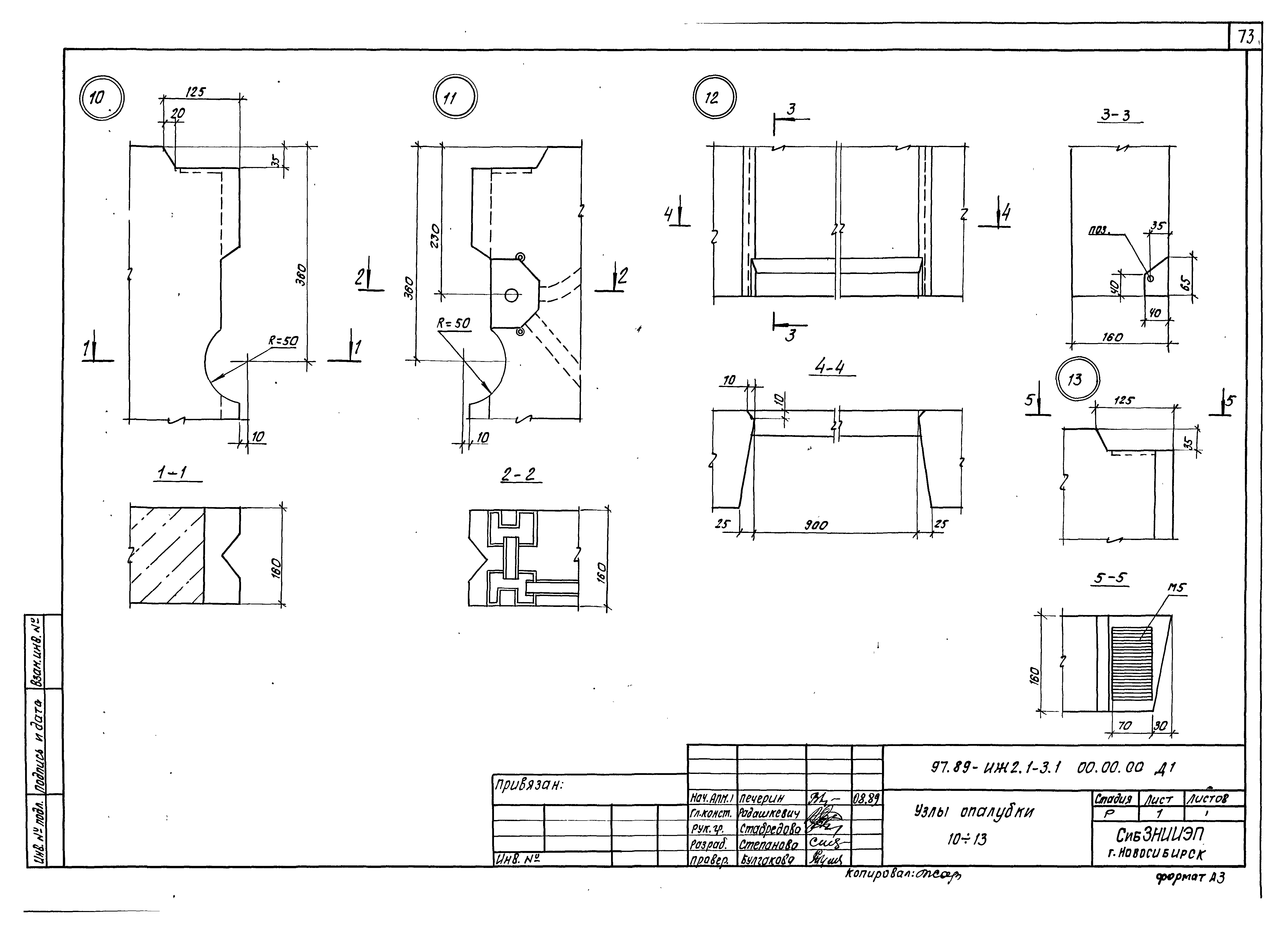
| Оглавление: | Содержание Техническое описание Номенклатура изделий Панели внутренние стеновые. Каркасы пространственные Панели внутренние цокольные. Каркасы пространственные Узлы опалубки Шпонки Узлы армирования Каркасы Трубы полиэтиленовые Ведомость расхода стали |
| Разработан: | СибЗНИИЭП |
| Утверждён: | 01.08.1990 СибЗНИИЭП |
| Принят: | НИИЖБ Госстроя СССР (NIIZhB, USSR Gosstroy ) |











































































































