Скачать Типовой проект 411-2-170.86 Альбом I. Общая пояснительная записка. Технология производстваДата актуализации: 01.01.2021
|
| Обозначение: | Типовой проект 411-2-170.86 |
| Обозначение англ: | 411-2-170.86 |
| Статус: | не определен законодательством |
| Название рус.: | Альбом I. Общая пояснительная записка. Технология производства |
| Дата добавления в базу: | 01.10.2014 |
| Дата актуализации: | 01.01.2021 |
| Дата введения: | 25.07.1986 |
| Дата окончания срока действия: | 30.06.2003 |
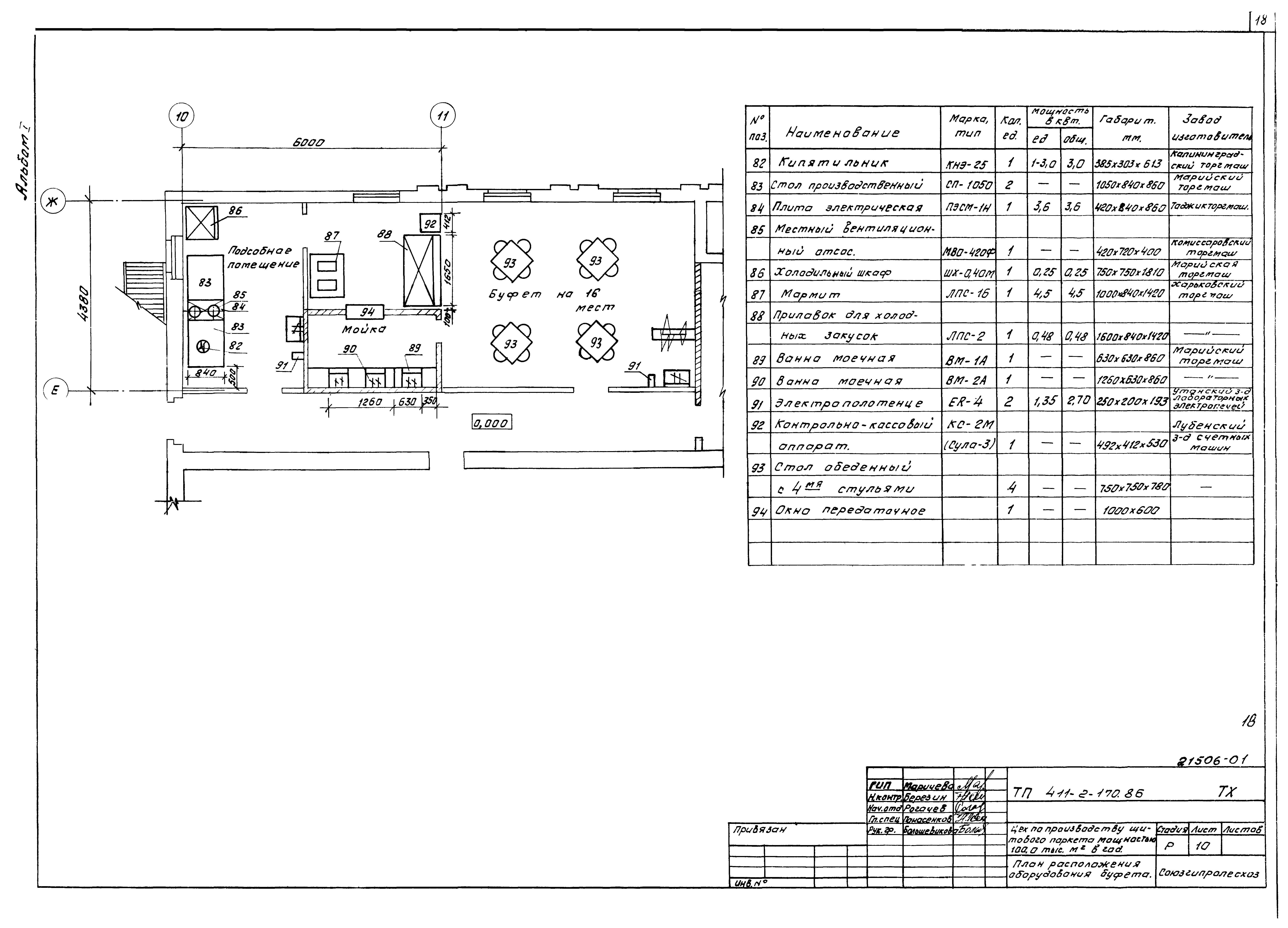
| Оглавление: | Содержание альбома Пояснительная записка Технология производства Общие данные Описание технологического процесса План расположения технологического оборудования в осях 1 - 9 План расположения технологического оборудования в осях 9 - 17 Расположение технологического оборудования. Разрез 1-1, 2-2 Перечень технологического оборудования План расположения оборудования буфета Разводка сжатого воздуха. План. Спецификация потребителей Схема разводки сжатого воздуха. Узлы и спецификация Околопрессовая механизация. Монтажный чертеж. План фундаментных болтов Конвейер ленточный 5040-60 для отходов. Монтажный чертеж Конвейер ленточный 5040-60 для отходов. Сечения. Спецификация Конвейер ленточный 5040-60 для отходов. Сечения Механизмы закрывания бункера для кусковых отходов Технологическое пароснабжение. План на отм. 0.000. Схема. Узел управления №2 |
| Разработан: | Союзгипролесхоз |
| Утверждён: | 18.12.1985 Гослесхоз СССР (USSR Gosleskhoz 23) |
| Заменяет собой: |
|



























