Скачать Типовой проект 411-2-170.86 Альбом III. Внутренние водопровод и канализация. Отопление и вентиляцияДата актуализации: 01.01.2021
|
| Обозначение: | Типовой проект 411-2-170.86 |
| Обозначение англ: | 411-2-170.86 |
| Статус: | не определен законодательством |
| Название рус.: | Альбом III. Внутренние водопровод и канализация. Отопление и вентиляция |
| Дата добавления в базу: | 01.10.2014 |
| Дата актуализации: | 01.01.2021 |
| Дата введения: | 25.07.1986 |
| Дата окончания срока действия: | 30.06.2003 |
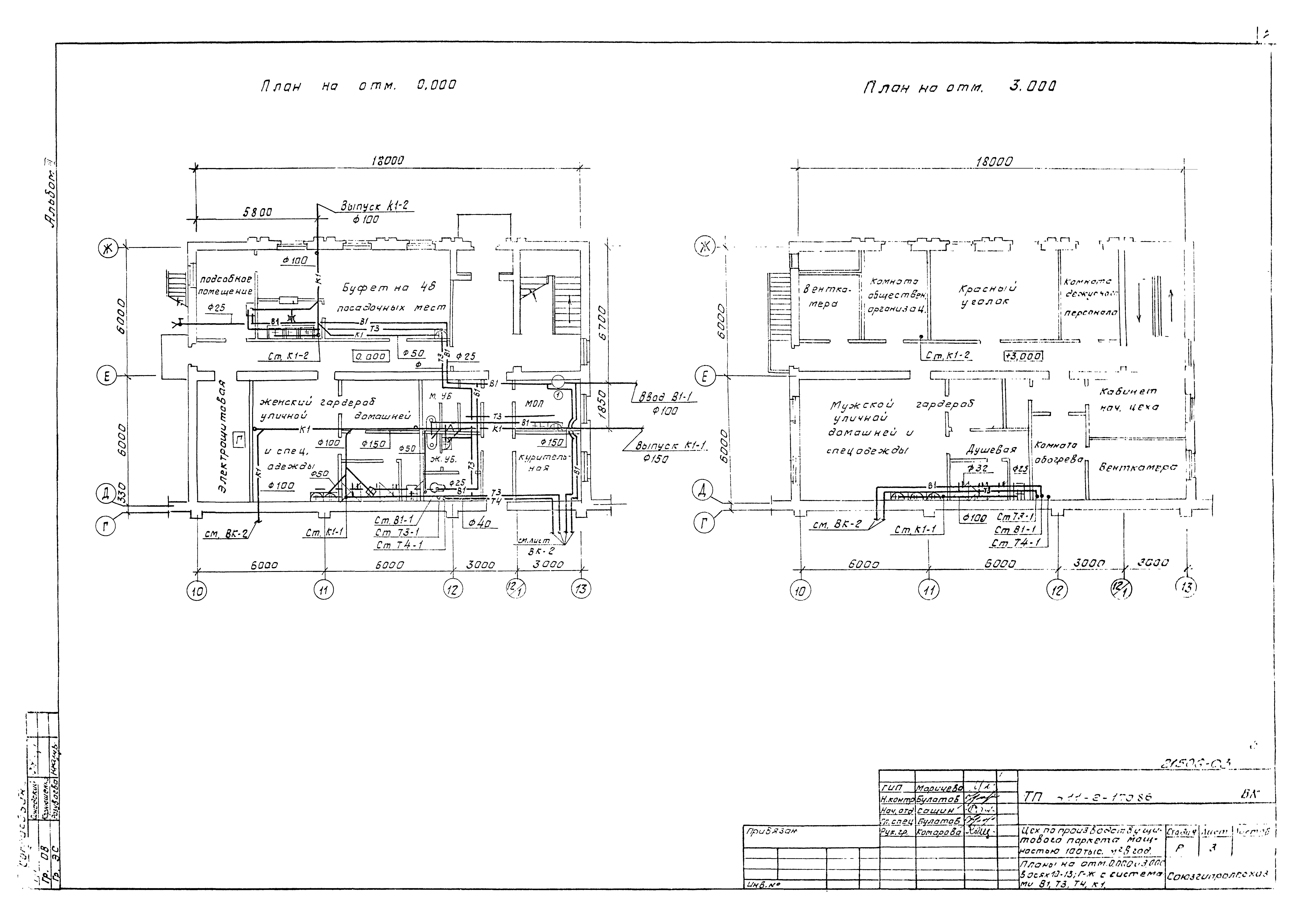
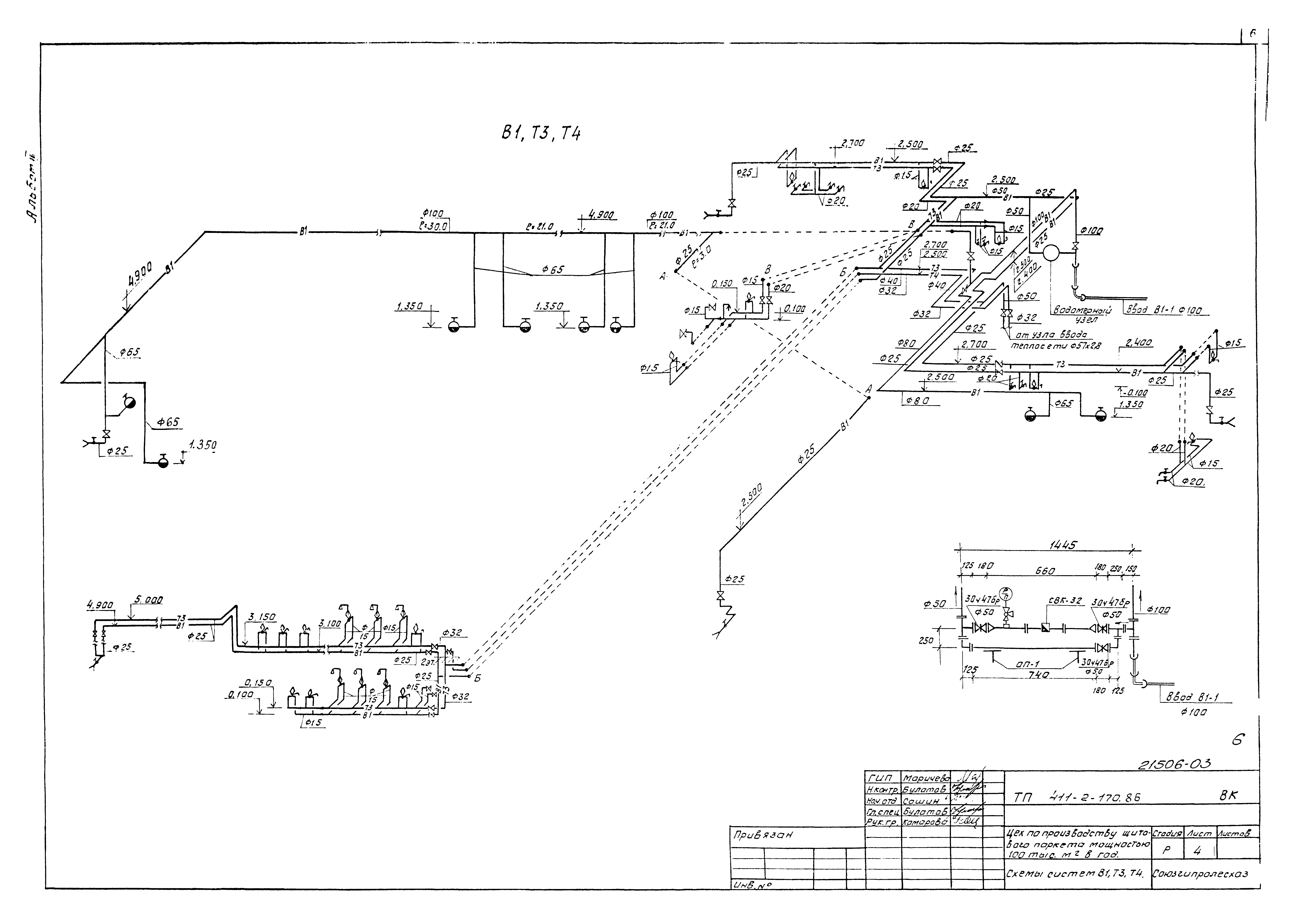
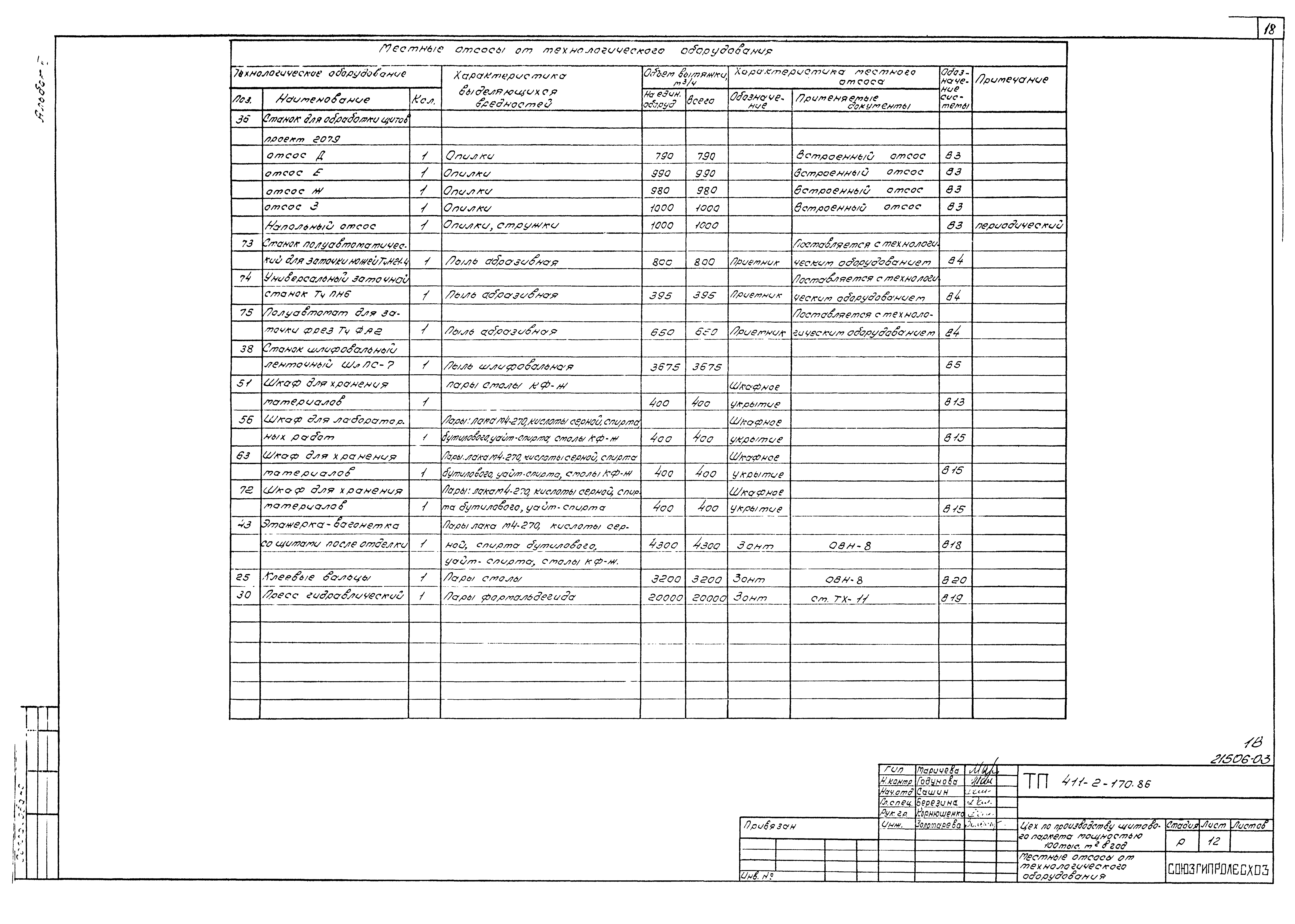
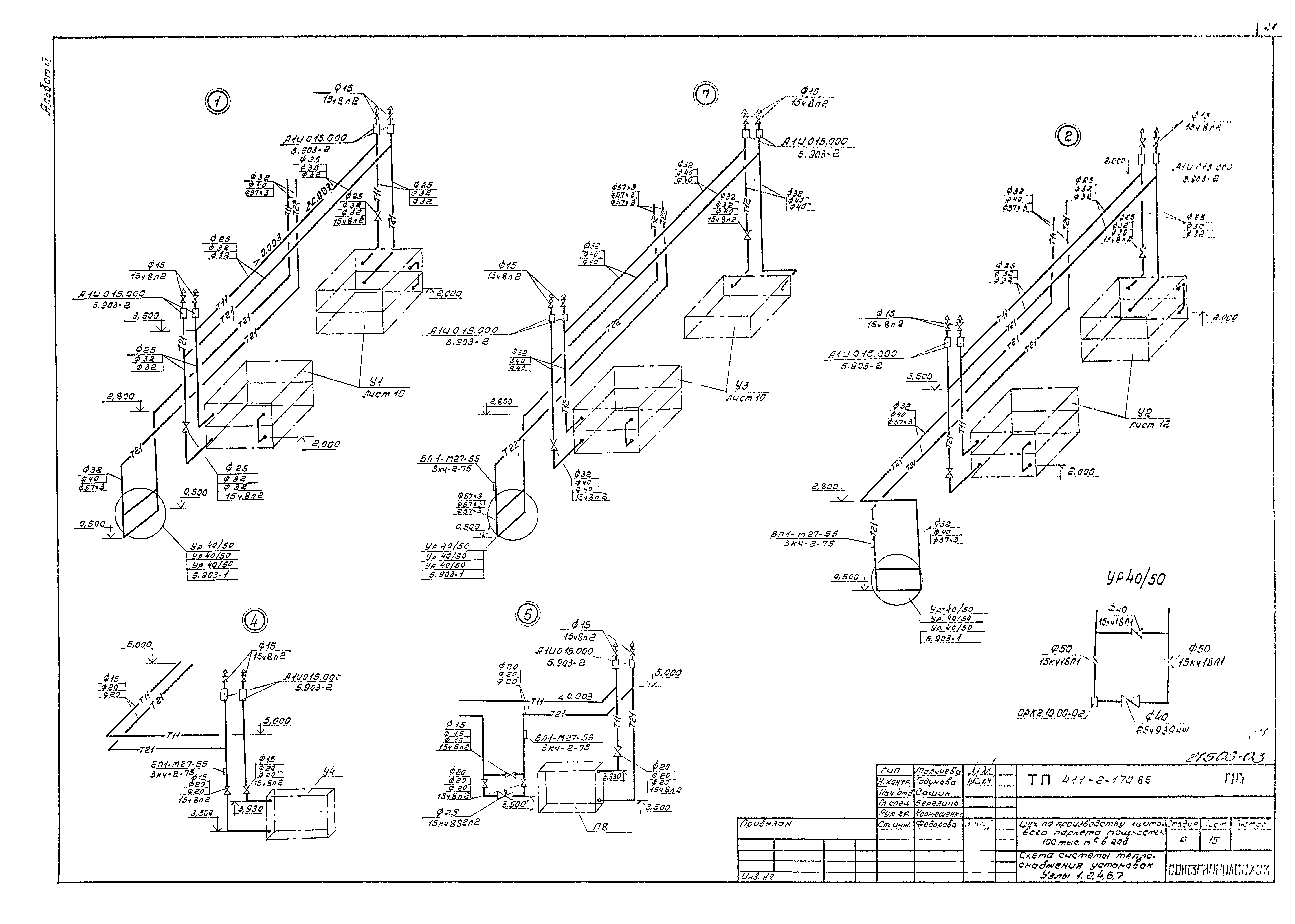
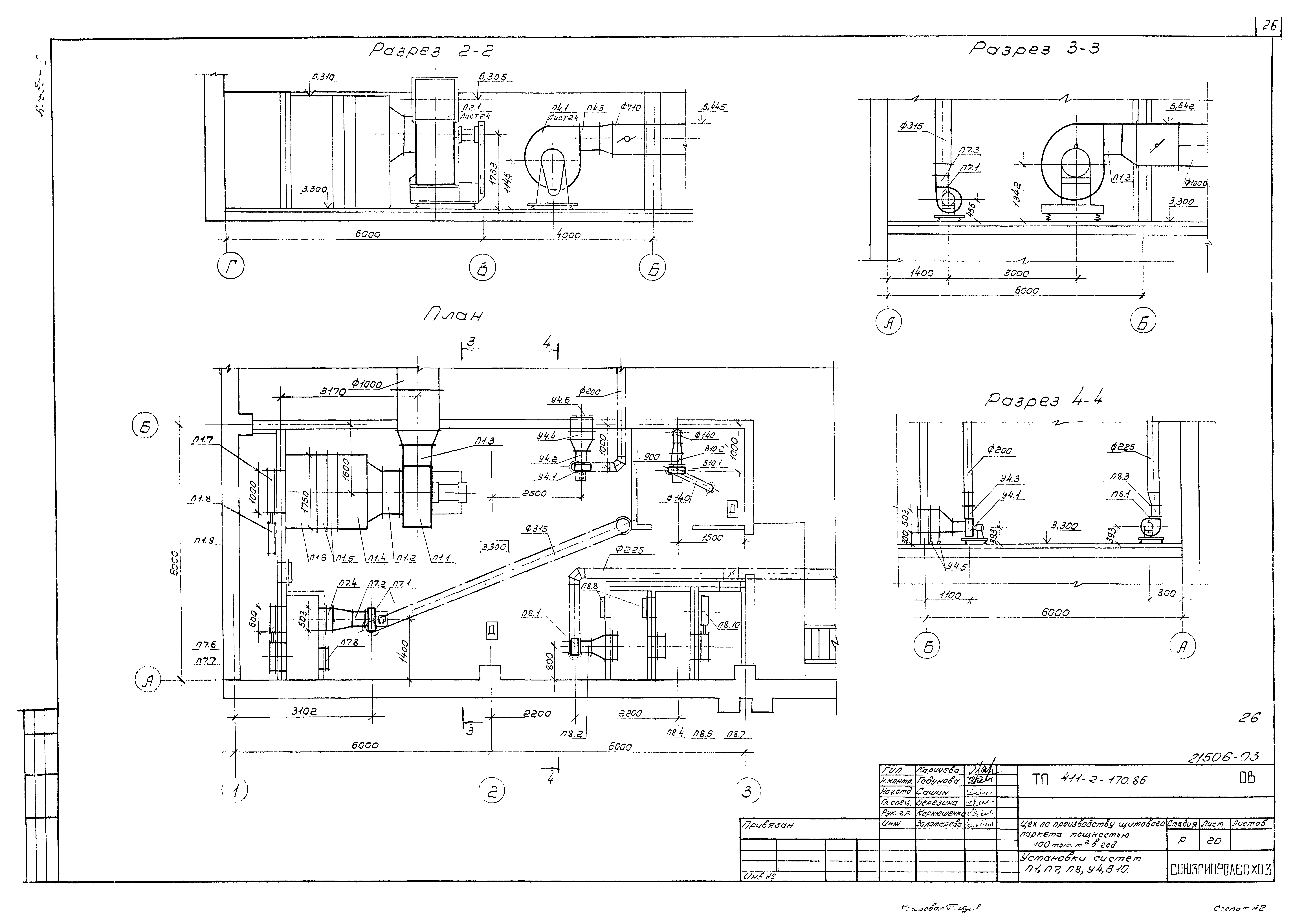
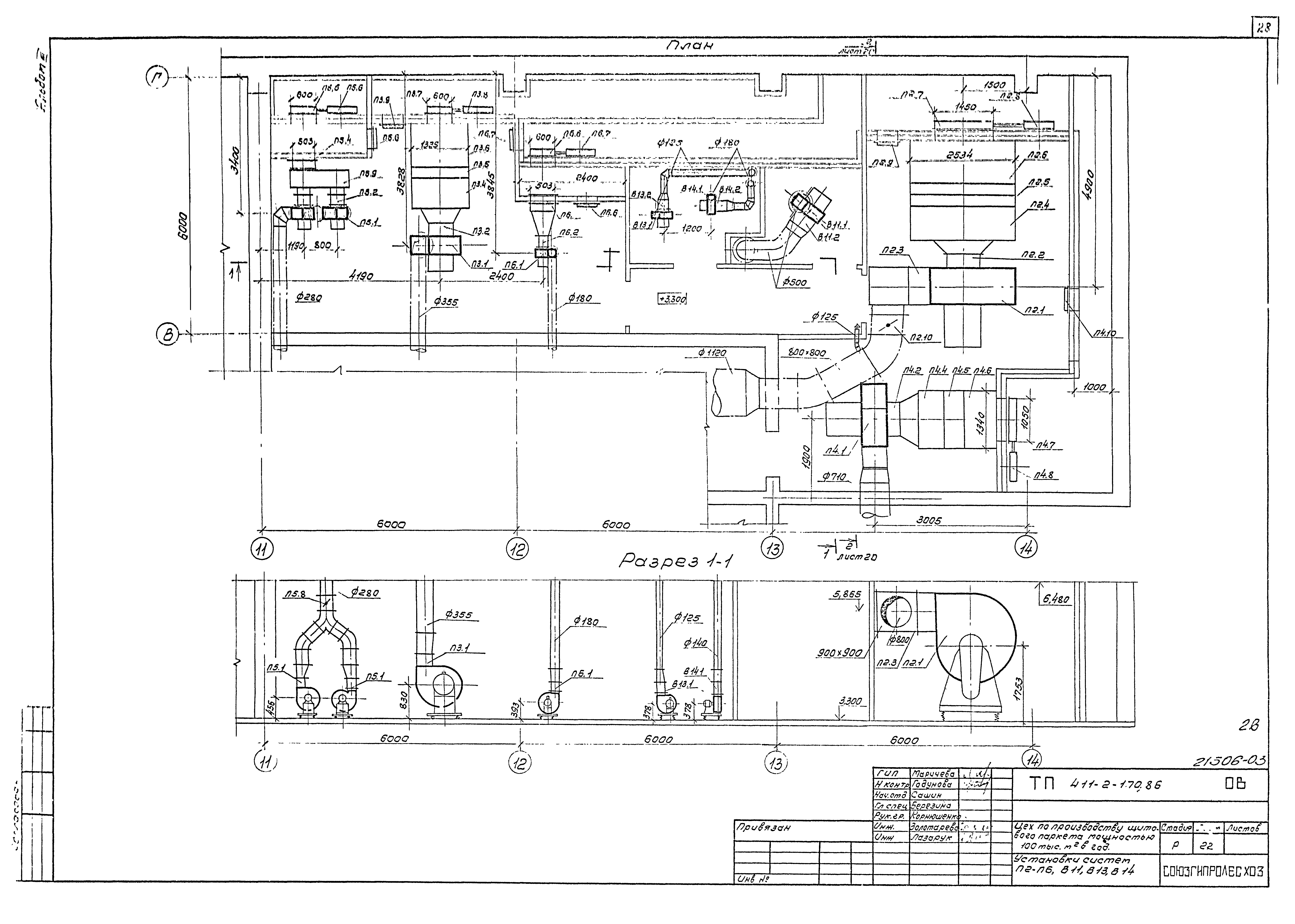
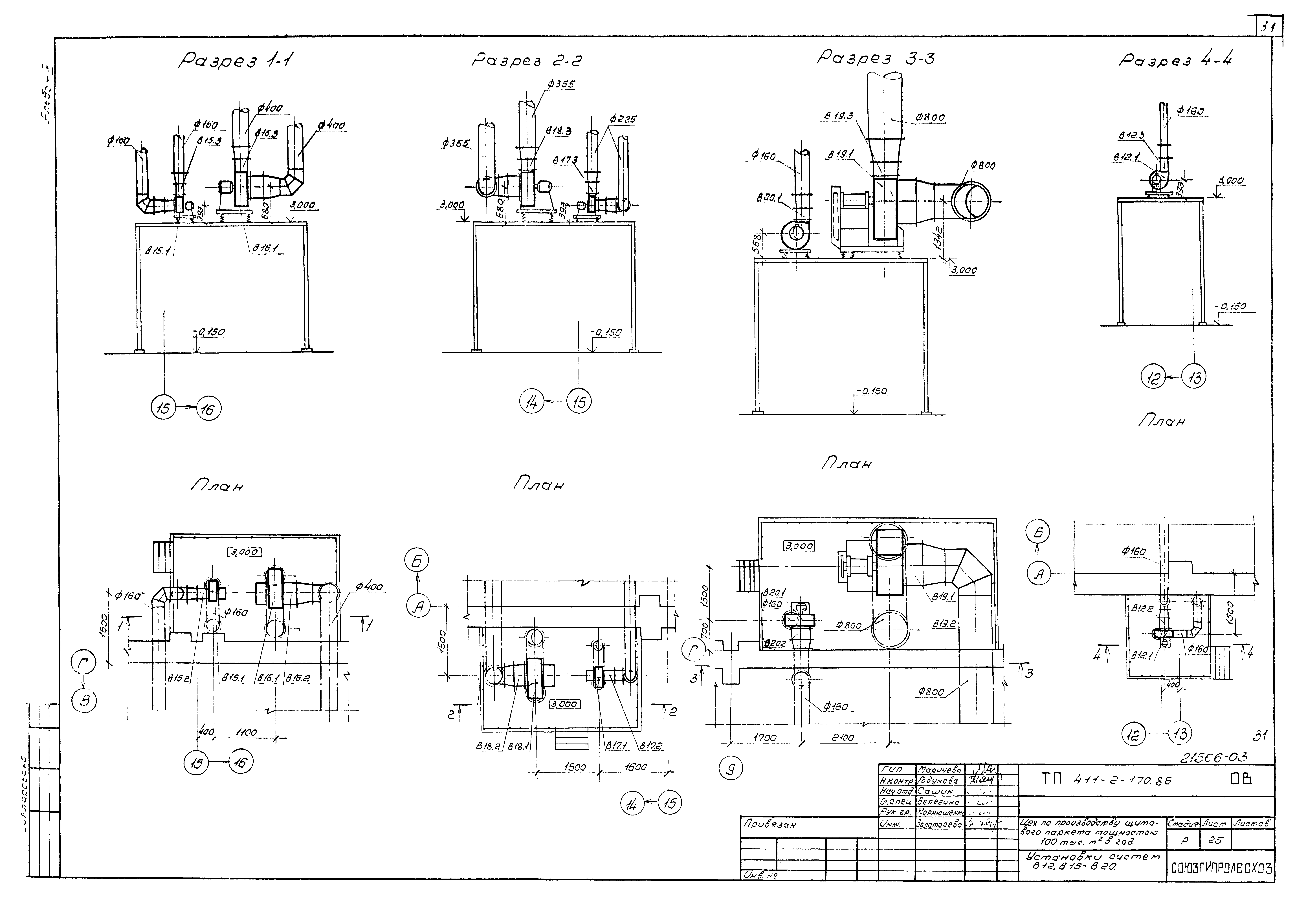
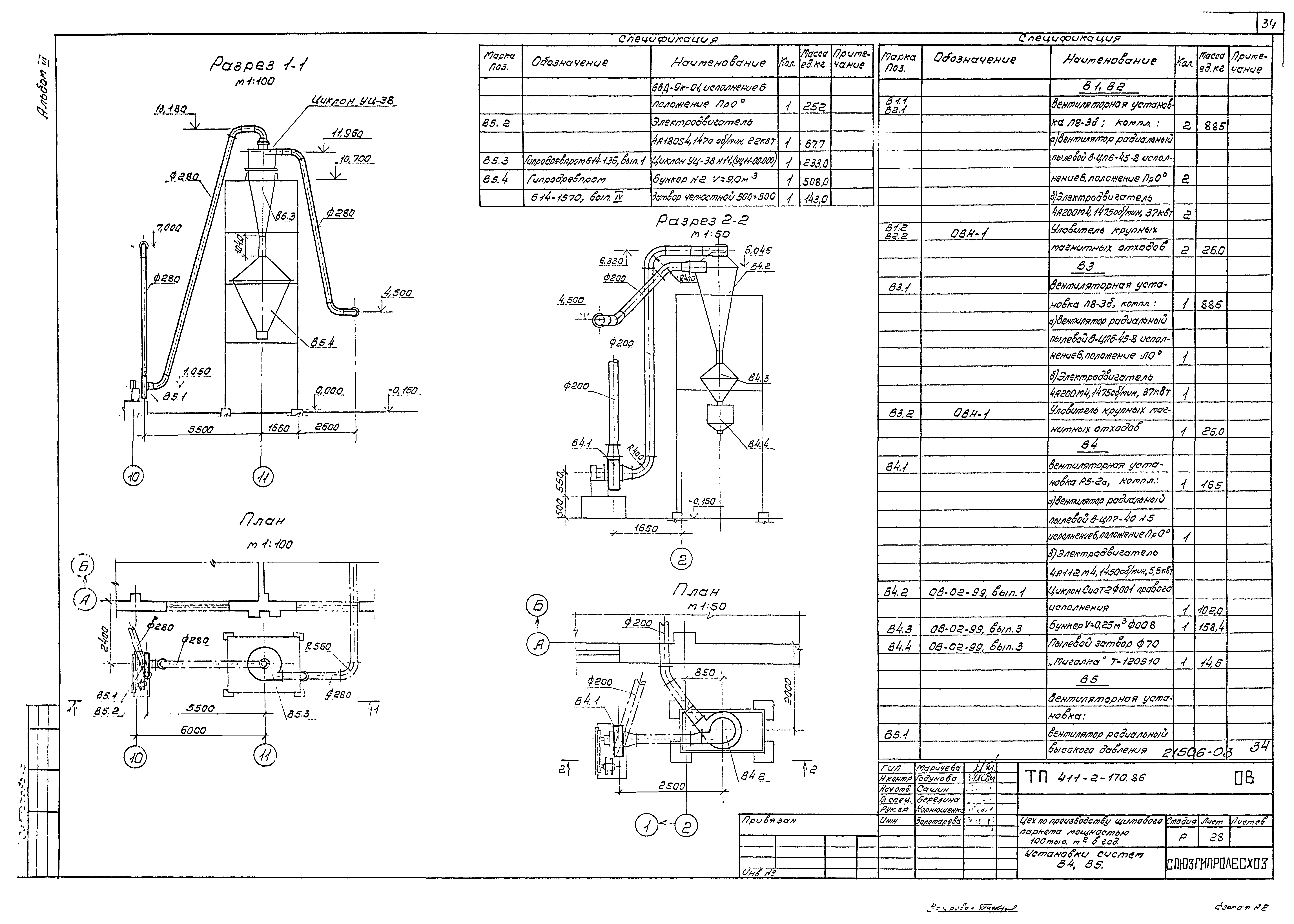
| Оглавление: | Внутренние водопровод и канализация Общие данные План на отм. 0.000 в осях 1 - 17; А - Г с системами В1, Р3, Р4, К1. Схема системы К1 План на отм. 0.000 и 3.000 в осях 10 - 13; Г - Ж с системами В1, Т3, Т4, К1 Схемы систем В1, Т3, Т4, Р4 Отопление и вентиляция Общие данные Производственная часть Отопление. План на отм. 0.000. Планы на отм. 3.300 между осями 1 - 3 и А - Б; 11 - 14 и В/1 - Д Теплоснабжение установок П1 - П8, У1 - У3. Планы на отм. 0.000 и 3.300 между осями 1 - 3 и А - Б; 11 - 14 и Г - В. Схемы систем теплоснабжения установок У1, У2, У4, П7, П8, П1 - П6, У3 Вентиляция. Планы на отм. 0.000 и 3.300 между осями 1 - 3 и А - Б; 11 - 14 и Г - В Местные отсосы от технологического оборудования Схема системы отопления 1. Узлы 1 - 4 Схема системы отопления 2. Узлы 1 - 16 Схема системы теплоснабжения установок. Узлы 1, 2, 4, 5, 7 Схема системы теплоснабжения установок. Узлы 3, 5, 8, 9, 10 - 12 Схема узла управления Схемы систем П1 - П8, В15 - В20, У4, ВЕ1 - ВЕ3 Схемы систем В1 - В14 Установки систем П1, П7, П8, У4, В10 Установки систем П2 - П6, В11, В13, В14 Установки систем П2, П3, П4 Установки систем П6 - П5, В11, В13, В14 Установки систем В12, В15 - В20 Установки систем В1, В2, В3 Установки систем В4, В5 Вспомогательная часть Планы на отм. 0.000 и 3.000 между осями 10 - 13 и Г - Ж Схема системы отопления 3. Схема системы теплоснабжения установки П9. Узел 1. Схемы систем П9, В21 - В25 Установки систем П9, В21 - В26 Содержание альбома ОВН Уловитель крупных отходов Рамка Диффузор Коробка распределительная. Чертеж общего вида Воздуховод раздаточный Воздуховод асбестоцементный. Чертеж общего вида Унифицированный узел прохода 6 воздуховодов. Общий вид. Детали Зонт вытяжной. Чертеж общего вида Факельный выброс. Чертеж общего вида Конструкция тепловой изоляции трубопровода |
| Разработан: | Союзгипролесхоз |
| Утверждён: | 18.12.1985 Гослесхоз СССР (USSR Gosleskhoz 23) |
| Заменяет собой: |
|












































