Скачать Типовой проект 411-2-170.86 Альбом VI. Чертежи заданий заводам-изготовителямДата актуализации: 01.01.2021
|
| Обозначение: | Типовой проект 411-2-170.86 |
| Обозначение англ: | 411-2-170.86 |
| Статус: | не определен законодательством |
| Название рус.: | Альбом VI. Чертежи заданий заводам-изготовителям |
| Дата добавления в базу: | 01.10.2014 |
| Дата актуализации: | 01.01.2021 |
| Дата введения: | 25.07.1986 |
| Дата окончания срока действия: | 30.06.2003 |
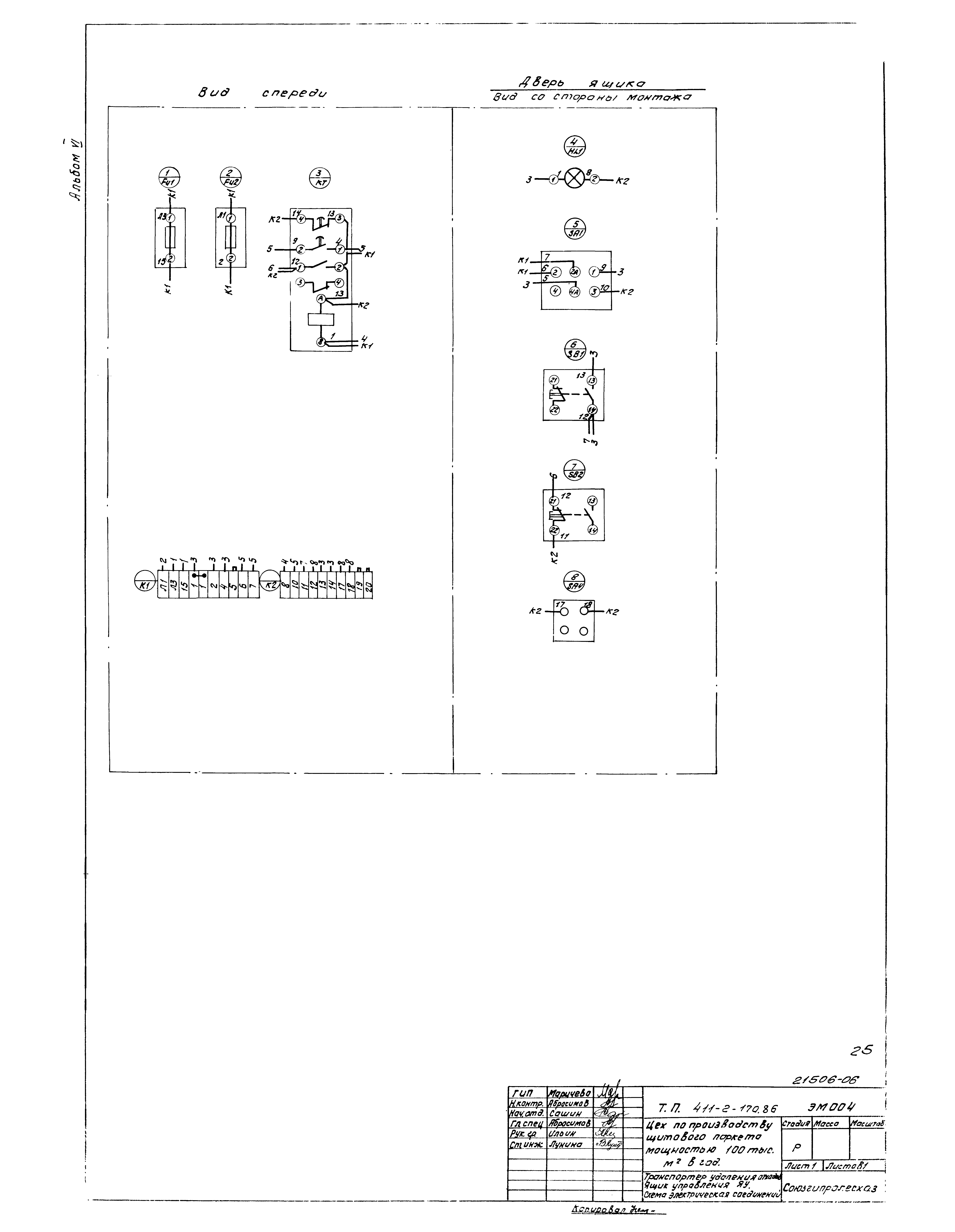
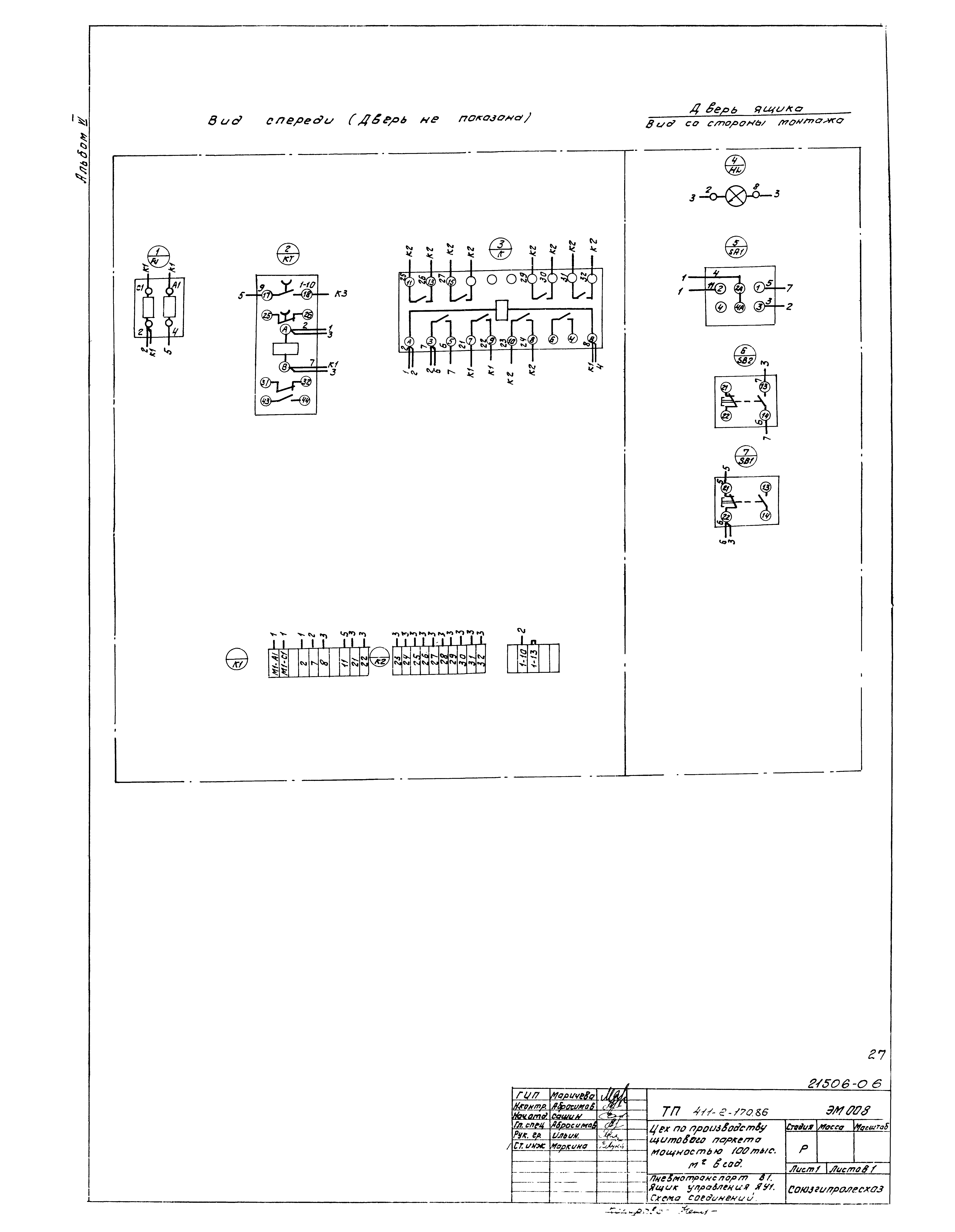
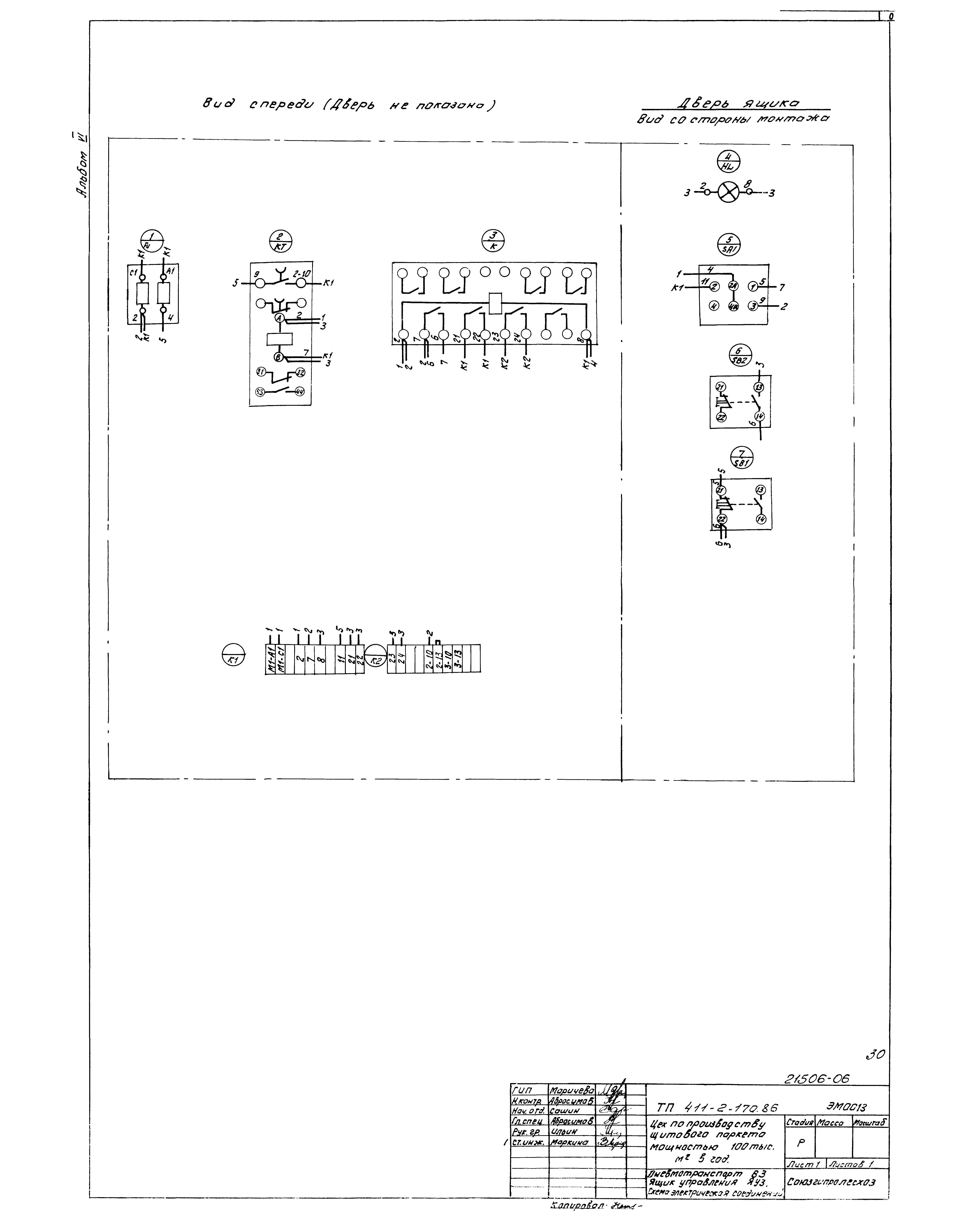
| Оглавление: | Содержание альбома Перечень технической документации для заводов "Главмонтажавтоматика" Шкафы управления ШУ1, ШУ2, ШУ4 и ШАС. Спецификация щитов Шкаф управления ШУ1 (ШУ4). Общий вид Шкаф управления ШУ1 (ШУ4). Таблица соединений Шкаф управления ШУ1 (ШУ4). Таблица подключения Шкаф управления ШУ2. Общий вид Шкаф управления ШУ2. Таблица соединений Шкаф управления ШУ2. Таблица подключения Шкаф аварийной сигнализации ШАС. Общий вид Шкаф аварийной сигнализации ШАС. Таблица соединений Шкаф аварийной сигнализации ШАС. Таблица подключения Перечень технической документации для заводов "Минэлектротехпром" Шкаф управления ШУ5. Чертеж общего вида Шкаф управления ШУ5. Технические данные аппаратов Шкаф управления ШУ5. Таблица перечня надписей Шкаф управления ШУ5. Схема электрическая соединений Шкаф управления ШУ3 (ШУ6 - ШУ9). Чертеж общего вида Шкаф управления ШУ3 (ШУ6 - ШУ9). Технические данные аппаратов Шкаф управления ШУ3 (ШУ6 - ШУ9). Таблица перечня надписей Шкаф управления ШУ3 (ШУ6 - ШУ9). Схема электрическая соединений Шкаф сигнализации ШС. Чертеж общего вида Шкаф сигнализации ШС. Технические данные аппаратов Шкаф сигнализации ШС. Таблица перечня надписей Шкаф сигнализации ШС. Схема электрическая соединений Ящик управления ЯУ. Чертеж общего вида Ящик управления ЯУ. Технические данные аппаратов Ящик управления ЯУ. Таблица перечня надписей Ящик управления ЯУ. Схема электрическая соединений Ящик управления ЯУ1. Чертеж общего вида Ящик управления ЯУ1. Технические данные аппаратов Ящик управления ЯУ1. Таблица перечня надписей Ящик управления ЯУ1. Схема электрическая соединений Ящик управления ЯУ2 (ЯУ3 - ЯУ5). Чертеж общего вида Ящик управления ЯУ2 (ЯУ3 - ЯУ5). Технические данные аппаратов Ящик управления ЯУ2 (ЯУ3 - ЯУ5). Таблица перечня надписей Ящик управления ЯУ2. Схема электрическая соединений Ящик управления ЯУ3. Схема электрическая соединений Ящик управления ЯУ4. Схема электрическая соединений Ящик управления ЯУ5. Схема электрическая соединений |
| Разработан: | Союзгипролесхоз |
| Утверждён: | 18.12.1985 Гослесхоз СССР (USSR Gosleskhoz 23) |
| Заменяет собой: |
|

































