Скачать Типовой проект 509-15.84 Альбом I. Общая пояснительная записка. Технологические чертежи. Архитектурно-строительные решения. Электротехнические чертежиДата актуализации: 01.01.2021
|
| Обозначение: | Типовой проект 509-15.84 |
| Обозначение англ: | 509-15.84 |
| Статус: | не определен законодательством |
| Название рус.: | Альбом I. Общая пояснительная записка. Технологические чертежи. Архитектурно-строительные решения. Электротехнические чертежи |
| Дата добавления в базу: | 01.10.2014 |
| Дата актуализации: | 01.01.2021 |
| Дата введения: | 12.07.1983 |
| Дата окончания срока действия: | 30.06.2003 |
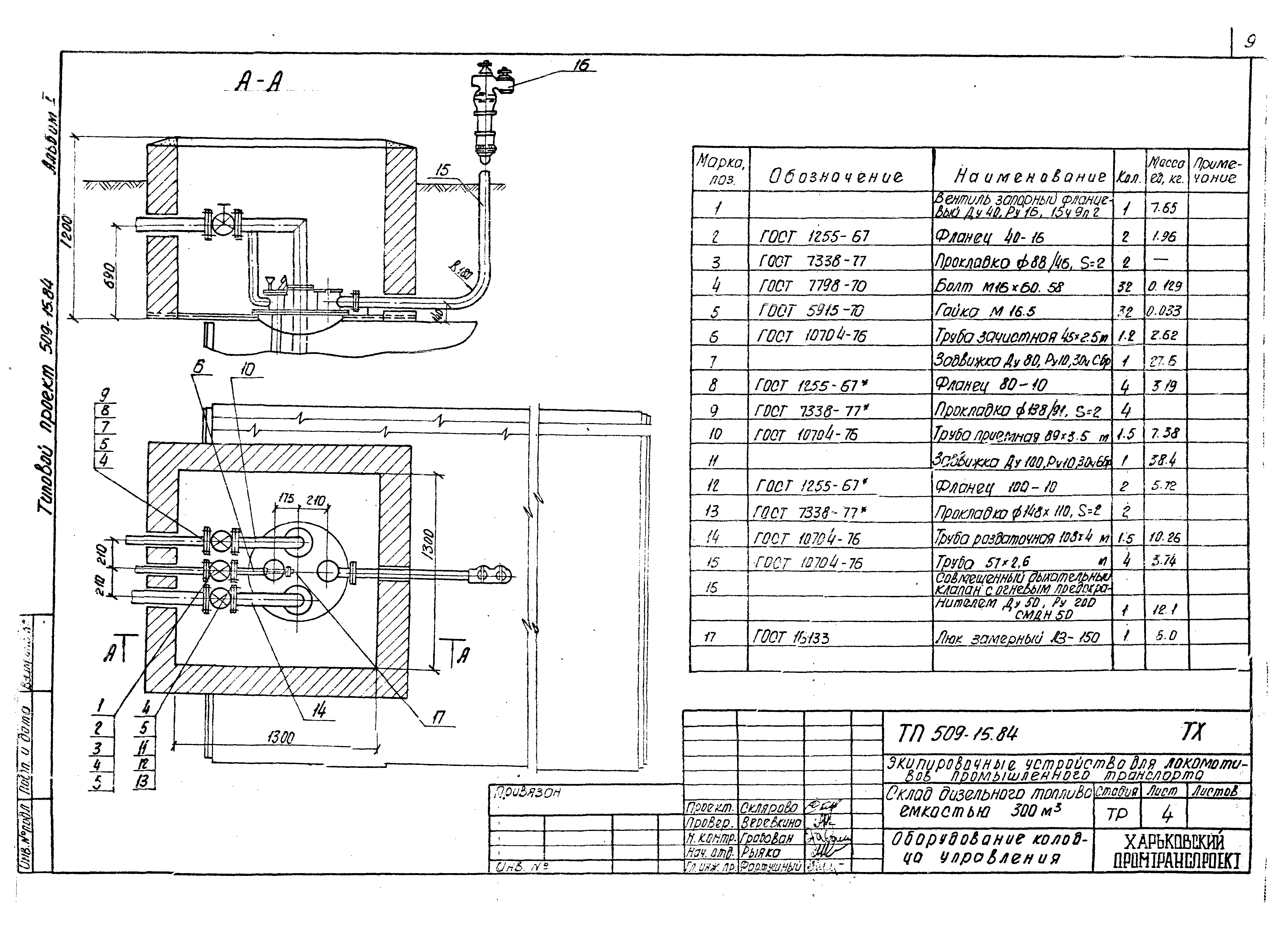
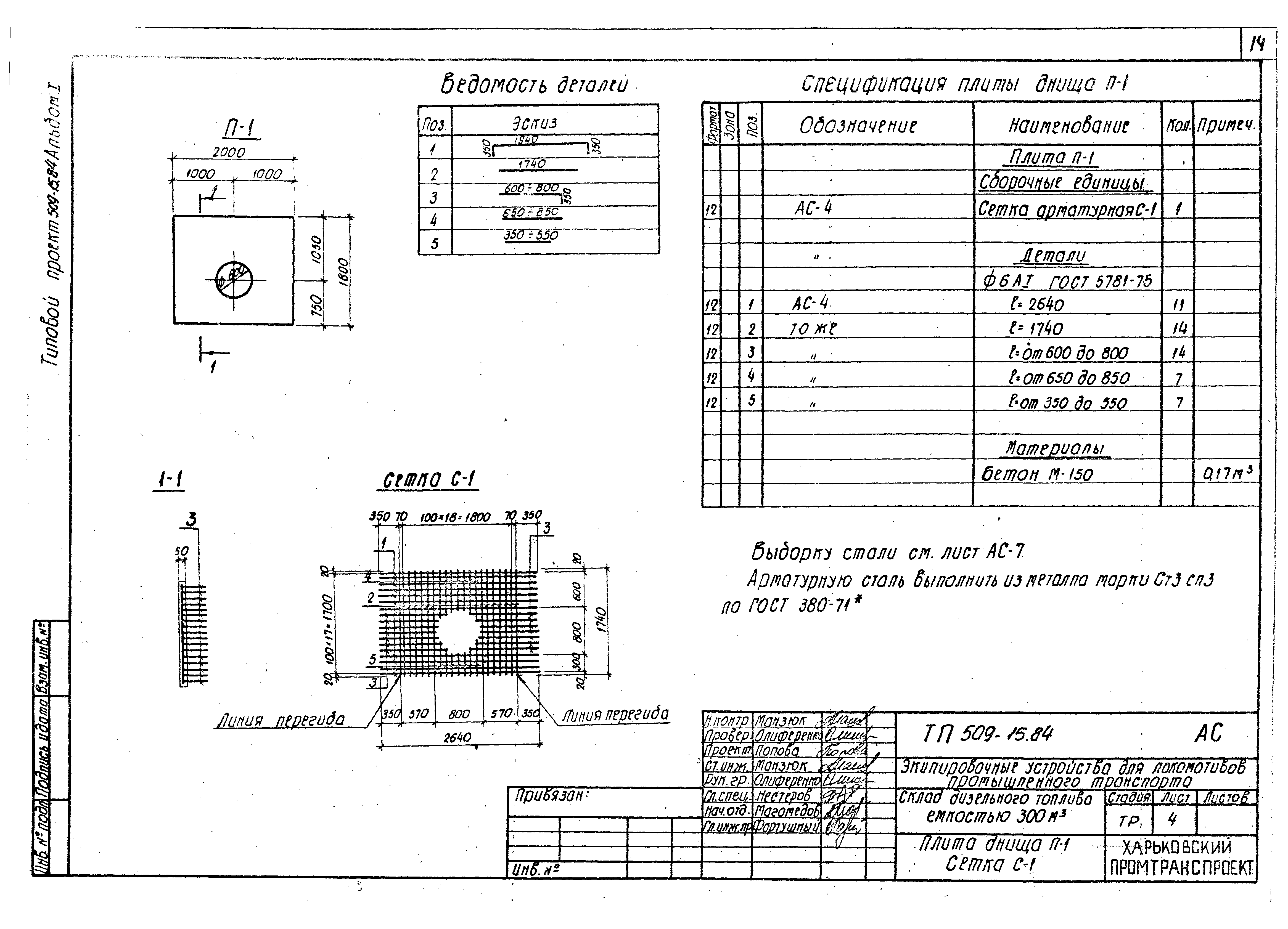
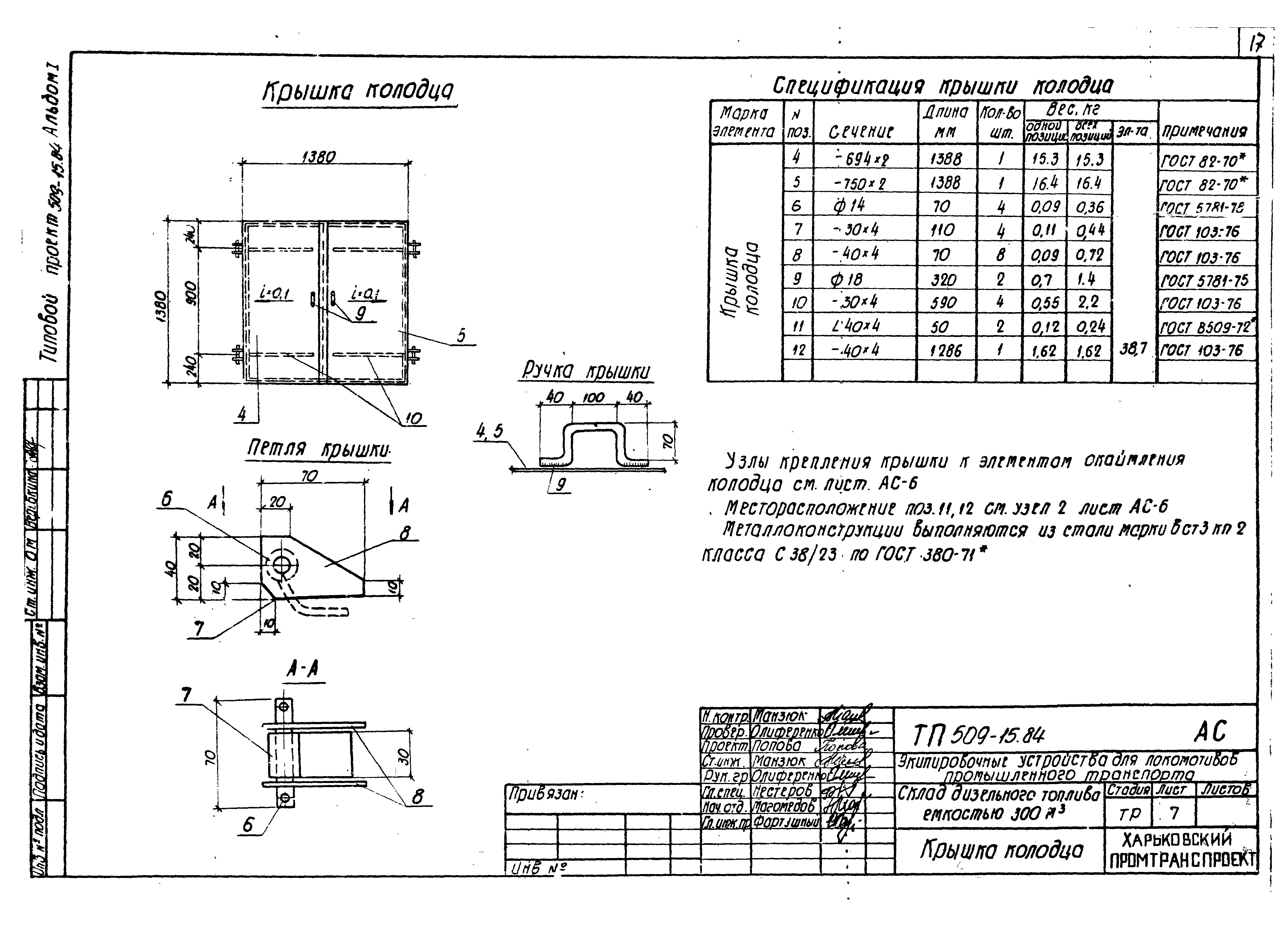
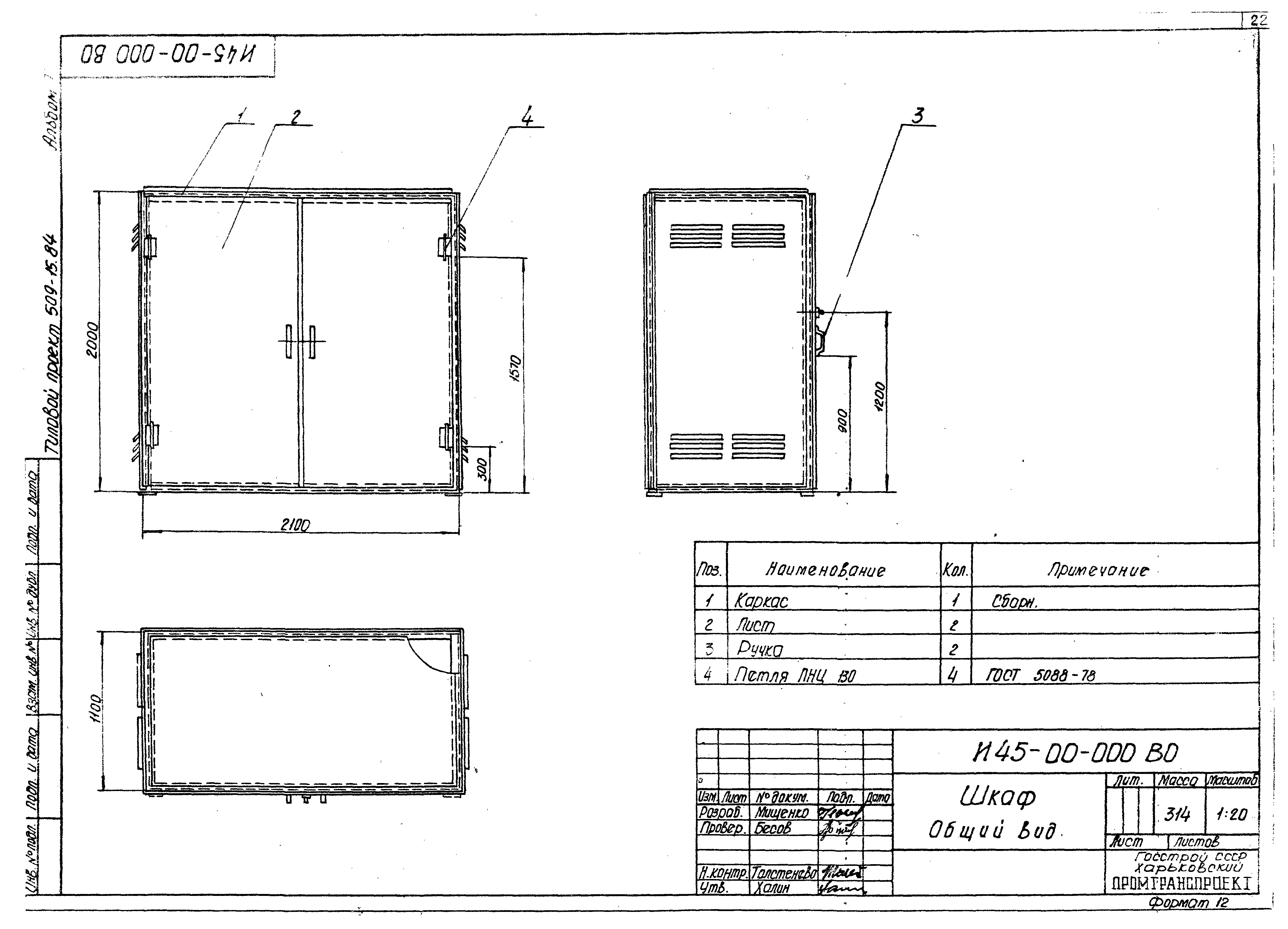
| Оглавление: | Содержание Пояснительная записка Чертежи основного комплекта марки ТХ Общие данные Общий вид. Разрезы Принципиальная схема Оборудование колодца управления Установка насоса АСЦЛ-20-24А Чертежи основного комплекта марки АС Общие данные Схема расположения элементов подземного хозяйства. Разрезы Разрез 2-2 Плита днища П-1. Сетка С-1 Фундаменты Ф-1, Ф-2 Узлы 1, 2 Крышка колодца Чертежи основного комплекта марки ЭМ Общие данные Схема электрическая принципиальная управления и подключения электродвигателем насоса Кабельный журнал. Ведомость объемов электромонтажных и строительных работ Схема электрическая расположения и ведомости оборудования и материалов Чертежи основного комплекта марки НО Шкаф Стояк-сливо-наливной |
| Разработан: | Харьковский Промтранспроект |
| Утверждён: | 21.04.1983 Госстрой СССР (Государственный комитет Совета Министров СССР по делам строительства) (USSR Gosstroy ВА-18) |






















