Скачать Типовые проектные решения 820-04-16.85 Альбом IV. Водосбросы на расход воды от 39 куб. м/с до 70 куб. м/с. Железобетонные конструкции шахты. Ведомость потребности в материалах. Монолитный вариантДата актуализации: 01.01.2021
|
| Обозначение: | Типовые проектные решения 820-04-16.85 |
| Обозначение англ: | 820-04-16.85 |
| Статус: | справочные материалы, мп, тпр |
| Название рус.: | Альбом IV. Водосбросы на расход воды от 39 куб. м/с до 70 куб. м/с. Железобетонные конструкции шахты. Ведомость потребности в материалах. Монолитный вариант |
| Дата добавления в базу: | 01.10.2014 |
| Дата актуализации: | 01.01.2021 |
| Дата введения: | 14.01.1985 |
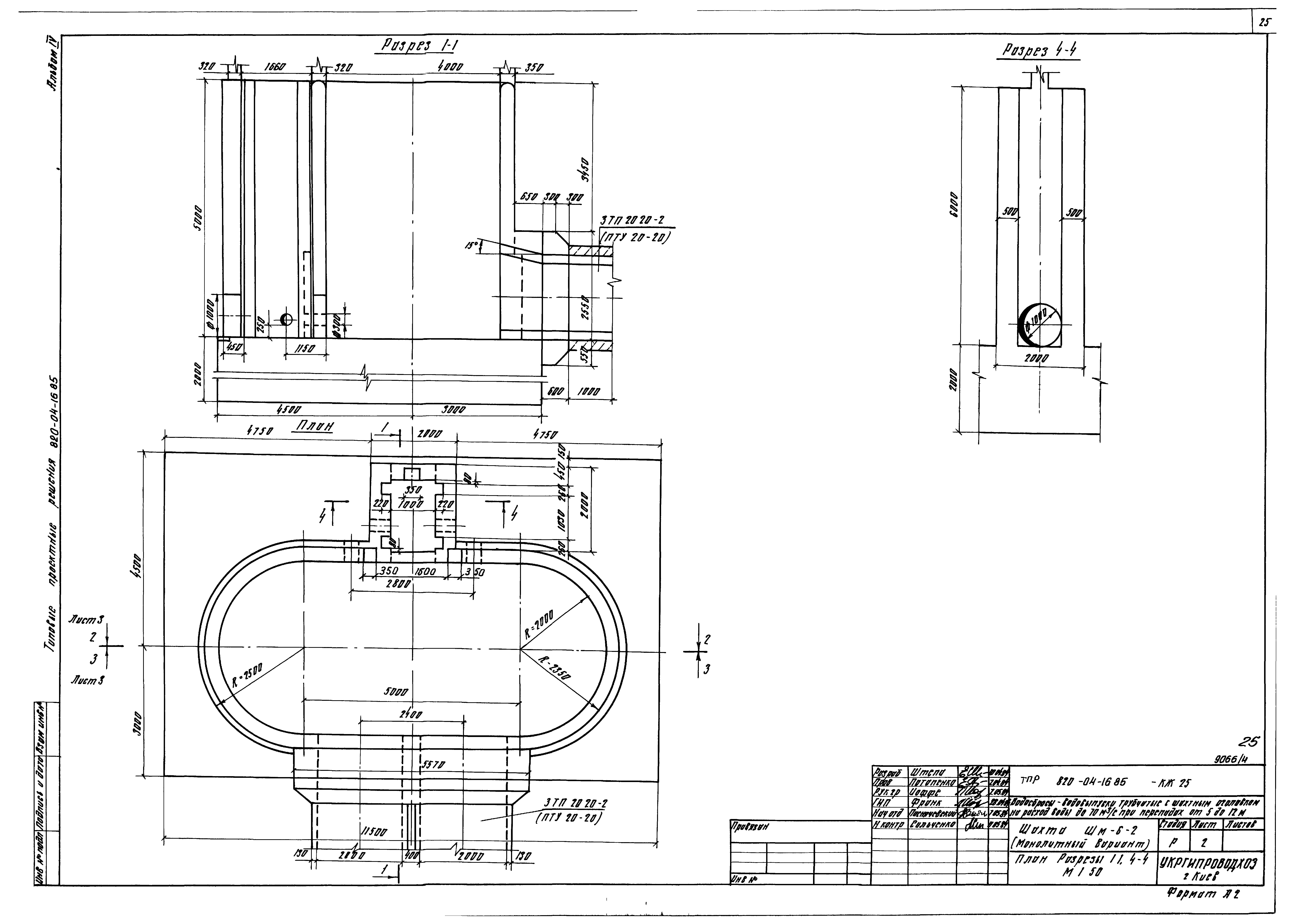
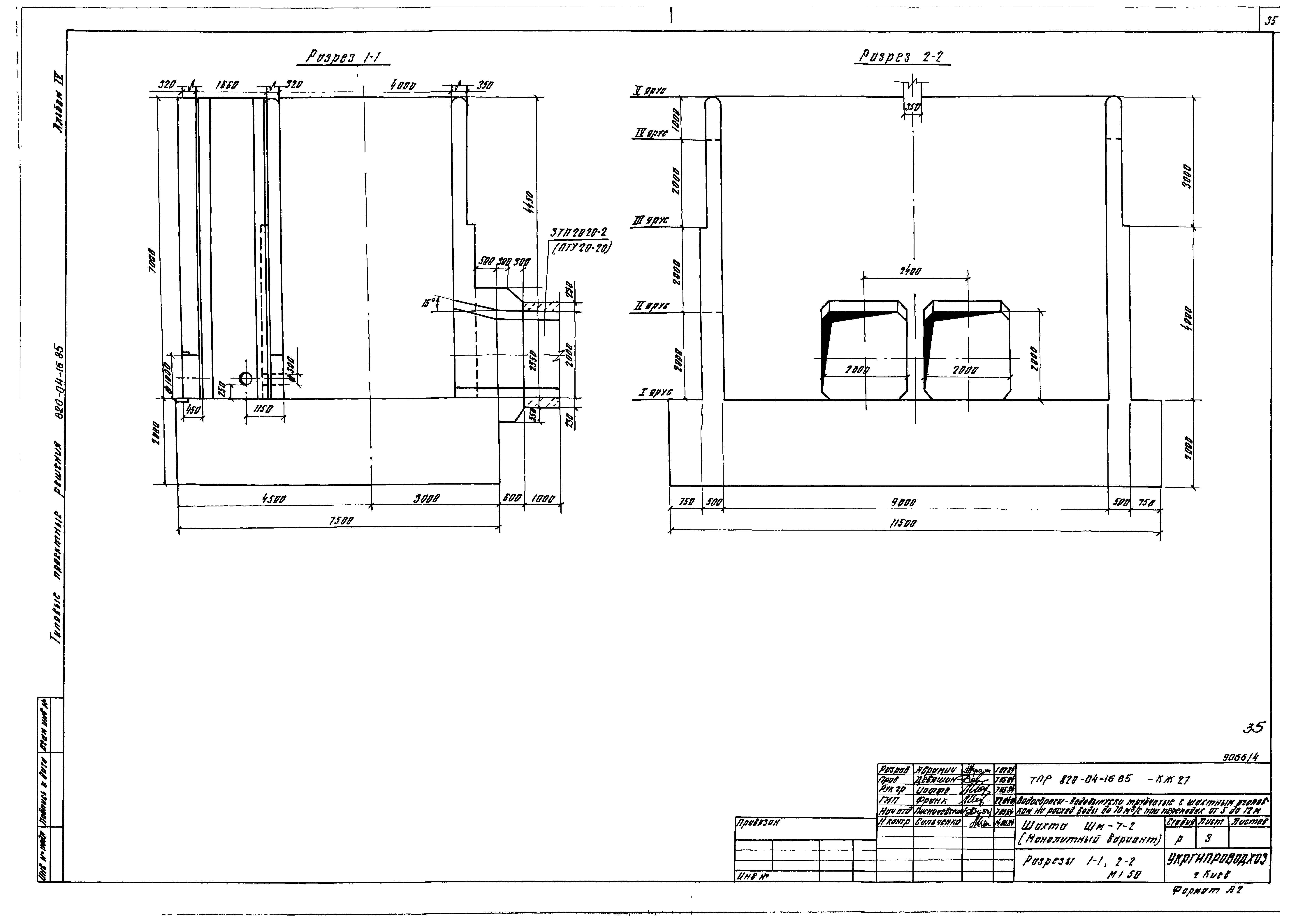
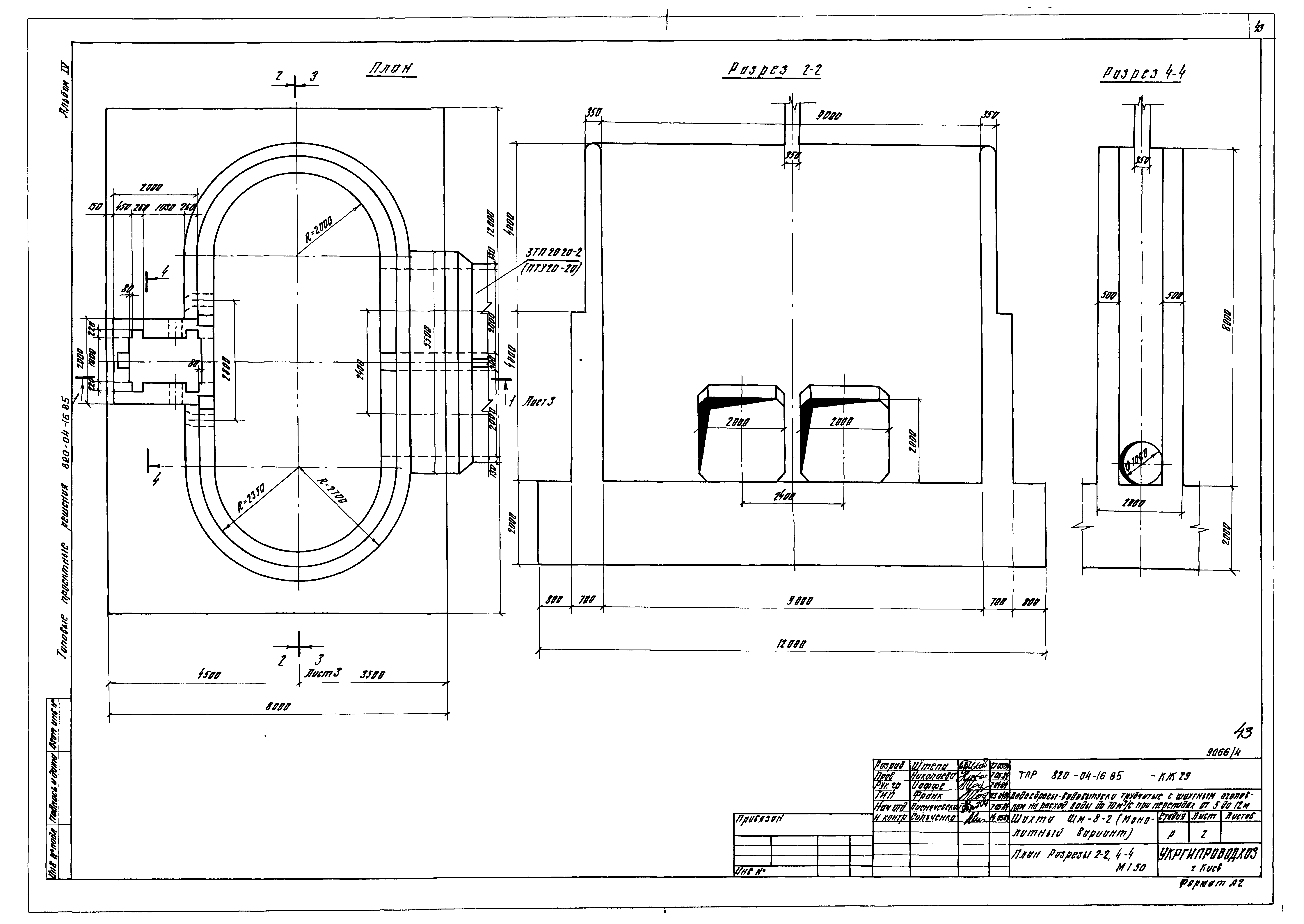
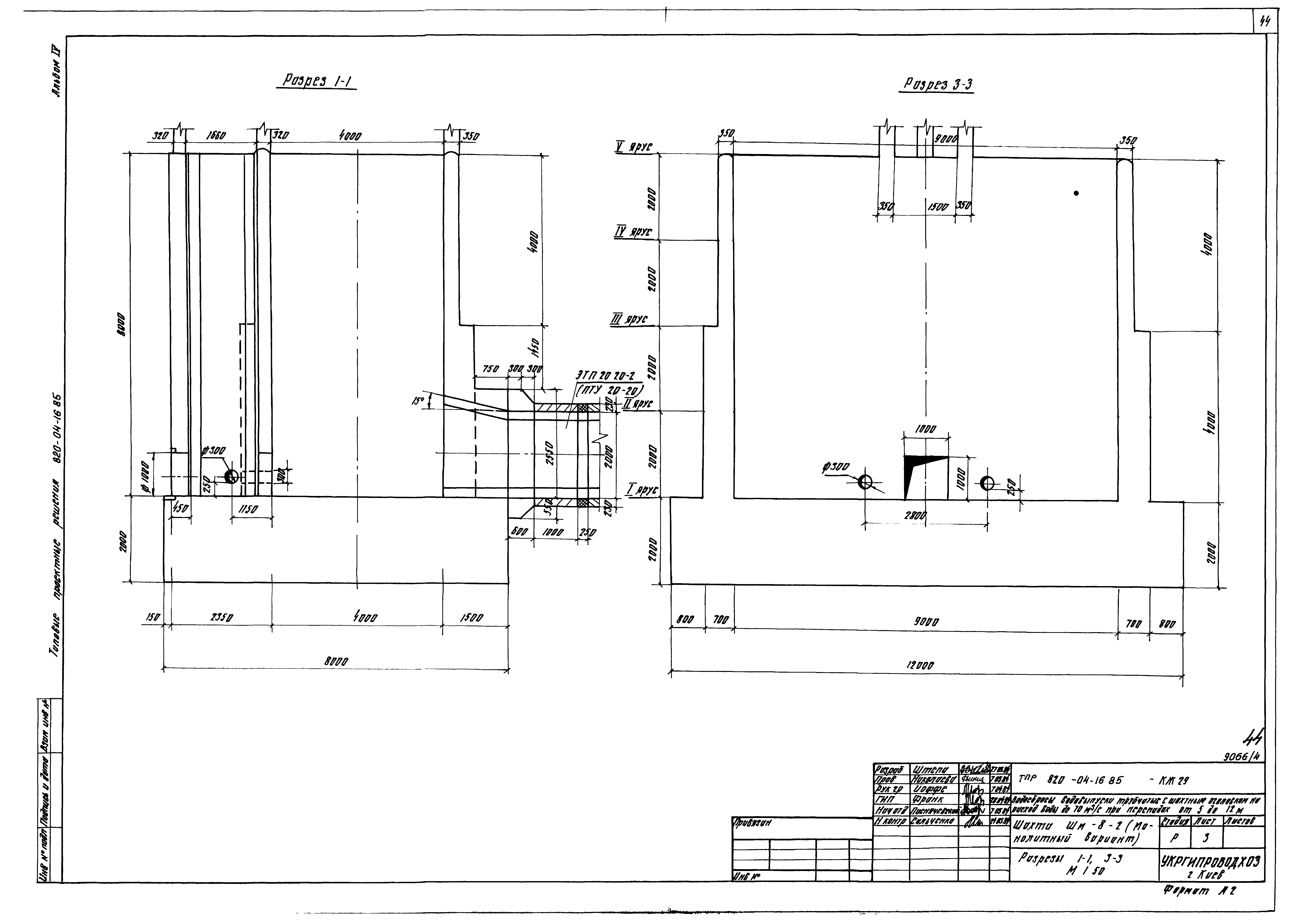
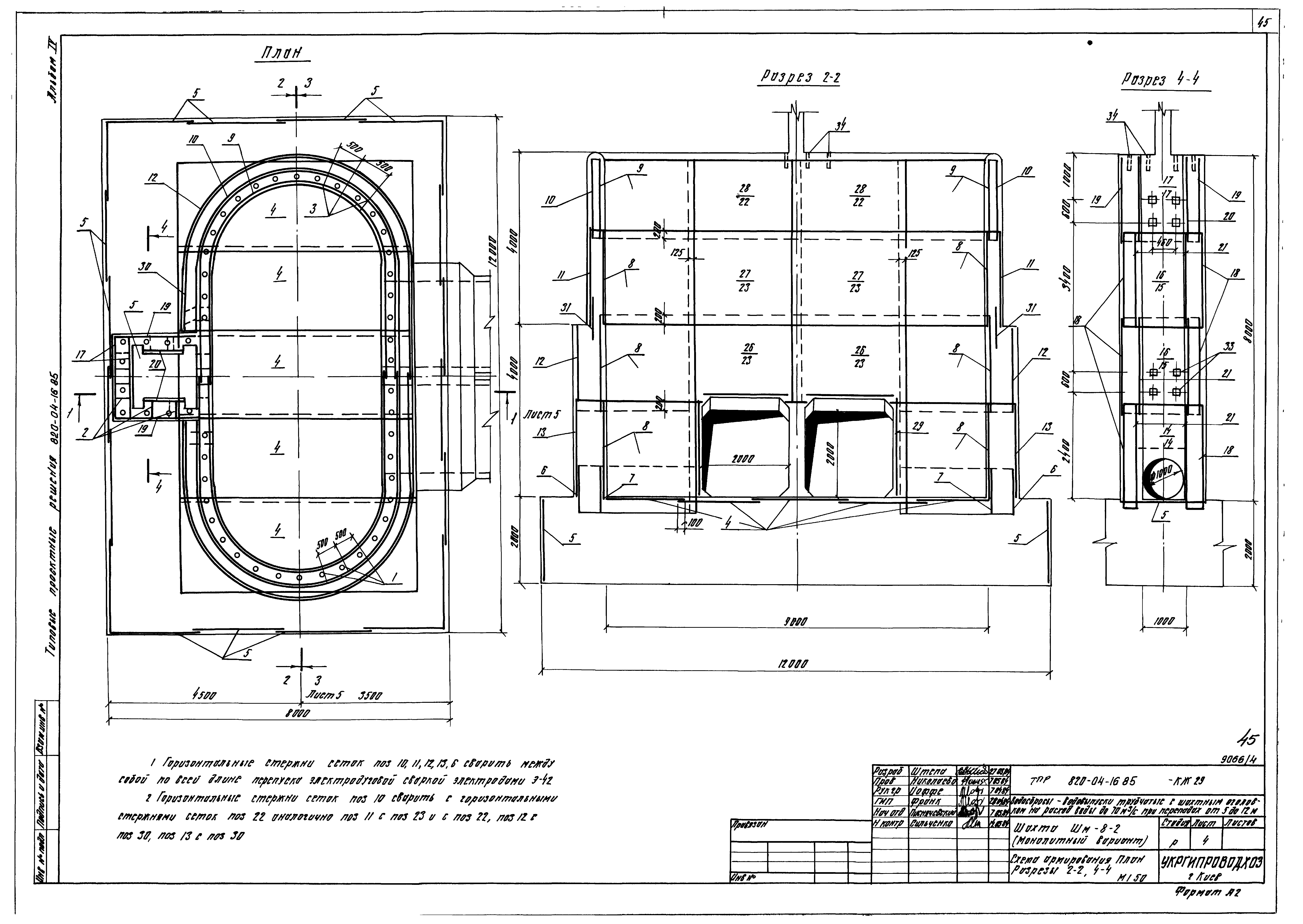
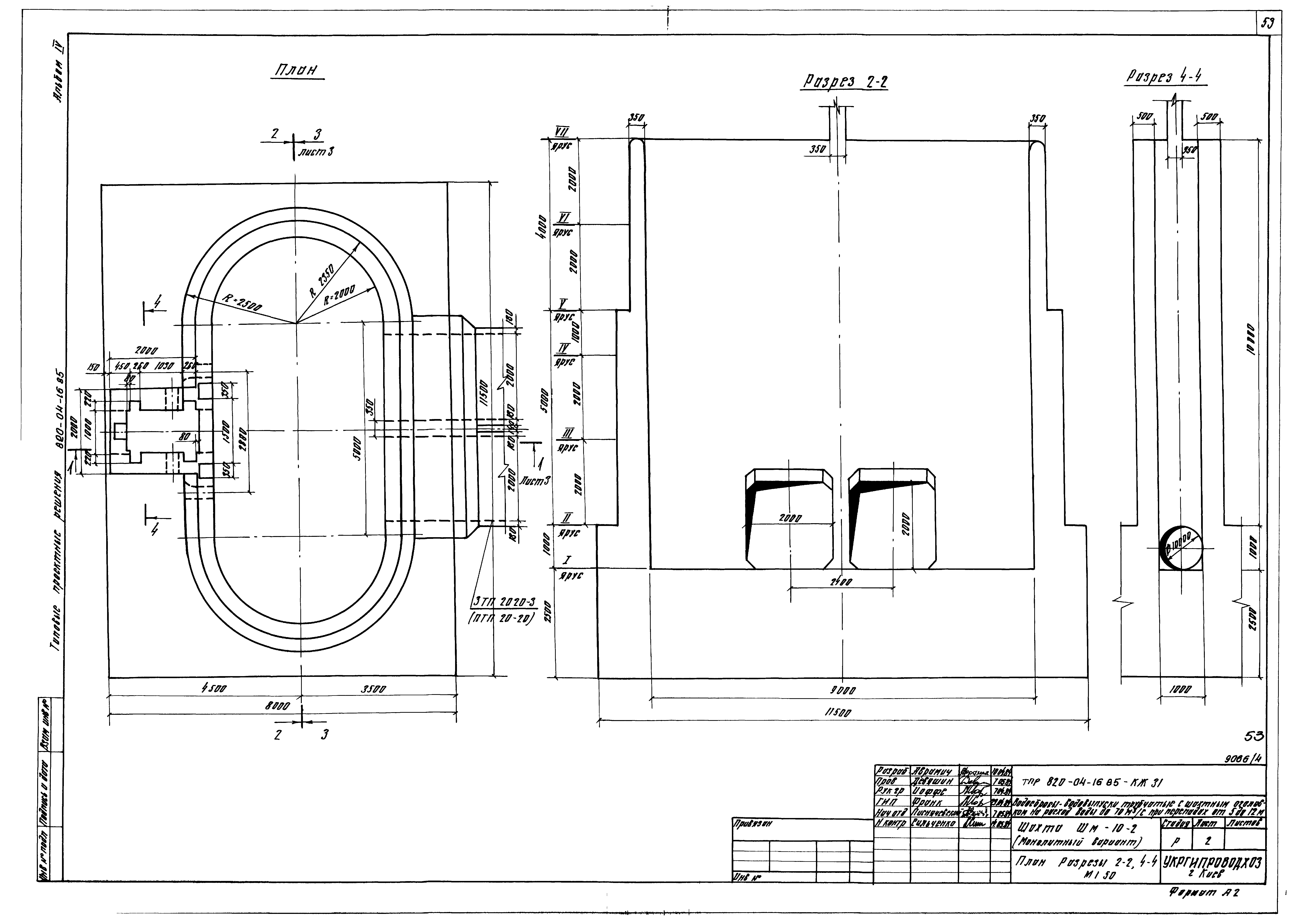
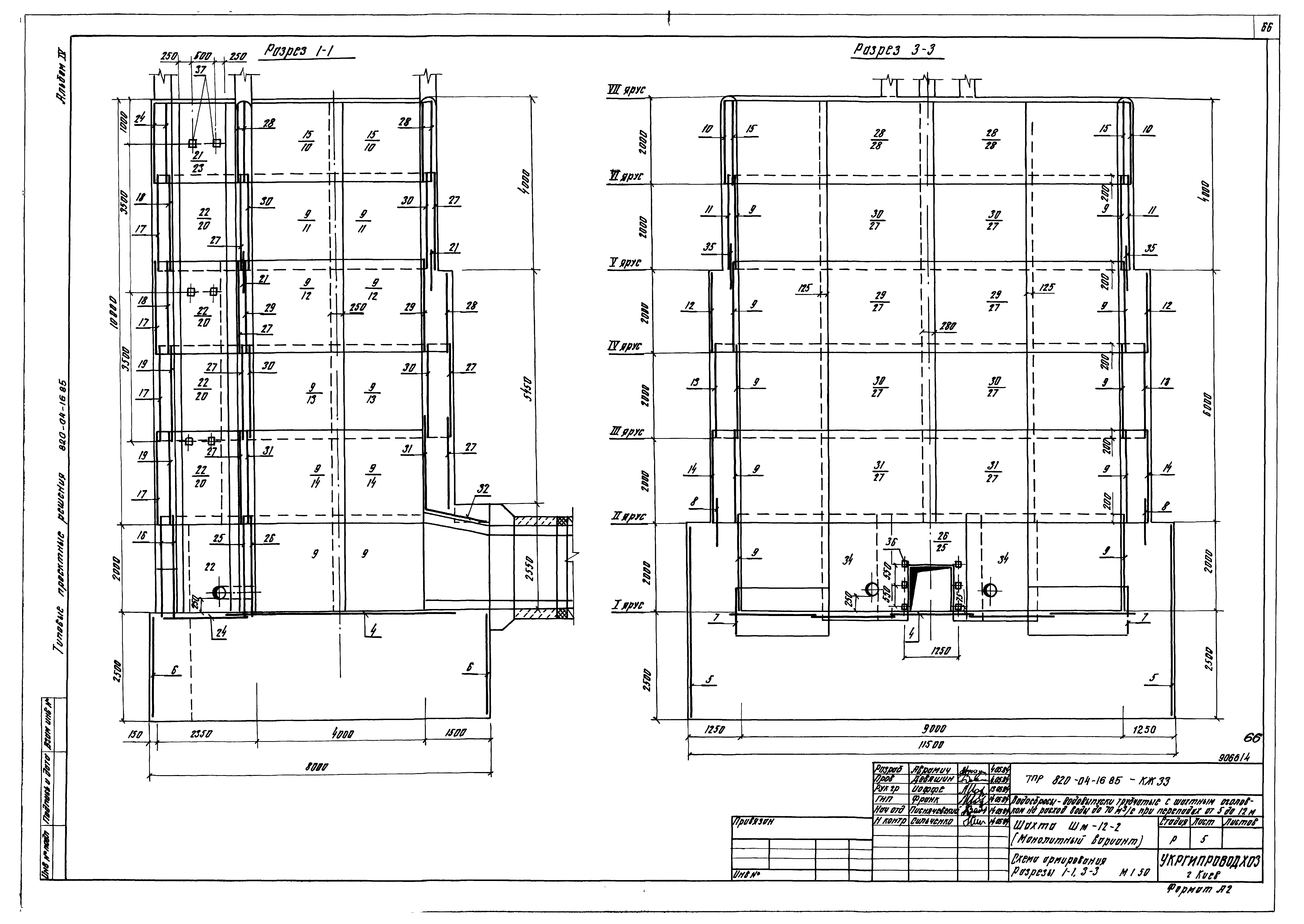
| Оглавление: | Шахта Шм-3-2 (монолитный вариант) Общие данные План. Разрезы 1-1 - 4-4 Схема армирования. План. Разрезы 1-1 - 5-5 Спецификация к схеме армирования монолитной шахты Шм-3-2 Каркас плоский КР (КР1, КР2) Каркас плоский КР3 Сетка арматурная С (С1, С2, С9, С10, С12, С14, С15) Сетка арматурная С (С8, С11, С13) Сетка арматурная С (С3, С7) Изделие закладное МН1 Изделие закладное МН2 Ведомости потребности в материалах Шахта Шм-4-2 (монолитный вариант) Общие данные План. Разрезы 1-1 - 4-4 Схема армирования. План. Разрезы 1-1 - 5-5 Спецификация к схеме армирования монолитной шахты Шм-4-2 Каркас плоский КР (КР1, КР2) Сетка арматурная С (С1, С2, С9, С10) Сетка арматурная С (С11, С12, С13, С15) Сетка арматурная С (С8, С14) Сетка арматурная С16 Сетка арматурная С (С17, С20) Сетка арматурная С (С3, С5) Сетка арматурная С (С6, С7) Изделие закладное МН1 Изделие закладное МН2 Ведомости потребности в материалах Шахта Шм-5-2 (монолитный вариант) Общие данные План. Разрезы 1-1, 2-2, 3-3, 4-4 Схема армирования. План. Разрезы 1-1 - 5-5 Спецификация к схеме армирования монолитной шахты Шм-5-2 Каркас плоский КР (КР1, КР2) Сетка арматурная С (С1, С2, С11) Сетка арматурная С (С13, С18, С20, С21, С23) Сетка арматурная С (С10, С12, С19) Сетка арматурная С (С3, С9) Изделие закладное МН1 Изделие закладное МН2 Ведомости потребности в материалах Шахта Шм-6-2 (монолитный вариант) Общие данные План. Разрезы 1-1, 4-4 Разрезы 2-2, 3-3 Схема армирования. План. Разрезы 1-1 - 5-5 Схема армирования. Разрезы 2-2, 3-3 Каркас плоский КР1 Каркас плоский КР2 Сетка арматурная С (С1, С2, С13, С18) Сетка арматурная С (С19, С24) Сетка арматурная С (С10, С12) Сетка арматурная С (С3, С9, С25) Изделие закладное МН1 Изделие закладное МН2 Ведомости потребности в материалах Шахта Шм-7-2 (монолитный вариант) Общие данные План. Разрезы 3-3, 4-4 Разрезы 1-1, 2-2 Схема армирования. План. Разрезы 3-3, 4-4, 5-5 Схема армирования. Разрезы 1-1, 2-2 Каркас плоский КР1 Каркас плоский КР2 Сетка арматурная С (С1, С2, С12, С17) Сетка арматурная С (С11, С19, С20) Сетка арматурная С (С18, С21, С28) Сетка арматурная С (С3, С10) Изделие закладное МН1 Изделие закладное МН2 Ведомости потребности в материалах Шахта Шм-8-2 (монолитный вариант) Общие данные План. Разрезы 2-2, 4-4 Разрезы 1-1, 3-3 Схема армирования. План. Разрезы 2-2, 4-4 Схема армирования. Разрезы 1-1, 3-3 Спецификация к схеме армирования монолитной шахты Шм-8-2 Каркас плоский КР (КР1, КР2) Сетка арматурная С (С11, С21, С22) Сетка арматурная С (С12, С13, С15, С20, С23, С25) Сетка арматурная С (С16, С17, С18, С26, С27) Сетка арматурная С (С1, С2, С14, С19) Сетка арматурная С (С3, С10, С28) Изделие закладное МН1 Изделие закладное МН2 Ведомости потребности в материалах Шахта Шм-10-2 (монолитный вариант) Общие данные План. Разрезы 2-2, 4-4 Разрезы 1-1, 3-3 Схема армирования. План. Разрезы 2-2, 4-4 Схема армирования. Разрезы 1-1, 3-3 Схема армирования. Разрез 5-5 Каркас плоский КР (КР1, КР2, КР3) Сетка арматурная С (С22, С28, С29) Сетка арматурная С (С1, С3, С13, С17) Сетка арматурная С (С4, С11) Сетка арматурная С (С12, С20, С21) Сетка арматурная С (С18, С19, С23, С27) Изделие закладное МН1 Изделие закладное МН2 Ведомости потребности в материалах Шахта Шм-12-2 (монолитный вариант) Общие данные План. Разрезы 2-2, 4-4 Разрезы 1-1, 3-3 Схема армирования. План. Разрезы 2-2, 4-4 Схема армирования. Разрезы 1-1, 3-3 Схема армирования. Разрез 5-5 Каркас плоский КР (КР1, КР2, КР3) Сетка арматурная С (С1, С2, С3) Сетка арматурная С (С14, С21) Сетка арматурная С (С4, С12, С32) Сетка арматурная С (С13, С22, С23) Сетка арматурная С (С24, С31) Изделие закладное МН1 Изделие закладное МН2 Ведомости потребности в материалах |
| Разработан: | Укргипроводхоз Минводхоза СССР |
| Утверждён: | 14.01.1985 Минводхоз СССР (USSR Minvodkhoz 608) |
| Издан: | ЦИТП Госстроя СССР (CITP, Gosstroy (USSR) 1988 г. ) |







































































