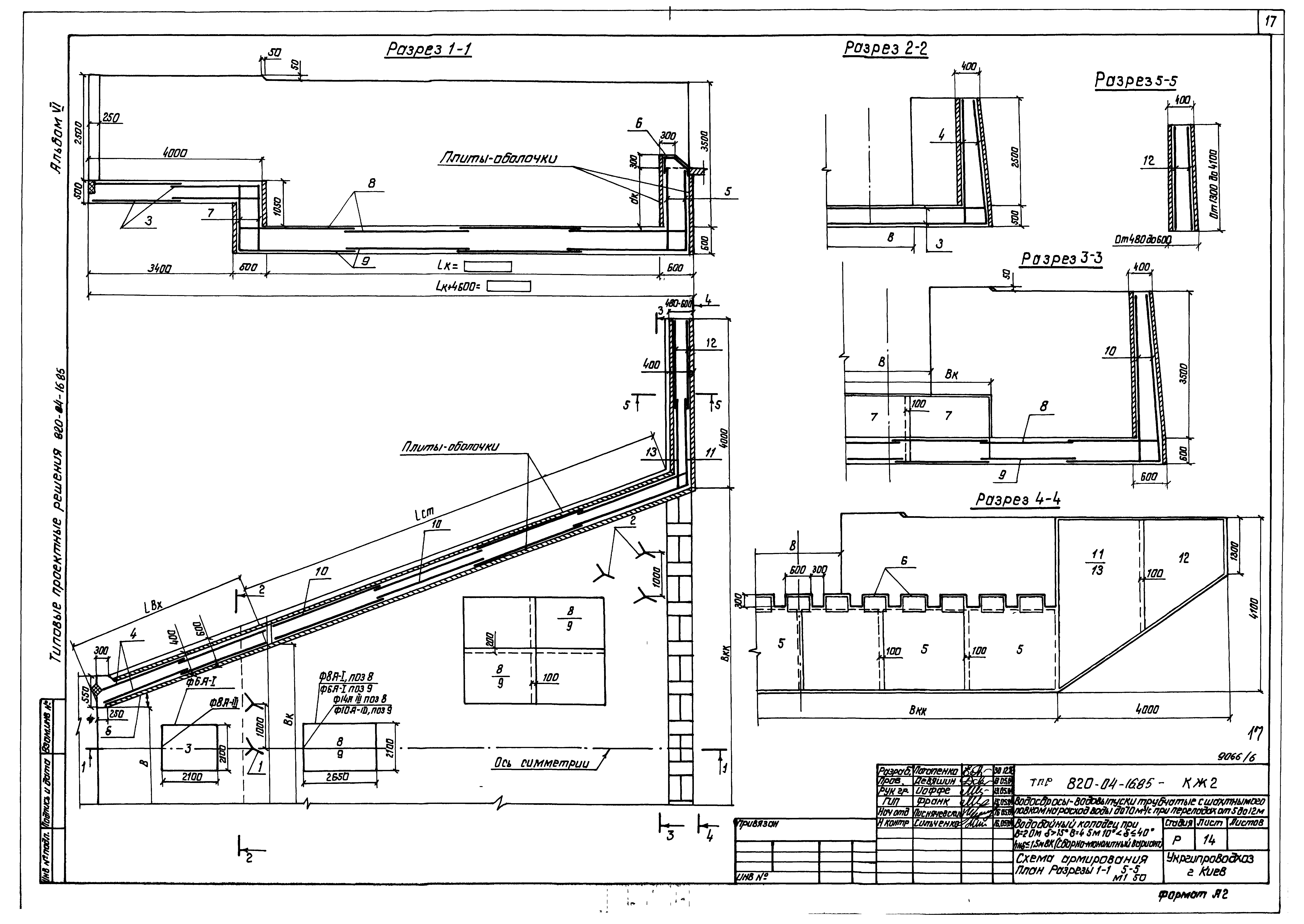
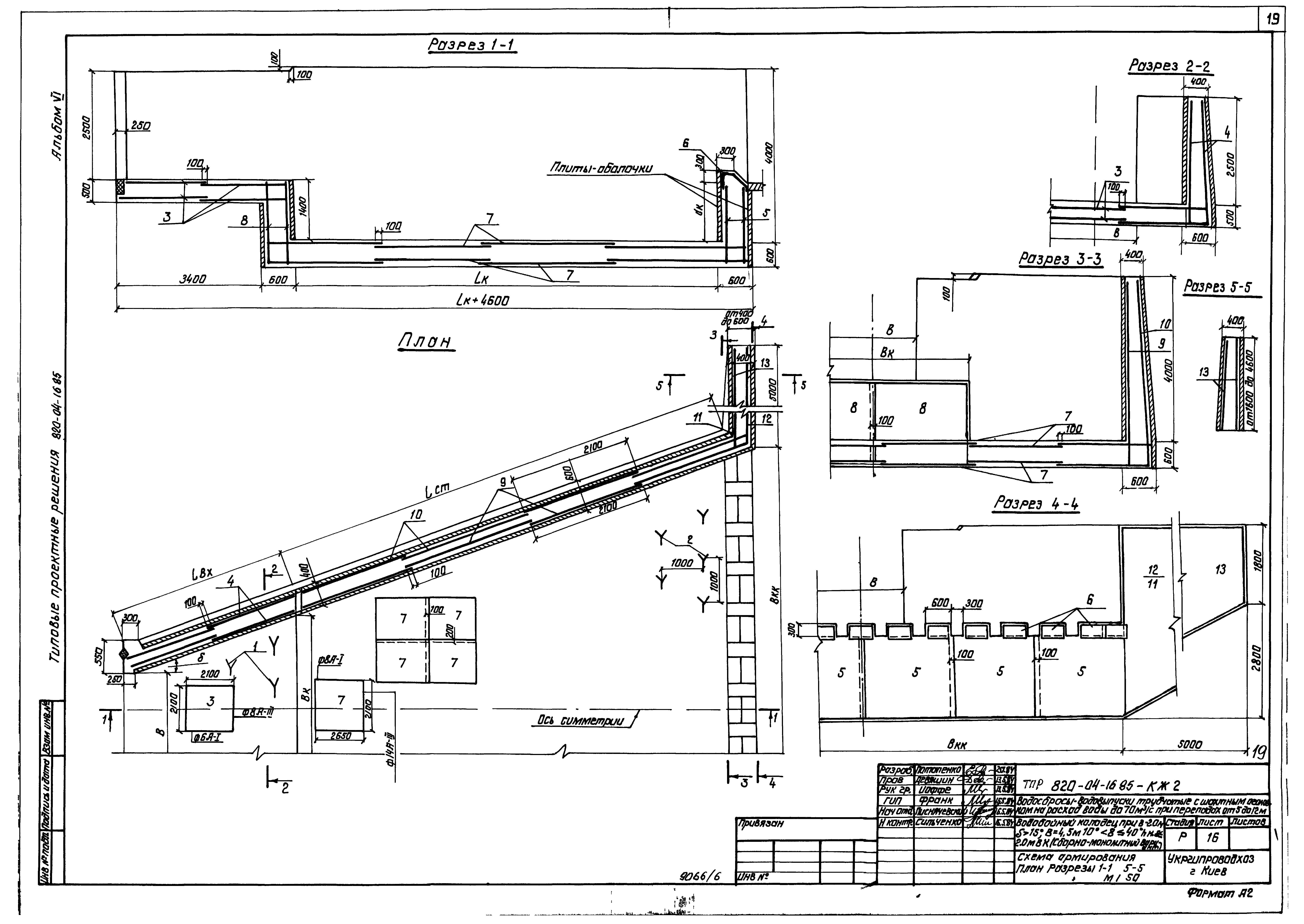
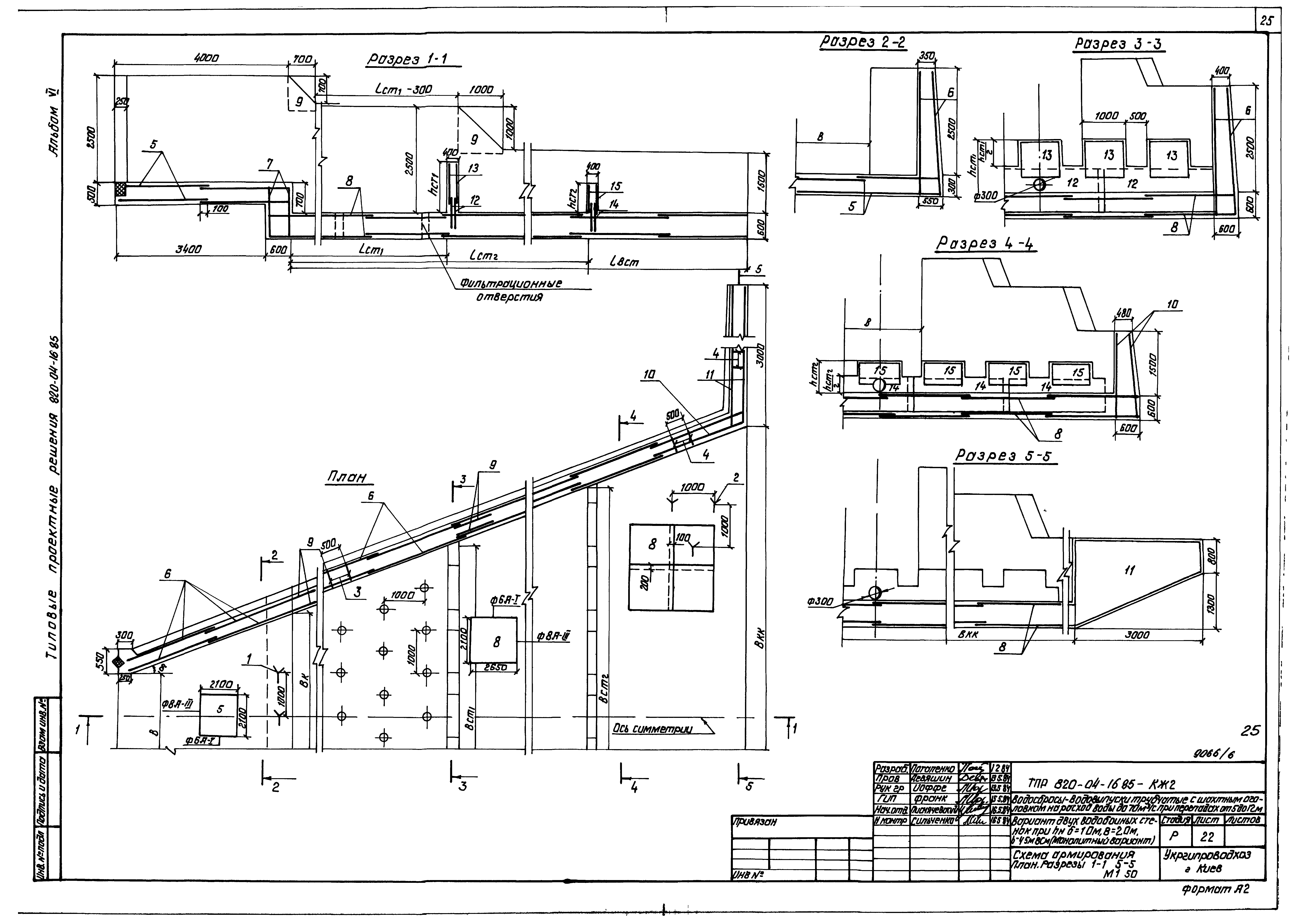
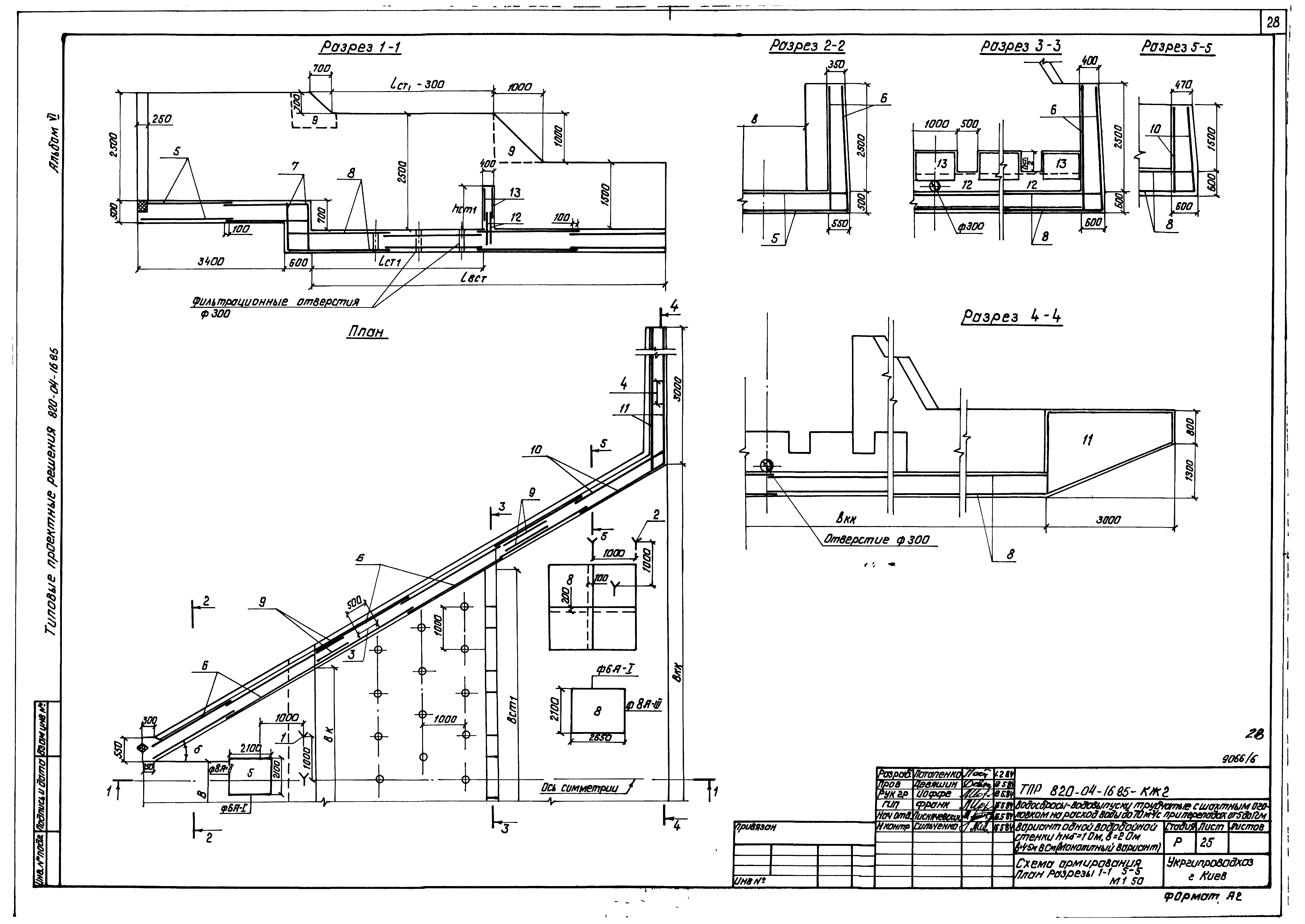
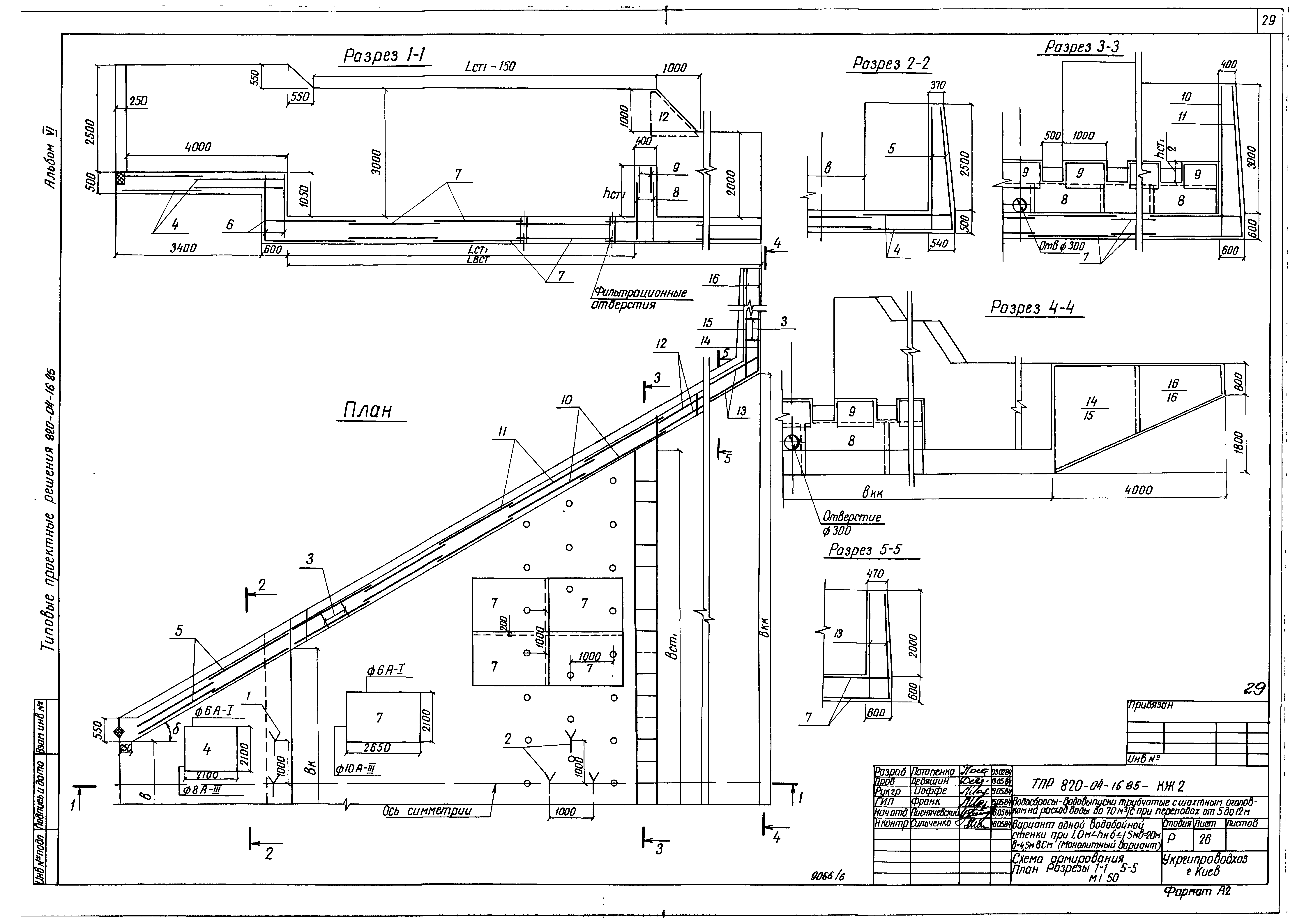
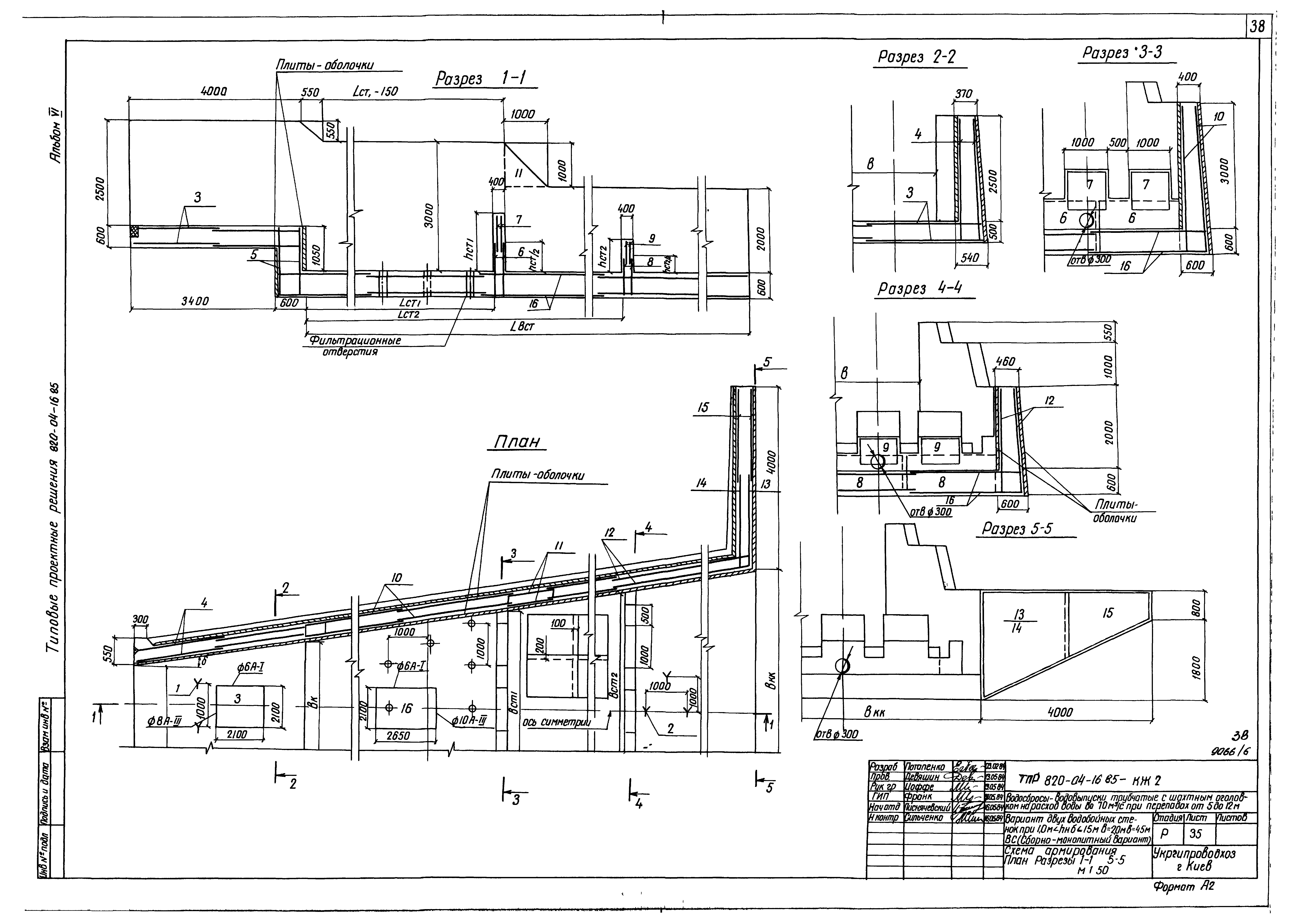
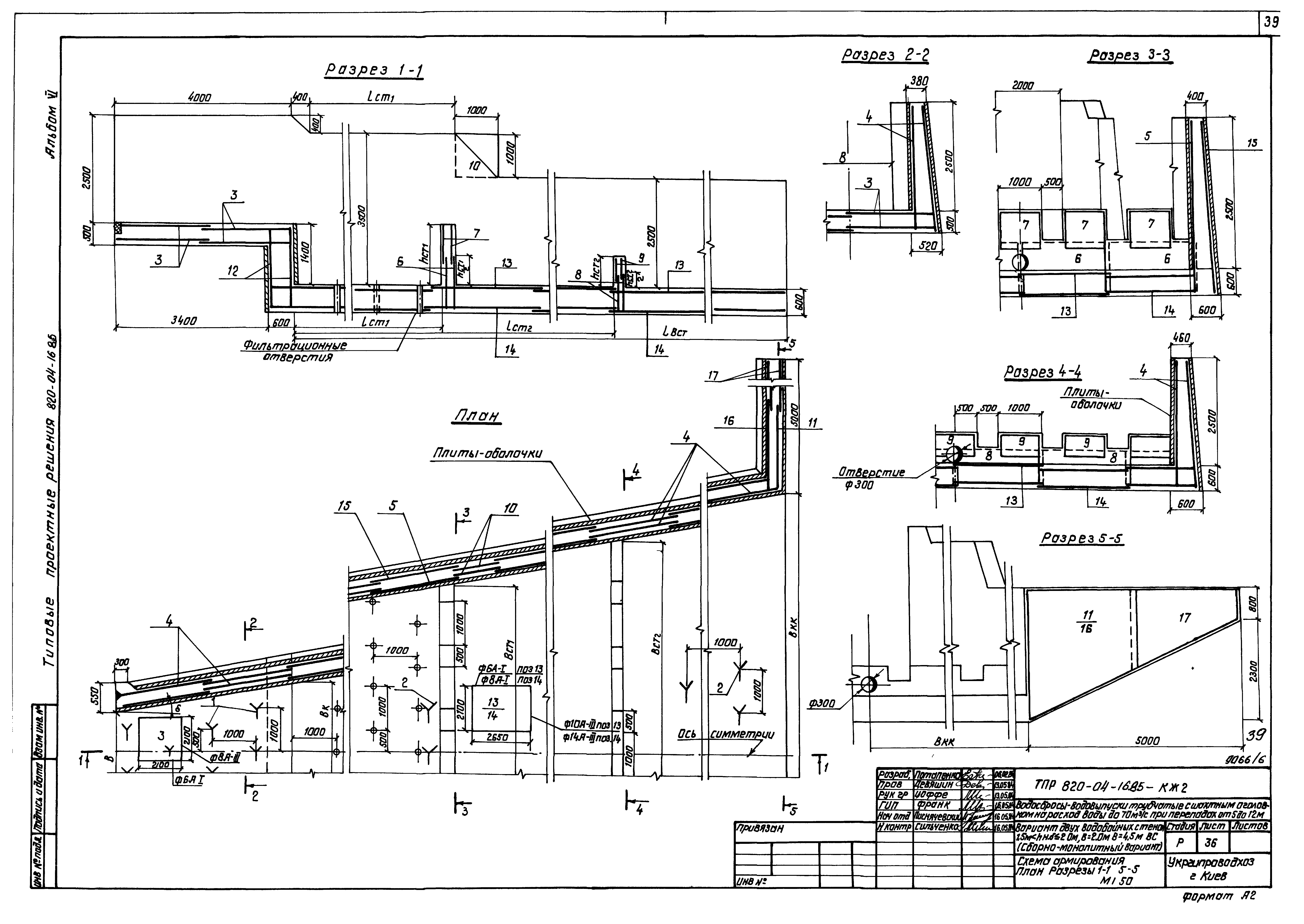
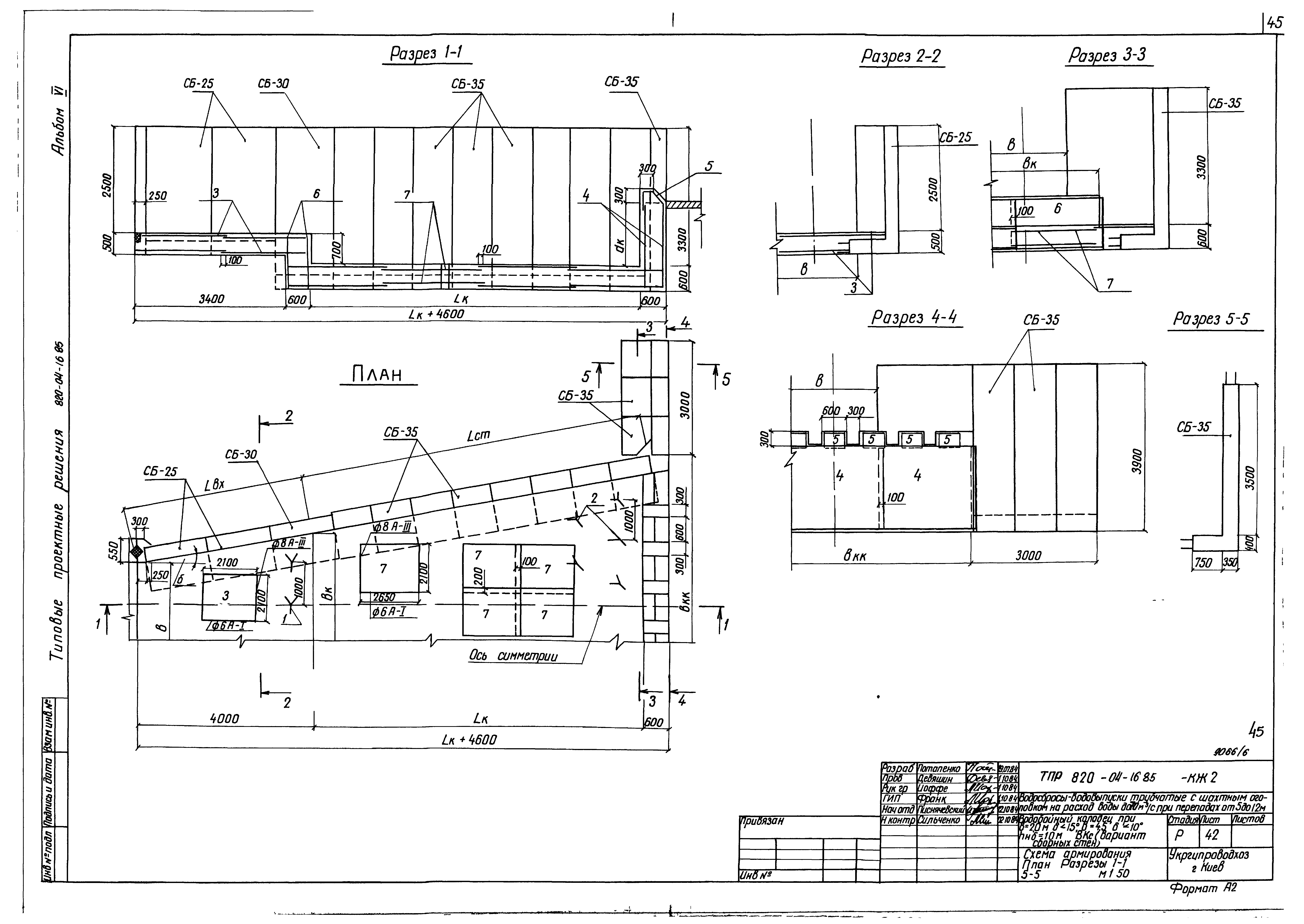
Скачать Типовые проектные решения 820-04-16.85 Альбом VI. Железобетонные конструкции водобойных колодцев и водобойных стенок. Монолитный и сборно-монолитный вариантыДата актуализации: 01.01.2021
|
| Обозначение: | Типовые проектные решения 820-04-16.85 |
| Обозначение англ: | 820-04-16.85 |
| Статус: | справочные материалы, мп, тпр |
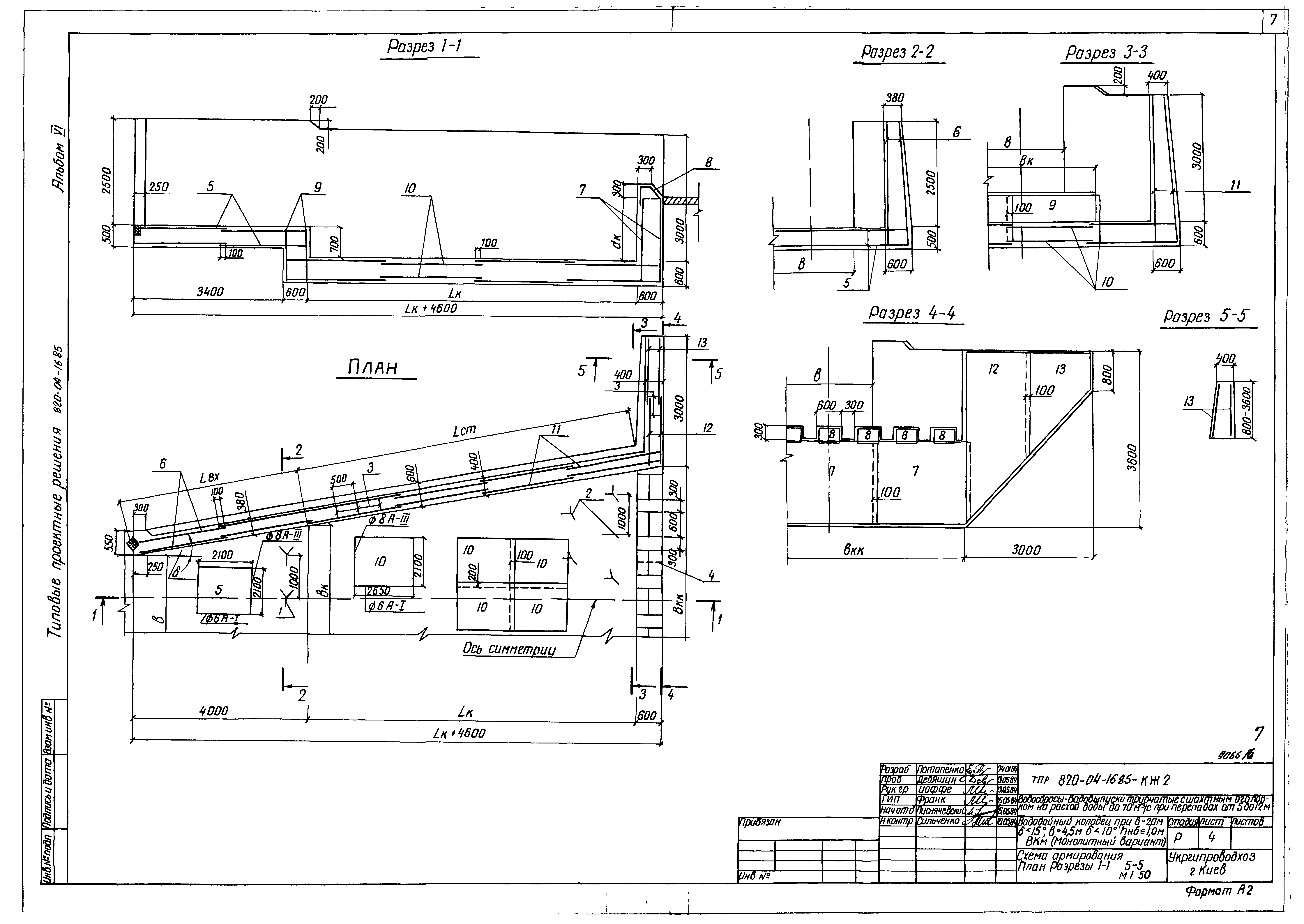
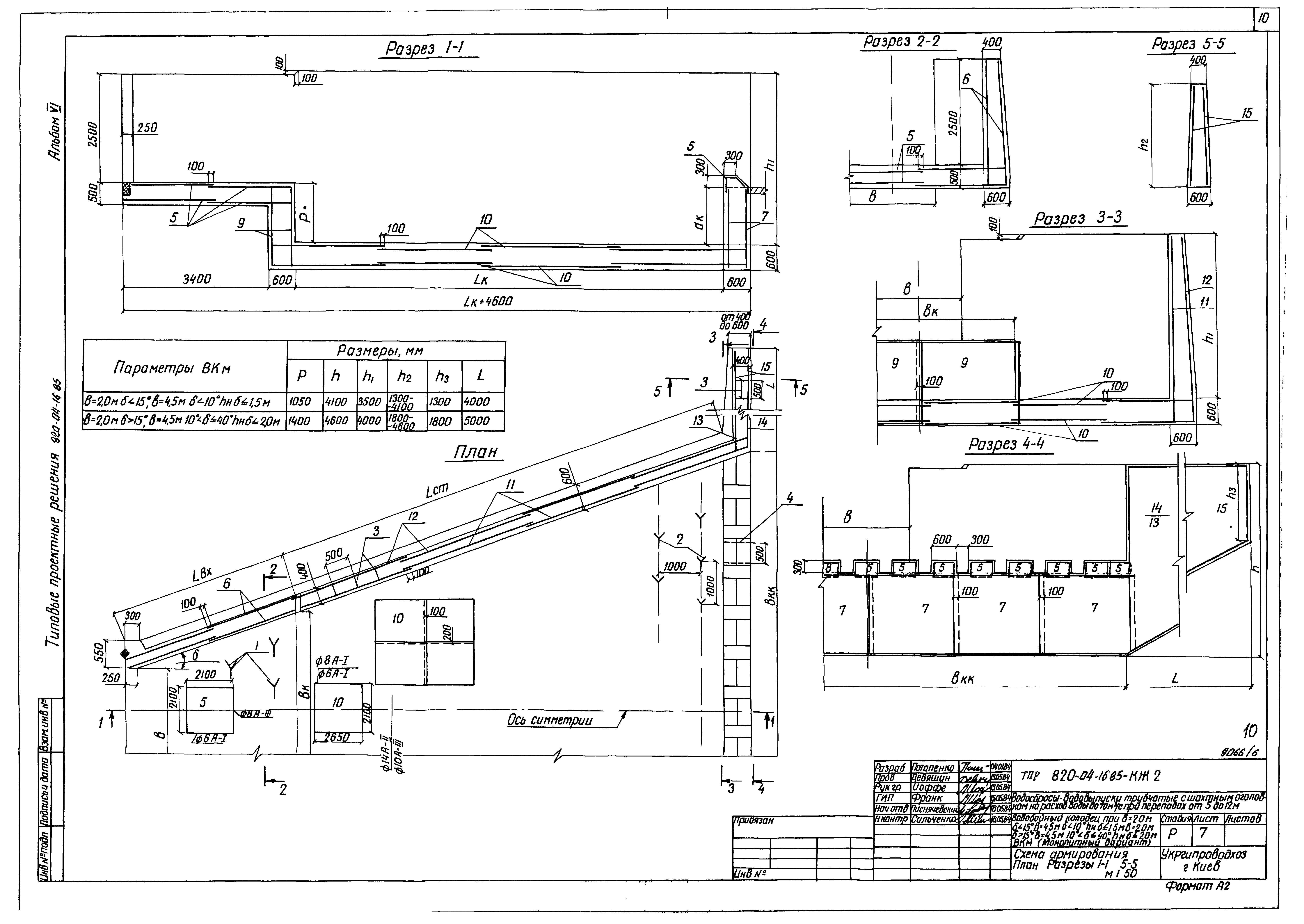
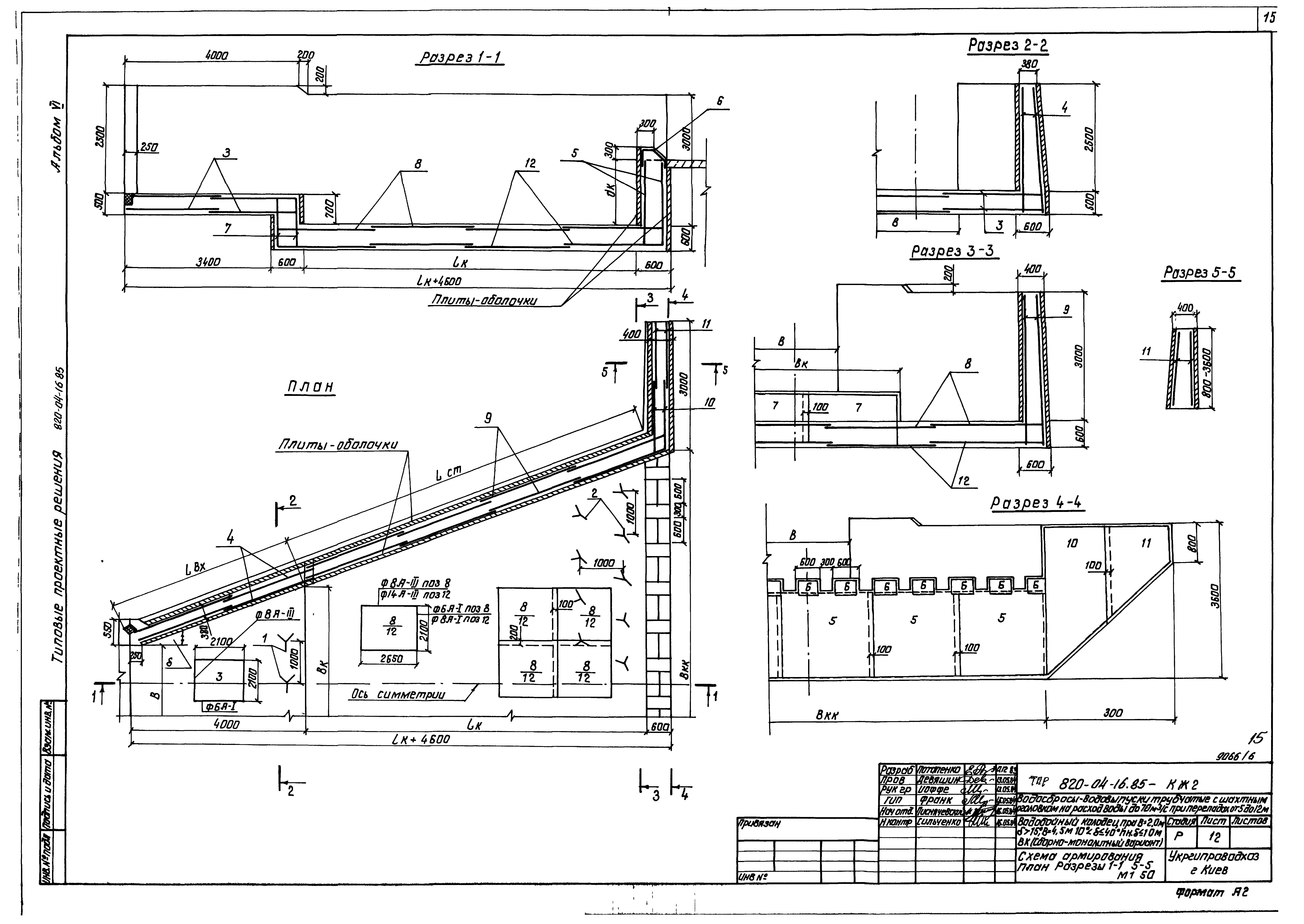
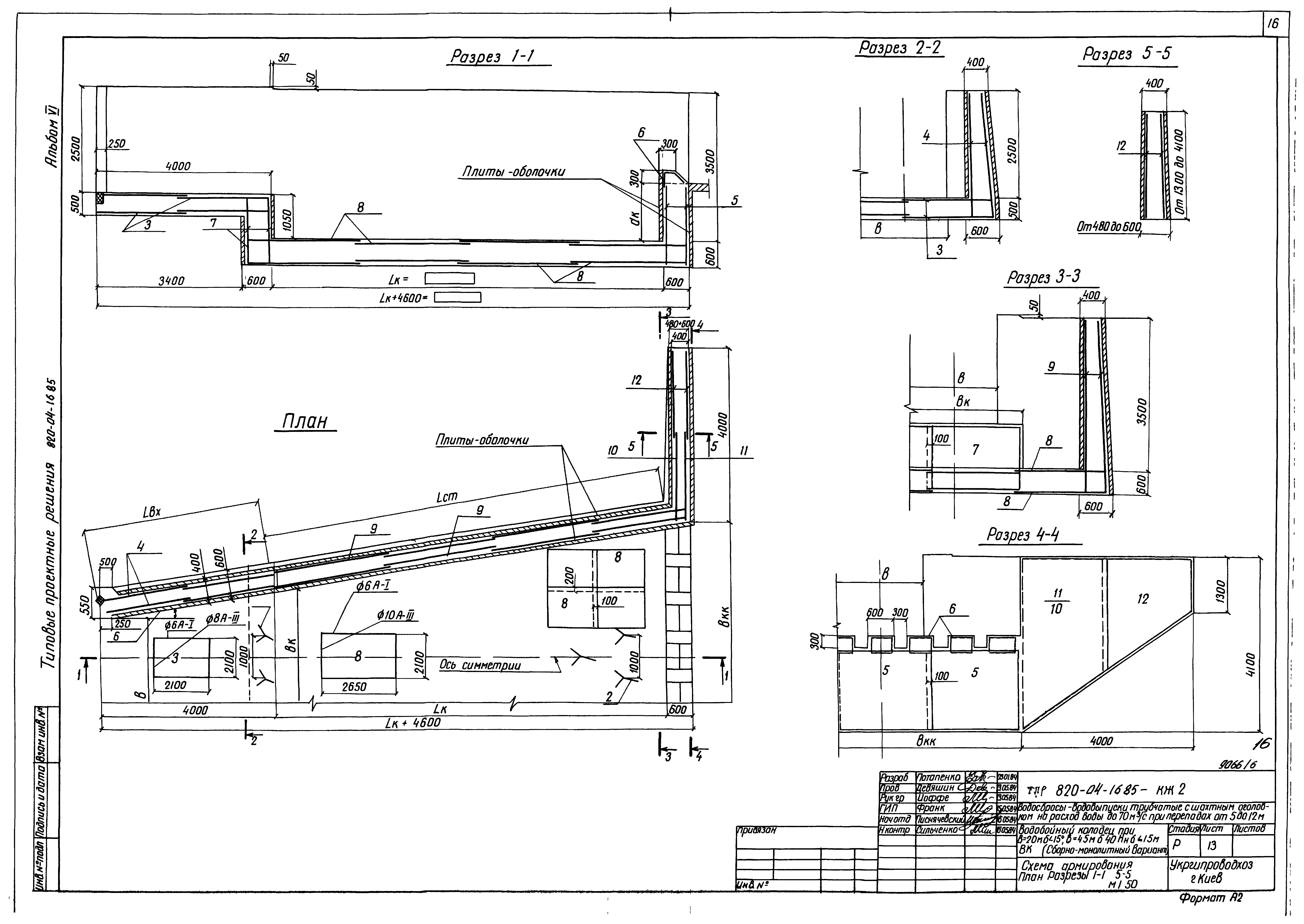
| Название рус.: | Альбом VI. Железобетонные конструкции водобойных колодцев и водобойных стенок. Монолитный и сборно-монолитный варианты |
| Дата добавления в базу: | 01.10.2014 |
| Дата актуализации: | 01.01.2021 |
| Дата введения: | 14.01.1985 |
| Разработан: | Укргипроводхоз Минводхоза СССР |
| Утверждён: | 14.01.1985 Минводхоз СССР (USSR Minvodkhoz 608) |
| Издан: | ЦИТП Госстроя СССР (CITP, Gosstroy (USSR) 1988 г. ) |





























































































