Скачать Типовой проект 901-3-244.88 Альбом II. Часть 1. Архитектурные решения. Конструкции металлические. Антикоррозийная защита. Конструкции железобетонныеДата актуализации: 01.01.2021
|
| Обозначение: | Типовой проект 901-3-244.88 |
| Обозначение англ: | 901-3-244.88 |
| Статус: | не определен законодательством |
| Название рус.: | Альбом II. Часть 1. Архитектурные решения. Конструкции металлические. Антикоррозийная защита. Конструкции железобетонные |
| Дата добавления в базу: | 01.10.2014 |
| Дата актуализации: | 01.01.2021 |
| Дата введения: | 13.04.1988 |
| Дата окончания срока действия: | 30.06.2003 |
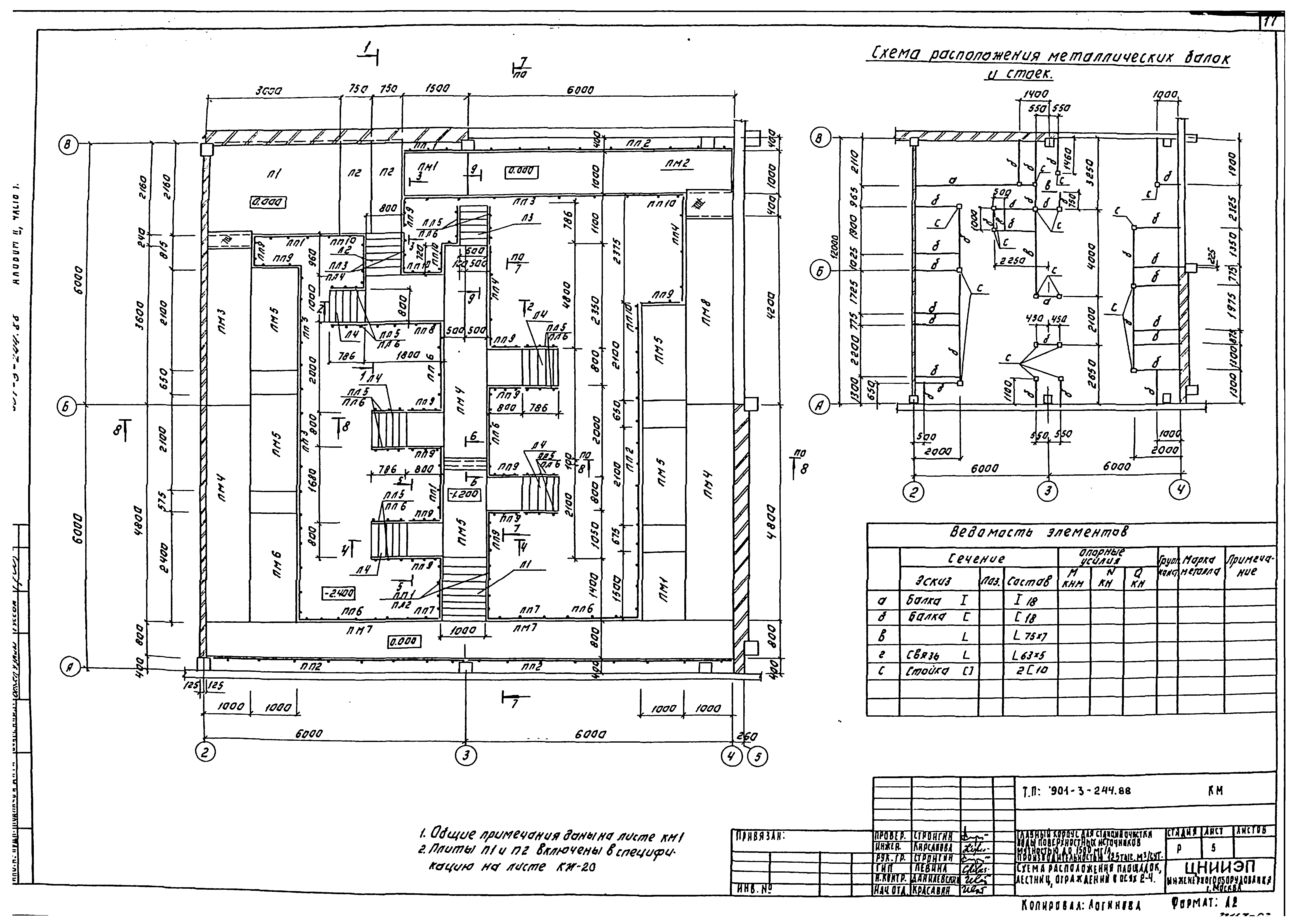
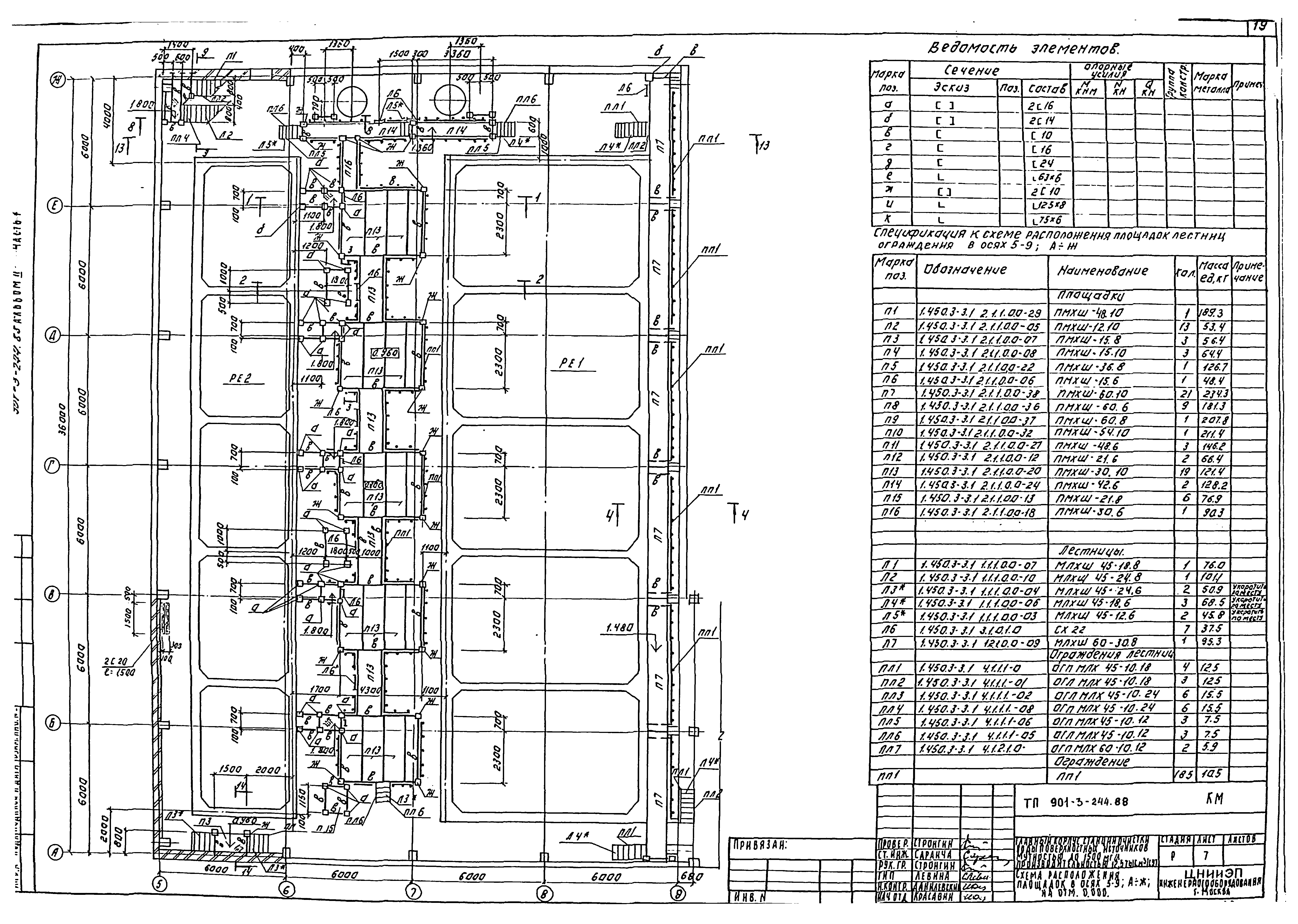
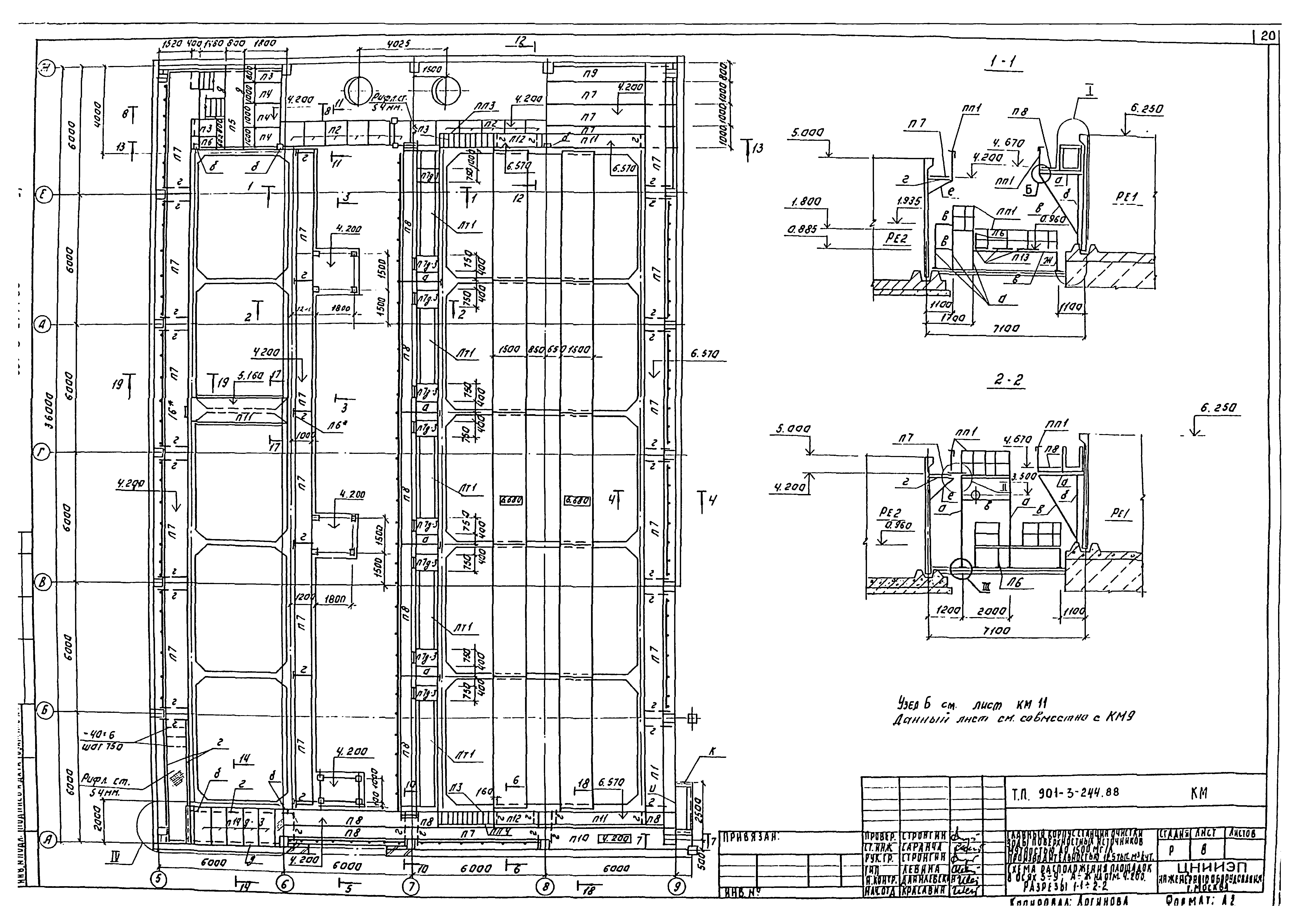
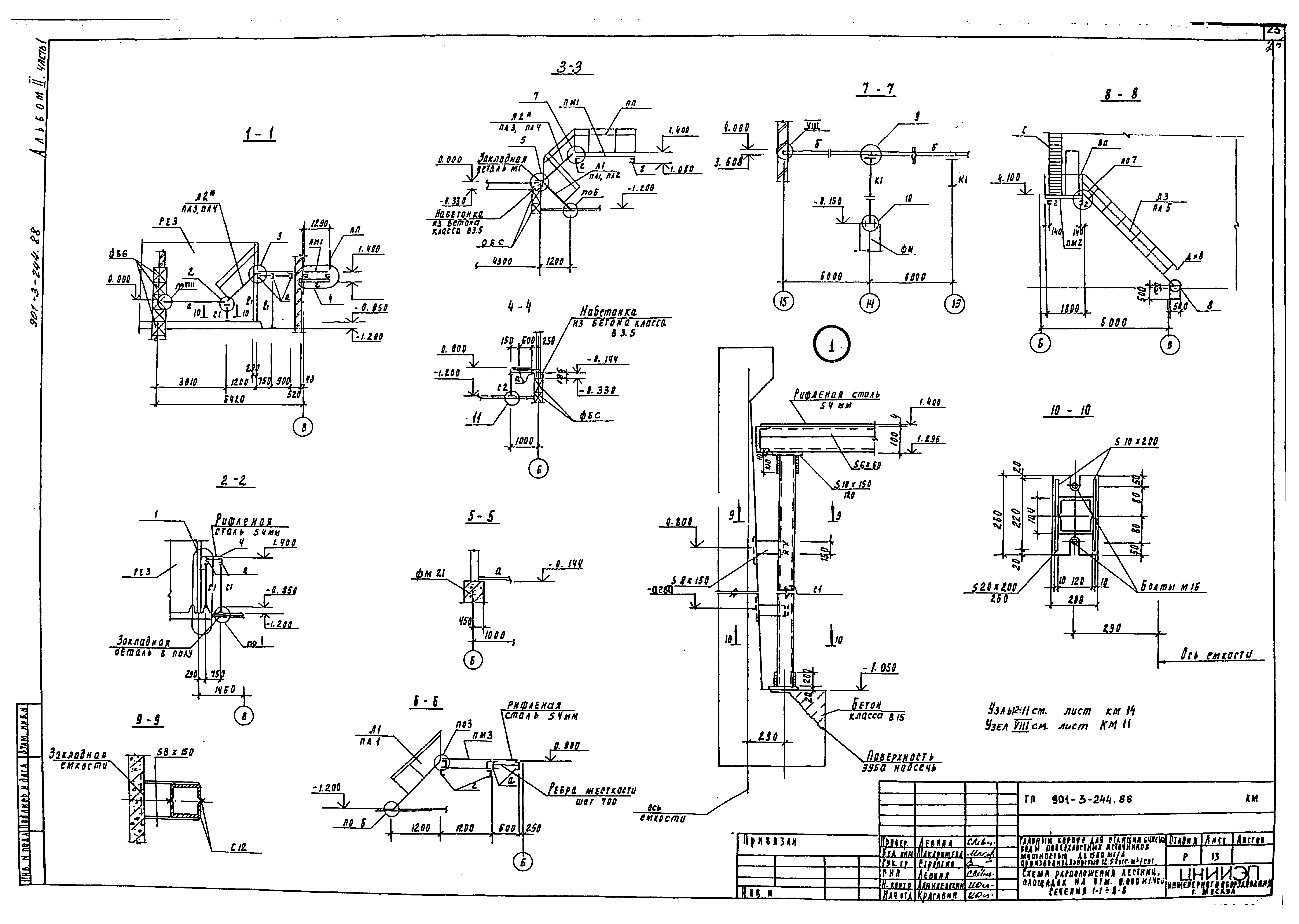
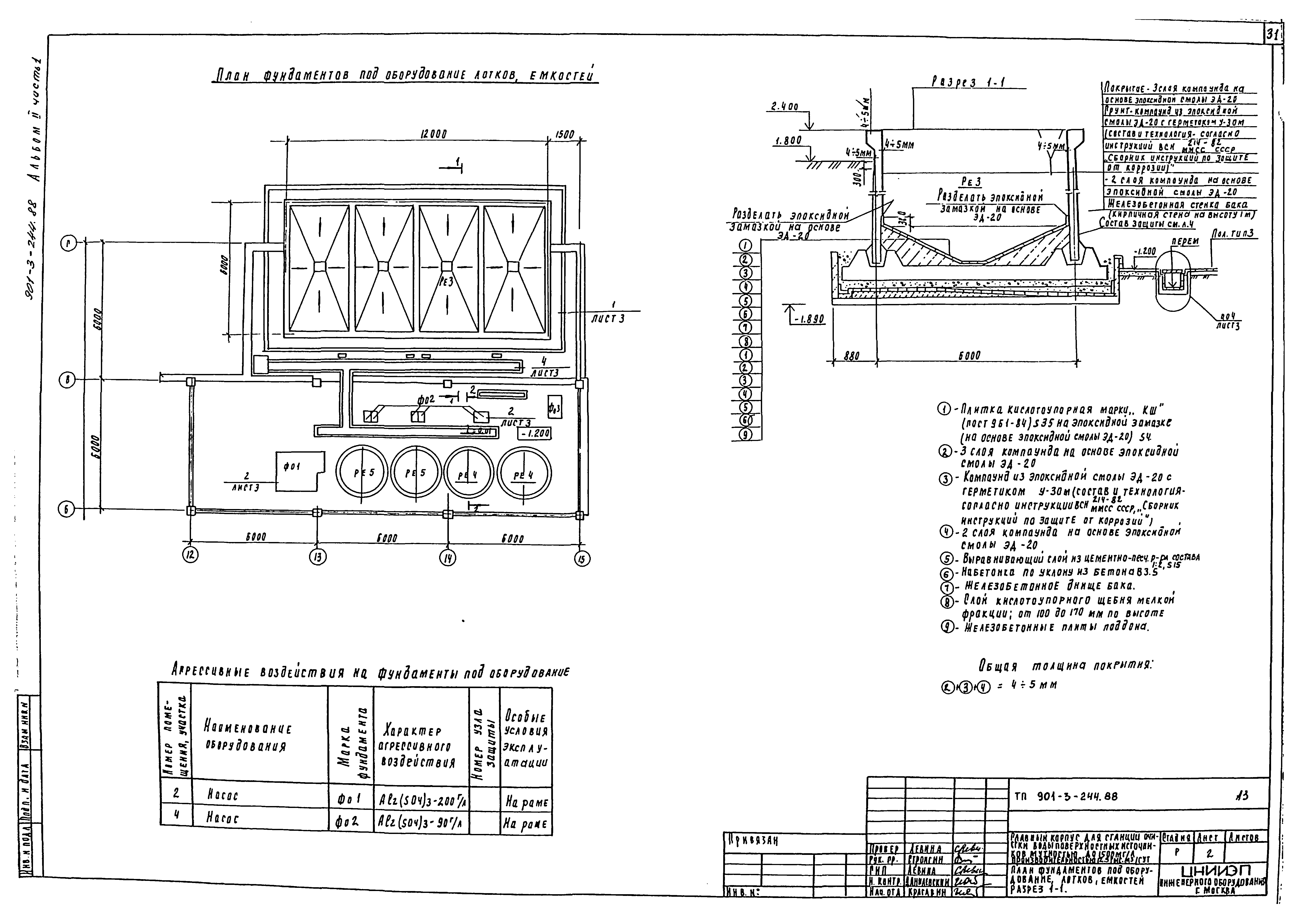
| Оглавление: | Архитектурные решения Общие данные План на отм. - 2.400; - 1.200 и 0.000 План на отм. 4.200 Разрезы 1-1 - 4-4 Фасады 1 - 15; 15 - 1; Ж - А; А - Ж Планы перегородок на отм. 0.000; 4.200. Спецификация сборных перегородок. Фрагменты 1 - 3 Планы и спецификация перемычек Планы отверстий на отм. 0.000 и 4.200 Ведомость отделки помещений. Спецификация элементов заполнения проемов План кровли. Планы и экспликация полов Конструкции металлические Общие данные. Техническая спецификация металла Техническая спецификация металла на типовые конструкции Выборка стали по видам профилей Схема расположения площадок, лестниц, ограждений в осях 2 - 4 Схема расположения площадок, лестниц, ограждений в осях 2 - 4. Разрезы 1-1 - 9-9. Узлы I - III Схема расположения площадок в осях 5 - 9; А - Ж на отм. 0.000 Схема расположения площадок в осях 5 - 9; А - Ж на отм. 4.200. Разрезы 1-1, 2-2 Узлы I - IV Разрезы 3-3 - 12-12; 19-19 Разрезы 13-13 - 18-18. Узлы V - VIII Схема расположения лестниц, площадок на отм. 0.000 и 1.400 в осях 13 - 15 Схема расположения лестниц, площадок на отм. 0.000 и 1.400. Сечения 1-1 - 8-8 Узлы 2 - 10 к схеме расположения площадок, лестниц, ограждений в осях 13 - 15 Схема расположения путей подвесного транспорта Схема расположения путей подвесного транспорта. Разрезы 3-3 - 5-5. Узлы I - V Схема расположения пожарных лестниц и ограждений парапета Антикоррозийная защита Общие данные План фундаментов под оборудование, лотков, емкостей. Разрез 1-1 Разрез 2-2. Узлы 1 - 4. Деталь пропуска полиэтиленовых труб Планы полов Ведомость объемов антикоррозийных работ График производства работ |
| Разработан: | ЦНИИЭП |
| Утверждён: | 29.07.1986 Госгражданстрой (Gosgrazhdanstroy 242) |
| Издан: | ЦИТП Госстроя СССР (CITP, Gosstroy (USSR) 1988 г. ) |
| Заменяет собой: |
|




































