Скачать Типовой проект 901-3-285.91 Альбом 2. Технология производства. Внутренний водопровод и канализация. Эскизные чертежи общих видов. Отопление и вентиляцияДата актуализации: 01.01.2021
|
| Обозначение: | Типовой проект 901-3-285.91 |
| Обозначение англ: | 901-3-285.91 |
| Статус: | не определен законодательством |
| Название рус.: | Альбом 2. Технология производства. Внутренний водопровод и канализация. Эскизные чертежи общих видов. Отопление и вентиляция |
| Дата добавления в базу: | 01.10.2014 |
| Дата актуализации: | 01.01.2021 |
| Дата введения: | 29.07.1986 |
| Дата окончания срока действия: | 30.06.2003 |
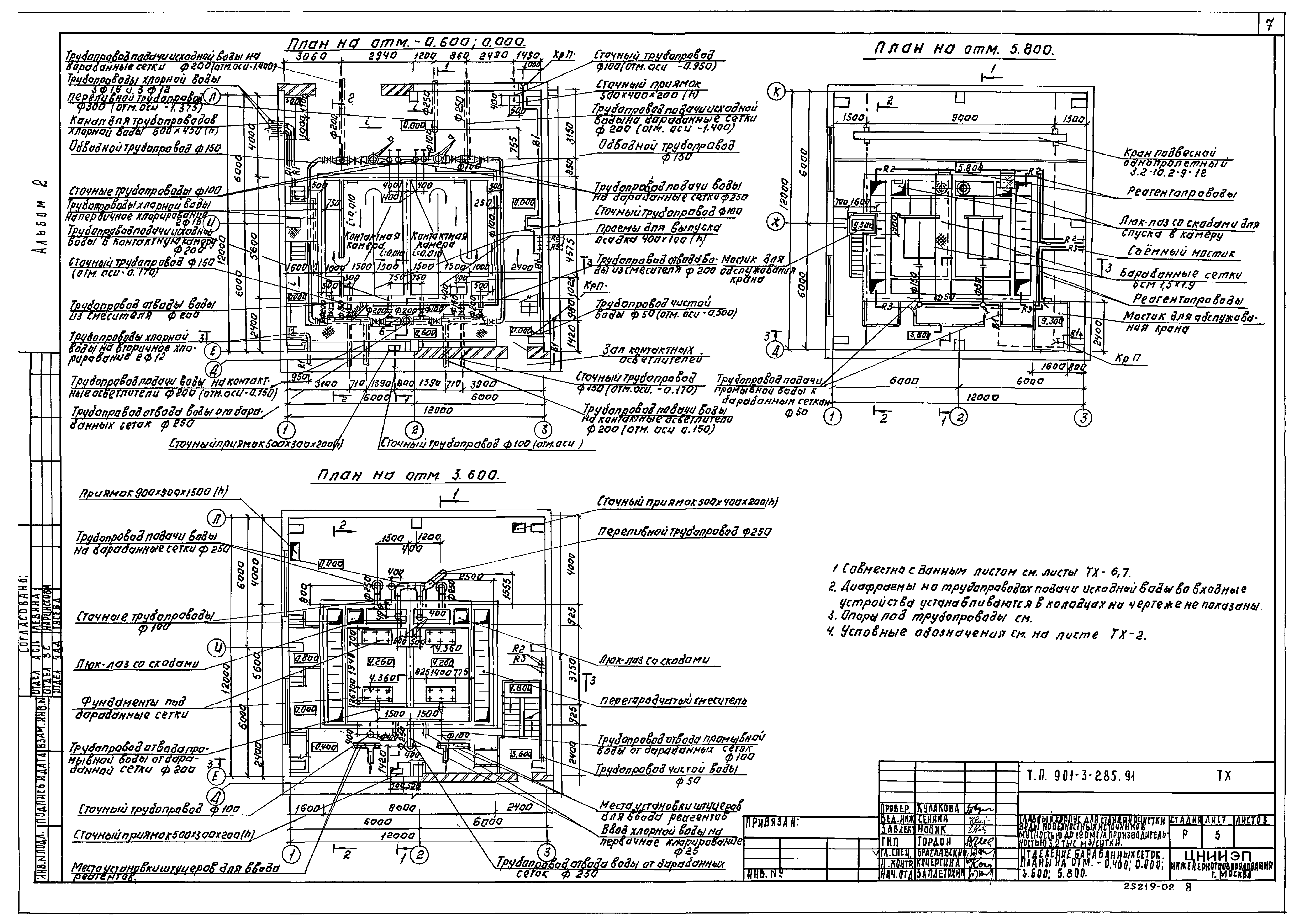
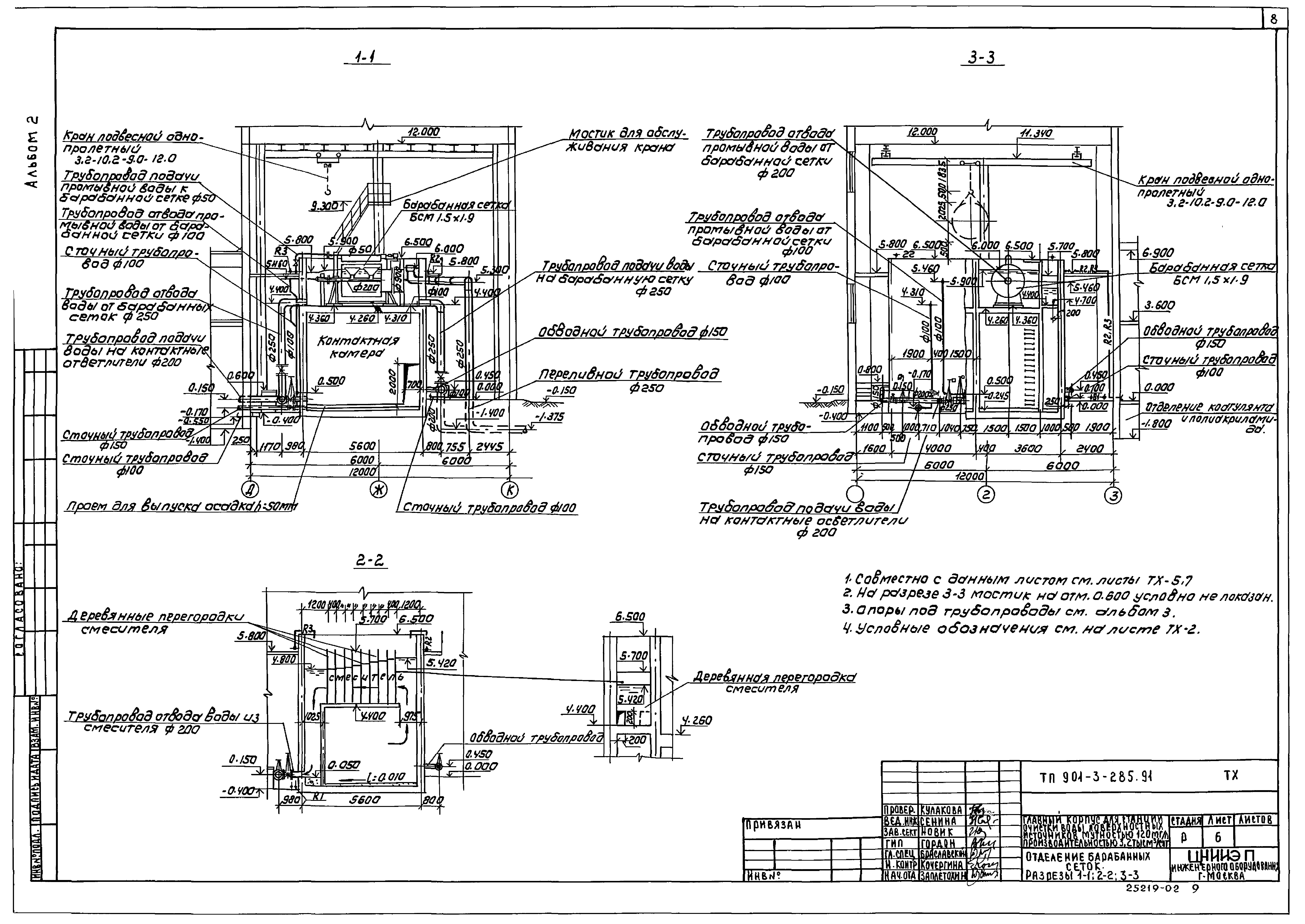
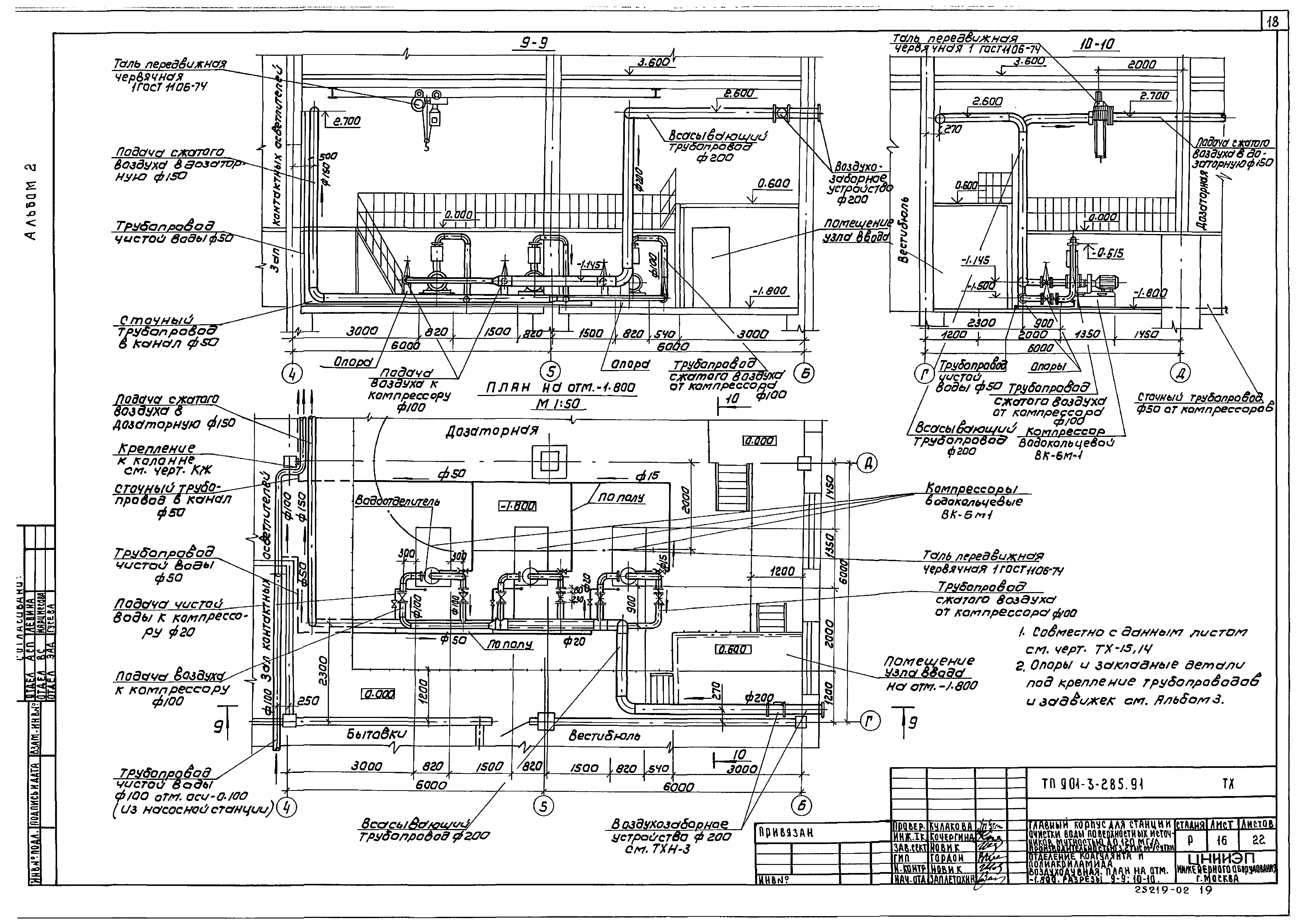
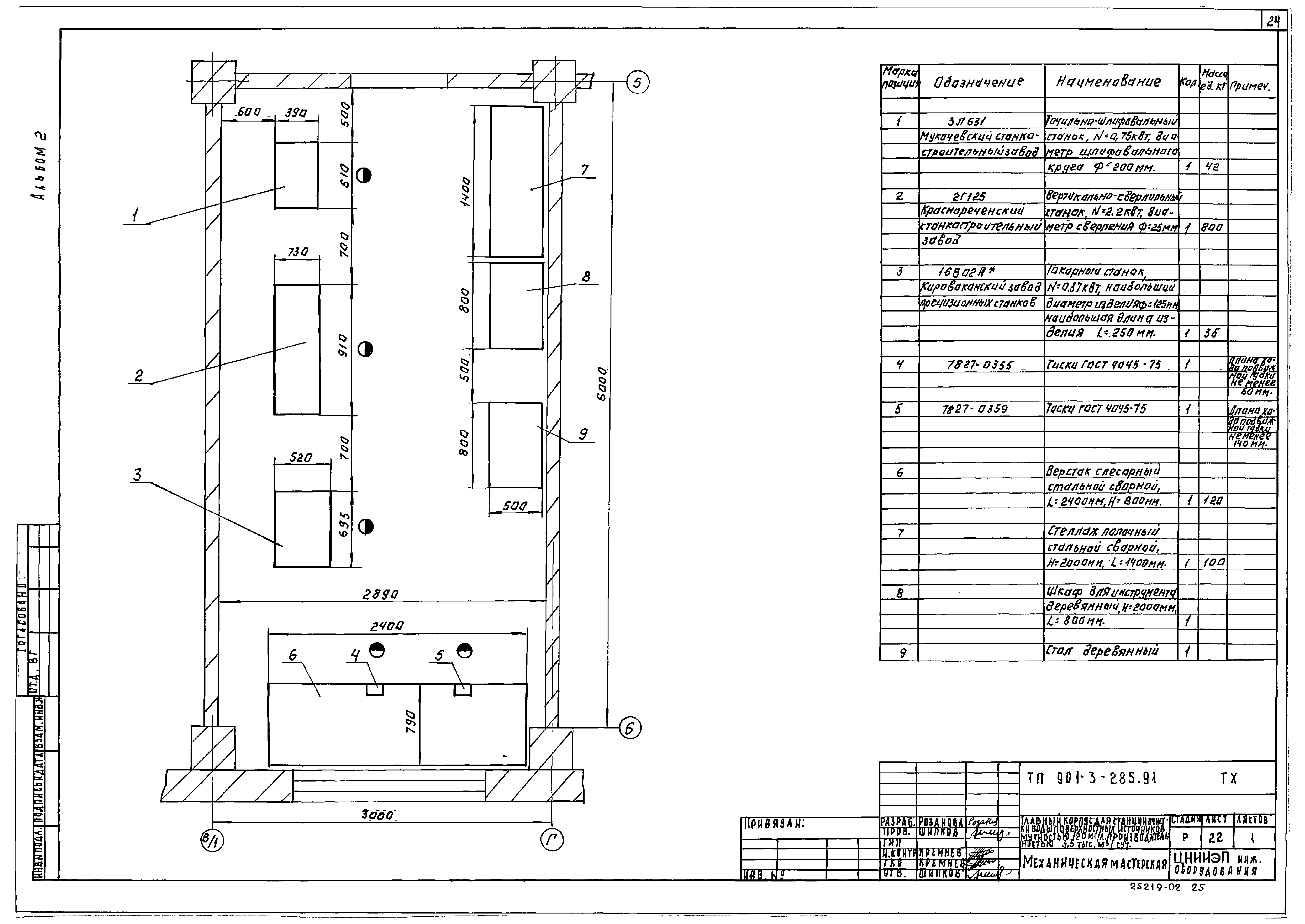
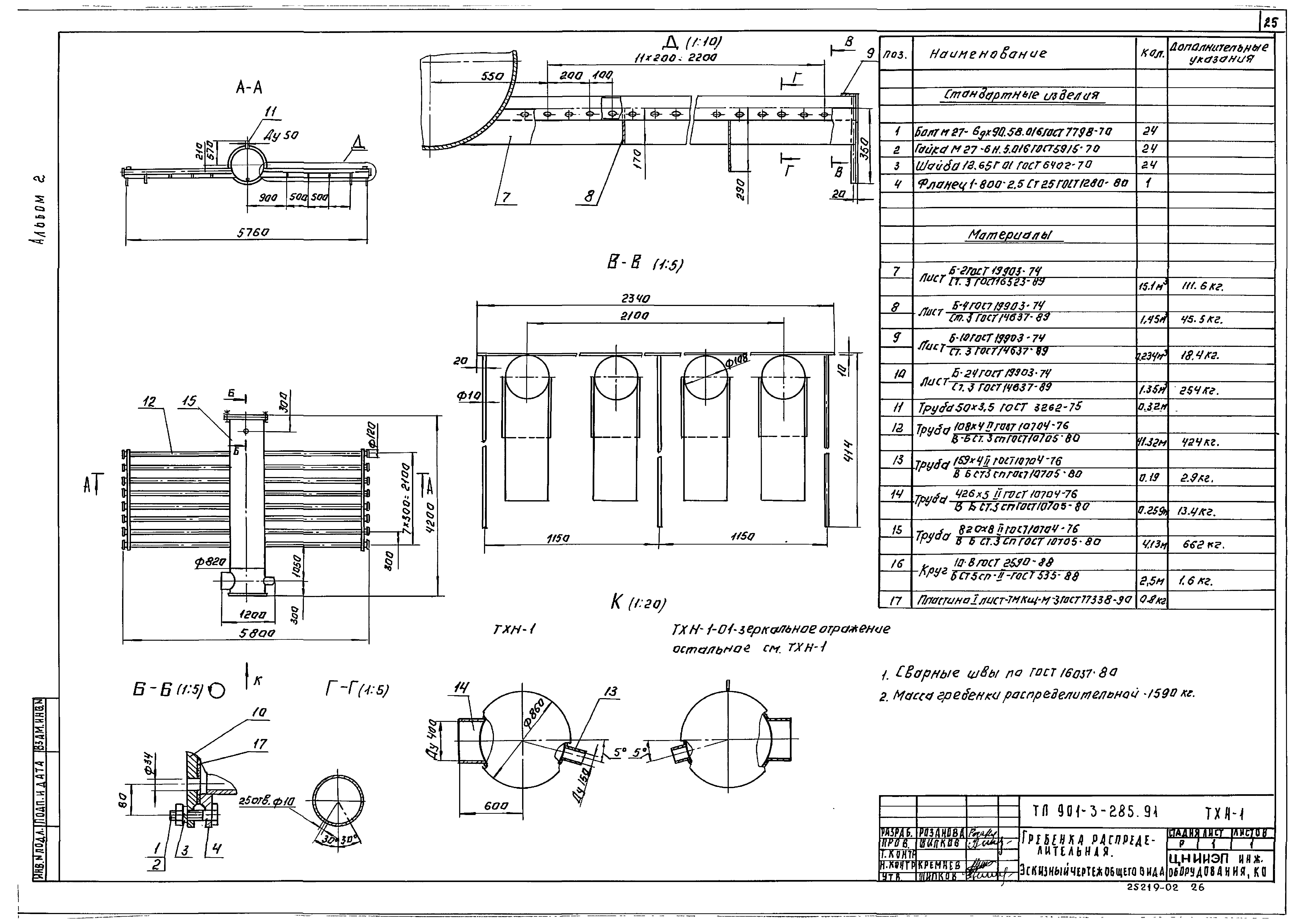
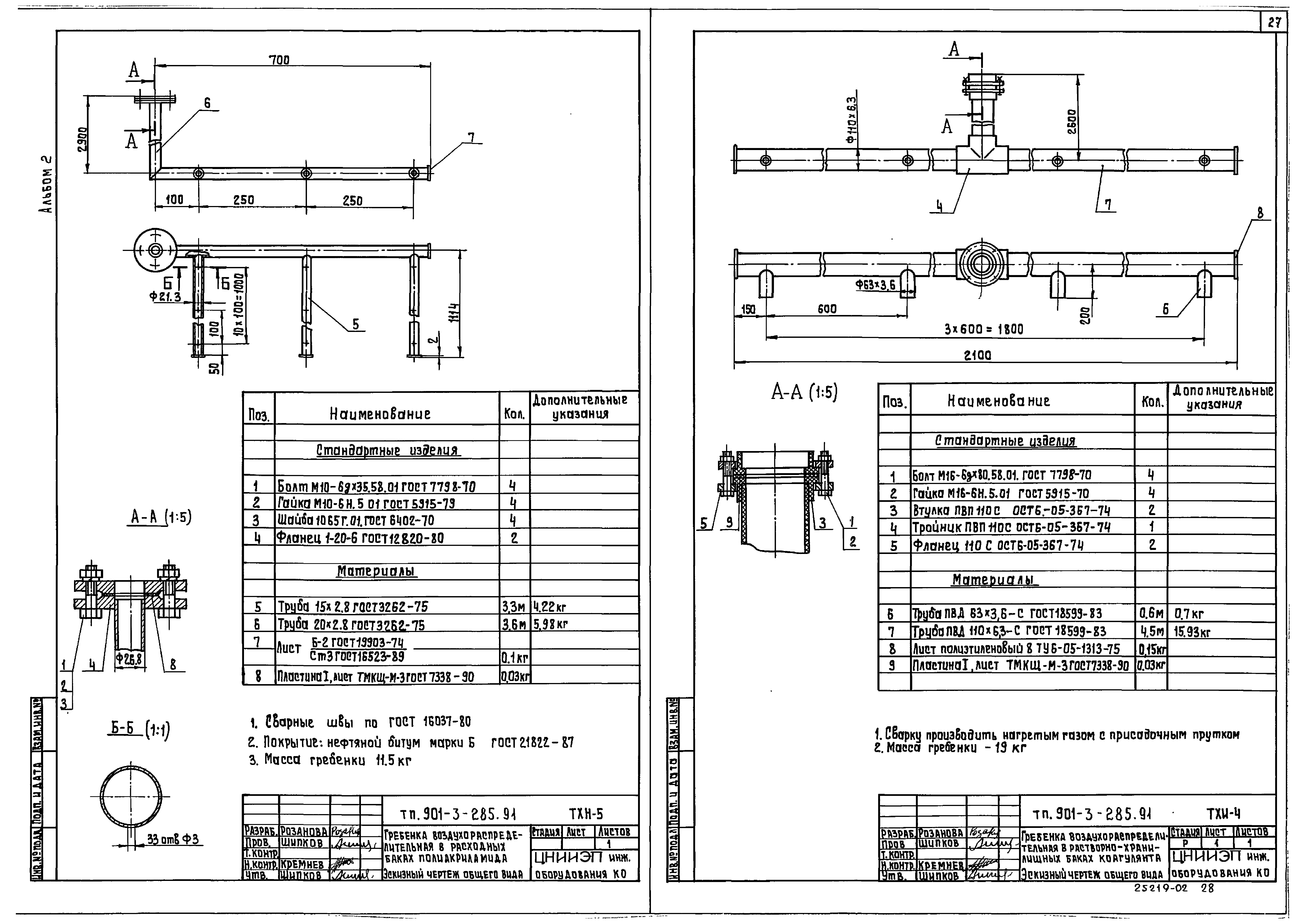
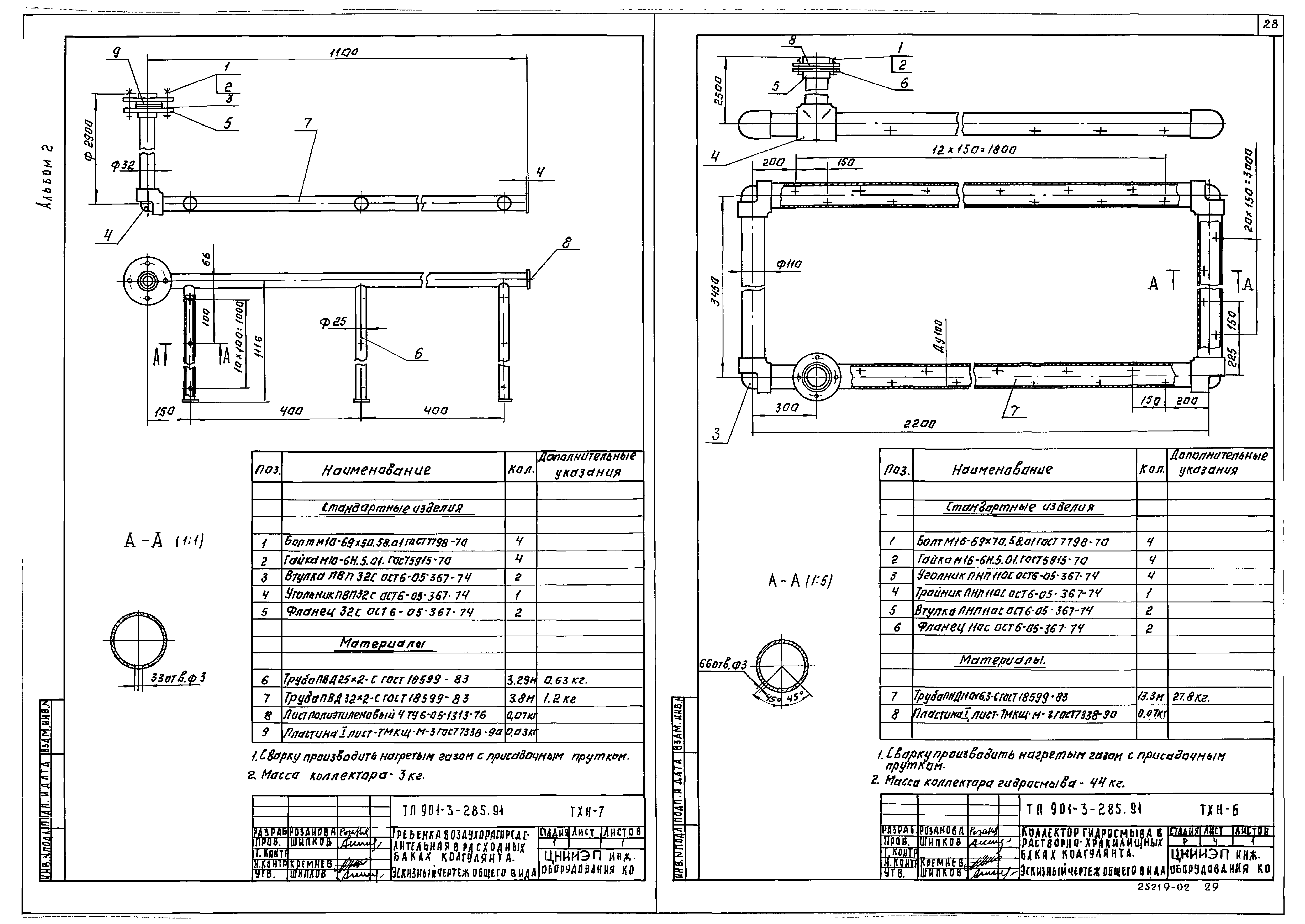
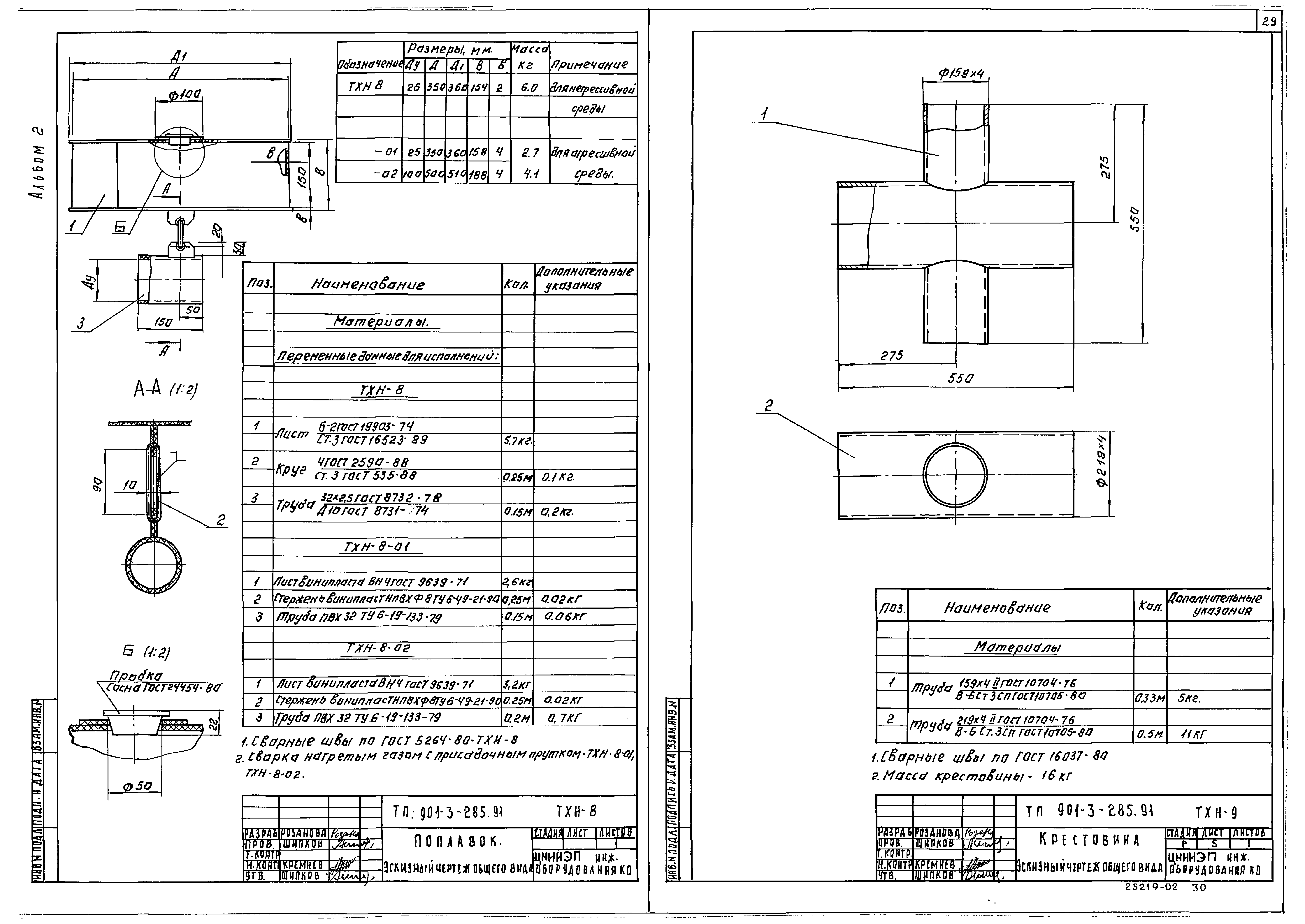
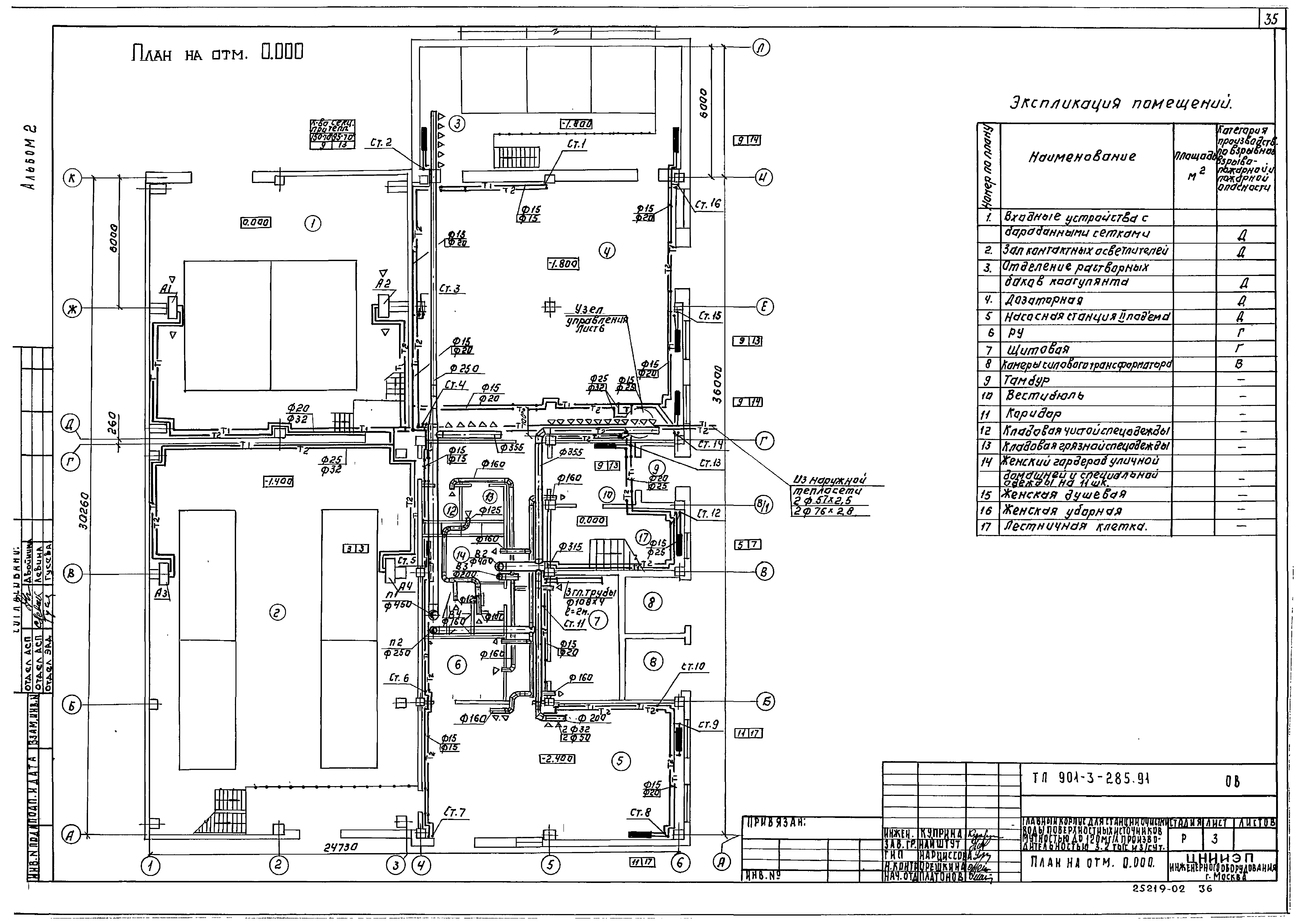
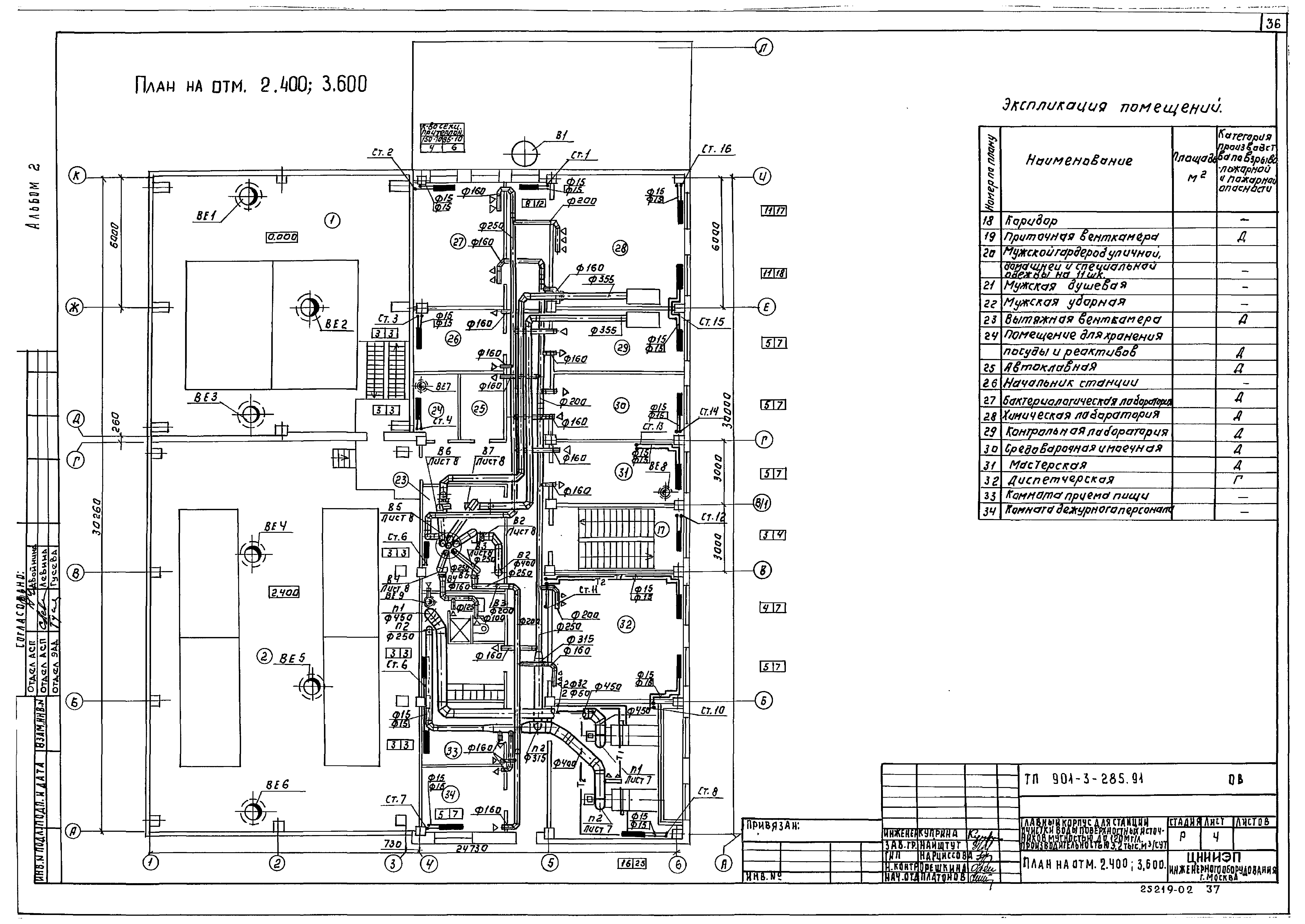
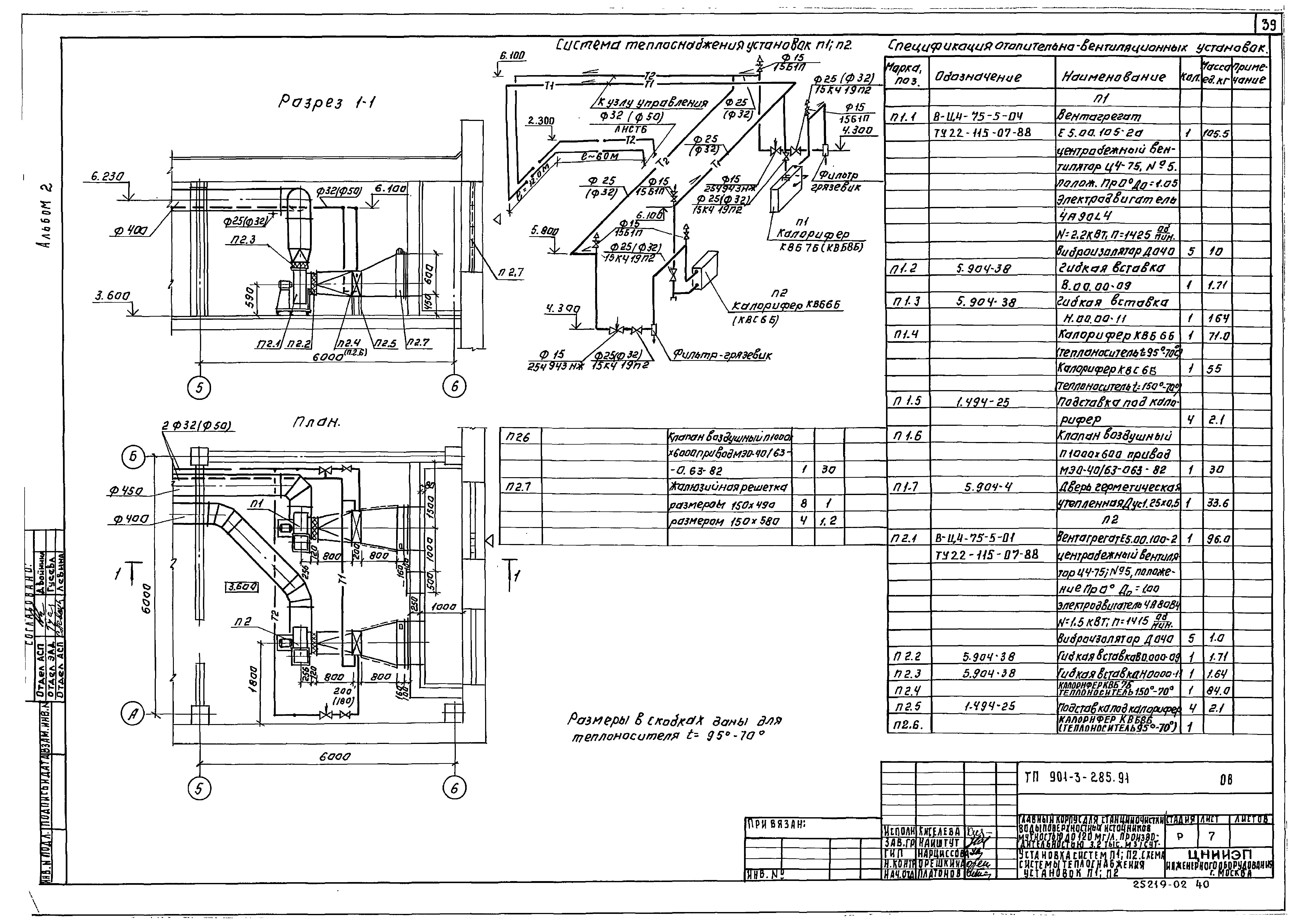
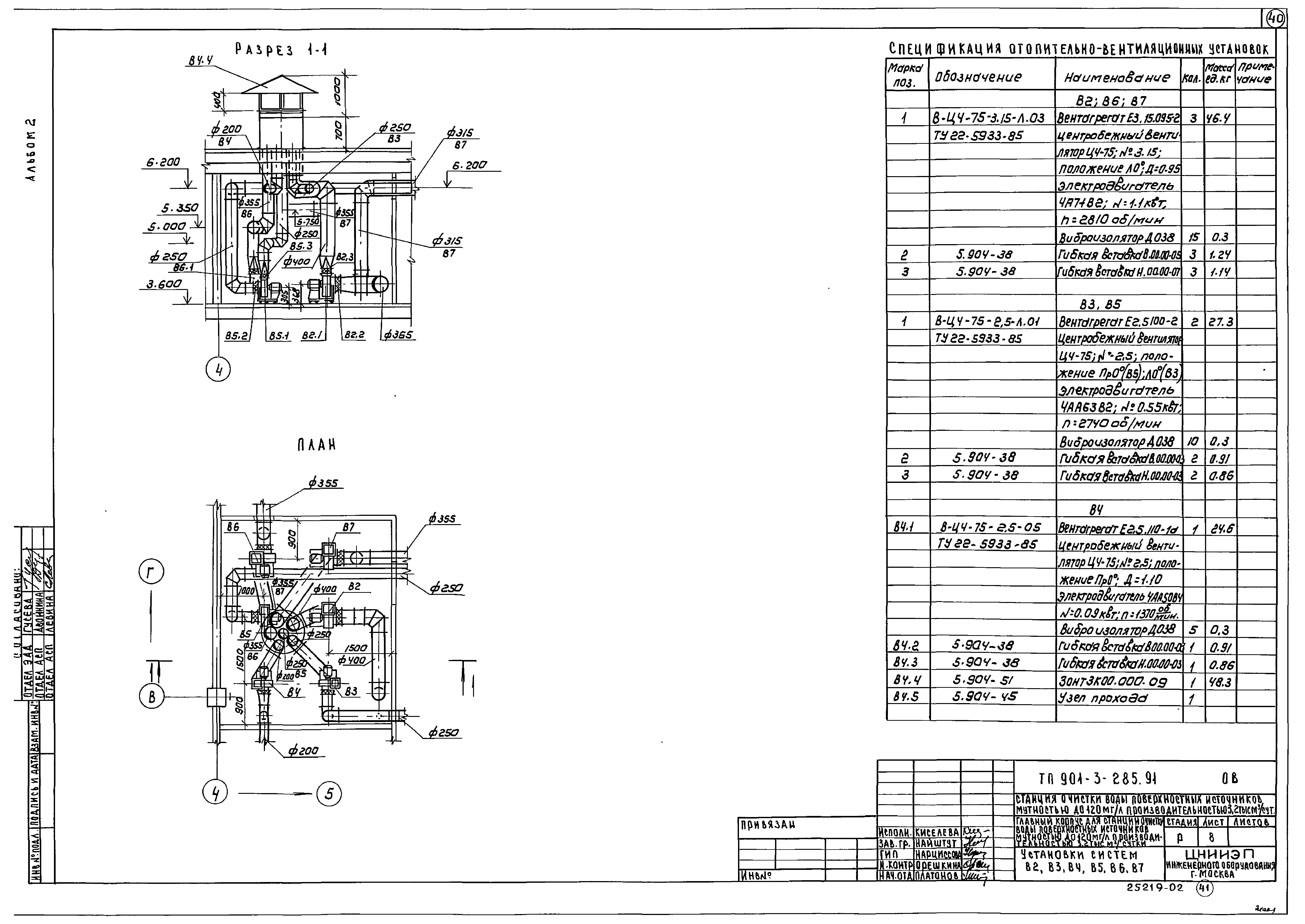
| Оглавление: | Технология производства Общие данные Вертикальная схема обработки воды Вертикальная схема приготовления основных реагентов Общеувязочные планы на отм. - 2.400; - 1.800; - 1.400; 0.000; 2.400; 3.600; 5.800. Экспликация помещений Отделение барабанных сеток Планы на отм. - 0.600; 0.000; 3.600; 5.800 Разрезы 1-1, 2-2, 3-3 Схемы трубопроводов В7, В1, К3, R1 Зал контактных осветлителей Планы на отм. - 1.400; 0.000; 2.400; 3.600 Разрезы 4-4, 5-5. Сечение А-А Схемы трубопроводов В1 и В7 Схемы трубопроводов В1 и К3 Гребенка безгравийной трубчатой распределительной системы План на отм. - 1.400; 0.000 с нанесением пробоотборных трубок. Схема пробоотборного узла Отделение коагулянта и полиакриламида Планы на отм. - 1.800; 0.000; 0.600. Разрез 6-6. Сечение А-А Фрагмент плана на отм. - 1.800. Разрезы 7-7, 8-8 Воздуходувная. План на отм. - 1.800. Разрезы 9-9, 10-10 Схемы трубопроводов R2, R3, К3 Схемы трубопроводов В1, В7, А0 Лаборатории. План на отм. 3.600 с расстановкой мебели и оборудования Насосная станция II-го подъема Планы на отм. - 2.400; 0.000. Разрезы 11-11; 12-12 Схемы В1, К3 Механическая мастерская Эскизные чертежи общих видов нетиповых конструкций марки ТХН Гребенка распределительная Крестовина Устройство воздухозаборное Ду200 Гребенка воздухораспределительная в растворохранилищных баках коагулянта Гребенка воздухораспределительная в растворных баках полиакриламида Коллектор гидросмыва Коллектор воздухораспределительный в расходных баках коагулянта Поплавок Рама лебедки Внутренний водопровод и канализация Общие данные Планы на отм. 0.000; 3.600 с разводкой трубопроводов. Схема В1, Т3, К1, К2 Отопление и вентиляция Общие данные План на отм. 0.000 План на отм. 2.400; 3.600 Схемы вентиляции П1, П2, В1 - В7, ВЕ1 - ВЕ9 Схемы систем отопления. Узел управления Установка систем П1, П2. Схема теплоснабжения систем П1, П2 Установка систем В2 - В7 |
| Разработан: | ЦНИИЭП |
| Утверждён: | 29.07.1986 Госгражданстрой (Gosgrazhdanstroy 242) |
| Заменяет собой: |
|








































