Скачать Типовой проект 901-3-285.91 Альбом 3. Часть 1. Архитектурные решения. Конструкции металлические. Антикоррозийная защита конструкций. Организация строительстваДата актуализации: 01.01.2021
|
| Обозначение: | Типовой проект 901-3-285.91 |
| Обозначение англ: | 901-3-285.91 |
| Статус: | не определен законодательством |
| Название рус.: | Альбом 3. Часть 1. Архитектурные решения. Конструкции металлические. Антикоррозийная защита конструкций. Организация строительства |
| Дата добавления в базу: | 01.10.2014 |
| Дата актуализации: | 01.01.2021 |
| Дата введения: | 29.07.1986 |
| Дата окончания срока действия: | 30.06.2003 |
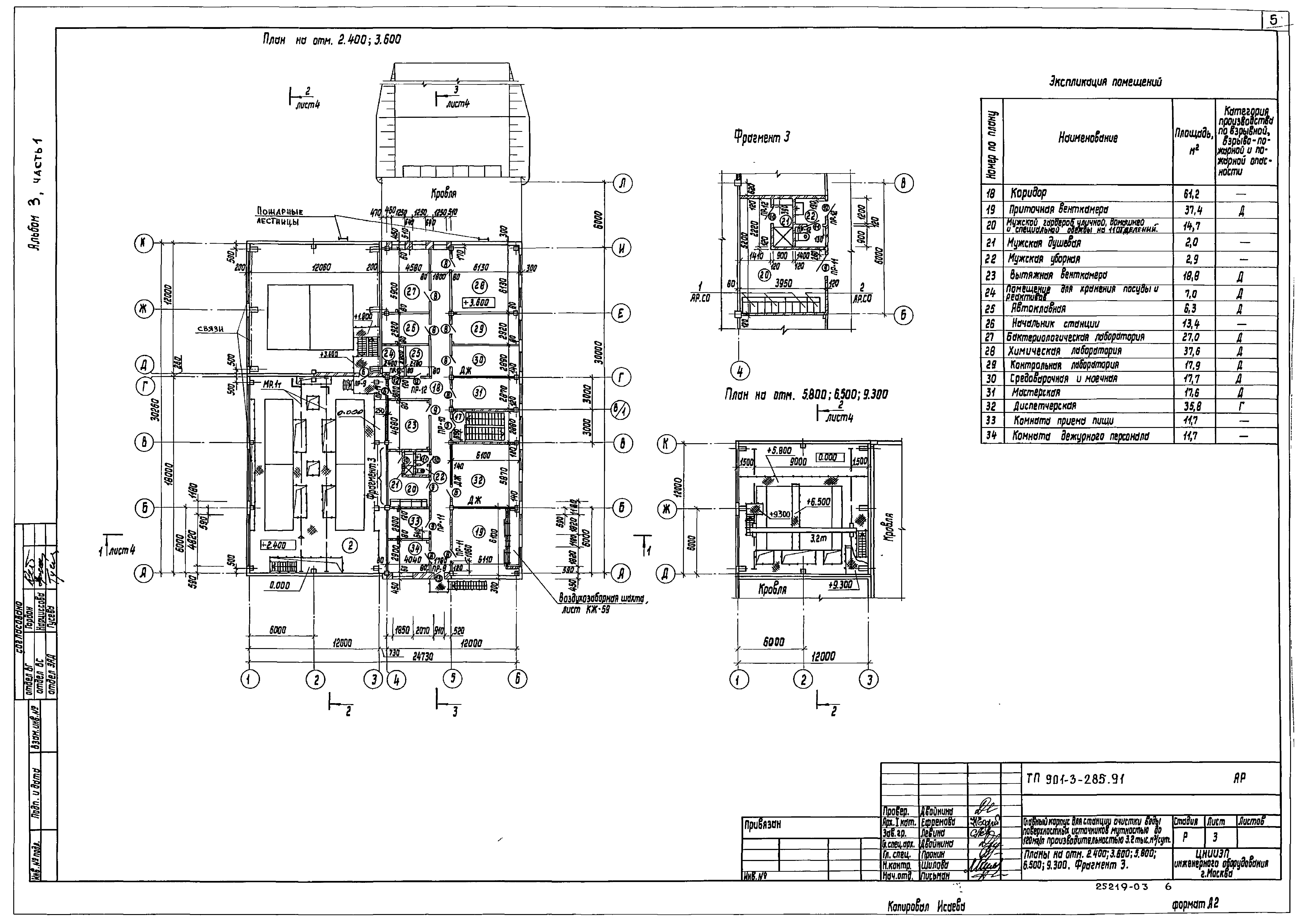
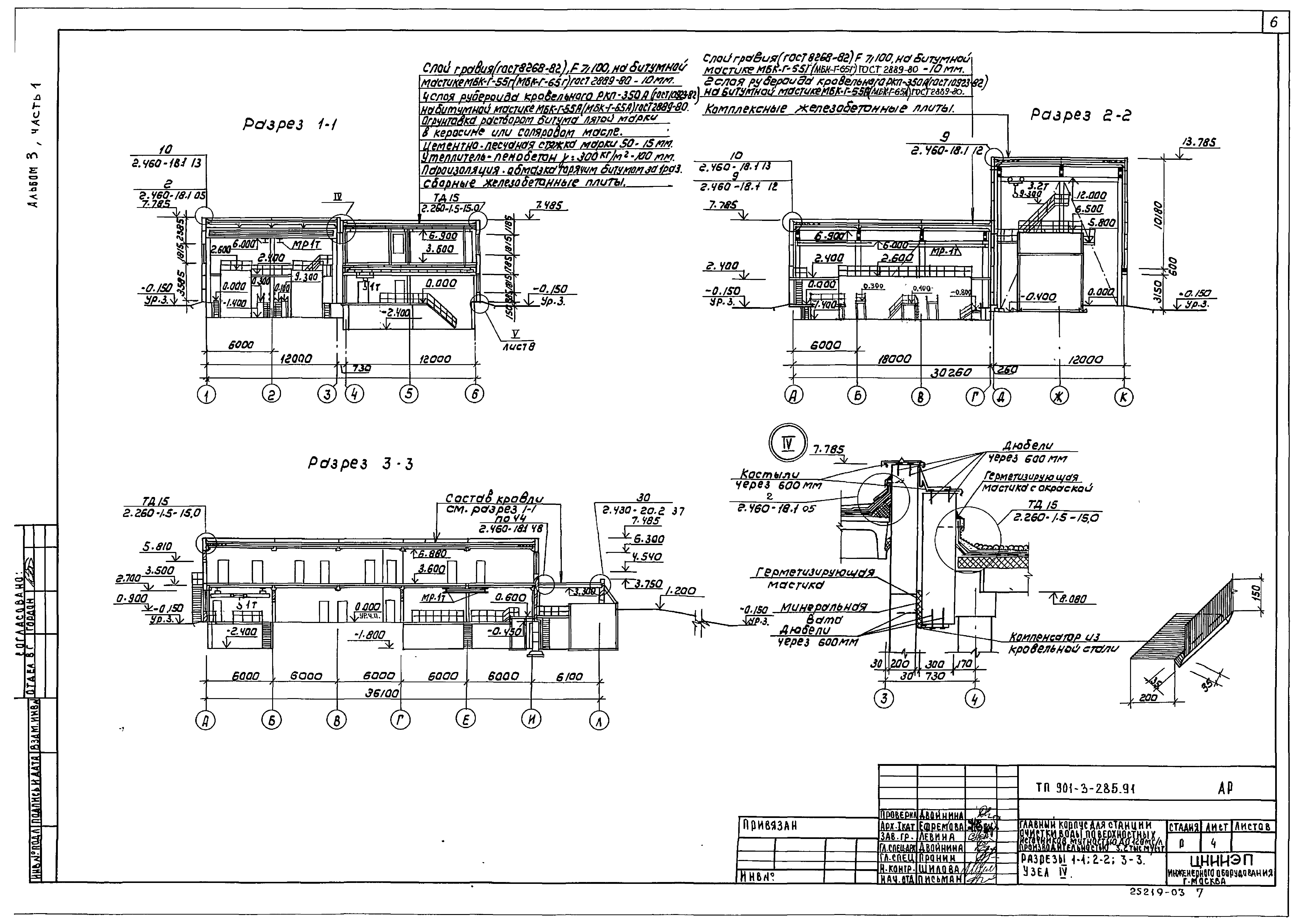
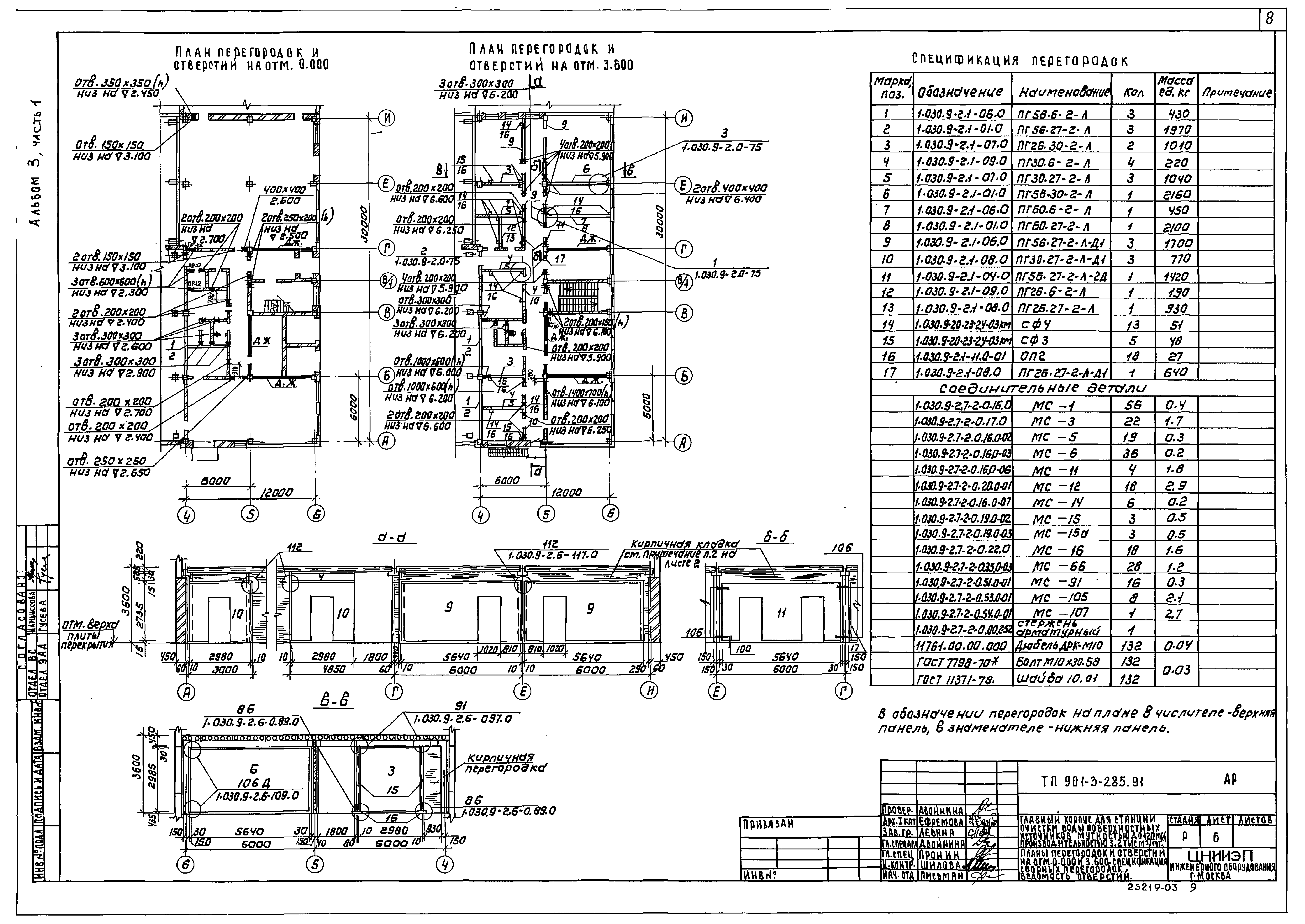
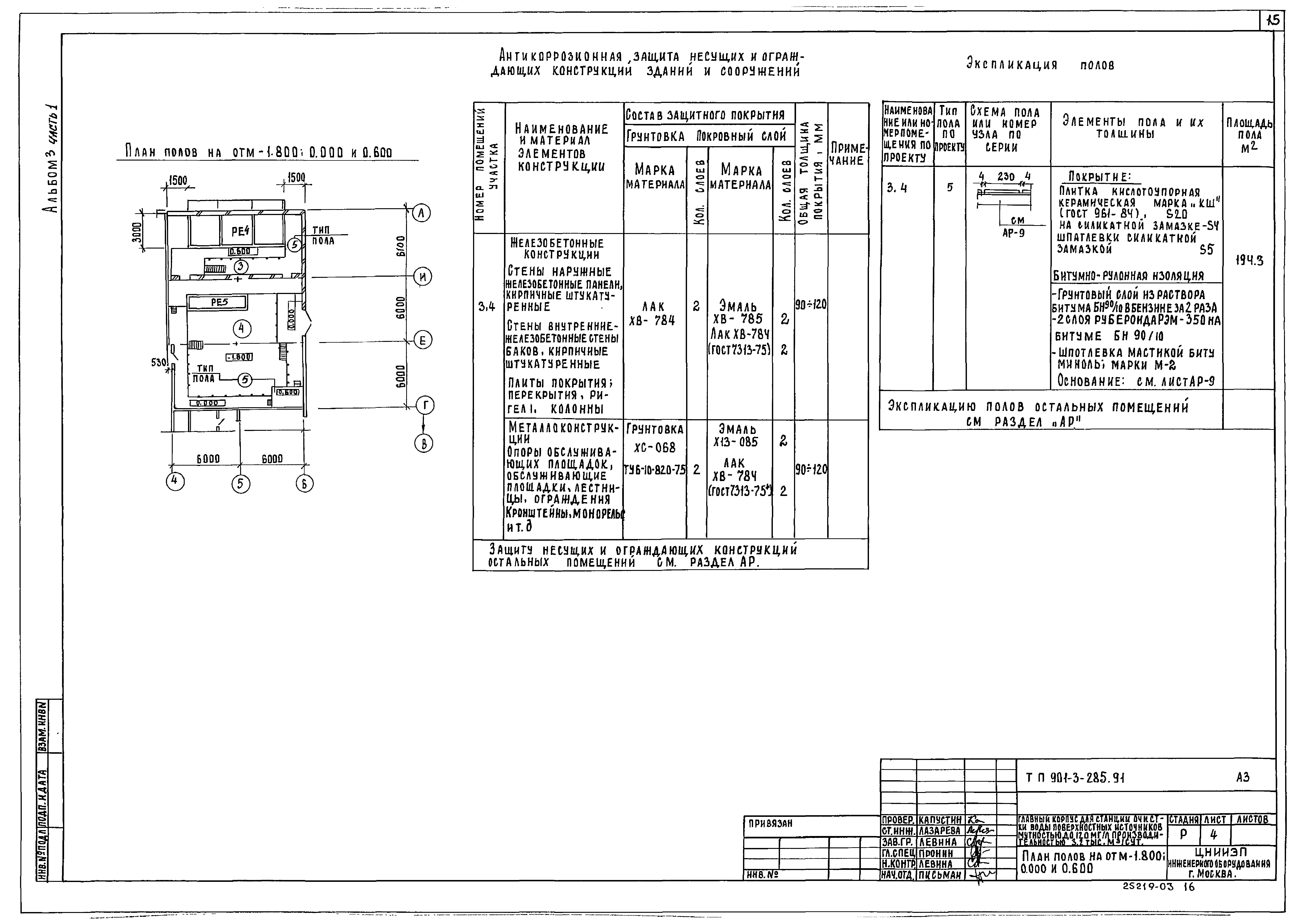
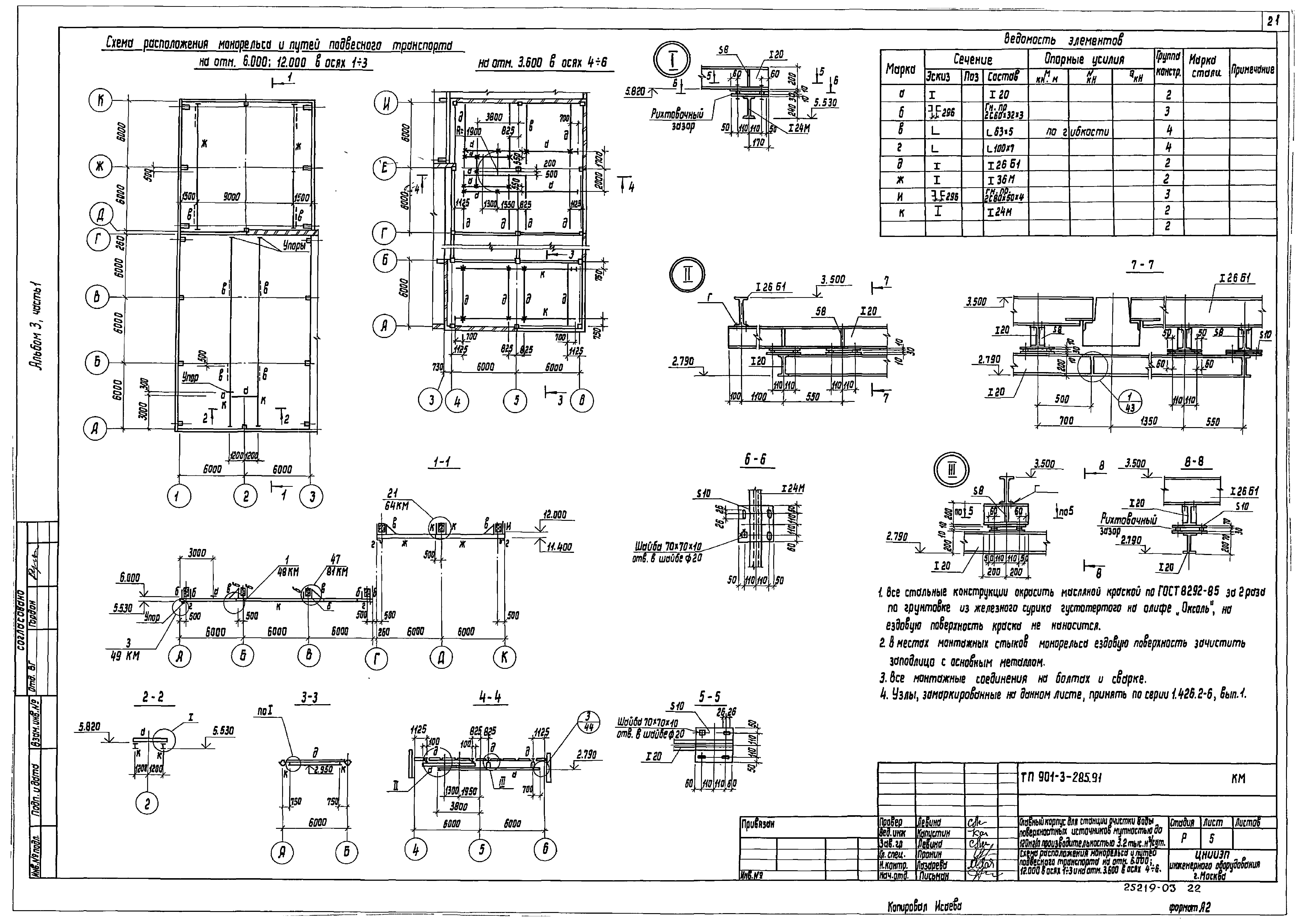
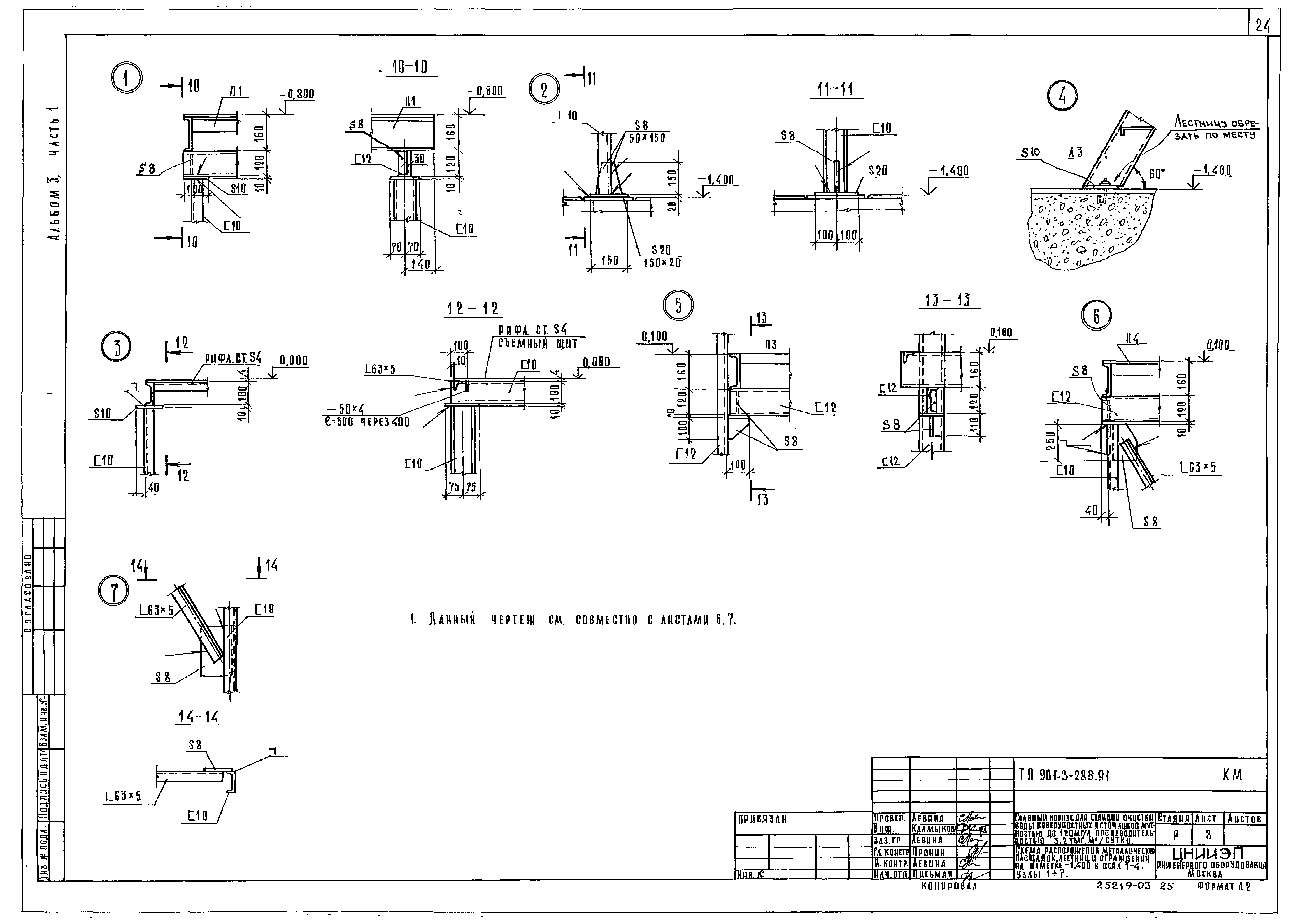
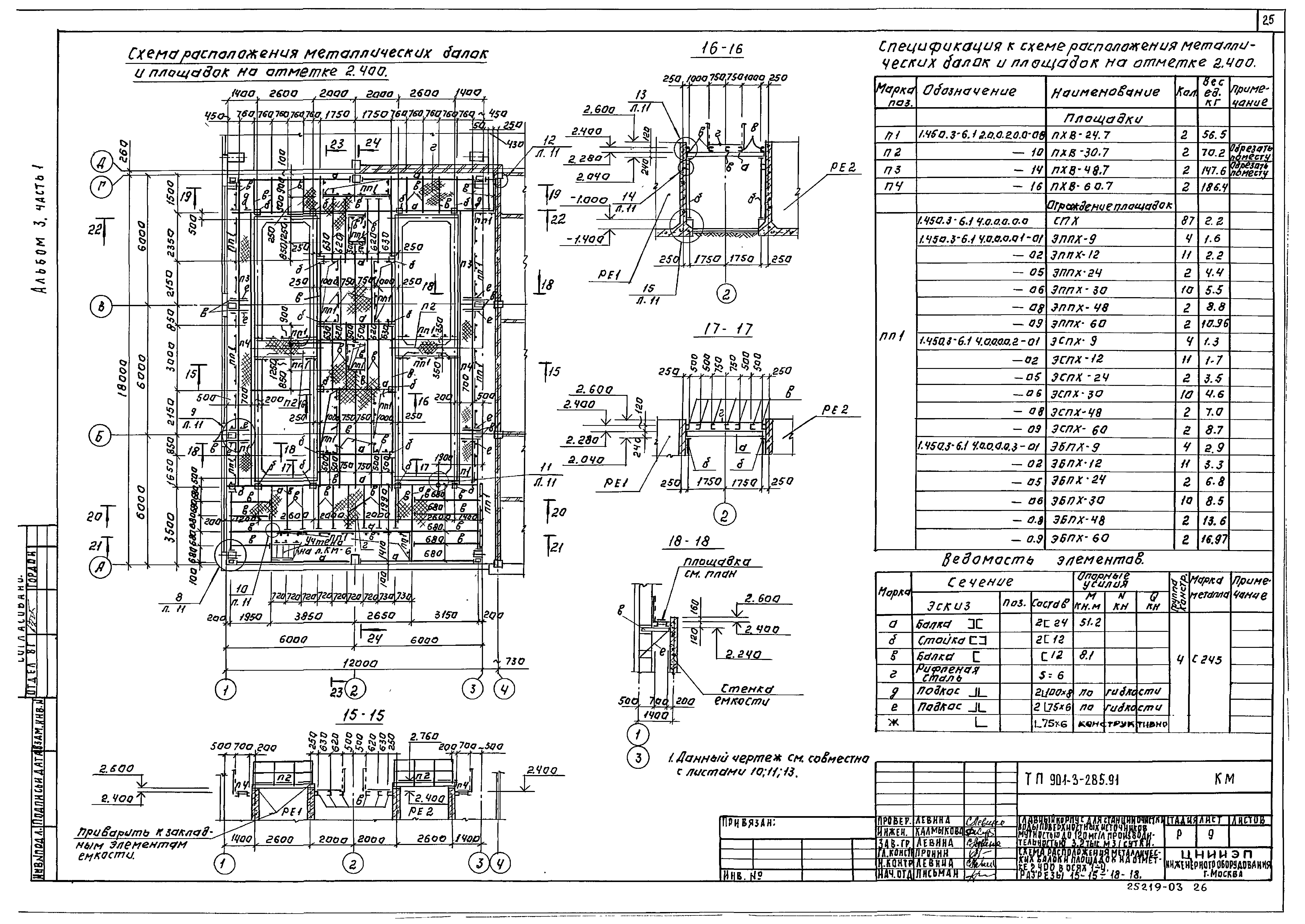
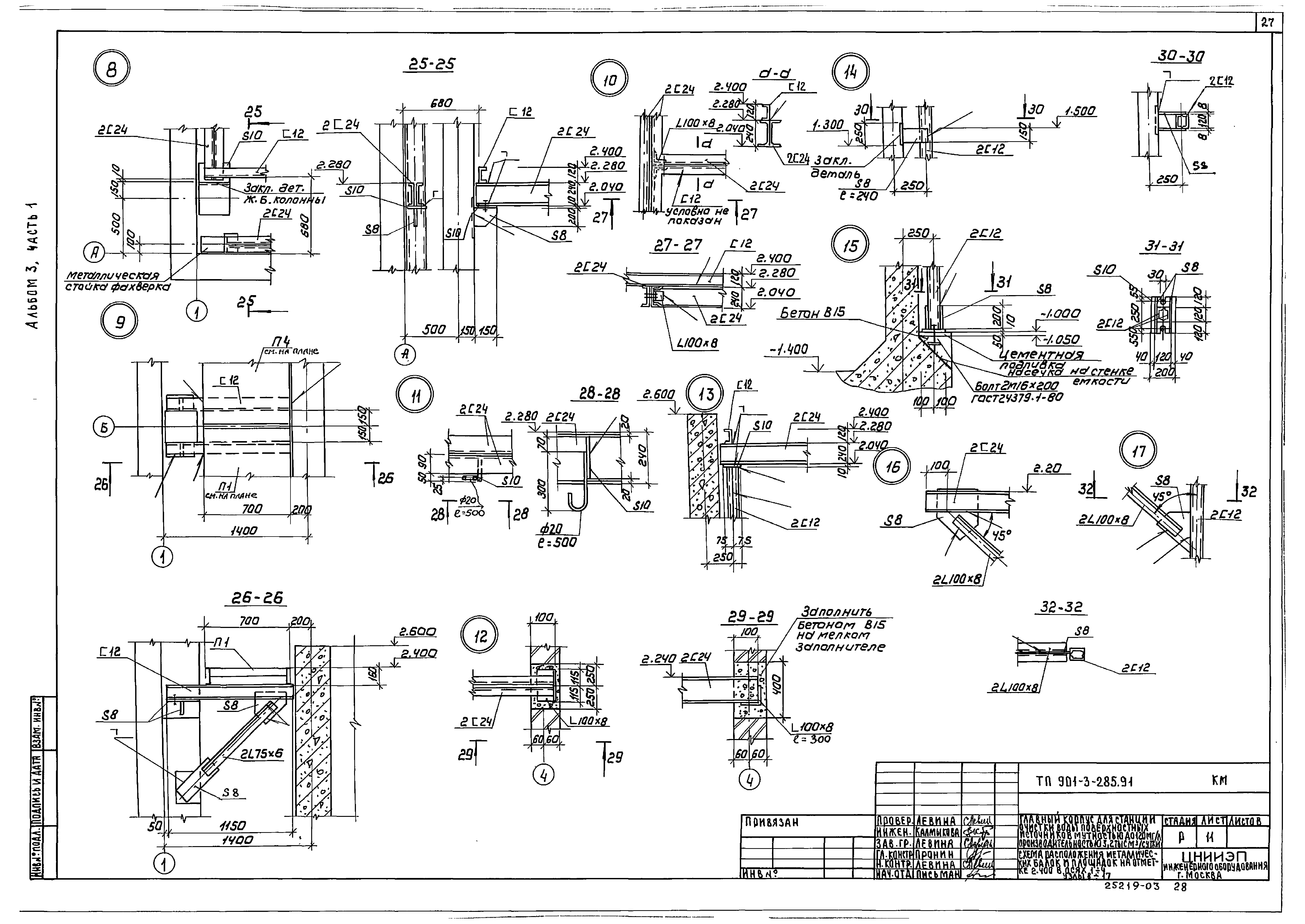
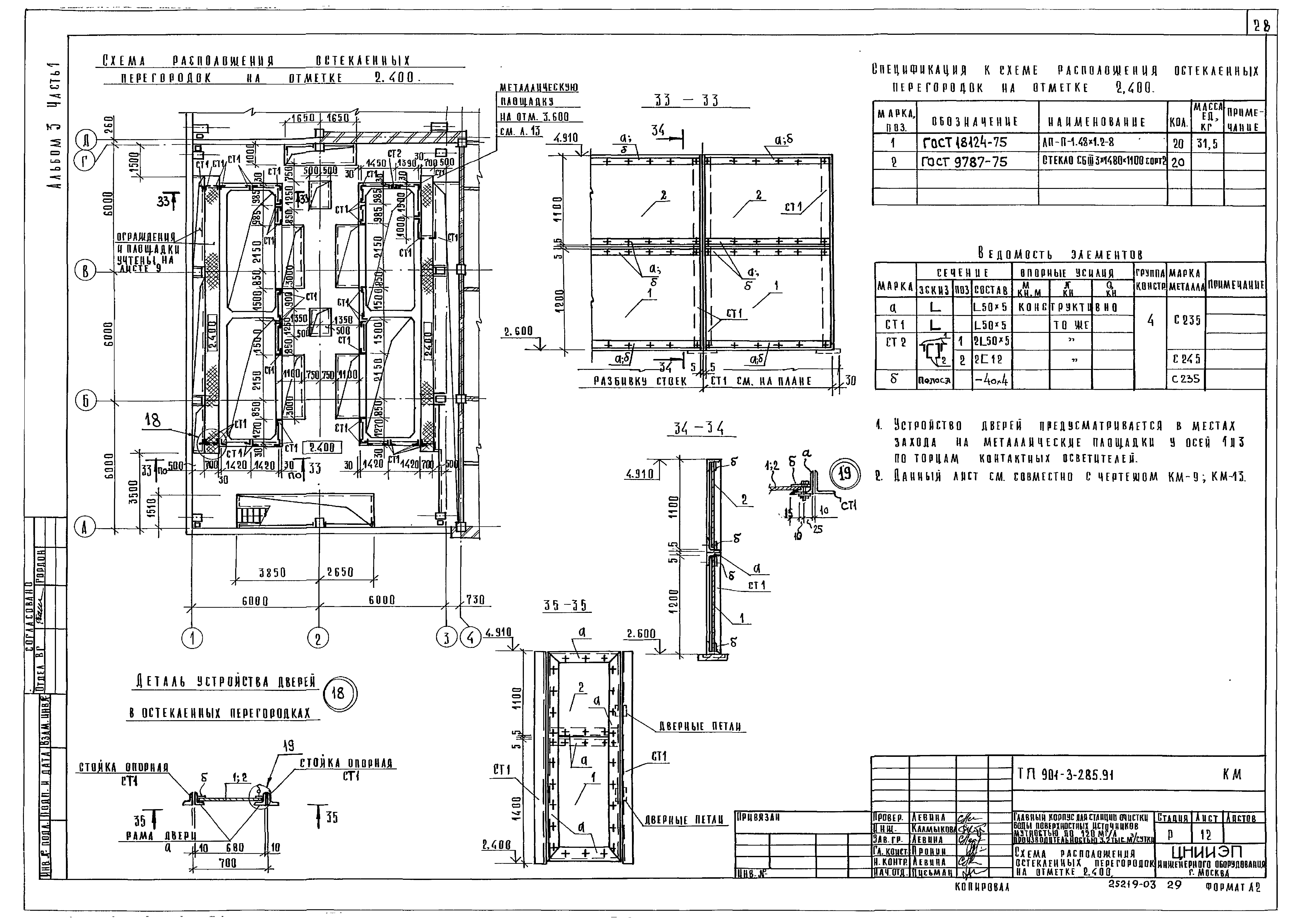
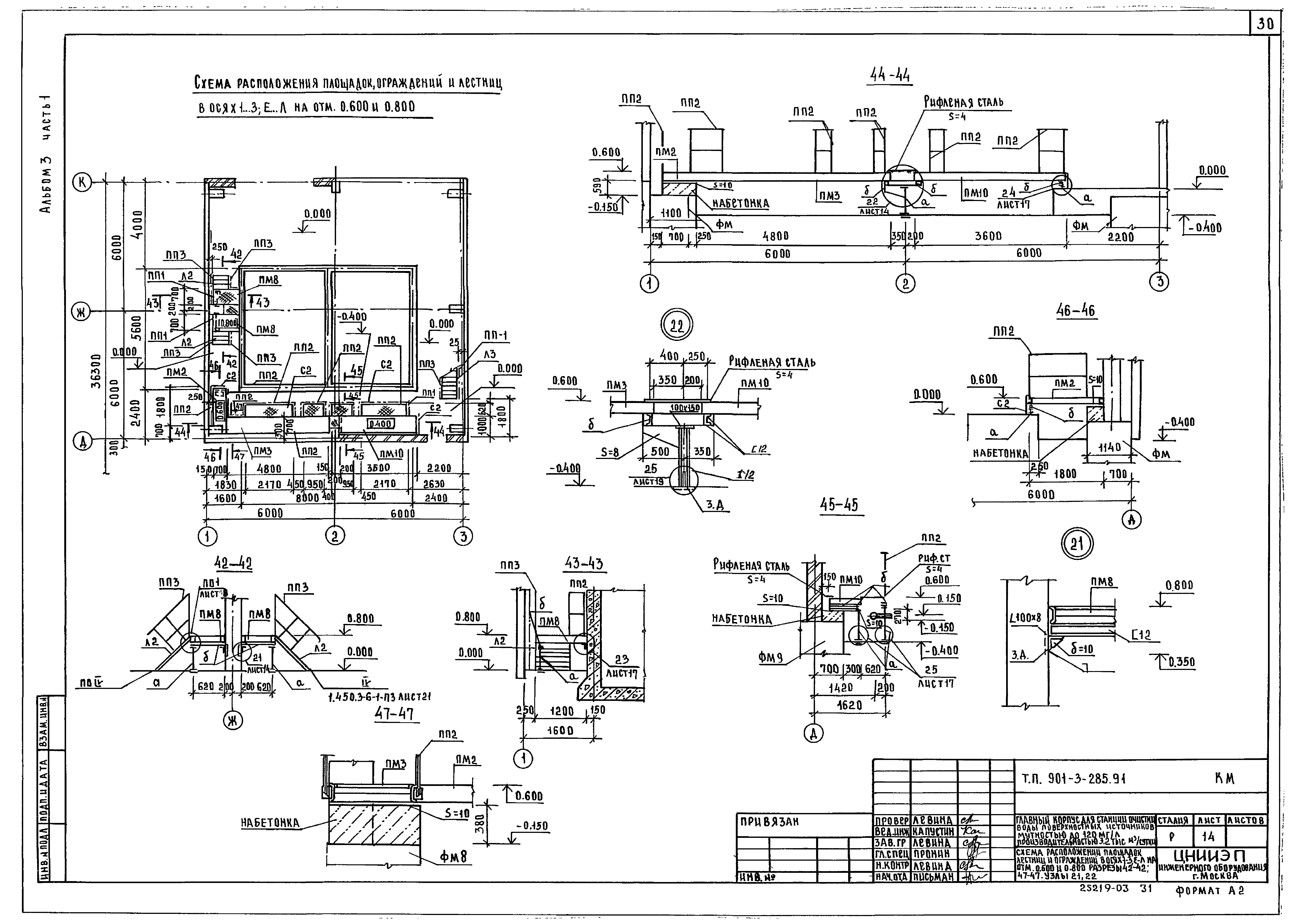
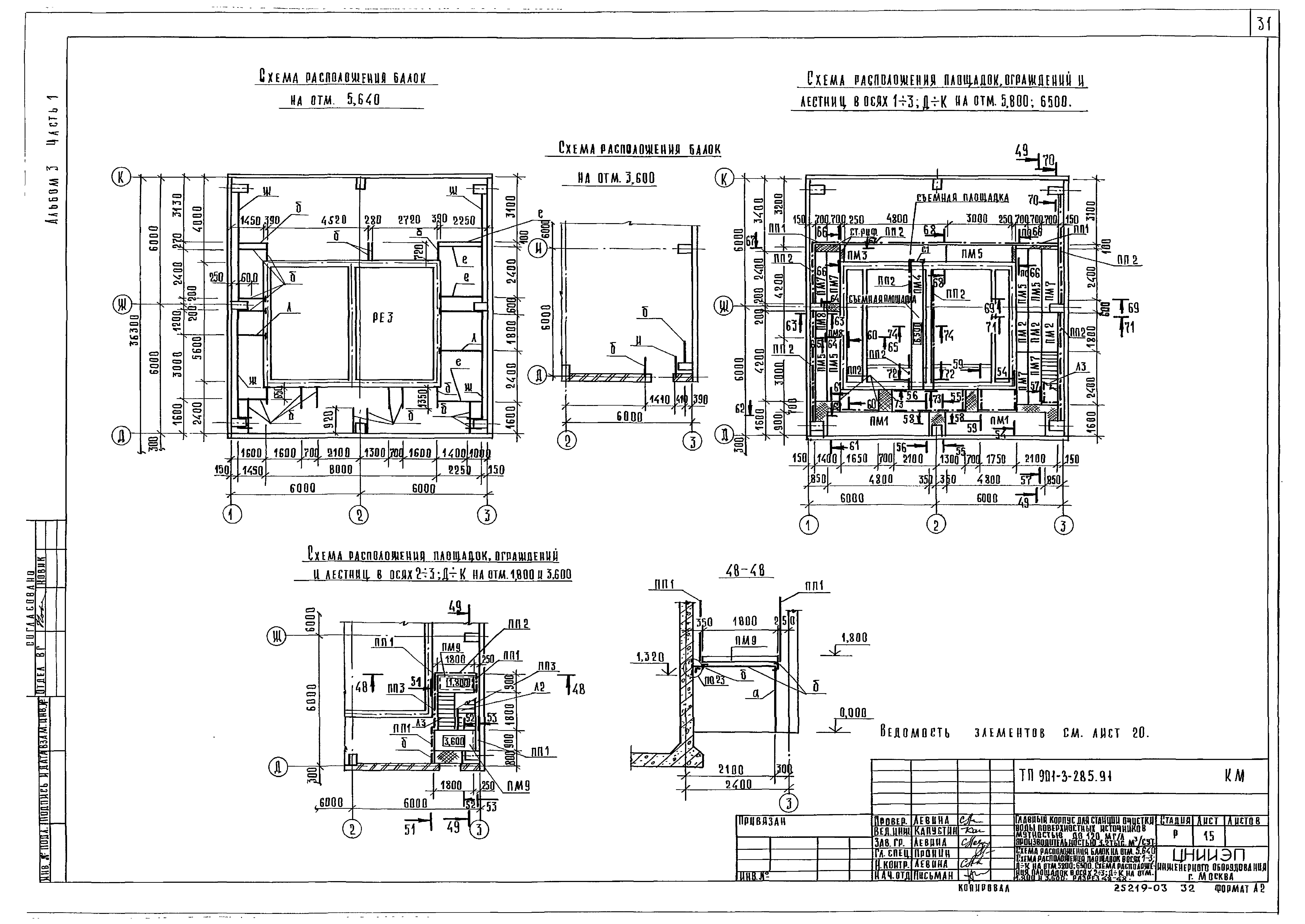
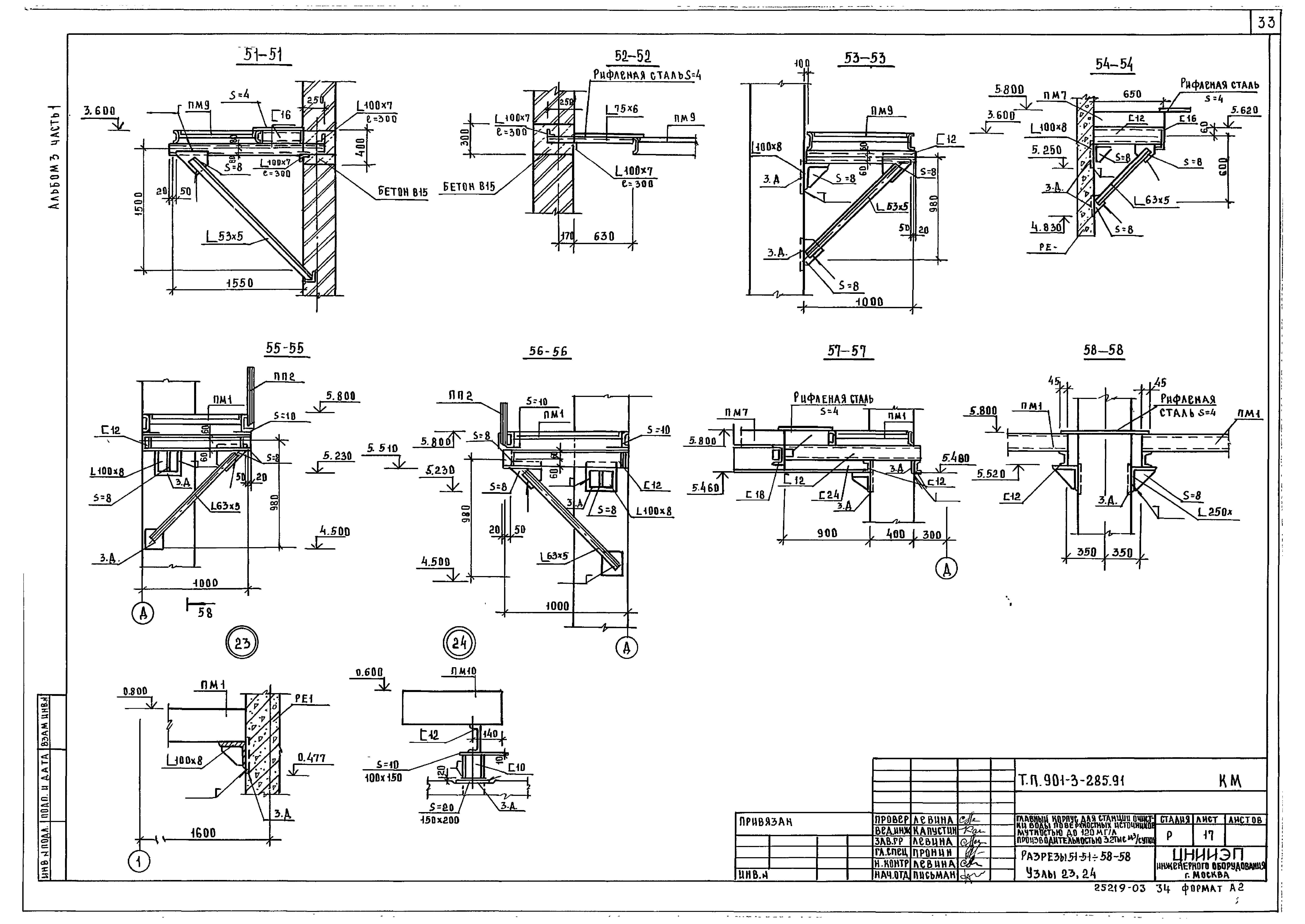
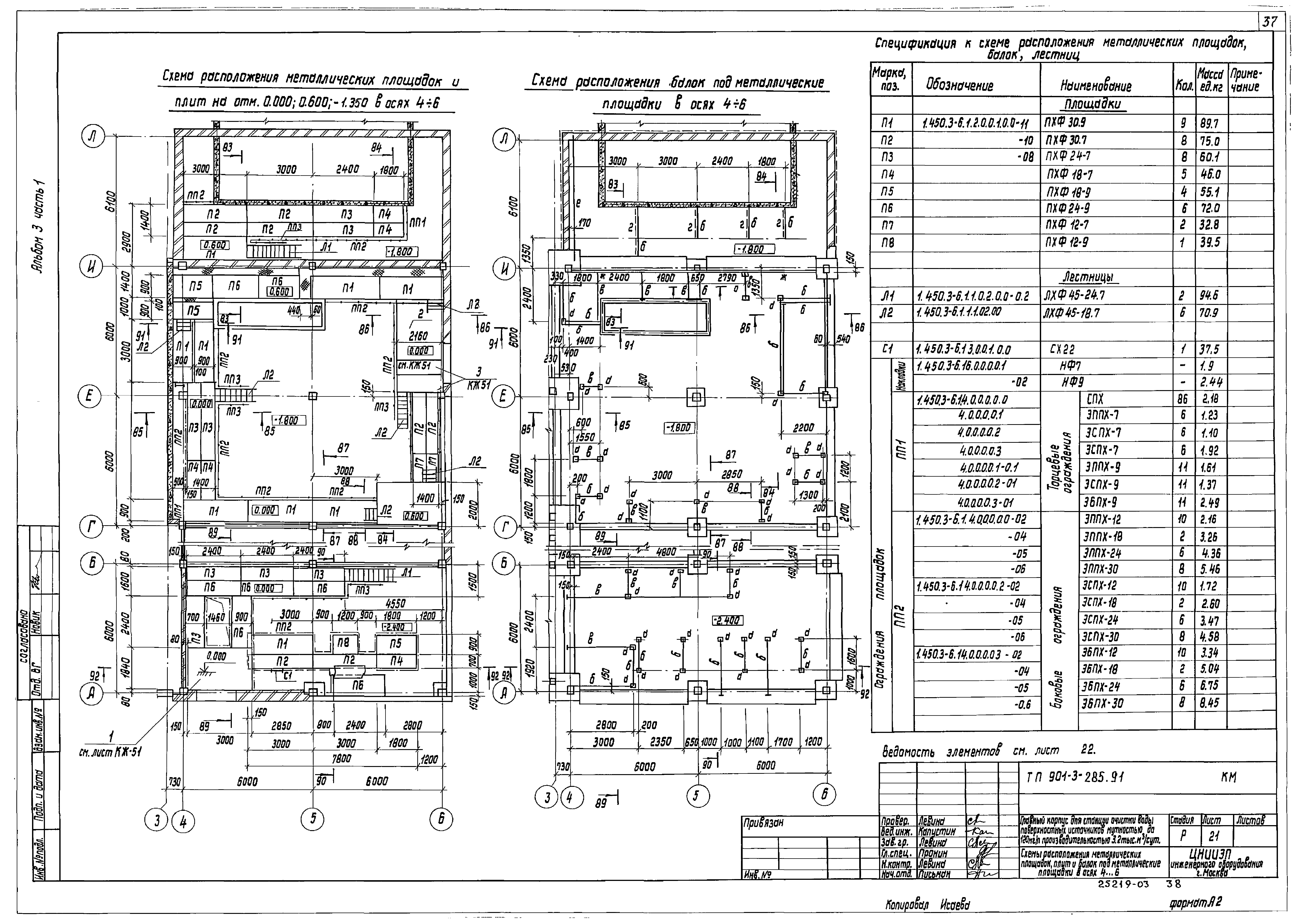
| Оглавление: | Архитектурные решения Общие данные План на отм. - 2.400; - 1.800; - 1.400; - 0.400; 0.600; 0.000. Фрагмент 1, 2 План на отм. 2.400; 3.600; 5.800; 6.500; 9.300. Фрагмент 3 Разрезы 1-1, 2-2, 3-3. Узел IV Фасады 1 - 6; 6 - 1; А - Л; Л - А План перегородок и отверстий на отм. 0.000 и 3.600. Спецификация сборных перегородок. Ведомость отверстий Спецификация элементов заполнения проемов и перемычек. Ведомости перемычек, проемов, дверей и ворот. Узлы I, II, III Ведомость отделки помещений. Узлы V - VII Планы кровли и полов. Экспликация полов Антикоррозийная защита Общие данные План фундаментов под оборудование лотков и емкостей. Разрезы 1-1, 2-2 Узлы 1 - 4. Деталь пропуска полиэтиленовых труб План полов на отм. - 1.800; 0.000 и 0.600 Ведомость объемов антикоррозийных работ Конструкции металлические Общие данные Схема расположения монорельса и путей подвесного транспорта на отм. 6.000; 12.000 в осях 1 - 3 и на отм. 3.600 в осях 4 - 6 Схема расположения металлических площадок, лестниц и ограждений на отм. - 1.400 в осях 1 - 4. Разрезы 1-1 - 6-6 Схема расположения металлических площадок, лестниц и ограждений на отм. - 1.400 в осях 1 - 4. Разрезы 7-7 - 9-9 Схема расположения металлических площадок, лестниц и ограждений на отм. - 1.400 в осях 1 - 4. Узлы 1 - 7 Схема расположения металлических балок и площадок на отм. 2.400 в осях 1 - 4. Разрезы 15-15 - 18-18 Схема расположения металлических балок и площадок на отм. 2.400 в осях 1 - 4. Разрезы 19-19 - 24-24 Схема расположения металлических балок и площадок на отм. 2.400 в осях 1 - 4. Узлы 8 - 17 Схема расположения остекленных перегородок на отм. 2.400 Схема расположения металлической площадки на отм. 3.600 в осях 2 - 4 у оси "Г" Схема расположения площадок, лестниц и ограждений в осях 1 - 3; Е - Л на отм. 0.600 и 0.800. Разрезы 42-42 - 47-47. Узлы 21 - 22 Схема расположения балок на отм. 5.640. Схема расположения площадок в осях 1 - 3; Д - К на отм. 5.800; 6.500. Схема расположения площадок в осях 2 - 3; Д - К на отм. 1.800 и 3.600. Разрез 48-48 Схема расположения площадок, ограждений и лестниц в осях 2 - 3; Д - К на отм. 9.300. Разрезы 49-49; 50-50 Разрезы 51-51 - 58-58. Узлы 23, 24 Разрезы 59-59 - 68-68 Разрезы 69-69 - 77-77. Узел 25 Узлы 26 - 28. Дверца ДН1. Разрезы 78-78 - 82-82, ПП2И Схемы расположения металлических площадок, плит и балок под металлические площадки в осях 4 - 6 Схемы расположения металлических площадок, плит и балок под металлические площадки в осях 4 - 6. Разрезы 83-83 - 92-92 Схемы расположения металлических площадок, плит и балок под металлические площадки в осях 4 - 6. Узлы 29 - 35. Разрезы 94-94 - 98-98 Схема расположения пожарных лестниц и площадки на отм. 3.600 в осях "А" - "5" Организация строительства График производства работ |
| Разработан: | ЦНИИЭП |
| Утверждён: | 29.07.1986 Госгражданстрой (Gosgrazhdanstroy 242) |
| Заменяет собой: |
|










































