Скачать Типовой проект 901-3-285.91 Альбом 4. Часть 1. Силовое электрооборудование. Электрическое освещение. Связь и сигнализацияДата актуализации: 01.01.2021
|
| Обозначение: | Типовой проект 901-3-285.91 |
| Обозначение англ: | 901-3-285.91 |
| Статус: | не определен законодательством |
| Название рус.: | Альбом 4. Часть 1. Силовое электрооборудование. Электрическое освещение. Связь и сигнализация |
| Дата добавления в базу: | 01.10.2014 |
| Дата актуализации: | 01.01.2021 |
| Дата введения: | 29.07.1986 |
| Дата окончания срока действия: | 30.06.2003 |
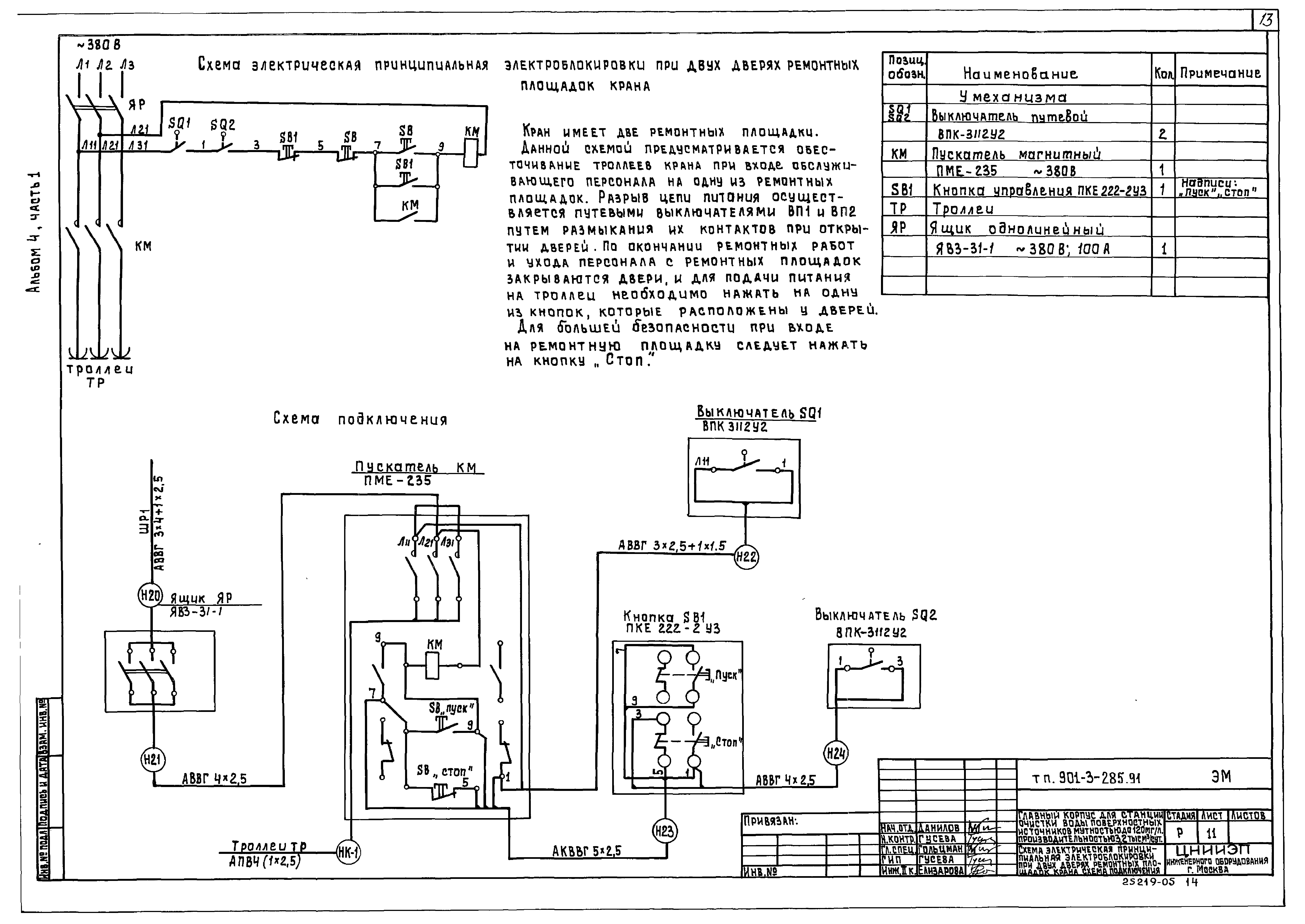
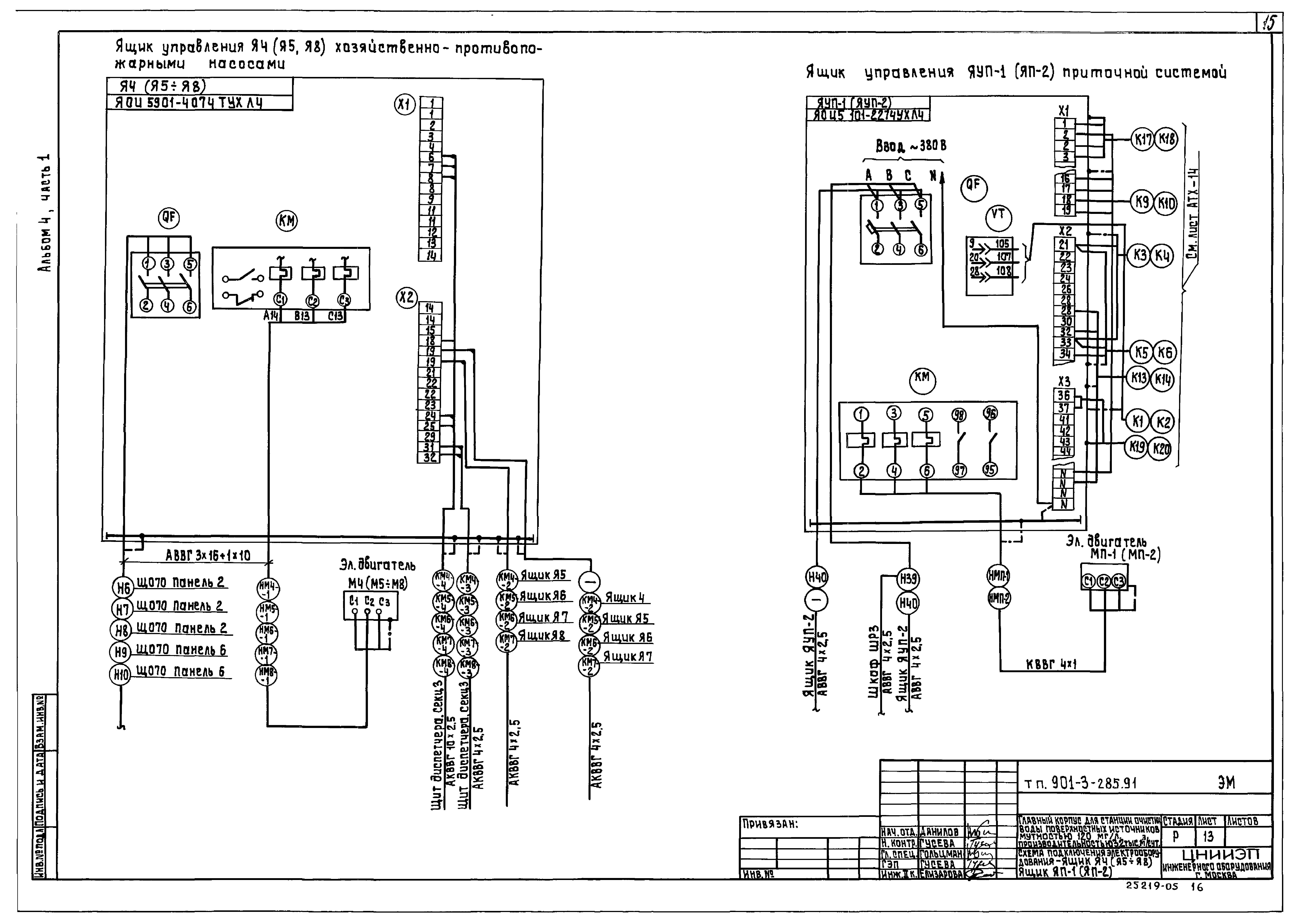
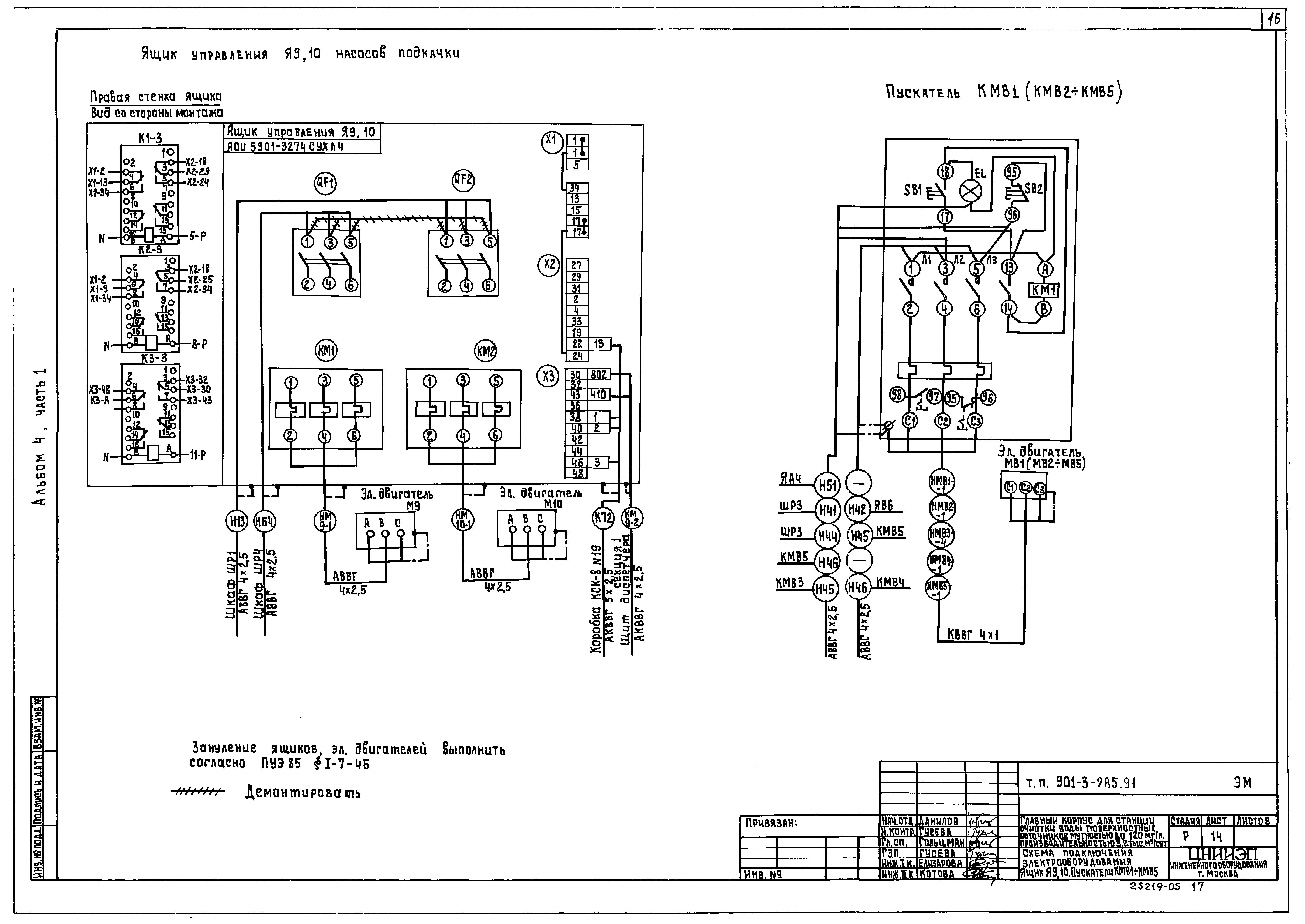
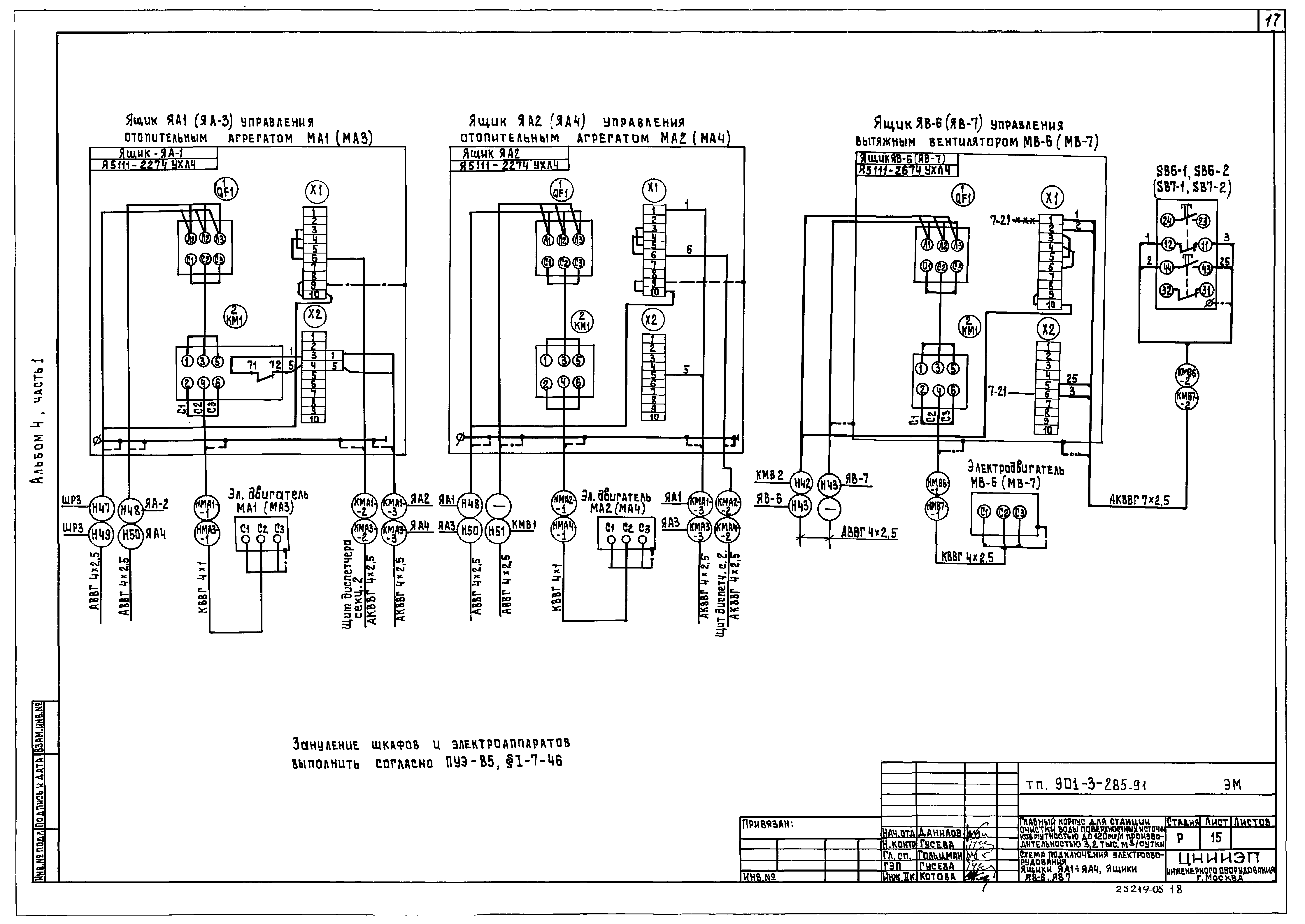
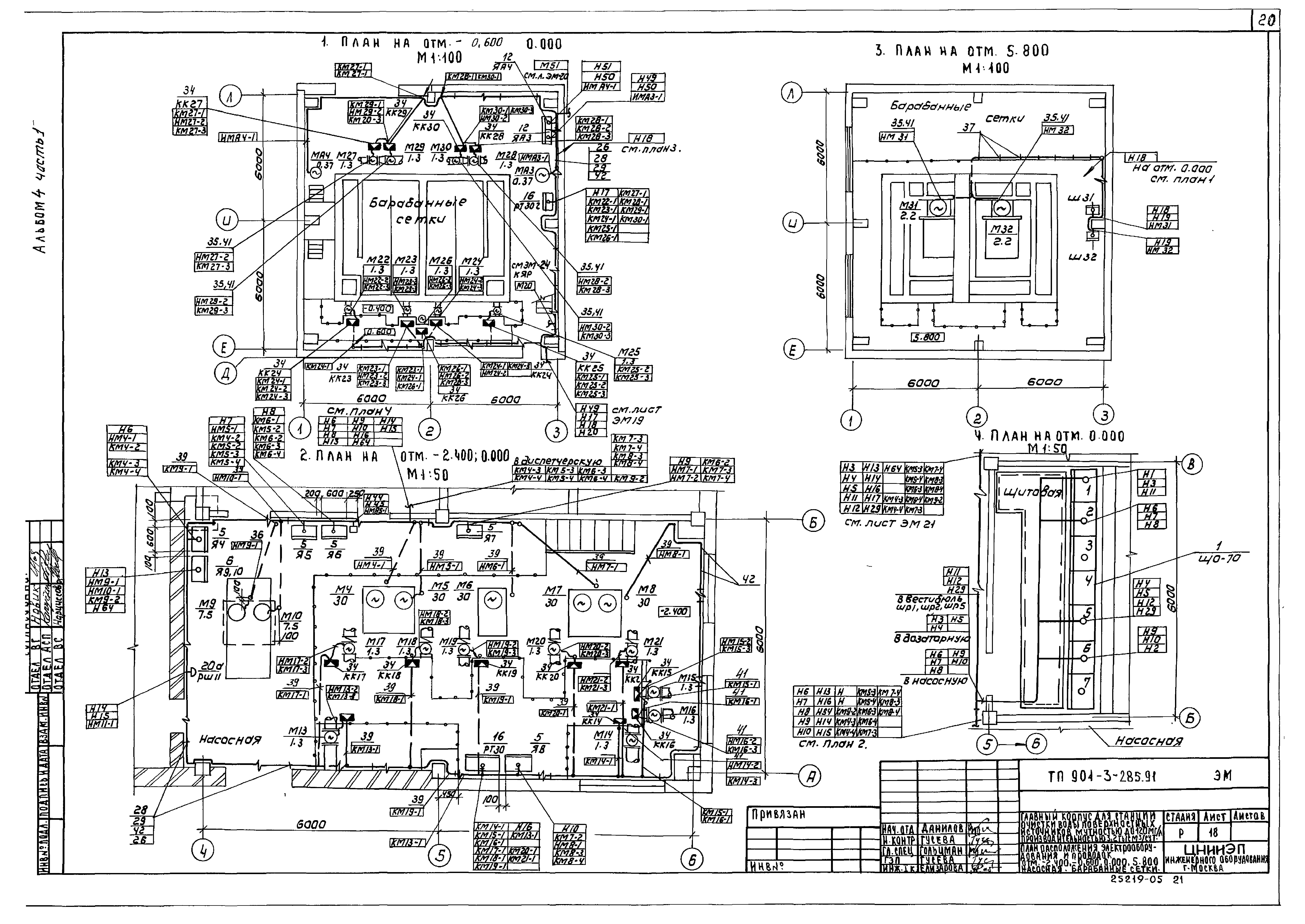
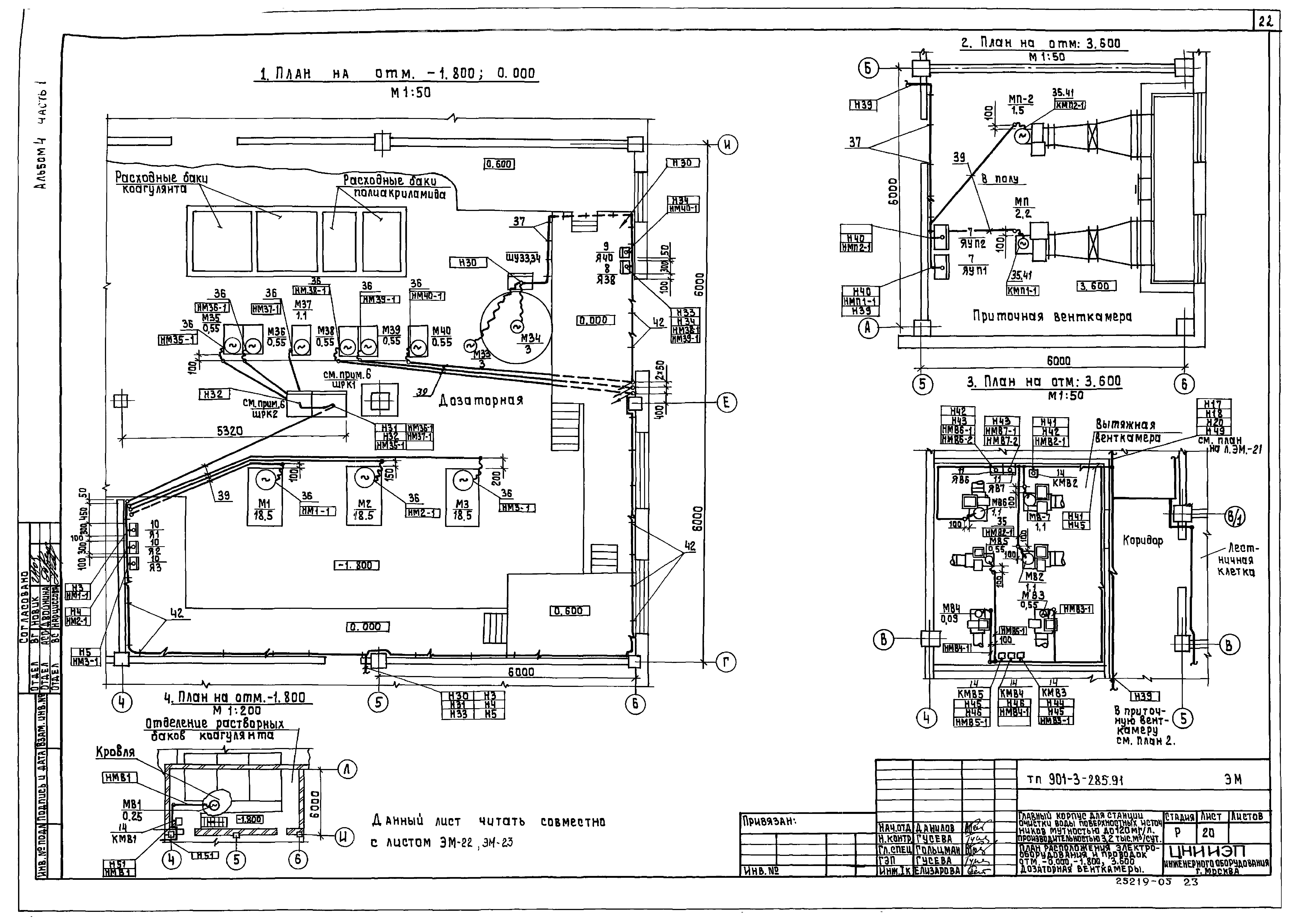
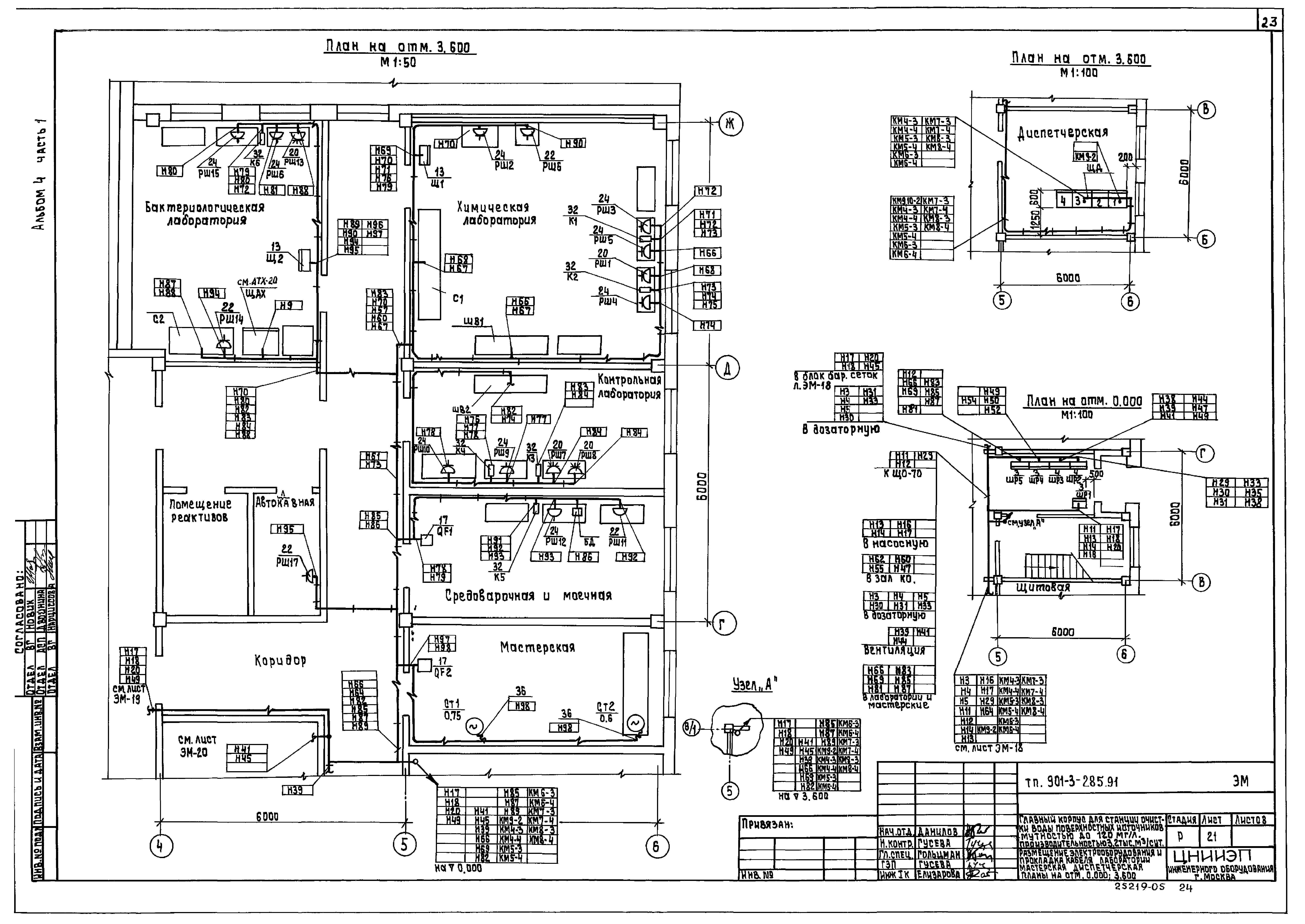
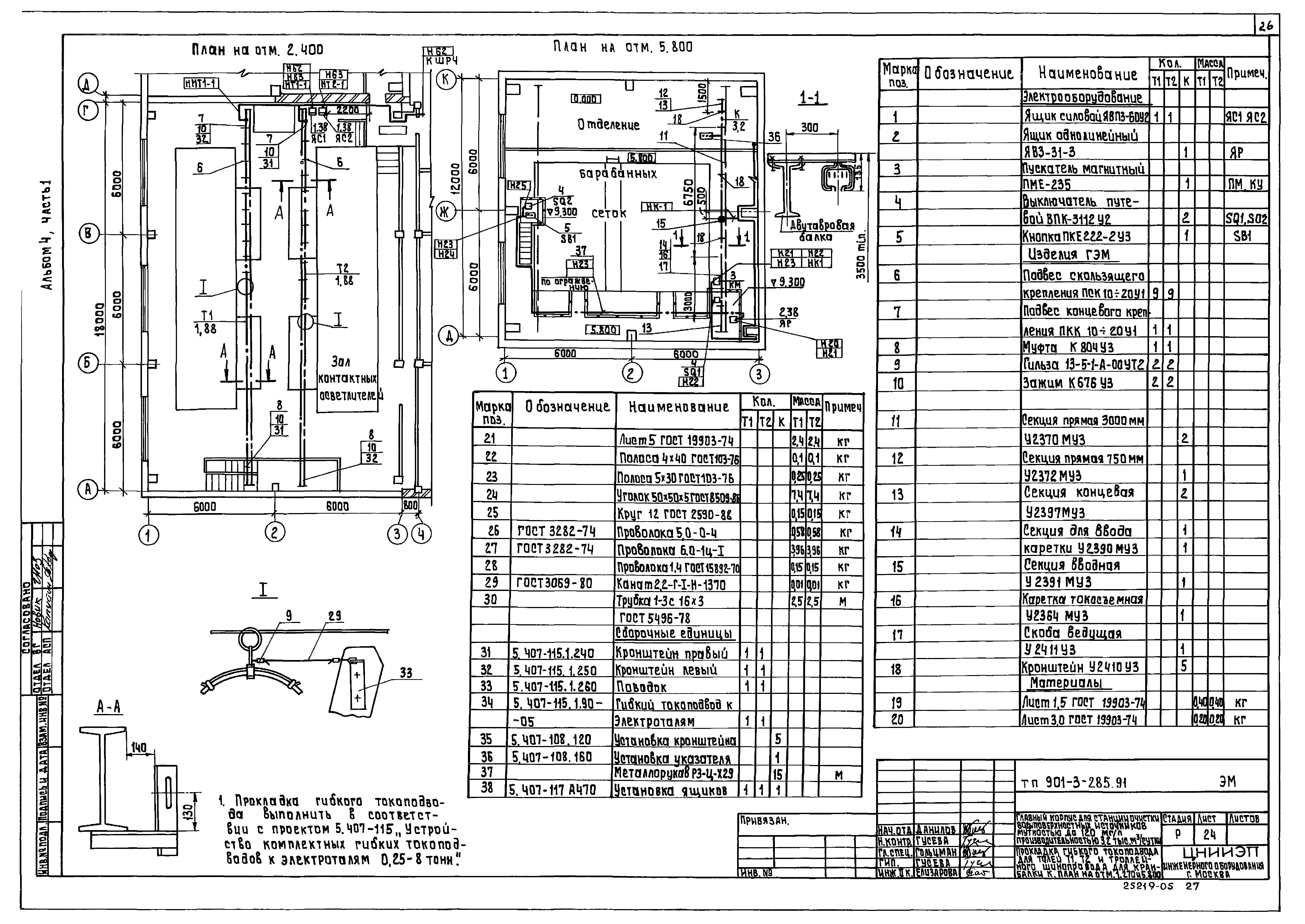
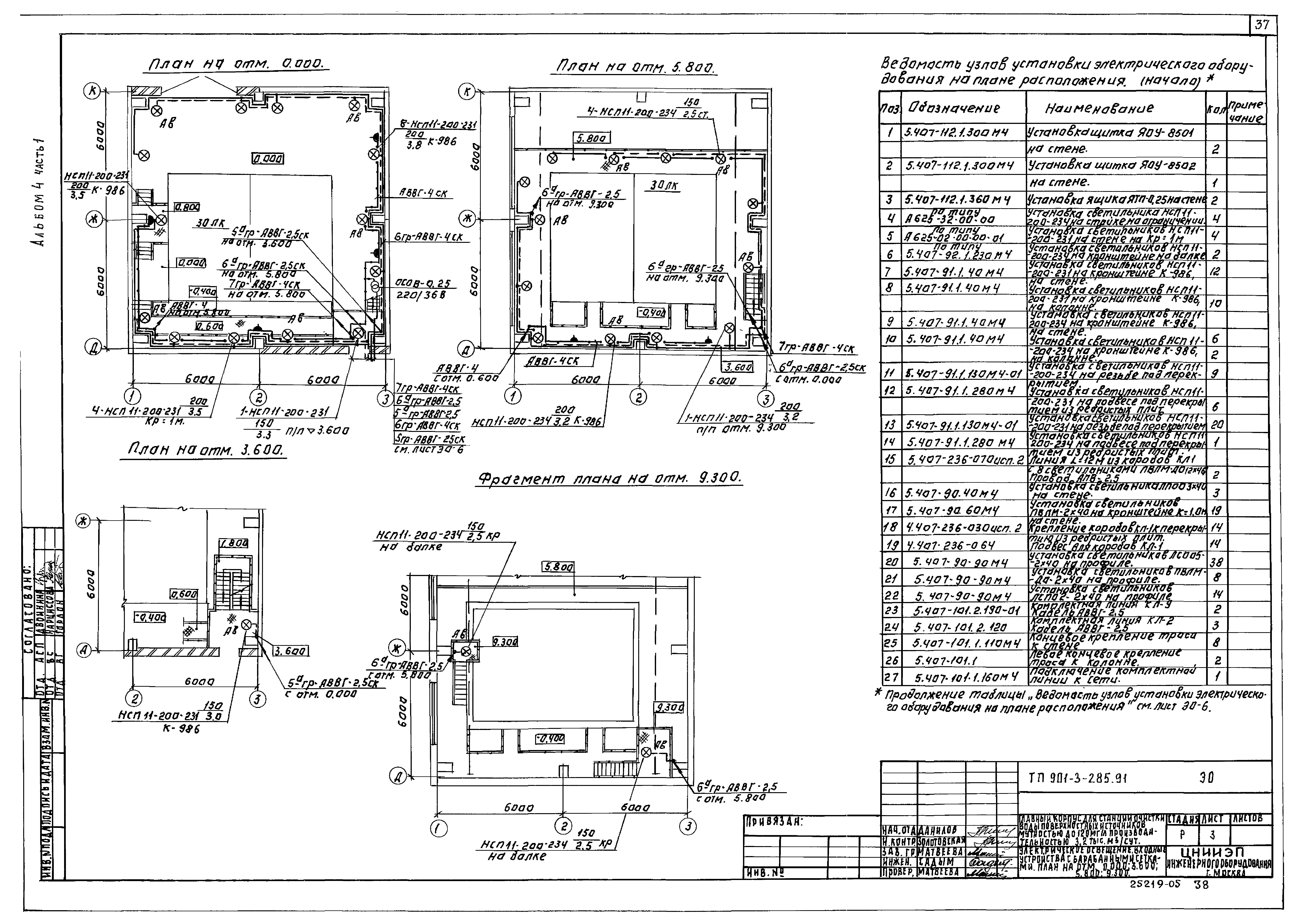
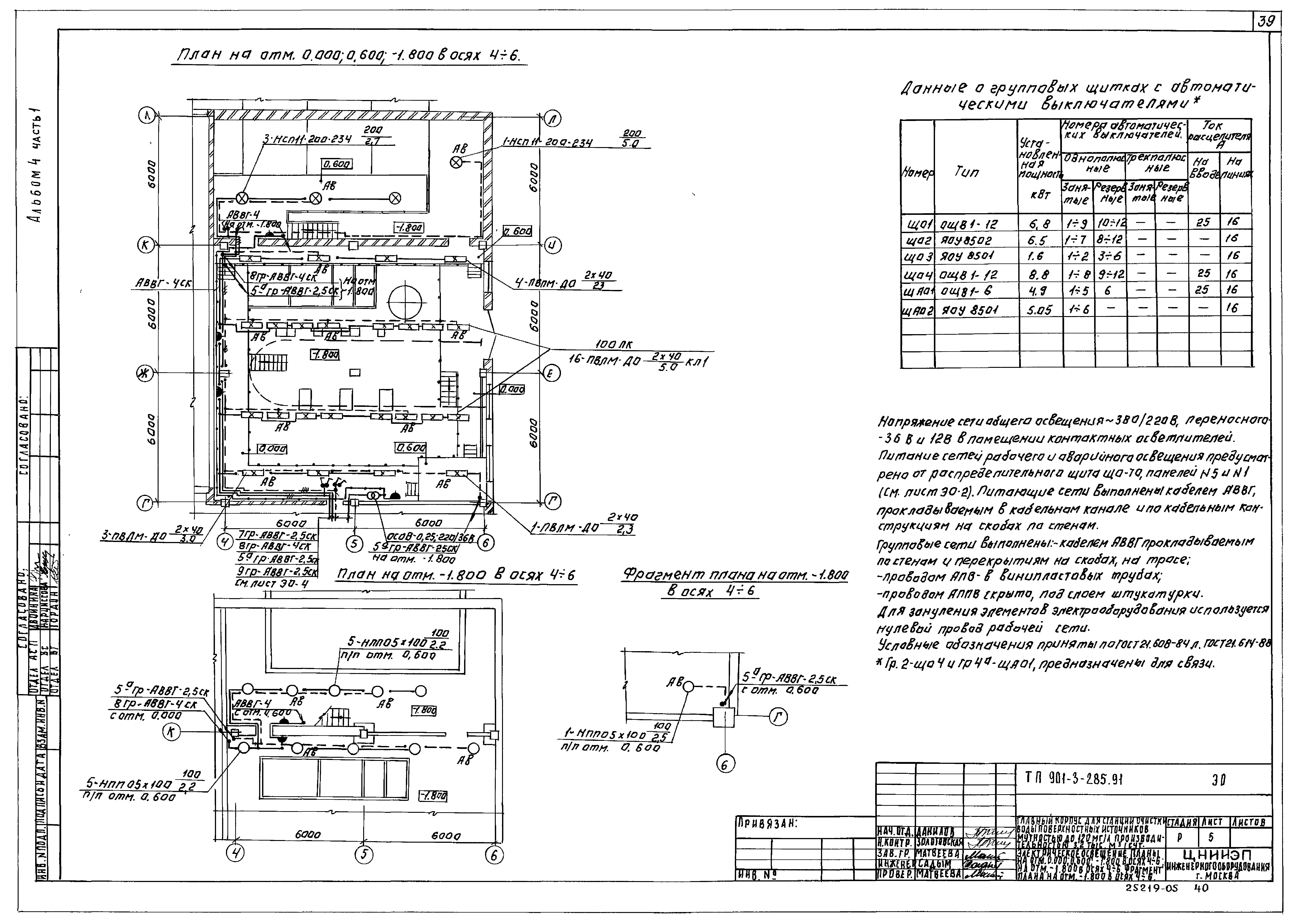
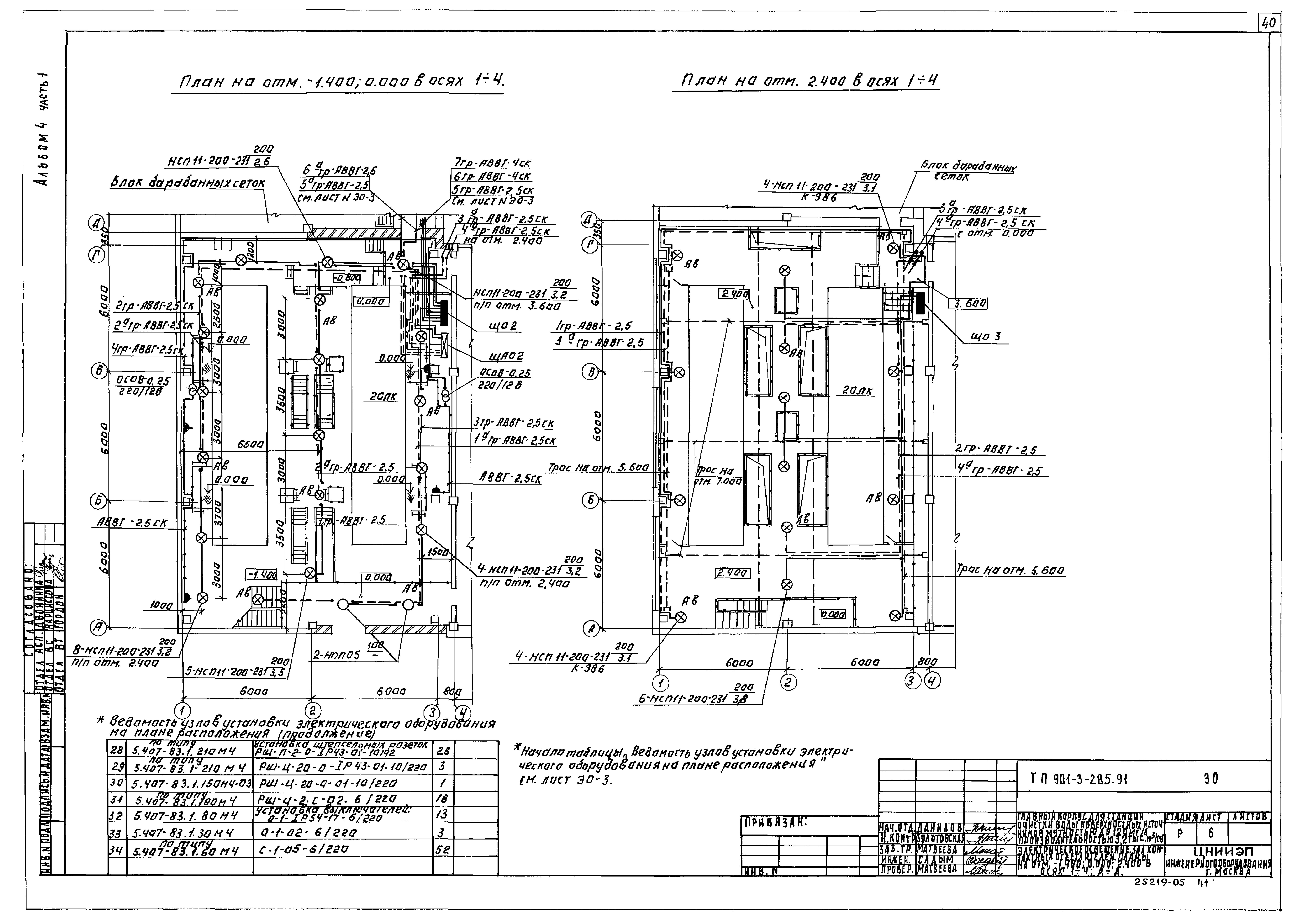
| Оглавление: | Содержание Электрооборудование Общие данные Схема электрическая принципиальная питающей сети Схема электрическая принципиальная распределительной сети 380/220 В Схема электрическая принципиальная управления хозяйственно-противопожарными насосами М4 (М5 - М8) Схема электрическая принципиальная управления насосами подкачки промывной воды М9, М10 Схема электрическая принципиальная управления задвижками, затворами М13 (М14 - М30); МК43 (МК44 - МК58) Схема электрическая принципиальная управления отопительными агрегатами МА1, МА2 (МА3, МА4) Схема электрическая принципиальная электроблокировки при двух дверях ремонтных площадок крана. Схема подключения Схема электрическая принципиальная управления вентилятором М86 (М87) Схема подключения электрооборудования. Ящики Я4 (Я5 - Я8), ЯП1 (ЯП2) Схема подключения электрооборудования. Ящики Я9, 10; пускатели КМВ1 - КМВ5 Схема подключения электрооборудования. Ящики ЯА1 (ЯА3), ЯА2 (ЯА4), ЯВ6 (ЯВ7) Схема подключения электрооборудования. Шкаф РТ301 - РТ304, задвижки, затворы М13 (М14 - М30), МК43 (МК44 - МК58) Кабельно-трубный журнал План расположения электрооборудования и проводок на отм. - 2.400; - 0.600; 0.000; 5.800. Насосная. Барабанные сетки План расположения электрооборудования и проводок на отм. - 1.400; 0.000; 2.400. Зал контактных осветлителей План расположения электрооборудования и проводок на отм. - 1.800; 0.000; 3.600. Дозаторная, воздуходувная, венткамера План расположения электрооборудования и проводок на отм. 0.000; 3.600. Лаборатории, мастерская, диспетчерская Спецификация к планам расположения электрооборудования Прокладка гибкого токопровода для талей Т1, Т2 и троллейного шинопровода для кранбалки К. Планы на отм. 1.270; 5.800 Трансформаторная подстанция. Установка электрооборудования Трансформаторная подстанция. Узлы установки электрооборудования Трансформаторная подстанция. Заземление Заземление. Планы на отм. - 1.800; - 1.400; - 0.600; 0.000; 2.400; 3.600 Опросный лист для заказа камер серии КСО-386 Опросный лист для заказа щита из панелей ЩО70 Ведомость изделий мастерских электромонтажных заготовок (МЭЗ). Ведомость потребности в материалах для изделий МЭЗ Барьер в камере трансформатора. Плита проходная для шин 0,4 кВ. Конструкция для трех изоляторов. Конструкция для крепления кабеля Электрическое освещение Общие данные План-схема питающих сетей Электрическое освещение. Входные устройства с барабанными сетками. Планы на отм. 0.000; 3.600; 5.800; 9.300 Электрическое освещение. Планы на отм. 0.000; 3.600 в осях 4 - 6; на отм. - 2.400 в осях 4 - 6 Электрическое освещение. Планы на отм. 0.000; 0.600; - 1.800 в осях 4 - 6; на отм. - 1.800 в осях 4 - 6 Электрическое освещение. Зал контактных осветлителей. Планы на отм. - 1.400; 0.000; 2.400 в осях 1 - 4; А - Д Связь и сигнализация Общие данные. Спецификация. Скелетная схема комплексной сети Планы на отм. 0.000 и 3.600 с сетями связи и сигнализации |
| Разработан: | ЦНИИЭП |
| Утверждён: | 29.07.1986 Госгражданстрой (Gosgrazhdanstroy 242) |
| Заменяет собой: |
|










































