Скачать Типовой проект 901-3-285.91 Альбом 4. Часть 2. АвтоматизацияДата актуализации: 01.01.2021
|
| Обозначение: | Типовой проект 901-3-285.91 |
| Обозначение англ: | 901-3-285.91 |
| Статус: | не определен законодательством |
| Название рус.: | Альбом 4. Часть 2. Автоматизация |
| Дата добавления в базу: | 01.10.2014 |
| Дата актуализации: | 01.01.2021 |
| Дата введения: | 29.07.1986 |
| Дата окончания срока действия: | 30.06.2003 |
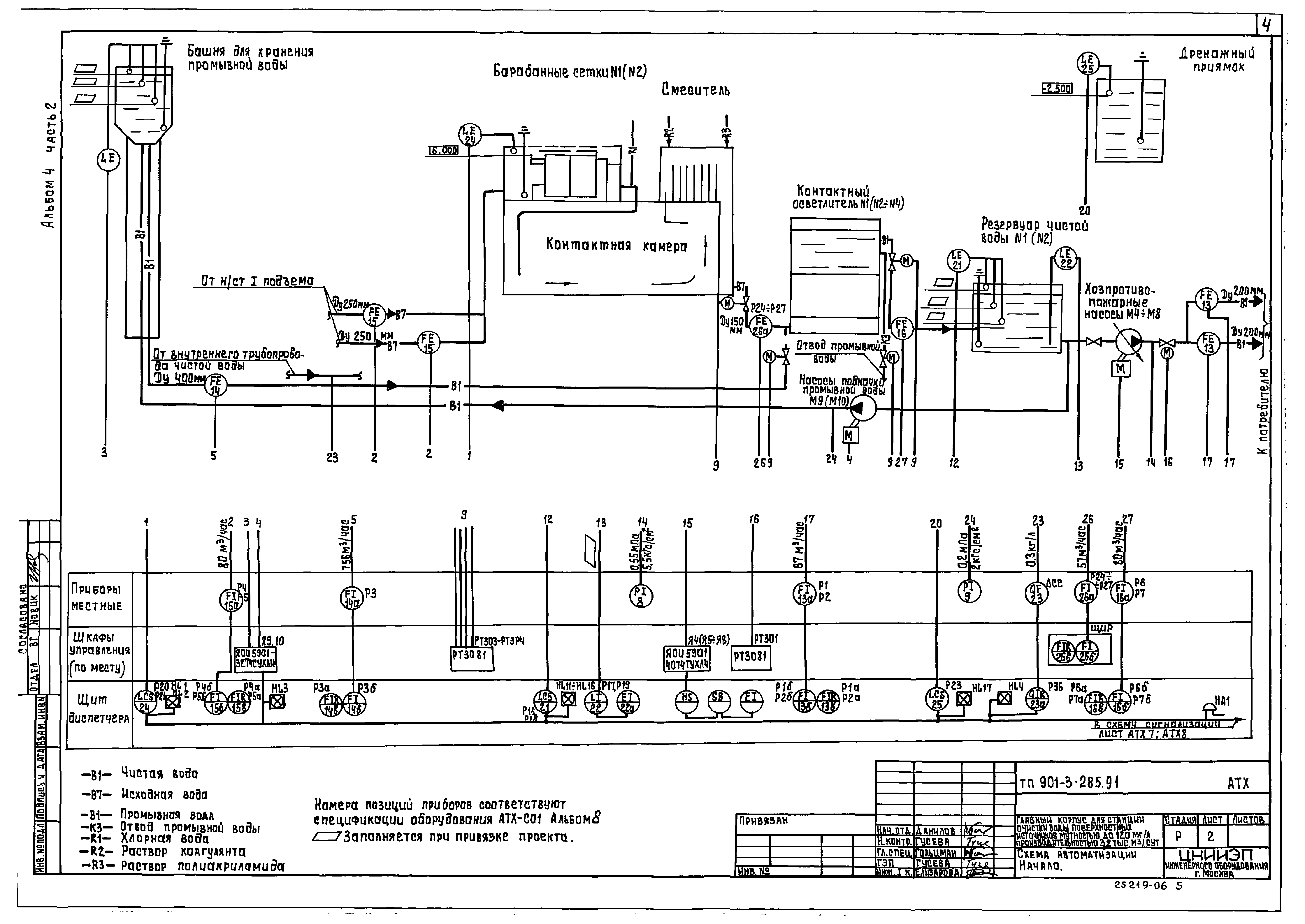
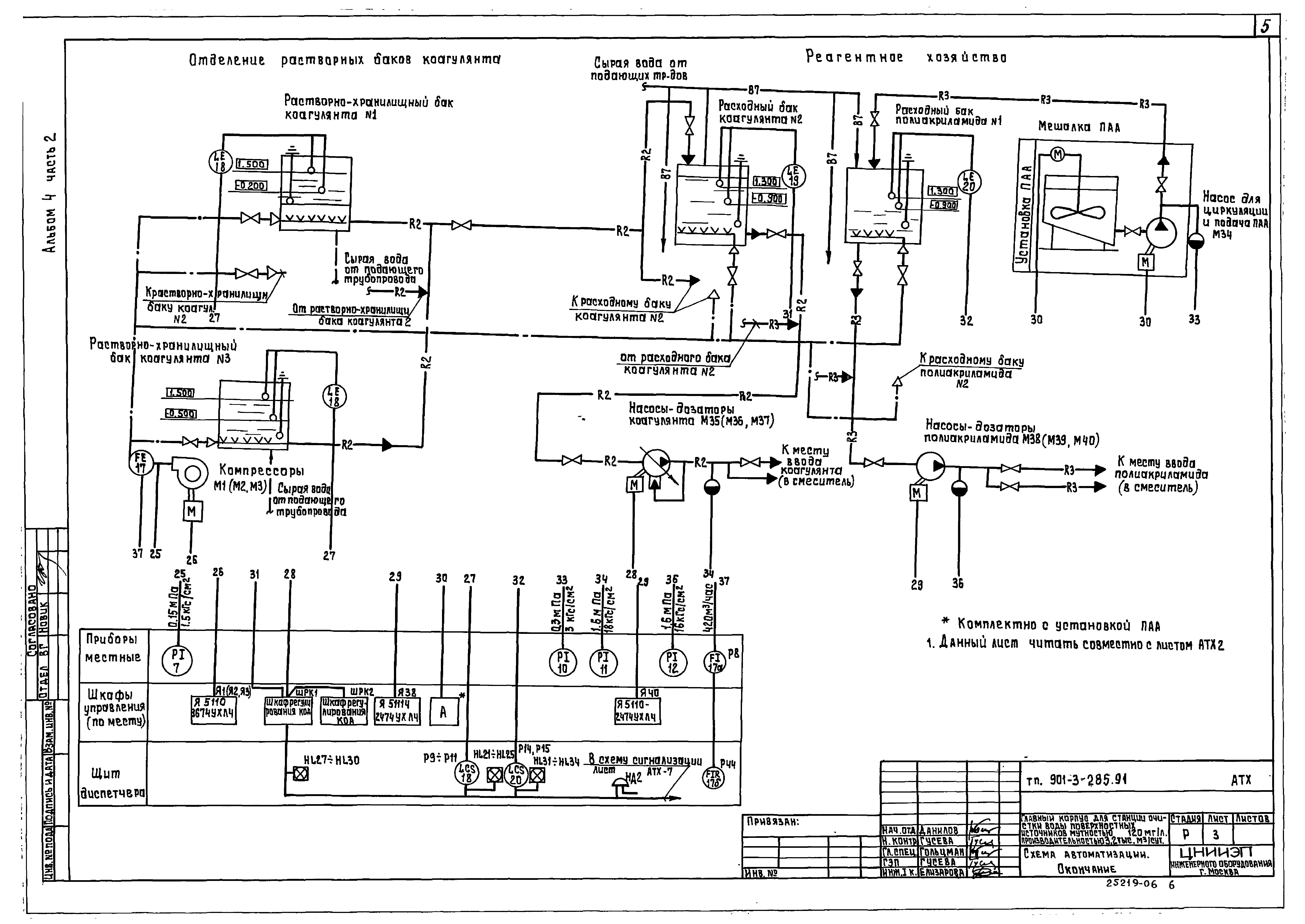
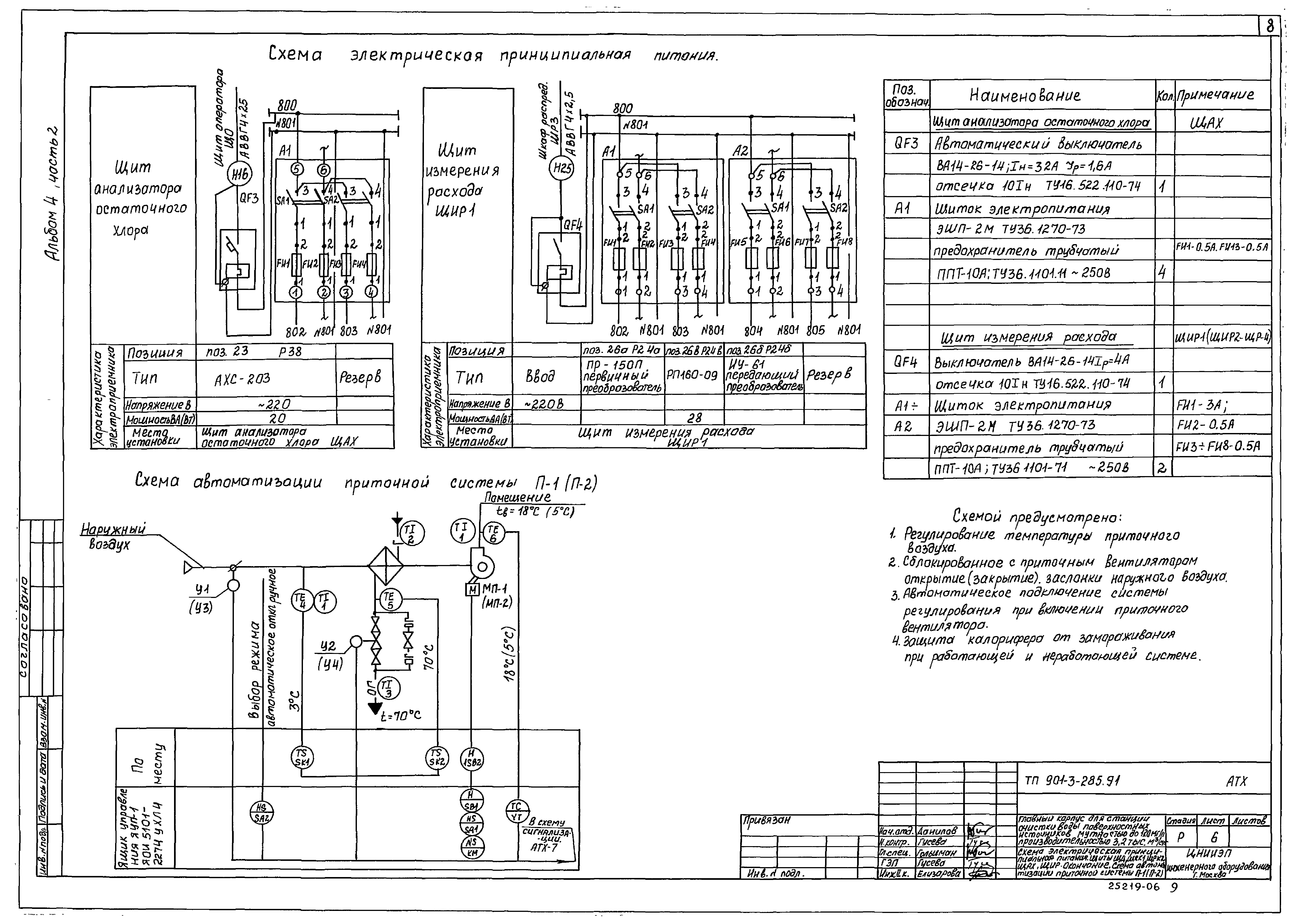
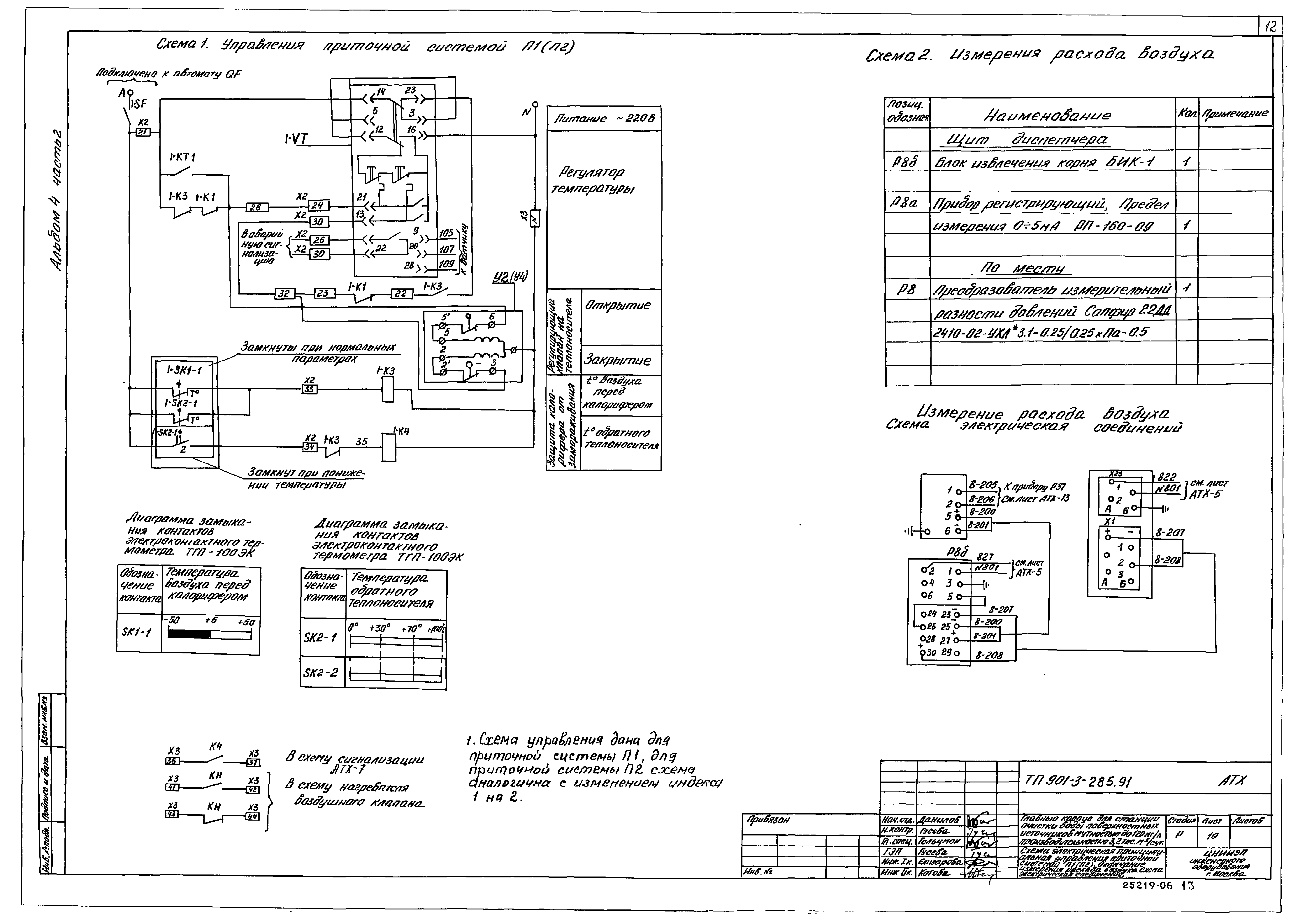
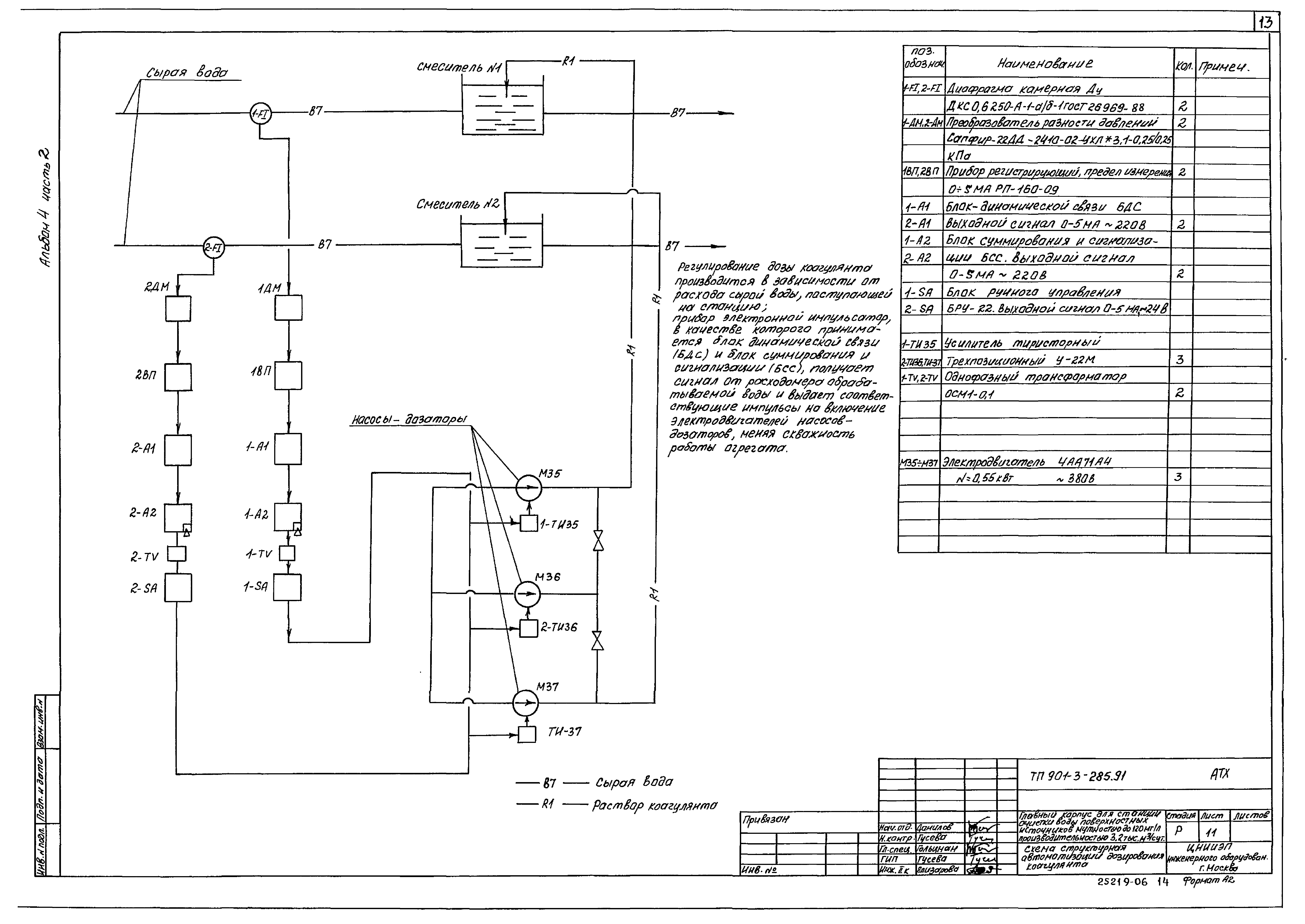
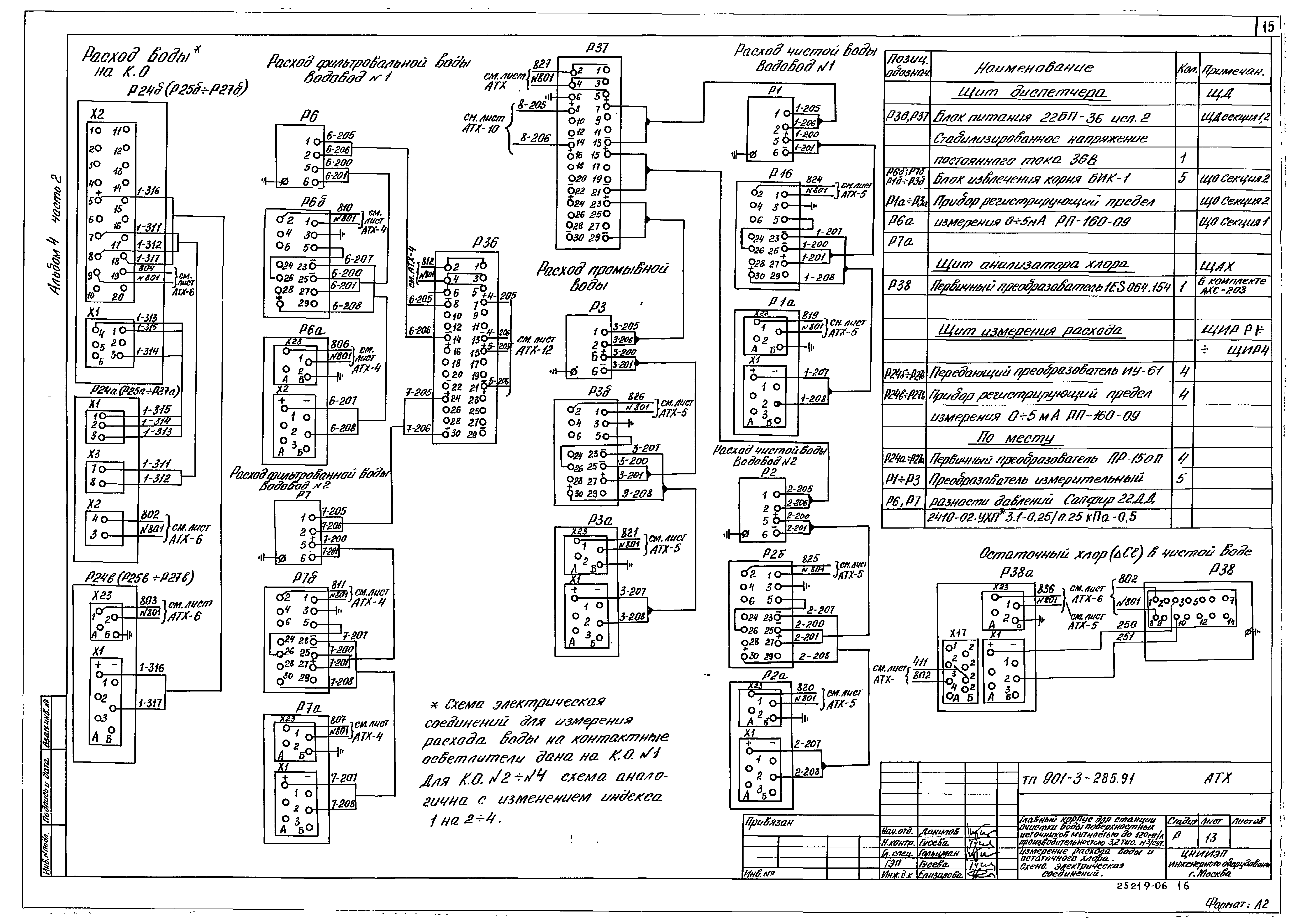
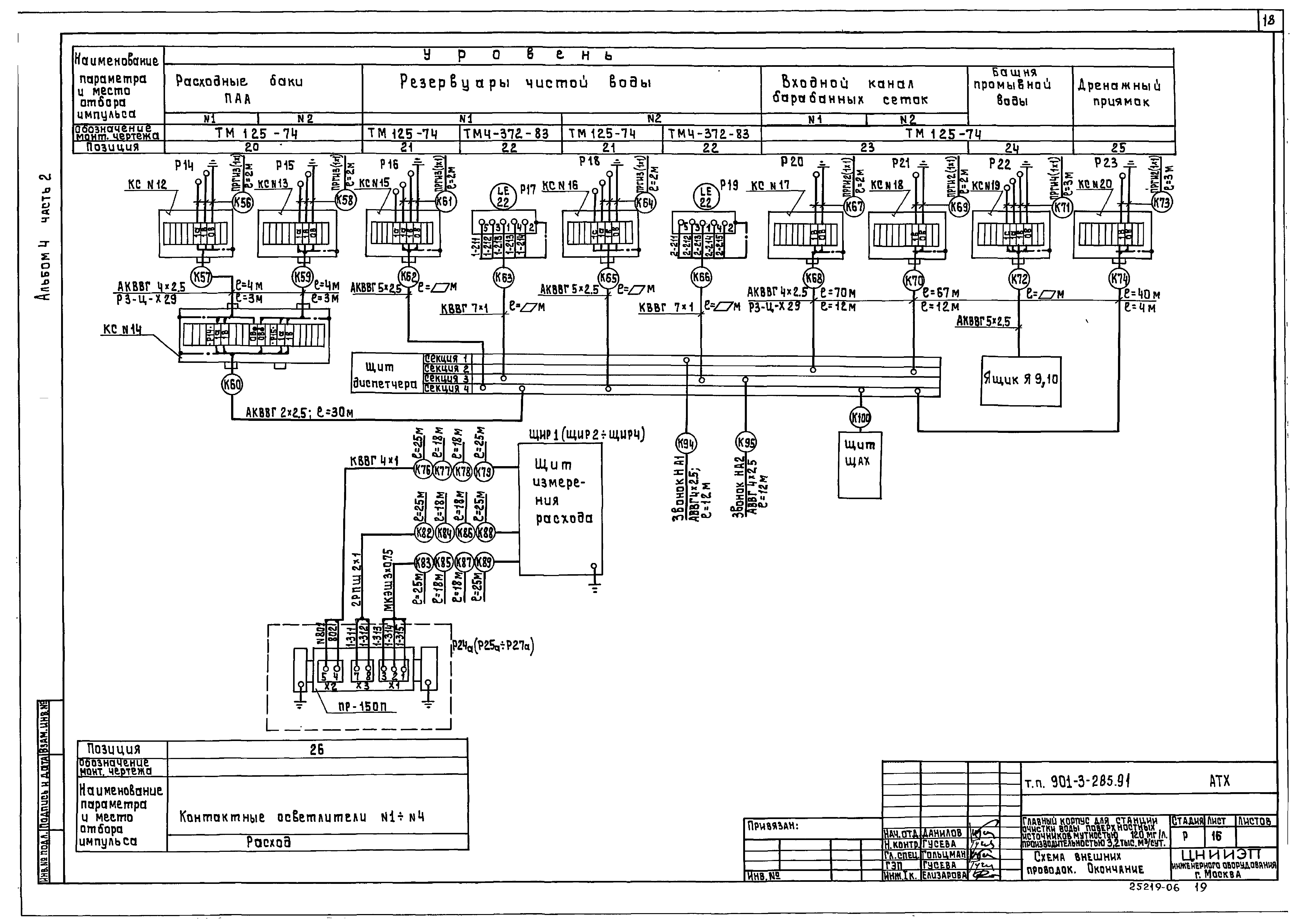
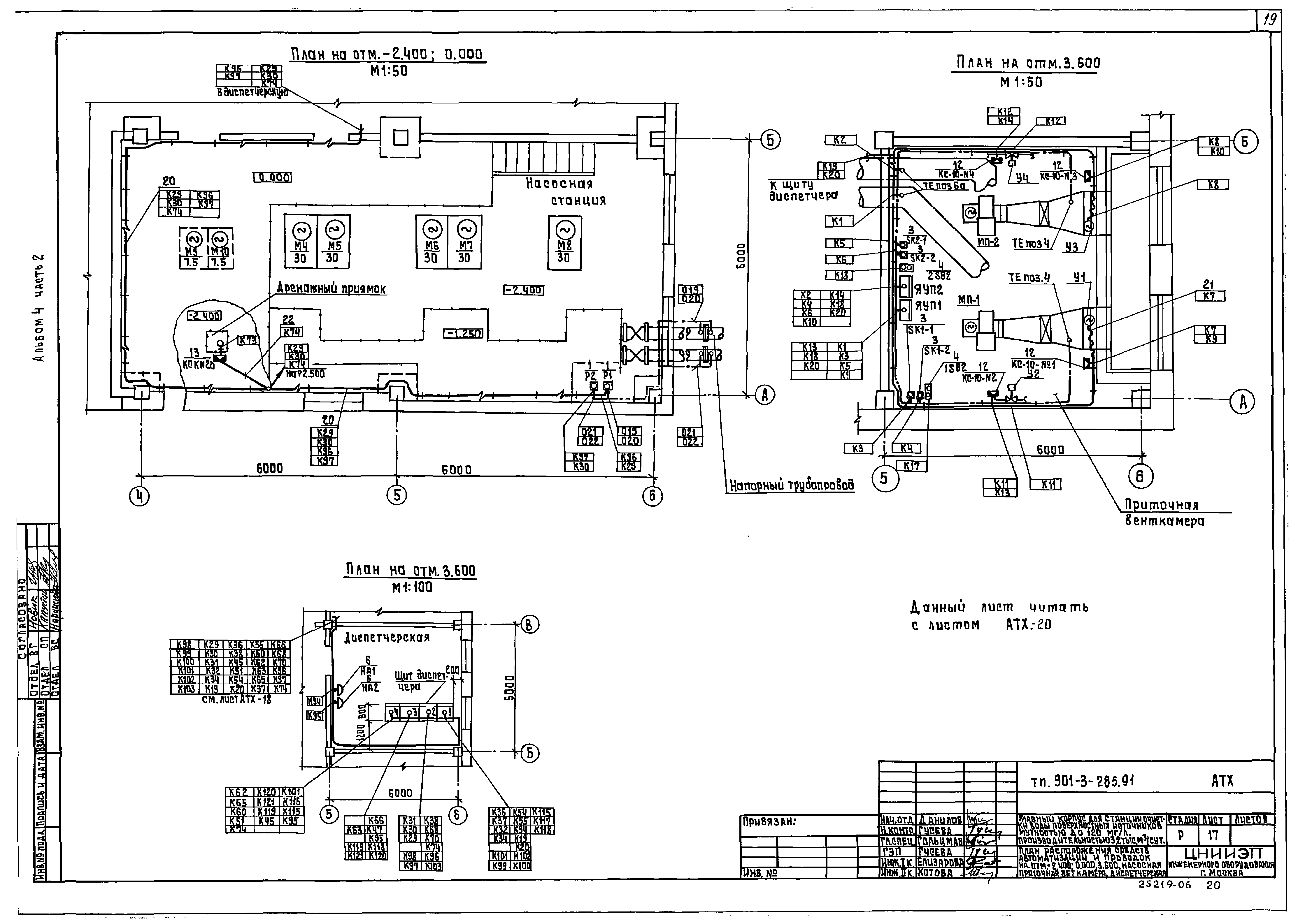
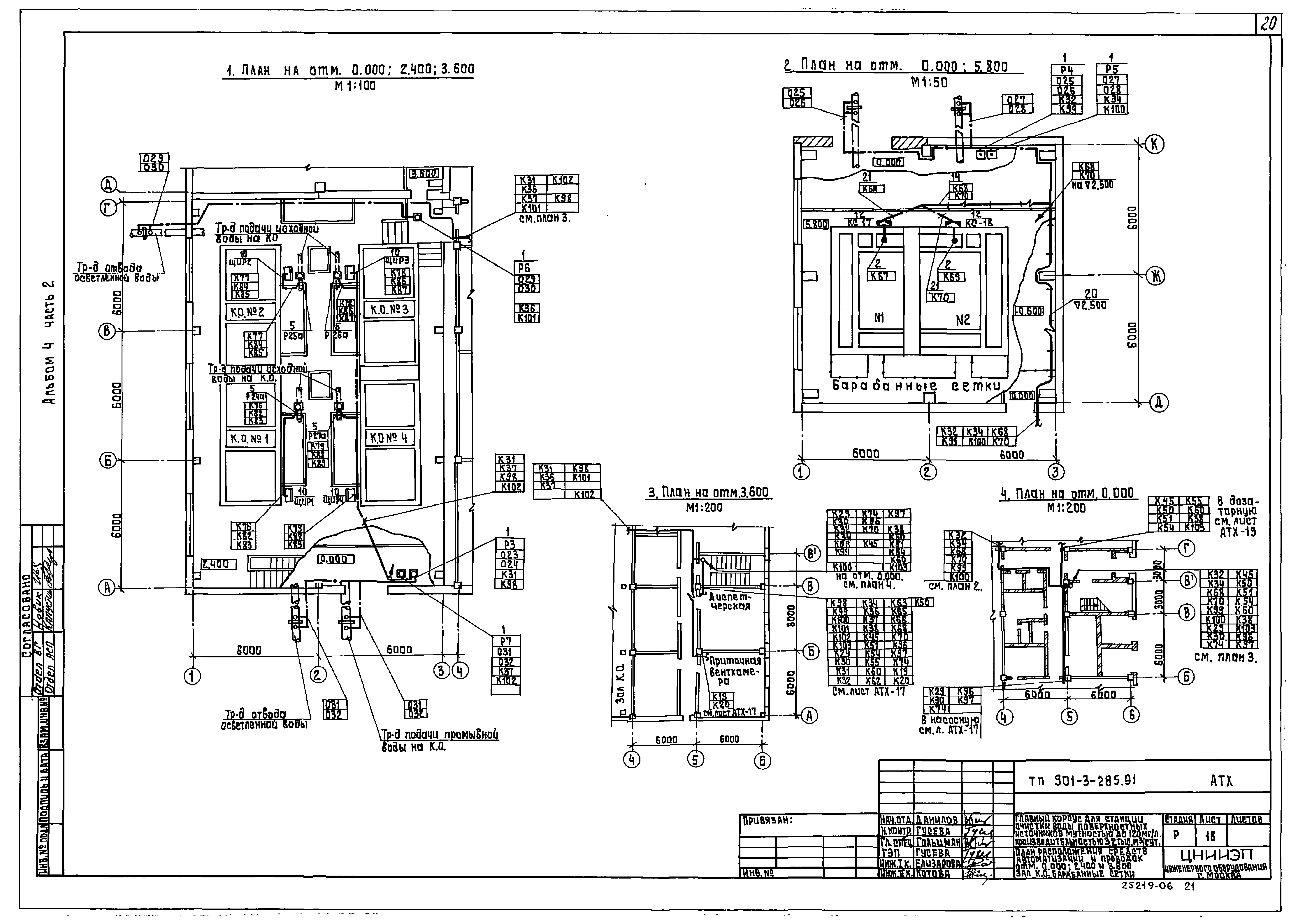
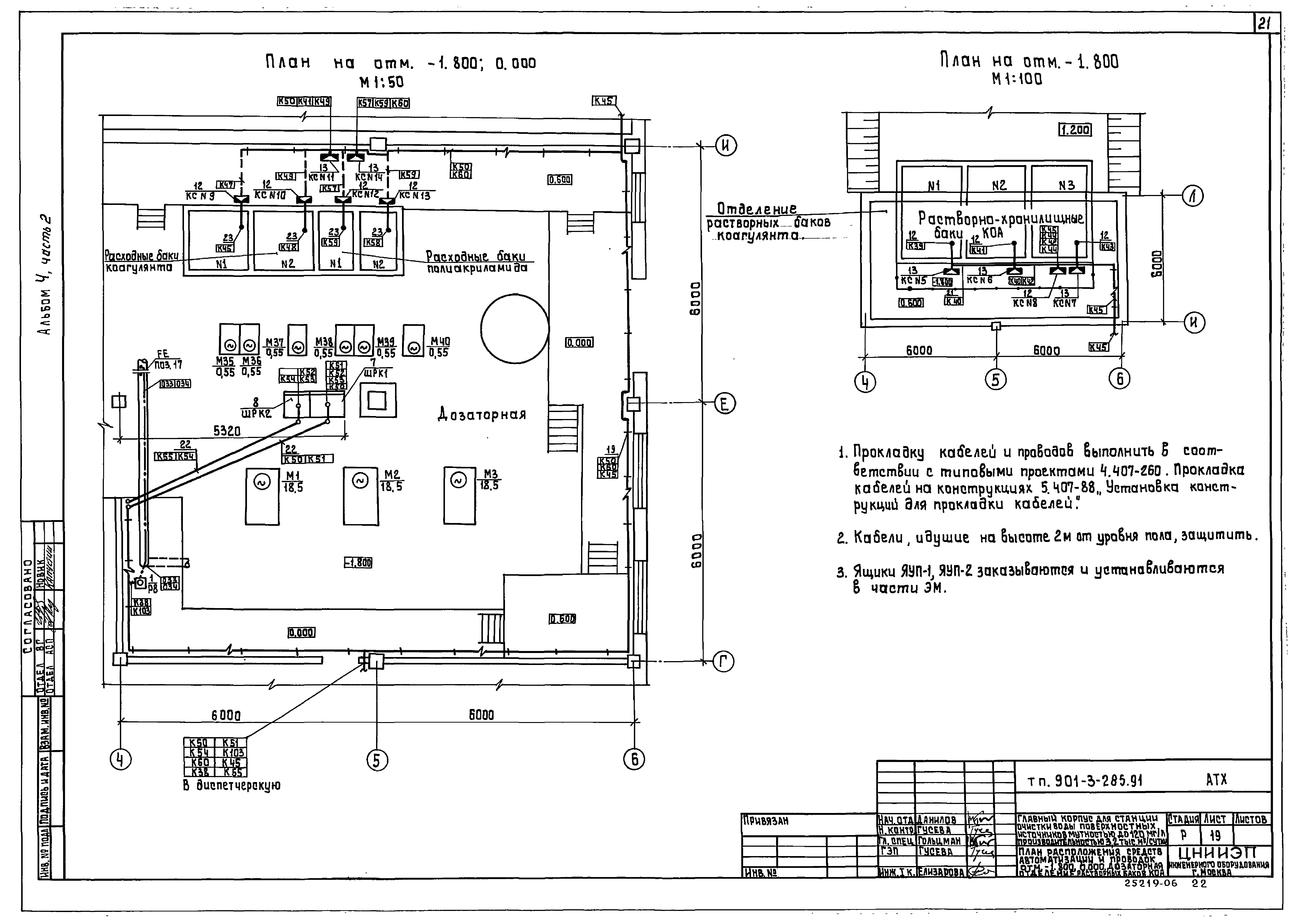
| Оглавление: | Содержание Автоматизация Общие данные Схема автоматизации Схема электрическая принципиальная питания. Щиты ЩД, ШРК1, ШРК2, ЩАХ, ЩИР Схема автоматизации приточной системы П-1 (П-2) Схема электрическая принципиальная сигнализации общестанционная Схема электрическая принципиальная сигнализации. Основные реагенты Схема электрическая принципиальная управления приточной системой П1 (П2) Измерение расхода воздуха. Схема электрическая соединений Схема структурная автоматизации дозирования коагулянта Регулирование дозы коагулянта. Схема электрическая соединений Измерение расхода воды и остаточного хлора. Схема электрическая соединений Схема внешних проводок План расположения средств автоматизации и проводок на отм. - 2.400; 0.000; 3.600. Насосная, приточная венткамера, диспетчерская План расположения средств автоматизации и проводок на отм. 0.000; 2.400 и 3.600. Зал коагулянта. Барабанные сетки План расположения средств автоматизации и проводок на отм. - 1.800; 0.000. Дозаторная. Отделение растворных баков коагулянта Спецификация к планам расположения средств автоматизации и проводок Щит диспетчера ЩД, секции 1, 2. Схема подключения клеммников Щит диспетчера ЩД, секции 3, 4. Схема подключения клеммников Щиты ЩАХ, ШРК1, ШРК2, ЩИР. Схема подключения клеммников |
| Разработан: | ЦНИИЭП |
| Утверждён: | 29.07.1986 Госгражданстрой (Gosgrazhdanstroy 242) |
| Заменяет собой: |
|

























