Скачать Типовой проект 901-3-285.91 Альбом 6. Задание заводу-изготовителюДата актуализации: 01.01.2021
|
| Обозначение: | Типовой проект 901-3-285.91 |
| Обозначение англ: | 901-3-285.91 |
| Статус: | не определен законодательством |
| Название рус.: | Альбом 6. Задание заводу-изготовителю |
| Дата добавления в базу: | 01.10.2014 |
| Дата актуализации: | 01.01.2021 |
| Дата введения: | 29.07.1986 |
| Дата окончания срока действия: | 30.06.2003 |
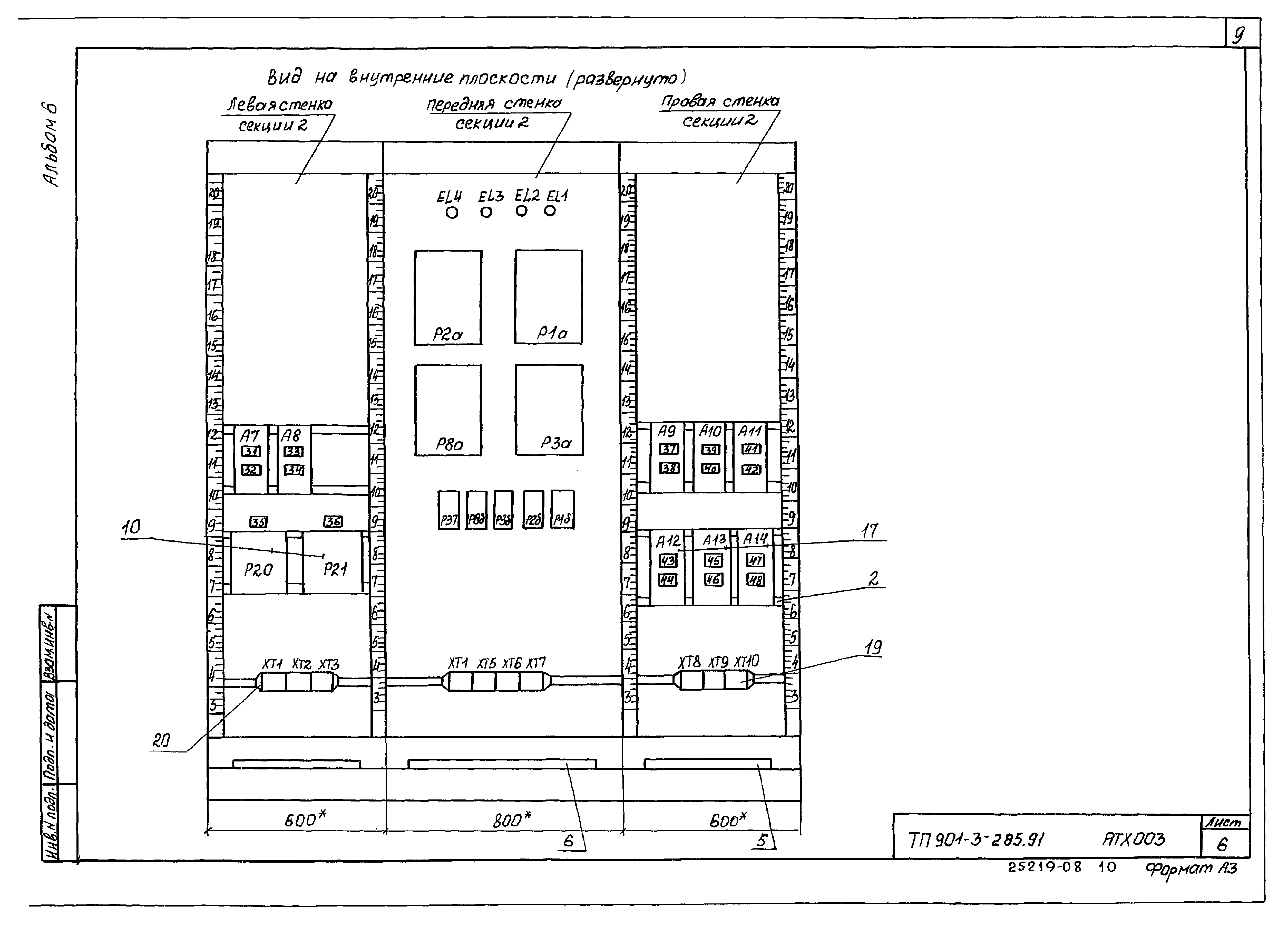
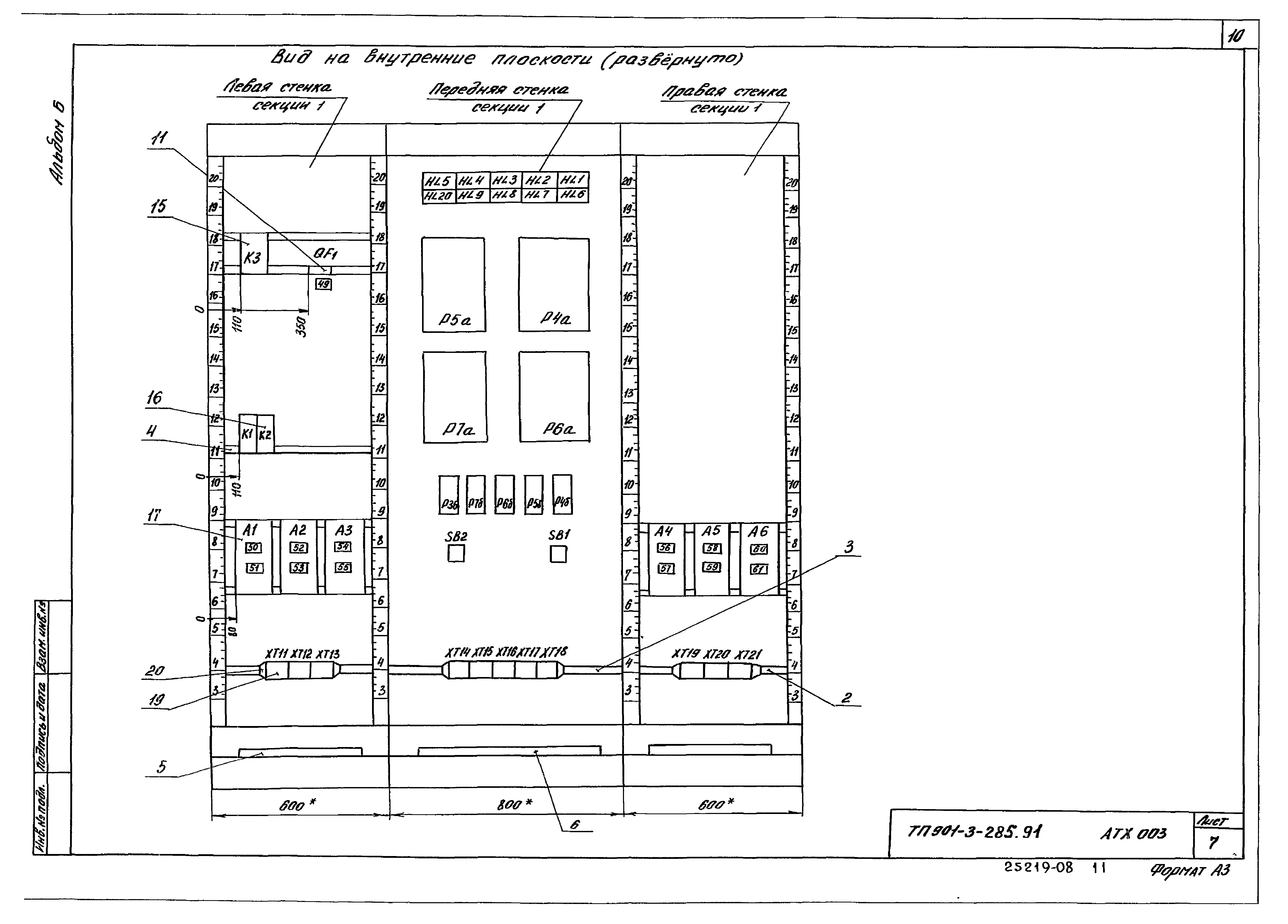
| Оглавление: | Щит диспетчера ЩД. Спецификация щитов и электроаппаратуры Щит диспетчера. Общий вид Щит диспетчера. Секции 1, 2. Общий вид Щит диспетчера. Секции 1, 2. Таблица соединений Щит диспетчера. Секции 1, 2. Таблица подключения Щит диспетчера. Секции 3, 4. Общий вид Щит диспетчера. Секции 3, 4. Таблица соединений Щит диспетчера. Секции 3, 4. Таблица подключения Шкаф регулирования коагулянта ШРК1. Спецификация щитов и электроаппаратуры Шкаф регулирования коагулянта ШРК1. Общий вид Шкаф регулирования коагулянта ШРК1. Таблица соединений Шкаф регулирования коагулянта ШРК1. Таблица подключения Шкаф регулирования коагулянта ШРК2. Спецификация щитов и электроаппаратуры Шкаф регулирования коагулянта ШРК2. Общий вид Шкаф регулирования коагулянта ШРК2. Таблица соединений Шкаф регулирования коагулянта ШРК2. Таблица подключения Щит анализатора остаточного хлора ЩАХ. Спецификация щитов и электроаппаратуры Щит анализатора остаточного хлора ЩАХ. Общий вид Щит анализатора остаточного хлора ЩАХ. Таблица соединений Щит анализатора остаточного хлора ЩАХ. Таблица подключения Щит измерения расхода ЩИР. Спецификация щитов и электроаппаратуры Щит измерения расхода ЩИР. Общий вид Щит измерения расхода ЩИР. Таблица соединений Щит измерения расхода ЩИР. Таблица подключения |
| Разработан: | ЦНИИЭП |
| Утверждён: | 29.07.1986 Госгражданстрой (Gosgrazhdanstroy 242) |
| Заменяет собой: |
|














































































