Скачать Типовой проект 901-5-40.87 Альбом II. Архитектурно-строительная частьДата актуализации: 01.01.2021
|
| Обозначение: | Типовой проект 901-5-40.87 |
| Обозначение англ: | 901-5-40.87 |
| Статус: | не определен законодательством |
| Название рус.: | Альбом II. Архитектурно-строительная часть |
| Дата добавления в базу: | 01.10.2014 |
| Дата актуализации: | 01.01.2021 |
| Дата введения: | 27.05.1986 |
| Дата окончания срока действия: | 30.06.2003 |
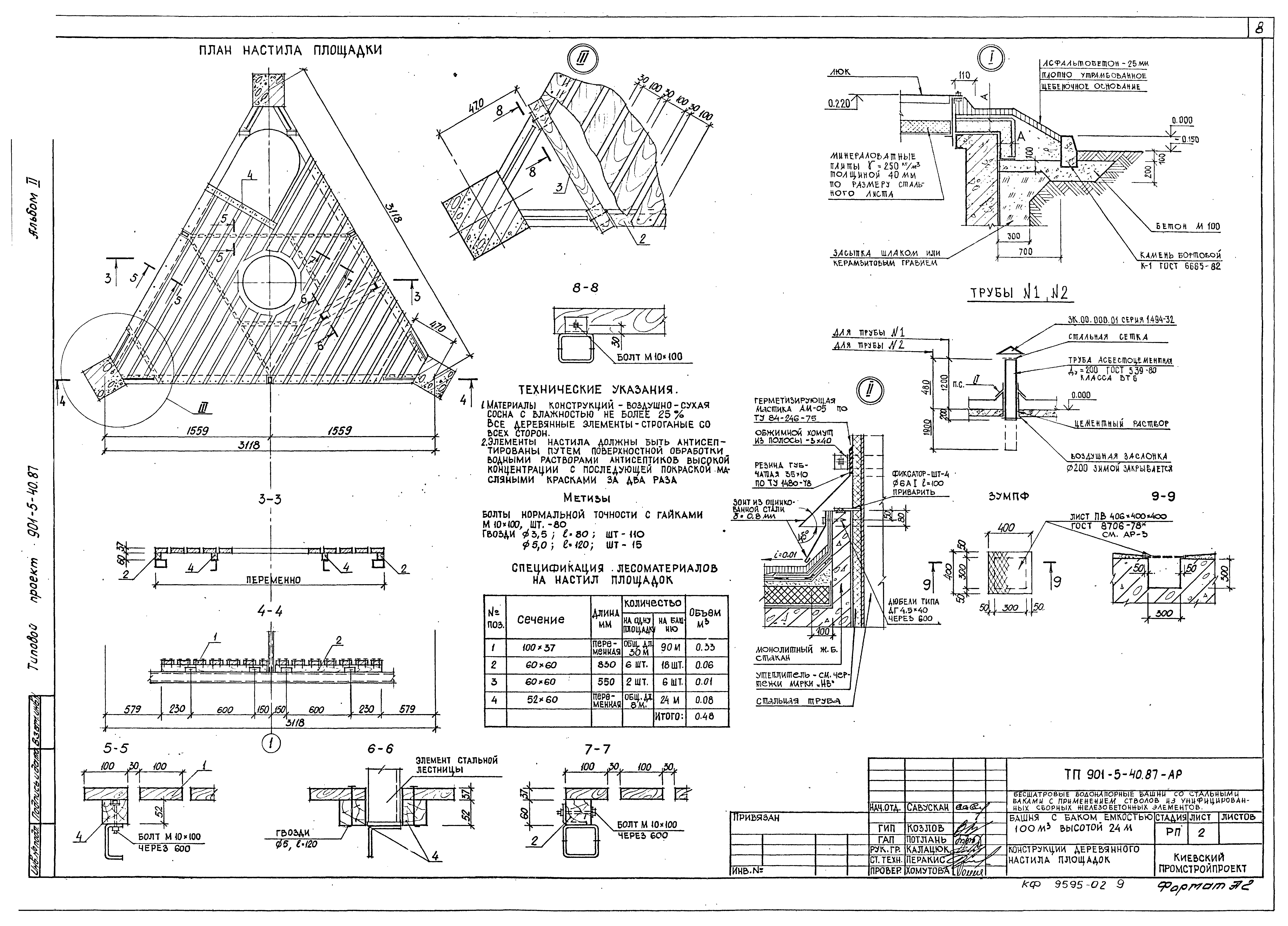
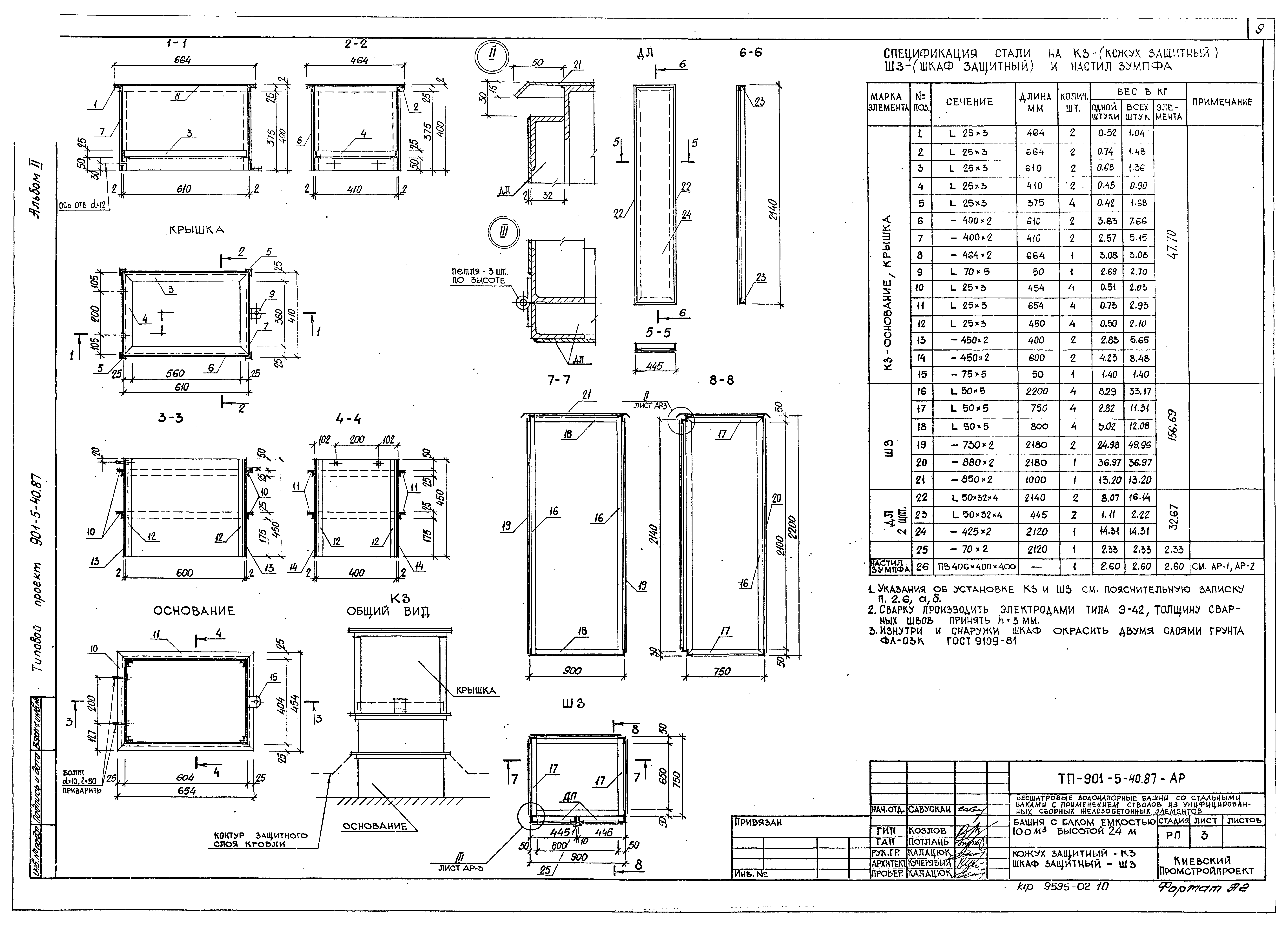
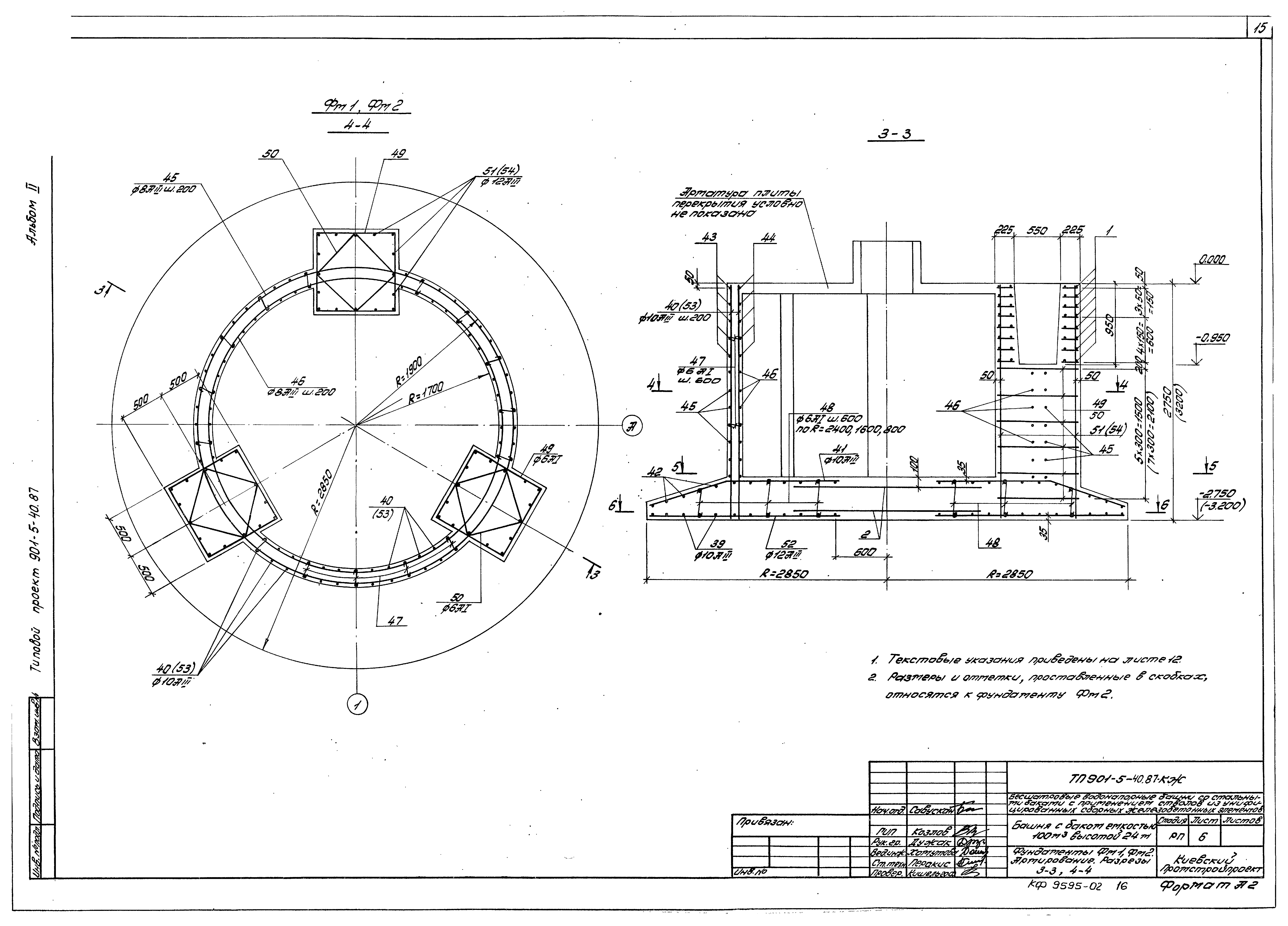
| Оглавление: | Содержание Пояснительная записка Архитектурная часть Общие данные, фасад, разрез 1-1, планы Конструкции деревянного настила площадок Кожух защитный - КЗ. Шкаф защитный - ШЗ Строительная часть Общие данные Схема расположения элементов башни. Узлы I, II, III, IV Фундаменты Фм1 - Фм4. Опалубка. Разрезы 1-1 - 5-5 Фундаменты Фм1 - Фм4. Плита перекрытия. Разрезы 1-1 - 11-11 Фундаменты Фм1 - Фм4. Армирование. Разрезы 1-1, 2-2. Узел I Фундаменты Фм1, Фм2. Армирование. Разрезы 3-3, 4-4 Фундаменты Фм1, Фм2. Армирование. Разрезы 5-5, 6-6 Фундаменты Фм1, Фм2. Армирование. Спецификация Фундаменты Фм3, Фм4. Армирование. Разрезы 3-3, 4-4 Фундаменты Фм3, Фм4. Армирование. Разрезы 5-5, 6-6 Фундаменты Фм3, Фм4. Армирование. Спецификация Фундаменты Фм1 - Фм4. Армирование. Ведомость расхода стали Чертежи основного комплекта марки ОР Основные положения по организации строительства |
| Разработан: | Укрводоканалпроект |
| Утверждён: | 29.04.1986 Госстрой СССР (Государственный комитет Совета Министров СССР по делам строительства) (USSR Gosstroy А4-25) |






















