Скачать Типовой проект 901-5-40.87 Альбом III. Сборные железобетонные конструкции и арматурные изделияДата актуализации: 01.01.2021
|
| Обозначение: | Типовой проект 901-5-40.87 |
| Обозначение англ: | 901-5-40.87 |
| Статус: | не определен законодательством |
| Название рус.: | Альбом III. Сборные железобетонные конструкции и арматурные изделия |
| Дата добавления в базу: | 01.10.2014 |
| Дата актуализации: | 01.01.2021 |
| Дата введения: | 27.05.1986 |
| Дата окончания срока действия: | 30.06.2003 |
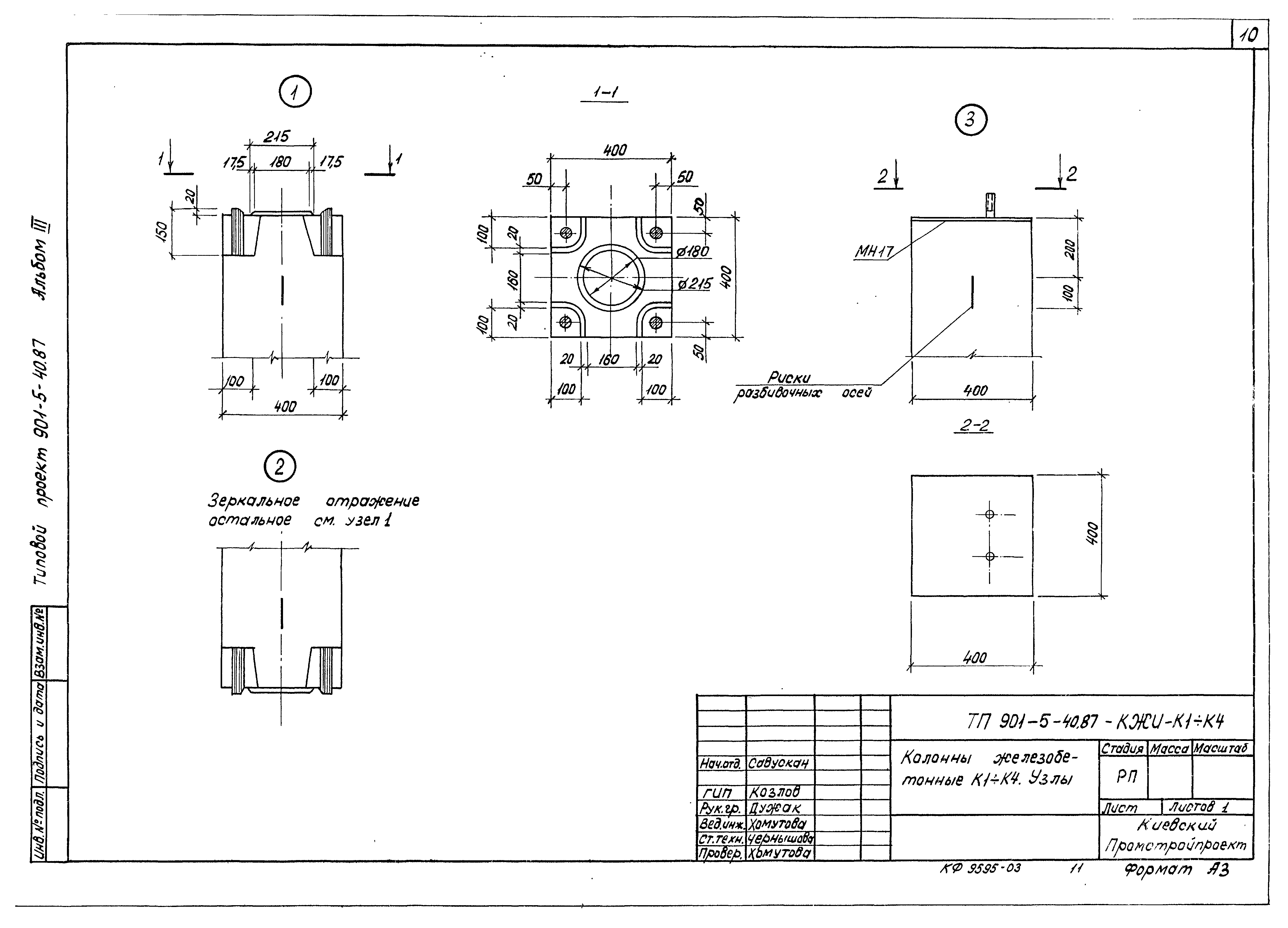
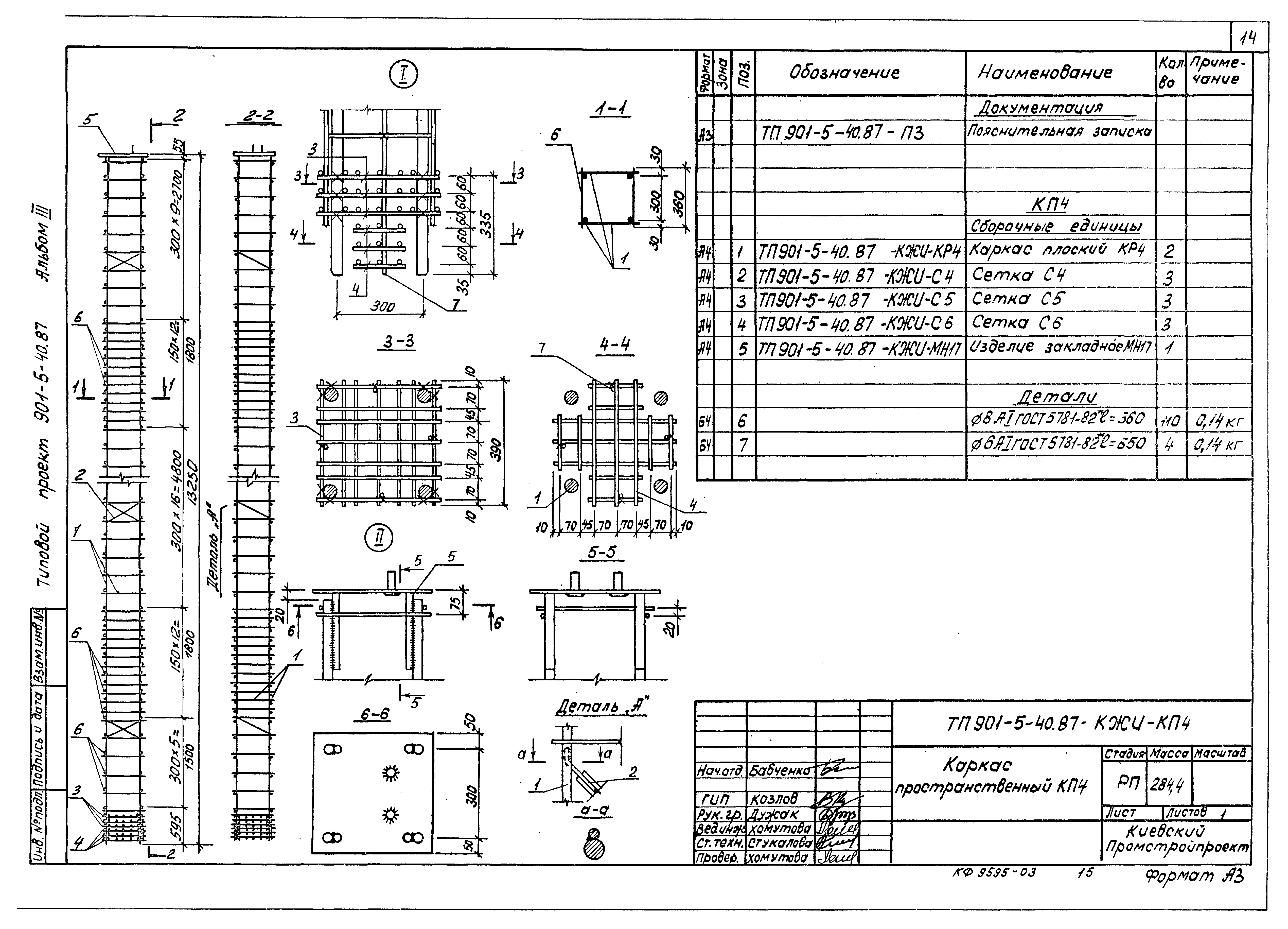
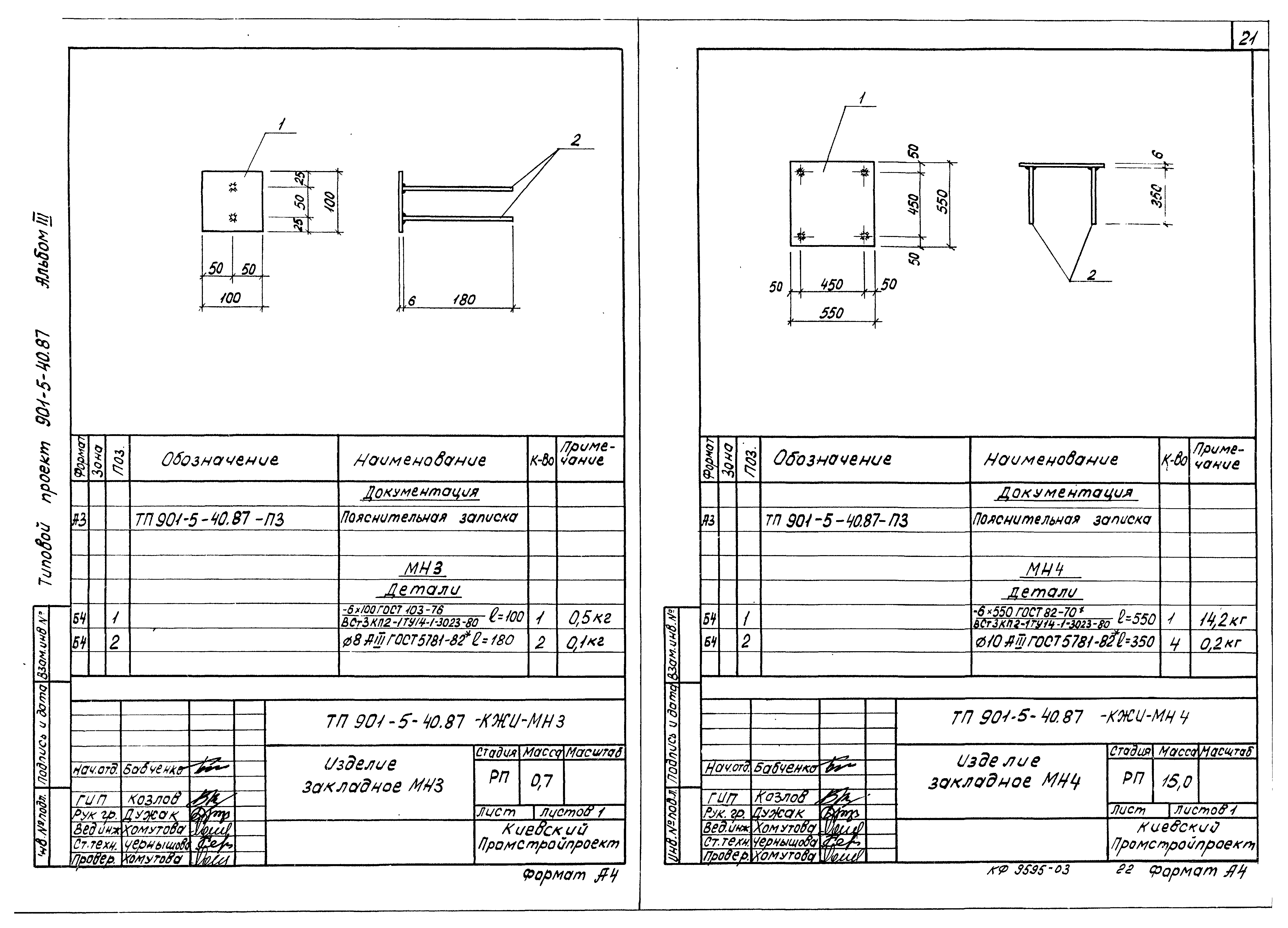
| Оглавление: | Содержание Пояснительная записка Колонны железобетонные Колонны железобетонные. Узлы Каркасы пространственные Каркасы плоские Сетки Изделия закладные Изделия соединительные |
| Разработан: | Укрводоканалпроект |
| Утверждён: | 29.04.1986 Госстрой СССР (Государственный комитет Совета Министров СССР по делам строительства) (USSR Gosstroy А4-25) |































