Скачать Типовой проект 901-5-40.87 Альбом IV. Металлические конструкцииДата актуализации: 01.01.2021
|
| Обозначение: | Типовой проект 901-5-40.87 |
| Обозначение англ: | 901-5-40.87 |
| Статус: | не определен законодательством |
| Название рус.: | Альбом IV. Металлические конструкции |
| Дата добавления в базу: | 01.10.2014 |
| Дата актуализации: | 01.01.2021 |
| Дата введения: | 27.05.1986 |
| Дата окончания срока действия: | 30.06.2003 |
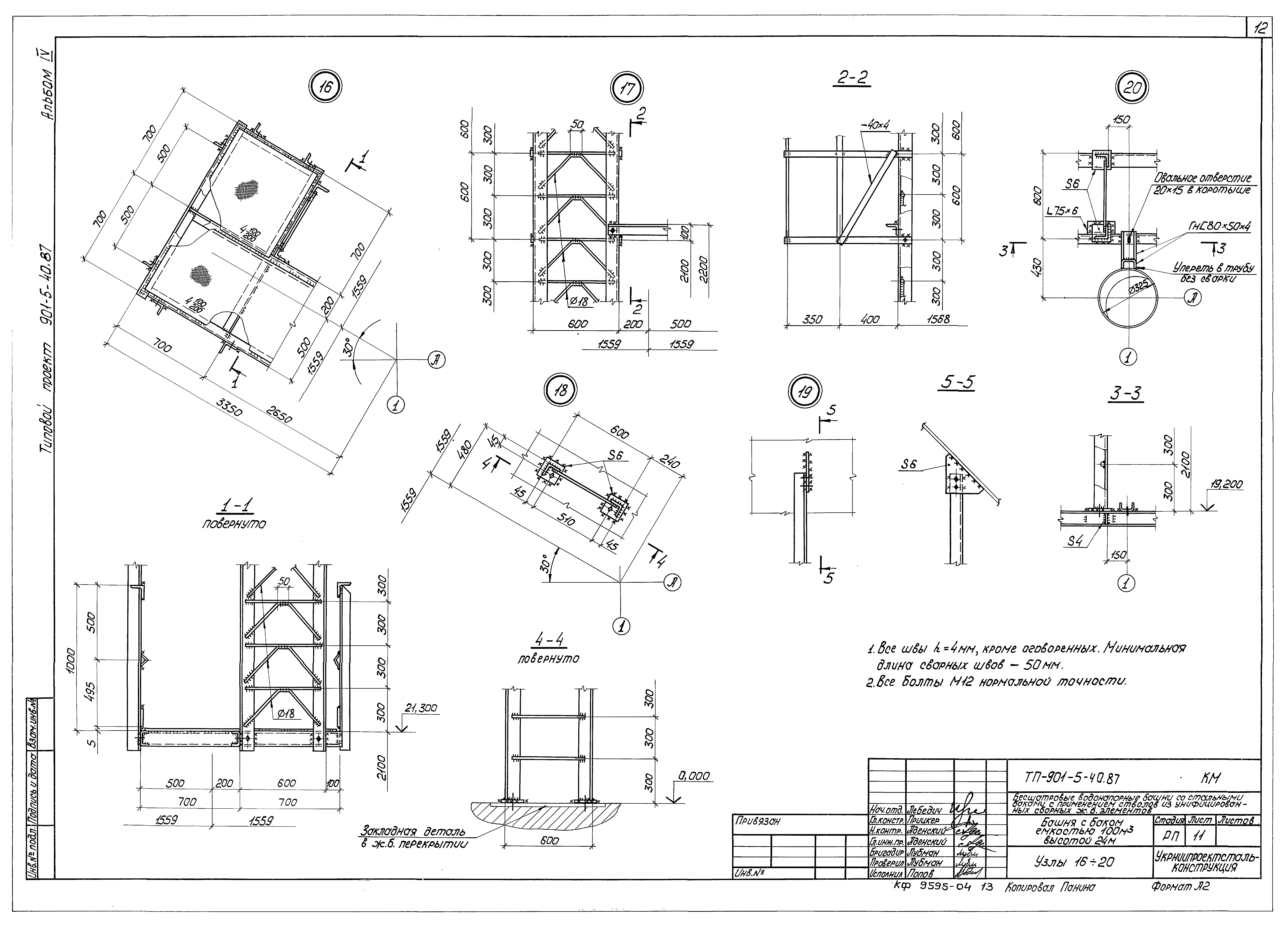
| Оглавление: | Общие данные Техническая спецификация металла Схема башни Диафрагма "Д". Узлы 1 - 3 Общий вид бака Узлы 4, 5 Узлы 6 - 9. Шпиль на крышке бака Узлы 10 - 12 Узлы 13 - 15 Узлы 16 - 20 Схема льдоудержателей. Узлы 21, 22 |
| Разработан: | Укрводоканалпроект |
| Утверждён: | 29.04.1986 Госстрой СССР (Государственный комитет Совета Министров СССР по делам строительства) (USSR Gosstroy А4-25) |













