Скачать Типовой проект 407-3-576.90 Альбом 1. Пояснительная записка. Электротехническая часть и опросные листыДата актуализации: 01.01.2021
|
| Обозначение: | Типовой проект 407-3-576.90 |
| Обозначение англ: | 407-3-576.90 |
| Статус: | не определен законодательством |
| Название рус.: | Альбом 1. Пояснительная записка. Электротехническая часть и опросные листы |
| Дата добавления в базу: | 01.10.2014 |
| Дата актуализации: | 01.01.2021 |
| Дата введения: | 19.09.1990 |
| Дата окончания срока действия: | 30.06.2003 |
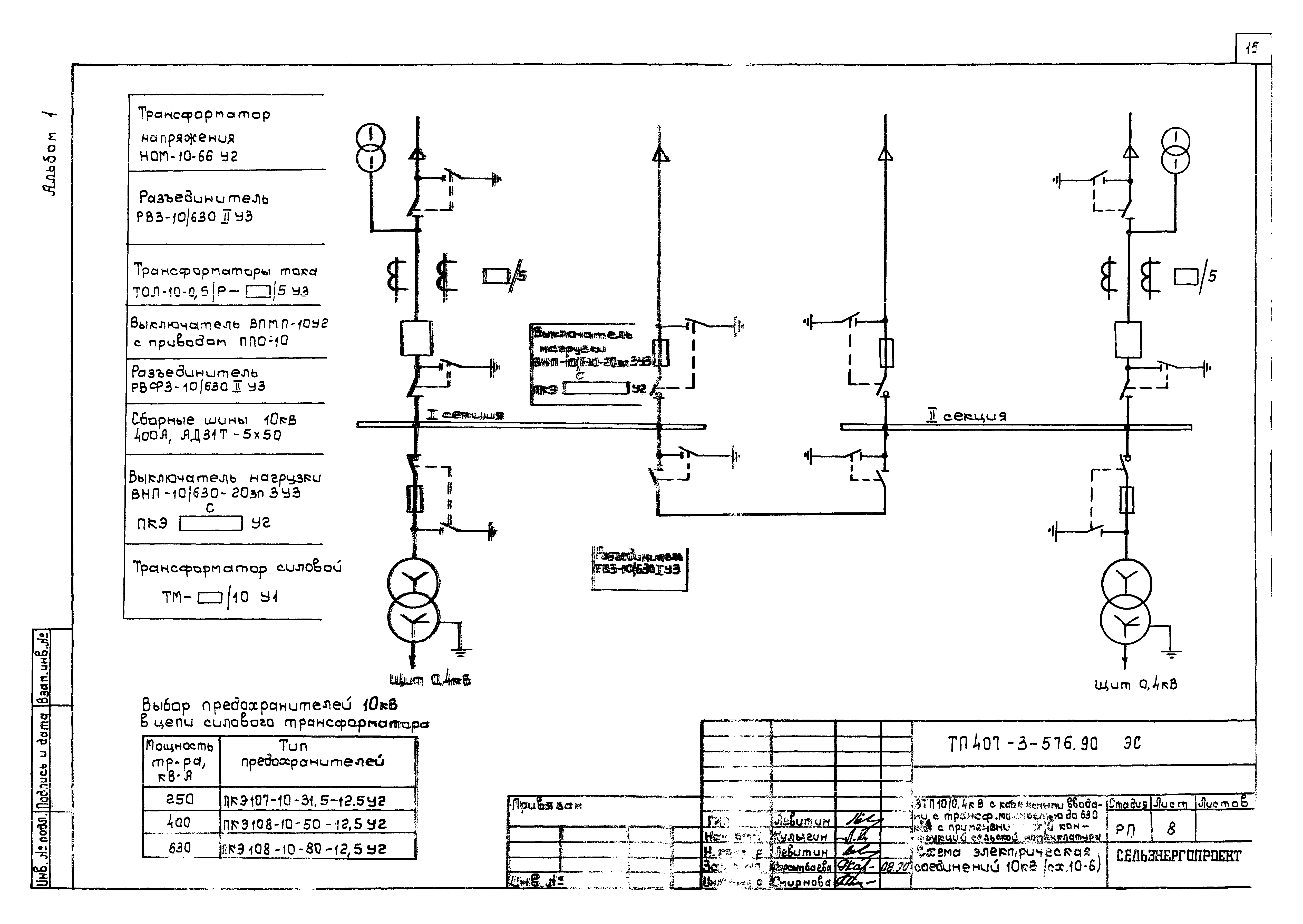
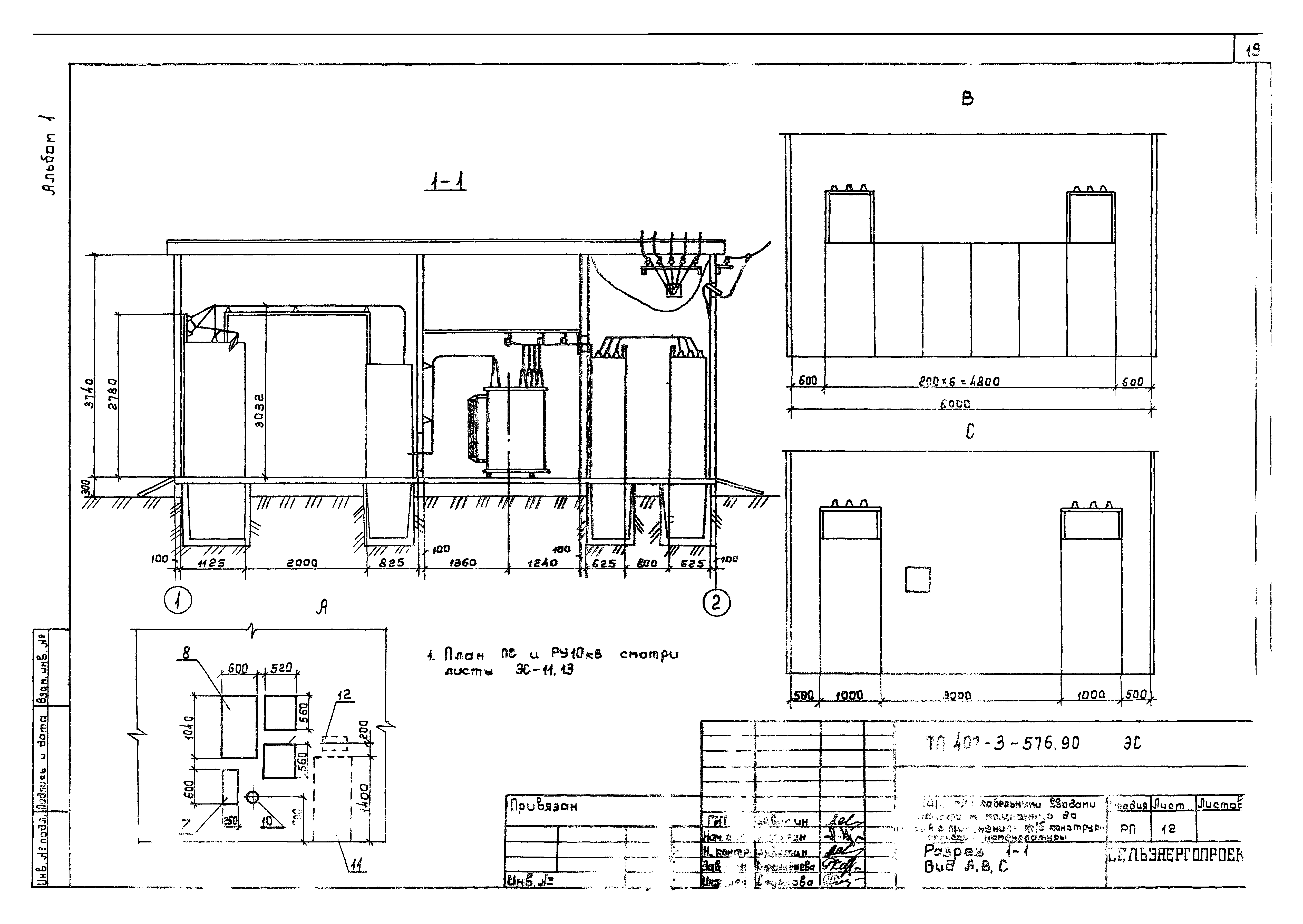
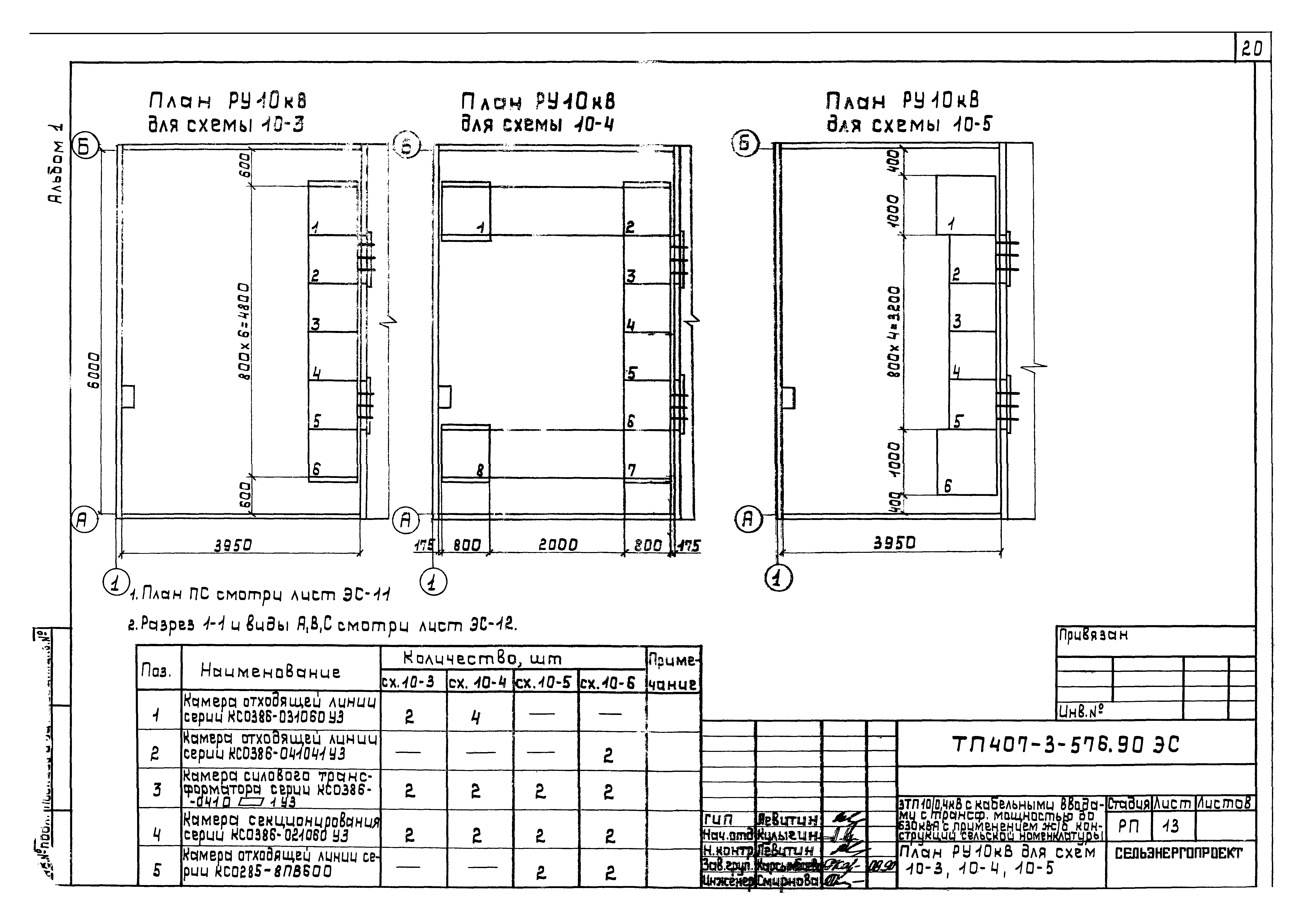
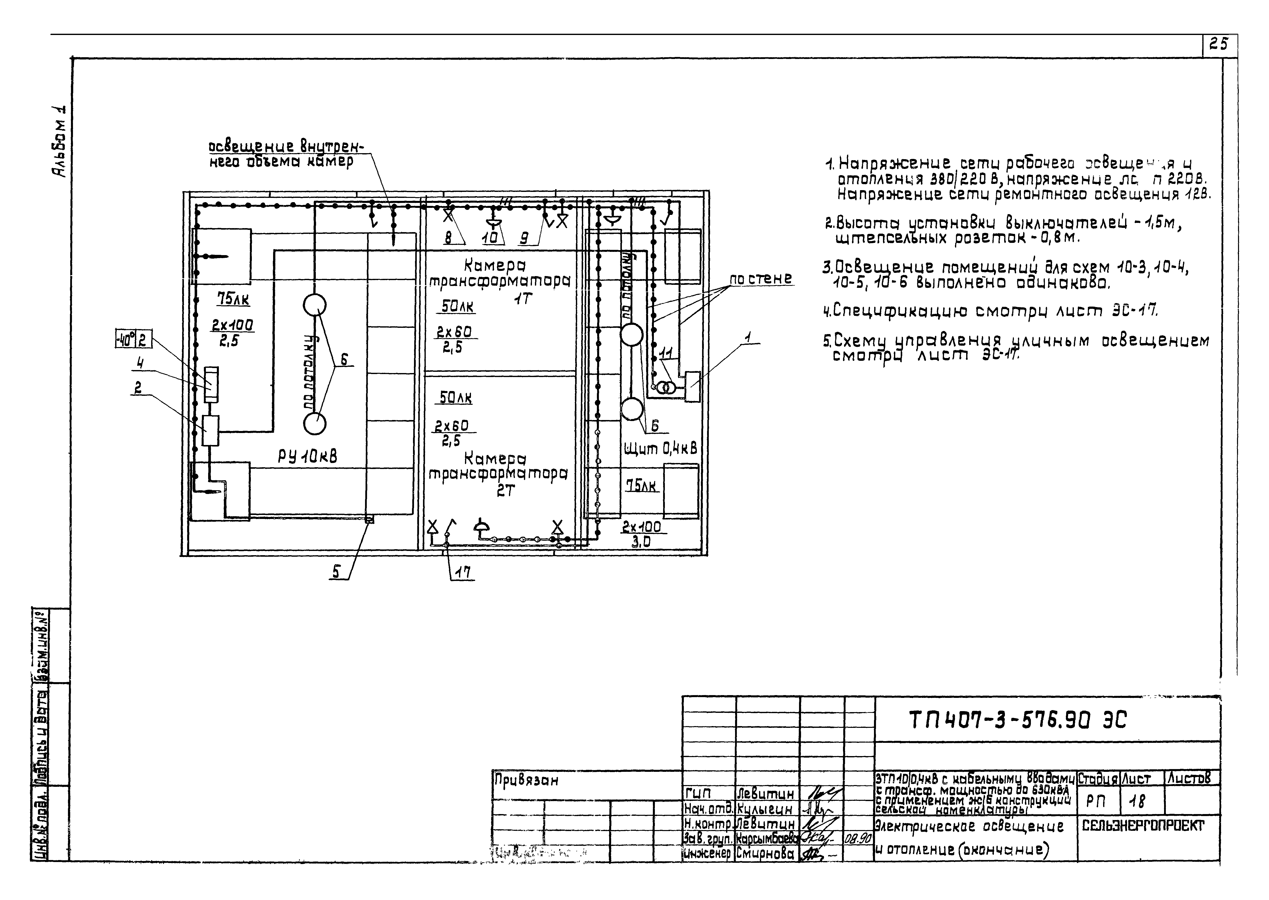
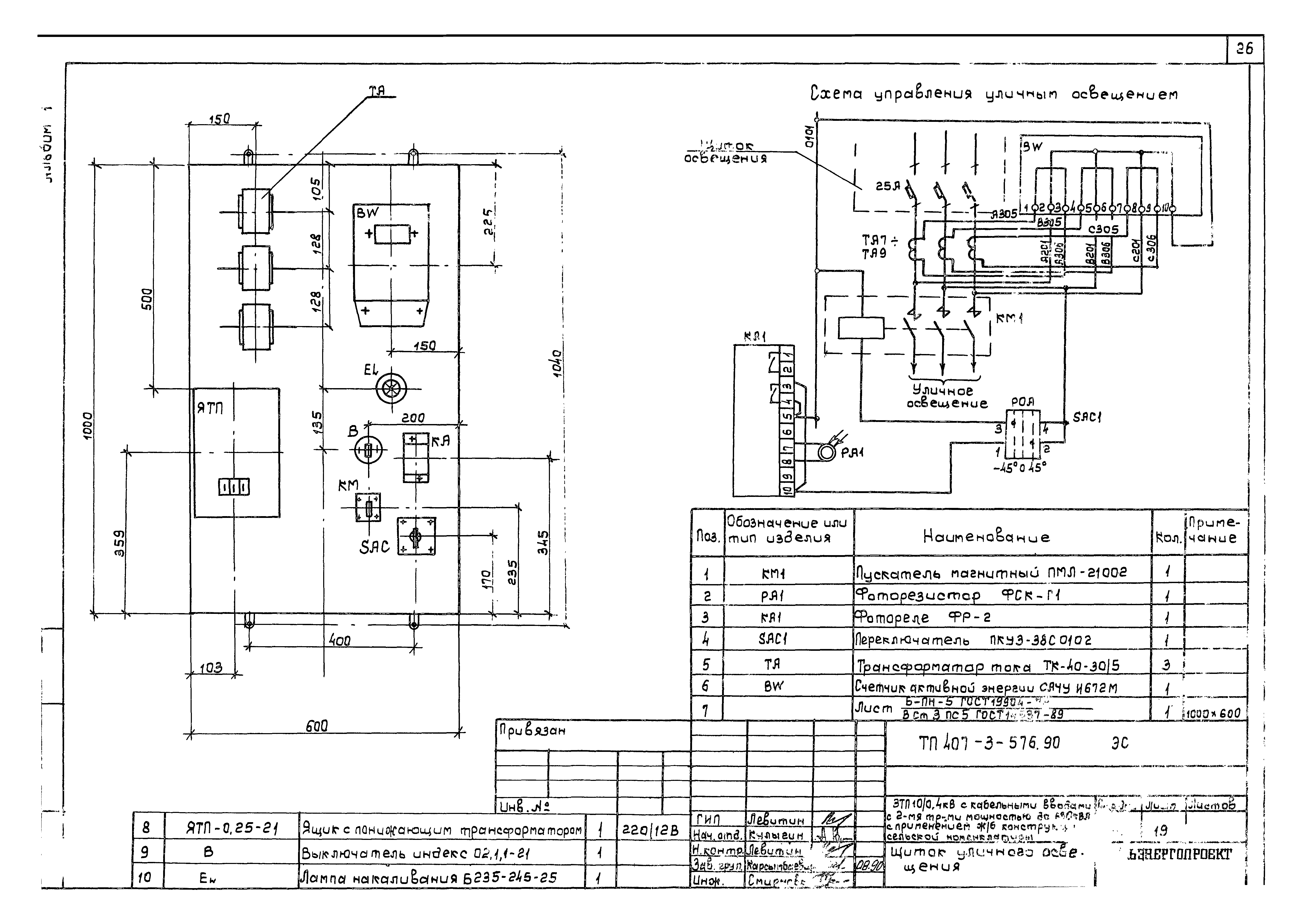
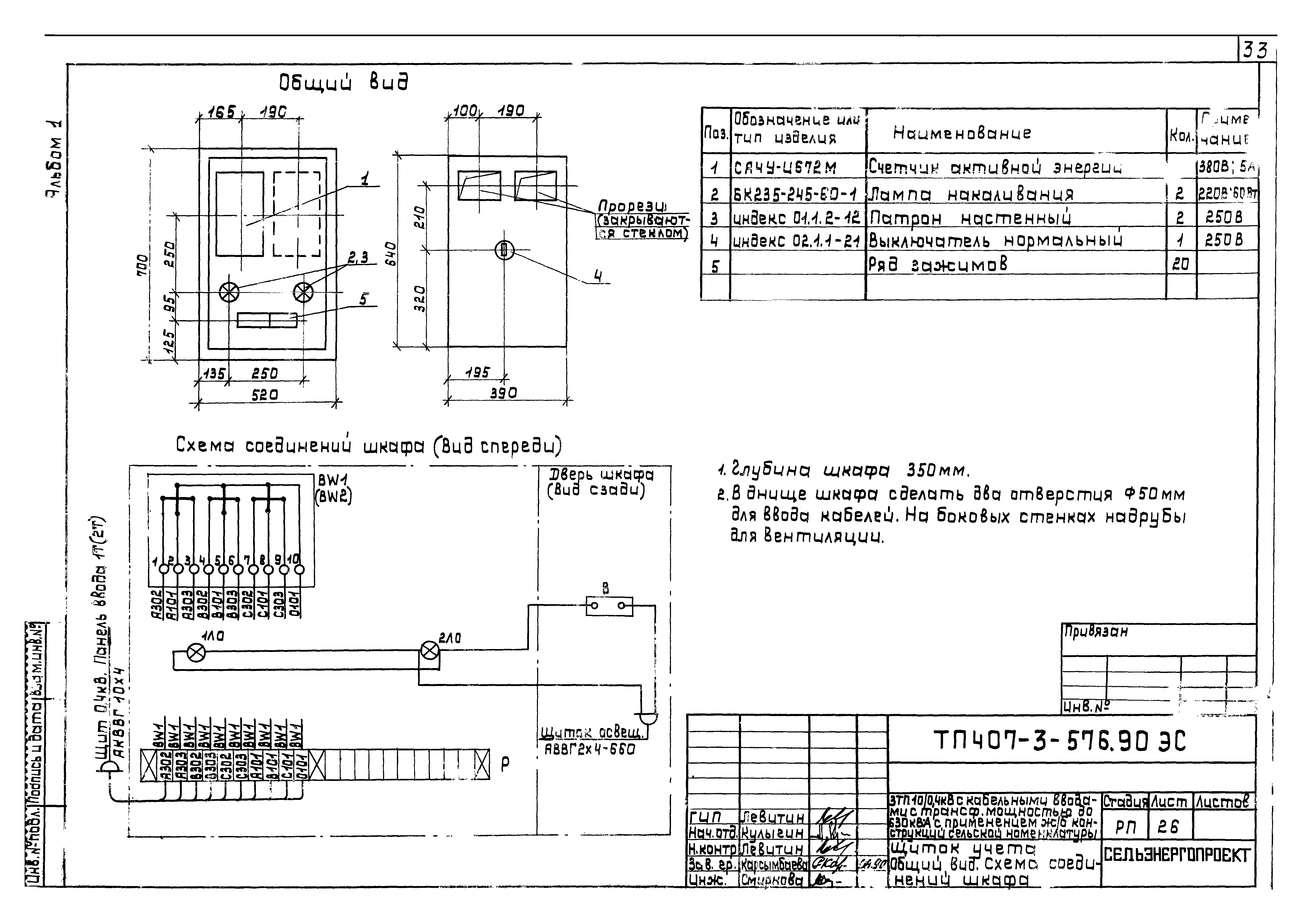
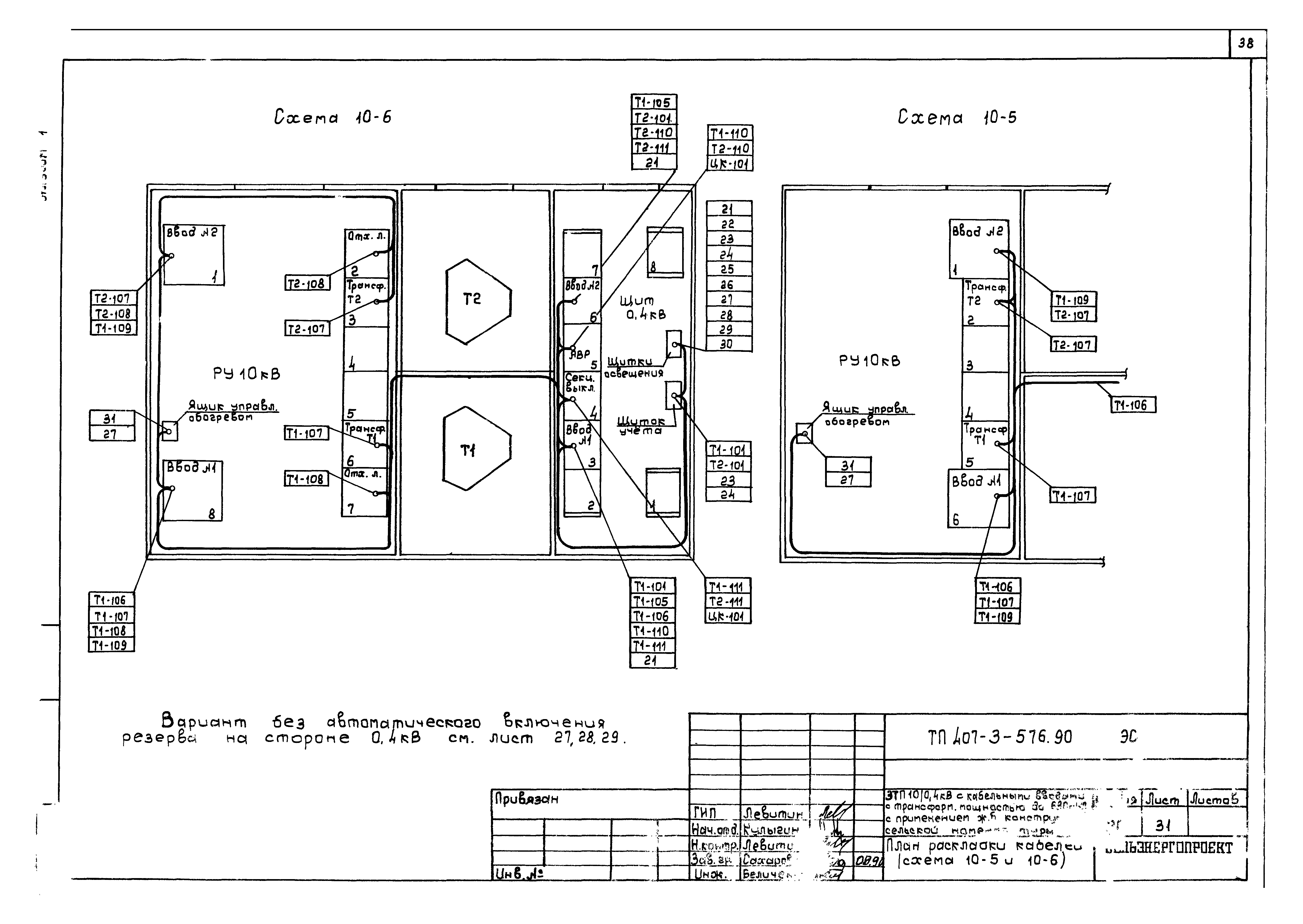
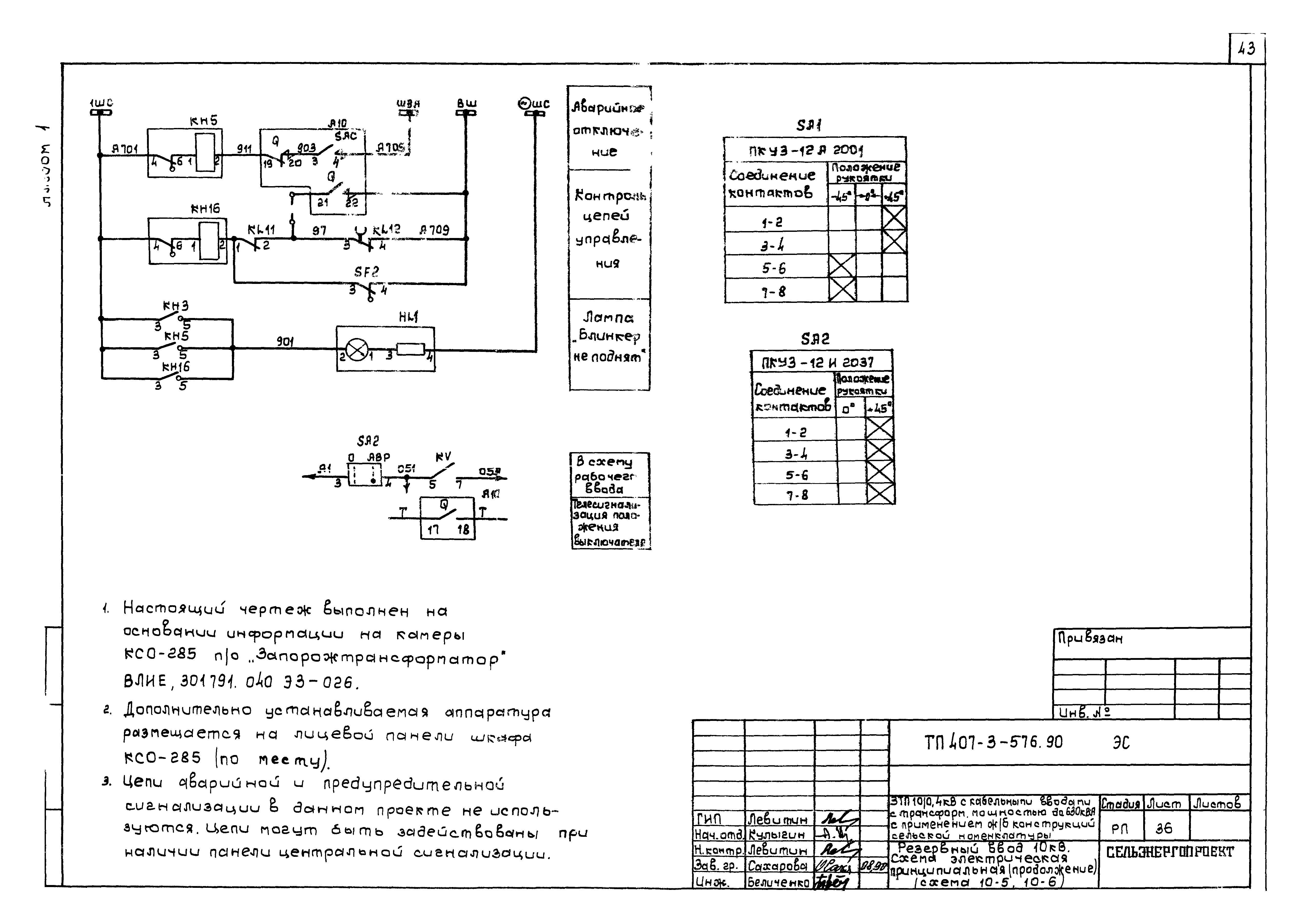
| Оглавление: | Содержание альбома Пояснительная записка Чертежи основного комплекта марки ЭС Общие данные Схема электрическая соединений 10 кВ Щит 0,4 кВ. Схема главных цепей (с АВР) Щит 0,4 кВ. Схема главных цепей (без АВР) План ПС для схемы 10-6. Спецификация Разрез 1-1. Вид А, В, С План РУ 10 кВ для схем 10-3, 10-4, 10-5 План щита 0,4 кВ. Вид Д Узел силового трансформатора Электрическое освещение и отопление Щиток уличного освещения Внутреннее заземление ПС Наружный контур заземления ПС Камера КСО225-ВПВ-600 с дополнительно установленным НОМ-10-65 Ошиновка ячеек КСО386 и КСО285 Воздушный вывод 0,4 кВ Щиток учета. Общий вид. Схема соединений шкафа Журнал контрольных кабелей Журнал силовых кабелей План раскладки кабелей РУ10 кВ. Трансформатор, отходящая линия. Схема электрическая принципиальная Рабочий ввод 10 кВ. Схема электрическая принципиальная Рабочий ввод 10 кВ. Спецификация Резервный ввод 10 кВ. Схема электрическая принципиальная Резервный ввод 10 кВ. Спецификация РУ10 кВ. Ряды зажимов шкафов КСО285 Распределительный щит 0,4 кВ трансформаторной подстанции с автоматами ВА (схема без АВР). Схема электрическая принципиальная Распределительный щит 0,4 кВ трансформаторной подстанции с автоматами ВА (схема без АВР). Спецификация Ряды зажимов панелей ЩО70 для схемы без АВР Распределительный щит 0,4 кВ трансформаторной подстанции с автоматами ВА (схема с АВР). Схема электрическая принципиальная Распределительный щит 0,4 кВ трансформаторной подстанции с автоматами ВА (схема с АВР). Спецификация Ряды зажимов панелей ЩО70 для схемы с АВР Ввод 0,4 кВ трансформатора. Схема цепей измерительных приборов Прилагаемые документы марки ЭС,ЛО Опросный лист на камеры КСО386 Опросный лист на камеры КСО285 Опросный лист на панели ЩО70 без АВР (мощностью трансформаторов 250, 400 кВА) Опросный лист на панели ЩО70 без АВР (мощностью трансформаторов 630 кВА) Опросный лист на панели ЩО70 с АВР (мощностью трансформаторов 250, 400 кВА) Опросный лист на панели ЩО70 с АВР (мощностью трансформаторов 630 кВА) Прилагаемые документы марки ЭСК Ведомость изделий мастерских электромонтажных заготовок (МЭЗ) Конструкция для крепления изоляторов. Тип 1 Конструкция для крепления изоляторов. Тип 2 Плита проходная асбестоцементная Подставка изолирующая |
| Разработан: | Сельэнергопроект |
| Утверждён: | 19.09.1990 Министерство энергетики и электрификации СССР (USSR Ministry of Energy and Electrical Power 112) |
| Издан: | АПП ЦИТП (1991 г. ) |










































































